Exhibit 10.26
AMENDMENT NO. 2
TO
STANDARD INDUSTRIAL/COMMERCIAL MULTI-TENANT LEASE-GROSS
This Amendment No. 2 to Standard Industrial/Commercial Multi-Tenant Lease – Gross (this “Amendment No. 2”) is entered into as of March 29, 2018, by and between Temescal, LP, a California limited partnership and Contra Costa Industrial Park, 11, a California limited partnership (collectively, “Lessor”) and Rigetti & Co., Inc., a Delaware corporation (“Lessee”) and amends that certain Standard Industrial/ Commercial Multi-Tenant Lease – Gross, dated as of April 15, 2015, as amended by that certain Amendment No. 1 thereto, dated as of May 11, 2017 (collectively, the “Lease”). All capitalized terms used herein and not otherwise defined herein shall have the meanings ascribed to them in the Lease.
RECITAL
Lessor and Lessee desires to extend the term of the Lease to October 31, 2022, set the Base Rent applicable as of August 1, 2018, and provide for certain additional space (for a backup generator) and make other changes relative to Lessee’s need to procure additional electric service, all as set forth in detail herein.
AGREEMENT
For good and valuable consideration, the receipt and adequacy of which are hereby acknowledged, the Lease is hereby amended as follows:
2
earthquake retrofit work to the Premises, then Lessee may, at Lessee's sole expense, elect to arrange for such work, the scope and design of which work, however, shall be subject to Lessor's advance, written consent, which consent shall not be unreasonably withheld, conditioned or delayed. Any such work shall be undertaken in accordance with all applicable law, including permit requirements. Such structural upgrades shall not be required to be removed or restored at the end of the Lease. Lessor also expressly consents to the replacement of the north facing windows and the addition of a roll up door to the east side of the Building (both at Lessee's expense, as and if desired by Lessee).
IN WITNESS WHEREOF, the parties have executed this Amendment No. 2 effective as of the date first above written.
LESSOR: |
| LESSEE: | ||||
| | | ||||
TEMESCAL, L.P. | | Rigetti & Co., Inc., | ||||
A California limited partnership | | a Delaware corporation | ||||
| | | ||||
By: | Libitzky Development Corp., | | /s/ Chad Rigetti | |||
| a California corporation | | By: | Chad Rigetti | ||
| Its: General Partner | | Its: | CEO | ||
| | | | | ||
| /s/ Moses S. Libitzky | | | | ||
| By: | Moses S. Libitzky | | | | |
| Its: | President | | | | |
| | | ||||
CONTRA COSTA INDUSTRIAL | | | ||||
PARK, Ltd., a California limited partnership | | | ||||
| | | ||||
By: | Ziegler Development Corp., | | | |||
| a California corporation, its | | | |||
| General Partner | | | |||
| | | | |||
| /s/ Michael H. Ziegler | | | |||
| By: | Michael H. Ziegler | | | ||
| Its: | President | | | ||
3
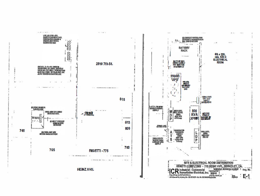
ICR
Electrical Contractors, Inc.
| | March 22, 2018 | |
RIGETTI COMPUTING | | | |
775 Heinz Ave. – Berkeley CA | | | |
POWER DISTRIBUTION & STANDBY SUPPORT EQUIPMENT | |||
Equipment Description | Manufacturer | Model ID Number | Qty. |
2000A 480V 3ph 3w Utility Power Cable Transition Section | EATON Corporation | Quotation No. SF810213X8K4 | Lot |
1000A 480V 3ph 3w Utility Metering & Main Breaker Section | EATON Corporation | Quotation No. SF810213X8K4 | Lot |
1000A 480V 3ph 3w Breaker Distribution Panelboard | EATON Corporation | Quotation No. SF810213X8K4 | Lot |
Dist. Breakers Installed: 1-3pole 600A, 1- 3pole 125A, 6- 3pole 80A, | | | |
1200A 120/208V 3ph 4w Breaker Distribution Panelboard | EATON Corporation | Quotation No. SF810213X8K4 | Lot |
Sub-Dist. Breakers Installed; 20-3pole 80A, 4- 3pole 40A, 1- 3polo 20A, | | | |
| | | |
500 KVA Transformer 480V 3ph - 208Y/120V 3ph 4w N1 Indoor | EATON Corporation | MV48M28T55CU | Lot |
| | | |
500 KVA UPS 480V 3ph 3w Sidecar Direct Cable Configuration | MITSUBISHI | 9900B 500KVA UPS – 3605 Ibs. | 1 |
| | | |
700 ekW 875 kVA Diesel Engine Powered Generator Set | CATERPILLAR | 700ekW 875KVA 3412C TA | 1 |
Exhibit 1 Page 1

Exhibit 1 Page 2
DIESEL GENERATOR SET |
|
|
| | STANDBY 700 ekW 875 kVA 60 Hz 1800 rpm 480 Volts Caterpillar is leading the power generation marketplace with Power Solutions engineered to deliver unmatched flexibility, expandability, reliability, and cost-effectiveness. |
Image shown may not | | |
FEATURES | | |
FUEL/EMISSIONS STRATEGY ● Low Fuel consumption | | CAT® 3412C TA DIESEL ENGINE ● Reliable, rugged, durable design ● Field-proven in thousands of applications worldwide ● Four-stroke-cycle diesel engine combines consistent performance and excellent fuel economy with minimum weight |
| | |
UL 2200 / CSA - Optional ● UL 2200 listed packages ● CSA Certified Certain restrictions may apply. Consult with your Cat® Dealer. | | |
| | |
FULL RANGE OF ATTACHMENTS ● Wide range of bolt-on system expansion attachments, factory designed and tested ● Flexible packaging options for easy and cost effective installation | | CAT GENERATOR ● Designed to match the performance and output characteristics of Cat diesel engines ● Single point access to accessory connections ● UL 1446 recognized Class H insulation |
| | |
SINGLE-SOURCE SUPPLIER ● Fully prototype tested with certified torsional vibration analysis available | | CAT EMCP 4 CONTROL PANELS ● Simple user friendly interface and navigation ● Scalable system to meet a wide range of customer needs ● Integrated Control System and Communications Gateway |
WORLDWIDE PRODUCT SUPPORT ● Cat dealers provide extensive post sale support including maintenance and repair agreements ● Cat dealers have over 1,800 dealer branch stores operating in 200 countries ● The Cat® S•O•S SM program cost effectively detects internal engine component condition, even the presence of unwanted fluids and combustion by-products | | |
| |
Exhibit 1 Page 3

