Exhibit 10.18
FIRST AMENDMENT TO LEASE AGREEMENT
THIS FIRST AMENDMENT TO LEASE AGREEMENT (this “Amendment”) is entered into as of May 9, 2019, by and between ProLogis Limited Partnership I (“Landlord”) and Rigetti & Co., Inc., a Delaware corporation (“Tenant”).
WHEREAS, Prologis and Tenant have entered into a Lease dated August 9, 2016, pursuant to which Landlord leased to Tenant certain premises consisting of approximately 12,800 square feet located at 47430 Seabridge Drive, Fremont, CA 94538 (the “Original Premises”), such lease, as heretofore modified, being herein referred to as the “Lease”.
WHEREAS, Landlord and Tenant desire to modify the Lease on the terms and conditions set forth below.
NOW THEREFORE, in consideration of the Premises and the mutual covenants hereinafter contained, the parties hereto agree as follows:
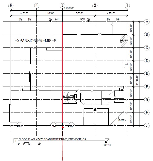
1. | Effective on July 1, 2019 (the “Expansion Commencement Date”) the Premises under the Lease shall be amended to include that portion of the Building containing approximately 12,800 rentable square feet as shown on Exhibit A attached hereto (the “Expansion Premises”) such that thereafter, subject to the provisions herein, the Premises under the Lease shall consist of a total of approximately 25,400 rentable square feet. Tenant shall accept the Expansion Premises in its “as- is” condition as of the Expansion Commencement Date. All of the terms and conditions of the Lease shall apply to the Expansion Premises effective on the Expansion Commencement Date. Effective on the Expansion Commencement Date, Tenant’s Proportionate Share of the Building shall be automatically amended to 47.21% (25,400 / 53,800 SF) and Tenant’s Proportionate Share of the Project shall be automatically amended to 6.70% (25,400 / 379,100 SF). |
2. | Notwithstanding anything set forth on Addendum 1 of the Lease to the contrary, effective on November 1, 2019, the Monthly Base Rent due and payable under this Lease shall be as follows: |
Period | Original Premises | Expansion Premises | Total Premises |
07/01/19 - 08/31/19 | $18,045.91 | $21,504.00 * | $39,549.91 ** |
09/01/19 – 09/30/19 | $18,587.29 | $21,504.00 * | $40,091.29 ** |
10/01/19 - 08/31/20 | $18,587.29 | $21,504.00 | $40,091.29 |
09/01/20 - 08/31/21 | $19,144.90 | $22,149.12 | $41,294.02 |
09/01/21 - 08/31/22 | $19,719.25 | $22,813.59 | $42,532.84 |
09/01/22 - 08/31/23 | $20,310.83 | $23,498.00 | $43,808.83 |
09/01/23 - 10/31/23 | $20,920.15 | $24,202.94 | $45,123.09 |
*Monthly Base Rent on the Expansion Premises is abated during this period.
**Monthly Base Rent on the Original Premises, Operating Expenses for the Total Premises will be due as provided in the Lease during this period.
3. | As of the Expansion Commencement Date, Tenant shall be responsible for the payment of Estimated Monthly Operating Expenses for both the Original Premises and the Expansion Premises in accordance with the terms of the Lease, as estimated below for 2019: |
Common Area Maintenance: | $2,431.00 |
Amortized Capital (ACR): | $546.00 |
Insurance: | $399.00 |
Taxes | $2,852.00 |
Management Fee: | $1,288.00 |
Total Estimated Operating Expenses: | $7,516.00 |
4. | Notwithstanding anything herein to the contrary, and provided that no Event of Default exists or would exist but for the passage of time, giving of notice, or both, Landlord shall contribute up to a maximum amount of USD$120,000.00 (the “TI Allowance”), towards the Tenant-Made Alterations to the Premises which can be capitalized by Landlord (as opposed to repairs and maintenance to the Premises), which payment shall be made by Landlord to Tenant within 30 days following (i) completion of the Tenant-Made Alterations, (ii) Landlord’s receipt of Tenant’s invoice substantiating the costs along with copies of vendor invoices summarizing work done, (iii) Landlord’s receipt of final lien waivers from all contractors and subcontractors who worked on the Tenant-Made Alterations, and (iv) Landlord’s receipt of a copy of the final construction permit approved by the applicable governing authority to the extent required for such Tenant-Made Alterations. Landlord shall be under no obligation to pay for any Tenant-Made Alterations to the Premises in excess of the TI Allowance. Further, such TI Allowance shall only be available for Tenant’s use through 3/31/2020, and Tenant hereby waives any and all rights to any unused portion of the TI Allowance remaining thereafter. |
5. | Landlord and Tenant acknowledge and agree that Landlord is holding the sum of $45,000.00 as Security Deposit for the performance by Tenant of its obligations under the Lease (the “Original Security Deposit”). Section 5 of the Lease is hereby amended to provide that the Security Deposit shall be increased to $70,000.00 (the “Increased Security Deposit”). The difference between the Original Security Deposit and the Increased Security Deposit, in the amount of $25,000.00, shall be due and payable immediately upon the execution of this First Amendment |
6. | Except as otherwise expressly provided herein, all defined terms used in this Amendment shall have the same respective meanings as are provided for such defined terms in the Lease. Except for those certain First Amendment Improvements, Tenant shall accept the Premises in its “as is” condition and shall pay Operating Expenses and other reimbursable costs as provided in the Lease. |
7. | Notwithstanding anything provided in the Lease to the contrary, effective on the date hereof, all payments required to be made by Tenant to Landlord (or to such other party as Landlord may from time to time specify in writing) may only be made by Electronic Fund Transfer (“EFT”) of immediately available federal funds before 11:00 a.m., Eastern Time at such place, within the continental United States, as Landlord may from time to time designate to Tenant in writing. |
8. | The notice addresses for Landlord during the Lease Term, as extended, shall be as follows: |
With a copy to:Prologis
3353 Gateway Boulevard
Fremont, California 94538
Attention: Property Management
With a copy to:Prologis
1800 Wazee Street, Suite 500
Denver, Colorado 80202
Attention: General Counsel
9. | Tenant represents and warrants that it has dealt with no broker, agent or other person in connection with this transaction and that no broker, agent or other person brought about this transaction, and Tenant agrees to indemnify and hold Landlord harmless from and against any claims by any other broker, agent or other person claiming a commission or other form of compensation by virtue of having dealt with Tenant with regard to this leasing transaction. |
10. | Within fifteen (15) days of Landlord’s written request, Tenant agrees to deliver to Landlord such information and/or documents as Landlord requires for Landlord to comply with California Public Resources Code Section 25402.10, or successor statute(s), and California Energy Commission adopted regulations set forth in California Code of Regulations, Title 20, Division 2, Chapter 4, Article 9, Sections 1680-1685, and successor and related California Code of Regulations, relating to commercial building energy ratings. Landlord makes the following statement based on Landlord’s actual knowledge in order to comply with California Civil Code Section 1938: The Building and Premises have not undergone an inspection by a Certified Access Specialist (CASp). A Certified Access Specialist (CASp) can inspect the subject Premises and determine whether the subject Premises comply with all of the applicable construction-related accessibility standards under state law. Although state law does not require a CASp inspection of the subject Premises, the Landlord may not prohibit the Tenant from obtaining a CASp inspection of the subject Premises for the occupancy or potential occupancy of the Tenant, if requested by the Tenant. The parties shall mutually agree on the arrangements for the time and manner of the CASp inspection, the payment of the fee for the CASp inspection, and the cost of making any repairs necessary to correct violations of construction-related accessibility standards within the premises. Landlord and Tenant hereby agree that a Tenant-requested CASp inspection shall be at Tenant’s sole cost and expense and that the cost of making any repairs necessary to correct violations of construction-related accessibility standards within the Premises shall be governed by Paragraph 3 of the Lease. |
11. | Except for the right of first offer option set forth on Exhibit C, attached hereto, all Tenant options to extend the Lease Term, terminate the Lease, or expand or contract the Premises, if any, which exist under the Lease are hereby null and void. |
12. | Insofar as the specific terms and provisions of this Amendment purport to amend or modify or are in conflict with the specific terms, provisions and exhibits of the Lease, the terms and provisions of this Amendment shall govern and control; in all other respects, the terms, provisions and exhibits of the Lease shall remain unmodified and in full force and effect. |
13. | Landlord and Tenant hereby agree that (i) this Amendment is incorporated into and made a part of the Lease, (ii) any and all references to the Lease hereinafter shall include this Amendment, and (iii) the Lease and all terms, conditions and provisions of the Lease are in full force and effect as of the date hereof, except as expressly modified and amended hereinabove. |
[Remainder of page is intentionally blank; signature page to follow]
IN WITNESS WHEREOF, Landlord and Tenant have executed this Lease as of the Effective Date.
TENANT: |
| LANDLORD: | ||
| | | ||
Rigetti & Co., Inc., | | PROLOGIS LIMITED PARTNERSHIP I | ||
a Delaware corporation | | a Delaware limited partnership | ||
| | | ||
| | By:Prologis, a Maryland real estate investment | ||
| | trust, its general partner | ||
| | | ||
By: | /s/ Chad Rigetti | | By: | /s/ Matt Ebner |
Name: | Chad Rigetti | | Name: | Matt Ebner |
Title: | Chief Executive Officer | | Title: | VP, Leasing Officer |
Exhibit A: SITE PLAN

Exhibit A-1: FLOOR PLAN

NEW DEMISING WALL
Exhibit B: CONSTRUCTION (TURNKEY)
(a)Landlord agrees to perform at Landlord’s sole cost and expense the following improvements (the “First Amendment Improvements”):
| ● | Install a demising wall, as shown on Exhibit A. |
| ● | Demise the electrical and mechanical. |
| ● | Relocate a transformer to a mutually agreeable location within the Premises. |
(b)If Tenant shall desire any changes, Tenant shall advise Landlord in writing and Landlord shall determine whether such changes can be made in a reasonable and feasible manner. All costs of reviewing any requested changes, and all costs of making any changes to the First Amendment Improvements which Tenant may request and which Landlord may agree to shall be at Tenant’s sole cost and expense and shall be paid to Landlord upon demand and before execution of the change order.
(c)Landlord shall proceed with and complete the construction of the First Amendment Improvements. As soon as such improvements have been Substantially Completed, Landlord shall notify Tenant in writing of the date that the First Amendment Improvements were Substantially Completed. The First Amendment Improvements shall be deemed substantially completed (“Substantially Completed” or “Substantial Completion”) when, in the opinion of the construction manager (whether an employee or agent of Landlord or a third party construction manager) (“Construction Manager”), the First Amendment Improvements are substantially completed except for punch list items which do not prevent in any material way the use of the First Amendment Improvements for the purposes for which they were intended. In the event Tenant, its employees, agents, or contractors cause construction of such improvements to be delayed, the date of Substantial Completion shall be deemed to be the date that, in the opinion of the Construction Manager, Substantial Completion would have occurred if such delays had not taken place. Tenant shall be solely responsible for delays caused by Tenant’s request for any changes in the plans, Tenant’s request for long lead items or Tenant’s interference with the construction of the First Amendment Improvements, and such delays shall not cause a deferral of the Commencement. After the date the First Amendment Improvements are Substantially Completed Tenant shall, upon demand, execute and deliver to Landlord a letter of acceptance of the First Amendment Improvements. In the event of any dispute as to the First Amendment Improvements the certificate of the Construction Manager shall be conclusive absent manifest error.
Exhibit C: RIGHT OF FIRST OFFER
(a) | Offered Space” shall mean 15,800 square feet located at 47470 Seabridge Drive, Fremont, CA 94538. |
(a)Provided that as of the date of giving the Offer Notice, (x) Tenant is the Tenant originally named herein, (y) Tenant actually occupies all of the Premises then-demised under this Lease, and (z) no Event of Default or event which but for the passage of time in the giving of notice, or both, would constitute an Event of Default has occurred and is continuing, if at any time during the Lease Term any lease for any portion of the Offered Space shall expire, then Landlord, before offering such Offered Space to anyone, other than the tenant then occupying such space (or its affiliates), shall offer to Tenant the right to include the Offered Space within the Premises on the same terms and conditions upon which Landlord intends to offer the Offered Space for lease. If the Offered Space is vacant on the date hereof, Landlord shall have no obligation to offer the Offered Space to Tenant until the Offered Space, or a portion thereof, has been leased and such lease thereafter expires.
(b)Landlord’s offer shall be made by written notice (“ Offer Notice”) and shall designate the space being offered and the terms upon which Landlord intends to offer the Offered Space. Tenant may accept the offer set forth in the Offer Notice by delivering to Landlord an unconditional acceptance (hereinafter called “Tenant’s Notice”) of such offer within 5 business days after delivery by Landlord of the Offer Notice to Tenant. Time is of the essence with respect to the giving of Tenant’s Notice. If Tenant does not accept (or fails to timely accept) the offer in the Offer Notice, Landlord shall be under no further obligation to Tenant with respect to the Offered Space.
(c)Tenant must accept all Offered Space offered by Landlord at any one time and may not exercise its right with respect to only part of such space. If Landlord desires to lease more space than the Offered Space to one tenant, Landlord may offer to Tenant all such space which Landlord desires to lease, and Tenant must exercise its rights hereunder with respect to all such space.
(d)If Tenant declines any Offered Space offered by Landlord, Tenant shall be deemed to have irrevocably waived all further rights under this Addendum, and Landlord shall be free to lease the Offered Space to third parties including on terms which may be less favorable to Landlord than those offered to Tenant.