Exhibit 10.20
THIRD AMENDMENT TO LEASE AGREEMENT
THIS THIRD AMENDMENT TO LEASE AGREEMENT (this “Amendment”) is entered into as of 03 June 2021, by and between ProLogis Limited Partnership I (“Landlord”) and Rigetti & Co, Inc., a Delaware corporation (“Tenant”).
W I T N E S S E T H:
WHEREAS, Prologis Limited Partnership I and Tenant have entered into a Lease dated , pursuant to which Landlord leased to Tenant certain premises consisting of approximately 38,000 square feet located at 47400-47470 Seabridge Drive, Fremont, CA 94538 (the “Premises”), such lease, as heretofore modified, being herein referred to as the “Lease”.
WHEREAS, Landlord and Tenant desire to modify the Lease on the terms and conditions set forth below.
A G R E E M E N T:
NOW THEREFORE, in consideration of the Premises and the mutual covenants hereinafter contained, the parties hereto agree as follows:
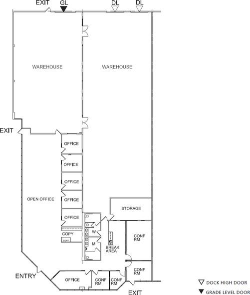
1. | Effective on September 1, 2021 (the “Expansion Commencement Date”) the Premises under the Lease shall be amended to include that portion of the Building containing approximately 12,600 rentable square feet as shown on Exhibit A attached hereto (the “Expansion Premises”) such that thereafter, subject to the provisions herein, the Premises under the Lease shall consist of a total of approximately 50,600 rentable square feet. Tenant shall accept the Expansion Premises in its “as-is” condition as of the Expansion Commencement Date. All of the terms and conditions of the Lease shall apply to the Expansion Premises effective on the Expansion Commencement Date. Effective on the Expansion Commencement Date, Tenant’s Proportionate Share of the Building shall be automatically amended to 70.6 % and Tenant’s Proportionate Share of the Project shall be automatically amended to 2.75%. |
2. | Effective on the Expansion Commencement Date, the Monthly Base Rent due and payable under this Lease shall be as follows through the end of the Lease Term: |
| Period | | Monthly Base Rent |
09/01/2021 | through | 11/30/2021 | *USD$72,200.00 |
12/01/2021 | through | 08/31/2022 | USD$72,200.00 |
09/01/2022 | through | 08/31/2023 | USD$74,366.00 |
09/01/2023 | through | 08/31/2024 | USD$76,596.98 |
09/01/2024 | through | 08/31/2025 | USD$78,894.89 |
09/01/2025 | through | 01/31/2026 | USD$81,261.74 |
*Monthly Base Rent is abated during this period. Operating Expenses will be due as provided in the Lease during this period.
3. | Landlord represents and warrants that, as of the Expansion Premises Commencement Date, no written notice has been received by Landlord of non-compliance with any Legal Requirements in connection with the Expansion Premises. |
4. | Landlord represents and warrants, to its knowledge, that as of the Commencement Date the Expansion Premises’ HVAC, electrical, plumbing and other mechanical systems are in good working order and Landlord warrants such systems for a period of 6 months from the Expansion Commencement Date; provided, however, that such warranty shall not be effective for any maintenance, repairs or replacements necessitated due to the misuse of, or damages caused by, Tenant, its employees, contractors, agents, subtenants, or invitees. |
5. | Except as otherwise expressly provided herein, all defined terms used in this Amendment shall have the same respective meanings as are provided for such defined terms in the Lease. |
6. | Notwithstanding anything herein to the contrary, and provided that no Event of Default exists or would exist but for the passage of time, giving of notice, or both, Landlord shall contribute up to a maximum amount of USD$176,400.00 (the “TI Allowance”), towards Tenant-Made Alterations to the Expansion Premises which can be capitalized by Landlord (as opposed to repairs and maintenance to the Premises or Expansion Premises generally), which payment shall be made by Landlord to Tenant within 30 days following (i) completion of the Tenant-Made Alterations, (ii) Landlord’s receipt of Tenant’s invoice substantiating the costs along with copies of vendor invoices summarizing work done, (iii) Landlord’s receipt of final lien waivers from all contractors and subcontractors who worked on the Tenant-Made Alterations, and (iv) Landlord’s receipt of a copy of the final construction permit approved by the applicable governing authority to the extent required for such Tenant-Made Alterations. Landlord shall be under no obligation to pay for any Tenant-Made Alterations to the Expansion Premises in excess of the TI Allowance. Further, such TI Allowance shall only be available for Tenant’s use through 12/31/2022, and Tenant hereby waives any and all rights to any unused portion of the TI Allowance remaining thereafter. |
7. | From and after the Effective Date, Landlord shall allow Tenant access to the Expansion Premises, for purposes of preparing the Expansion Premises for the commencement of Tenant’s normal business operations, subject to applicable ordinances and building codes governing Tenant’s right to occupy or perform in the Expansion Premises (“Early Occupancy Period”). During such Early Occupancy Period, Tenant shall be bound by its obligations under the Lease, including the obligation to provide evidence of insurance, but shall not be obligated to pay Monthly Base Rent or Operating Expenses for the Expansion Premises payable by Tenant to Landlord as set forth in this Lease. (as amended by this Amendment). |
8. | On the Expansion Commencement Date, the “Security Deposit” required pursuant to Paragraph 5 of the Lease shall be increased to $92,657.94. Tenant shall pay a total of $22,657.94, the difference between the Security Deposit Landlord is currently holding and the increased Security Deposit contemplated in the preceding sentence on or before the Expansion Commencement Date. |
9. | Notwithstanding anything provided in the Lease to the contrary, effective on the date hereof, all payments required to be made by Tenant to Landlord (or to such other party as Landlord may from time to time specify in writing) may only be made by Electronic Fund Transfer (“EFT”) |
of immediately available federal funds before 11:00 a.m., Eastern Time at such place, within the continental United States, as Landlord may from time to time designate to Tenant in writing.
10. | The notice addresses for Landlord and Tenant during the Lease Term, as extended, shall be as follows: |
Landlord: | ProLogis Limited Partnership I | |
| 3353 Gateway Blvd, | |
| Fremont, California 94538-6512 | |
| | |
With a copy to: | Prologis | |
| 1800 Wazee Street, Suite 500 | |
| Denver, Colorado 80202 | |
| Attention: General Counsel | |
| | |
Tenant: | Rigetti & Co, Inc. | |
| 775 Heinz Avenue | |
| Berkeley, CA 94710 | |
| Attention: General Counsel | |
With a copy to: | |
11. | Tenant represents and warrants that, other than the Broker(s) (Cbre, Inc. on behalf of Landlord, herein the “Brokers”), it has dealt with no broker, agent or other person in connection with this transaction and that no broker, agent or other person brought about this transaction, and Tenant agrees to indemnify and hold Landlord harmless from and against any claims by any other broker, agent or other person claiming a commission or other form of compensation by virtue of having dealt with Tenant with regard to this leasing transaction. |
12. | Within fifteen (15) days of Landlord’s written request, Tenant agrees to deliver to Landlord such information and/or documents as Landlord requires for Landlord to comply with California Public Resources Code Section 25402.10, or successor statute(s), and California Energy Commission adopted regulations set forth in California Code of Regulations, Title 20, Division 2, Chapter 4, Article 9, Sections 1680-1685, and successor and related California Code of Regulations, relating to commercial building energy ratings. Landlord makes the following statement based on Landlord’s actual knowledge in order to comply with California Civil Code Section 1938: The Building and Premises have not undergone an inspection by a Certified Access Specialist (CASp). A Certified Access Specialist (CASp) can inspect the subject Premises and determine whether the subject Premises comply with all of the applicable construction- related accessibility standards under state law. Although state law does not require a CASp inspection of the subject Premises, the Landlord may not prohibit the Tenant from obtaining a CASp inspection of the subject Premises for the occupancy or potential occupancy of the Tenant, if requested by the Tenant. The parties shall mutually agree on the arrangements for the time and manner of the CASp inspection, the payment of the fee for the CASp inspection, and the cost of making any repairs necessary to correct violations of construction-related accessibility standards within the premises. Landlord and Tenant hereby agree that a Tenant- requested CASp inspection shall be at Tenant’s sole cost and expense and that the cost of making any repairs necessary to correct violations of construction-related accessibility |
standards within the Premises shall be governed by Paragraph 3 of the Lease.
13. | All Tenant options to extend the Lease Term, terminate the Lease, or expand or contract the Premises, if any, which exist under the Lease are hereby null and void. |
14. | Insofar as the specific terms and provisions of this Amendment purport to amend or modify or are in conflict with the specific terms, provisions and exhibits of the Lease, the terms and provisions of this Amendment shall govern and control; in all other respects, the terms, provisions and exhibits of the Lease shall remain unmodified and in full force and effect. |
15. | Landlord and Tenant hereby agree that (i) this Amendment is incorporated into and made a part of the Lease, (ii) any and all references to the Lease hereinafter shall include this Amendment, and (iii) the Lease and all terms, conditions and provisions of the Lease are in full force and effect as of the date hereof, except as expressly modified and amended hereinabove. |
[Remainder of page is intentionally blank; signature page to follow]
IN WITNESS WHEREOF, Landlord and Tenant have executed this Lease as of the Effective Date.
TENANT: | | LANDLORD: | ||
| | | | |
Rigetti & Co, Inc., a Delaware corporation | | PROLOGIS LIMITED PARTNERSHIP I | ||
| | a Delaware limited partnership | ||
| | | | |
| | | By: Prologis, a Maryland real estate investment | |
| | | trust, its general partner | |
| | | | |
By: | /s/ Chad Rigetti | | By: | /s/ Travis Durfee |
Name: | Chad Rigetti | | Name: | Travis Durfee |
Title: | CEO | | Title: | SVP |
EXHIBIT A

