EX-10.12

Exhibit 10.12

[Net Lease]

LEASE AGREEMENT

THIS LEASE AGREEMENT is made this 9th day of August, 2016, between PROLOGIS LIMITED PARTNERSHIP I (“Landlord”), and the Tenant named below.

 

Tenant:    Rigetti & Co, Inc., a Delaware corporation
Tenants’ Representative, Address, and Telephone:   

Rigetti & Co, Inc.

775 Heinz Avenue

Berkeley, CA 94710

Attention: John Costa

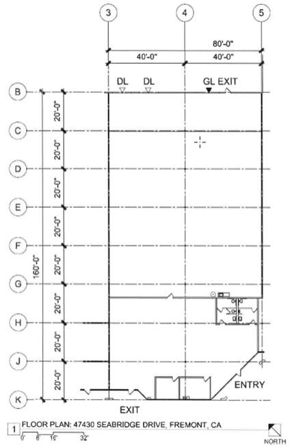
Premises:    That portion of the Building, containing approximately 12,600 rentable square feet, as determined by Landlord, commonly known as 47430 Seabridge Drive, Fremont, California 94538, as shown on Exhibit A.
Project:    The project commonly known as Prologis Park Bayside
Building:   

Bayside 22 (sba00310)

47400-47470 Seabridge Drive

Fremont, CA 94538

Tenant’s Proportionate Share of Project:    3.11 % (12,600 / 405,600 SF)
Tenant’s Proportionate Share of Building:    23.42 % (12,600 / 53,800 SF)
Lease Term:    Beginning on the Commencement Date and ending on the last day of the 86th full month following the Commencement Date.
Commencement Date:    September 1, 2016, subject to Section 2 below.
Initial Monthly Base Rent:    See Addendum 1
Initial Estimated Monthly Operating Expense Payments: (estimates only and subject to adjustment to actual costs and expenses according to the provisions of this Lease)   

1. Common Area Charges:                     $1,049.00

 

2. Taxes:                                                  $1,330.00

 

3. Insurance:                                            $185.00

 

4. Management Fee:                               $587.00

Initial Estimated Monthly Operating Expense Payments:    $3,151.00
Initial Monthly Base Rent, and Estimated Operating Expense:    $20,161.00
Security Deposit:    $48,000.00
Brokers:   

Landlord: CBRE, Inc.

Tenant: Savills Studley

Addenda:   

1. Base Rent Adjustments

2. HVAC Maintenance Contract

3. Move Out Conditions

4. Construction Addendum

5. Storage and Use Permitted of Hazardous Materials

Exhibits:   

A. Site Plan

A-1. Floor Plan

B. Project Rules and Regulations

C. Commencement Date Certificate

D. Sign Criteria

 

- 1 -


1. Granting Clause. In consideration of the obligation of Tenant to pay rent as herein provided and in consideration of the other terms, covenants, and conditions hereof, Landlord leases to Tenant, and Tenant takes from Landlord, the Premises, to have and to hold for the Lease Term, subject to the terms, covenants and conditions of this Lease.

2. Acceptance of Premises. Tenant shall accept the Premises in its condition as of the Commencement Date, subject to all applicable laws, ordinances, regulations, covenants and restrictions. Landlord has made no representation or warranty as to the suitability of the Premises for the conduct of Tenant’s business, and Tenant waives any implied warranty that the Premises are suitable for Tenant’s intended purposes. Except as otherwise expressly provided in Paragraphs 10 and 11 of this Lease, in no event shall Landlord have any obligation for any defects in the Premises or any limitation on its use. The taking of possession of the Premises shall be conclusive evidence that Tenant accepts the Premises and that the Premises were in good condition at the time possession was taken except for items that are Landlord’s responsibility under Paragraph 10 and any punchlist items agreed to in writing by Landlord and Tenant. No later than 10 days after written demand is made therefor by Landlord of Tenant, Tenant shall execute and deliver to Landlord a Commencement Date Certificate in the form of Exhibit C attached to and hereby made a part of this Lease. Landlord represents and warrants that as of the Commencement Date the Building’s HVAC, electrical, plumbing and other mechanical systems are in good working order.

Upon the mutual execution and delivery of both this Lease and proof of insurance required by this Lease, and subject to the terms of Addendum 4, Landlord shall allow Tenant access to the Premises for the purposes of (i) constructing the Tenant Improvements (set forth on Exhibit E), (ii) preparing the Premises for the commencement of Tenant’s normal business operations and (iii) the Permitted Use, subject to applicable ordinances and building codes governing Tenant’s right to occupy or perform in the Premises (“Early Occupancy”). During such Early Occupancy period prior to the Commencement Date, Tenant shall be bound by its obligations under the Lease, including the obligation to provide evidence of insurance, but shall not be obligated to pay the Monthly Base Rent or Operating Expenses payable by Tenant to Landlord as set forth in the Lease. Notwithstanding anything to the contrary herein, in the event Landlord does not provide Tenant access to the Premises upon Tenant’s satisfaction of insurance and Legal Requirements (and subject to Force Majeure), the Commencement Date (and the timing of all increases in Base Rent set forth in Addendum 1) shall be delayed one day for each day that Landlord fails to provide Tenant such access; provided, however, no in event shall Landlord’s work on the Initial Improvements or presence in the Premises prior to the Commencement Date be deemed a failure to provide Tenant with access.

3. Use. The Premises shall be used only for the purpose of receiving, storing, shipping and selling (but specifically excluding retail selling) products, materials and merchandise made and/or distributed by Tenant, general office, lab, research and development, manufacturing and for such other lawful purposes as may be incidental thereto. Tenant shall not conduct or give notice of any auction, liquidation, or going out of business sale on the Premises. Tenant will use the Premises in a careful, safe and proper manner and will not commit waste, overload the floor or structure of the Premises or subject the Premises to use that would damage the Premises. Tenant shall not permit any objectionable or unpleasant odors, smoke, dust, gas, noise, or vibrations to emanate from the Premises, or take any other action that would constitute a nuisance or would disturb, unreasonably interfere with, or endanger Landlord or any tenants of the Project. Outside storage, including without limitation, storage of trucks and other vehicles, is prohibited without Landlord’s prior written consent; provided, however, Tenant shall have the right to park operable vehicles and trailers overnight at the truck loading docks and designated truck and trailer parking areas for the Premises and operable automobiles in the designated automobile parking areas, and further provided there is no interference with the access of other tenants to the Building and Project parking lots and truck courts. Tenant, at its sole expense, shall use and occupy the Premises in compliance with all laws, including, without limitation, the Americans With Disabilities Act, orders, judgments, ordinances, regulations, codes, directives, permits, licenses, covenants and restrictions now or hereafter applicable to the Premises (collectively, “Legal Requirements”). The Premises shall not be used as a place of public accommodation under the Americans With Disabilities Act or similar state statutes or local ordinances or any regulations promulgated thereunder, all as may be amended from time to time. Landlord represents and warrants that, as of the Commencement Date, no written notice has been received by Landlord of non-compliance with any Legal Requirements in connection with the Premises. In the event that Landlord receives notice that the Premises is not in compliance with applicable Legal Requirements existing as of the Commencement Date and such non-compliance is not related to Tenant’s specific use of the Premises or Tenant-Made Alterations to the Premises performed by Tenant, Landlord shall make such modifications as may be required by order or directive of applicable governmental authority in order to bring the Premises into compliance with applicable Legal Requirements as of the Commencement Date without cost or expense to Tenant and without including such cost or expense as an Operating Expense. Furthermore, in the event Landlord receives notice that the Premises is not in compliance with applicable Legal Requirements which come into effect after the Commencement Date and such non-compliance is not related to Tenant’s specific use of the Premises or Tenant-Made Alterations to the Premises performed by Tenant, Landlord shall make such modifications as may be required by order or directive of applicable governmental authority in order to bring the Premises into compliance with applicable Legal Requirements which shall be chargeable to Tenant as an Operating Expense. Landlord represents and warrants that, as of the Commencement Date, no written notice has been received by Landlord of non-compliance with any Legal Requirements in connection with the Premises. Tenant shall, at its expense, make any alterations or modifications, within or without the Premises, that are required by Legal Requirements related to Tenant’s specific use or occupation of the Premises. Tenant will not use or permit the Premises to be used for any purpose or in any manner that would void Tenant’s or Landlord’s insurance, increase the insurance risk, or cause the disallowance of any sprinkler credits. If any increase in the cost of any insurance on the Premises or the Project is caused by Tenant’s use or occupation of the Premises, or because Tenant vacates the Premises, then Tenant shall pay the amount of such increase to Landlord. Any occupation of the Premises by Tenant prior to the Commencement Date shall be subject to all obligations of Tenant under this Lease.

 

- 2 -


4. Base Rent. Tenant shall pay Base Rent in the amount set forth on Page 1 of this Lease. The first month’s Base Rent, the Security Deposit, and the first monthly installment of estimated Operating Expenses (as hereafter defined) shall be due and payable on the date hereof, and Tenant promises to pay to Landlord in advance, without demand, deduction or set-off, monthly installments of Base Rent on or before the first day of each calendar month succeeding the Commencement Date. Payments of Base Rent for any fractional calendar month shall be prorated. All payments (other than the first monthly installment of Base Rent, Operating Expenses and the Security Deposit) required to be made by Tenant to Landlord hereunder (or to such other party as Landlord may from time to time specify in writing) shall be made by Electronic Fund Transfer (“EFT”) of immediately available federal funds before 11:00 a.m., Pacific Time at such place, within the continental United States, as Landlord may from time to time designate to Tenant in writing. The obligation of Tenant to pay Base Rent and other sums to Landlord and the obligations of Landlord under this Lease are independent obligations. Tenant shall have no right at any time to abate, reduce, or set-off any rent due hereunder except as may be expressly provided in this Lease. If Tenant is delinquent in any monthly installment of Base Rent or of Operating Expenses beyond 5 days after the due date thereof, and after notice as provided below, Tenant shall pay to Landlord on demand a late charge equal to 8 percent of such delinquent sum. Tenant shall not be obligated to pay the late charge until Landlord has given Tenant 5 days written notice of the delinquent payment (which may be given at any time during the delinquency); provided, however, that such notice shall not be required more than once in any 12-month period. The provision for such late charge shall be in addition to all of Landlord’s other rights and remedies hereunder or at law and shall not be construed as a penalty or as limiting Landlord’s remedies in any manner.

5. Security Deposit. The Security Deposit shall be held by Landlord as security for the performance of Tenant’s obligations under this Lease. The Security Deposit is not an advance rental deposit or a measure of Landlord’s damages in case of Tenant’s default. Upon each occurrence of an Event of Default (hereinafter defined), Landlord may use all or part of the Security Deposit to pay delinquent payments due under this Lease, and the cost of any damage, injury, expense or liability caused by such Event of Default, without prejudice to any other remedy provided herein or provided by law. Tenant shall pay Landlord on demand the amount that will restore the Security Deposit to its original amount. Landlord’s obligation respecting the Security Deposit is that of a debtor, not a trustee; no interest shall accrue thereon. The Security Deposit shall be the property of Landlord, but shall be paid to Tenant when Tenant’s obligations under this Lease have been completely fulfilled. Landlord shall not be required to keep all or any part of the Security Deposit separate from its general accounts. Tenant waives any limitations set forth in California Civil Code Section 1950.7 limiting the use to which a security deposit may be applied. Landlord shall be released from any obligation with respect to the Security Deposit upon transfer of this Lease and the Premises to a person or entity assuming Landlord’s obligations under this Paragraph 5.

6. Operating Expense Payments. During each month of the Lease Term, on the same date that Base Rent is due, Tenant shall pay Landlord an amount equal to 1/12 of the annual cost, as estimated by Landlord from time to time, of Tenant’s Proportionate Share (hereinafter defined) of Operating Expenses for the Project. Payments thereof for any fractional calendar month shall be prorated. The term “Operating Expenses” means all costs and expenses incurred by Landlord with respect to the ownership, maintenance, and operation of the Project including, but not limited to costs of: Taxes (hereinafter defined) and fees payable to tax consultants and attorneys for consultation and contesting taxes; insurance; utilities; maintenance, repair and replacement of all portions of the Project, including without limitation, paving and parking areas, roads, non-structural components of the roofs (including the roof membrane), alleys, and driveways, mowing, landscaping, snow removal, exterior painting, utility lines, heating, ventilation and air conditioning systems, lighting, electrical systems and other mechanical and building systems; amounts paid to contractors and subcontractors for work or services performed in connection with any of the foregoing; charges or assessments of any association to which the Project is subject; property management fees payable to a property manager, including any affiliate of Landlord, or if there is no property manager, an administration fee of 15 percent of Operating Expenses payable to Landlord; security services, if any; trash collection, sweeping and removal; and additions or alterations made by Landlord to the Project or the Building in order to comply with Legal Requirements (other than those expressly required herein to be made by Tenant) or that are appropriate to the continued operation of the Project or the Building as a bulk warehouse facility in the market area, provided that the cost of additions or alterations that are normally capitalized under generally accepted accounting principles shall be amortized on a straight line basis over a period equal to the lesser of the useful life thereof for federal income tax purposes or 10 years. Operating Expenses do not include (a) debt service under mortgages or ground rent under ground leases; (b) leasing commissions, or the costs of renovating space for tenants; (c) repairs, alterations, additions, improvements or replacements made to rectify or correct any defect in the design, materials or workmanship of the Premises, the Building or the Project; (d) costs of repairs, restoration, replacements or other work occasioned by (i) fire, windstorm or other casualty (including the costs of any deductibles paid by Landlord) and either (aa) payable (whether paid or not) by insurance required to be carried by Landlord under this Lease, or (bb) otherwise paid by insurance then in effect obtained by Landlord (ii) the adjudicated negligence or adjudicated intentional tort of Landlord, or any representative, employee or agent of Landlord, (iii) the act of any other tenant in the Premises, the Building or the Project, or any other tenant’s agents, employees, licensees or invitees to the extent the applicable cost is, in the Landlord’s reasonable judgment, practically recoverable from such person; (e) costs incurred (less costs of recovery) for any items to the extent such amounts are, in Landlord’s reasonable judgment, recoverable by Landlord under a manufacturer’s, materialman’s, vendor’s or contractor’s warranty; (f) non-cash items, such as deductions for depreciation and amortization of the Premises, the Building or the Project and the Premises, the Building or the Project equipment, or interest on capital invested; (g) legal fees, accountants’ fees and other expenses incurred in connection with disputes with other tenants or occupants of the Premises, the Building or the Project or associated with the enforcement of any lease or defense of Landlord’s title to or interest in the Premises, the Building or the Project or any part thereof; (h) costs incurred due to violation by Landlord or any other tenant in the Premises, the Building or the Project of the terms and conditions of any lease; (i) the cost of any service provided to Tenant or other occupants of the Premises, the Building or the Project for which Landlord is entitled to be reimbursed; (j) charitable or political contributions; (k) interest, penalties or other costs arising out of Landlord’s failure to make timely payments of its obligations; (1) costs, expenses, depreciation or amortization for repairs and replacements required to be made by Landlord under Paragraph 10 of this Lease; or (m) expense reserves; or (n) costs that are normally capitalized under generally accepted accounting principles except as amortized pursuant to the above.

 

- 3 -


If Tenant’s total payments of Operating Expenses for any year are less than Tenant’s Proportionate Share of actual Operating Expenses for such year, then Tenant shall pay the difference to Landlord within 30 days after demand, and if more, then Landlord shall retain such excess and credit it against Tenant’s next payments except that during the last calendar year of the Lease Term or any extension terms thereof, Landlord shall refund any such excess within 60 days following the termination of the Lease Term or any extension terms thereof, provided that Tenant is not in default of its obligations under this Lease. For purposes of calculating Tenant’s Proportionate Share of Operating Expenses, a year shall mean a calendar year except the first year, which shall begin on the Commencement Date, and the last year, which shall end on the expiration of this Lease. With respect to Operating Expenses which Landlord allocates to the entire Project, Tenant’s “Proportionate Share” shall be the percentage set forth on the first page of this Lease as Tenant’s Proportionate Share of the Project as reasonably adjusted by Landlord in the future for changes in the physical size of the Premises or the Project; and, with respect to Operating Expenses which Landlord allocates only to the Building, Tenant’s “Proportionate Share” shall be the percentage set forth on the first page of this Lease as Tenant’s Proportionate Share of the Building as reasonably adjusted by Landlord in the future for changes in the physical size of the Premises or the Building. Landlord may equitably increase Tenant’s Proportionate Share for any item of expense or cost reimbursable by Tenant that relates to a repair, replacement, or service that benefits only the Premises or only a portion of the Project or Building that includes the Premises or that varies with occupancy or use. The estimated Operating Expenses for the Premises set forth on the first page of this Lease are only estimates, and Landlord makes no guaranty or warranty that such estimates will be accurate.

7. Utilities. Tenant shall pay for all water, gas, electricity, heat, light, power, telephone, sewer, sprinkler services, refuse and trash collection, and other utilities and services used on the Premises, all maintenance charges for utilities, and any storm sewer charges or other similar charges for utilities imposed by any governmental entity or utility provider, together with any taxes, penalties, surcharges or the like pertaining to Tenant’s use of the Premises. Landlord may cause at Tenant’s expense any utilities to be separately metered or charged directly to Tenant by the provider in the event Landlord reasonably determines that Tenant’s use of such jointly metered utility materially exceeds the use of such jointly metered utility by other tenants in the Building. Tenant shall pay its share of all charges for jointly metered utilities based upon consumption, as reasonably determined by Landlord. No interruption or failure of utilities shall result in the termination of this Lease or the abatement of rent. Landlord acknowledges that, as of the date hereof, electricity and gas for the Premises are separately metered and shall be paid by Tenant directly and regular usage costs charged by the utility company shall not be duplicatively included as an Operating Expense.

8. Taxes. Landlord shall pay all taxes, assessments and governmental charges (collectively referred to as “Taxes”) that accrue against the Project during the Lease Term, which shall be included as part of the Operating Expenses charged to Tenant. Landlord may contest by appropriate legal proceedings the amount, validity, or application of any Taxes or liens thereof. All capital levies or other taxes assessed or imposed on Landlord upon the rents payable to Landlord under this Lease and any franchise tax, any excise, use, margin, transaction, sales or privilege tax, assessment, levy or charge measured by or based, in whole or in part, upon such rents from the Premises and/or the Project or any portion thereof shall be paid by Tenant to Landlord monthly in estimated installments or upon demand, at the option of Landlord, as additional rent; provided, however, in no event shall Tenant be liable for inheritance, estate or gift taxes, or any net income taxes imposed on Landlord unless such net income taxes are in substitution for any Taxes payable hereunder. If any such tax or excise is levied or assessed directly against Tenant or results from any Tenant-Made Alterations (defined below), then Tenant shall be responsible for and shall pay the same at such times and in such manner as the taxing authority shall require. Tenant shall be liable for all taxes levied or assessed against any personal property or fixtures placed in the Premises, whether levied or assessed against Landlord or Tenant.

9. Insurance. Landlord shall maintain all risk or special form property insurance covering the full replacement cost of the Building and commercial general liability insurance on the Project in forms and amounts customary for properties substantially similar to the Project, subject to customary deductibles. Landlord may, but is not obligated to, maintain such other insurance and additional coverages as it may deem necessary, including but not limited to, rent loss insurance. All such insurance shall be included as part of the Operating Expenses charged to Tenant. The Project or Building may be included in a blanket policy (in which case the cost of such insurance allocable to the Project or Building will be determined by Landlord based upon the total insurance cost calculations). Tenant shall also reimburse Landlord for any increased premiums or additional insurance which Landlord reasonably deems necessary as a result of Tenant’s use of the Premises.

Tenant, at its expense, shall maintain during the Lease Term the following insurance, at Tenant’s sole cost and expense: (1) commercial general liability insurance applicable to the Premises and its appurtenances providing, on an occurrence basis, a minimum combined single limit of $2,000,000; and in the event property of Tenant’s invitees or customers are kept in, or about the, Premises, Tenant shall maintain warehouser’s legal liability or bailee customers insurance for the full value of the property of such invitees or customers as determined by the warehouse contract between Tenant and its customer; (2) all risk or special form property insurance covering the full replacement cost of all property and improvements installed or placed in the Premises by Tenant; (3) workers’ compensation insurance as required by the state in which the Premises is located and in amounts as may be required by applicable statute and shall include a waiver of subrogation in favor of Landlord; (4) employers liability insurance of at least $1,000,000, (5) business automobile liability insurance having a combined single limit of not less than $2,000,000 per occurrence insuring Tenant against liability arising out of the ownership maintenance or use of any owned, hired or nonowned automobiles, and (6) business interruption insurance with a limit of liability representing loss of at least approximately 6 months of income. Any company writing any of Tenant’s insurance shall have an

 

- 4 -


A.M. Best rating of not less than A-VIII and provide primary coverage to Landlord (any policy issued to Landlord providing duplicate or similar coverage shall be deemed excess over Tenant’s policies). All commercial general liability and, if applicable, warehouser’s legal liability or bailee customers insurance policies shall name Tenant as a named insured and Landlord, its property manager, and other designees of Landlord as the interest of such designees shall appear, as additional insureds. The limits and types of insurance maintained by Tenant shall not limit Tenant’s liability under this Lease. Tenant shall provide Landlord with certificates of such insurance as required under this Lease prior to the earlier to occur of the Commencement Date or the date Tenant is provided with possession of the Premises, and thereafter upon renewals at least 15 days prior to the expiration of the insurance coverage. Acceptance by Landlord of delivery of any certificates of insurance does not constitute approval or agreement by Landlord that the insurance requirements of this section have been met, and failure of Landlord to identify a deficiency from evidence provided will not be construed as a waiver of Tenant’s obligation to maintain such insurance. In the event any of the insurance policies required to be carried by Tenant under this Lease shall be cancelled prior to the expiration date of such policy, or if Tenant receives notice of any cancellation of such insurance policies from the insurer prior to the expiration date of such policy, Tenant shall: (a) immediately deliver notice to Landlord that such insurance has been, or is to be, cancelled, (b) shall promptly replace such insurance policy in order to assure no lapse of coverage shall occur, and (c) shall deliver to Landlord a certificate of insurance for such policy. The insurance required to be maintained by Tenant hereunder are only Landlord’s minimum insurance requirements and Tenant agrees and understands that such insurance requirements may not be sufficient to fully meet Tenant’s insurance needs

The all risk or special form property insurance obtained by Landlord and Tenant shall include a waiver of subrogation by the insurers and all rights based upon an assignment from its insured, against Landlord or Tenant, their officers, directors, employees, managers, agents, invitees and contractors, in connection with any loss or damage thereby insured against. Notwithstanding anything to the contrary herein, neither party nor its officers, directors, employees, managers, agents, invitees or contractors shall be liable to the other for loss or damage caused by any risk coverable by all risk or special form property insurance, and each party waives any claims against the other party, and its officers, directors, employees, managers, agents, invitees and contractors for such loss or damage. The failure of a party to insure its property shall not void this waiver. Tenant and its agents, employees and contractors shall not be liable for, and Landlord hereby waives all claims against such parties for losses resulting from an interruption of Landlord’s business, or any person claiming through Landlord, resulting from any accident or occurrence in or upon the Premises or the Project from any cause whatsoever, including without limitation, damage caused in whole or in part, directly or indirectly, by the negligence of Tenant or its agents, employees or contractors. Landlord and its agents, employees and contractors shall not be liable for, and Tenant hereby waives all claims against such parties for losses resulting from an interruption of Tenant’s business, or any person claiming through Tenant, resulting from any accident or occurrence in or upon the Premises or the Project from any cause whatsoever, including without limitation, damage caused in whole or in part, directly or indirectly, by the negligence of Landlord or its agents, employees or contractors.

10. Landlord’s Repairs. Landlord shall repair, at its expense and without pass through as an Operating Expense, the structural soundness of the roof (which does not include the roof membrane), the structural soundness of the foundation, and the structural soundness of the exterior walls of the Building in good repair, reasonable wear and tear and damages caused by Tenant, its agents and contractors excluded. The term “walls” as used in this Paragraph 10 shall not include windows, glass or plate glass, doors or overhead doors, special store fronts, dock bumpers, dock plates or levelers, or office entries. Tenant shall promptly give Landlord written notice of any repair required by Landlord pursuant to this Paragraph 10, after which Landlord shall have a reasonable opportunity to repair. Landlord, as an Operating Expense, to the extent provided in Paragraph 6, shall maintain in good repair and condition the parking areas and other common areas of the Building, including, but not limited to driveways, alleys, landscape and grounds surrounding the Premises.

11. Tenant’s Repairs. Subject to Landlord’s obligation in Paragraph 10 and subject to Paragraphs 9 and 15, Tenant, at its expense, shall repair, replace and maintain in good condition all portions of the Premises and all areas, improvements and systems exclusively serving the Premises including, without limitation, dock and loading areas, truck doors, plumbing, water and sewer lines up to points of common connection, fire sprinklers and fire protection systems, entries, doors, ceilings, windows, interior walls, and the interior side of demising walls, and heating, ventilation and air conditioning systems. Such repair and replacements include capital expenditures and repairs whose benefit may extend beyond the Term; provided in all events Landlord shall complete such capital repairs and such capital expenditures shall be fully amortized in accordance with the Formula (defined hereafter) and reimbursed to Landlord over the remainder of the Lease Term, without regard to any extension or renewal option not then exercised. The “Formula” shall mean that number, the numerator of which shall be the number of months of the Lease Term remaining after such capital expenditures, and the denominator of which shall be the amortization period (in months) equal to the useful life of such repair or replacement multiplied by the cost of such capital expenditure or repair. Landlord shall pay for such capital expenditures and repairs and Tenant shall reimburse Landlord for its amortized share of same (determined as hereinabove set forth) in equal monthly installments in the same manner as the payment by Tenant to Landlord of the Operating Expenses. In the event Tenant extends the Lease Term either by way of an option or negotiated extension, such reimbursement by Tenant shall continue as provided above until such amortization period has expired. Heating, ventilation and air conditioning systems and other mechanical and building systems exclusively serving the Premises shall be maintained at Tenant’s expense pursuant to maintenance service contracts entered into by Tenant or, at Landlord’s election, by Landlord, in which case the costs of such contracts entered into by Landlord shall be included as an Operating Expense. The scope of services and contractors under such maintenance contracts shall be reasonably approved by Landlord. If Tenant fails to perform any repair or replacement for which it is responsible, beyond any applicable notice and cure periods, Landlord may perform such work and be reimbursed by Tenant within 10 days after demand therefor. Subject to Paragraphs 9 and 15, Tenant shall bear the full cost of any repair or replacement to any part of the Building or Project that results from damage caused by Tenant, its agents, contractors, or invitees and any repair that benefits only the Premises.

 

- 5 -


Notwithstanding anything contained herein to the contrary, Landlord shall warrant any repairs or replacements to the heating, ventilation and air conditioning systems and equipment related thereto servicing the Premises for a period of 6 months from the Commencement Date; provided, however, that such warranty shall not be effective for any repairs or replacements necessitated due to the misuse of, lack of maintenance by, or damages caused by, Tenant, its employees, contractors, agents, subtenants, or invitees. Notwithstanding the foregoing, Tenant shall continue to be responsible for the maintenance of such heating, ventilation and air conditioning systems and equipment related thereto during such warranty period and thereafter during the Lease Term.

12. Tenant-Made Alterations and Trade Fixtures. Any alterations, additions, or improvements made by or on behalf of Tenant to the Premises (“Tenant-Made Alterations”), which are interior, non-structural Tenant-Made Alterations, the cost of which exceeds $15,000 in each instance, shall be subject to Landlord’s prior written consent, not to be unreasonably withheld, delayed or conditioned provided that such alteration does not materially affect the structure or the roof of the Building, modify the exterior of the Building, or modify the utility or mechanical systems of the Project. Tenant shall have the right to perform interior, non-structural Tenant-Made Alterations, the cost of which does not exceed $15,000 in each instance, without obtaining Landlord’s prior written consent, by providing a written notice of such Tenant-Made Alterations to Landlord containing sufficient and complete information regarding such Tenant-Made Alterations, provided that such alteration does not materially affect the structure or the roof of the Building, modify the exterior of the Building, or modify the utility or mechanical systems of the Building. Tenant shall not perform structural Tenant-Made Alterations without Landlord’s prior written consent, which consent may be withheld in Landlord’s sole and absolute discretion. Tenant shall cause, at its expense, all Tenant-Made Alterations to comply with insurance requirements and with Legal Requirements and shall construct at its expense any alteration or modification required by Legal Requirements as a result of any Tenant-Made Alterations. All Tenant-Made Alterations shall be constructed in a good and workmanlike manner by contractors reasonably acceptable to Landlord and only good grades of materials shall be used. All plans and specifications for any Tenant-Made Alterations shall be submitted to Landlord for its approval. Landlord may monitor construction of the Tenant-Made Alterations. Tenant shall reimburse Landlord for its costs in reviewing plans and specifications and in monitoring construction. Landlord’s right to review plans and specifications and to monitor construction shall be solely for its own benefit, and Landlord shall have no duty to see that such plans and specifications or construction comply with applicable laws, codes, rules and regulations. Tenant shall provide Landlord with the identities and mailing addresses of all persons performing work or supplying materials, prior to beginning such construction, and Landlord may post on and about the Premises notices of non-responsibility pursuant to applicable law. Tenant shall furnish security or make other arrangements satisfactory to Landlord to assure payment for the completion of all work free and clear of liens and shall provide certificates of insurance for worker’s compensation and other coverage in amounts and from an insurance company satisfactory to Landlord protecting Landlord against liability for personal injury or property damage during construction. Upon completion of any Tenant-Made Alterations, Tenant shall deliver to Landlord sworn statements setting forth the names of all contractors and subcontractors who did work on the Tenant-Made Alterations and final lien waivers from all such contractors and subcontractors. Upon surrender of the Premises, all Tenant-Made Alterations (excluding Tenant’s Trade Fixtures) and any leasehold improvements constructed by Landlord or Tenant shall remain on the Premises as Landlord’s property, except to the extent Landlord requires removal at Tenant’s expense of any such items or Landlord and Tenant have otherwise agreed in writing in connection with Landlord’s consent to any Tenant-Made Alterations. Tenant shall repair any damage caused by the removal of such Tenant-Made Alterations upon surrender of the Premises. Notwithstanding anything to the contrary contained herein, Landlord agrees that Tenant shall not be required to remove or restore at the expiration or sooner termination of this Lease the power upgrade that constitutes a part of Tenant’s initial improvements. Upon Tenant’s written request, Landlord shall provide Tenant, at the time of Tenant’s request for approval of Tenant-Made Alterations, a list of which Tenant-Made Alterations Landlord will require Tenant to remove upon surrender of the Premises.

Tenant, at its own cost and expense and without Landlord’s prior approval, may erect such shelves, racking, bins, machinery and trade fixtures (collectively “Trade Fixtures”) in the ordinary course of its business provided that such items do not alter the basic character of the Premises, do not overload or damage the Premises, and may be removed without injury to the Premises, and the construction, erection, and installation thereof complies with all Legal Requirements and with Landlord’s requirements set forth above. Without limiting the foregoing, Landlord agrees that the items listed on Exhibit F attached hereto, constitute Tenant’s Trade Fixtures and shall remain Tenant’s property unless Tenant abandons the same at the Premises after the Term. Tenant shall remove its Trade Fixtures and shall repair any damage caused by such removal upon surrender of the Premises.

13. Signs. Tenant shall not make any changes to the exterior of the Premises, install any exterior lights, decorations, balloons, flags, pennants, banners, or painting, or erect or install any signs, windows or door lettering, placards, decorations, or advertising media of any type which can be viewed from the exterior of the Premises, without Landlord’s prior written consent, which consent may be withheld in Landlord’s sole discretion. Upon surrender or vacation of the Premises, Tenant shall have removed all signs and repair, paint, and/or replace the building facia surface to which its signs are attached. Tenant shall obtain all applicable governmental permits and approvals for sign and exterior treatments. All signs, decorations, advertising media, blinds, draperies and other window treatment or bars or other security installations visible from outside the Premises shall be subject to Landlord’s approval and conform in all respects to Landlord’s requirements.

14. Parking. Tenant shall be entitled to park in common with other tenants of the Project in those areas designated for nonreserved parking. Landlord may allocate parking spaces among Tenant and other tenants in the Project if Landlord reasonably determines that such parking facilities are becoming crowded. Landlord shall not be responsible for enforcing Tenant’s parking rights against any third parties.

 

- 6 -


15. Restoration. If at any time during the Lease Term the Premises are damaged by a fire or other casualty, Landlord shall notify Tenant within 60 days after such damage as to the amount of time Landlord reasonably estimates it will take to restore the Premises. If the restoration time is estimated to exceed 6 months, either Landlord or Tenant may elect to terminate this Lease upon notice to the other party given no later than 30 days after Landlord’s notice. If neither party elects to terminate this Lease or if Landlord estimates that restoration will take 6 months or less, then (i) Landlord at Landlord’s expense shall promptly restore the Premises excluding the improvements installed by Tenant or by Landlord and paid by Tenant, subject to delays arising from the collection of insurance proceeds or from Force Majeure events, and (ii) Tenant at Tenant’s expense shall promptly perform, subject to delays arising from the collection of insurance proceeds, or from Force Majeure events (as defined in Paragraph 33), all repairs or restoration not required to be done by Landlord and shall promptly re-enter the Premises and commence doing business in accordance with this Lease. Notwithstanding the foregoing, either party may terminate this Lease if the Premises are damaged during the last year of the Lease Term and Landlord reasonably estimates that it will take more than one month to repair such damage. Base Rent and Operating Expenses shall be abated for the period of repair and restoration commencing on the date of such casualty event in the proportion which the area of the Premises, if any, which is not usable by Tenant bears to the total area of the Premises. Such abatement shall be the sole remedy of Tenant, and except as provided herein, Tenant waives any right to terminate the Lease by reason of damage or casualty loss.

Notwithstanding anything contained in the Lease to the contrary, to the extent the damage to the Project is attributable to Tenant’s gross negligence or intentional misconduct, Tenant shall pay to Landlord with respect to any damage to the Project an amount of the commercially reasonable deductible under Landlord’s insurance policy, not to exceed $10,000.00, within 30 days after presentment of Landlord’s invoice.

16. Condemnation. If any part of the Premises or the Project should be taken for any public or quasi-public use under governmental law, ordinance, or regulation, or by right of eminent domain, or by private purchase in lieu thereof (a “Taking” or “Taken”), and the Taking would materially interfere with or impair Landlord’s ownership or operation of the Project, then upon written notice by Landlord this Lease shall terminate and Base Rent shall be apportioned as of said date. If part of the Premises shall be Taken, and this Lease is not terminated as provided above, the Base Rent payable hereunder during the unexpired Lease Term shall be reduced to such extent as may be fair and reasonable under the circumstances. In the event of any such Taking, Landlord shall be entitled to receive the entire price or award from any such Taking without any payment to Tenant, and Tenant hereby assigns to Landlord Tenant’s interest, if any, in such award. Tenant shall have the right, to the extent that same shall not diminish Landlord’s award, to make a separate claim against the condemning authority (but not Landlord) for such compensation as may be separately awarded or recoverable by Tenant for moving expenses and damage to Tenant’s Trade Fixtures, if a separate award for such items is made to Tenant.

17. Assignment and Subletting. Without Landlord’s prior written consent, which shall not be unreasonably withheld conditioned or delayed, Tenant shall not assign this Lease or sublease the Premises or any part thereof or mortgage, pledge, or hypothecate its leasehold interest or grant any concession or license within the Premises and any attempt to do any of the foregoing shall be void and of no effect. Landlord shall either approve or disapprove, as the case may be, such assignment or sublet within 30 days after receipt of Tenant’s notice therefor, provided that such notice by Tenant, in Landlord’s commercially reasonable judgment, contains sufficient and complete information to effectuate Landlord’s approval hereunder. In the event that Landlord fails to provide its approval or disapproval within such 30-day period, subject to Landlord’s receipt of sufficient and completion information as described in the preceding sentence, then Landlord’s approval shall be deemed given for purposes hereunder. It shall be reasonable for the Landlord to withhold, delay or condition its consent, where required, to any assignment or sublease in any of the following instances: (i) the assignee or sublessee does not have a net worth calculated according to generally accepted accounting principles at least equal to the greater of the net worth of Tenant immediately prior to such assignment or sublease or the net worth of the Tenant at the time it executed the Lease; (ii) occupancy of the Premises by the assignee or sublessee would, in Landlord’s opinion, violate any agreement binding upon Landlord or the Project with regard to the identity of tenants, usage in the Project, or similar matters; (iii) the identity or business reputation of the assignee or sublessee will, in the good faith judgment of Landlord, tend to damage the goodwill or reputation of the Project; (iv) the assignment or sublease is to another tenant in the Project and is at rates which are below those charged by Landlord for comparable space in the Project; or (v) in the case of a sublease, the subtenant has not acknowledged that the Lease controls over any inconsistent provision in the sublease. The foregoing criteria shall not exclude any other reasonable basis for Landlord to refuse its consent to such assignment or sublease. Any approved assignment or sublease shall be expressly subject to the terms and conditions of this Lease. Tenant shall provide to Landlord all information concerning the assignee or sublessee as Landlord may reasonably request. Landlord may revoke its consent immediately and without notice if, as of the effective date of the assignment or sublease, there has occurred and is continuing any default under the Lease beyond any applicable notice and cure periods. For purposes of this paragraph, a transfer of the ownership interests controlling Tenant shall be deemed an assignment of this Lease unless such ownership interests are publicly traded. Notwithstanding the foregoing to the contrary, provided no uncured default has occurred under this Lease past any applicable notice and cure periods, and subject to the provisions herein, Tenant may, without Landlord’s prior written consent, assign this Lease to any entity into which Tenant is merged or consolidated, or to any entity to which substantially all of Tenant’s assets are transferred, provided the following conditions are met: (x) such merger, consolidation, or transfer of assets is not principally for the purpose of transferring Tenant’s leasehold estate, (y) such merger, consolidation, or transfer of assets does not adversely affect the legal existence of the Tenant hereunder, and (z) such merger, consolidation, or transfer of assets of Tenant does not reduce the tangible net worth of Tenant after giving effect to such transfer (“Permitted Transfer”). Tenant hereby agrees to give Landlord written notice thirty (30) days prior to such merger, consolidation, or transfer of assets or, if prohibited from doing so by applicable law or a confidentiality agreement, then within five (5) days thereafter, along with any documentation reasonably requested by Landlord related to the required conditions as provided above. Notwithstanding the above, Tenant may assign or sublet the Premises, or any

 

- 7 -


part thereof, to any entity controlling Tenant, controlled by Tenant or under common control with Tenant (a “Tenant Affiliate”), without the prior written consent of Landlord. Tenant shall reimburse Landlord for all of Landlord’s reasonable expenses in connection with any assignment or sublease not to exceed $3,000.00. This Lease shall be binding upon Tenant and its successors and permitted assigns. Upon Landlord’s receipt of Tenant’s written notice of a desire to assign or sublet the Premises, or any part thereof (other than to a Tenant Affiliate), Landlord may, by giving written notice to Tenant within 15 days after receipt of Tenant’s notice, terminate this Lease with respect to the space described in Tenant’s notice, as of the date specified in Tenant’s notice for the commencement of the proposed assignment or sublease, but only in the event of an assignment of the Lease or a sublease of all or substantially all of the Premises for all or substantially all of the remaining Lease Term (in each case, other than pursuant to a Permitted Transfer).

Notwithstanding any assignment or subletting, Tenant and any guarantor or surety of Tenant’s obligations under this Lease shall at all times remain fully responsible and liable for the payment of the rent and for compliance with all of Tenant’s other obligations under this Lease (regardless of whether Landlord’s approval has been obtained for any such assignments or sublettings). In the event that the rent due and payable by a sublessee or assignee (or a combination of the rental payable under such sublease or assignment plus any bonus or other consideration therefor or incident thereto) exceeds the rental payable under this Lease, then Tenant shall be bound and obligated to pay Landlord as additional rent hereunder fifty percent (50%) of all such excess rental and other excess consideration within 10 days following receipt thereof by Tenant; provided in the event of a sublease which is less than 100% of the Premises such excess rental and other consideration shall be applied on a square foot basis.

If this Lease be assigned or if the Premises be subleased (whether in whole or in part) or in the event of the mortgage, pledge, or hypothecation of Tenant’s leasehold interest or grant of any concession or license within the Premises or if the Premises be occupied in whole or in part by anyone other than Tenant, then upon a default by Tenant hereunder beyond applicable notice and cure periods Landlord may collect rent from the assignee, sublessee, mortgagee, pledgee, party to whom the leasehold interest was hypothecated, concessionee or licensee or other occupant and, except to the extent set forth in the preceding paragraph, apply the amount collected to the next rent payable hereunder; and all such rentals collected by Tenant shall be held in trust for Landlord and immediately forwarded to Landlord. No such transaction or collection of rent or application thereof by Landlord, however, shall be deemed a waiver of these provisions or a release of Tenant from the further performance by Tenant of its covenants, duties, or obligations hereunder.

18. Indemnification. Except for the negligence or willful misconduct of Landlord, its agents, employees or contractors, and to the extent permitted by law, Tenant agrees to indemnify, defend and hold harmless Landlord, and Landlord’s agents, employees and contractors, from and against any and all losses, liabilities, damages, costs and expenses (including attorneys’ fees) resulting from claims by third parties for injuries to any person and damage to or theft or misappropriation or loss of property occurring in or about the Project and arising from the use and occupancy of the Premises or from any activity, work, or thing done, permitted or suffered by Tenant in or about the Premises or due to any other act or omission of Tenant, its subtenants, assignees, invitees, employees, contractors and agents. The furnishing of insurance required hereunder shall not be deemed to limit Tenant’s obligations under this Paragraph 18.

19. Inspection and Access. Landlord and its agents, representatives, and contractors may enter the Premises at any reasonable time to inspect the Premises and to make such repairs as may be required or permitted pursuant to this Lease and for any other business purpose. Landlord and Landlord’s representatives may enter the Premises during business hours for the purpose of showing the Premises to prospective purchasers and, during the last year of the Lease Term, to prospective tenants. Landlord may erect a suitable sign on the Premises stating the Premises are available to let or that the Project is available for sale. Landlord may grant easements, make public dedications, designate and modify common areas and create restrictions on or about the Premises, provided that no such easement, dedication, designation, modification or restriction materially interferes with Tenant’s use or occupancy of the Premises. At Landlord’s request, Tenant shall execute such instruments as may be necessary for such easements, dedications or restrictions. Notwithstanding the foregoing, Landlord and Landlord’s agents, except in the case of emergency (in which case no notice shall be required), shall provide Tenant with 24 hours oral, written or electronic notice prior to entry of the Premises. Except in the case of an emergency, Landlord shall endeavor not to unreasonably impair Tenant’s operations and to comply with Tenant’s reasonable security measures.

20. Quiet Enjoyment. If Tenant shall perform all of the covenants and agreements herein required to be performed by Tenant, Tenant shall, subject to the terms of this Lease, at all times during the Lease Term, have peaceful and quiet enjoyment of the Premises against any person claiming by, through or under Landlord.

21. Surrender. Upon termination of the Lease Term or earlier termination of Tenant’s right of possession, Tenant shall surrender the Premises to Landlord in the same condition as received ordinary wear and tear, casualty loss and condemnation covered by Paragraphs 15 and 16 and items that are not Tenant’s responsibility to repair or maintain excepted and otherwise in accordance with the Move Out Conditions Addendum attached hereto. Without limiting the foregoing, Tenant shall remove any odor which may exist in the Premises resulting from Tenant’s occupancy of the Premises upon the termination of the Lease Term or earlier termination of Tenant’s right of possession. Any Trade Fixtures, Tenant-Made Alterations and property not so removed by Tenant as permitted or required herein shall be deemed abandoned and may be stored, removed, and disposed of by Landlord at Tenant’s expense, and Tenant waives all claims against Landlord for any damages resulting from Landlord’s retention and disposition of such property. All obligations of Tenant hereunder not fully performed as of the termination of the Lease Term shall survive the termination of the Lease Term, including without limitation, indemnity obligations, payment obligations with respect to Operating Expenses and obligations concerning the condition and repair of the Premises.

 

- 8 -


22. Holding Over. If Tenant retains possession of the Premises after the termination of the Lease Term, unless otherwise agreed in writing, such possession shall be subject to immediate termination by Landlord at any time, and all of the other terms and provisions of this Lease (excluding any expansion or renewal option or other similar right or option) shall be applicable during such holdover period, except that Tenant shall pay Landlord from time to time, upon demand, as Base Rent for the holdover period, an amount equal to one hundred fifty percent (150%) of the Base Rent in effect on the termination date, computed on a monthly basis for each month or part thereof during such holding over. All other payments shall continue under the terms of this Lease. In addition, Tenant shall be liable for all damages incurred by Landlord as a result of such holding over. No holding over by Tenant, whether with or without consent of Landlord, shall operate to extend this Lease except as otherwise expressly provided, and this Paragraph 22 shall not be construed as consent for Tenant to retain possession of the Premises. For purposes of this Paragraph 22, “possession of the Premises” shall continue until, among other things, Tenant has delivered all keys to the Premises to Landlord, Landlord has complete and total dominion and control over the Premises, and Tenant has completely fulfilled all obligations required of it upon termination of the Lease as set forth in this Lease, including, without limitation, those concerning the condition and repair of the Premises.

23. Events of Default. Each of the following events shall be an event of default (“Event of Default”) by Tenant under this Lease:

(i) Tenant shall fail to pay any installment of Base Rent or any other payment required herein when due, and such failure shall continue for a period of 5 days after written notice from Landlord to Tenant that such payment was due; provided, however, that Landlord shall not be obligated to provide written notice of such failure more than 1 time in any consecutive 12-month period, and the failure of Tenant to pay any second or subsequent installment of Base Rent or any other payment required herein when due in any consecutive 12-month period shall constitute an Event of Default by Tenant under this Lease without the requirement of notice or opportunity to cure; provided, however, that any such notice shall be in lieu of, and not in addition to, any notice required under applicable law.

(ii) Tenant or any guarantor or surety of Tenant’s obligations hereunder shall (A) make a general assignment for the benefit of creditors; (B) commence any case, proceeding or other action seeking to have an order for relief entered on its behalf as a debtor or to adjudicate it as bankrupt or insolvent, or seeking reorganization, arrangement, adjustment, liquidation, dissolution or composition of it or its debts or seeking appointment of a receiver, trustee, custodian or other similar official for it or for all or of any substantial part of its property (collectively a “proceeding for relief’); (C) become the subject of any proceeding for relief which is not dismissed within 60 days of its filing or entry; or (D) die or suffer a legal disability (if Tenant, guarantor, or surety is an individual) or be dissolved or otherwise fail to maintain its legal existence (if Tenant, guarantor or surety is a corporation, partnership or other entity).

(iii) Any insurance required to be maintained by Tenant pursuant to this Lease shall be cancelled or terminated or shall expire or shall be reduced or materially changed, except, if the same is replaced in each case, as permitted in this Lease and no lapse in coverage occurred during such replacement process.

(iv) Tenant shall not occupy or shall vacate the Premises whether or not Tenant is in monetary or other default under this Lease. Tenant’s vacating of the Premises shall not constitute an Event of Default if, prior to vacating the Premises, Tenant has made arrangements reasonably acceptable to Landlord to (a) ensure that Tenant’s insurance for the Premises will not be voided or cancelled with respect to the Premises as a result of such vacancy, (b) ensure that the Premises are secured and not subject to vandalism, and (c) ensure that the Premises will be properly maintained after such vacation, including, but not limited to, keeping the heating, ventilation and cooling systems maintenance contracts required by this Lease in full force and effect and maintaining the utility services. Tenant shall inspect the Premises at least once each month and report monthly in writing to Landlord on the condition of the Premises.

(v) There shall occur any assignment, subleasing or other transfer of Tenant’s interest in or with respect to this Lease except as otherwise permitted in this Lease.

(vi) Tenant shall fail to discharge any lien placed upon the Premises in violation of this Lease within 20 days after any such lien or encumbrance is filed against the Premises.

(vii) Tenant shall fail to comply with any provision of this Lease other than those specifically referred to in this Paragraph 23, and except as otherwise expressly provided herein, such default shall continue for more than 30 days after Landlord shall have given Tenant written notice of such default (said notice being in lieu of, and not in addition to, any notice required as a prerequisite to a forcible entry and detainer or similar action for possession of the Premises; provided, however, that Tenant shall not be in default under the circumstances described in this Paragraph 23(vii) if Tenant has made diligent efforts to cure such default within the thirty (30) day period described therein, and thereafter proceeds continuously and diligently to cure such default within a commercially reasonable time.

(viii) Tenant agrees that any notice given by Landlord pursuant to this Paragraph of the Lease shall satisfy the requirements for notice under California Code of Civil Procedure Section 1161, and Landlord shall not be required to give any additional notice in order to be entitled to commence an unlawful detainer proceeding.

 

- 9 -


24. Landlord’s Remedies. Upon each occurrence of an Event of Default and so long as such Event of Default shall be continuing, Landlord may at any time thereafter at its election: terminate this Lease or Tenant’s right of possession, (but Tenant shall remain liable as hereinafter provided) and/or pursue any other remedies at law or in equity. Upon the termination of this Lease or termination of Tenant’s right of possession, it shall be lawful for Landlord, without formal demand or notice of any kind, to re-enter the Premises by summary dispossession proceedings or any other action or proceeding authorized by law and to remove Tenant and all persons and property therefrom. If Landlord re-enters the Premises, Landlord shall have the right to keep in place and use, or remove and store, all of the furniture, fixtures and equipment at the Premises.

Except as otherwise provided in the next paragraph, if Tenant breaches this Lease and abandoned the Premises prior to the end of the term hereof, or if Tenant’s right to possession is terminated by Landlord because of an Event of Default by Tenant under this Lease, this Lease shall terminate. Upon such termination, Landlord may recover from Tenant the following, as provided in Section 1951.2 of the Civil Code of California: (i) the worth at the time of award of the unpaid Base Rent and other charges under this Lease that had been earned at the time of termination; (ii) the worth at the time of award of the amount by which the reasonable value of the unpaid Base Rent and other charges under this Lease which would have been earned after termination until the time of award exceeds the amount of such rental loss that Tenant proves could have been reasonable avoided; (iii) the worth at the time of award by which the reasonable value of the unpaid Base Rent and other charges under this Lease for the balance of the term of this Lease after the time of award exceeds the amount of such rental loss that Tenant proves could have been reasonably avoided; and (iv) any other amount necessary to compensate Landlord for all the detriment proximately caused by Tenant’s failure to perform its obligations under this Lease or that in the ordinary course of things would be likely to result therefrom. As used herein, the following terms are defined: (a) The “worth at the time of award” of the amounts referred to in Sections (i) and (ii) is computed by allowing interest at the lesser of 18 percent per annum or the maximum lawful rate. The “worth at the time of award” of the amount referred to in Section (iii) is computed by discounting such amount at the discount rate of the Federal Reserve Bank of San Francisco at the time of award plus one percent; (b) The “time of award” as used in clauses (i), (ii), and (iii) above is the date on which judgment is entered by a court of competent jurisdiction; (c) The “reasonable value” of the amount referred to in clause (ii) above is computed by determining the mathematical product of (1) the “reasonable annual rental value” (as defined herein) and (2) the number of years, including fractional parts thereof, between the date of termination and the time of award. The “reasonable value” of the amount referred to in clause (iii) is computed by determining the mathematical product of (1) the annual Base Rent and other charges under this Lease and (2) the number of years including fractional parts thereof remaining in the balance of the term of this Lease after the time of award. Tenant acknowledges and agrees that the term “detriment proximately caused by Tenant’s failure to perform its obligations under this Lease” includes, without limitation, the value of any abated or free rent given to Tenant.

Even though Tenant has breached this Lease and abandoned the Premises, this Lease shall continue in effect for so long as Landlord does not terminate Tenant’s right to possession, and Landlord may enforce all its rights and remedies under this Lease, including the right to recover rent as it becomes due. This remedy is intended to be the remedy described in California Civil Code Section 1951.4, and the following provision from such Civil Code Section is hereby repeated: “The Lessor has the remedy described in California Civil Code Section 1951.4 (lessor may continue lease in effect after lessee’s breach and abandonment and recover rent as it becomes due, if lessee has right to sublet or assign subject only to reasonable limitations).” Any such payments due Landlord shall be made upon demand therefor from time to time and Tenant agrees that Landlord may file suit to recover any sums falling due from time to time. Notwithstanding any such reletting without termination, Landlord may at any time thereafter elect in writing to terminate this Lease for such previous breach.

Exercise by Landlord of any one or more remedies hereunder granted or otherwise available shall not be deemed to be an acceptance of surrender of the Premises and/or a termination of this Lease by Landlord, whether by agreement or by operation of law, it being understood that such surrender and/or termination can be effected only by the written agreement of Landlord and Tenant. Any law, usage, or custom to the contrary notwithstanding, Landlord shall have the right at all times to enforce the provisions of this Lease in strict accordance with the terms hereof; and the failure of Landlord at any time to enforce its rights under this Lease strictly in accordance with same shall not be construed as having created a custom in any way or manner contrary to the specific terms, provisions, and covenants of this Lease or as having modified the same. Tenant and Landlord further agree that forbearance or waiver by Landlord to enforce its rights pursuant to this Lease or at law or in equity, shall not be a waiver of Landlord’s right to enforce one or more of its rights in connection with any subsequent default. A receipt by Landlord of rent or other payment with knowledge of the breach of any covenant hereof shall not be deemed a waiver of such breach, and no waiver by Landlord of any provision of this Lease shall be deemed to have been made unless expressed in writing and signed by Landlord. To the greatest extent permitted by law, Tenant waives the service of notice of Landlord’s intention to re-enter as provided for in any statute, or to institute legal proceedings to that end, and also waives all right of redemption in case Tenant shall be dispossessed by a judgment or by warrant of any court or judge. The terms “enter,” “re-enter,” “entry” or “re-entry,” as used in this Lease, are not restricted to their technical legal meanings. Any reletting of the Premises shall be on such terms and conditions as Landlord in its sole discretion may determine (including without limitation a term different than the remaining Lease Term, rental concessions, alterations and repair of the Premises, lease of less than the entire Premises to any tenant and leasing any or all other portions of the Project before reletting the Premises). Landlord shall not be liable, nor shall Tenant’s obligations hereunder be diminished because of, Landlord’s failure to relet the Premises or collect rent due in respect of such reletting.

25. Tenant’s Remedies/Limitation of Liability. Landlord shall not be in default hereunder unless Landlord fails to perform any of its obligations hereunder within 30 days after written notice from Tenant specifying such failure (unless such performance will, due to the nature of the obligation, require a period of time in excess of 30 days, then after such period of time as is reasonably necessary). All obligations of Landlord hereunder shall be

 

- 10 -


construed as covenants, not conditions; and, except as may be otherwise expressly provided in this Lease, Tenant may not terminate this Lease for breach of Landlord’s obligations hereunder. All obligations of Landlord under this Lease will be binding upon Landlord only during the period of its ownership of the Premises and not thereafter. The term “Landlord” in this Lease shall mean only the owner, for the time being of the Premises, and in the event of the transfer by such owner of its interest in the Premises, such owner shall thereupon be released and discharged from all obligations of Landlord thereafter accruing, but such obligations shall be binding during the Lease Term upon each new owner for the duration of such owner’s ownership. Any liability of Landlord under this Lease shall be limited solely to its interest in the Project, and in no event shall any personal liability be asserted against Landlord in connection with this Lease nor shall any recourse be had to any other property or assets of Landlord.

26. Intentionally deleted.

27. Subordination. This Lease and Tenant’s interest and rights hereunder are and shall be subject and subordinate at all times to the lien of any first mortgage, now existing or hereafter created on or against the Project or the Premises, and all amendments, restatements, renewals, modifications, consolidations, refinancing, assignments and extensions thereof, without the necessity of any further instrument or act on the part of Tenant. Tenant agrees, at the election of the holder of any such mortgage, to attorn to any such holder. Tenant agrees upon demand to execute, acknowledge and deliver such instruments, confirming such subordination and such instruments of attornment as shall be requested by any such holder. Notwithstanding the foregoing, any such holder may at any time subordinate its mortgage to this Lease, without Tenant’s consent, by notice in writing to Tenant, and thereupon this Lease shall be deemed prior to such mortgage without regard to their respective dates of execution, delivery or recording and in that event such holder shall have the same rights with respect to this Lease as though this Lease had been executed prior to the execution, delivery and recording of such mortgage and had been assigned to such holder. The term “mortgage” whenever used in this Lease shall be deemed to include deeds of trust, security assignments and any other encumbrances, and any reference to the “holder” of a mortgage shall be deemed to include the beneficiary under a deed of trust.

28. Mechanic’s Liens. Tenant has no express or implied authority to create or place any lien or encumbrance of any kind upon, or in any manner to bind the interest of Landlord or Tenant in, the Premises or to charge the rentals payable hereunder for any claim in favor of any person dealing with Tenant, including those who may furnish materials or perform labor for any construction or repairs. Tenant covenants and agrees that it will pay or cause to be paid all sums legally due and payable by it on account of any labor performed or materials furnished in connection with any work performed on the Premises and that it will save and hold Landlord harmless from all loss, cost or expense based on or arising out of asserted claims or liens against the leasehold estate or against the interest of Landlord in the Premises or under this Lease on account of any labor performed or materials furnished in connection with any work performed on the Premises. Tenant shall give Landlord immediate written notice of the placing of any lien or encumbrance against the Premises and cause such lien or encumbrance to be discharged within 20 days of the filing or recording thereof; provided, however, Tenant may contest such liens or encumbrances as long as such contest prevents foreclosure of the lien or encumbrance and Tenant causes such lien or encumbrance to be bonded or insured over in a manner satisfactory to Landlord within such 20 day period.

29. Estoppel Certificates. Tenant agrees, from time to time, within 10 days after request of Landlord, to execute and deliver to Landlord, or Landlord’s designee, any estoppel certificate requested by Landlord, stating that this Lease is in full force and effect, the date to which rent has been paid, that Landlord is not in default hereunder (or specifying in detail the nature of Landlord’s default), the termination date of this Lease and such other matters pertaining to this Lease as may be requested by Landlord. Tenant’s obligation to furnish each estoppel certificate in a timely fashion is a material inducement for Landlord’s execution of this Lease. No cure or grace period provided in this Lease shall apply to Tenant’s obligations to timely deliver an estoppel certificate.

30. Environmental Requirements. Except for Hazardous Material contained in products used by Tenant in de minimis quantities for ordinary cleaning and office purposes, and except for propane used in Tenant’s forklifts in the normal course of its business, and except for Hazardous Materials contained in or used during Tenant’s normal course of business, and except for those Hazardous Materials set forth on Addendum 5 attached hereto, Tenant shall not permit or cause any party to bring any Hazardous Material upon the Premises or transport, store, use, generate, manufacture or release any Hazardous Material in or about the Premises without Landlord’s prior written consent. Tenant, at its sole cost and expense, shall operate its business in the Premises in strict compliance with all Environmental Requirements and shall remediate in a manner satisfactory to Landlord any Hazardous Materials released on or from the Project by Tenant, its agents, employees, contractors, subtenants or invitees. Tenant shall complete and certify to disclosure statements as requested by Landlord from time to time relating to Tenant’s transportation, storage, use, generation, manufacture or release of Hazardous Materials on the Premises. The term “Environmental Requirements” means all applicable present and future statutes, regulations, ordinances, rules, codes, judgments, orders or other similar enactments of any governmental authority or agency regulating or relating to health, safety, or environmental conditions on, under, or about the Premises or the environment, including without limitation, the following: the Comprehensive Environmental Response, Compensation and Liability Act; the Resource Conservation and Recovery Act; and all state and local counterparts thereto, and any regulations or policies promulgated or issued thereunder. The term “Hazardous Materials” means and includes any substance, material, waste, pollutant, or contaminant listed or defined as hazardous or toxic, under any Environmental Requirements, asbestos and petroleum, including crude oil or any fraction thereof, natural gas liquids, liquefied natural gas, or synthetic gas usable for fuel (or mixtures of natural gas and such synthetic gas). As defined in Environmental Requirements, Tenant is and shall be deemed to be the “operator” of Tenant’s “facility” and the “owner” of all Hazardous Materials brought on the Premises by Tenant, its agents, employees, contractors or invitees, and the wastes, by-products, or residues generated, resulting, or produced therefrom. No cure or grace period provided in this Lease shall apply to Tenant’s obligations to comply with the terms and conditions of this Paragraph 30.

 

- 11 -


Notwithstanding anything to the contrary in this Paragraph 30, Tenant shall have no liability of any kind to Landlord as to Hazardous Materials on the Premises (a) caused or permitted by (i) Landlord, its agents, employees, contractors or invitees; or (ii) any other tenants in the Project or their agents, employees, contractors, subtenants, assignees or invitees or (b) existing in the Premises or Project prior to Tenant’s initial occupancy of the Premises (other than those released by Tenant or its employees, agents or contractors).

If Hazardous Materials are hereafter discovered on the Premises, or Tenant has reasonable cause to believe that any Hazardous Materials are located in, under or about the Premises or Building in violation of any Environmental Requirements, Tenant shall promptly give Landlord notice thereof, together with any statement, report, notice, registration, application, permit, business plan, license, claim, action, or proceeding given to Tenant, or received by Tenant from any governmental authority or private party concerning the presence, spill, release, discharge of, or exposure to, such Hazardous Materials at the Premises during the Lease Term. If the presence of such Hazardous Materials is not the result of Tenant’s use of the Premises or any act or omission of Tenant or its agents, employees, contractors, subtenants or invitees, and the presence of such Hazardous Materials violates Environmental Requirements and results in any contamination, damages, or injury to the Premises that materially and adversely affects Tenant’s occupancy or use of the Premises or human health, Landlord shall promptly take commercially reasonable actions at its sole expense as are necessary to comply with Environmental Requirements in order to mitigate such Hazardous Materials condition to the extent Landlord is required by the Environmental Requirements. Notwithstanding anything herein to the contrary, if Landlord obtains a letter from the appropriate governmental authority that no further mitigation or remediation is required Landlord’s obligation to mitigate as provided in this paragraph shall be deemed satisfied.

Tenant shall indemnify, defend, and hold Landlord harmless from and against any and all losses (including, without limitation, diminution in value of the Premises or the Project and loss of rental income from the Project), claims, demands, actions, suits, damages (including, without limitation, punitive damages), expenses (including, without limitation, remediation, removal, repair, corrective action, or cleanup expenses), and costs (including, without limitation, actual attorneys’ fees, consultant fees or expert fees and including, without limitation, removal or management of any asbestos brought into the property or disturbed in breach of the requirements of this Paragraph 30, regardless of whether such removal or management is required by law) which are brought or recoverable against, or suffered or incurred by Landlord as a result of any release of Hazardous Materials for which Tenant is obligated to remediate as provided above or any other breach of the requirements under this Paragraph 30 by Tenant, its agents, employees, contractors, subtenants, assignees or invitees, regardless of whether Tenant had knowledge of such noncompliance. The obligations of Tenant under this Paragraph 30 shall survive any termination of this Lease.

Landlord shall have access to, and a right to perform inspections and tests of, the Premises to determine Tenant’s compliance with Environmental Requirements, its obligations under this Paragraph 30, or the environmental condition of the Premises. Access shall be granted to Landlord upon Landlord’s prior notice to Tenant and at such times so as to minimize, so far as may be reasonable under the circumstances, any disturbance to Tenant’s operations. Such inspections and tests shall be conducted at Landlord’s expense, unless such inspections or tests reveal that Tenant has not complied with any Environmental Requirement, in which case Tenant shall reimburse Landlord for the reasonable cost of such inspection and tests. Landlord’s receipt of or satisfaction with any environmental assessment in no way waives any rights that Landlord holds against Tenant.

Landlord represents to Tenant that to the best of Landlord’s current, actual knowledge that there are no Hazardous Materials in reportable quantities on the Project. The phrase “current, actual knowledge of Landlord” shall mean and refer only to the best of the current, actual knowledge of the officers of Landlord having direct, operational responsibility for the Project, with the express limitations and qualifications that the knowledge of any contractor or consultant shall not be imputed to Landlord, and none of such officers has made any special investigation or inquiry, and none of such officers has any duty or obligation of diligent investigation or inquiry, or any other duty or obligation, to acquire or to attempt to acquire information beyond or in addition to the current, actual knowledge of such persons.

Landlord shall reasonably cooperate, at no material cost or expense to Landlord (unless reimbursed by Tenant) and subject to the requirements of this Lease, with Tenant’s efforts to obtain (a) a Hazardous Materials Business Plan (HMBP) through the City of Fremont Fire Department—Fire Prevention Unit; and (b) an address/site specific EPA ID number through the California Department of Toxic Substances Control (DTSC).

31. Rules and Regulations. Tenant shall, at all times during the Lease Term and any extension thereof, comply with all reasonable rules and regulations at any time or from time to time established by Landlord covering use of the Premises and the Project. The current Project rules and regulations are attached hereto as Exhibit B. In the event of any conflict between said rules and regulations and other provisions of this Lease, the other terms and provisions of this Lease shall control. Landlord shall not have any liability or obligation for the breach of any rules or regulations by other tenants in the Project, but Landlord shall enforce such in a non-discriminatory manner.

32. Security Service. Tenant acknowledges and agrees that, while Landlord may patrol the Project, Landlord is not providing any security services with respect to the Premises and that Landlord shall not be liable to Tenant for, and Tenant waives any claim against Landlord with respect to, any loss by theft or any other damage suffered or incurred by Tenant in connection with any unauthorized entry into the Premises or any other breach of security with respect to the Premises.

 

- 12 -


33. Force Majeure. Landlord shall not be held responsible for delays in the performance of its obligations hereunder when caused by strikes, lockouts, labor disputes, acts of God, inability to obtain labor or materials or reasonable substitutes therefor, governmental restrictions, governmental regulations, governmental controls, delay in issuance of permits, enemy or hostile governmental action, civil commotion, fire or other casualty, and other causes beyond the reasonable control of Landlord (“Force Majeure”).

34. Entire Agreement. This Lease constitutes the complete agreement of Landlord and Tenant with respect to the subject matter hereof. No representations, inducements, promises or agreements, oral or written, have been made by Landlord or Tenant, or anyone acting on behalf of Landlord or Tenant, which are not contained herein, and any prior agreements, promises, negotiations, or representations are superseded by this Lease. This Lease may not be amended except by an instrument in writing signed by both parties hereto.

35. Severability. If any clause or provision of this Lease is illegal, invalid or unenforceable under present or future laws, then and in that event, it is the intention of the parties hereto that the remainder of this Lease shall not be affected thereby. It is also the intention of the parties to this Lease that in lieu of each clause or provision of this Lease that is illegal, invalid or unenforceable, there be added, as a part of this Lease, a clause or provision as similar in terms to such illegal, invalid or unenforceable clause or provision as may be possible and be legal, valid and enforceable.

36. Brokers. Tenant represents and warrants that it has dealt with no broker, agent or other person in connection with this transaction and that no broker, agent or other person brought about this transaction, other than the broker, if any, set forth on the first page of this Lease, and Tenant agrees to indemnify and hold Landlord harmless from and against any claims by any other broker, agent or other person claiming a commission or other form of compensation by virtue of having dealt with Tenant with regard to this leasing transaction.

37. Miscellaneous. (a) Any payments or charges due from Tenant to Landlord hereunder shall be considered rent for all purposes of this Lease.

(b) If and when included within the term “Tenant,” as used in this instrument, there is more than one person, firm or corporation, each shall be jointly and severally liable for the obligations of Tenant.

(c) All notices required or permitted to be given under this Lease shall be in writing and shall be sent by registered or certified mail, return receipt requested, or by a reputable national overnight courier service, postage prepaid, or by hand delivery addressed to Landlord at 3353 Gateway Blvd, Fremont, CA 94538, with a copy sent to Landlord at 4545 Airport Way, Denver, Colorado 80239, Attention: General Counsel, and to Tenant at 775 Heinz Avenue, Berkeley, CA 94710, Attention: John Costa. Either party may by notice given aforesaid change its address for all subsequent notices or add an additional party to be copied on all subsequent notices. Except where otherwise expressly provided to the contrary, notice shall be deemed given upon delivery.

(d) Except as otherwise expressly provided in this Lease or as otherwise required by law, Landlord retains the absolute right to withhold any consent or approval.

(e) In the event of (i) a default by Tenant of its obligations under the Lease, or (ii) a need by Landlord to effectuate a financing transaction or sale of the Building, or (iii) an assignment or subletting of the Lease by Tenant, then at Landlord’s request from time to time Tenant shall furnish Landlord with true and complete copies of its most recent annual and quarterly financial statements prepared by Tenant or Tenant’s accountants and any other financial information or summaries that Tenant typically provides to its lenders or shareholders; provided that Landlord and Tenant shall enter into a commercially reasonable form of confidentiality agreement acceptable to Landlord in connection with Landlord’s receipt of any such financial statements.

(f) Neither this Lease nor a memorandum of lease shall be filed by or on behalf of Tenant in any public record. Landlord may prepare and file, and upon request by Landlord Tenant will execute, a memorandum of lease.

(g) The normal rule of construction to the effect that any ambiguities are to be resolved against the drafting party shall not be employed in the interpretation of this Lease or any exhibits or amendments hereto.

(h) The submission by Landlord to Tenant of this Lease shall have no binding force or effect, shall not constitute an option for the leasing of the Premises, nor confer any right or impose any obligations upon either party until execution of this Lease by both parties.

(i) Words of any gender used in this Lease shall be held and construed to include any other gender, and words in the singular number shall be held to include the plural, unless the context otherwise requires. The captions inserted in this Lease are for convenience only and in no way define, limit or otherwise describe the scope or intent of this Lease, or any provision hereof, or in any way affect the interpretation of this Lease.

(j) Any amount not paid by Tenant within 5 days after its due date in accordance with the terms of this Lease shall bear interest from such due date until paid in full at the lesser of the highest rate permitted by applicable law or 15 percent per year. It is expressly the intent of Landlord and Tenant at all times to comply with applicable law governing the maximum rate or amount of any interest payable on or in connection with this Lease. If applicable law is ever judicially interpreted so as to render usurious any interest called for under this Lease, or contracted for, charged, taken, reserved, or received with respect to this Lease, then it is Landlord’s and Tenant’s express intent that all excess amounts theretofore collected by Landlord be credited on the applicable obligation (or, if the obligation has been or would thereby be paid in full, refunded to Tenant), and the provisions of this Lease immediately shall be deemed reformed and the amounts thereafter collectible hereunder reduced, without the necessity of the execution of any new document, so as to comply with the applicable law, but so as to permit the recovery of the fullest amount otherwise called for hereunder.

 

- 13 -


(k) Construction and interpretation of this Lease shall be governed by the laws of the state in which the Project is located, excluding any principles of conflicts of laws.

(1) Time is of the essence as to the performance of Tenant’s and Landlord’s obligations under this Lease.

(m) All exhibits and addenda attached hereto are hereby incorporated into this Lease and made a part hereof. In the event of any conflict between such exhibits or addenda and the terms of this Lease, such exhibits or addenda shall control.

(n) In the event either party hereto initiates litigation to enforce the terms and provisions of this Lease, the non-prevailing party in such action shall reimburse the prevailing party for its reasonable attorney’s fees, filing fees, and court costs.

(o) Tenant agrees and understands that Landlord shall have the right (provided that the exercise of Landlord’s rights does not adversely affect Tenant’s use and occupancy of the Premises or subject Tenant to additional costs), without Tenant’s consent, to place a solar electric generating system on the roof of the Building or enter into a lease for the roof of the Building whereby such roof tenant shall have the right to install a solar electric generating system on the roof of the Building. Upon receipt of written request from Landlord, Tenant, at Tenant’s sole cost and expense, shall deliver to Landlord data regarding the electricity consumed in the operation of the Premises (the “Energy Data”) for purposes of regulatory compliance, manual and automated benchmarking, energy management, building environmental performance labeling and other related purposes, including but not limited, to the Environmental Protection Agency’s Energy Star rating system and other energy benchmarking systems. Landlord shall use commercially reasonable efforts to utilize automated data transmittal services offered by utility companies to access the Energy Data. Landlord shall not publicly disclose Energy Data without Tenant’s prior written consent. Landlord may, however, disclose Energy Data that has been modified, combined or aggregated in a manner such that the resulting data is not exclusively attributable to Tenant.

(p) This Lease may be executed in any number of counterparts, each of which shall be deemed to be an original, and all of such counterparts shall constitute one Lease. Execution copies of this Lease may be delivered by facsimile or email, and the parties hereto agree to accept and be bound by facsimile signatures or scanned signatures transmitted via email hereto, which signatures shall be considered as original signatures with the transmitted Lease having the same binding effect as an original signature on an original Lease. At the request of either party, any facsimile document or scanned document transmitted via email is to be re-executed in original form by the party who executed the original facsimile document or scanned document. Neither party may raise the use of a facsimile machine or scanned document or the fact that any signature was transmitted through the use of a facsimile machine or email as a defense to the enforcement of this Lease.

(q) Within fifteen (15) days of Landlord’s written request, Tenant agrees to deliver to Landlord such information and/or documents as Landlord requires for Landlord to comply with California Public Resources Code Section 25402.10, or successor statute(s), and California Energy Commission adopted regulations set forth in California Code of Regulations, Title 20, Division 2, Chapter 4, Article 9, Sections 1680-1685, and successor and related California Code of Regulations, relating to commercial building energy ratings. Landlord makes the following statement based on Landlord’s actual knowledge in order to comply with California Civil Code Section 1938: The Building and Premises have not undergone an inspection by a Certified Access Specialist (CASp).

38. Limitation of Liability of Trustees, Shareholders, and Officers of Landlord. Any obligation or liability whatsoever of Landlord which may arise at any time under this Lease or any obligation or liability which may be incurred by it pursuant to any other instrument, transaction, or undertaking contemplated hereby shall not be personally binding upon, nor shall resort for the enforcement thereof be had to the property of, its trustees, directors, shareholders, officers, employees or agents, regardless of whether such obligation or liability is in the nature of contract, tort, or otherwise.

39. WAIVER OF JURY TRIAL. TENANT AND LANDLORD WAIVE ANY RIGHT TO TRIAL BY JURY OR TO HAVE A JURY PARTICIPATE IN RESOLVING ANY DISPUTE, WHETHER SOUNDING IN CONTRACT, TORT, OR OTHERWISE, BETWEEN LANDLORD AND TENANT ARISING OUT OF THIS LEASE OR ANY OTHER INSTRUMENT, DOCUMENT, OR AGREEMENT EXECUTED OR DELIVERED IN CONNECTION HEREWITH OR THE TRANSACTIONS RELATED HERETO.

 

- 14 -


IN WITNESS WHEREOF, Landlord and Tenant have executed this Lease as of the day and year first above written.

 

TENANT:

 

Rigetti & Co, Inc.

a Delaware corporation

 

   

LANDLORD:

 

PROLOGIS LIMITED PARTNERSHIP I

a Delaware limited partnership

 

      By:   PROLOGIS, a Maryland real estate investment trust, its general partner
By:  

/s/ Chad Rigetti

     
Name:   Chad Rigetti     By:  

/s/ Elizabeth Kauchak

Title:   CEO     Name:   Elizabeth Kauchak
      Title:   Vice President, Market Officer

 

- 15 -


ADDENDUM 1

BASE RENT ADJUSTMENTS

ATTACHED TO AND A PART OF THE LEASE AGREEMENT

DATED August 9, 2016 BETWEEN

PROLOGIS LIMITED PARTNERSHIP I

and

Rigetti & Co, Inc.

Base Rent shall equal the following amounts for the respective periods set forth below:

 

Period

     Monthly Base Rent  

09/01/16

     through        10/31/16      $ 0.00

11/01/16

     through        08/31/17      $ 17,010.00  

09/01/17

     through        08/31/18      $ 17,520.30  

09/01/18

     through        08/31/19      $ 18,045.91  

09/01/19

     through        08/31/20      $ 18,587.29  

09/01/20

     through        08/31/21      $ 19,144.90  

09/01/21

     through        08/31/22      $ 19,719.25  

09/01/22

     through        08/31/23      $ 20,310.83  

09/01/23

     through        10/31/23      $ 20,920.15  

 

*

During these free Base Rent periods, Tenant shall be responsible for Operating Expenses and utilities as set forth in the Lease.

 

- 16 -


ADDENDUM 2

HVAC MAINTENANCE CONTRACT

ATTACHED TO AND A PART OF THE LEASE AGREEMENT

DATED August 9, 2016 BETWEEN

PROLOGIS LIMITED PARTNERSHIP I

and

Rigetti & Co, Inc.

Paragraph 11, captioned “TENANT REPAIRS,” is revised to include the following:

Tenant agrees to enter into and maintain through the term of the Lease, a regularly scheduled preventative maintenance/service contract for servicing all hot water, heating and air conditioning systems and equipment within the Premises. Landlord requires a qualified HVAC contractor perform this work. A certificate must be provided to the Landlord upon occupancy of the leased Premises.

The service contract must become effective within thirty (30) days of occupancy, and service visits shall be performed on a quarterly basis. Landlord suggests that Tenant send the following list to a qualified HVAC contractor to be assured that these items are included in the maintenance contract:

 

  1.

Adjust belt tension;

 

  2.

Lubricate all moving parts, as necessary;

 

  3.

Inspect and adjust all temperature and safety controls;

 

  4.

Check refrigeration system for leaks and operation;

 

  5.

Check refrigeration system for moisture;

 

  6.

Inspect compressor oil level and crank case heaters;

 

  7.

Check head pressure, suction pressure and oil pressure;

 

  8.

Inspect air filters and replace when necessary;

 

  9.

Check space conditions;

 

  10.

Check condensate drains and drain pans and clean, if necessary;

 

  11.

Inspect and adjust all valves;

 

  12.

Check and adjust dampers;

 

  13.

Run machine through complete cycle.

 

- 17 -


ADDENDUM 3

MOVE-OUT CONDITIONS

ATTACHED TO AND A PART OF THE LEASE AGREEMENT

DATED August 9, 2016 BETWEEN

PROLOGIS LIMITED PARTNERSHIP I

and

Rigetti & Co, Inc.

With respect to Paragraph 21 of the Lease, Tenant shall surrender the Premises in the same condition as received, ordinary wear and tear, casualty loss, and condemnation covered by Paragraphs 15 and 16, and items that are not Tenant’s responsibility to repair and maintain excepted.

Before surrendering the Premises, Tenant shall remove all of its personal property and trade fixtures and such alterations or additions to the Premises made by Tenant as may be specified for removal thereof. If Tenant fails to remove its personal property and fixtures upon the expiration or earlier termination of this Lease, the same shall be deemed abandoned and shall become the property of the Landlord. The following list is designed to assist Tenant in the move-out procedures but is not intended to be all inclusive:

 

1.    Lights:    Office, warehouse, emergency and exit lights will be fully operational with all bulbs and ballasts functioning.
2.   

Dock Levelers, Service Doors

and Roll Up Doors:

  

All truck doors, service doors, roll up doors and dock levelers shall be serviced and placed in good operating order. This would include the necessary replacement of any dented truck door panels and adjustment of door tension to insure property operation. All door panels which are replaced need to be

painted to match the building standard.

3.    Dock Seals/Dock Bumpers:    Free of tears and broken backboards repaired. All dock bumpers must be left in place and well secured.
4.    Structural Columns    All structural steel columns in the warehouse and office shall be inspected for damage. Repairs of this nature should be pre-approved by Landlord prior to implementation.
5.    Warehouse Floor:    Free of stains and swept with no racking bolts and other protrusions left in floor. Cracks should be repaired with an epoxy or polymer to match concrete color. All floor striping in the Premises shall be removed with no residual staining or other indication that such striping existed.
6.   

Tenant-Installed

Equipment and Wiring:

   Removed and space turned to original condition when originally leased. (Remove air lines, junction boxes, conduit, etc.)
7.    Walls:    Sheetrock (drywall) damage should be patched and fire-taped so that there are no holes in either office or warehouse.
8.    Carpet and Tile    The carpet and vinyl tiles should be in a clean condition and should not have any holes or chips in them. Landlord will accept normal wear on these items provided they appear to be in a maintained condition.
9.    Roof:    Any Tenant-installed equipment must be removed and roof penetrations properly repaired by licensed roofing contractor. Active leaks must be fixed and latest Landlord maintenance and repairs recommendation must have been followed. Tenant must check with Landlord’s property manager to determine if specific roofing contractor is required to perform work.
10.    Signs:    All exterior signs must be removed and holes patched and paint touched-up as necessary. All window signs should likewise be removed.

 

- 18 -


11.   

Heating and Air

Conditioning System:

   Subject to Paragraphs 10 and 11, heating/air conditioning systems should be placed in good working order, including the necessary replacement of any parts to return the unit to a well maintained condition. This includes warehouse heaters and exhaust fans. Upon move out, Landlord will have an exit inspection performed by a certified mechanical contractor to determine the condition.
12.    Electrical & Plumbing:    Subject to Paragraphs 10 and 11, all electrical and plumbing equipment to be returned in good condition and repair and conforming to code.
14.    Overall Cleanliness:    Clean windows, sanitize bathroom(s), vacuum carpet, and remove any and all debris from office and warehouse. Remove all pallets and debris from exterior of Premises. All trade fixtures, dumpsters, racking, trash, vending machines and other personal property to be removed.
15.    Upon Completion:   

Contact Landlord’s property manager to coordinate turning in

of keys, utility changeover and obtaining of final Landlord inspection of Premises which, in turn, will facilitate refund of Security Deposit.

 

- 19 -


ADDENDUM 4

CONSTRUCTION

ATTACHED TO AND A PART OF THE LEASE AGREEMENT

DATED August 9, 2016 BETWEEN

PROLOGIS LIMITED PARTNERSHIP I

and

Rigetti & Co, Inc.

(a) Landlord agrees to furnish or perform at Landlord’s sole cost and expense those items of construction and those improvements (the “Initial Improvements”) specified below within forty-five (45) days of the Effective Date, subject to Force Majeure. The Initial Improvements shall be constructed in a good and workmanlike manner and in accordance with Legal Requirements:

 

   

Increase the existing power to the Premises from 200 amps to 600 amps @ 277/480v. The new panel shall be installed at a convenient location within the Premises. Tenant shall be responsible for distribution of power within the Premises.

(b) If Tenant shall desire any changes, Tenant shall so advise Landlord in writing and Landlord shall determine whether such changes can be made in a reasonable and feasible manner. Any and all costs of reviewing any requested changes, and any and all increased costs resulting from any changes to the Initial Improvements which Tenant may request and which Landlord may agree to shall be at Tenant’s sole cost and expense and shall be paid to Landlord upon demand and before execution of the change order.

(c) Landlord shall proceed with and complete the construction of the Initial Improvements. As soon as such improvements have been Substantially Completed, Landlord shall notify Tenant in writing of the date that the Initial Improvements were Substantially Completed. The Initial Improvements shall be deemed substantially completed (“Substantially Completed”) when, in the opinion of the construction manager (whether an employee or agent of Landlord or a third party construction manager) (“Construction Manager”), the Initial Improvements are substantially completed except for punch list items which do not prevent in any material way the use of the Initial Improvements for the purposes for which they were intended. In the event Tenant, its employees, agents, or contractors cause construction of such improvements to be delayed, the date of Substantial Completion shall be deemed to be the date that, in the opinion of the Construction Manager, Substantial Completion would have occurred if such delays had not taken place. Without limiting the foregoing, Tenant shall be solely responsible for delays caused by Tenant’s request for any changes in the plans, Tenant’s request for long lead items or Tenant’s interference with the construction of the Initial Improvements, and such delays shall not cause a deferral of the Commencement Date beyond what it otherwise would have been. After the date the Initial Improvements are Substantially Complete Tenant shall, upon demand, execute and deliver to Landlord a letter of acceptance of delivery of the Initial Improvements. In the event of any dispute as to the Initial Improvements the certificate of the Construction Manager shall be conclusive absent manifest error.

(d) The failure of Tenant to take possession of or to occupy the Premises shall not serve to relieve Tenant of obligations arising on the Commencement Date or delay the payment of rent by Tenant. Subject to applicable ordinances and building codes governing Tenant’s right to occupy or perform in the Premises, Tenant shall be allowed to install its Tenant Improvements, machinery, equipment, fixtures, or other property on the Premises during construction provided that Tenant does not thereby interfere with the completion of construction or cause any labor dispute as a result of such installations, and provided further that Tenant does hereby agree to indemnify, defend, and hold Landlord harmless from any loss or damage to such property, and all liability, loss, or damage arising from any injury to the Project or the property of Landlord, its contractors, subcontractors, or materialmen, and any death or personal injury to any person or persons arising out of such installations, unless any such loss, damage, liability, death, or personal injury was caused by Landlord’s negligence, willful misconduct or violation of this Lease. Any such occupancy or performance in the Premises shall be in accordance with the provisions governing Tenant-Made Alterations and Trade Fixtures in the Lease, and shall be subject to Tenant providing to Landlord satisfactory evidence of insurance for personal injury and property damage related to such installations and satisfactory payment arrangements with respect to installations permitted hereunder. Except as expressly set forth in Section 2 of the Lease, delay in putting Tenant in possession of the Premises shall not serve to extend the term of this Lease or to make Landlord liable for any damages arising therefrom.

 

- 20 -


ADDENDUM 5

STORAGE AND USE OF PERMITTED HAZARDOUS MATERIALS

ATTACHED TO AND A PART OF THE LEASE AGREEMENT

DATED August 9, 2016 BETWEEN

PROLOGIS LIMITED PARTNERSHIP I

and

Rigetti & Co, Inc.

1. Permitted Hazardous Materials and Use.

Tenant has requested Landlord’s consent to use the Hazardous Materials listed below in its business at the Premises (the “Permitted Hazardous Materials”). Subject to the conditions set forth herein, Landlord hereby consents to the Use (hereinafter defined) of the Permitted Hazardous Materials. Any Permitted Hazardous Materials on the Premises will be generated, used, received, maintained, treated, stored, or disposed in a manner consistent with good engineering practice and in compliance with all Environmental Requirements.

 

   Permitted Hazardous Materials (including maximum quantities):
   See Appendix 1
  

 

  

 

   The storage, uses or processes involving the Permitted Hazardous Materials (the “Use”) are described
below.   
   Use [If limited to receiving and storage, so specify]:
   See Appendix 1
  

 

  

 

2. No Current Investigation. Tenant represents and warrants that, to the best of its current knowledge, it is not currently subject to an inquiry, regulatory investigation, enforcement order, or any other proceeding regarding the generation, use, treatment, storage, or disposal of a Hazardous Material.

3. Notice and Reporting. Tenant immediately shall notify Landlord in writing of any spill, release, discharge, or disposal of any Hazardous Material in, on or under the Premises or the Project. All reporting obligations imposed by Environmental Requirements are strictly the responsibility of Tenant. Tenant shall supply to Landlord within 5 business days after Tenant first receives or sends the same, copies of all claims, reports, complaints, notices, warnings or asserted violations relating in any way to Tenant’s use of the Premises.

4. Indemnification. Tenant’s indemnity obligation under the Lease with respect to Hazardous Materials shall include indemnification for the liabilities, expenses and other losses described therein as a result of the Use of the Hazardous Materials or the breach of Tenant’s obligations or representations set forth above. It is the intent of this provision that Tenant be strictly liable to Landlord as a result of the Use of Hazardous Materials without regard to the fault or negligence of Tenant, Landlord or any third party.

5. Disposal Upon Lease Termination. At the expiration or earlier termination of the Lease, Tenant, at its sole cost and expense, shall: (i) remove and dispose off-site any drums, containers, receptacles, structures, or tanks storing or containing Hazardous Materials (or which have stored or contained Hazardous Materials) and the contents thereof; (ii) remove, empty, and purge all underground and above ground storage tank systems, including connected piping, of all vapors, liquids, sludges and residues; and (iii) restore the Premises to its original condition. Such activities shall be performed in compliance with all Environmental Requirements and to the satisfaction of Landlord. Landlord’s satisfaction with such activities or the condition of the Premises does not waive, or release Tenant from, any obligations hereunder.

 

- 21 -


APPENDIX I

STORAGE AND USE OF PERMITTED HAZARDOUS MATERIALS

 

Name   

Liquid,

Solid,

Gas

  

Usage

Description

   On-site
storage
(Max)
    
Acetone    Liquid    Lab and Cleaning    2 quart   
Stycast 1266 Part A    Liquid    Lab    2 quarts   
Stycast 1266 Part B    Liquid    Lab    1/2 quart   
Stycast 2850 FT    Liquid    Lab    1 quart   
Catalyst 24LV    Liquid    Lab    1/2 quart   
Catalyst 9    Liquid    Lab    1/2 quart   

Carbon black, Super p-conductive

99+% (metal basis)

   Solid    Lab    25 g   
Silicon Carbide 46 grit    Solid    Lab    500 g   
Silicon Carbide, superfine, 600 grit    Solid    Lab    500 g   
Graphite No 1 Flake    Solid    Lab    1 lb   
Graphite No 2 Flake    Solid    Lab    1 lb   
Graphite 635    Solid    Lab    1 lb   
Graphite Microfyne    Solid    Lab    1 lb   
Graphite 5303 Conductive Black    Solid    Lab    1 lb   

GE Varnish (GE 7031), cryogenic

heat sinking

   Liquid    Lab    1 pint   
Xylol (Xylene)    Liquid    Lab    1 qt.   
Denaturated Alcohol    Liquid    Lab    1 qt.   
Odorless Mineral Spirit    Liquid    Lab    1 qt.   
Isopropyl Alcohol    Liquid    Lab    2 x 1 gal   
Ster-Ahol (R) Disinfectant    Liquid    Lab    1 gal   

#222 Ultrasonic Instrument

Cleaning Solition

   Liquid    Lab    1 gal   
Instrument Rinsing Solution    Liquid    Lab    1 gal   

Midas (R) Electrocleaner Solution

Mix 335-156

   powder    Lab    2.2 lbs   
Midas (R) Acid Dip 335-157    powder    Lab   

2 x 2.2

lbs

  
Multi -Etch    Solid    Lab    1 lbs   

Midas (R) Bright Acid Copper

Solution 335-001

   Liquid    Lab    one quart   

Midas (R) Rhodium Plating Solution

335-055 pint

   Liquid    Lab    500 mL   

10% Oxygen 5.0, balance argon

5.0, compressed

   Gas    Lab    2 cylinders, Size 300    NOTE: Compressed gases range from 250 to 300 cubic feet per cylinder.
Argon, 5.0 compressed    Gas   

Used in

processing

equipment

  

2

cylinders type T

  
Argon, 5.0 compressed    Gas   

Used in

processing

equipment

   2 cylinders, Size 300   
Oxygen 5.0, compressed    Gas   

Used in

processing

equipment

   1 cylinders, Size 300   
Oxygen 6.0, compressed    Gas   

Used in

processing

equipment

  

1

cylinders tpye T

  

Nitrogen, Compressed 5.0 Ultra

High Purity

   Gas   

Used in

processing

equipment

   6 cylinders, Size 300   
Nitrogen, Compressed 5.5 SP    Gas   

Used in

processing

equipment

   4 cylinders type T   

 

- 22 -


Helium UN1046    Gas    Used in processing equipment    2 cylinder - type Q   
Nitrogen, liquid    Liquid    Lab    2x 150 L   
Fe3O4 Black Iron Oxide Natural    Powder    Lab    5 lb   
Fe2O3 Red Iron Oxide Natural    Powder    Lab    10 lbs   
Aliminum Powder 30 um    Powder    Lab    2 lb   

Cu80/Sn20 (copper-tin) 80%/20%

53 um

   Powder    Lab    500 g   
Buffer solution, PH 7    liquid    Lab    500 mL   
Buffer solution, PH 4.01    liquid    Lab    500 mL   
Buffer solution, PH 10.00    liquid    Lab    500 mL   

Conductity calibration solution HI

7033, 84 uS/cm

   liquid    Lab    500 mL   
PH meter cleaning solution, HI7061    liquid    Lab    500 mL   
PG Remover (NMP)    liquid    Fab processing    4 x 4L   
950 PMMA A3    liquid    Fab processing    500 mL   
MMA(8.5)MAA EL 13    liquid    Fab processing    500 mL   
ma-N 1410 resist    liquid    Fab processing    1.25 L   
ma-D 533S    liquid    Fab processing    4 x 5 L   
Isopropanol CMOS    liquid    Fab processing    8 x 1 gal   
Acetone CMOS    liquid    Fab processing    8 x 1 gal   
Isopropanol VLSI    liquid    Fab processing    8 x 1 gal   
Acetone VLSI    liquid    Fab processing    8 x 1 gal   
Baker PRS-3000    liquid    Fab processing    4 x 1 gal   
Resist Remover RR5    liquid    Fab processing    4 x 1 gal   
Resist Developper RD6    liquid    Fab processing    4 x 1 gal   
Indium Sulfamate Plating solution    liquid    Fab processing    1 L   
Soldering Flux Zinc Cholride    liquid    Lab    1 pt.   
All purpose Flux N-3    liquid    Lab    1 pt.   

Conductive Silver epoxy H20e part

A

   paste    Lab    0.5 oz   

Conductive Silver epoxy H20e part

B

   paste    Lab    0.25 oz   
Indium Solder paste, 97In3Ag    paste    Lab    2 x 20 g   
Indium Solder paste, 99.99In    paste    Lab    2 x 20 g   

Indium Alloy solder balls, 99.99 In,

0.010 in diam.

   powder    Lab    10 000 beads   

Indium Alloy solder balls, 57 Bi

26IN 17 SN, 0.01 in diam.

   powder    Lab    10 000 beads   
In 99.99, 0.02 in diam.    powder    Lab    5 g of beads   
In 99.99, 0.02 in diam.    powder    Lab    5 g of beads   
Liquid Tin plating solution    liquid    Lab    125 mL   
Rosin Flux RA    Liquid    Lab    125 mL   
Hydrofluoric Acid 10%    Liquid    Lab    8 x 1 gal   
Sulfuric Acid 36%    Liquid    Lab    8 x 1 gal   

[CHANGES PENDING REVIEW BY ENVIRONMENTAL DEPARTMENT]

 

- 23 -


EXHIBIT A

SITE PLAN

ATTACHED TO AND A PART OF THE LEASE AGREEMENT

DATED ______________, 2016 BETWEEN

PROLOGIS LIMITED PARTNERSHIP I

and

Rigetti & Co, Inc.

 

LOGO

 

- 24 -


EXHIBIT A-1

FLOOR PLAN

ATTACHED TO AND A PART OF THE LEASE AGREEMENT

DATED _____________, 2016 BETWEEN

PROLOGIS LIMITED PARTNERSHIP I

and

Rigetti & Co, Inc.

 

LOGO

 

- 25 -


EXHIBIT B

PROJECT RULES AND REGULATIONS

ATTACHED TO AND A PART OF THE LEASE AGREEMENT

DATED _____________, 2016 BETWEEN

PROLOGIS LIMITED PARTNERSHIP I

and

Rigetti & Co, Inc.

Rules and Regulations

 

1.

The sidewalk, entries, and driveways of the Project shall not be obstructed by Tenant, or its agents, or used by them for any purpose other than ingress and egress to and from the Premises.

 

2.

Tenant shall not place any objects, including antennas, outdoor furniture, etc., in the parking areas, landscaped areas or other areas outside of its Premises, or on the roof of the Project.

 

3.

Except for seeing-eye dogs, no animals shall be allowed in the offices, halls, or corridors in the Project.

 

4.

Tenant shall not disturb the occupants of the Project or adjoining buildings by the use of any radio or musical instrument or by the making of loud or improper noises.

 

5.

If Tenant desires telegraphic, telephonic or other electric connections in the Premises, Landlord or its agent will direct the electrician as to where and how the wires may be introduced; and, without such direction, no boring or cutting of wires will be permitted. Any such installation or connection shall be made at Tenant’s expense.

 

6.

Tenant shall not install or operate any steam or gas engine or boiler, or other mechanical apparatus in the Premises, except as specifically approved in the Lease. The use of oil, gas or inflammable liquids for heating, lighting or any other purpose is expressly prohibited. Explosives or other articles deemed extra hazardous shall not be brought into the Project.

 

7.

Parking any type of recreational vehicles is specifically prohibited on or about the Project. Further, parking any type of trucks, trailers or other vehicles in the Building is specifically prohibited. In the event that a vehicle is disabled, it shall be removed within 48 hours. There shall be no “For Sale” or other advertising signs on or about any parked vehicle. All vehicles shall be parked in the designated parking areas in conformity with all signs and other markings. All parking will be open parking, and no reserved parking, numbering or lettering of individual spaces will be permitted except as specified by Landlord or in the Lease.

 

8.

Tenant shall maintain the Premises free from rodents, insects and other pests.

 

9.

Landlord reserves the right to exclude or expel from the Project any person who, in the judgment of Landlord, is intoxicated or under the influence of liquor or drugs or who shall in any manner do any act in violation of the Rules and Regulations of the Project.

 

10.

Tenant shall not cause any unnecessary labor by reason of Tenant’s carelessness or indifference in the preservation of good order and cleanliness. Except as otherwise expressly provided in the Lease, Landlord shall not be responsible to Tenant for any loss of property on the Premises, however occurring, or for any damage done to the effects of Tenant by the janitors or any other employee or person.

 

11.

Tenant shall give Landlord prompt notice of any defects in the water, lawn sprinkler, sewage, gas pipes, electrical lights and fixtures, heating apparatus, or any other service equipment affecting the Premises.

 

12.

Tenant shall not permit storage outside the Premises, or dumping of waste or refuse or permit any harmful materials to be placed in any drainage system or sanitary system in or about the Premises.

 

13.

All moveable trash receptacles provided by the trash disposal firm for the Premises must be kept in the trash enclosure areas, if any, provided for that purpose.

 

14.

No auction, public or private, will be permitted on the Premises or the Project.

 

15.

No awnings shall be placed over the windows in the Premises except with the prior written consent of Landlord.

 

16.

The Premises shall not be used for lodging, sleeping or cooking or for any immoral or illegal purposes or for any purpose other than that specified in the Lease. No gaming devices shall be operated in the Premises.

 

- 26 -


17.

Tenant shall ascertain from Landlord the maximum amount of electrical current which can safely be used in the Premises, taking into account the capacity of the electrical wiring in the Project and the Premises and the needs of other tenants, and shall not use more than such safe capacity. Landlord’s consent to the installation of electric equipment shall not relieve Tenant from the obligation not to use more electricity than such safe capacity.

 

18.

Tenant assumes full responsibility for protecting the Premises from theft, robbery and pilferage.

 

19.

Tenant shall not install or operate on the Premises any machinery or mechanical devices of a nature not directly related to Tenant’s ordinary use of the Premises and shall keep all such machinery free of vibration, noise and air waves which may be transmitted beyond the Premises.

 

20.

Tenant shall not permit smoking in the office areas of the Premises.

 

21.

No racking or storage shall occur within 12-inches of demising walls, office and warehouse separation walls, exterior walls, and columns.

 

- 27 -


EXHIBIT C

FORM OF COMMENCEMENT DATE CERTIFICATE

ATTACHED TO AND A PART OF THE LEASE AGREEMENT

DATED August 9, 2016 BETWEEN

PROLOGIS LIMITED PARTNERSHIP I

and

Rigetti & Co, Inc.

COMMENCEMENT DATE CERTIFICATE

____________, 201_

Rigetti & Co, Inc.

RE: Lease dated ______ between Rigetti & Co, Inc. and PROLOGIS LIMITED PARTNERSHIP I for 47400-47470 Seabridge Drive, Fremont, CA 94538

Dear __________:

Welcome to your new facility. We would like to confirm the terms of the above referenced lease agreement:

Lease Commencement Date:

Lease Expiration Date:

Rental Commencement Date:

We are pleased to welcome you as a customer of Prologis and look forward to working with you. Please indicate your agreement with the above changes to your lease by signing and returning the enclosed copy of this letter to me. If I can be of service, please do not hesitate to contact me.

Sincerely,

 

Accepted by: Rigetti & Co, Inc.       Date:
   By:                                                                                             
   Printed:                                                                                    
   Title:                                                                                         

 

- 28 -


EXHIBIT D

SIGN CRITERIA

ATTACHED TO AND A PART OF THE LEASE AGREEMENT

DATED August 9, 2016 BETWEEN

PROLOGIS LIMITED PARTNERSHIP I

and

Rigetti & Co, Inc.

WINDOW SIGNS IDENTIFICATION:

Each Tenant will be allowed one window sign placed either to the left or to the right of the entrance door, whichever provides the best visibility.

Company names, logos or symbols will be allowed in this area—color and size to be determined by the Tenant. Copy should start at 5’ from grade working down to no more than 3 12’ from grade. Sign layout including copy, sizes and color must be approved by the building management.

One security decal only may be applied to the front door glass in the lower corner if the Tenant so desires. All exterior alarm bells are to be mounted to the rear of the building only.

DIRECTORY SIGN IDENTIFICATION:

A monument directory sign has been provided for each building. Directory signs shall list the street number and the company names only, no slogans or symbols allowed. Please contact building management to arrange installation of your name on the directory sign.

REAR LOADING SIGNS:

Each Tenant will be allowed to identify its rear door for shipping and receiving purposes. The company name shall be placed on a 36” x 24” aluminum panel adjacent to the rear doors. Company names and logos only are allowed. Address numbers and door designation sign re: Shipping/Receiving, will call...will be installed centered above the main door. Address is always on rear loading sign.

Management reserves the right to deny any copy it considers unsuitable, and must approve all copy prior to installation. The cost of all lettering and logos is the responsibility of the Tenant. No other signs are allowed in the windows or doors.

 

- 29 -


EXHIBIT E

TENANT IMPROVEMENTS

I. CLEAN ROOM SYSTEMS

A. Electrical & Lighting Upgrade

1. The owner will provide an additional 400A 480/277V service to the space pursuant to Addendum 4.

2. From the new 400A 480/277V service:

 

   

install transformers, boards and wire to support the clean room (fan filter units, lighting, and equipment);

 

   

install transformers, boards and wire to support yard equipment; the intent is to have all yard equipment at 480V- 3P;

 

  3.

The existing fluorescent lights will not pass Title 24 energy or current code seismic regulations (lamps require a wire cage capture system). If the City of Fremont requires replacement; new LED high bay lighting will be installed providing a minimum of 20 foot candles in the space not occupied by the clean room.

B. Clean Room

 

  1.

Demolition & Foundations

A foundation system will be required under the clean room columns due to the existing slab thickness of less than 6 inches. Saw cut a 2x2’ opening in the floor slab under each column location. Excavate and install a 2x2x2’ footing.

 

  2.

Sealing of the Existing Concrete Floor

The existing VCT floor system has extensive water intrusion damage.

Floor tiles will be removed, the floor scrabbled by bead blasting to remove adhesive and provide a mechanical surface bond; an epoxy floor sealer will be applied to provide a moisture barrier.

 

  3.

New Floor System

A static dissipative epoxy floor system will be applied under the entire footprint of the clean room.

 

  4.

Clean Room Architectural Systems

 

   

Pre-manufactured clean room with moment frame structure and metal deck;

 

   

Glass wall partitions shall extend from the floor to the bottom side of the deck;

 

   

Ceiling height within the clean room shall be a maximum of 9 feet;

 

 

Clean room areas as follows: gross foot print — about 3000 sf, area under filter — about 1500 sf;

 

 

Future expansion: gross foot print — about 1400 sf, area under filter — about 730 sf;

 

 

HEPA Ceiling System;

 

 

HEPA Filters;

 

 

Fan Filter Units: DC Drive, Speed Controllable;

 

 

Clean Room Lights: teardrop LED; spaced and sized for 25 foot candles.

 

- 30 -


  5.

Clean Room Electrical Systems

 

 

The clean room vendor will provide a panel for lights and fan filter units.

 

  6.

Mechanical Yard

 

 

Build a mechanical yard in the rear of the building adjacent to the Bay 1 loading dock door.

 

 

The yard will be enclosed via an 8 ft. height chain link fence provided with visual barrier in the form of vinyl slats.

 

 

The yard will contain clean room support mechanical equipment.

 

  7.

Clean Room Exhaust System

 

 

Two exhaust fans will be provided for general clean room exhaust (fume hoods & pump exhaust). Fans will be inline centrifugal, corrosion resistant located in the yard.

 

 

Duct systems shall be stainless steel, corrosion resistant and distributed to each of the chases.

 

  8.

Clean Room Air Conditioning System

 

 

An air cooled water chiller and associated chilled water pumps will be provided in the yard;

 

 

A central makeup air handler will be located in the yard;

 

 

A water boiler will be located in the yard;

 

 

The control system will monitor space heat and humidity conditions and adjust makeup unit discharge temperature and humidity to maintain required space conditions.

 

  9.

Fire Sprinkler System will be integrated into the plenum design of the clean room

A fire sprinkler head will be provided for each 130sf of coverage (maximum distance) (Assumed ordinary hazard rating Group 1 is assigned 0.15gpm per square feet.)

II. PROCESS SUPPORT SYSTEMS

A. Process Chilled Water

 

  1.

closed loop recirculation system, 10 micron filtration; system charged with RO quality water;

 

  2.

A single heat exchanger and pumps will be provided for process cooling water;

 

  3.

Pipe system will be schedule 80 PVC and will be routed into the clean room chase.

B. DI Water System

 

  1.

The DI water system will be mounted inside near the clean room;

 

  2.

Will provide a continuous flow through a closed recirculation loop.

C. Clean Dry Air System

 

  1.

Clean dry air system; dryers capable of -70 deg. F dew-point; 1.0 micron and 0.10 micron carbon filter train.

 

  2.

System located in the mechanical yard.

 

- 31 -


D. Nitrogen Gas Delivery System

An auto crossover panel for integration of two vendor supplied 100L+ LN2 Dewars. Dewars mounted in the area adjacent to the clean room.

E. Process Vacuum System

Dry pump vacuum pump with a receiver tank & inlet filtration.

 

- 32 -


EXHIBIT E-1

SPACE PLAN

 

LOGO

EXHIBIT F

 

- 33 -


TENANT’S TRADE FIXTURES

 

   

Modular cleanrooms and support frame structures

 

 

Process gas delivery systems and filtration systems

 

 

Process cooling water system

 

 

DI water generation plant

 

 

Mechanical chillers units

 

 

Process cooling water skid

 

 

Air Handler unit

 

 

Cleanroom AC units where installed by Tenant

 

 

Vacuum and mechanical pumps

 

 

Cleanroom support dedicated transformers installed by tenant

 

 

IT equipment and related gear

 

 

Emergency power generator and/or UPS systems

 

 

Exhaust fans where installed by Tenant

 

 

Clean Dry Air Compressor and dryer

 

 

Water boiler unit

 

 

Process vacuum system

 

 

HEPA filtration units

 

 

All cleanroom and office fixtures used during the course of operations

 

 

All process tools and support equipment

 

 

Produced products and raw material inventory

 

 

Process consumables

 

- 34 -