LEASE AGREEMENT
This Lease Agreement (the "Lease"), dated as of the date set forth in Section 1 of the Summary of Basic Lease Information (the "Summary"), below, is made by and between FIVE POINT OFFICE VENTURE I, LLC, a Delaware limited liability company ("Landlord"), and BROADCOM CORPORATION, a California corporation ("Tenant").
SUMMARY OF BASIC LEASE INFORMATION
TERMS OF LEASE | DESCRIPTION |
• Date: | August 10, 2017 |
2. Premises: | |
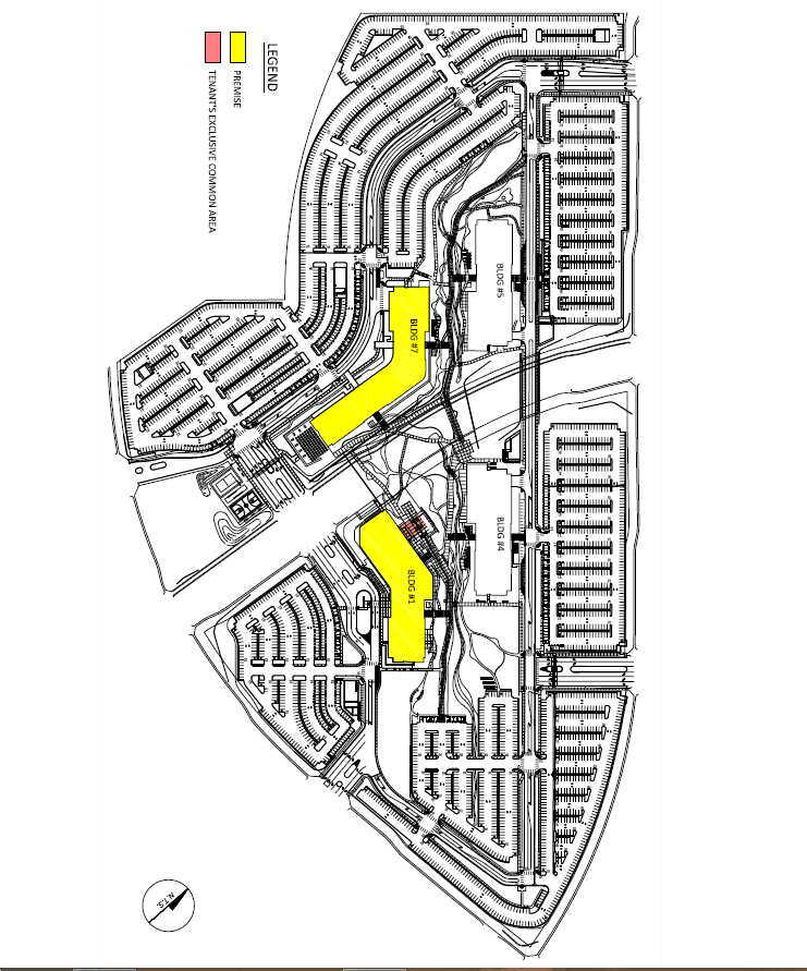
2.1. Buildings: | Those certain two (2) five-story buildings currently under construction and situated in the City of Irvine, County of Orange, California, as depicted on Exhibit A‑1, attached hereto. |
2.2. Premises: | All of the approximately 660,893 square feet of space located in the Buildings. |
2.3. Project | The Buildings are part of the project known as "Five Point Gateway", as further set forth in Section 1.1.2 of this Lease. |
3. Lease Term (Article 2): | |
3.1. Length of Term: | Twenty (20) years, subject to one (1) ten (10)-year extension option pursuant to Section 2.2 below. |
3.2. Lease Commencement Date: | August 10, 2017 |
3.3. Lease Expiration Date: | August 9, 2037, as may be extended by the extension option described in Section 2.2 below. |
1 | ||
4. | Base Rent (Article 3): |
Period During Lease Term | Annualized Base Rent | Monthly Installment of Base Rent | |||||
Months 1-12 | $ | 17,305,488.00 | $ | 1,442,124.00 | |||
Months 13-24 | $ | 17,738,125.20 | $ | 1,478,177.10 | |||
Months 25-36 | $ | 18,181,578.33 | $ | 1,515,131.53 | |||
Months 37-48 | $ | 18,636,117.79 | $ | 1,553,009.82 | |||
Months 49-60 | $ | 19,102,020.73 | $ | 1,591,835.06 | |||
Months 61-72 | $ | 19,579,571.25 | $ | 1,631,630.94 | |||
Months 73-84 | $ | 20,069,060.53 | $ | 1,672,421.71 | |||
Months 85-96 | $ | 20,570,787.05 | $ | 1,714,232.25 | |||
Months 97-108 | $ | 21,085,056.72 | $ | 1,757,088.06 | |||
Months 109-120 | $ | 21,612,183.14 | $ | 1,801,015.26 | |||
Months 121-132 | $ | 22,152,487.72 | $ | 1,846,040.64 | |||
Months 133-144 | $ | 22,706,299.91 | $ | 1,892,191.66 | |||
Months 145-156 | $ | 23,273,957.41 | $ | 1,939,496.45 | |||
Months 157-168 | $ | 23,855,806.34 | $ | 1,987,983.86 | |||
Months 169-180 | $ | 24,452,201.50 | $ | 2,037,683.46 | |||
Months 181-192 | $ | 25,063,506.54 | $ | 2,088,625.55 | |||
Months 193-204 | $ | 25,690,094.20 | $ | 2,140,841.18 | |||
Months 205-216 | $ | 26,332,346.56 | $ | 2,194,362.21 | |||
Months 217-228 | $ | 26,990,655.22 | $ | 2,249,221.27 | |||
Months 229-240 | $ | 27,665,421.60 | $ | 2,305,451.80 | |||
2 | ||
5. Triple Net Lease Article (4): | This is a "TRIPLE NET" lease and as such, the provisions contained in this Lease are intended to pass on to Tenant one hundred percent (100%) of the costs and expenses associated with this Lease and the Premises, and Tenant's use, occupancy, and operation thereof. |
6. Tenant's Share (Article 4): | Initially, 64%+/-, as determined in accordance with Section 4.2.3. Landlord and Tenant hereby agree that the square footage of space in the Premises is 660,893 square feet, and the total square footage of the Project is currently 1,039,021 square feet. |
7. Permitted Use (Article 5): | Tenant shall use the Premises solely for (i) research and development, and (ii) other uses (including ancillary office use) which are incidental to the foregoing (the "Permitted Use"); provided, however, that notwithstanding anything to the contrary set forth hereinabove, and as more particularly set forth in the Lease, Tenant shall be responsible for operating and maintaining the Premises pursuant to, and in no event may Tenant's Permitted Use violate, (A) Landlord's "Rules and Regulations", as that term is set forth in Section 5.2 of this Lease, (B) all "Applicable Laws", as that term is set forth in Article 24 of this Lease, (C) all applicable zoning, building codes and the "CC&Rs", as that term is set forth in Section 5.3 of this Lease, and (D) the character of the Project as a first-class office and research and development building Project. |
8. Security Deposit: | None. |
9. Tenant's Parking Areas (Article 28): | Tenant shall have the exclusive use of certain surface parking lots located within the Project, all as more particularly described in Article 28 of the Lease. |
10. Address of Tenant Section 29.19): | CBRE | Global Workplace Solutions - Broadcom 5300 California Avenue, Building II Irvine, CA 92617 Attention: Bert Moreira | Analyst, Senior Lease Administrator |
With a copy to: | Broadcom c/o CBRE, Inc. P.O. Box 82567 Goleta, CA 93118-2567 |
11. Address of Landlord Section 29.18): | See Section 29.18 of the Lease. |
12. Brokers (Section 29.24): | Representing Tenant: CBRE, Inc. Representing Landlord: None |
ARTICLE 1
PREMISES, BUILDINGS, PROJECT, AND COMMON AREAS
PREMISES, BUILDINGS, PROJECT, AND COMMON AREAS
1.1 Premises, Buildings, Project and Common Areas.
1.1.1 The Premises. Landlord hereby leases to Tenant, and Tenant hereby leases from Landlord, the premises set forth in Section 2.2 of the Summary (the "Premises"). The location of the Premises is set forth in Exhibit A‑1 attached hereto and the Premises contains approximately the number of square feet as set forth in Section 2.2 of the Summary. The parties hereto agree that the lease of the Premises is upon and subject to the terms, covenants and conditions (the "TCCs")
3 | ||
herein set forth, and Tenant covenants as a material part of the consideration for this Lease to keep and perform each and all of such TCCs by it to be kept and performed and that this Lease is made upon the condition of such performance. The parties hereto hereby acknowledge that the purpose of Exhibit A‑1 is to show the approximate location of the Premises in the "Project", as that term is defined in Section 1.1.2, below, only, and such Exhibit is not meant to constitute an agreement, representation or warranty as to the construction of the Premises, the precise area thereof or the specific location of the "Common Areas", as that term is defined in Section 1.1.3, below, or the elements thereof or of the accessways to the Premises or the Project. Tenant shall accept the Premises in its otherwise existing "as-is" condition and Landlord shall not be obligated to provide or pay for any improvement work or services related to the improvement of the Premises. Tenant acknowledges that pursuant to the TCCs of Article 21 hereof, Tenant is solely responsible for the Completion of the Premises. Tenant also acknowledges that neither Landlord nor any agent of Landlord has made any representation or warranty regarding the size, construction or condition of the Premises, the Buildings or the Project or with respect to the suitability of any of the foregoing for the conduct of Tenant's business. Tenant shall be entitled to the exclusive use the following amenities to be constructed by Tenant within the Buildings (the "Amenities"), and such Amenities shall be a portion of the Premises for all purposes hereunder: the gym, the cafe and the Buildings' exterior common areas as depicted on Exhibit A‑1 attached hereto. In addition to the Premises, subject to the TCCs, the CC&Rs and/or any Future CC&Rs, commencing on the Lease Commencement Date Tenant shall be entitled to the non-exclusive use, together with other tenants and owners within the Project, of the sports courts and bike storage areas located on Lot 8 ("Court and Bike Areas").
1.1.2 The Buildings and The Project. The Premises include the entirety of the two (2) buildings set forth in Section 2.1 of the Summary (the "Buildings"). The Buildings are part of the Project. The term "Project", as used in this Lease, shall mean (i) the Buildings and the Common Areas, (ii) the land (which is to be improved with landscaping, parking facilities and other improvements) upon which the Buildings and the Common Areas are located, (iii) two (2) vacant buildings located on certain lots, which as of the Commencement Date, are currently designated as Lots 4 and 5, and (iv) those parcels of land which as of the Commencement Date, are as described on Exhibit A‑2, attached hereto, and any and all improvements located, or to be located, thereon.
1.1.3 Common Areas. Tenant shall have the non-exclusive right to use in common with other tenants in the Project, and subject to the rules and regulations referred to in Article 5 of this Lease, and such other rules and regulations as the owner(s) of the applicable areas of the Project may reasonably designate from time to time, those portions of the Project which are provided, from time to time, for use in common by Landlord, the other owner(s) of the applicable areas of the Project, Tenant and any other tenants of the Project, and any association or associations or other entity(ies) that may be set up from time to time to deal with such areas (the "Association") (such areas are collectively referred to herein as the "Common Areas"). Tenant acknowledges and agrees that the manner in which the Common Areas are maintained and operated shall be at the reasonable discretion of the Association, and the use thereof shall be subject to such reasonable and non-discriminatory rules, regulations and restrictions as Landlord, the Association and such other owner(s) may make from time to time. Landlord reserves, on behalf of itself, the Association and any subsequent owner(s), the right to close temporarily, make alterations or additions to, or change the location of elements of the Project and the Common Areas; provided, that no such changes shall be permitted which materially interfere with Tenant's Permitted Use, enjoyment of the Premises, or rights or access hereunder; provided, further, that, in no event shall such actions taken by Landlord or the Association be construed as an eviction of Tenant, give rise to any right of abatement of Rent or relieve Tenant from fulfillment of any obligation and/or covenant in this Lease. Except when and where Tenant's right of access is specifically excluded as a result of (a) an emergency, (b) a requirement of law, or (c) an express provision set forth in this Lease, Tenant shall have the right of access to the Premises twenty-four (24) hours per day, seven (7) days per week during the "Lease Term", as that term is defined in Section 2.1 below. In the event that at any time there is no Association in place, Landlord shall have the right to appoint any person or entity in its sole good faith discretion (which may, without limitation, include Landlord or its affiliate(s)) to perform the functions of such Association as contemplated in this Lease, provided (1) such appointed person or entity shall be known as the "Association" for all purposes hereunder, and (2) such appointed person or entity shall be reputable and experienced in the management and operation of projects of comparable size, scale and complexity as the Project.
4 | ||
ARTICLE 2
LEASE TERM
LEASE TERM
2.1 Lease Term. The TCCs and provisions of this Lease shall be effective as of the date of this Lease. The term of this Lease (the "Lease Term") shall be as set forth in Section 3.1 of the Summary, shall commence on the date set forth in Section 3.2 of the Summary (the "Lease Commencement Date"), and shall terminate on the date set forth in Section 3.3 of the Summary (the "Lease Expiration Date") unless this Lease is sooner terminated as expressly provided herein. For purposes of this Lease, the term "Lease Year" shall mean each consecutive twelve (12) month period during the Lease Term; provided, however, that the first Lease Year shall commence on the Lease Commencement Date and end on the last day of the month in which the first anniversary of the Lease Commencement Date occurs (or if the Lease Commencement Date is the first day of a calendar month, then the first Lease Year shall commence on the Lease Commencement Date and end on the day immediately preceding the first anniversary of the Lease Commencement Date), and the second and each succeeding Lease Year shall commence on the first day of the next calendar month; and further provided that the last Lease Year shall end on the Lease Expiration Date. For purposes of this Lease, the term "Lease Month" shall mean each succeeding calendar month during the Lease Term; provided that the first Lease Month shall commence on the Lease Commencement Date and shall end on the last day of the first (1st) full calendar month of the Lease Term and that the last Lease Month shall expire on the Lease Expiration Date.
2.2 Extension Term. Tenant may extend the term of this Lease beyond the initial Lease Term for one (1) period of ten (10) years (the "Extension Term"), provided that (a) at least nine (9) months prior to the scheduled expiration of the initial Lease Term, Tenant notifies Landlord in writing (the "Extension Notice") of its intention to extend the initial Lease Term, and (b) on the date of the Extension Notice, no Event of Default is then continuing. The extension of this Lease shall be on the same terms and conditions contained in this Lease, except that (i) Tenant may exercise its extension option with respect to either or both of the Buildings (the "Extension Premises") and the Common Areas applicable to the Extension Premises; and (ii) Base Rent payable during the Extension Term shall be the Fair Market Rate (hereinafter defined) per square foot of the Extension Premises.
2.2.1 Determination of Fair Market Rate. Within thirty (30) days after receipt of Tenant's Extension Notice, Landlord shall advise Tenant of Landlord's determination of the Fair Market Rate for the Extension Premises for the Extension Term. Tenant, within thirty (30) days after receipt of such determination, shall either (a) give Landlord written notice of Tenant's acceptance ("Acceptance Notice"), or (b) if Tenant disagrees with Landlord's determination, provide Landlord with written notice of rejection (the "Rejection Notice"). If Tenant provides Landlord with a Rejection Notice, Landlord and Tenant shall work together to agree upon the Fair Market Rate for the Extension Premises during the Extension Term. If Landlord and Tenant are unable to agree upon the Fair Market Rate for the Extension Premises within thirty (30) days after the date Tenant provides Landlord with the Rejection Notice (the "Initial FMR Period"), then Tenant, by written notice to Landlord (the "Arbitration Notice"), shall have the right to have the Fair Market Rate determined in accordance with the arbitration procedures described below, by delivering the Arbitration Notice to Landlord within ten (10) days following expiration of the Initial FMR Period. If Tenant fails to deliver the Arbitration Notice to Landlord within ten (10) days following expiration of the Initial FMR Period, then Tenant's election to extend the Term of the Lease shall be null, void and of no further force and effect.
2.2.2 Arbitration Procedures. If Tenant timely provides Landlord with an Arbitration Notice, Landlord and Tenant, within ten (10) days after the date of the Arbitration Notice, shall each simultaneously submit to the other its good faith estimate of the Fair Market Rate for the Extension Premises during the Extension Term (collectively referred to as the "Estimates") and shall each select a broker (hereinafter, a "broker") to determine which of the two Estimates most closely reflects the Fair Market Rate for the Extension Premises during the Extension Term. Each broker so selected shall (a) be a licensed commercial real estate broker and (b) have not less than ten (10) years' experience in the field of commercial brokerage in connection with Comparable Buildings (as defined below). Upon selection, Landlord's and Tenant's brokers shall work together in good faith to agree upon which of the two Estimates most closely reflects the Fair Market Rate for the Extension Premises. The Estimate chosen by such brokers shall be binding on both Landlord
5 | ||
and Tenant as the Base Rent rate for the Extension Premises during the Extension Term. If either Landlord or Tenant fails to appoint a broker within the ten (10) day period referred to above, the broker appointed by the other party shall be the sole broker for the purposes hereof. If the two brokers cannot agree upon which of the two Estimates most closely reflects the Fair Market Rate within thirty (30) days after their appointment, then, within ten (10) days after the expiration of such thirty (30) day period, the two brokers shall select a third broker meeting the aforementioned criteria. Once the third broker (i.e., arbitrator) has been selected as provided for above, then, as soon thereafter as practicable but in any case within fourteen (14) days, the arbitrator shall make his or her determination of which of the two Estimates most closely reflects the Fair Market Rental rate and such Estimate shall be binding on both Landlord and Tenant as the Base Rent rate for the Extension Premises. The parties shall share equally in the costs of the arbitrator. Any fees of any broker, counsel or experts engaged directly by Landlord or Tenant shall be borne by the party retaining such broker, counsel or expert.
2.2.3 Adjustments. If the Fair Market Rate has not been determined by the commencement date of the Extension Term, Tenant shall pay Base Rent upon the terms and conditions in effect during the last month of the initial Lease Term until such time as the Fair Market Rate has been determined. Upon such determination, the Base Rent for the Extension Premises shall be retroactively adjusted to the commencement of the Extension Term. If such adjustment results in an underpayment of Base Rent by Tenant, Tenant shall pay Landlord the amount of such underpayment within thirty (30) days after the determination thereof. If such adjustment results in an overpayment of Base Rent by Tenant, Landlord shall credit such overpayment against the next installment of Base Rent due under this Lease and, to the extent necessary, any subsequent installments, until the entire amount of such overpayment has been credited against Base Rent.
2.2.4 Fair Market Rate. For purpose hereof, "Fair Market Rate" rate shall mean the arm's length fair market annual rental rate per square foot under new and renewal leases and amendments entered into on or about the date on which the Fair Market Rate is being determined hereunder for space comparable to the Extension Premises in Comparable Buildings. The determination of Fair Market Rate shall take into account items that professional real estate brokers customarily consider, including, but not limited to, rental rates, space availability, tenant size, tenant improvement allowances, parking charges and any other lease considerations, if any, then being charged or granted by landlords of similar buildings, such as rent abatements, construction costs and other concessions and the manner, if any, in which operating expenses, insurance and taxes are paid or reimbursed.
ARTICLE 3
BASE RENT
BASE RENT
3.1 In General. Tenant shall pay, without prior notice or demand, to Landlord, or, at Landlord's option, at such other place as Landlord may from time to time designate in writing, by a wire transfer of United States Federal funds which, at the time of payment, is legal tender for private or public debts in the United States of America, base rent ("Base Rent") as set forth in Section 4 of the Summary, payable in equal monthly installments as set forth in Section 4 of the Summary in advance on or before the first day of each and every calendar month during the Lease Term, without any setoff or deduction whatsoever. The Base Rent for the first (1st) full month of the Lease Term shall be paid at the time of Tenant's execution of this Lease, together with the anticipated monthly amount of Additional Rent corresponding to such first (1st) full month of the Lease Term. If any Rent (as hereinafter defined) payment date (including the Lease Commencement Date) falls on a day of the month other than the first day of such month or if any payment of Rent is for a period which is shorter than one month, the Rent for any such fractional month shall accrue on a daily basis during such fractional month and shall total an amount equal to the product of (i) a fraction, the numerator of which is the number of days in such fractional month and the denominator of which is the actual number of days occurring in such calendar month, and (ii) the then-applicable Monthly Installment of Base Rent. All other payments or adjustments required to be made under the TCCs of this Lease that require proration on a time basis shall be prorated on the same basis.
3.2 Triple Net; No Setoff; No Termination. Tenant acknowledges and agrees that this is a triple net Lease and Tenant is responsible to pay all rental amounts and one hundred percent (100%) of all other costs and expenses related to the operation, use, occupancy, maintenance, management, and replacements concerning the Premises (including, without limitation, the
6 | ||
Buildings and the Amenities), including, without limitation, all federal, state, county, or local governmental or municipal taxes, fees, charges or other impositions of every kind and nature, whether general, special, ordinary or extraordinary (including, without limitation, real estate taxes, general and special assessments (collectively, "Premises RE Taxes")) levied against the Premises (collectively, the "Premises Expenses"), and that, in addition, Tenant is one hundred percent (100%) responsible for Tenant's Share of all "CAM Expenses", as that term is defined in Section 4.2.2, below. To the extent, if any, that Landlord determines that such Premises Expenses payable by Tenant cannot be charged directly to, and paid by, Tenant, such costs and expenses shall be paid by the Association but reimbursed by Tenant upon demand therefor by Landlord and shall be deemed to be Additional Rent hereunder. In connection with the foregoing, Tenant shall pay the Premises RE Taxes before delinquency, and provide Landlord with satisfactory evidence that such Premises RE Taxes have been timely paid. Tenant acknowledges and agrees that this Lease shall not terminate and Tenant may not quit, terminate or surrender this Lease and that Tenant shall perform all obligations hereunder, including the payment of all Base Rent and Additional Rent, without notice, demand, counterclaim, set-off, deduction, defense or recoupment, and without abatement, suspension, deferment or reduction for any reason, including, without limitation, (i) any past, present or future claims which Tenant may have against Landlord, any Landlord Mortgagee, their respective successors and assigns or any other person for any reason whatsoever; (ii) any defect in the Premises, or in the condition, design, construction, durability or fitness for a particular use thereof; (iii) any casualty or condemnation; (iv) any restriction, deprivation (including eviction) or prevention of, or any interference with or interruption of, any use or occupancy of the Premises (whether due to any defect in or failure of Landlord's title to the Premises, any lien or encumbrance, or otherwise); (v) any action, omission, default or breach on Landlord's part under this Lease or under any other agreement between Landlord and Tenant, or under any other indebtedness or liability, howsoever and whenever arising, of Landlord, any assignee of Landlord, or Tenant to any other person, or because of insolvency, bankruptcy or similar proceedings by or against Landlord, or any assignee of Landlord or Tenant; (vi) the inadequacy or inaccuracy of the description of the Premises; (vii) Tenant's acquisition of ownership of the Premises (as to any obligation arising before or incident to such acquisition and any obligation intended to survive such acquisition including, the payment of the full purchase price in strict accordance with the terms hereof); (viii) any sale or other disposition of the Premises; (ix) the impossibility or illegality of performance by Landlord or Tenant or both; (x) any action of any governmental authority; (xi) any failure to complete the Tenant's Building Work Project by the Target Completion Date; or (xii) any other cause or circumstance, whether similar or dissimilar to the foregoing, any present or future Applicable Laws notwithstanding and whether or not Tenant may have notice or knowledge of any of the foregoing. Landlord and Tenant intend that Tenant's obligations under this Lease to pay Rent are separate and independent covenants and agreements, and that Tenant shall pay all Base Rent and Additional Rent in accordance with the terms of this Lease, without notice or demand, unless the obligation to pay the same shall be terminated in accordance with the terms of this Lease. This Lease is Tenant's absolute and unconditional obligation. Tenant waives all rights at any time conferred by any Applicable Law, to extent that it may waive such rights, or otherwise to avail itself of any right (i) terminate this Lease, or (ii) to abate, reduce or defer any Base Rent or Additional Rent because Tenant incurs any damage, loss or expense, because of any cause referred to in this Section 3.2.
ARTICLE 4
ADDITIONAL RENT
ADDITIONAL RENT
4.1 General Terms. Tenant acknowledges and agrees that Landlord is delegating, or has delegated, to the Association certain Common Area obligations (including relating to the Tenant's Parking Areas and the Court and Bike Areas) relating to the CC&Rs and/or any Future CC&Rs. In addition to paying the Base Rent specified in Article 3 of this Lease and the Premises Expenses, Tenant shall pay Tenant's Share of the annual CAM Expenses for each Expense Year (as those terms are defined in Section 4.2 below) directly to the Association in accordance with Section 4.3 below. Such payments by Tenant to the Association, together with any and all other amounts payable by Tenant to Landlord pursuant to the TCCs of this Lease are hereinafter collectively referred to as the "Additional Rent", and the Base Rent, Premises Expenses, and the Additional Rent are herein collectively referred to as "Rent". All amounts due under this Article 4 as Additional Rent shall be payable for the same periods and in the same manner as the Base Rent. Without limitation on other obligations of Tenant which survive the expiration of the Lease Term, the obligations of Tenant to pay the Additional Rent provided for in this Article 4 shall survive the expiration of the Lease Term.
7 | ||
4.2 Definitions of Key Terms Relating to CAM Expenses. As used in this Article 4, the following terms shall have the meanings hereinafter set forth:
4.2.1 "Expense Year" shall mean each calendar year in which any portion of the Lease Term falls, through and including the calendar year in which the Lease Term expires.
4.2.2 "CAM Expenses" shall mean all expenses, costs and amounts of every kind and nature which the Association pays or accrues, or is required to pay or accrue, or which the Premises are otherwise responsible for, during any Expense Year because of or in connection with the use, management, maintenance, security, repair, replacement, restoration and/or operation of the Common Areas (i.e., and not related specifically to the Premises, which expenses are the sole and exclusive responsibility of Tenant to pay directly as Premises Expenses as provided above), including, without limitation, all federal, state, county, or local governmental or municipal taxes, fees, charges or other impositions of every kind and nature, whether general, special, ordinary or extraordinary, (including, without limitation, real estate taxes, general and special assessments) in connection with the Common Area (or any portion thereof), which shall be paid or accrued during any Expense Year (without regard to any different fiscal year used by such governmental or municipal authority) because of or in connection with the ownership, leasing and operation of the Common Area (or any portion thereof); provided, however, all Excluded CAM Expenses shall be excluded from the definition and calculation of CAM Expenses.
4.2.3 "Tenant's Share" shall mean a fraction, expressed as a percentage, the numerator of which shall be the square feet of the space from time to time included in the Premises and the denominator of which shall be the square footage of the Project, consistently applied. If the square footage of the Project increases, then Tenant's Share shall be reduced accordingly. As of the Lease Commencement Date, Tenant's share shall be the percentage set forth in Section 6 of the Summary.
4.2.4 "Excluded CAM Expenses" means the following, which shall be excluded from CAM Expenses:
4.2.4.1 costs incurred in connection with the initial development or improvement of the Project;
4.2.4.2 the cost of capital improvements other than capital improvements that are (a) performed primarily to reduce current or future operating costs, (b) required to comply with any Applicable Laws that are enacted after the date of this Lease, or (c) for repair or replacement of any equipment or improvements needed to operate and/or maintain the Common Areas and/or the Project at the same quality levels as prior to the repair or replacement; provided, however, that any such permitted capital expenditure shall be amortized over its useful life as reasonably determined by the Association and only the amortized portion shall be included in CAM Expenses for such year;
4.2.4.3 any charge for depreciation of the Project or equipment and any interest or other financing charge;
4.2.4.4 debt service related to mortgages, deeds of trust or similar instruments encumbering the Project, or points, prepayment penalties or refinancing costs for such indebtedness;
4.2.4.5 expenses incurred in connection with the marketing, negotiation, execution or enforcement of leases, including, without limitation, brokerage commissions, attorneys' fees, advertising or promotional expenses or rent concessions, or expenses incurred in the relocation or movement of any tenant in the Project, or the preparation of any leased space or other tenant improvement work that any owner performs for any tenant or prospective tenant of the Project;
4.2.4.6 items for which the Association is otherwise reimbursed or entitled to be reimbursed, including, without limitation, by insurance or condemnation proceeds;
4.2.4.7 any management fee, whether paid to the Association or an outside managing agent, to the extent in excess of three percent (3%) of the actual amount of gross revenues for the Project;
8 | ||
4.2.4.8 expenses resulting from the violation of any Applicable Laws by the Association, the Association's employees, agents or contractors or other tenants of the Project;
4.2.4.9 penalties or interest for late payment by the Association;
4.2.4.10 the Association's income, franchise, capital stock, inheritance, estate, gift, sales, capital levy, excess profits, transfer, revenue or other taxes, assessments or charges imposed on or measured by gross income or the Association's general corporate overhead, or leasehold taxes on other tenants' personal property;
4.2.4.11 to the extent of such excess, any expense paid to an affiliate of the Association that is in excess of the amount that would be paid in the absence of such relationship;
4.2.4.12 expenses incurred by the Association for repairs or other work to the Common Areas caused by (a) the failure of the Project to comply as of the date of this Lease with any Applicable Laws existing as of the date of this Lease, (b) the exercise of the right of eminent domain, or (c) fire, windstorm or other insured casualty, or any uninsured or under-insured casualty;
4.2.4.13 expenses incurred by the Association as a result of the presence of Hazardous Materials in, on, or under the Project;
4.2.4.14 expenses in connection with services or other benefits provided on an ongoing basis to other Project tenants that are not available to Tenant;
4.2.4.15 costs incurred by the Association as a result of (a) the negligence or willful misconduct of Landlord or Landlord's employees, agents or contractors, or (b) the breach by Landlord of any lease in the Project;
4.2.4.16 costs for which the Association is entitled to bill other tenants directly (other than as a part of CAM Expenses) under the provisions of such tenants' leases, or the cost of any item or service for which Tenant separately reimburses Landlord or pays third parties;
4.2.4.17 rental under any ground or underlying lease or under any lease or sublease assumed, directly or indirectly, by the Association;
4.2.4.18 charitable or political contributions or professional dues;
4.2.4.19 costs for the acquisition, leasing, maintenance or insurance of paintings, sculptures or other objects of art located in the Project;
4.2.4.20 costs (including in connection therewith all attorneys' fees and costs of settlement and judgments or payments in lieu thereof) arising from claims, disputes or potential disputes in connection with actual or potential claims, litigation or arbitration pertaining to the Association or the Project;
4.2.4.21 any additional expenses incurred by the Association for the use of any portion of the Project to accommodate events including, without limitation, shows, promotions, filming, photography, private events or parties, ceremonies or advertising;
4.2.4.22 costs of selling, syndicating or otherwise transferring the Project (or any portion thereof) or Landlord's interest in the Project (or any portion thereof), including, without limitation, brokerage commissions, appraisals, attorneys' or accountants' fees, closing costs, title insurance premiums or transfer or other similar taxes or charges;
4.2.4.23 the cost of traffic studies, environmental impact reports, transportation system management plans or reports, traffic mitigation measures or other similar matters;
4.2.4.24 auditing fees other than those incurred by Landlord in connection with the performance of its obligations under this Lease or the other leases in the Project;
4.2.4.25 rentals for items which if purchased, rather than rented, would constitute a capital improvement or equipment;
9 | ||
4.2.4.26 any improvement installed or work performed or any other cost or expense incurred by Landlord in order to comply with the requirements for obtaining or renewal of a certificate of occupancy for the Project or any space therein;
4.2.4.27 all costs associated with the operation of the business of the entity which constitutes "Landlord" including, but not limited to, the general corporate overhead and general administrative expenses of Landlord, Landlord's managing agent or affiliates or partners of Landlord or Landlord's managing agent, costs incurred by Landlord for trustee's fees, partnership and corporate organizational expenses, organizational expenses associated with the creation and operation of the entity which constitutes Landlord, and accounting and legal fees to the extent relating to Landlord's general corporate overhead and general administrative expenses;
4.2.4.28 costs incurred by the Association for trustee's fees, partnership and corporate organizational expenses, organizational expenses associated with the creation and operation of the entity which constitutes the Association;
4.2.4.29 expenses for the replacement of any item covered under any warranty;
4.2.4.30 key man and other life insurance, long-term disability insurance and health, accident and sickness insurance, except only for group plans providing reasonable benefits to persons of the grade of building manager and below who are employed and engaged in operating and managing the Building;
4.2.4.31 reserves of any kind, including but not limited to replacement reserves, and all bad debt loss, rent loss, or reserves for bad debt or rent loss; and
4.2.4.32 any costs recovered by the Association to the extent such cost recovery allows the Association to recover more than one hundred percent (100%) of CAM Expenses for any year from tenants of the Project.
4.3 Payment of CAM Expenses.
4.3.1 Estimate Statement. Landlord shall use commercially reasonable efforts to cause the Association to deliver to Tenant, by no later than the first day of April (or as soon as practicable thereafter) of each Expense Year, a statement ("Estimate Statement") estimating Tenant's Share of CAM Expenses for the current Expense Year payable by Tenant. Tenant's Share of CAM Expenses shown on the Estimate Statement shall be divided into twelve (12) equal monthly installments, and Tenant shall pay to the Association on the first (1st) day of the calendar month following the receipt of the Estimate Statement, an amount equal to one (1) monthly installment of Tenant's Share of CAM Expenses. Subsequent installments shall be paid on the first (1st) day of each and every calendar month for the balance of the calendar year and shall continue until the next calendar year's Estimate Statement is received.
4.3.2 Actual Statement. Landlord shall use commercially reasonable efforts to cause the Association to deliver to Tenant, by no later than the first (1st) day of June (or as soon as practicable thereafter) of each subsequent year following an Expense Year, a statement ("Actual Statement") which states Tenant's Share of CAM Expenses payable by Tenant for the immediately preceding Expense Year. If the Actual Statement reveals that Tenant's Share of CAM Expenses was under-stated in any Estimate Statement previously delivered to Tenant, then within thirty (30) days after delivery of the Actual Statement to Tenant, Tenant shall pay to the Association the amount of any such under-payment. Such obligation will be a continuing one which will survive the expiration or earlier termination of this Lease; provided, however, Tenant shall have no obligation to make such under-payment with respect to Actual Statements delivered more than two (2) years after the expiration or sooner termination of this Lease. If the Actual Statement reveals that Tenant's Share of CAM Expenses was over-stated in any Estimate Statement, Landlord shall use commercially reasonable efforts to request that the Association pay such amounts directly to Tenant.
4.4 Taxes and Other Charges for Which Tenant Is Directly Responsible.
4.4.1 Tenant shall be liable for and shall pay before delinquency, taxes levied against Tenant's equipment, furniture, fixtures and any other personal property located in or about
10 | ||
the Premises, and Tenant shall provide Landlord with satisfactory evidence that such taxes have been paid before delinquency.
4.4.2 In addition to the terms of Section 4.4.1 above, Tenant shall pay prior to delinquency any (i) rent tax or sales tax, service tax, transfer tax or value added tax, or any other applicable tax on the rent or services herein or otherwise respecting this Lease, (ii) taxes assessed upon or with respect to the possession, leasing, operation, management, maintenance, alteration, repair, use or occupancy by Tenant of the Premises; or (iii) taxes assessed upon this transaction or any document to which Tenant is a party creating or transferring an interest or an estate in the Premises.
4.4.3 a Tenant shall have the right to contest any increase in any taxes levied against the Premises, and Landlord shall cooperate with any reasonable request by Tenant in connection with such contest and permit Landlord's name to be used in such contest, to the extent reasonably necessary, provided that there is no threat of penalties, forfeiture or other harm to the Premises as a result of such contest and that Landlord shall have the right to approve any settlement related to such contest.
4.5 Tenant's Audit Right. Within sixty (60) days after receiving the Actual Statement, Tenant may, upon advance written notice to Landlord and the Association and during reasonable business hours, cause an audit of the Association's books and records with respect to the preceding Expense Year to determine the accuracy of the Actual Statement. Landlord shall cause the Association to make all pertinent records available for inspection that are reasonably necessary for Tenant to conduct its review. If Tenant retains an agent, at Tenant's sole cost and expense, to review the Association's records, the agent shall be an independent accountant of national standing, which is not compensated on a contingency basis and is also subject to a commercially reasonable confidentiality agreement. Within sixty (60) days after the records are made available to Tenant, Tenant shall have the right to give the Association written notice (an "Objection Notice") stating in reasonable detail any objection to the Actual Statement of CAM Expenses for that year. If Tenant provides the Association with a timely Objection Notice, the Association and Tenant shall work together in good faith to resolve any issues raised in Tenant's Objection Notice. If Tenant fails to provide the Association with a timely Objection Notice, the Actual Statement shall be deemed final and binding, and Tenant shall have no further right to audit or object to such statement. If the Association and Tenant determine that CAM Expenses for the calendar year are less than reported, Landlord shall cause the Association to pay such overpayment directly to Tenant. Likewise, if the Association and Tenant determine that CAM Expenses for the Expense Year are greater than reported, Tenant shall pay the Association the amount of any underpayment within thirty (30) days. If such audit proves that Tenant's Share of CAM Expenses set forth in the Actual Statement were overstated by more than five percent (5%), then the cost of such audit shall be paid for by the Association. Landlord shall cause the Association to maintain records of the CAM Expenses for the three (3) year period following each Actual Statement.
ARTICLE 5
USE OF PREMISES
USE OF PREMISES
5.1 Permitted Use. Tenant shall use the Premises solely for the Permitted Use set forth in Section 7 of the Summary and Tenant shall not use or permit the Premises or the Project to be used for any other purpose or purposes whatsoever without the prior written consent of Landlord, which may be withheld in Landlord's sole but reasonable discretion.
5.2 Prohibited Uses. The uses prohibited under this Lease shall include, without limitation, use of the Premises or a portion thereof for (i) offices of any agency or bureau of the United States or any state or political subdivision thereof; (ii) offices or agencies of any foreign governmental or political subdivision thereof; (iii) offices of any bank, healthcare professionals or service organization; (iv) schools or other training facilities which are not ancillary to corporate, executive or professional research and development use; or (v) communications firms such as radio and/or television stations. Tenant further covenants and agrees that Tenant shall not use, or suffer or permit any person or persons to use, the Premises or any part thereof for any use or purpose contrary to the provisions of the "Rules and Regulations" set forth in Exhibit C, attached hereto, or in violation of the laws of the United States of America, the State of California, or the ordinances, regulations or requirements of the local municipal or county governing body or other lawful
11 | ||
authorities having jurisdiction over the Project) including, without limitation, any such laws, ordinances, regulations or requirements relating to hazardous materials or substances, as those terms are defined by applicable laws now or hereafter in effect; provided, however, Landlord shall not enforce, change or modify the Rules and Regulations in a discriminatory manner and Landlord agrees that the Rules and Regulations shall not be unreasonably modified or enforced in a manner which will unreasonably interfere with the normal and customary conduct of Tenant's business. Tenant shall not do or permit anything to be done in or about the Premises which will in any way damage the reputation of the Project or materially obstruct or interfere with the rights of other tenants or occupants of the Project, or injure them or use or allow the Premises to be used for any unlawful purpose, nor shall Tenant cause, maintain or permit any nuisance or adverse health or life safety issue in, on or about the Premises.
5.3 CC&Rs. To the extent not inconsistent with the express terms and conditions of this Lease, Tenant shall comply in all material respects with all recorded covenants, conditions, and restrictions now or hereafter affecting the Project, including, without limitation (i) that certain Master Declaration of Covenants, Conditions, Restrictions and Reservation of Easements for Great Park Neighborhoods (SOBARR and Potential Future Neighborhoods), dated March 10, 2015 and recorded in the Official Records on March 10, 2015 as Document No. 2015000121147 (as amended and as may be amended from time to time, the "Master CC&Rs"), (ii) that certain Declaration of Development Covenants, Conditions and Restrictions and Reservation of Easements (R&D Corporate Campus), dated March 15, 2015 and recorded in the Official Records as of March 15, 2015 as Document No. 2015000123209 (the "Development CC&Rs"), and (iii) that certain Amended and Restated Declaration of Covenants, Conditions, Restrictions and Reservation of Easements recorded in connection with Landlord's acquisition of the Project from Tenant ("Amended and Restated Declaration" and collectively with the Master CC&Rs and the Development CC&Rs, the "CC&Rs", in each case as the same may be revised, amended and replaced in accordance with this Section below). Additionally, Tenant acknowledges that the Project may be subject to future covenants, conditions, and restrictions and/or revisions, amendments and replacements to the CC&Rs (the "Future CC&Rs") which Landlord, in Landlord's reasonable discretion, deems necessary or desirable. Tenant agrees that this Lease shall be subject and subordinate to such Future CC&Rs, provided the same shall (i) not materially decrease Tenant's rights under this Lease, materially increase Tenant's obligations or liabilities under this Lease, or materially decrease Landlord's liabilities or obligations under this Lease, and (ii) be subject to Tenant's reasonable prior approval if such Future CC&Rs would be reasonably likely to have a material adverse effect on Tenant or Tenant's occupancy of the Premises, or materially increase Tenant's costs under the CC&Rs. Landlord shall have the right to require Tenant to execute and acknowledge, within fifteen (15) business days of a request by Landlord, a "Recognition of Covenants, Conditions, and Restriction", in a form substantially similar to that attached hereto as Exhibit E, agreeing to and acknowledging the CC&Rs and/or any Future CC&Rs.
ARTICLE 6
SERVICES AND UTILITIES
SERVICES AND UTILITIES
6.1 Services and Utilities. Tenant alone shall be responsible for and shall pay all electrical, water, gas, heating and air conditioning ("HVAC"), light, power, telephone, internet, Wi-Fi, sewer, sprinkler charges and any fees, charges, certifications, costs for inspections and other costs related thereto and other utilities and services used on or from the Premises (including, without limitation, janitorial and security services for the Premises), together with any taxes, penalties, surcharges or the like pertaining hereto and any maintenance charges for all utilities. The Premises shall be separately metered and if the Premises is not separately metered the Tenant shall, at its sole cost and expense, install such meters. All such utility, janitorial and security payments for the Premises shall be excluded from CAM Expenses and shall be paid directly by Tenant prior to the date on which the same are due to the utility provider, janitorial company and/or security company, as applicable. Landlord shall have no obligation to provide any such services, and any cessation thereof shall not render Landlord in default under this Lease, liable in any respect for damages or otherwise to either person or property, be construed as an eviction of Tenant, give rise to any right of abatement of Rent or relieve Tenant from fulfillment of any obligation and/or covenant in this Lease.
12 | ||
6.2 Tenant Maintained Security. Tenant hereby acknowledges that Landlord shall have no obligation to provide, or otherwise pay for, any guard service or other security measures for the benefit of the Premises, the Buildings or the Project. Tenant hereby assumes all responsibility for the protection of Tenant and its agents, employees, contractors, invitees and guests, and the property thereof, from acts of third parties, including keeping doors locked and other means of entry to the Premises closed. In accordance with the TCCs of Article 8 of this Lease, Tenant shall be allowed, at Tenant's sole cost and expense, to install its own integrated security systems for the Premises, provided that Landlord shall be granted access to such security system so that Landlord is able to exercise its access rights to the Premises provided for in this Lease.
ARTICLE 7
REPAIRS
REPAIRS
7.1 In General. During the entire Lease Term, Tenant shall, at its sole cost and expense, maintain and operate in first-class condition and operating order and keep in good repair and condition consistent with comparable buildings (of comparable age, size and quality) in the Irvine, California area ("Comparable Buildings") and in compliance with Applicable Laws, the Building Specifications, the Permit Set, the CC&Rs and any Future CC&Rs (reasonable wear and tear, casualty, and condemnation excepted), the Premises and all components thereof, including, without limitation, the structural portions of the Buildings, including, without limitation, the foundation, floor/ceiling slabs, roof, curtain wall, exterior glass and mullions, columns, beams, shafts (including elevator shafts), stairs, stairwells, elevator cab, men's and women's washrooms, Buildings' mechanical, electrical and telephone closets, and all common and public areas servicing the Buildings, landscaping and exterior Buildings' signage (collectively, "Building Structure") and the Base Building mechanical, electrical, life safety, building access, plumbing, sprinkler systems and HVAC systems (collectively, the "Building Systems"). Tenant shall, at Tenant's own expense, keep the Premises, including all improvements, fixtures and furnishings therein, and the floors of the Buildings, in good order, repair and condition and in compliance with Applicable Laws and the Permit Set at all times during the Lease Term (reasonable wear and tear, casualty, and condemnation excepted), including, without limitation, making any necessary repairs and replacements to ensure such compliance at all times. In addition, Tenant shall, at Tenant's own expense, and within any reasonable period of time, promptly and adequately repair all damage to the Premises and replace or repair all damaged, broken, or worn fixtures and appurtenances (including the Building Structure and the Building Systems); provided, however, that if Tenant fails to make such repairs, Landlord may, after written notice to Tenant and Tenant's failure to repair within ten (10) business days thereafter, but need not nor have any obligation to, make such repairs and replacements, and Tenant shall pay Landlord the reasonable cost thereof upon being billed for same. Tenant shall keep accurate books and records in connection with its repair and maintenance of the Building Systems pursuant to the terms hereof, and shall furnish copies of same to Landlord upon request. Subject to Article 27 below, Landlord may, but shall not be required to, enter the Premises at all reasonable times to make such repairs, alterations, improvements or additions to the Premises as Landlord shall desire or deem necessary or as Landlord may be required to do by governmental or quasi-governmental authority or court order or decree; provided, however, except for (i) emergencies, or (ii) repairs, alterations, improvements or additions required by governmental or quasi-governmental authorities or court order or decree, any such entry into the Premises by Landlord shall be performed in a manner so as not to materially interfere with Tenant's use of, or access to, the Premises; provided, that, with respect to item (ii) above, Landlord shall use commercially reasonable efforts to not materially interfere with Tenant's use of, or access to, the Premises.
7.2 No Landlord Premises Obligations. Landlord shall not be required to make any structural or non-structural improvements, replacements, modifications or repairs of any kind or character to the Premises (including, without limitation, the Building Structure and the Building Systems) during the Lease Term, except to the extent caused by the gross negligence or willful misconduct of Landlord or the Landlord Parties. Tenant acknowledges and agrees that: (i) Landlord has no obligation whatsoever to perform any modification, alteration or improvements to the Premises; (ii) Tenant further waives any claims against Landlord for any patent and/or latent defects in the Premises; and (iii) any and all capital repairs, replacements and/or improvements to the Premises and costs related thereto are the sole responsibility and obligation of Tenant.
13 | ||
7.3 Common Area Obligations. As part of CAM Expenses, Landlord shall use commercially reasonable efforts to cause the Association to keep the Common Areas (including, without limitation, Tenant's Parking Areas and the Court and Bike Areas), as the same may exist from time to time, in good condition, repair and operating order.
ARTICLE 8
ADDITIONS AND ALTERATIONS
ADDITIONS AND ALTERATIONS
8.1 Alterations. Tenant may not make any improvements, alterations, additions or changes to the Premises or any mechanical, plumbing or HVAC facilities or systems pertaining to the Premises (collectively, the "Alterations") without first procuring the prior written consent of Landlord to such Alterations, which consent shall be requested by Tenant not less than thirty (30) business days prior to the commencement thereof, and which consent shall not be unreasonably withheld by Landlord, provided it shall be deemed reasonable for Landlord to withhold its consent to any Alteration which adversely affects the value, exterior appearance, structural portions or the systems or equipment of either Building. Notwithstanding the foregoing, Tenant shall be permitted to make Alterations following ten (10) business days' notice to Landlord, but without Landlord's prior consent, to the extent that such Alterations are performed in a first-class manner materially consistent with the Comparable Buildings and in compliance with the CC&Rs and any Future CC&Rs and do not (i) adversely affect the systems and equipment of the Buildings, exterior appearance of the Buildings, or structural aspects of the Buildings, (ii) adversely affect the value of the Premises or Buildings, (iii) reduce the usable or rentable square footage of the Buildings, and (iv) cost in excess of Two Hundred Fifty Thousand Dollars ($250,000.00) (the "Cosmetic Alterations"). The initial construction of the Premises and completion of the Buildings shall be governed by the terms of Article 21 and not the terms of this Article 8.
8.2 Manner of Construction. Landlord may impose, as a condition to any and all Alterations or repairs of the Premises or about the Premises, such requirements as Landlord in its reasonable discretion may deem desirable, including, but not limited to, the requirement that Tenant utilize for such purposes only contractors reasonably approved by Landlord, and the requirement that upon Landlord's timely request (as more particularly set forth in Section 8.5, below), Tenant shall, at Tenant's expense, remove such Alterations upon the expiration or any early termination of the Lease Term and return the affected portion of the Premises to a building standard tenant improved condition as reasonably determined by Landlord; provided, however, that Tenant shall only be required to remove non-general office use Alterations, and only to the extent Landlord provides Tenant with notice of such removal obligation at the time its consent is given (i.e., as more particularly set forth in Section 8.5 below). Tenant shall construct such Alterations and perform such repairs in a good and workmanlike manner, in conformance with any and all applicable federal, state, county or municipal laws, rules and regulations and pursuant to a valid building permit (if applicable), issued by the City of Irvine (the "City"), all in conformance with Landlord's reasonable, written construction rules and regulations. In the event Tenant performs any Alterations in the Premises which require or give rise to governmentally required changes to the "Base Building", as that term is defined below, then Tenant shall, at Tenant's expense, make such changes to the Base Building. The "Base Building" shall include the structural portions of either Building, and the public restrooms, elevators, exit stairwells and the systems and equipment located in the internal core of either Building. In performing the work of any such Alterations, Tenant shall use diligent efforts to have the work performed in such manner so as not to obstruct access to the Project or any portion thereof, by any other tenant of the Project, and so as not to obstruct the business of Landlord or other tenants or owners in the Project. In addition to Tenant's obligations under Article 9 of this Lease, upon completion of any Alterations, Tenant agrees to cause a Notice of Completion to be recorded in the office of the Recorder of Orange County in accordance with Section 3093 of the Civil Code of the State of California or any successor statute, and Tenant shall deliver to Landlord a reproducible copy of the "as-built" drawings of the Alterations, to the extent applicable, as well as all permits, approvals and other documents issued by any governmental agency in connection with the Alterations.
8.3 Payment for Improvements. With respect to payments to be made directly to contractors, Tenant shall (i) comply with Landlord's reasonable requirements for periodic and final lien releases and waivers in connection with Tenant's payment for work to contractors, and
14 | ||
(ii) request that contractors comply with Landlord's standard contractor's rules and regulations, including any insurance required by Landlord.
8.4 Intentionally Omitted.
8.5 Landlord's Property. Landlord and Tenant hereby acknowledge and agree that all Alterations, improvements, and/or appurtenances which may be permanently installed in or about the Premises, from time to time, shall be at the sole cost of Tenant and shall be and become part of the Premises and the property of Landlord; provided, however, that notwithstanding the foregoing, Tenant may remove any Alterations, furniture, fixtures and/or equipment (regardless of whether the same is built-in or free standing) (which removal items shall include, but not be limited to, any of Tenant's movable furniture, furnishings, trade fixtures and equipment at the Premises (collectively, "Tenant's Property"), provided Tenant repairs any damage to the Premises caused by such removal and returns the affected portion of the Premises to a condition consistent with the Building Specifications (as hereinafter defined). Furthermore, Landlord may, by written notice to Tenant (provided such notice is given to Tenant at the time of Landlord's consent to the subject Alterations), require Tenant, at Tenant's expense, upon the expiration or sooner termination of this Lease, to (i) remove any non-general office use Alterations in the Premises, and (ii) return the affected portion of the Premises to a condition consistent with the Building Specifications.
ARTICLE 9
COVENANT AGAINST LIENS
COVENANT AGAINST LIENS
9.1 Covenant Against Liens. Tenant shall keep the Project and Premises free from any liens or encumbrances arising out of the work performed, materials furnished or obligations incurred by or on behalf of Tenant, and shall protect, defend, indemnify and hold Landlord and any Landlord Mortgagee harmless from and against any claims, liabilities, judgments or costs (including, without limitation, reasonable attorneys' fees and costs) arising out of same or in connection therewith. Tenant shall give Landlord notice at least twenty (20) days prior to the commencement of any such work on the Premises (or such additional time as may be necessary under Applicable Laws) to afford Landlord the opportunity of posting and recording appropriate notices of non-responsibility. Tenant shall remove any such lien or encumbrance by bond or otherwise within thirty (30) days after notice by Landlord, and if Tenant shall fail to do so, Landlord may pay the amount necessary to remove such lien or encumbrance, without being responsible for investigating the validity thereof. The amount so paid shall be deemed Additional Rent under this Lease payable upon demand, without limitation as to other remedies available to Landlord under this Lease. Nothing contained in this Lease shall authorize Tenant to do any act which shall subject Landlord's title to the Premises or Landlord's interest in this Lease to any liens or encumbrances whether claimed by operation of law or express or implied contract. Any claim to a lien or encumbrance upon the Premises or any portion thereof arising in connection with any such work or respecting the Premises not performed by or at the request of Landlord shall be null and void, or at Landlord's option shall attach only against Tenant's interest in the Premises and shall in all respects be subordinate to Landlord's title to the Premises.
ARTICLE 10
INSURANCE
INSURANCE
10.1 Indemnification and Waiver. Except to the extent caused by the gross negligence or willful misconduct of Landlord or any of the Landlord Parties, Tenant hereby assumes all risk of damage to property or injury to persons in, upon or about the Premises from any cause whatsoever and agrees that Landlord, its partners, members, subpartners or other equity holders and their respective officers, agents, servants, employees, and independent contractors, the Association, and any Landlord Mortgagee (collectively, "Landlord Parties") shall not be liable for, and are hereby released from any responsibility for, any damage either to person or property or resulting from the loss of use thereof, which damage is sustained by Tenant or by other persons claiming through Tenant. Tenant shall indemnify, defend, protect, and hold harmless the Landlord Parties from any and all loss, cost, damage, expense and liability (including, without limitation, court costs and reasonable attorneys' fees) incurred in connection with or arising from: (a) the use or occupancy of the Premises or Common Areas by Tenant or any person claiming under Tenant; (b) any activity, work, or thing done by Tenant in or about the Premises or Common Areas; (c) any negligence or willful misconduct of Tenant or any person claiming under Tenant, or the contractors, agents,
15 | ||
employees, invitees, or visitors of Tenant or any such person; (d) any breach, violation, or non-performance by Tenant or any person claiming under Tenant or the employees, agents, contractors, invitees, or visitors of Tenant or any such person of any term, covenant, or provision of this Lease or any Applicable Law relating to Tenant's use or occupancy of the Premises; (e) any injury or damage to the person, property, or business of Tenant, its employees, agents, contractors, invitees, visitors, or any other person entering upon the Premises or Common Areas under the express or implied invitation of Tenant; or (f) the placement of any personal property or other items within the Premises or Common Areas; provided, that the foregoing indemnity shall not apply to the extent caused by the gross negligence or willful misconduct of Landlord or any of the Landlord Parties. Subject to Tenant's indemnity and the waiver of subrogation provided below, Landlord shall indemnify, defend, protect, and hold harmless Tenant, its partners, and their respective officers, agents, servants, employees, and independent contractors (collectively, "Tenant Parties") from any and all loss, cost, damage, expense and liability (including, without limitation, court costs and reasonable attorneys' fees) arising from the gross negligence or willful misconduct of Landlord or the Landlord Parties either prior to or during the Lease Term, and/or as a result of Landlord's breach of this Lease, except to the extent caused by the negligence or willful misconduct of Tenant or the Tenant Parties. Further, Tenant's agreement to indemnify Landlord, and Landlord's agreement to indemnify Tenant, in either case pursuant to this Section 10.1 is not intended and shall not relieve any insurance carrier of its obligations under policies required to be carried pursuant to the provisions of this Lease, to the extent such policies cover the matters subject to the parties' indemnification obligations; nor shall they supersede any inconsistent agreement of the parties set forth in any other provision of this Lease. The provisions of this Section 10.1 shall survive the expiration or sooner termination of this Lease with respect to any claims or liability arising in connection with any event occurring prior to such expiration or termination.
10.2 Tenant's Compliance With Landlord's Fire and Casualty Insurance. If Tenant's conduct or use of the Premises is the cause of any increase in the premium for Landlord's insurance policies then Tenant shall reimburse Landlord for any such increase. Tenant, at Tenant's expense, shall comply in all material respects with all rules, orders, regulations or requirements of the American Insurance Association (formerly the National Board of Fire Underwriters) and with any similar body with respect to the Premises.
10.3 Tenant's Insurance. Tenant shall maintain the following coverages in the following amounts ("Tenant's Insurance"). Such policies shall be for a term of at least one (1) year, or the length of the remaining term of this Lease, whichever is less.
10.3.1 Commercial General Liability Insurance, including Broad Form contractual liability covering the insured against claims of bodily injury, personal injury and property damage (including loss of use thereof) based upon or arising out of Tenant's operations, occupancy or maintenance of the Premises and all areas appurtenant thereto. Such insurance shall be written on an "occurrence" basis. Landlord and any other party the Landlord so specifies that has a material financial interest in the Premises, including Landlord's managing agent, ground lessor and/or any Landlord Mortgagee, if any, shall be named as additional insureds using Insurance Service Organization's form CG2011 or Acord 25, as applicable, or a comparable form approved by Landlord. Tenant shall provide an endorsement or policy excerpt showing that Tenant's coverage is primary and any insurance carried by Landlord shall be excess and non-contributing. The Commercial General Liability Insurance carried by Tenant shall not exclude damage caused by heat, smoke or fumes from a hostile fire. The policy shall not contain any intra-insured exclusions as between insured persons or organizations. This policy shall include coverage for all liabilities assumed under this Lease as an insured contract for the performance of all of Tenant's indemnity obligations under this Lease. The limits of said insurance shall not, however, limit the liability of Tenant nor relieve Tenant of any obligation hereunder. Limits of liability insurance shall not be less than the following; provided, however, such limits may be achieved through the use of an Umbrella/Excess Policy:
16 | ||
Bodily Injury and Property Damage Liability | $10,000,000 each occurrence |
Personal Injury and Advertising Liability | $10,000,000 each occurrence |
Tenant Legal Liability/Damage to Rented Premises Liability | $2,000,000.00 |
10.3.2 Property Insurance covering (i) all office furniture, personal property, business and trade fixtures, office equipment, free-standing cabinet work, movable partitions, merchandise and all other items of Tenant's business personal property on the Premises installed by, for, or at the expense of Tenant, (ii) the Premises, including, without limitation, the "Improvements", as that term is defined in the Building Specifications, and any other improvements which exist in the Premises as of the Lease Commencement Date, and (iii) all Alterations performed in the Premises. Such insurance shall be written on a Special Form basis, for the full replacement cost value (subject to reasonable deductible amounts), without deduction for depreciation of the covered items and in amounts that meet any co-insurance clauses of the policies of insurance, shall name Landlord and any other party the Landlord so specifies that has a material financial interest in the Premises, including Landlord's managing agent, ground lessor and/or any Landlord Mortgagee, if any, as loss payees, and shall include coverage for (a) all perils included in the CP 10 30 04 02 Coverage Special Form, (b) water damage from any cause whatsoever, including, but not limited to, backup or overflow from sprinkler leakage, bursting, leaking or stoppage of any pipes, explosion, and backup of sewers and drainage, (c) terrorism (to the extent such terrorism insurance is available as a result of the Terrorism Risk Insurance Act of 2002 (Pub. L. 107-297, 116 Stat. 2322), the Terrorism Risk Insurance Program Reauthorization Act of 2005 (Pub. L. 109-144), and the Terrorism Risk Insurance Program Reauthorization Act of 2007 (Pub. L. 110-160, 121 Stat. 183), any successor statute or regulation, or is otherwise available at commercially reasonable rates), and (d) the risks of earthquakes.
10.3.2.1 Adjacent Premises. Tenant shall pay as part of the CAM Expenses for any increase in the premiums for the property insurance of the Common Areas to the extent said increase is caused by Tenant's acts, omissions, use or occupancy of the Premises.
10.3.2.2 Tenant's Self Insurance. In lieu of the insurances described in Sections 10.3 through and including 10.5, and at Tenant's sole and absolute discretion, Tenant's insurance coverages as required under this Lease may be satisfied through a "self-insurance" structure, so long as Tenant (together with its affiliates) maintains a financial profile whereby their cumulative market capitalization is no less than Ten Billion Dollars ($10,000,000,000.00). Tenant shall be under no obligation to disclose or provide any evidence of, or information related to, the structure and limits of its elected self-insured or insured exposures. Tenant shall notify Landlord if Tenant elects to discontinue its self-insurance program.
10.3.2.3 No Representation of Adequate Coverage. Landlord makes no representation that the limits or forms of coverage of insurance specified herein are adequate to cover Tenant's property, business operations or obligations under this Lease.
10.3.3 Business Income Interruption for one year (1) plus Extra Expense insurance in such amounts as will reimburse Tenant for actual direct or indirect loss of earnings attributable to the risks outlined in Section 10.3.2 above.
10.3.4 Workers' Compensation or other similar insurance pursuant to all applicable state and local statutes and regulations, and Employer's Liability with minimum limits of not less than One Million Dollars ($1,000,000.00) each accident/employee/disease.
10.3.5 Commercial Automobile Liability Insurance covering all Owned (if any), Hired, or Non-owned vehicles (i.e., any and all vehicles used or operated by Tenant) with limits not less than One Million Dollars ($1,000,000.00) combined single limit for bodily injury and property damage.
17 | ||
10.3.6 Property Insurance Subrogation. Landlord and Tenant intend that their respective property loss risks shall be borne by insurance carriers to the extent above provided (and, in the case of Tenant, by an insurance carrier satisfying the requirements of Section 10.4(i) below), and Landlord and Tenant hereby agree to look solely to, and seek recovery only from, their respective insurance carriers in the event of a property loss to the extent that such coverage is agreed to be provided hereunder. The parties each hereby waive all rights and claims against each other for such losses, and waive all rights of subrogation of their respective insurers. Landlord and Tenant hereby represent and warrant that their respective "all risk" property insurance policies include a waiver of (i) subrogation by the insurers, and (ii) all rights based upon an assignment from its insured, against Landlord and/or any of the Landlord Parties or Tenant and/or any of the Tenant Parties (as the case may be) in connection with any property loss risk thereby insured against. Tenant will cause all other occupants of the Premises claiming by, under, or through Tenant to execute and deliver to Landlord a waiver of claims similar to the waiver in this Section 10.3.6 and to obtain such waiver of subrogation rights endorsements. If either party hereto fails to maintain the waivers set forth in items (i) and (ii) above, the party not maintaining the requisite waivers shall indemnify, defend, protect, and hold harmless the other party for, from and against any and all claims, losses, costs, damages, expenses and liabilities (including, without limitation, court costs and reasonable attorneys' fees) arising out of, resulting from, or relating to, such failure.
10.4 Form of Policies. The minimum limits of policies of insurance required of Tenant under this Lease shall in no event limit the liability of Tenant under this Lease. Such insurance shall (i) be issued by an insurance company having a rating of "A" or higher from Moody's Investors Service, Inc. or Standard & Poor's Rating Service or their respective successors, or which is otherwise acceptable to Landlord and licensed to do business in the State of California, (ii) be in form and content reasonably acceptable to Landlord and complying with the requirements of Section 10.3 (including, Sections 10.3.1 through 10.3.6), (iii) Tenant shall not do or permit to be done anything which invalidates the required insurance policies, and (iv) provide that said insurance shall not be canceled (including, without limitation, for nonpayment of premium) or coverage changed (including, without limitation, increase in deductible, self-insurance or co-insurance) unless thirty (30) days' prior written notice shall have been given to Landlord and any Landlord Mortgagee, the identity of whom has been provided to Tenant in writing. Tenant shall deliver full copies of said policy or policies and applicable endorsements which meet the requirements of this Article 10 to Landlord on or before (I) the earlier to occur of: (x) the Lease Commencement Date, and (y) the date Tenant and/or its employees, contractors and/or agents first enter the Premises for occupancy, construction of improvements, alterations, or any other move-in activities, and (II) five (5) business days after the renewal of such policies, but in any event no less frequently than annually. In the event Tenant shall fail to procure such insurance, or to deliver such policies and applicable endorsements, Landlord may, at its option, after written notice to Tenant and Tenant's failure to obtain such insurance within five (5) days thereafter, procure such policies for the account of Tenant and the sole benefit of Landlord, and the cost thereof shall be paid to Landlord after delivery to Tenant of bills therefor.
10.5 Additional Insurance Obligations. Tenant shall carry and maintain during the entire Lease Term, at Tenant's sole cost and expense, increased amounts of the insurance required to be carried by Tenant pursuant to this Article 10 and such other reasonable types of insurance coverage and in such reasonable amounts covering the Premises and Tenant's operations therein, as may be reasonably requested by Landlord or any Landlord Mortgagee, but in no event shall such increased amounts of insurance or such other reasonable types of insurance be materially in excess of that generally required by landlords of Comparable Buildings.
10.6 Third-Party Contractors. Upon notification by Landlord, Tenant shall request Third-Party Contractors to obtain and deliver to Landlord certificates of insurance and applicable endorsements at least five (5) business days prior to the commencement of work in or about the Premises by any third-party contractor (a "Third-Party Contractor"). All such insurance shall (a) name Landlord as an additional insured under such party's liability policies as required by Section 10.3.1 above and this Section 10.6, (b) provide a waiver of subrogation in favor of Landlord under such Third-Party Contractor's commercial general liability insurance, (c) be primary and any insurance carried by Landlord shall be excess and non-contributing, and (d) comply with Landlord's minimum insurance requirements as the same relate to Commercial General Liability Insurance, Workers' Compensation or other similar insurance, and Commercial Automobile Liability
18 | ||
Insurance; provided, however, with respect to any Commercial General Liability Insurance policy covering liability for bodily injury and property damage required to be maintained by a Third-Party Contractor (the "Third-Party CGL"), such insurance shall be in the amount of not less than Two Million Dollars ($2,000,000.00) per occurrence, and aggregate limits shall not be less than Two Million Dollars ($2,000,000.00) annual aggregate to the extent such Third-Party Contractor is either (a) an electrical, mechanical, plumbing, or sprinkler system contractor, or (b) a contractor engaged in the performance of Alterations, repair or maintenance which affects the Building Systems (to extent permitted under this Lease); provided, further however, any Third-Party Contractor which is not identified in the foregoing items (a) or (b) shall be entitled to carry Third-Party CGL in the amount of not less than One Million Dollars ($1,000,000.00) per occurrence, and aggregate limits shall not be less than One Million Dollars ($1,000,000.00) annual aggregate. Notwithstanding anything in this Lease to the contrary, the requirements of this Section 10.6 shall only apply to Alterations performed after the completion of Tenant's Building Work.
10.7 No Consequential Damages. Notwithstanding any provision to the contrary contained in this Lease, nothing in this Lease shall impose any obligations on Tenant or Landlord to be responsible or liable for, and each hereby releases the other from all liability for, consequential or special damages other than as set forth in Article 16.
10.8 Landlord's Insurance. Landlord shall have the right (but not the obligation) to maintain property insurance, for some or all of the Premises' replacement value, as Landlord may elect, covering such risks as Landlord so chooses ("Landlord's Property Insurance"). Any Landlord's Property Insurance policy carried by Landlord shall be for the sole benefit of Landlord and under Landlord's sole control, and Tenant shall have no right or claim to any proceeds thereof or any other rights thereunder. Notwithstanding the foregoing provisions of this Section 10.8, Landlord shall obtain and maintain the insurance as may be required of owners of the Premises under the CC&Rs and Future CC&Rs (the "CC&Rs Insurance"). Tenant shall pay the cost of the CC&Rs Insurance, and any Landlord's Property Insurance Landlord shall elect to carry, within thirty (30) days after receipt of an invoice from Landlord therefor, as Additional Rent.
ARTICLE 11
DAMAGE AND DESTRUCTION
DAMAGE AND DESTRUCTION
11.1 Repair of Damage to Premises by Tenant. Tenant shall promptly notify Landlord of any damage to the Premises resulting from fire or any other casualty. If the Premises shall be damaged by fire or other casualty, Tenant shall promptly and diligently, subject to all other terms of this Article 11, restore the Premises, including the Base Building, as well as the Improvements and any Alterations; provided, that if Tenant fails to make such repairs and complete the restoration within a reasonable period of time, Landlord may, after written notice to Tenant, but need not, make such repairs and complete the restoration, and Tenant shall pay Landlord the reasonable cost thereof. Such restoration shall be to substantially the same condition prior to the casualty, except for modifications required by zoning and building codes and other Applicable Laws, the CC&Rs, any Future CC&Rs, or by any Landlord Mortgagee. Any insurance proceeds received by Landlord as a result of the casualty shall be retained by Landlord, but Landlord shall reasonably make such proceeds available to Tenant in connection with its repair and restoration obligations under this Section 11.1, subject to reasonable disbursement conditions and any other conditions or consent rights of any Landlord Mortgagee. Landlord shall not be liable for any inconvenience or annoyance to Tenant or its visitors, or injury to Tenant's business resulting in any way from such damage or the Tenant's undertaking of the repair, reconstruction or restoration thereof, and there shall be no abatement of Rent or right of termination as a result of such damage or during the repair, reconstruction or restoration thereof. In connection with the foregoing, Tenant hereby waives any rights to terminate this Lease or to abate, offset, diminish or otherwise reduce Rent payable under this Lease as a result of any damage to the Premises by fire or other casualty. Landlord shall have no obligation to carry insurance of any kind on the Improvements, any Alterations or upon Tenant's Property or Tenant's other goods, furniture or furnishings located at the Premises, and Landlord shall not be obligated to repair any damage thereto or to replace the same. Tenant hereby waives, in addition to the waiver under Section 11.2, the provisions of any California law which is in conflict with the provisions of this Article 11. Notwithstanding the terms of this Section 11.1, in the event of a fire or other casualty, Tenant may elect not to rebuild and/or restore the Premises, provided Tenant continues to pay Rent under this Lease, provided, further, that (a) if Landlord does elect to
19 | ||
rebuild and/or restore the Premises pursuant to the terms of this Section 11.1, upon completion of such restoration, Tenant shall reoccupy the Premises (subject to Tenant's rights to assign and sublet under Article 14 hereof), and (b) if Landlord does not elect to rebuild and/or restore the Premises pursuant to the terms of this Section 11.1, Landlord may elect to terminate the Lease (effective as of the date of such fire or other casualty), in its sole and absolute discretion.
11.2 Waiver of Statutory Provisions. The provisions of this Lease, including this Article 11, constitute an express agreement between Landlord and Tenant with respect to any and all damage to, or destruction of, all or any part of the Premises or the Project, and any statute or regulation of the State of California, including, without limitation, Sections 1932(2) and 1933(4) of the California Civil Code, with respect to any rights or obligations concerning damage or destruction in the absence of an express agreement between the parties, and any other statute or regulation, now or hereafter in effect, shall have no application to this Lease or any damage or destruction to all or any part of the Premises or the Project.
ARTICLE 12
NON-WAIVER
NON-WAIVER
No provision of this Lease shall be deemed waived by either party hereto unless expressly waived in a writing signed thereby. The waiver by either party hereto of any breach of any term, covenant or condition herein contained shall not be deemed to be a waiver of any subsequent breach of same or any other term, covenant or condition herein contained. The subsequent acceptance of Rent hereunder by Landlord shall not be deemed to be a waiver of any preceding breach by Tenant of any term, covenant or condition of this Lease, other than the failure of Tenant to pay the particular Rent so accepted, regardless of Landlord's knowledge of such preceding breach at the time of acceptance of such Rent. No acceptance of a lesser amount than the Rent herein stipulated shall be deemed a waiver of Landlord's right to receive the full amount due, nor shall any endorsement or statement on any check or payment or any letter accompanying such check or payment be deemed an accord and satisfaction, and Landlord may accept such check or payment without prejudice to Landlord's right to recover the full amount due. No receipt of monies by Landlord from Tenant after the termination of this Lease shall in any way alter the length of the Lease Term or of Tenant's right of possession hereunder, or after the giving of any notice shall reinstate, continue or extend the Lease Term or affect any notice given Tenant prior to the receipt of such monies, it being agreed that after the service of notice or the commencement of a suit, or after final judgment for possession of the Premises, Landlord may receive and collect any Rent due, and the payment of said Rent shall not waive or affect said notice, suit or judgment.
ARTICLE 13
CONDEMNATION
CONDEMNATION
If any portion of the Premises shall be taken by power of eminent domain or condemned by any competent authority for any public or quasi-public use or purpose, or if any adjacent property or street shall be so taken or condemned, or reconfigured or vacated by such authority in such manner as to require the use, reconstruction or remodeling of any portion of the Premises, or if Landlord shall grant a deed or other instrument in lieu of such taking by eminent domain or condemnation, Tenant shall promptly and diligently, subject to all other terms of this Article 13, restore the Premises if necessary, including the Base Building, as well as the Improvements; provided, that if Tenant fails to complete the restoration within a reasonable period of time, Landlord may, after written notice to Tenant, but need not, complete the restoration, and Tenant shall pay Landlord the reasonable cost thereof. Such restoration shall be to substantially the same condition prior to the casualty (taking into account the portion of the Premises taken), except for modifications required by zoning and building codes and Applicable Laws, the CC&Rs, any Future CC&Rs, or by any Landlord Mortgagee. Landlord shall not be liable for any inconvenience or annoyance to Tenant or its visitors, or injury to Tenant's business resulting in any way from such taking or the Tenant's undertaking of the repair, reconstruction or restoration resulting therefrom, and there shall be no abatement of Rent or right of termination as a result of such taking or during the repair, reconstruction or restoration resulting therefrom. In connection with the foregoing, Tenant hereby waives any rights to terminate this Lease or to abate, offset, diminish or otherwise reduce Rent payable under this Lease as a result of any taking of any portion of the Premises. Tenant shall not because of such taking assert any claim against Landlord or the authority for any compensation because of such taking and Landlord shall be entitled to the entire award or payment in connection
20 | ||
therewith, except that (i) Tenant shall have the right to file any separate claim available to Tenant for any taking of Tenant's Building Work, Tenant's personal property and fixtures belonging to Tenant and removable by Tenant upon expiration of the Lease Term pursuant to the terms of this Lease, and for moving expenses, so long as such claims do not diminish the award available to Landlord, any ground lessor or any Landlord Mortgagee, and such claim is payable separately to Tenant, and (ii) Landlord shall reasonably make such award or payment available to Tenant in connection with its repair and restoration obligations under this Article 13, subject to reasonable disbursement conditions and any other conditions or consent rights of any Landlord Mortgagee. Landlord and Tenant hereby each waive any and all rights it might otherwise have pursuant to Section 1265.130 of The California Code of Civil Procedure.
ARTICLE 14
ASSIGNMENT AND SUBLETTING
ASSIGNMENT AND SUBLETTING
14.1 Transfers. Tenant shall not, without the prior written consent of Landlord, not to be unreasonably withheld, effectuate, suffer or permit any Transfer, and any Transfer without such prior written consent shall be invalid and without force and effect. "Transfer" shall mean and include, without limitation, any of the following, in each case, whether by operation of law or otherwise, whether voluntarily or involuntarily and whether directly or indirectly: (i) any sale, assignment, conveyance, encumbrance, pledge, hypothecation, or agreement or grant of an option with respect to, or other transfer of, all or any portion of this Lease or the Tenant's interest therein, (ii) the entering into of any sublease or sublicense or other agreement with respect to use and/or occupancy of the Premises, or the use or occupancy (or granting permission for any use or occupancy) by any person (other than the Tenant) of the Premises or any portion thereof or any equipment therein, and (iii) any sale, assignment, conveyance, encumbrance, pledge, hypothecation, agreement to or grant of an option with respect to, or other transfer of, the membership, shares, partnership or other beneficial interests in, or the creation of any beneficial interest in, the Tenant or any person that directly or indirectly owns the Tenant (including any assignment, transfer, conveyance, issuance or redemption of any ownership interest, or any merger, consolidation, dissolution). "Transfer" shall also include, without limitation, any other transaction or series of transactions to the same transferee or to transferees that are affiliates of each other that form part of a coordinated plan, the net substantive and/or economic effect of which is the equivalent of an assignment of this Lease, and any person to whom any Transfer is made or sought to be made is hereinafter sometimes referred to as a "Transferee". If Tenant desires Landlord's consent to any Transfer, Tenant shall notify Landlord in writing, which notice (the "Transfer Notice") shall include (i) the proposed effective date of the Transfer, which shall not be less than thirty (30) days nor more than one hundred eighty (180) days after the date of delivery of the Transfer Notice, (ii) a description of the portion of the Premises to be transferred (the "Subject Space"), (iii) all of the terms of the proposed Transfer and the consideration therefor, including calculation of the "Transfer Premium", as that term is defined in Section 14.3 below, in connection with such Transfer, the name and address of the proposed Transferee, and a copy of all existing executed and/or proposed assignment or sublease documentation pertaining to the proposed Transfer, (iv) current financial statements of the proposed Transferee certified by an officer, partner or owner thereof, and any other information reasonably required by Landlord which will enable Landlord to determine the financial responsibility, character, and reputation of the proposed Transferee, nature of such Transferee's business and proposed use of the Subject Space and (v) an executed estoppel certificate from Tenant in the form attached hereto as Exhibit D. Subject to Section 14.5 below, any Transfer made without Landlord's prior written consent shall, at Landlord's option, be null, void and of no effect, and shall, at Landlord's option, constitute a default by Tenant under this Lease. Whether or not Landlord consents to any proposed Transfer, Tenant shall pay Landlord's reasonable review and processing fees, as well as any reasonable professional fees (including, without limitation, attorneys', accountants', architects', engineers' and consultants' fees) incurred by Landlord, within thirty (30) days after written request by Landlord; provided, however, the foregoing fees shall not exceed Three Thousand Five Hundred Dollars ($3,500.00) for a Transfer in the ordinary course of business. Landlord and Tenant hereby agree that a proposed Transfer shall not be considered "in the ordinary course of business" if such particular proposed Transfer involves the review of documentation by Landlord on more than two (2) occasions.
14.2 Landlord's Consent. Landlord shall deliver written notice to Tenant of Landlord's determination to grant or withhold its consent to any proposed Transfer of the Subject Space to the
21 | ||
Transferee on the terms specified in the Transfer Notice, within fifteen (15) business days following Landlord's receipt of a complete Transfer Notice. In the event Landlord has not granted or withheld its consent to the subject Transfer within such fifteen (15) business day period, Tenant shall deliver to Landlord a second Transfer Notice, and if Landlord does not notify Tenant of its decision to consent or not to consent to the Transfer within fifteen (15) business days following its receipt of such second Transfer Notice, Landlord shall be deemed to have disapproved such Transfer. If Landlord consents to any Transfer pursuant to the terms of this Section 14.2, Tenant may within six (6) months after Landlord's consent, but not later than the expiration of said six (6)-month period, enter into such Transfer of the Premises or portion thereof, upon substantially the same terms and conditions as are set forth in the Transfer Notice furnished by Tenant to Landlord pursuant to Section 14.1 of this Lease, provided that if there are any material changes in the terms and conditions from those specified in the Transfer Notice (including any changes which would cause the proposed Transfer to be materially more favorable to the Transferee than the terms set forth in Tenant's original Transfer Notice, i.e., economic terms and fundamental non-economic terms which are more than five percent (5%) more beneficial to the Transferee than those set forth in the Transfer Notice), Tenant shall again submit the Transfer to Landlord for its approval and other action under this Article 14. Tenant hereby waives the provisions of Section 1995.310 of the California Civil Code, or any successor statute, and all other remedies, including, without limitation, any right at law or equity to terminate this Lease, on its own behalf and, to the extent permitted under all Applicable Laws, on behalf of the proposed Transferee.
14.3 Transfer Premium. If Landlord consents to a Transfer, as a condition thereto which the parties hereby agree is reasonable, Tenant shall pay to Landlord fifty percent (50%) of any "Transfer Premium", as that term is defined in this Section 14.3, received by Tenant from such Transferee. "Transfer Premium" shall mean all rent, additional rent and other consideration if and when received by Tenant in connection with the Transfer in excess of the Rent and Additional Rent payable by Tenant under this Lease during the term of the Transfer on a per rentable square foot basis if less than all of the Premises is transferred, after deducting the reasonable and documented out-of-pocket expenses incurred by Tenant for (i) any changes, alterations and improvements to the Premises in connection with the Transfer, (ii) any improvement allowance, free base rent or other economic concessions provided to the Transferee, (iii) any brokerage commissions in connection with the Transfer, (iv) any space planning, architectural or design fees or other expenses incurred in marketing such space or in connection with such Transfer, (v) any attorneys' fees incurred by Tenant in connection with the Transfer, (vi) any lease takeover costs incurred by Tenant in connection with the Transfer, (vii) any costs of advertising the space which is the subject of the Transfer, (viii) any review and processing fees paid to Landlord in connection with such Transfer, and (ix) the amortization of the fair market value of any new furniture which is included as part of the Transfer (collectively, "Subleasing Costs"). "Transfer Premium" shall also include, but not be limited to, key money, bonus money or other cash consideration paid by Transferee to Tenant in connection with such Transfer, and any payment in excess of fair market value for services rendered by Tenant to Transferee or for assets, fixtures, inventory, equipment, or furniture transferred by Tenant to Transferee in connection with such Transfer. Notwithstanding the foregoing, goodwill and any other tangible personal property associated with Tenant's business shall not be included as part of the consideration Tenant receives as a result of such sublease or assignment for purposes of calculating Landlord's share of any Transfer Premium. Tenant shall not be required to pay Transfer Premiums in connection with any Permitted Transfer.
14.4 Effect of Transfer. If Landlord consents to a Transfer, (i) the TCCs of this Lease shall in no way be deemed to have been waived or modified, (ii) such consent shall not be deemed consent to any further Transfer by either Tenant or a Transferee, (iii) Tenant shall deliver to Landlord, promptly after execution, an original executed copy of all assignment or sublease documentation pertaining to the Transfer in form reasonably acceptable to Landlord, (iv) Tenant shall furnish upon Landlord's request a complete statement, certified by an independent certified public accountant, or Tenant's chief financial officer, setting forth in detail the computation of any Transfer Premium Tenant has derived and shall derive from such Transfer, and (v) no Transfer relating to this Lease or agreement entered into with respect thereto, whether with or without Landlord's consent, shall relieve Tenant or any guarantor of the Lease from liability under this Lease, including, without limitation, in connection with the Subject Space. Landlord or its authorized representatives shall have the right at all reasonable times to audit the books, records and papers of Tenant relating to any Transfer, and shall have the right to make copies thereof, subject to Landlord executing a
22 | ||
commercially reasonable confidentiality agreement. If the Transfer Premium respecting any Transfer shall be found understated, Tenant shall, within thirty (30) days after demand, pay the deficiency, and if understated by more than five percent (5%), Tenant shall pay Landlord's reasonable costs of such audit.
14.5 Permitted Transfers. Notwithstanding anything contained in this Lease to the contrary, Tenant may, without the consent of Landlord, assign this Lease or sublease all or any portion of the Premises (herein, a "Permitted Transfer") to any affiliate of Tenant (an entity which is controlled by, controls, or is under common control with, Tenant), any person or entity that acquires all or substantially all of the assets or ownership interests of Tenant, any person or entity that acquires all or substantially all of the assets or ownership interests of any of Tenant's business divisions, or any entity resulting from a merger or consolidation with Tenant (each, a "Permitted Transferee"), provided that (a) Tenant gives Landlord notice of such assignment or sublease within thirty (30) business days thereafter, accompanied by an executed counterpart of any assignment or sublease agreement concerned (from which any financial terms may be redacted) if such an assignment or sublease agreement exists within thirty (30) days after consummation of the Permitted Transfer, and (b) such Permitted Transfer is not a subterfuge by Tenant to avoid its obligations under this Lease or otherwise effectuate any "release" by Tenant of such obligations and such Permitted Transferee shall thereafter become liable under this Lease, on a joint and several basis, with Tenant. The infusion of additional equity capital in Tenant or an initial public offering of equity securities of Tenant under the Securities Act of 1933, as amended, which results in Tenant's stock being traded on a national securities exchange, including, but not limited to, the NYSE, the NASDAQ Stock Market or the NASDAQ Small Cap Market System shall not be deemed to be an assignment requiring Landlord's consent. Any transfer, assignment, conveyance or agreement with respect to the membership, shares, partnership or other ownership or beneficial interests in, or the creation of any ownership or beneficial interest in or among the direct or indirect shareholders, partners or members of Tenant, or other corporate reorganizations or restructurings involving the direct and indirect owners of Tenant and its affiliates shall not require Landlord's prior consent. "Control", as used in this Section 14.5, shall mean (A) the ownership, directly or indirectly, of at least fifty-one percent (51%) of the voting securities of, or possession of the right to vote, in the ordinary direction of its affairs, of at least fifty-one percent (51 %) of the voting interest in, any person or entity, or (B) the power to direct or cause the direction of the management and policies of such entity.
14.6 Transferee Requirements. Notwithstanding anything herein to the contrary, in no event shall a Transferee, or the parties that control such Transferee (whether pursuant to a Permitted Transfer or otherwise) be a Prohibited Party. For purposes of this Lease, the term "Prohibited Party" shall mean (a) an individual, an estate, a trust, a corporation, a partnership, a limited liability company or any other organization or entity (whether governmental or private) (each herein a "Person") named on the list of "Specially Designated Nationals and Blocked Persons" maintained by United States Treasury Department, Office of Foreign Assets Control ("OFAC"), available at http://www.treasury.gov/resource-center/sanctions/SDNList/Pages/ default.aspx, or as otherwise published from time to time; (b) (1) an agency of the government of a country subject to a comprehensive country-wide sanctions program administered and enforced by OFAC, which list is updated from time to time (a "Sanctioned Country"), (2) an organization controlled by a Sanctioned Country, or (3) a Person resident in a Sanctioned Country, to the extent any Person described in clauses (1), (2) or (3) is the subject of a sanctions program administered by OFAC; and, (c) a Person whose property and interests in property are blocked pursuant to an Executive Order or regulations administered by OFAC consistent with the guidance issued by OFAC.
14.7 Occurrence of Default. Any Transfer hereunder shall be subordinate and subject to the provisions of this Lease, and if this Lease shall be terminated during the term of any Transfer, Landlord shall have the right to: (i) treat such Transfer as cancelled and repossess the Subject Space by any lawful means, or (ii) require that such Transferee attorn to and recognize Landlord as its landlord under any such Transfer. Such Transferee shall rely on any representation by Landlord that Tenant is in default hereunder, without any need for confirmation thereof by Tenant. Upon any assignment, the assignee shall assume in writing all obligations and covenants of Tenant thereafter to be performed or observed under this Lease. No collection or acceptance of rent by Landlord from any Transferee shall be deemed a waiver of any provision of this Article 14 or the approval of any Transferee or a release of Tenant from any obligation under this Lease, whether theretofore or thereafter accruing. In no event shall Landlord's enforcement of any provision of this Lease
23 | ||
against any Transferee be deemed a waiver of Landlord's right to enforce any term of this Lease against Tenant or any other person. If Tenant's obligations hereunder have been guaranteed, Landlord's consent to any Transfer shall not be effective unless the guarantor also consents to such Transfer.
ARTICLE 15
SURRENDER OF PREMISES; OWNERSHIP AND
REMOVAL OF TRADE FIXTURES
SURRENDER OF PREMISES; OWNERSHIP AND
REMOVAL OF TRADE FIXTURES
15.1 Surrender of Premises. The delivery of keys to the Premises to Landlord or any agent or employee of Landlord shall not constitute a surrender of the Premises or effect a termination of this Lease, whether or not the keys are thereafter retained by Landlord, and notwithstanding such delivery Tenant shall be entitled to the return of such keys at any reasonable time upon request until this Lease shall have been properly terminated. The voluntary or other surrender of this Lease by Tenant, whether accepted by Landlord or not, or a mutual termination hereof, shall not work a merger, and at the option of Landlord shall operate as an assignment to Landlord of all subleases or subtenancies affecting the Premises or terminate any or all such sublessees or subtenancies.
15.2 Removal of Tenant Property by Tenant. Upon the expiration of the Lease Term, or upon any earlier termination of this Lease, Tenant shall, subject to the provisions of this Article 15, quit and surrender possession of the Premises to Landlord in as good order and condition as when Tenant took possession and as thereafter improved by Landlord and/or Tenant, casualty, condemnation, reasonable wear and tear and repairs which are specifically made the responsibility of Landlord hereunder excepted. Upon such expiration or termination, Tenant shall, without expense to Landlord, remove or cause to be removed from the Premises all debris and rubbish, and such items of furniture, equipment, business and trade fixtures, freestanding cabinet work, movable partitions and other articles of personal property owned by Tenant or installed or placed by Tenant at its expense in the Premises, and such similar articles of any other persons claiming under Tenant, as Landlord may, in its sole discretion, require to be removed, and Tenant shall repair at its own expense all damage to the Premises resulting from such removal.
ARTICLE 16
HOLDING OVER
HOLDING OVER
If Tenant holds over after the expiration of the Lease Term with or without the express written consent of Landlord, such tenancy shall be from month-to-month only, and shall not constitute a renewal hereof or an extension for any further term, and in such case Rent shall be payable at a monthly rate equal to the product of (i) the Rent applicable during the last rental period of the Lease Term under this Lease, and (ii) a percentage equal to either (A) one hundred twenty-five percent (125%) during the first three (3) months of any such month-to-month holdover, and (B) thereafter, one hundred fifty percent (150%). Such month-to-month tenancy shall be subject to every other applicable term, covenant and agreement contained herein. Nothing contained in this Article 16 shall be construed as consent by Landlord to any holding over by Tenant, and Landlord expressly reserves the right to require Tenant to surrender possession of the Premises to Landlord as provided in this Lease upon the expiration or other termination of this Lease. The provisions of this Article 16 shall not be deemed to limit or constitute a waiver of any other rights or remedies of Landlord provided herein or at law. If Tenant holds over without Landlord's express written consent, and tenders payment of rent for any period beyond the expiration of the Lease Term by way of check (whether directly to Landlord, its agents, or to a lock box) or wire transfer, Tenant acknowledges and agrees that the cashing of such check or acceptance of such wire shall be considered inadvertent and not be construed as creating a month-to-month tenancy, provided Landlord refunds such payment to Tenant promptly upon learning that such check has been cashed or wire transfer received. Tenant acknowledges that any holding over without Landlord's express written consent may compromise or otherwise affect Landlord's ability to enter into new leases with prospective tenants regarding the Premises. Therefore, if Tenant fails to vacate and deliver the Premises upon the termination or expiration of this Lease, in addition to any other liabilities to Landlord accruing therefrom, Tenant shall protect, defend, indemnify and hold Landlord harmless from all loss, costs (including reasonable attorneys' fees) and liability resulting from such failure, including, without limiting the generality of the foregoing, any claims made by any succeeding tenant founded upon such failure to surrender and any lost profits to Landlord resulting therefrom; provided, however, upon entering into a third-party lease which affects all or any portion of the Premises, Landlord
24 | ||
shall deliver written notice (the "New Lease Notice") of such lease to Tenant, following which the terms of the foregoing indemnity shall only become effective upon the later of (i) the date that occurs sixty (60) days following the date Landlord delivers such New Lease Notice to Tenant, and (ii) the date which occurs thirty (30) days after the termination or expiration of this Lease.
ARTICLE 17
ESTOPPEL CERTIFICATES
ESTOPPEL CERTIFICATES
Within ten (10) business days following a request in writing by Landlord, Tenant shall execute, acknowledge and deliver to Landlord an estoppel certificate, which, as submitted by Landlord, shall be substantially in the form of Exhibit D, attached hereto (and/or such other commercially reasonable form as may be required by any prospective Landlord Mortgagee or purchaser of the Premises, or any portion thereof), indicating therein any exceptions thereto that may exist at that time, and shall also contain any other information reasonably requested by Landlord or any Landlord Mortgagee or prospective Landlord Mortgagee. Any such certificate may be relied upon by any prospective Landlord Mortgagee or purchaser of all or any portion of the Premises. Failure of Tenant to timely execute, acknowledge and deliver such estoppel certificate or other instruments shall constitute an acceptance of the Premises and an acknowledgment by Tenant that statements included in the estoppel certificate are true and correct, without exception.
ARTICLE 18
SUBORDINATION
SUBORDINATION
This Lease, and the Tenant's rights hereunder, shall be subject and subordinate to all present and future ground or underlying leases of the Premises and to the lien of any mortgage, trust deed or other encumbrances now or hereafter in force against the Premises or any part thereof, if any, and to all renewals, extensions, modifications, consolidations and replacements thereof, and to all advances made or hereafter to be made upon the security of such mortgages or trust deeds, unless the holders of such mortgages, trust deeds or other encumbrances (each, a "Landlord Mortgagee"), or the lessors under such ground lease or underlying leases, require in writing that this Lease be superior thereto (collectively, the "Superior Holders"); provided, however, as a condition to Tenant's agreement to subordinate this Lease, Tenant shall receive a subordination non-disturbance and attornment agreement in the then applicable lender's form, which requires such Superior Holder to accept this lease, and not to disturb tenant's possession, so long as an Event of Default has not occurred and be continuing, all in form and substance reasonably acceptable to Tenant (a "SNDA") executed by Landlord and the appropriate Superior Holder. Subject to Tenant's receipt of an SNDA, Tenant covenants and agrees in the event any proceedings are brought for the foreclosure of any such mortgage or deed in lieu thereof (or if any ground lease is terminated), to attorn, without any deductions or set-offs whatsoever, to the lienholder or purchaser or any successors thereto upon any such foreclosure sale or deed in lieu thereof (or to the ground lessor), if so requested to do so by such purchaser or lienholder or ground lessor, and to recognize such purchaser or lienholder or ground lessor as the lessor under this Lease, provided such lienholder or purchaser or ground lessor shall agree to accept this Lease and not disturb Tenant's occupancy, so long as Tenant timely pays the rent and observes and performs the TCCs of this Lease to be observed and performed by Tenant. Landlord's interest herein may be assigned as security at any time to any lienholder. Tenant shall, within five (5) business days of request by Landlord, execute such further commercially reasonable instruments or assurances as Landlord may reasonably deem necessary to evidence or confirm the subordination or superiority of this Lease to any such mortgages, trust deeds, ground leases or underlying leases, provided none of the same materially decrease Tenant's rights under this Lease, materially increase Tenant's obligations or liabilities under this Lease, or materially decrease Landlord's liabilities or obligations under this Lease. Such cooperation with Landlord and its lender shall be at no cost or expense to Tenant, and Landlord shall cover all attorneys' fees and costs Tenant incurs in connection with negotiating any such requested amendment. Tenant waives the provisions of any current or future statute, rule or law which may give or purport to give Tenant any right or election to terminate or otherwise adversely affect this Lease and the obligations of the Tenant hereunder in the event of any foreclosure proceeding or sale.
ARTICLE 19
DEFAULTS; REMEDIES
DEFAULTS; REMEDIES
25 | ||
19.1 Events of Default. The occurrence of any of the following shall constitute an "Event of Default" of this Lease by Tenant:
19.1.1 Any failure by Tenant to pay any Rent or any other charge required to be paid under this Lease, or any part thereof, within five (5) business days following Tenant's receipt of written notice that said amount was not paid when due; or
19.1.2 Except where a specific time period is otherwise set forth for Tenant's performance in this Lease, in which event the failure to perform by Tenant within such time period shall be a default by Tenant under this Section 19.1.2, any failure by Tenant to observe or perform any other provision, covenant or condition of this Lease to be observed or performed by Tenant where such failure continues for thirty (30) days after written notice thereof from Landlord to Tenant; provided, that if the nature of such default is such that the same cannot reasonably be cured within a thirty (30) day period, Tenant shall not be deemed to be in default if it diligently commences such cure within such period and thereafter diligently proceeds to rectify and cure such default, but in no event exceeding a period of time in excess of ninety (90) days after written notice thereof from Landlord to Tenant; or
19.1.3 To the extent permitted by law, (i) Tenant or any guarantor of this Lease being placed into receivership or conservatorship, or becoming subject to similar proceedings under Federal or State law, or (ii) a general assignment by Tenant or any guarantor of this Lease for the benefit of creditors, or (iii) intentionally omitted, or (iv) the filing by or against Tenant or any guarantor of any proceeding under an insolvency or bankruptcy law, unless in the case of such a proceeding filed against Tenant or any guarantor the same is dismissed within ninety (90) days, or (v) the appointment of a trustee or receiver to take possession of all or substantially all of the assets of Tenant or any guarantor, unless possession is restored to Tenant or such guarantor within thirty (60) days, or (vi) any execution or other judicially authorized seizure of all or substantially all of Tenant's assets located upon the Premises or of Tenant's interest in this Lease, unless such seizure is discharged within thirty (60) days; or
19.1.4 Abandonment pursuant to the terms of California Civil Code Section 1951.3 of the Premises by Tenant; or
19.1.5 The failure by Tenant to observe or perform according to the provisions of Articles 17 or 18 of this Lease where such failure continues for more than five (5) business days after notice from Landlord; or
19.1.6 The failure by Tenant to observe or perform according to the provisions of Articles 5 or 14 of this Lease where such failure continues for more than fifteen (15) business days after notice from Landlord; or
19.1.7 Tenant fails to either (i) procure, maintain and deliver to Landlord evidence of the insurance policies and coverages as required under Sections 10.3 through and including 10.5 above, or (ii) self-insure pursuant to Section 10.3.2.2 above; or
19.1.8 Tenant fails to pay and release of record, or diligently contest and bond around, any mechanic's or construction lien filed against the Premises for any work performed, materials furnished, or obligation incurred by or at the request of a Tenant Party, within the time and in the manner required by Article 9 above.
The notice periods provided herein are in lieu of, and not in addition to, any notice periods provided by law.
19.2 Remedies Upon Event of Default. Upon the occurrence of any Event of Default by Tenant, Landlord shall have, in addition to any other remedies available to Landlord at law or in equity (all of which remedies shall be distinct, separate and cumulative), the option to pursue any one or more of the following remedies, each and all of which shall be cumulative and nonexclusive, without any notice or demand whatsoever.
19.2.1 Terminate this Lease, in which event Tenant shall immediately surrender the Premises to Landlord, and if Tenant fails to do so, Landlord may, without prejudice to any other remedy which it may have for possession, enter upon and take possession of the Premises and expel
26 | ||
or remove Tenant and any other person who may be occupying the Premises or any part thereof, all in accordance with Applicable Law; and Landlord may recover from Tenant the following:
(a) The worth at the time of award of any unpaid rent which has been earned at the time of such termination; plus
(b) The worth at the time of award of the amount by which the unpaid rent which would have been earned after termination until the time of award exceeds the amount of such rental loss that Tenant proves could have been reasonably avoided; plus
(c) The worth at the time of award of the amount by which the unpaid rent for the balance of the Lease Term after the time of award exceeds the amount of such rental loss that Tenant proves could have been reasonably avoided; plus
(d) Any other amount necessary to compensate Landlord for all the detriment proximately caused by Tenant's failure to perform its obligations under this Lease or which in the ordinary course of things would be likely to result therefrom, specifically including but not limited to, brokerage commissions and advertising expenses incurred, expenses of remodeling the Premises or any portion thereof for a new tenant, whether for the same or a different use, and any special concessions made to obtain a new tenant.
The term "rent" as used solely in this Section 19.2 shall be deemed to be and to mean all sums of every nature required to be paid by Tenant pursuant to the terms of this Lease (including, without limitation, Rent), whether to Landlord or to others. As used in Sections 19.2.1(a) and (b), above, the "worth at the time of award" shall be computed by allowing interest at the Interest Rate. As used in Section 19.2.1(c), above, the "worth at the time of award" shall be computed by discounting such amount at the discount rate of the Federal Reserve Bank of San Francisco at the time of award plus one percent (1%).
19.2.2 Landlord shall have the remedy described in California Civil Code Section 1951.4 (lessor may continue lease in effect after lessee's breach and abandonment and recover rent as it becomes due, if lessee has the right to sublet or assign, subject only to reasonable limitations). Accordingly, if Landlord does not elect to terminate this Lease on account of any default by Tenant, Landlord may, from time to time, without terminating this Lease, enforce all of its rights and remedies under this Lease, including the right to recover all rent as it becomes due.
19.2.3 Landlord shall at all times have the rights and remedies (which shall be cumulative with each other and cumulative and in addition to those rights and remedies available under Sections 19.2.1 and 19.2.2, above, or any law or other provision of this Lease), without prior demand or notice except as required by Applicable Law, to seek any declaratory, injunctive or other equitable relief, and specifically enforce this Lease, or restrain or enjoin a violation or breach of any provision hereof.
19.3 Subleases of Tenant. Whether or not Landlord elects to terminate this Lease on account of any default by Tenant, as set forth in this Article 19, Landlord shall have the right to terminate any and all subleases, licenses, concessions or other consensual arrangements for possession entered into by Tenant and affecting the Premises or may, in Landlord's sole discretion, succeed to Tenant's interest in such subleases, licenses, concessions or arrangements. In the event of Landlord's election to succeed to Tenant's interest in any such subleases, licenses, concessions or arrangements, Tenant shall, as of the date of notice by Landlord of such election, have no further right to or interest in the rent or other consideration receivable thereunder.
19.4 Form of Payment After Event of Default. Following the occurrence of an Event of Default by Tenant, Landlord shall have the right to require that any or all subsequent amounts paid by Tenant to Landlord hereunder, whether to cure the default in question or otherwise, be paid in the form of cash, money order, cashier's or certified check drawn on an institution acceptable to Landlord, or by other means approved by Landlord, notwithstanding any prior practice of accepting payments in any different form.
19.5 Efforts to Relet. No re-entry or repossession, repairs, maintenance, changes, alterations and additions, reletting, appointment of a receiver to protect Landlord's interests
27 | ||
hereunder, or any other action or omission by Landlord shall be construed as an election by Landlord to terminate this Lease or Tenant's right to possession, or to accept a surrender of the Premises, nor shall same operate to release Tenant in whole or in part from any of Tenant's obligations hereunder, unless express written notice of such intention is sent by Landlord to Tenant. Tenant hereby irrevocably waives any right otherwise available under any law to redeem or reinstate this Lease.
19.6 Landlord Default. In the event of any default by Landlord under this Lease, Tenant may, but shall not be obligated to, cure such default if Landlord shall fail to cure the same within thirty (30) days after receipt of notice of such default, and Landlord continues to fail to cure such default within five (5) days after receipt of a second notice of such default (delivered following the expiration of the first thirty (30) day notice period), provided, that if more time is required to cure such default, Landlord shall be allowed such additional time as may be reasonably necessary if Landlord commences performance within the thirty (30) day period and thereafter diligently pursues its completion, or, in the case of emergency, immediately and without notice. If Tenant so elects to cure any such default, Landlord shall reimburse Tenant for the reasonable costs and expenses (including reasonable attorney's fees) incurred in connection therewith within thirty (30) days following written invoice delivered by Tenant to Landlord. Such amounts shall accrue interest at the Interest Rate if Landlord fails to reimburse Tenant for such payments within such thirty (30) day period from the expiration of such thirty (30) day period to the date of recovery of the same. If Landlord fails to reimburse Tenant for such amounts within such thirty (30) day period, then, as its sole and exclusive remedy, Tenant shall be entitled to seek specific performance.
ARTICLE 20
COVENANT OF QUIET ENJOYMENT
COVENANT OF QUIET ENJOYMENT
Landlord covenants that Tenant, on paying the Rent, charges for services and other payments herein reserved and on keeping, observing and performing all the other TCCs, provisions and agreements herein contained on the part of Tenant to be kept, observed and performed, all subject to applicable notice and cure periods, shall, during the Lease Term, peaceably and quietly have, hold and enjoy the Premises subject to the TCCs, provisions and agreements hereof without interference by any persons lawfully claiming by or through Landlord. The foregoing covenant is in lieu of any other covenant express or implied, except for those covenants expressly set forth in this Lease.
ARTICLE 21
COMPLETION OF THE PREMISES
COMPLETION OF THE PREMISES
21.1 Prior to the date hereof, Tenant has submitted to Landlord, and Landlord has approved, copies of permits listed on attached Exhibit F (the "Permit Set"), approved by all appropriate governmental authorities, which includes the plans and specifications for all remaining aspects of the construction and Completion of the Buildings to a "warm shell" condition (including, without limitation, stubbing out for heating, ventilation and air conditioning) as described therein, including, to the extent provided in the Permit Set, the Buildings' exterior common areas and related site work (the "Building Specifications"), with such improvements being, collectively, referred to as the "Tenant's Building Work". Any revisions to the Building Specifications related to the exterior appearance of the Buildings or the Common Areas or the core and shell of the Buildings, including any structural portions of the Buildings or the systems of the Buildings, from and after the Commencement Date shall be subject to Landlord's approval in its sole and absolute discretion. For the sake of clarity, Landlord's approval shall not be required for any changes to the Building Specifications with respect to the tenant improvements for the Buildings that do not impact the exterior appearance of the Buildings or the core and shell of the Buildings as described above.
21.2 Tenant hereby covenants and agrees that it shall, at Tenant's sole cost and expense, forthwith proceed promptly and diligently to (i) obtain the approval of all governmental authorities of the Building Specifications, to the extent not already obtained, and (ii) perform Tenant's Building Work in accordance with the Building Specifications and that certain contract with DPR Construction (the "Contractor"), to construct Tenant's Building Work in accordance with the Building Specifications, subject to a guaranteed maximum price (as amended as of the Commencement Date, the "GC Contract"). Any work necessary to complete the construction of Tenant's Building Work in accordance with such requirements shall be performed and Completed by the Tenant at its sole cost and expense. If any changes in the Building Specifications or GC
28 | ||
Contract shall be required by any governmental authorities, or are otherwise deemed appropriate or necessary by Tenant, or if supplemental work (such as, without limitation, tenant improvement work not initially included therein) is proposed by Tenant, such changes or supplemental work shall first be submitted to the Landlord for written approval, which shall not be unreasonably withheld, delayed or conditioned, but in any event such approval or disapproval shall be given within ten (10) business days after Tenant's submission thereof to Landlord.
21.3 As a precondition to the satisfaction of its obligations under this Article 21, Tenant shall procure and deliver to the Landlord, at Tenant's sole cost and expense, (i) a certificate duly executed by M. Arthur Gensler Jr. & Associates, Inc. (the "Architect") (which shall be in charge of monitoring the construction of Tenant's Building Work) attesting to the fact that Tenant's Building Work have been Completed in accordance with the Building Specifications; (ii) copies of any interim permit sign-offs obtained from the City with respect to Tenant's Building Work as of the date of the Architect's certificate (and Tenant shall be in a position to request final permit sign-off from the City with respect to Tenant's Building Work); and (iii) such other certificates and approvals listed on attached Schedule 21.3 which are those customarily issued in the locality upon the completion of building construction similar to the Tenant's Building Work. When all of the requirements described in this Section 21.3 are satisfied, Tenant's Building Work shall be deemed to be "Complete" and "Completion" shall be deemed to have occurred.
ARTICLE 22
INTENTIONALLY OMITTED
INTENTIONALLY OMITTED
ARTICLE 23
SIGNS
SIGNS
23.1 Premises Interior Signage. Tenant, at its sole cost and expense, may install identification signage anywhere within the interior of the Premises.
23.2 Prohibited Signage and Other Items. Except as otherwise provided in Sections 23.3 and 23.4, below, Tenant may not install any signs in the Project or the Common Areas.
23.3 Building Top Sign. Notwithstanding any provision to the contrary contained in this Article 23, the Tenant and any of its Permitted Transferees shall have the right, but not the obligation, at the sole cost and expense of Tenant, to install Building-top signage on the roof of the Buildings in locations to be mutually and reasonably agreed upon by Landlord and Tenant (the "Building-Top Signage"). Such Building-Top Signage shall conform to all Applicable Laws and CC&Rs, and shall be subject to the Project Sign Criteria and Landlord's reasonable review and approval. All costs associated with the Building-Top Signage, including, without limitation, the costs to purchase, install, maintain, and remove it, shall be borne exclusively by Tenant.
23.4 Monument Signage. Tenant and any of its Permitted Transferees shall have the non-exclusive right, but not the obligation, to have its name as determined by Tenant placed on portion of the monument sign serving the Buildings, and such signage shall be compatible with the quality, design and style of the Project's sign criteria then established by Landlord (the "Project Sign Criteria"); provided, however, in no event shall Tenant's signage include an "Objectionable Name", as that term is defined in Section 23.8 of this Lease. Landlord shall have the right to (i) position or prioritize Tenant's name in any position on such monument signage as it shall determine in its reasonable discretion, from time to time, (ii) design and organize such monument signage (and the materials, design, script size, type face, colors and all other characteristics thereof) in such manner as it shall determine in its sole discretion, (iii) place such other names, business names, trade names or affiliate names representing such other tenants as it shall determine in its sole discretion, (iv) make such modifications to such monument signage as it shall desire from time to time, and (v) place thereon the name of (and/or other identifying information for) the Buildings and/or Project as Landlord shall determine in its sole discretion.
23.5 Intentionally Omitted.
23.6 Specifications and Permits. The graphics, materials, color, design, lettering, size and specifications of Tenant's name on such monument signage and Building-Top Signage (collectively, the "Sign Specifications") shall be (i) subject to the prior written consent of Landlord,
29 | ||
including, without limitation, as to the design, materials, color, size and all other aesthetic factors of such signage and which consent thereto shall not be unreasonably withheld, conditioned or delayed, (ii) consistent with the size and quality of comparable signage on comparable first-class research and development buildings in the local market, (iii) in compliance with all Applicable Laws, (iv) subject to receipt by Tenant of all required governmental permits and approvals therefor, and (v) consistent with the Project Sign Criteria and the overall character of the Buildings'/Project's architecture (as determined by Landlord). In addition, Tenant's name on such monument signage and Building-Top Signage shall be subject to the receipt of all required governmental permits and approvals (and the submission of copies thereof to Landlord), and shall be subject to all Applicable Laws. In connection therewith, Landlord shall use commercially reasonable efforts, at Tenant's cost and expense, to assist Tenant in obtaining all such necessary governmental permits and approvals.
23.7 Cost and Maintenance. The costs of the actual signs comprising Tenant's name on such monument sign and Building-Top Signage, as well as the installation, design, construction, and any and all other costs associated with Tenant's name on such monument signage and/or the Building-Top Signage, including, without limitation, utility charges and hookup fees (if applicable), permits, and maintenance and repairs, shall be the sole responsibility of Tenant; provided, that Landlord shall reasonably cooperate with Tenant's use of Common Areas to allow Tenant to install, operate, maintain and repair Tenant's name on such monument sign and/or the Building-Top Signage. Should Tenant's name on such monument sign and/or the Building-Top Signage require repairs and/or maintenance, Landlord shall have the right to provide notice thereof to Tenant and Tenant (except as set forth above) shall cause such repairs and/or maintenance to commence to be performed within thirty (30) days after receipt of such notice from Landlord, at Tenant's sole cost and expense; provided, however, if such repairs and/or maintenance are reasonably expected to require longer than thirty (30) days to perform, Tenant shall commence such repairs and/or maintenance within such thirty (30) day period and shall thereafter diligently prosecute such repairs and maintenance to completion at Tenant's sole cost and expense. Should Tenant fail to perform such repairs and/or maintenance within the periods described in the immediately preceding sentence, Landlord shall have the right to cause such work to be performed and to charge Tenant as Additional Rent for the actual reasonable cost of such work plus interest at the Interest Rate from the date of Landlord's payment of such actual costs to the date of Tenant's reimbursement to Landlord. Tenant shall bear a pro rata share (based upon the number of tenants identified on any such monument sign) of all costs of maintenance and operation of such monument sign and all such costs shall be paid by Tenant to Landlord as Additional Rent within ten (10) days of receipt of Landlord's written demand therefor. Within a reasonable time following the expiration or earlier termination of this Lease (which shall in no event be later than thirty (30) days after such expiration or termination of this Lease), Tenant shall, at Tenant's sole cost and expense, commence, and thereafter shall diligently pursue, the removal of Tenant's name from such monument sign and the Building-Top Signage, and shall cause the areas in which such Tenant's name on such monument sign and the Building-Top Signage was located to be restored to the condition existing immediately prior to the placement of such Tenant's name on such monument signage and the installation of the Building-Top Signage, reasonable wear and tear excepted. If Tenant fails to timely remove Tenant's name from such monument sign and/or the Building-Top Signage or to restore the areas in which Tenant's name on such monument sign and/or Building-Top Signage was located, as provided in the immediately preceding sentence, then Landlord may perform such work, and all actual reasonable costs reasonably incurred by Landlord in so performing, plus interest at the Interest Rate from the date of Landlord's payment of such costs to the date of Tenant's reimbursement to Landlord, shall be reimbursed by Tenant to Landlord within thirty (30) days after Tenant's receipt of an invoice therefor. The terms of this Section 23.7 shall survive the expiration or earlier termination of this Lease.
23.8 Objectionable Name. In no event shall Tenant's signage include, identify or otherwise refer to a name which relates to an entity which is of a character or reputation, or is associated with a political faction or orientation, which is inconsistent with the quality of the Project, or which would otherwise reasonably offend a landlord of a Comparable Building (an "Objectionable Name"). The parties hereby agree that the name "Broadcom" or any reasonable derivation thereof, and any successor corporate name of Tenant, shall not be deemed an Objectionable Name.
30 | ||
ARTICLE 24
COMPLIANCE WITH LAW
COMPLIANCE WITH LAW
24.1 In addition to Tenant's obligations under Sections 5.3 and 29.33 hereof to comply with CC&Rs and any Future CC&Rs, and Environmental Laws, respectively, Tenant shall not do anything in or about the Premises or the Project which will in any way conflict with any law, statute, ordinance or other governmental rule, regulation or requirement now in force or which may hereafter be enacted or promulgated (collectively, "Applicable Laws"). At its sole cost and expense, Tenant shall promptly comply with all such Applicable Laws which relate to (i) Tenant's use, repair and maintenance of the Premises, (ii) the Alterations or the Improvements in the Premises, or (iii) the Base Building. Should any standard or regulation now or hereafter be imposed on Landlord or Tenant by a state, federal or local governmental body charged with the establishment, regulation and enforcement of occupational, health or safety standards for employers, employees, landlords or tenants, then Tenant agrees, at its sole cost and expense, to comply promptly with such standards or regulations. The final judgment of any court of competent jurisdiction or the admission of Tenant in any judicial action, regardless of whether Landlord is a party thereto, that Tenant has violated any of said governmental measures, shall be conclusive of that fact as between Landlord and Tenant. Landlord shall comply in all material respects with all Applicable Laws relating to the Project and Common Areas, provided that compliance with such Applicable Laws is not the responsibility of Tenant under this Lease.
24.2 As required by Section 1938(e) of the California Civil Code, Landlord hereby states as follows: "A Certified Access Specialist (CASp) can inspect the subject premises and determine whether the subject premises comply with all of the applicable construction-related accessibility standards under state law. Although state law does not require a CASp inspection of the subject premises, the commercial property owner or lessor may not prohibit the lessee or tenant from obtaining a CASp inspection of the subject premises for the occupancy or potential occupancy of the lessee or tenant, if requested by the lessee or tenant. The parties shall mutually agree on the arrangements for the time and manner of the CASp inspection, the payment of the fee for the CASp inspection, and the cost of making any repairs necessary to correct violations of construction-related accessibility standards within the premises." In furtherance of the foregoing, Landlord and Tenant hereby agree as follows: (a) any CASp inspection requested by Tenant shall be conducted, at Tenant's sole cost and expense, by a CASp reasonably approved in advance by Landlord; and (b) Tenant at its cost, is responsible for making any repairs within the Premises to correct violations of construction-related accessibility standards; and, if anything done by or for Tenant in its use or occupancy of the Premises shall require repairs to the Premises to correct violations of construction-related accessibility standards, then Tenant shall perform such repairs at Tenant's sole cost and expense. Furthermore, notwithstanding anything in this Lease to the contrary, as between Landlord and Tenant, Tenant shall bear the risk of complying with Title III of the Americans With Disabilities Act of 1990, any state Laws governing handicapped access or architectural barriers, and all rules, regulations, and guidelines promulgated under such laws, as amended from time to time in the Premises.
ARTICLE 25
LATE CHARGES
LATE CHARGES
If any installment of Rent or any other sum due from Tenant shall not be received by Landlord or Landlord's designee within ten (10) days after the date they are due, then Tenant shall pay to Landlord a late charge equal to four percent (4%) of the overdue amount plus any attorneys' fees incurred by Landlord by reason of Tenant's failure to pay Rent and/or other charges when due hereunder. The late charge shall be deemed Additional Rent and the right to require it shall be in addition to all of Landlord's other rights and remedies hereunder or at law and shall not be construed as liquidated damages or as limiting Landlord's remedies in any manner. In addition to the late charge described above, any Rent or other amounts owing hereunder which are not paid within ten (10) days after the date they are due shall bear interest from the date when due until paid at the "Interest Rate". For purposes of this Article 25, the "Interest Rate" shall be an annual rate equal to the lesser of (i) five percent (5%), and (ii) the highest rate permitted by Applicable Law.
ARTICLE 26
LANDLORD'S RIGHT TO CURE DEFAULT; PAYMENTS BY TENANT
LANDLORD'S RIGHT TO CURE DEFAULT; PAYMENTS BY TENANT
31 | ||
26.1 Landlord's Cure. All covenants and agreements to be kept or performed by Tenant under this Lease shall be performed by Tenant at Tenant's sole cost and expense and without any reduction or abatement of Rent. If Tenant shall fail to perform any obligation under this Lease, and such failure shall continue in excess of the time allowed under Section 19.1.2, above, unless a specific time period is otherwise stated in this Lease, Landlord may, but shall not be obligated to, make any such payment or perform any such act on Tenant's part without waiving its rights based upon any default of Tenant and without releasing Tenant from any obligations hereunder.
26.2 Tenant's Reimbursement. Except as may be specifically provided to the contrary in this Lease, Tenant shall pay to Landlord, upon delivery by Landlord to Tenant of statements therefor: (i) sums equal to expenditures reasonably made and obligations reasonably incurred by Landlord in connection with the remedying by Landlord of Tenant's defaults pursuant to the provisions of Section 26.1; (ii) sums equal to all losses, costs, liabilities, damages and expenses referred to in Article 10 of this Lease; and (iii) sums equal to all reasonable expenditures made and obligations reasonably incurred by Landlord in collecting or attempting to collect the Rent or in enforcing or attempting to enforce any rights of Landlord under this Lease or pursuant to law, including, without limitation, all legal fees and other amounts so reasonably expended. Tenant's obligations under this Section 26.2 shall survive the expiration or sooner termination of the Lease Term.
ARTICLE 27
ENTRY BY LANDLORD
ENTRY BY LANDLORD
Landlord reserves the right at all reasonable times and upon at least twenty-four (24) hours prior notice to Tenant (except in the case of an emergency) to enter the Premises to (i) inspect them; (ii) show the Premises to prospective purchasers, or to current or prospective Landlord Mortgagees, ground or underlying lessors or insurers, or during the last twelve (12) months of the Lease Term, to prospective tenants; (iii) post notices of nonresponsibility; or (iv) alter, improve or repair the Premises to the extent contemplated by the TCCs of this Lease, if any. Notwithstanding anything to the contrary contained in this Article 27, Landlord may enter the Premises at any time to (A) take possession due to any breach of this Lease beyond any applicable notice and cure period in the manner provided herein; and (B) in accordance with Article 26 above, perform any covenants of Tenant which Tenant fails to perform. Landlord may make any such entries without the abatement of Rent, and may take such reasonable steps as required to accomplish the stated purposes; provided, however, except for (x) emergencies, (y) repairs, alterations, improvements or additions required by governmental or quasi-governmental authorities or court order or decree, or (z) repairs which are the obligation of Tenant hereunder, any such entry shall be performed in a manner so as not to unreasonably interfere with Tenant's use of the Premises and shall be performed after normal business hours if reasonably practical. With respect to items (y) and (z) above, Landlord shall use commercially reasonable efforts to not materially interfere with Tenant's use of, or access to, the Premises. Except as otherwise set forth in Section 19.6 of this Lease, Tenant hereby waives any claims for damages or for any injuries or inconvenience to or interference with Tenant's business, lost profits, any loss of occupancy or quiet enjoyment of the Premises, and any other loss occasioned thereby. For each of the above purposes, Landlord shall at all times have a key with which to unlock all the doors in the Premises, excluding Tenant's vaults, safes and special security areas designated in advance by Tenant. In an emergency, Landlord shall have the right to use any means that Landlord may deem proper to open the doors in and to the Premises. Notwithstanding any provision to the contrary set forth in this Article 27, Tenant may designate certain areas of the Premises as "Secured Areas" should Tenant require such areas for the purpose of securing certain valuable property or confidential information. In connection with the foregoing, Landlord shall not enter such Secured Areas except in the event of an emergency. Landlord shall only maintain or repair such Secured Areas to the extent (i) required by Applicable Law, or (ii) in response to specific requests by Tenant and in accordance with a schedule reasonably designated by Tenant, subject to Landlord's reasonable approval. Any entry into the Premises by Landlord in the manner hereinbefore described shall not be deemed to be a forcible or unlawful entry into, or a detainer of, the Premises, or an actual or constructive eviction of Tenant from any portion of the Premises. No provision of this Lease shall be construed as obligating Landlord to perform any repairs, alterations or decorations except as otherwise expressly agreed to be performed by Landlord herein.
32 | ||
ARTICLE 28
TENANT PARKING
TENANT PARKING
Tenant shall be entitled to the exclusive use, commencing on the Lease Commencement Date, of the surface parking lot(s) of the Project as depicted on Schedule 28 attached hereto ("Tenant's Parking Areas"). Tenant, through its payment of CAM Expenses, shall be responsible for the full amount of any taxes imposed by any governmental authority in connection with the use of Tenant's Parking Areas. Tenant's continued right to use the Tenant's Parking Areas is conditioned upon Tenant abiding by all reasonable rules and regulations which are prescribed from time to time for the orderly operation and use of the Tenant's Parking Areas, Tenant's cooperation in seeing that Tenant's employees and visitors also comply with such rules and regulations. Landlord reserves the right to cause the modification of the size, configuration, design, layout and all other aspects of parking at the Project at any time and, in connection therewith, Tenant acknowledges and agrees that, without any abatement of Rent under this Lease, from time to time, Landlord shall have the right to temporarily provide alternative parking (with the substantially the same amount of parking stalls) within the Project so long as such alternative parking shall not be significantly less convenient than Tenant's Parking Areas or, if necessary, permanently relocate Tenant's Parking Areas to other parking lots within the Project reasonably acceptable to Tenant. The right to use the Tenant's Parking Areas granted to Tenant pursuant to this Article 28 is solely for Tenant's own personnel and may not be transferred, assigned, subleased or otherwise alienated by Tenant without Landlord's prior approval, except on a pro-rata basis in connection with an assignment or subletting of the Premises permitted or approved in accordance with the TCCs of Article 14 of this Lease.
ARTICLE 29
MISCELLANEOUS PROVISIONS
MISCELLANEOUS PROVISIONS
29.1 Terms; Captions. The words "Landlord" and "Tenant" as used herein shall include the plural as well as the singular. The necessary grammatical changes required to make the provisions hereof apply either to corporations or partnerships or individuals, men or women, as the case may require, shall in all cases be assumed as though in each case fully expressed. The captions of Articles and Sections are for convenience only and shall not be deemed to limit, construe, affect or alter the meaning of such Articles and Sections.
29.2 Binding Effect. Subject to all other provisions of this Lease, each of the covenants, conditions and provisions of this Lease shall extend to and shall, as the case may require, bind or inure to the benefit not only of Landlord and of Tenant, but also of their respective heirs, personal representatives, successors or assigns, provided this clause shall not permit any assignment by Tenant contrary to the provisions of Article 14 of this Lease.
29.3 No Air Rights. No rights to any view or to light or air over any property, whether belonging to Landlord or any other person, are granted to Tenant by this Lease. If at any time any windows of the Premises are temporarily darkened or the light or view therefrom is obstructed by reason of any repairs, improvements, maintenance or cleaning in or about the Project, the same shall be without liability to Landlord and without any reduction or diminution of Tenant's obligations under this Lease, provided Landlord shall use commercially reasonable efforts to minimize any such interference or obstruction.
29.4 Modification of Lease. Should any current or prospective Landlord Mortgagee or ground lessor for the Premises require a modification of this Lease, which modification will not cause an increased cost or expense to Tenant and in any other way materially and adversely change the rights and obligations of Tenant hereunder (except in a diminutive manner) or materially decrease Landlord's liabilities or obligations under this Lease, then and in such event, Tenant agrees that this Lease may be so modified and agrees to execute whatever documents are reasonably required therefor and to deliver the same to Landlord within twenty (20) days following a request therefor.
29.5 Transfer of Landlord's Interest. Tenant acknowledges that Landlord has the right to transfer all or any portion of its interest in the Premises and in this Lease, and Tenant agrees that in the event of any such transfer, Landlord shall automatically be released from all liability under this Lease arising or accruing from and after the date of such assignment and assumption and Tenant agrees to look solely to such transferee for the performance of Landlord's obligations hereunder after the date of transfer and such transferee shall be deemed to have fully assumed and be liable
33 | ||
for all obligations of this Lease to be performed by Landlord, and Tenant shall attorn to such transferee. Tenant further acknowledges that Landlord may assign its interest in this Lease and irrevocably assign all Rent under this Lease to a Landlord Mortgagee as additional security and agrees that such an assignment shall not release Landlord from its obligations hereunder and that Tenant shall continue to look to Landlord for the performance of its obligations hereunder.
29.6 Memorandum of Lease. Landlord and Tenant shall execute a memorandum of Lease, in the proper form for recording, in substantially the form of Exhibit B attached hereto. Comparable memoranda of any lease amendments hereafter entered into by the parties shall also be recorded.
29.7 Landlord's Title. Landlord's title to the Premises is and always shall be paramount to the title of Tenant. Nothing herein contained shall empower Tenant to do any act which can, shall or may encumber the title of Landlord in the Premises or this Lease.
29.8 Relationship of Parties. Nothing contained in this Lease shall be deemed or construed by the parties hereto or by any third party to create the relationship of principal and agent, partnership, joint venturer or any association between Landlord and Tenant.
29.9 Intentionally Omitted.
29.10 Time of Essence. Time is of the essence with respect to the performance of every provision of this Lease in which time of performance is a factor.
29.11 Partial Invalidity. If any term, provision or condition contained in this Lease shall, to any extent, be invalid or unenforceable, the remainder of this Lease, or the application of such term, provision or condition to persons or circumstances other than those with respect to which it is invalid or unenforceable, shall not be affected thereby, and each and every other term, provision and condition of this Lease shall be valid and enforceable to the fullest extent possible permitted by law.
29.12 No Warranty. Except as expressly set forth in this Lease solely in connection with Landlord's executing and delivering this Lease, Tenant has not relied on any representations, including, but not limited to, any representation as to the amount of any item comprising Additional Rent or the amount of the Additional Rent in the aggregate or that Landlord is furnishing the same services to other tenants, at all, on the same level or on the same basis, or any warranty or any statement of Landlord which is not set forth herein or in one or more of the exhibits attached hereto.
29.13 Landlord Exculpation. The liability of Landlord or the Landlord Parties to Tenant for any default by Landlord under this Lease or arising in connection herewith shall be limited solely and exclusively to Landlord's interest in the Project (including all insurance and sales and rental proceeds therefrom). None of the Landlord Parties shall have any personal liability therefor, and Tenant hereby expressly waives and releases such personal liability on behalf of itself and all persons claiming by, through or under Tenant. The limitations of liability contained in this Section 29.13 shall inure to the benefit of Landlord's and the Landlord Parties' present and future partners, members, beneficiaries, equity holders, officers, directors, trustees, shareholders, agents and employees, and their respective partners, heirs, successors and assigns. Under no circumstances shall any officer or director, or present or future partner of Landlord (if Landlord is a partnership), or present or future member of Landlord (if Landlord is a limited liability company) or present or future equity holder (if Landlord is a corporation) or trustee or beneficiary (if Landlord or any partner of Landlord is a trust), have any liability for the performance of Landlord's obligations, if any, under this Lease. Notwithstanding any contrary provision herein, neither (i) Landlord or the Landlord Parties, nor (ii) except as provided in Article 16 with regard to Tenant holding over after the expiration of the Lease Term, Tenant or the Tenant Parties, shall be liable under any circumstances for injury or damage to, or interference with, Tenant's business or Landlord's business, as applicable, including but not limited to, loss of profits, loss of rents or other revenues, loss of business opportunity, loss of goodwill or loss of use, in each case, however occurring.
29.14 Entire Agreement. It is understood and acknowledged that there are no oral agreements between the parties hereto affecting this Lease and this Lease constitutes the parties' entire agreement with respect to the leasing of the Premises and supersedes and cancels any and all
34 | ||
previous negotiations, arrangements, brochures, agreements and understandings, if any, between the parties hereto (including, without limitation, any confidentiality agreement, letter of intent, request for proposal, or similar agreement previously entered into between Landlord and Tenant in anticipation of this Lease) or displayed by Landlord to Tenant with respect to the subject matter thereof, and none thereof shall be used to interpret or construe this Lease. None of the terms, covenants, conditions or provisions of this Lease can be modified, deleted or added to except in writing signed by the parties hereto, and unless consented to by any Landlord Mortgagee.
29.15 No Merger. There shall be no merger of this Lease, nor of the leasehold estate created by this Lease, with the fee estate in the Premises by reason of the fact that this Lease or the leasehold estate created by this Lease or any interest of Tenant in this Lease or any such leasehold estate may be held, directly or indirectly, by or for the account of any person or persons who shall own the fee estate in the Premises, or any interest in such fee estate, and no such merger shall occur unless and until all persons (including any Landlord Mortgagee) at the time having an interest in the fee estate in the Premises and all persons having an interest in this Lease, or in the leasehold estate created by this Lease, shall join in a written instrument effecting such merger and shall duly record the same.
29.16 Force Majeure. Any prevention, delay or stoppage due to strikes, lockouts, labor disputes, acts of God, inability to obtain services, labor, or materials or reasonable substitutes therefor, governmental actions, civil commotions, fire or other casualty, and other causes beyond the reasonable control of the party obligated to perform, except with respect to the obligations imposed with regard to Rent and other charges to be paid by Tenant pursuant to this Lease (collectively, a "Force Majeure"), notwithstanding anything to the contrary contained in this Lease, shall excuse the performance of such party for a period equal to any such prevention, delay or stoppage and, therefore, if this Lease specifies a time period for performance of an obligation of either party, that time period shall be extended by the period of any delay in such party's performance caused by a Force Majeure.
29.17 Waiver of Redemption by Tenant. Tenant hereby waives, for Tenant and for all those claiming under Tenant, any and all rights now or hereafter existing to redeem by order or judgment of any court or by any legal process or writ, Tenant's right of occupancy of the Premises after any termination of this Lease.
29.18 Notices. All notices, demands, statements, designations, approvals or other communications (collectively, "Notices") given or required to be given by either party to the other hereunder or by law shall be in writing, shall be (A) sent by United States certified or registered mail, postage prepaid, return receipt requested ("Mail"), (B) transmitted by facsimile, (C) delivered by a nationally recognized overnight courier, or (D) delivered personally. Any Notice shall be sent, transmitted, or delivered, as the case may be, to Tenant at the appropriate address set forth in Section 10 of the Summary, or to such other place as Tenant may from time to time designate in a Notice to Landlord, or to Landlord at the addresses set forth below, or to such other places as Landlord may from time to time designate in a Notice to Tenant. Any Notice will be deemed given (i) three (3) days after the date it is posted if sent by Mail, (ii) the date the facsimile is transmitted, (iii) the date the overnight courier delivery is made, or (iv) the date personal delivery is made or attempted to be made. If Tenant is notified of the identity and address of a Landlord Mortgagee or ground or underlying lessor, Tenant shall give to such Landlord Mortgagee or ground or underlying lessor written notice of any default by Landlord under the terms of this Lease by registered or certified mail, and such Landlord Mortgagee or ground or underlying lessor shall be given an opportunity to cure such default prior to Tenant's exercising any remedy available to Tenant, in accordance with the terms of the applicable SNDA. As of the date of this Lease, any Notices to Landlord must be sent, transmitted, or delivered, as the case may be, to the following addresses:
Five Point Office Venture I, LLC
c/o Five Point
25 Enterprise, Suite 300
35 | ||
Aliso Viejo, CA 92656-2601
Attn: Asset Management
Fax No.: (949) 349-0718
with copies to:
Five Point Office Venture I, LLC
c/o Five Point
25 Enterprise, Suite 300
Aliso Viejo, CA 92656-2601
Attn: Legal Notices
Fax No.: (949) 349-0718
and
Allen Matkins Leck Gamble Mallory & Natsis LLP
1900 Main Street, Fifth Floor
Irvine, CA 92614
Attn: Richard E. Stinehart, Esq.
Fax No.: (940) 553-8354
29.19 Joint and Several. If there is more than one Tenant, the obligations imposed upon Tenant under this Lease shall be joint and several.
29.20 Authority. Landlord and Tenant each represent and warrant, for itself, that it is a duly formed and existing entity and that such representing party has full right and authority to execute and deliver this Lease and that each person signing on behalf of such representing party is authorized to do so.
29.21 Attorneys' Fees. In the event that either Landlord or Tenant should bring suit for the possession of the Premises, for the recovery of any sum due under this Lease, or because of the breach of any provision of this Lease or for any other relief against the other, then all reasonable attorneys' fees, costs and expenses incurred by the prevailing party therein shall be paid by the other party, which obligation on the part of the other party shall be deemed to have accrued on the date of the commencement of such action and shall be enforceable whether or not the action is prosecuted to judgment.
29.22 GOVERNING LAW; WAIVER OF TRIAL BY JURY. THIS LEASE SHALL BE CONSTRUED AND ENFORCED IN ACCORDANCE WITH THE LAWS OF THE STATE OF CALIFORNIA. IN ANY ACTION OR PROCEEDING ARISING HEREFROM, LANDLORD
36 | ||
AND TENANT HEREBY CONSENT TO (I) THE JURISDICTION OF ANY COMPETENT COURT WITHIN THE STATE OF CALIFORNIA, (II) SERVICE OF PROCESS BY ANY MEANS AUTHORIZED BY CALIFORNIA LAW, AND (III) IN THE INTEREST OF SAVING TIME AND EXPENSE, TRIAL WITHOUT A JURY IN ANY ACTION, PROCEEDING OR COUNTERCLAIM BROUGHT BY EITHER OF THE PARTIES HERETO AGAINST THE OTHER OR THEIR SUCCESSORS IN RESPECT OF ANY MATTER ARISING OUT OF OR IN CONNECTION WITH THIS LEASE, THE RELATIONSHIP OF LANDLORD AND TENANT, TENANT'S USE OR OCCUPANCY OF THE PREMISES, AND/OR ANY CLAIM FOR INJURY OR DAMAGE, OR ANY EMERGENCY OR STATUTORY REMEDY.
29.23 Submission of Lease. Submission of this instrument for examination or signature by Tenant does not constitute a reservation of, option for or option to lease, and it is not effective as a lease or otherwise until execution and delivery by both Landlord and Tenant.
29.24 Brokers. Landlord and Tenant hereby warrant to each other that they have had no dealings with any real estate broker or agent in connection with the negotiation of this Lease, excepting only the real estate brokers or agents specified in Section 12 of the Summary (the "Brokers"), and that they know of no other real estate broker or agent who is entitled to a commission in connection with this Lease. Tenant shall pay the commissions, if any, do the Brokers pursuant to any separate commission agreement entered into by Tenant. Each party agrees to indemnify and defend the other party against and hold the other party harmless from any and all claims, demands, losses, liabilities, lawsuits, judgments, costs and expenses (including, without limitation, reasonable attorneys' fees) with respect to any leasing commission or equivalent compensation alleged to be owing on account of any dealings with any real estate broker or agent, other than the Brokers, occurring by, through, or under the indemnifying party.
29.25 Independent Covenants. This Lease shall be construed as though the covenants herein between Landlord and Tenant are independent and not dependent and Tenant hereby expressly waives the benefit of any statute to the contrary and agrees that if Landlord fails to perform its obligations set forth herein, Tenant shall not be entitled to any setoff of the Rent or other amounts owing hereunder against Landlord.
29.26 Financial Reporting. Within ninety (90) days after the end of Tenant's fiscal year, Tenant will furnish Tenant's most recent audited financial statements (including any notes to them), prepared in accordance with GAAP, to Landlord. Notwithstanding the foregoing, so long as Tenant's financial statements are consolidated with a parent entity that is a publicly traded entity (a "Public Parent"), Tenant may satisfy its obligations hereunder by providing to Landlord copies of all Form 8‑K, Form 10‑K and Form 10‑Q reports as such Public Parent is or may be required to file with the Securities and Exchange Commission (or any governmental authority succeeding to the functions of the Securities and Exchange Commission); provided, however, Landlord shall be deemed to have been furnished the foregoing reports and other communications if Landlord can electronically access such reports and other communications through the Securities and Exchange Commission's website. Landlord will not disclose any aspect of Tenant's financial statements that Tenant designates to Landlord as confidential except: (1) to any Landlord Mortgagee or prospective Landlord Mortgagees or purchasers of the Premises, and any direct or indirect holder of all or a portion of the debt secured by a lien against the Premises; (2) to Landlord's advisors and consultants; (3) in litigation between Landlord and Tenant; and (4) if required by court order.
29.27 Counterparts. This Lease may be executed in counterparts with the same effect as if both parties hereto had executed the same document. Both counterparts shall be construed together and shall constitute a single lease.
29.28 Confidentiality. Landlord and Tenant acknowledge that the content of this Lease and any related documents are confidential information (the "Confidential Information"). Landlord and Tenant shall keep such Confidential Information strictly confidential and shall not disclose such Confidential Information to any person or entity other than their respective affiliates, officers, members, managers, employees, and current or prospective partners, investors, lenders, assignees, sublessees, joint venturers, attorneys, accountants and/or consultants, and to a governmental authority or a court if so ordered; provided, however, in the event that Landlord or Tenant becomes legally compelled, by deposition, interrogatory, request for documents, subpoena, civil investigative demand or similar process, to disclose any of the Confidential Information, such party shall provide
37 | ||
the other party with prompt prior written notice of such requirement so that such other party may seek a protective order or other appropriate remedy and/or waive compliance with the terms of this Lease. In the event that such protective order or other remedy is not obtained, or the non-disclosing party does not waive compliance with the provisions hereof, the disclosing party hereby agrees to furnish only that portion of the Confidential Information which such disclosing party is advised by written opinion of legal counsel is legally required to be disclosed, and to exercise their respective best efforts to obtain assurances that confidential treatment will be accorded such Confidential Information. In any event, (a) Landlord and Tenant hereby agree that neither of them shall oppose any action by the other party to obtain an appropriate protective order or other reliable assurance that confidential treatment will be accorded the Confidential Information; and (b) Tenant may disclose this Lease and the terms hereof to Heritage Fields El Toro, LLC, a Delaware limited liability company ("Heritage Fields") in connection with Heritage Fields' repurchase right with respect to the Project.
29.29 Transportation Management. Tenant shall reasonably comply with all present or future programs intended to manage parking, transportation or traffic in and around the Buildings (to the extent such programs are required by Applicable Law or reasonably approved by Tenant), and in connection therewith, Tenant shall take responsible action for the transportation planning and management of all employees located at the Premises by working directly with Landlord, any governmental transportation management organization or any other transportation-related committees or entities.
29.30 Project Renovations. It is specifically understood and agreed that Landlord has made no representation or warranty to Tenant and has no obligation and has made no promises to alter, remodel, improve, renovate, repair or decorate the Premises or any part thereof and that no representations respecting the condition of the Premises have been made by Landlord to Tenant except as specifically set forth in this Lease. However, Tenant hereby acknowledges that Landlord, the Association, or any other owner(s) of a portion of the Project may during the Lease Term renovate, improve, alter, or modify (collectively, the "Renovations") the Project including, without limitation, the parking areas, Common Areas, systems and equipment, and structural portions of the same, and in connection with any Renovations, such parties may, among other things, erect scaffolding or other necessary structures within or surrounding the Premises, limit or eliminate access to portions of the Project, including portions of the Common Areas, or perform work in or around the Premises, which work may create noise, dust or leave debris in or around the Premises. Tenant hereby agrees that such Renovations shall in no way constitute a constructive eviction of Tenant nor entitle Tenant to any abatement of Rent or right to terminate this Lease. Landlord shall have no responsibility or for any reason be liable to Tenant for any direct or indirect injury to or interference with Tenant's business arising from the Renovations, nor shall Tenant be entitled to any compensation or damages from Landlord for loss of the use of the whole or any part of the Premises or of Tenant's personal property or improvements resulting from the Renovations, or for any inconvenience or annoyance occasioned by such Renovations. No provision of this Lease shall be construed as obligating Landlord to perform any Renovations. Landlord shall use commercially reasonable efforts to minimize any interference or obstruction with Tenant's use and enjoyment of the Premises in connection with any Renovations.
29.31 No Violation. Tenant and Landlord hereby respectively warrant and represent that neither their execution of nor performance under this Lease shall cause Tenant or Landlord, as applicable, to be in violation of any agreement, instrument, contract, law, rule or regulation by which Tenant or Landlord, as applicable, is bound, and Tenant and Landlord shall protect, defend, indemnify and hold the other harmless against any claims, demands, losses, damages, liabilities, costs and expenses, including, without limitation, reasonable attorneys' fees and costs, arising from Tenant's or Landlord's, as applicable, breach of this warranty and representation:
29.32 Consent/Duty to Act Reasonably. Except for matters for which there is a standard of consent or discretion specifically set forth in this Lease, any time the consent of Landlord or Tenant is required under this Lease, such consent shall not be unreasonably withheld or delayed, and whenever this Lease grants Landlord or Tenant the right to take action, exercise discretion, establish rules and regulations or make an allocation or other determination, Landlord and Tenant shall act reasonably and in good faith.
38 | ||
29.33 Hazardous Materials.
29.33.1 Definitions. For purposes of this Lease, the following definitions shall apply: "Hazardous Material(s)" shall mean any solid, liquid or gaseous substance or material that is described or characterized as a toxic or hazardous substance, waste, material, pollutant, contaminant or infectious waste, or any matter that in certain specified quantities would be injurious to the public health or welfare, or words of similar import, in any of the "Environmental Laws", as that term is defined below, or any other words which are intended to define, list or classify substances by reason of deleterious properties such as ignitability, corrosivity, reactivity, carcinogenicity, toxicity or reproductive toxicity and includes, without limitation, asbestos, petroleum (including crude oil or any fraction thereof, natural gas, natural gas liquids, liquefied natural gas, or synthetic gas usable for fuel, or any mixture thereof), petroleum products, polychlorinated biphenyls, urea formaldehyde, radon gas, nuclear or radioactive matter, medical waste, soot, vapors, fumes, acids, alkalis, chemicals, microbial matters (such as molds, fungi or other bacterial matters), biological agents and chemicals which may cause adverse health effects, including but not limited to, cancers and/or toxicity. "Environmental Laws" shall mean any and all federal, state, local or quasi-governmental laws (whether under common law, statute or otherwise), ordinances, decrees, codes, rulings, awards, rules, regulations or guidance or policy documents now or hereafter enacted or promulgated and as amended from time to time, in any way relating to (i) the protection of the environment, the health and safety of persons (including employees), property or the public welfare from actual or potential release, discharge, escape or emission (whether past or present) of any Hazardous Materials or (ii) the manufacture, processing, distribution, use, treatment, storage, disposal, transport or handling of any Hazardous Materials.
29.33.2 Compliance with Environmental Laws. Landlord covenants that during the Lease Term, Landlord shall comply in all material respects with all Environmental Laws in accordance with, and as required by, the TCCs of Article 24 of this Lease. Tenant covenants that during the Lease Term, Tenant shall comply in all material respects with all Environmental Laws in accordance with, and as required by, the TCCs of Article 24 of this Lease. Additionally, Tenant shall not sell, use, or store in or around the Premises any Hazardous Materials, except for Hazardous Materials used, stored, maintained and/ or disposed of in Tenant's ordinary course of business and in accordance with applicable Environmental Laws. In addition, Tenant agrees that it: (i) shall not cause the release, discharge, escape or emission of any Hazardous Materials at, upon, under or within the Premises or any contiguous or adjacent premises; (ii) shall notify Landlord promptly following receipt of any knowledge with respect to any actual release, discharge, escape or emission (whether past or present) of any Hazardous Materials at, upon, under or within the Premises; (iii) shall promptly forward to Landlord copies of all orders, notices, permits, applications and other communications and reports in connection with any release, discharge, escape or emission of any Hazardous Materials at, upon, under or within the Premises or any contiguous or adjacent premises; and (iv) in connection with Tenant's surrender of the Premises upon the expiration or earlier termination of this Lease, Tenant shall deliver the same free of Hazardous Materials brought upon, kept or used in or about the Premises by any persons, and shall obtain and provide to Landlord, to the extent applicable: (A) all Hazardous Materials Clearances, (B) evidence from the applicable governmental entities of "closure" of all permits which had been required for Tenant's use of the Premises, together with "no further action letters" from such applicable governmental entities and a "no further action letter" for unrestricted future use of the Premises, and (C) a Phase I report with regard to the Premises. Such Phase I report shall be (x) performed by an environmental assessment or engineering firm and on a scope of work acceptable to Landlord in its sole discretion, (y) shall identify Landlord as a beneficiary of such report, and (z) completed no earlier than six (6) months prior to the expiration of this Lease and no later than the Lease Expiration Date; provided, however, in the event this Lease is terminated early for any reason, Tenant shall complete such Phase I report within a commercially reasonable time immediately following such early termination of this Lease. Such Phase I report shall either (1) indicate that the property shows no evidence of reasonably possible hazardous materials contamination of the building, soil or groundwater caused by Tenant; or (2) recommend further investigation of the site, in which event, if such further investigation relates to Tenant's or the Tenant Parties' use of the Premises, then it shall be performed by an environmental assessment or engineering firm and on a scope of work acceptable to Landlord in its sole discretion and at the Tenant's sole expense. Such additional investigation, if any, shall be completed within sixty (60) days of such recommendation. Notwithstanding the foregoing provisions of this Section 29.33.2, and subject to Tenant obtaining and providing to Landlord the
39 | ||
items identified in items (A) through (C) above, Tenant shall not, as of the date this Lease expires or otherwise terminates, be obligated to remove those Hazardous Materials then-existing in de minimis quantities to the extent it is either impossible or prohibitively expensive to totally eradicate such Hazardous Materials, but only provided that Tenant's non-removal of the same will not give rise to a violation of any Applicable Laws, will not adversely impact Landlord's ability to sell, lease or otherwise encumber the Premises, and will not relieve Tenant of its remaining non-conflicting obligations under this Lease (i.e., Tenant's indemnity obligations contained herein will continue to apply with respect to such remaining Hazardous Materials).
29.33.3 Tenant Hazardous Materials. Tenant will (i) obtain and maintain in full force and effect all Environmental Permits (as defined below) that may be required from time to time under any Environmental Laws applicable to Tenant or its use of the Premises, and (ii) be and remain in compliance with all terms and conditions of all such Environmental Permits and with all other Environmental Laws. "Environmental Permits" means, collectively, any and all permits, consents, licenses, approvals and registrations of any nature at any time required pursuant to, or in order to comply with any Environmental Law. Nothing in this Lease shall impose any liability on Tenant for any Hazardous Materials in existence on the Premises or Project prior to the Lease Commencement Date or brought onto the Premises or Project after the Lease Commencement Date by any third parties not under Tenant's control.
29.33.4 Landlord's Right of Environmental Audit. Landlord may, upon reasonable notice to Tenant, be granted access to and enter the Premises no more than once annually to perform or cause to have performed an environmental inspection, site assessment or audit. Such environmental inspector or auditor may be chosen by Landlord, in its sole discretion, and be performed at Landlord's sole expense. To the extent that the report prepared upon such inspection, assessment or audit, indicates the presence of Hazardous Materials (relating to the use and/or actions of Tenant or the Tenant Parties) in violation of Environmental Laws, or provides recommendations or suggestions to prohibit the release, discharge, escape or emission of any Hazardous Materials (relating to the use and/or actions of Tenant or the Tenant Parties) at, upon, under or within the Premises, or to comply with any Environmental Laws related to Tenant's or the Tenant Parties' use of the Premises (including the use of Hazardous Materials therein), Tenant shall promptly, at Tenant's sole expense, comply with any reasonable recommendations or suggestions, including, but not limited to performing such additional investigative or subsurface investigations or remediation(s) as reasonably recommended by such inspector or auditor (taking into account all legal requirements and governmental agency recommendations). Notwithstanding the above, if at any time, Landlord has actual notice or reasonable cause to believe that Tenant has violated, or permitted any violations of any Environmental Law, then Landlord will be entitled to perform its environmental inspection, assessment or audit at any time, notwithstanding the above mentioned annual limitation, and Tenant must reimburse Landlord for the reasonable cost or fees incurred for such as Additional Rent.
29.33.5 Indemnifications. Tenant agrees to indemnify, defend, protect and hold harmless Landlord and the Landlord Parties from and against any liability, obligation, damage or costs, including without limitation, reasonable attorneys' fees and costs, arising from (a) any use, presence, removal or disposal of any Hazardous Materials or breach of any provision of this section, to the extent such liability, obligation, damage or costs was a result of actions caused or permitted by Tenant or a Tenant Party and (b) any Environmental Claim relating in any way to Tenant's operation or use of the Premises; provided, that the foregoing indemnity shall not apply to the extent caused by the gross negligence or willful misconduct of Landlord or any of the Landlord Parties. Landlord agrees to indemnify, defend, protect and hold harmless Tenant and the Tenant Parties from and against any liability, obligation, damage or costs, including, without limitation, reasonable attorneys' fees and costs, arising from any use, presence, removal or disposal of any Hazardous Materials to the extent such liability, obligation, damage or costs was a result of actions caused or permitted by Landlord or a Landlord Party; provided, that the foregoing indemnity shall not apply to the extent caused by the gross negligence or willful misconduct of Tenant or any of the Tenant Parties. These mutual environmental indemnities shall survive any expiration or termination of this Lease, and are not affected by any claims of breach of any other provisions of this Lease. "Environmental Claims" means any and all administrative, regulatory or judicial actions, suits, demands, demand letters, claims, liens, notices of non-compliance or violation, investigations, proceedings, consent orders or consent agreements relating in any way to any Environmental Law, including, without limitation, (i) any and all Environmental Claims by governmental or regulatory
40 | ||
authorities for enforcement, cleanup, removal, response, remedial or other actions or damages pursuant to any applicable Environmental Law and (ii) any and all Environmental Claims by any third party seeking damages, contribution, indemnification, cost recovery, compensation or injunctive relief resulting from Hazardous Materials or arising from alleged injury or threat of injury to health, safety or the environment.
29.34 Intentionally Omitted.
29.35 Intentionally Omitted.
29.36 Intentionally Omitted.
29.37 OFAC. Tenant and Landlord each represents and warrants to the other that the representing party is currently in compliance with and shall at all times during the Lease Term (including any extension thereof) remain in compliance with the regulations of OFAC (including those named on OFAC's Specially Designated and Blocked Persons List) and any statute, executive order (including the September 24, 2001, Executive Order Blocking Property and Prohibiting Transactions with Persons Who Commit, Threaten to Commit, or Support Terrorism), or other governmental action relating thereto.
29.38 Rooftop Rights. Subject to, (A) reasonable construction rules and regulations promulgated by Landlord, (B) the Building standards therefor, and (C) the TCCs set forth in Article 8 of this Lease and this Section 29.38, Tenant may install, repair, maintain and use, at Tenant's sole cost and expense, but without the payment of any Base Rent or similar fee or charge, satellite dishes, antennas or similar equipment (the number of which shall be determined by Landlord in its reasonable discretion) on the roof of the Buildings for the sending and receiving of signals or broadcasts (provided that there shall be no generation or transmission of commercial signals or broadcasts) servicing the business conducted by Tenant from within the Premises (such satellite is defined as the "Rooftop Equipment"). Tenant shall be solely responsible for any and all costs incurred or arising in connection with the Rooftop Equipment, including, but not limited to, costs of electricity and insurance related to the Rooftop Equipment. Landlord makes no representations or warranties whatsoever with respect to the condition of the roof of the Buildings, or the fitness or suitability of the roof of the Buildings for the installation, maintenance and operation of the Rooftop Equipment, including, without limitation, with respect to the quality and clarity of any receptions and transmissions to or from the Rooftop Equipment and the presence of any interference with such signals whether emanating from the Buildings or otherwise. The physical appearance and the size of the Rooftop Equipment shall be subject to Landlord's reasonable approval, the location of any such Rooftop Equipment shall be mutually and reasonably agreed upon by Landlord and Tenant and Landlord may require Tenant to install screening around such Rooftop Equipment, at Tenant's sole cost and expense, as reasonably designated by Landlord. Tenant shall service, maintain and repair such Rooftop Equipment, at Tenant's sole cost and expense. In the event Tenant elects to exercise its right to install the Rooftop Equipment, then Tenant shall give Landlord prior notice thereof. Tenant shall reimburse to Landlord the actual costs reasonably incurred by Landlord in approving such Rooftop Equipment, not to exceed Three Thousand Five Hundred Dollars ($3,500.00). Tenant's rights under this Section 29.38 shall terminate and shall be of no further force or effect upon the expiration or earlier termination of this Lease, or, in the event Tenant (or a Permitted Transferee) no longer occupies the Premises. Prior to the expiration or earlier termination of this Lease, Tenant shall, as promptly as possible but in no event more than fifteen (15) days thereafter, remove and restore the affected portion of the rooftop and the Premises to the condition the rooftop, and the Premises would have been in had no such Rooftop Equipment been installed (reasonable wear and tear excepted). Such Rooftop Equipment shall be installed pursuant to plans and specifications approved by Landlord (specifically including, without limitation, all mounting and waterproofing details), which approval will not be unreasonably withheld, conditioned, or delayed. Notwithstanding any such review or approval by Landlord, Tenant shall remain solely liable for any damage arising in connection with Tenant's installation, use, maintenance and/or repair of such Rooftop Equipment, including, without limitation, any damage to a portion of the roof or roof membrane and any penetrations to the roof. Landlord and Tenant hereby acknowledge and agree that Landlord shall have no liability in connection with Tenant's installation, use, maintenance and/or repair of such Rooftop Equipment. Such Rooftop Equipment shall, in all instances, comply with applicable governmental laws, codes, rules and regulations. Tenant shall not be entitled to license its Rooftop Equipment to any third party, nor shall Tenant be permitted to receive any revenues,
41 | ||
fees or any other consideration for the use of such Rooftop Equipment by a third party. Tenant's right to install such Rooftop Equipment shall be non-exclusive, and Tenant hereby expressly acknowledges Landlord's continued right (i) to itself utilize any portion of the rooftop of the Buildings, and (ii) to re-sell, license or lease any rooftop space to an unaffiliated third party; provided, however, such Landlord (or third party) use shall not materially interfere with (or preclude the installation of) Tenant's Rooftop Equipment and shall be subject to Tenant's reasonable prior approval.
29.39 Green Cleaning/Recycling. To the extent a "green cleaning program" and/or a recycling program is implemented by Landlord or the Association in the Buildings and/or Project, as applicable (each in Landlord's or the Association's sole and absolute discretion), Tenant shall, at Tenant's sole cost and expense, comply with the reasonable provisions of each of the foregoing programs (e.g., Tenant shall separate waste appropriately so that it can be efficiently processed by Landlord's particular recycling contractors). To the extent Tenant fails to comply with any of the recycling programs contemplated by the foregoing, Tenant shall be required to pay any contamination charges related to such non-compliance.
29.40 Incorporatization of Exhibits and Schedules. All Exhibits and Schedules attached to this Lease are hereby incorporated by reference.
[SIGNATURE PAGE FOLLOWS]
42 | ||
IN WITNESS WHEREOF, Landlord and Tenant have caused this Lease to be executed the day and date first above written.
LANDLORD:" FIVE POINT OFFICE VENTURE I, LLC, a Delaware limited liability company By: /s/ Michael Alvarado Name: Michael Alvarado Title: Vice President | |
TENANT:
BROADCOM CORPORATION,
a California corporation
By: /s/ Thomas H. Krause, Jr.
Name: Thomas H. Krause, Jr.
Title: Chief Financial Officer
EXHIBIT A-1
DEPICTION OF PREMISES

EXHIBIT A-2
DESCRIPTION OF LAND
PARCELS 1 THROUGH 17, INCLUSIVE, OF PARCEL MAP 2014‑122, IN THE CITY OF IRVINE, COUNTY OF ORANGE, STATE OF CALIFORNIA, AS PER MAP FILED IN BOOK 384, PAGES 1 THROUGH 10, INCLUSIVE, OF PARCEL MAPS IN THE OFFICE OF THE COUNTY RECORDER OF SAID COUNTY.
EXHIBIT B
FORM OF MEMORANDUM OF LEASE
PREPARED BY AND AFTER
RECORDING RETURN TO:
________________________________
________________________________
________________________________
________________________________
______________________________________________________________________________
(ABOVE SPACE FOR RECORDER'S USE ONLY)
(ABOVE SPACE FOR RECORDER'S USE ONLY)
MEMORANDUM OF LEASE
This MEMORANDUM OF LEASE is made this ____ day of ____________, 20__, between _______________________, a _________________ (hereinafter referred to as "Landlord"), and _______________________, a _________________ (hereinafter referred to as "Tenant").
W I T N E S S E T H:
Landlord and Tenant have entered into that certain Lease Agreement dated ____________, 2017 (the "Lease"), whereby Landlord has leased to Tenant certain premises (the "Premises") in the City of Irvine, County of Orange, State of California, and the legal description of property upon which the Premises is located is set forth on Exhibit A attached hereto and whereby Landlord has provided to Tenant certain rights with respect to the Common Areas of the Project (each as defined in the Lease). Among other provisions, the Lease contains the following provisions and rights:
I. | Term. The initial term of the Lease commences on _____________ and ends twenty (20) years after such date on ______________. Thereafter, Tenant has the right under the Lease to renew and extend the term of the Lease for one (1) period of ten (10) years, as more fully provided in Section 2.2 of the Lease. |
II. | Successors. The covenants, conditions and agreements made and entered into by the parties hereto shall be binding upon and inure to the benefits of their respective heirs, administrators, executors, representatives, successors and assigns. |
III | Incorporation of Lease. All terms and conditions of the Lease are hereby incorporated herein by reference as if fully set forth herein. |
IV. | Conflicts with Lease. This Memorandum of Lease is solely for notice and recording purposes and shall not be construed to alter modify, expand, diminish or supplement the provisions of the Lease. In the event of any inconsistency between the provisions of this Memorandum of Lease and the provisions of the Lease, the provisions of the Lease shall govern. |
[REMAINDER OF PAGE INTENTIONALLY LEFT BLANK]
IN WITNESS WHEREOF, this Memorandum of Lease has been duly executed by the parties hereto as of the day and year first above written.
LANDLORD
By:
Its:
By:
Its:
TENANT
By:
Name:
Title:
A notary public or other officer completing this certificate verifies only the identity of the individual who signed the document to which this certificate is attached, and not the truthfulness, accuracy, or validity of that document. |
ACKNOWLEDGMENT
State of California )
County of ______________________ )
On _________________________, before me, ,
(insert name of notary)
Notary Public, personally appeared , who proved to me on the basis of satisfactory evidence to be the person(s) whose name(s) is/are subscribed to the within instrument and acknowledged to me that he/she/they executed the same in his/her/their authorized capacity(ies), and that by his/her/their signature(s) on the instrument the person(s), or the entity upon behalf of which the person(s) acted, executed the instrument.
I certify under PENALTY OF PERJURY under the laws of the State of California that the foregoing paragraph is true and correct.
WITNESS my hand and official seal.
Signature (Seal)
A notary public or other officer completing this certificate verifies only the identity of the individual who signed the document to which this certificate is attached, and not the truthfulness, accuracy, or validity of that document. |
ACKNOWLEDGMENT
State of California )
County of ______________________ )
On _________________________, before me, ,
(insert name of notary)
Notary Public, personally appeared , who proved to me on the basis of satisfactory evidence to be the person(s) whose name(s) is/are subscribed to the within instrument and acknowledged to me that he/she/they executed the same in his/her/their authorized capacity(ies), and that by his/her/their signature(s) on the instrument the person(s), or the entity upon behalf of which the person(s) acted, executed the instrument.
I certify under PENALTY OF PERJURY under the laws of the State of California that the foregoing paragraph is true and correct.
WITNESS my hand and official seal.
Signature (Seal)
EXHIBIT A
LEGAL DESCRIPTION OF PROJECT
PARCELS 1 AND 7 OF PARCEL MAP 2014‑122, IN THE CITY OF IRVINE, COUNTY OF ORANGE, STATE OF CALIFORNIA, AS PER MAP FILED IN BOOK 384, PAGES 1 THROUGH 10, INCLUSIVE, OF PARCEL MAPS IN THE OFFICE OF THE COUNTY RECORDER OF SAID COUNTY.
EXHIBIT C
RULES AND REGULATIONS
Tenant shall faithfully observe and comply with the following Rules and Regulations. Landlord shall not be responsible to Tenant for the nonperformance of any of said Rules and Regulations by or otherwise with respect to the acts or omissions of any other tenants or occupants of the Project. In the event of any conflict between the Rules and Regulations and the other provisions of this Lease, the latter shall control.
1.Tenant shall bear the cost of any lock changes or repairs required by Tenant. Two (2) keys will be furnished by Landlord for the Premises, and any additional keys required by Tenant must be obtained from Landlord at a reasonable cost to be established by Landlord. Upon the termination of this Lease, Tenant shall restore to Landlord all keys of stores, offices, and toilet rooms, either furnished to, or otherwise procured by, Tenant and in the event of the loss of keys so furnished, Tenant shall pay to Landlord the cost of replacing same or of changing the lock or locks opened by such lost key if Landlord shall deem it necessary to make such changes.
2. All doors opening to public corridors shall be kept closed at all times except for normal ingress and egress to the Premises.
3. Landlord and his agents shall in no case be liable for damages for any error with regard to the admission to or exclusion from the Buildings of any person. In case of invasion, mob, riot, public excitement, or other commotion, Landlord reserves the right to prevent access to the Buildings or the Project during the continuance thereof by any means it deems appropriate for the safety and protection of life and property.
4. Landlord will not be responsible for loss of or damage to any safe or property in any case. Subject to the provisions of Section 10.1 of this Lease, any damage to any part of the Buildings, its contents, occupants or visitors by moving or maintaining any such safe or other property shall be the sole responsibility and expense of Tenant.
5. The requirements of Tenant will be attended to only upon application at the management office for the Project or at such office location designated by Landlord. Employees of Landlord shall not perform any work or do anything outside their regular duties unless under special instructions from Landlord.
6. Tenant shall not disturb, solicit, peddle, or canvass any occupant of the Project and shall cooperate with Landlord and its agents of Landlord to prevent same.
7. Landlord reserves the right to exclude or expel from the Project any person who, in the judgment of Landlord, is intoxicated or under the influence of liquor or drugs, or who shall in any manner do any act in violation of any of these Rules and Regulations.
8. Tenant, its employees and agents shall not loiter in or on the entrances, corridors, sidewalks, lobbies, courts, halls, stairways, elevators, vestibules or any Common Areas for the purpose of smoking tobacco products or for any other purpose, nor in any way obstruct such areas, and shall use them only as a means of ingress and egress for the Premises. Furthermore, in no event shall Tenant, its employees or agents smoke tobacco products within the Buildings or within seventy-five feet (75') of any entrance into the Buildings or into any other Project building.
9. No material shall be placed in the trash boxes or receptacles if such material is of such nature that it may not be disposed of in the ordinary and customary manner of removing and disposing of trash and garbage in the Irvine, California without violation of any law or ordinance governing such disposal. All trash, garbage and refuse disposal shall be made only through entry-ways and elevators provided for such purposes at such times as Landlord shall designate. If the Premises is or becomes infested with vermin as a result of the use or any misuse or neglect of the Premises by Tenant, its agents, servants, employees, contractors, visitors or licensees, Tenant shall forthwith, at Tenant's expense, cause the Premises to be exterminated from time to time to the satisfaction of Landlord and shall employ such licensed exterminators as shall be approved in writing in advance by Landlord.
10. Tenant shall comply with all safety, fire protection and evacuation procedures and regulations reasonably established by Landlord or any governmental agency.
11. Tenant must comply with applicable "NO-SMOKING" ordinances and all related, similar or successor ordinances, rules, regulations or codes. If Tenant is required under the ordinance to adopt a written smoking policy, a copy of said policy shall be on file in the office of the Buildings. In addition, no smoking of any substance (including use of e-cigarettes) shall be permitted within the Project except in specifically designated outdoor areas. Within such designated outdoor areas, all remnants of consumed cigarettes and related paraphernalia shall be deposited in ash trays and/or waste receptacles. No cigarettes shall be extinguished and/or left on the ground or any other surface of the Project. Cigarettes shall be extinguished only in ashtrays. Furthermore, in no event shall Tenant, its employees or agents smoke tobacco products or other substances or use e-cigarettes within any interior areas of the Project or within seventy-five feet (75') of any entrance into the Buildings or into any other Project building.
12. Tenant hereby acknowledges that Landlord shall have no obligation to provide guard service or other security measures for the benefit of the Premises, the Buildings or the Project. Tenant hereby assumes all responsibility for the protection of Tenant and its agents, employees, contractors, invitees and guests, and the property thereof, from acts of third parties, including keeping doors locked and other means of entry to the Premises closed, whether or not Landlord, at its option, elects to provide security protection for the Project or any portion thereof. Tenant further assumes the risk that any safety and security devices, services and programs which Landlord elects, in its sole discretion, to provide may not be effective, or may malfunction or be circumvented by an unauthorized third party, and Tenant shall, in addition to its other insurance obligations under this Lease, obtain its own insurance coverage to the extent Tenant desires protection against losses related to such occurrences. Tenant shall cooperate in any reasonable safety or security program developed by Landlord or required by law.
13. No auction, liquidation, fire sale, going-out-of-business or bankruptcy sale shall be conducted in the Premises without the prior written consent of Landlord.
14. Landlord reserves the right at any time to reasonably change or rescind any one or more of these Rules and Regulations, or to make such other and further reasonable Rules and Regulations as in Landlord's judgment may from time to time be necessary for the management, safety, care and cleanliness of the Premises, the Common Areas and the Project, and for the preservation of good order therein, as well as for the convenience of other occupants and tenants therein. Landlord shall use commercially reasonable efforts to promptly notify Tenant of such change or rescission following Landlord's decision in connection therewith. Landlord may waive any one (1) or more of these Rules and Regulations for the benefit of any particular tenants, but no such waiver by Landlord shall be construed as a waiver of such Rules and Regulations in favor of any other tenant, nor prevent Landlord from thereafter enforcing any such Rules or Regulations against any or all tenants of the Project.
EXHIBIT D
FORM OF TENANT'S ESTOPPEL CERTIFICATE
The undersigned as Tenant under that certain Lease Agreement (the "Lease") made and entered into as of _______________________, 20___ by and between as Landlord, and the undersigned as Tenant, for Premises in the buildings located at _____________________, Irvine, California, certifies to Tenant's knowledge as follows:
1. Attached hereto as Exhibit A is a true and correct copy of the Lease and all amendments and modifications thereto as of the date of this Estoppel Certificate. The documents contained in Exhibit A represent the entire agreement between the parties as to the Premises.
2. The undersigned currently occupies the Premises described in the Lease, the Lease Term commenced on ________________________ (the "Commencement Date"), and the Lease Term expires on ________________________, and the undersigned has no option to terminate or cancel the Lease or to purchase all or any part of the Premises, the Buildings and/or the Project.
3. Base Rent became payable on the Commencement Date.
4. The Lease is in full force and effect and has not been modified, supplemented or amended in any way except as provided in Exhibit A.
5. Tenant has not transferred, assigned, or sublet any portion of the Premises nor entered into any license or concession agreements with respect thereto except as follows
6. Tenant shall not modify the documents contained in Exhibit A without the prior written consent of Landlord's mortgagee.
7. All monthly installments of Rent (i.e., Base Rent and all Additional Rent and all monthly installments of estimated Additional Rent) have been paid when due through _____________. The current monthly installment of Base Rent is $__________________.
8. All conditions of the Lease to be performed by Landlord necessary to the enforceability of the Lease have been satisfied. Landlord is not in default under the Lease. In addition, the undersigned has not delivered any notice to Landlord regarding a default by Landlord thereunder.
9. No rental has been paid more than thirty (30) days in advance and no security deposit has been deposited with Landlord.
10. As of the date hereof, there are no existing defenses or offsets, or, to the undersigned's knowledge, claims or any basis for a claim, that the undersigned has against Landlord.
11. There are no actions pending against the undersigned under the bankruptcy or similar laws of the United States or any state.
12. Other than incidental to the ordinary course of the use of the Premises and in compliance with all Environmental Laws (as defined in the Lease), the undersigned has not used or stored any Hazardous Material (as defined in the Lease) in the Premises.
[SIGNATURE PAGE TO FOLLOW]
The undersigned acknowledges that this Estoppel Certificate may be delivered to Landlord or to an existing mortgagee of Landlord, prospective mortgagee or prospective purchaser of the Premises, and acknowledges that said mortgagee, prospective mortgagee or prospective purchaser will be relying upon the statements contained herein in making or acquiring the loan or acquiring the property of which the Premises are a part and that receipt by it of this certificate is a condition of making or acquiring such loan or acquiring such property.
Executed at ___________________ on the ___ day of __________ , 20___.
"TENANT" | BROADCOM CORPORATION, a California corporation By: Name: Title: By: Name: Title: |
EXHIBIT E
RECORDING REQUESTED BY
AND WHEN RECORDED RETURN TO:
RECOGNITION OF COVENANTS,
CONDITIONS, AND RESTRICTIONS
CONDITIONS, AND RESTRICTIONS
This Recognition of Covenants, Conditions, and Restrictions (this "Agreement") is entered into as of the ___ day of _______________, 20______, by and between _________________ ("Landlord"), and _________________ ("Tenant"), with reference to the following facts:
A. Landlord and Tenant entered into that certain Lease Agreement dated ________________, 20_____ (as may be amended and restated from time to time, the "Lease"). Pursuant to the Lease, Landlord leased to Tenant and Tenant leased from Landlord space (the "Premises") located in two (2) buildings on certain real property described in Exhibit A attached hereto and incorporated herein by this reference (the "Property").
B. The Property is part of an area owned by Landlord containing approximately _____________ (_____) acres of real property located in the City of Irvine, California (the "Project"), as more particularly described in Exhibit B attached hereto and incorporated herein by this reference.
C. Landlord, as declarant, has previously recorded, or proposes to record concurrently with the recordation of this Agreement, an Amended and Restated Declaration of Covenants, Conditions, Restrictions and Reservations of Easements (the "Declaration"), dated ____________, 20____, in connection with the Project.
D. Tenant is agreeing to recognize and be bound by the terms of the Declaration, and the parties hereto desire to set forth their agreements concerning the same.
NOW, THEREFORE, in consideration of (a) the foregoing recitals and the mutual agreements hereinafter set forth, and (b) for other good and valuable consideration, the receipt and sufficiency of which are hereby acknowledged, the parties hereto agree as follows.
1. Tenant's Recognition of Declaration. Notwithstanding that the Lease has been executed prior to the recordation of the Declaration, Tenant agrees to recognize and by bound by all of the terms and conditions of the Declaration to the extent not inconsistent with the express terms and conditions of the Lease.
2. Miscellaneous.
2.1 This Agreement shall be binding upon and inure to the benefit of the parties hereto and their respective heirs, estates, personal representatives, successors, and assigns.
2.2 This Agreement is made in, and shall be governed, enforced and construed under the laws of, the State of California.
2.3 This Agreement constitutes the entire understanding and agreements of the parties with respect to the subject matter hereof, and shall supersede and replace all prior understandings and agreements, whether verbal or in writing. The parties confirm and acknowledge that there are no other promises, covenants, understandings, agreements, representations, or warranties with respect to the subject matter of this Agreement except as expressly set forth herein.
2.4 This Agreement is not to be modified, terminated, or amended in any respect, except pursuant to any instrument in writing duly executed by both of the parties hereto.
2.5 In the event that either party hereto shall bring any legal action or other proceeding with respect to the breach, interpretation, or enforcement of this Agreement, or with respect to any dispute relating to any transaction covered by this Agreement, the losing party in such action or proceeding shall reimburse the prevailing party therein for all reasonable costs of litigation, including reasonable attorneys' fees, in such amount as may be determined by the court or other tribunal having jurisdiction, including matters on appeal.
2.6 All captions and heading herein are for convenience and ease of reference only, and shall not be used or referred to in any way in connection with the interpretation or enforcement of this Agreement.
2.7 If any provision of this Agreement, as applied to any party or to any circumstance, shall be adjudged by a court of competent jurisdictions to be void or unenforceable for any reason, the same shall not affect any other provision of this Agreement, the application of such provision under circumstances different from those adjudged by the court, or the validity or enforceability of this Agreement as a whole.
2.8 Time is of the essence of this Agreement.
2.9 The Parties agree to execute any further documents, and take any further actions, as may be reasonable and appropriate in order to carry out the purpose and intent of this Agreement.
2.10 As used herein, the masculine, feminine or neuter gender, and the singular and plural numbers, shall each be deemed to include the others whenever and whatever the context so indicates.
SIGNATURE PAGE OF RECOGNITION OF
COVENANTS, CONDITIONS AND RESTRICTIONS
IN WITNESS WHEREOF, the parties hereto have duly executed this Agreement as of the day and year first above written.
LANDLORD: FIVE POINT OFFICE VENTURE I, LLC, a Delaware limited liability company By: Name: Title: | TENANT: BROADCOM CORPORATION, a California corporation By: Name: Title: |
A notary public or other officer completing this certificate verifies only the identity of the individual who signed the document to which this certificate is attached, and not the truthfulness, accuracy, or validity of that document. |
ACKNOWLEDGMENT
State of California )
County of ______________________ )
On _________________________, before me, ,
(insert name of notary)
Notary Public, personally appeared , who proved to me on the basis of satisfactory evidence to be the person(s) whose name(s) is/are subscribed to the within instrument and acknowledged to me that he/she/they executed the same in his/her/their authorized capacity(ies), and that by his/her/their signature(s) on the instrument the person(s), or the entity upon behalf of which the person(s) acted, executed the instrument.
I certify under PENALTY OF PERJURY under the laws of the State of California that the foregoing paragraph is true and correct.
WITNESS my hand and official seal.
Signature (Seal)
A notary public or other officer completing this certificate verifies only the identity of the individual who signed the document to which this certificate is attached, and not the truthfulness, accuracy, or validity of that document. |
ACKNOWLEDGMENT
State of California )
County of ______________________ )
On _________________________, before me, ,
(insert name of notary)
Notary Public, personally appeared , who proved to me on the basis of satisfactory evidence to be the person(s) whose name(s) is/are subscribed to the within instrument and acknowledged to me that he/she/they executed the same in his/her/their authorized capacity(ies), and that by his/her/their signature(s) on the instrument the person(s), or the entity upon behalf of which the person(s) acted, executed the instrument.
I certify under PENALTY OF PERJURY under the laws of the State of California that the foregoing paragraph is true and correct.
WITNESS my hand and official seal.
Signature (Seal)
EXHIBIT A
LEGAL DESCRIPTION OF PROPERTY
EXHIBIT B
LEGAL DESCRIPTION OF THE PROJECT
EXHIBIT F
DESCRIPTION OF PERMIT SET

SCHEDULE 21.3
DELIVERIES FOR COMPLETION OF
TENANT'S BUILDING WORK
TENANT'S BUILDING WORK
The deliverables shall include, without limitation, all as-builts that are produced by the GC or Architect, all commissioning reports that are issued by the GC, Architect, Altura Associates, Inc. or any other entity, all certificates of occupancy (temporary or permanent) that are issued by the City and all permit signoff cards or inspection reports which are completed/issued by the City or any other governmental agency (i.e., Fire or Health Department) for the Premises. Without limiting the foregoing, all of the site work shall be completed in accordance with the Building Specifications, and until the City has given its final sign off on the permit for the site work, Broadcom shall diligently pursue the completion of the site work in accordance with commercially reasonable standards to the extent required for Purchaser to obtain a temporary certificate of occupancy for the Vacant Buildings (which will allow tenants to occupy the Vacant Buildings) by January 1, 2018; provided, however, that Broadcom shall have no liability for not meeting such date as long as it is diligently pursuing the completion of the site work or such failure is due to delays in Seller's Work (under the Five Point PSA) or other causes beyond Broadcom's control.
SCHEDULE 28
DEPICTION OF TENANT'S PARKING AREAS
FOR EACH BUILDING
FOR EACH BUILDING

Landlord Signature Page for Lease Agreement | ||