Exhibit 10.1
ELEVENTH AMENDMENT TO OFFICE LEASE
This ELEVENTH AMENDMENT TO OFFICE LEASE (“Eleventh Amendment”) is made as of the 24th day of October, 2024 (the “Eleventh Amendment Effective Date”), by and between T-C 888 BRANNAN OWNER LLC, a Delaware limited liability company (“Landlord”), and AIRBNB, INC., a Delaware corporation (“Tenant”).
RECITALS
A. Landlord (as successor-in-interest to 888 Brannan LP) is the landlord and Tenant is the tenant under that certain Office Lease dated April 26, 2012 (the “Initial Lease”), as amended by that certain First Amendment to Lease dated as of December 10, 2013 (the “First Amendment”), Second Amendment to Office Lease dated May 29, 2014 (the “Second Amendment”), Letter Agreements dated April 26, 2012, November 7, 2012 and October 16, 2014, Third Amendment to Office Lease dated February 24, 2015 (the “Third Amendment”), Fourth Amendment to Lease dated May 13, 2015 (the “Fourth Amendment”), Fifth Lease Amendment executed by Tenant on June 14, 2017 (the “Fifth Amendment”), Sixth Amendment to Office Lease dated September 26, 2019 (the “Sixth Amendment”), Seventh Amendment to Office Lease dated October 8, 2020 (the “Seventh Amendment”), Eighth Amendment to Office Lease dated September 28, 2021 (the “Eighth Amendment”), Ninth Amendment to Office Lease dated October 18, 2022 (the “Ninth Amendment”), and Tenth Amendment to Office Lease dated October 18, 2023 (the “Tenth Amendment”) for certain premises (the “Existing Premises”) in the building known as 888 Brannan (comprised of those two adjoining buildings commonly known as 850 Brannan [the “850 Building”] and 870 Brannan [the “870 Building”] (the 850 Building and 870 Building are collectively referred to as the “Building”), all as more fully described in the Initial Lease as amended by the amendments referenced above. The Existing Premises is comprised of (i) 36,490 square feet of Rentable Area (“RSF”) on the ground floor of the 850 Building and 35,048 RSF on the 3rd floor of the 850 Building (collectively, the “850 Premises”); and (ii) the following premises located within the 870 Building (collectively, the “Existing 870 Premises”): approximately 24,100 RSF (including mezzanine space) on the 1st floor (which was referred to as the First Floor Expansion Premises in the Sixth Amendment), 59,349 RSF on the 2nd floor (which includes 2,309 RSF of common area corridor space), 62,459 RSF on the 3rd floor, 59,098 RSF on the 4th floor, and 12,933 RSF on the 5th floor. As used herein the term “Amended Lease” shall mean the Initial Lease amended as described above and the term “Lease” shall mean the Amended Lease as further amended by this Eleventh Amendment.
B. The Term of the Amended Lease is currently scheduled to expire on December 31, 2026 (“Current Expiration Date” and such current Term, the “Term”).
C. The parties desire to amend the Amended Lease to: (i) extend the Term; (ii) modify the “Premises” to be comprised of an aggregate of 250,903 RSF in the 870 Building, comprised as follows:
(a) 51,949 RSF on the 1st floor of the 870 Building (which includes the “Expansion Space,” as defined below);
(b) 61,524 RSF on the 2nd floor of the 870 Building;
(c) 62,494 RSF on the 3rd floor of the 870 Building;
(d) 61,475 RSF on the 4th floor of the 870 Building; and
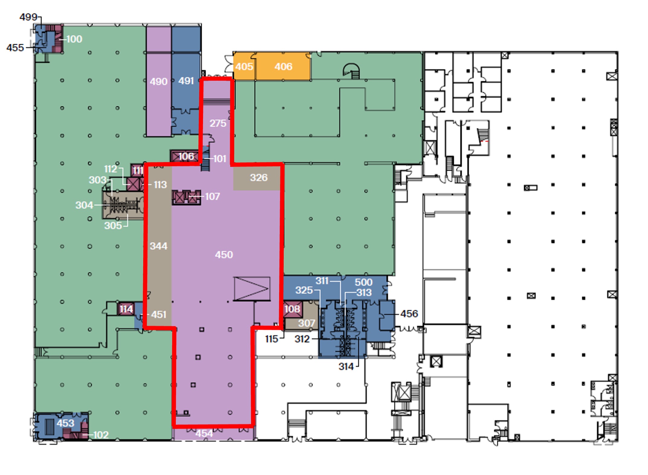
(e) 13,460 RSF on the 5th floor of the 870 Building; (iii) confirm that the Amended Lease will expire with respect to the 850 Premises as of the Current Expiration Date and provide for the surrender of the 850 Premises on or before the Current Expiration Date; and (iv) make certain other modifications, all as more fully set forth below. As used herein, the term “Expansion Space” means the 28,190 RSF on the 1st floor of the 870 Building as depicted on Exhibit A attached hereto.
D. Except as otherwise specifically defined herein all capitalized terms shall have the meanings assigned in the Amended Lease.
AGREEMENT
In furtherance of the Recitals set forth above, which are incorporated herein by reference, and in consideration of the mutual promises and covenants set forth below, and for other good and valuable consideration, the receipt and adequacy of which are hereby acknowledged, the parties acknowledge and agree to the following:
1.Expansion. Effective as of July 1, 2025 (the “Target Expansion Effective Date”), the combined Existing Premises and the Expansion Space, shall be deemed the “Premises”, as defined in the Amended Lease (the date upon which the Expansion Space is so added to the “Premises” is referred to herein as the “Expansion Effective Date”). Tenant’s leasing of the Expansion Space shall commence on the Expansion Effective Date and end on the Extended Term Expiration Date (as hereinafter defined); provided, however, if Landlord, for any reason whatsoever, cannot deliver possession of the Expansion Space to Tenant in the condition required hereunder (i.e., broom clean and free of Landlord’s or any prior occupant’s property) by the Target Expansion Effective Date, this Eleventh Amendment will not be void or voidable and Landlord will not be liable to Tenant for any resulting loss or damage, but (a) the “Premises” will not be deemed to include the Expansion Space, and the Expansion Effective Date will not be deemed to occur, until Landlord delivers the Expansion Space to Tenant in the condition required hereunder and (b) if for any reason other than due to the acts or omissions of Tenant Landlord fails to deliver the Expansion Space to Tenant in the condition required hereunder by August 1, 2025 (the “Outside Expansion Space Delivery Date”), then Tenant will be entitled to a day-for-day abatement of Base Rent payable for the Expansion Space for each day after the Outside Expansion Space Delivery Date that Landlord fails to so deliver possession of the Expansion Space to Tenant; said abatement to be applied immediately following the Expansion Space free rent period described in Section 4(b) below. Tenant’s leasing of the Expansion Space shall be subject to all the terms and conditions of the Amended Lease except as expressly modified herein and except that Tenant shall not be entitled to receive any allowances, abatements or other financial concessions granted with respect to the Existing Premises unless such concessions are expressly provided for herein with respect to the Expansion Space.
2.850 Premises. Tenant shall vacate and surrender the 850 Premises to Landlord in accordance with the terms of the Amended Lease on or prior to the Extended Term Commencement Date (as defined below) (the Extended Term Commencement Date being also referred to herein as the “Reduction Effective Date”), and Tenant shall fully comply with all obligations under the Amended Lease respecting the 850 Premises up to the Reduction Effective Date, including those provisions relating to maintaining the condition of the 850 Premises and removal of Tenant’s property therefrom. The “Non-Standard Tenant Improvements or Alterations” (as defined in the Initial Lease) to be removed by Tenant from the 850 Premises by the Extended Term Commencement Date are identified in Exhibit C attached hereto. As of the Reduction Effective Date, the Amended Lease shall be deemed terminated with respect to the 850 Premises, and the “Premises”, as defined in the Amended Lease, shall be deemed to mean the Existing Premises, excluding the 850 Premises. Accordingly, effective as of the Reduction Effective Date, after the expansion and reduction provided in Section 1 above and this Section 2, the “Premises” shall consist of the following spaces located within the 870 Building:
-2- | ||||||||
(i) 51,949 RSF on the 1st floor,
(ii) 61,524 RSF on the 2nd floor,
(iii) 62,494 RSF on the 3rd floor,
(iv) 61,475 RSF on the 4th floor, and
(v) 13,460 RSF on the fifth floor.
If Tenant holds over in the 850 Premises beyond the Reduction Effective Date, Tenant shall be liable for Base Rent, Additional Rent and other charges respecting the 850 Premises equal to the holdover rate provided under the Amended Lease prorated on a per RSF basis for the 850 Premises. Such holdover amount shall not be in limitation of Tenant’s liability for consequential or other damages arising from Tenant’s holding over nor shall it be deemed permission for Tenant to holdover in the 850 Premises.
3.Extension.
a.The Term for Tenant’s leasing of the Premises (as expanded and reduced as described herein) shall be extended for the one hundred twenty-nine (129) full calendar month period (the “Extended Term”) commencing on January 1, 2027 (the “Extended Term Commencement Date”) and expiring on September 30, 2037 (the “Extended Term Expiration Date”) unless extended further as provided in the Lease. No such extension shall operate to release Tenant from liability for any amounts owed or defaults which exist under the Lease prior to the Extended Term Commencement Date.
b.The Storage Term (as defined in Section 1 of the Seventh Amendment) is hereby extended so as to expire on the Current Expiration Date. Tenant’s Storage Use (as defined in the Seventh Amendment) shall continue to be governed by the terms of the Seventh Amendment and will continue to the end of the Storage Term, as amended as described above.
4.Base Rent.
a.Prior to the Expansion Effective Date, Tenant shall continue to pay Base Rent and Additional Rent pursuant to the terms of the Amended Lease with respect to the Existing Premises.
b.Tenant shall not be obligated to pay Base Rent for the Expansion Space for the period following the Expansion Effective Date through the Current Expiration Date.
c.Commencing on the Extended Term Commencement Date and continuing for the duration of the Extended Term, Tenant shall pay Base Rent for the Premises (as configured following the reduction and expansion described above) according to the following schedule:
| Period of Extended Term | Approx. Annual Base Rent per RSF (NNN) | Monthly Base Rent based on 250,903 RSF | ||||||
| *1/1/27 - 9/30/27 | $58.00 | $1,212,697.83 | ||||||
| *10/1/27 - 9/30/28 | $58.00 | $1,212,697.83 | ||||||
| 10/1/28 - 9/30/29 | $59.74 | $1,249,078.77 | ||||||
| 10/1/29 - 9/30/30 | $61.53 | $1,286,551.13 | ||||||
-3- | ||||||||
| 10/1/30 - 9/30/31 | $63.38 | $1,325,147.67 | ||||||
| 10/1/31 - 9/30/32 | $65.28 | $1,364,902.10 | ||||||
| 10/1/32 - 9/30/33 | $67.24 | $1,405,849.16 | ||||||
| 10/1/33 - 9/30/34 | $69.26 | $1,448,024.63 | ||||||
| 10/1/34 - 9/30/35 | $71.33 | $1,491,465.37 | ||||||
| 10/1/35 - 9/30/36 | $73.47 | $1,536,209.33 | ||||||
| 10/1/36 - 9/30/37 | $75.68 | $1,582,295.61 | ||||||
All such monthly Base Rent shall be payable by Tenant in accordance with the terms of the Lease. Notwithstanding the foregoing or anything in the Lease to the contrary, commencing as of the Extended Term Commencement Date, Base Rent shall be paid to Landlord net of all costs and expenses, as provided in Section 5 below. Sections 3.4(a) and (b) of the Initial Lease will not be applicable to the obligation to pay Base Rent during the Extended Term and, effective as of the Extension Date, will be deemed deleted and deemed null, void and of no further force or effect.
*Notwithstanding the foregoing, provided there is no Event of Default under the Lease, Landlord hereby agrees to abate Tenant’s obligation to pay Base Rent and Tenant’s Percentage Share of Operating Expenses and Property Taxes during: (a) the first (1st) through the ninth (9th) full calendar months, inclusive, of the Extended Term (i.e., January 2027 through September 2027, inclusive) (the “Construction Period”) (such amount of abated Rent during the Construction Period being referred to herein as the “Construction Period Abated Amount”), and (b) the tenth (10th) through the nineteenth (19th) full calendar months, inclusive, of the Extended Term (i.e., October 2027 through July 2028, inclusive) (the “Abatement Period”) (such amount of abated Rent during the Abatement Period being referred to herein as the “Abated Rent”) (the Construction Period Abated Amount and the Abated Rent are collectively referred to herein as the “Abated Amount”). During the Construction Period and the Abatement Period, Tenant will still be responsible for the payment of all other monetary obligations under the Lease, including, without limitation, the cost of utilities supplied to the Premises, any After Hours HVAC charges, the cost of janitorial services provided to the Premises, charges for Parking Privileges, and other gross income tax or excise tax levied by any taxing authority or adopted by any voter initiative or ballot measure with respect to the receipt of the rental payable under the Lease, including, without limitation, the San Francisco Commercial Rent Tax for Childcare and Early Education (June 2018 Proposition C), the Early Education Homelessness Gross Receipts Tax (November 2018 Proposition C), and the San Francisco Gross Receipts Tax and Business Registration Fees Ordinance (2012 Proposition E). Tenant acknowledges that any Event of Default will cause Landlord to incur costs not contemplated hereunder, the exact amount of such costs being extremely difficult and impracticable to ascertain. Therefore, should there be an Event of Default at any time during the Construction Period or the Abatement Period, then the right to the abatement of any then-remaining Abated Amount shall suspended from the date of such Event of Default until the date, if at all, that Tenant cures such Event of Default, at which point Tenant will be once again afforded the benefit of abating the then-remaining Abated Amount at the monthly amounts originally contemplated above, regardless of what the then-current monthly Rent payable is under the Lease (i.e., if the then-scheduled monthly Base Rent, Operating Expenses and Property Taxes exceed the originally scheduled monthly amount of the Abated Amount, then Tenant will only be entitled to the abatement of the originally scheduled monthly Abated Amount and will be obligated to pay any differential between the two sums). Additionally if, at any point during either or both of the Construction Period or the Abatement Period, Tenant is entitled to an abatement of Rent pursuant to the provisions of Articles 12 or 13 of the Initial
-4- | ||||||||
Lease, then the abatement of Rent described above with respect to the Construction Period or the Abatement Period, as applicable, will be suspended during the pendency of any such Casualty or Taking, and reinstated immediately following the expiration of any such Casualty or Taking related abatement of Rent (at the rates applicable to the originally scheduled periods, as described above). Tenant acknowledges and agrees that nothing in this paragraph is intended to limit any other remedies available to Landlord at law or in equity under applicable law (including, without limitation, the remedies under Civil Code Section 1951.2 and/or 1951.4 and any successor statutes or similar laws), in the event Tenant defaults under the Lease beyond any applicable cure period.
5.Tenant’s Percentage Share of Operating Expenses and Property Taxes. Notwithstanding anything in the Amended Lease to the contrary, commencing as of the Extended Term Commencement Date, Tenant shall pay Tenant’s Percentage of Operating Expenses and Property Taxes on a “net” basis, without taking into account any Base Year, and the “Rent” shall be absolutely net to Landlord. Commencing as of the Extended Term Commencement Date and continuing for the duration of the Extended Term, Tenant shall pay Tenant’s Percentage Share of Operating Expenses and Property Taxes for the Premises pursuant to the terms of the Lease (i.e., Tenant will no longer to obligated to pay only the excess thereof above the Base Year). For the purposes of determining Tenant’s Percentage Share of Operating Expenses and Property Taxes, Tenant’s Percentage Share shall be 68.17%, based on the Premises containing 250,903 RSF and the Building (excluding the basement/below-grade areas of the Building) containing 368,042 RSF. Notwithstanding the foregoing, provided there is no Event of Default under the Lease, Landlord shall abate Tenant’s obligation to pay Tenant’s Percentage Share of Operating Expenses and Property Taxes during the Construction Period and the Abatement Period, as provided above.
6.Condition of Existing Premises and Expansion Space.
a.Tenant acknowledges and agrees that Landlord shall not be obligated to refurbish or improve the Existing Premises, or, except as set forth in the Work Letter attached hereto as Exhibit B (the “Eleventh Amendment Work Letter”) to otherwise fund improvements for the Existing Premises in any manner whatsoever in conjunction with this Eleventh Amendment, and Tenant hereby agrees to accept the Existing Premises on the Extension Date in its “AS-IS” condition, subject to Landlord’s maintenance obligations under the Lease. Landlord plans to perform certain repairs to the roof and skylight(s) of the 850 Building, as described in the capital expenditure plan for fiscal year 2025 provided to Tenant prior to the Eleventh Amendment Effective Date (collectively, “Roof Repairs”). Landlord will complete the Roof Repairs on or before December 31, 2026, subject to extension for “Force Majeure” (as defined in the Initial Lease). In addition, promptly following the Eleventh Amendment Effective Date, Landlord and Tenant will meet and confer to discuss water leaks and agree upon a plan for testing the roof of the Building for water leaks. Thereafter, Landlord will use commercially reasonable, good faith diligent efforts to promptly make any necessary repairs.
b.Tenant hereby agrees that Landlord shall deliver to Tenant and Tenant shall accept the Expansion Space from Landlord in its then “AS-IS” condition (but broom clean and free of Landlord’s or any prior occupant’s property) on delivery by Landlord, without any representation or warranty as to their condition or the suitability thereof for the conduct of Tenant’s business, and the acceptance of possession of the Expansion Space by Tenant (i.e., the failure of Tenant to promptly notify Landlord of any cleaning or property removal which Landlord failed to perform with respect to the Expansion Space) shall establish that the Expansion Space is at such time in the condition required for delivery to Tenant.
c.Provided there is no then-current Event of Default under the Lease, commencing as of January 1, 2027, Landlord shall provide Tenant with an allowance of $122.50 per RSF of the Premises (i.e., $30,735,617.50, based on the Premises containing 250,903 RSF) (the “Allowance”), plus a space planning allowance to pay for preparation of a space plan (copies of which shall be provided to Landlord in
-5- | ||||||||
CAD and PDF formats) of $0.15 per RSF of the Premises (i.e., $37,635.45, based on the Premises containing 250,903 RSF) (the “Space Planning Allowance”). The Allowance and Space Planning Allowance shall be used and disbursed pursuant to the terms of the Eleventh Amendment Work Letter; provided, however, that Landlord will not be required to disburse any portion of the Allowance or the Space Planning Allowance during any period that an Event of Default exists. Notwithstanding anything herein to the contrary, any portion of the Allowance and/or Space Planning Allowance not used and requested as provided in the Work Letter as of January 1, 2030 (the “Outside Allowance Date”) shall be deemed waived and forfeited by Tenant, and Landlord shall have no obligation to pay or credit such unused portion of the Allowance and/or Space Planning Allowance to Tenant. The Outside Allowance Date will be delayed on a day-for-day basis for each day that Tenant’s design and/or permitting and/or construction of the Eleventh Amendment Tenant Improvements (defined in the Eleventh Amendment Work Letter) is delayed by Force Majeure Delay or Landlord Delay (as such terms are defined in the Eleventh Amendment Work Letter), as more particularly described in the Eleventh Amendment Work Letter.
d.Subject to the terms of this Section 6.d., Landlord, shall perform the following improvements to the Common Areas using new, first-class materials, finishes and specifications selected by Landlord at Landlord’s sole cost and expense (the “Landlord’s Work”):
(i.)Reconfigure the existing restrooms on the south side of the existing 870 Building lobby and construct a corridor so that such restrooms are only accessible from the space currently occupied by Bellota (the “Restaurant”), eliminating access from the Restaurant into the 870 Building’s Atrium;
(ii.)create an alternative ingress/egress to Suite 210-220 of the Existing Premises, eliminating access through the “Atrium” (defined below); and
(iii.)construct certain demising walls in the general locations shown in Exhibit D attached hereto, provided that the specific locations of such demising walls will be determined by Landlord and its architect as part of the design and permitting process (but in all events, Tenant will continue to have access to the common freight elevator serving the Building).
Tenant acknowledges that completion of the Landlord’s Work is not required for the Reduction Effective Date, the Expansion Effective Date, and/or the Extended Term Commencement Date, and agrees that the Landlord’s Work may be conducted, at Landlord’s discretion, while Tenant is in occupancy of the Premises and paying Rent under the Lease. Landlord agrees to use good faith, commercially reasonable efforts to conduct the performance of the Landlord’s Work in a manner which minimizes disturbance to Tenant’s business operations within the affected areas of the Premises to the extent practicable. Tenant agrees to cooperate with Landlord and to make the Premises, the Building and the Project reasonably available to Landlord and its contractors for the performance of such work. Tenant acknowledges that some interruptions and/or interference with Tenant’s business may occur during the course of the Landlord’s Work, but agrees that no interruptions or inconveniences to Tenant or its business suffered as a result of the Landlord’s Work shall constitute an eviction of Tenant from the Premises, whether constructive or otherwise, and Tenant shall in no event, be excused from paying any Rent that it is scheduled to pay pursuant to the terms of the Lease. Landlord may or may not perform the Landlord’s Work during normal business hours. If the Landlord’s Work is performed after Tenant’s business hours at Tenant’s request, Tenant shall pay to Landlord the additional third party costs, if any, actually incurred by Landlord to perform the Landlord’s Work after business hours. Landlord and Tenant shall in good faith cooperate and cause their respective employees, agents and contractors to cooperate with the other during the period in which Landlord is constructing the Landlord’s Work in an effort to expedite completion of the Landlord’s Work as well as to minimize any interference with Tenant’s business operations in the Premises.
-6- | ||||||||
For so long as Landlord is T-C 888 BRANNAN OWNER, LLC, a Delaware limited liability company, Landlord will submit applications for building permits for any work to be performed by Landlord under the address 888 Brannan; provided, however, that nothing in the foregoing will prohibit or restrict Landlord from submitting or revising permit applications to be under 850 Brannan and/or 870 Brannan after the City has required Landlord to do so.
7.Atrium. The Atrium area of the 870 Building is depicted in Exhibit E attached hereto (“Atrium”). Following the completion of Landlord’s Work (which Landlord currently plans to commence in the first calendar quarter of 2025), Tenant will have the exclusive right to use the Atrium and, so long as the Atrium area remains configured as an atrium, Tenant may make “Alterations” (as defined in the Amended Lease) thereto subject to the terms of the Amended Lease (including, without limitation, Sections 10.1 through 10.5 of the Initial Lease), provided that Landlord, its agents, employees will have the right to (a) use the Atrium to access the Project management office located in the 870 Building (Tenant agrees to provide access devices to permit such access at all times), and (b) enter the Atrium under the same terms as are applicable to Landlord’s entry into the Premises under the Amended Lease. With respect to Alterations to the Atrium, notwithstanding anything to the contrary in Section 10.5 of the Lease, Landlord may designate any of the following improvements or Alterations to or within the Atrium as improvements or Alterations to be removed and restored upon the expiration or termination of the Lease (i) any improvements or Alterations which are not consistent with the use of the Atrium or any portion thereof as an atrium and/or (ii) any improvements or Alterations unique to Tenant (e.g., items containing Tenant’s name, logo or the like). Following the completion of Landlord’s Work, the provisions of Section 5 of the Third Amendment and Sections 11 and 12 of the Fourth Amendment will no longer be applicable (because the Atrium will part of the Premises), although Tenant will continue to provide Landlord with evidence that any vendors of Tenant using or operating within the Atrium have liability insurance naming Landlord and its property manager as additional insureds reasonably satisfactory to Landlord prior to using the Atrium for any events. For the avoidance of doubt, nothing in this Section 7 shall be construed to grant Tenant any right to use the Common Area courtyard.
8.Decatur Alley and Parking Lot. At Tenant’s option, Tenant, at its sole cost and expense, may petition the City of San Francisco to convert Decatur alley into a non-vehicle street so long as Landlord will not incur any obligations or liabilities in connection therewith, provided that (a) such petition will be subject to Landlord’s prior written approval in its reasonable discretion, which approval will not be unreasonably delayed and (b) in no event will any conditions of approval or requirements associated therewith be binding on Landlord or the Building unless approved by Landlord in advance in its sole discretion. The “Decatur Parking Lot” presently provides monthly parking only and can accommodate an additional 25 to 30 vehicles as of the Eleventh Amendment Effective Date. Parking spaces are non-exclusive and provided on a first-come, first-serve basis. Tenant may utilize the Decatur Parking Lot during the Extended Term at market rates in effect from time to time so long as Landlord remains the ground lessee of the Decatur Parking Lot.
9.Emergency Power Generator. Subject to (i) the terms and conditions set forth in this Section 9 and in Article 10 of the Initial Lease, and (ii) Tenant obtaining all necessary governmental permits and approvals, and so long as Tenant shall not adversely impact any Building Systems, Tenant shall have the right to install, operate and maintain, at Tenant’s sole cost and expense, a maximum 400 kilowatt back-up electrical generator at the Building to supply Tenant with back-up power (“Tenant’s Generator”). Initially, Tenant’s Generator will consist of the existing Generac diesel generator at the Project (“Initial Generator”), and Landlord grants Tenant the right to use the Initial Generator on the terms set forth below. Tenant shall not be obligated to pay any rental or other charges with respect to the area designated for Tenant’s Generator. Landlord shall have the right, in accordance with the provisions of Article 10 of the Initial Lease, to review and approve, such review and approval not to be unreasonably withheld or delayed, Tenant’s plans and specifications for the proposed equipment to be installed in connection with and
-7- | ||||||||
inclusive of Tenant’s Generator (provided that Landlord hereby approves the Initial Generator), including, without limitation, the size, method of installation and visibility of such equipment. The location of Tenant’s Generator shall be limited to the area determined by Landlord in its sole discretion, provided that Landlord agrees to reasonably cooperate with Tenant in determining the most suitable location for the placement of Tenant’s Generator. Notwithstanding the foregoing, in no event may the installation of Tenant’s Generator involve the installation of an underground storage tank. The above-ground storage tank associated with Tenant’s Generator (the “AST”) shall not exceed 750 gallons in capacity, shall be double walled in thickness, shall contain diesel fuel or liquid propane only (to power Tenant’s Generator only), and shall employ at a minimum for a diesel powered generator, a double containment system whereby if the first containment system fails, a second containment system shall be present to prevent releases of Hazardous Materials, all in accordance with applicable Laws and environmental regulations. For these purposes, a sealed, uncracked concrete slab containment area without drains shall be sufficient (but shall not be the exclusive method) to constitute the second containment system, provided it is large enough to completely contain a release of the maximum volume of Hazardous Materials which could be present in the first containment system. All handling, use, storage and disposal of Hazardous Materials relating to the AST or Tenant’s Generator shall be accomplished by Tenant at its sole cost and expense in accordance with this Section 9 and the terms and conditions of Section 7.3 of the Initial Lease. If Tenant desires to install a generator other than the Initial Generator, Tenant may do so on the terms set forth in this Section 9 provided that Tenant surrenders the Initial Generator to Landlord in good operating condition and repair, removes all equipment and improvements installed by or for Tenant in order for the Initial Generator to serve the Premises and restores all areas affected thereby as reasonably required by Landlord.
Subject to Landlord’s prior approval of Tenant’s plans and specifications, Tenant shall have the right to install an emergency generator connection on the outside of the Building for the purpose of connecting the Initial Generator or any subsequent Tenant’s Generator to the Premises and an appurtenant electrical grounding system. Furthermore, Tenant shall have the right to install conduits from the Initial Generator or any subsequent Tenant’s Generator to the Premises, provided, however, that such conduits are installed below grade to Landlord’s reasonable satisfaction in accordance with the design and architectural standards for the Building.
If Tenant installs a generator other than the Initial Generator, then prior to or within sixty (60) days following the expiration or earlier termination of the Extended Term (as the same may be further extended), Tenant agrees upon Landlord’s request to (i) promptly remove from the Project, at its sole cost and expense, the AST (including, at Landlord’s request, the slab), if any, and Tenant’s Generator and all Hazardous Materials which are brought upon, stored, used, generated or released upon, in, under or about the Premises, the Project or any portion thereof by Tenant or any Tenant Parties in connection with Tenant’s Generator or AST, and (ii) return the Premises and the balance of the Building and Project which were affected by the installation and operation of Tenant’s Generator, the AST and all associated equipment to substantially the condition existing prior to Tenant’s installation of Tenant’s Generator and AST.
Tenant shall be solely responsible for complying with any and all Environmental Laws relating to the AST, Tenant’s Generator and all Hazardous Materials associated with either of the same, including, without limitation, all permitting and tank installations, monitoring and removal/closure obligations. For purposes of all Environmental Laws, Tenant shall be the owner and operator of the AST. Tenant shall be responsible for ensuring compliance by all Tenant Parties with all Environmental Laws relating to the AST and Tenant’s Generator. Any acknowledgment, consent or approval by Landlord of Tenant’s use or handling of Hazardous Materials shall not constitute an assumption of risk respecting the same nor a warranty or certification by Landlord that Tenant’s proposed use and handling of Hazardous Materials is safe or reasonable or in compliance with Environmental Laws.
-8- | ||||||||
From time to time during the Extended Term (as the same may hereafter be extended) and for up to one hundred eighty (180) days thereafter, if required by any government agency, or in the event Landlord has actual knowledge of a Hazardous Materials release at the Premises which resulted from a fuel leak relating to the AST, Landlord may, and upon Landlord’s request, Tenant shall, retain a registered environmental consultant (“Consultant”) reasonably acceptable to Landlord to conduct an environmental investigation of the Project (“Environmental Assessment”) (i) for Hazardous Materials contamination in, about or beneath the Project relative to the AST or Tenant’s Generator, and (ii) to assess the activities of Tenant and all Tenant Parties with respect to Tenant’s Generator and the AST for compliance with all Environmental Laws and to recommend the use of procedures intended to reasonably reduce the risk of a release of Hazardous Materials. If the Environmental Assessment discloses any material breach of Environmental Laws by Tenant or any Tenant Parties, then the cost thereof shall be the sole responsibility of Tenant, payable as Additional Rent under the Lease. Otherwise, the costs of the Environmental Assessment shall be the responsibility of Landlord. If Landlord so requires, Tenant shall comply, at its sole cost and expense, with all reasonable recommendations contained in the Environmental Assessment, including any reasonable recommendations with respect to precautions which should be taken with respect to Tenant’s or Tenant Parties’ activities at the Project relative to the AST or Tenant’s Generator or any recommendations for additional testing and studies to detect the presence of Hazardous Materials relative to the AST or Tenant’s Generator. Tenant covenants to reasonably cooperate with the Consultant and to allow entry and reasonable access to the AST and Tenant’s Generator for the purpose of the Consultant’s investigations.
If any cleanup or monitoring procedure is required by any applicable governmental authorities in or about the Project as a consequence of any Hazardous Materials contamination by Tenant or any of Tenant’s Parties arising out of Tenant’s Generator or AST use, and the procedure for cleanup is not completed (to the satisfaction of all applicable governmental authorities) prior to the expiration or earlier termination of the Term, as extended hereby and as the same may be further extended (referred to herein as “Tenant’s Failure to Clean-Up”), then, without limiting any of Landlord’s other rights and remedies contained in the Lease (including, without limitation, any indemnity and restoration obligations of Tenant contained in the Lease), Tenant will additionally be liable for any rental revenue of Landlord can reasonably demonstrate that it has lost as a consequence of, and to the extent, that Landlord is precluded from re-leasing the Premises or any other portion of the Project as a result of such contamination.
Subject to Tenant obtaining all necessary governmental permits and approvals, Tenant shall have the right, at Tenant’s sole cost and expense, to test Tenant’s Generator pursuant to the manufacturer’s recommendations, but in no event more than once a week during the Term at a time after normal business hours mutually agreed upon by Landlord and Tenant. Tenant’s intended use of Tenant’s Generator shall be to provide back-up power should there be for any reason, any interruption in electrical service to the Project, the Building and/or the Premises.
Subject to the provisions of Section 11.5 of the Initial Lease, Tenant shall indemnify, protect and hold Landlord harmless from any and all liability, losses, damages, actions or causes of action, judgments, costs and expenses arising in any way from Tenant’s installation, operation, maintenance and removal of Tenant’s Generator and the AST, or any breach of Tenant’s obligations under this Lease with respect to Tenant’s Generator and the AST, except to the extent that the same may arise out of the negligence or willful misconduct of Landlord or any Landlord Party. The representations, warranties and agreements of the Tenant set forth in this Section 9 shall survive the expiration of the Term or the earlier termination of the Lease for any reason.
If Tenant installs a generator other than the Initial Generator, Tenant’s Generator shall be installed in a weatherproof, walk-around type, sound attenuating enclosure which shall limit the sound to no more than 85 dba as measured at ten (10) feet from outside of any side, top or bottom of the enclosure, under all
-9- | ||||||||
operating conditions. Tenant shall be responsible for all insulation for magnetic or electrical interference from operation of Tenant’s Generator as necessary to prevent interference of any kind with equipment or systems operated by other occupants of the Project.
If Tenant’s Generator is visible from outside of the Building (including from any areas adjacent to the Building (or from other buildings now or hereafter constructed within the Project)), Tenant shall cause Tenant’s Generator to be screened from view in a manner reasonably acceptable to Landlord and comparable and compatible with the improvements and/or landscaping contiguous to such improvements (such as by way of example only with appropriate metal and/or fabric screening, concrete masonry unit block wall fencing or landscaping screening to match adjacent landscaping). Landlord hereby approves the screening of the Initial Generator. All such screening and visible improvements shall be of first class quality and shall be consistent in quality and design with similar improvements and screening in comparable quality office/warehouse projects in the vicinity of the Project. If the use of any parking spaces is lost as a result of the placement of Tenant’s Generator in the Common Areas, Tenant’s allocation of parking spaces shall be deemed reduced by the number of parking spaces lost as a result of the location of Tenant’s Generator and Landlord shall have no liability to Tenant whatsoever for such reduction.
To the extent that the installation of Tenant’s Generator or any related equipment or facilities requires modifications to the shell, foundation, or other structural portions of the Building (including, without limitation, the installation of Tenant’s Generator upon the roof of the Building), such modifications shall be subject to Landlord’s reasonable approval and Tenant shall pay to Landlord within thirty (30) days after demand therefor accompanied by reasonably detailed back up documentation, all third-party costs and expenses reasonably incurred by Landlord in conjunction with such structural modifications.
10.Letter of Credit. Landlord and Tenant acknowledge that Landlord is currently holding a LC in the LC Stated Amount of One Million Nine Hundred Nineteen Thousand Eight and 53/100 Dollars ($1,919,008.53), as set forth in Section 12 of the Sixth Amendment. Concurrently with or at any time following the Eleventh Amendment Effective Date, Tenant shall have the right to provide Landlord with a replacement LC in the form attached as Exhibit E to the Initial Lease (or an alternate form approved in advance by Landlord, in Landlord’s reasonable good faith discretion, or an amendment to the existing LC adjusting the face amount of same), in the LC Stated Amount of One Million Five Hundred Eighty-Two Thousand Three Hundred Sixty-One and 59/100 Dollars ($1,582,361.59) (the “Replacement LC”). Notwithstanding the terms of the Amended Lease to the contrary, the Replacement LC shall be issued by Wells Fargo Bank, JP Morgan, Morgan Stanley or Bank of America. Section 6(b) of the Initial Lease, Sections 13.1 and 13.2 of the Second Amendment, and Sections 15.1 and 15.2 of the Fourth Amendment are hereby deleted and deemed null, void and of no further force or effect.
11.Financial Statements. Notwithstanding anything to the contrary in Section 14 of the Second Amendment, Tenant will not be required to deliver financial statements to Landlord as provided in Section 14 of the Second Amendment so long as Tenant is a publicly traded corporation on a nationally recognized stock exchange.
12.Bicycle Parking. Subject to Tenant’s compliance with applicable Laws and the rules and regulations for the Building and the Project, Tenant shall have exclusive use of the existing bicycle parking in the existing bicycle storage area serving the 870 Building for Tenant’s employees.
13.HVAC Hours. Notwithstanding the terms of the Amended Lease to the contrary, as of the Extended Term Commencement Date, the “Business Hours” for purposes of providing HVAC service to the Premises shall be 8:00 a.m. to 8:00 p.m., Monday through Friday, except for Holidays, and Landlord shall not be required to automatically provide HVAC services during any other time, including on Saturday.
-10- | ||||||||
14.Options. Tenant acknowledges and agrees that except as expressly set forth below in this Section 14 with respect to the Renewal Options, the Right of First Offer, and Right of First Offer to Purchase, Tenant has no options and/or rights of first refusal and/or rights of first offer to lease additional space, to purchase the Building, to terminate the Extended Term early, and/or to extend the Extended Term.
a.Renewal Options. During the Extended Term, Tenant shall continue to have the Renewal Options granted under Section 2.4 of the Initial Lease; provided, Section 2.4 is hereby amended, as follows: (i) the Renewal Options are exercisable only as to the entire Premises then being leased by Tenant, (ii) the following language is hereby deleted: “Fifty-Two and 90/100 Dollars ($52.90)” and replaced with “Seventy-Five and 68/100 Dollars ($75.68)”, (iii) the following language is hereby deleted: “initial Term of this Lease” and replaced with “Extended Term”, and (iv) the following language is hereby deleted from Section 2.4(d): “During each Renewal Term, Tenant shall pay Additional Rent in accordance with the provisions of Article 4, but with a base year determined in connection with the determination of the Fair Market Rental Rate”, and replaced with “During each Renewal Term, Tenant shall pay Additional Rent on a net basis, in accordance with the provisions of Article 4 of the Initial Lease, as amended by Section 5 of the Eleventh Amendment.”
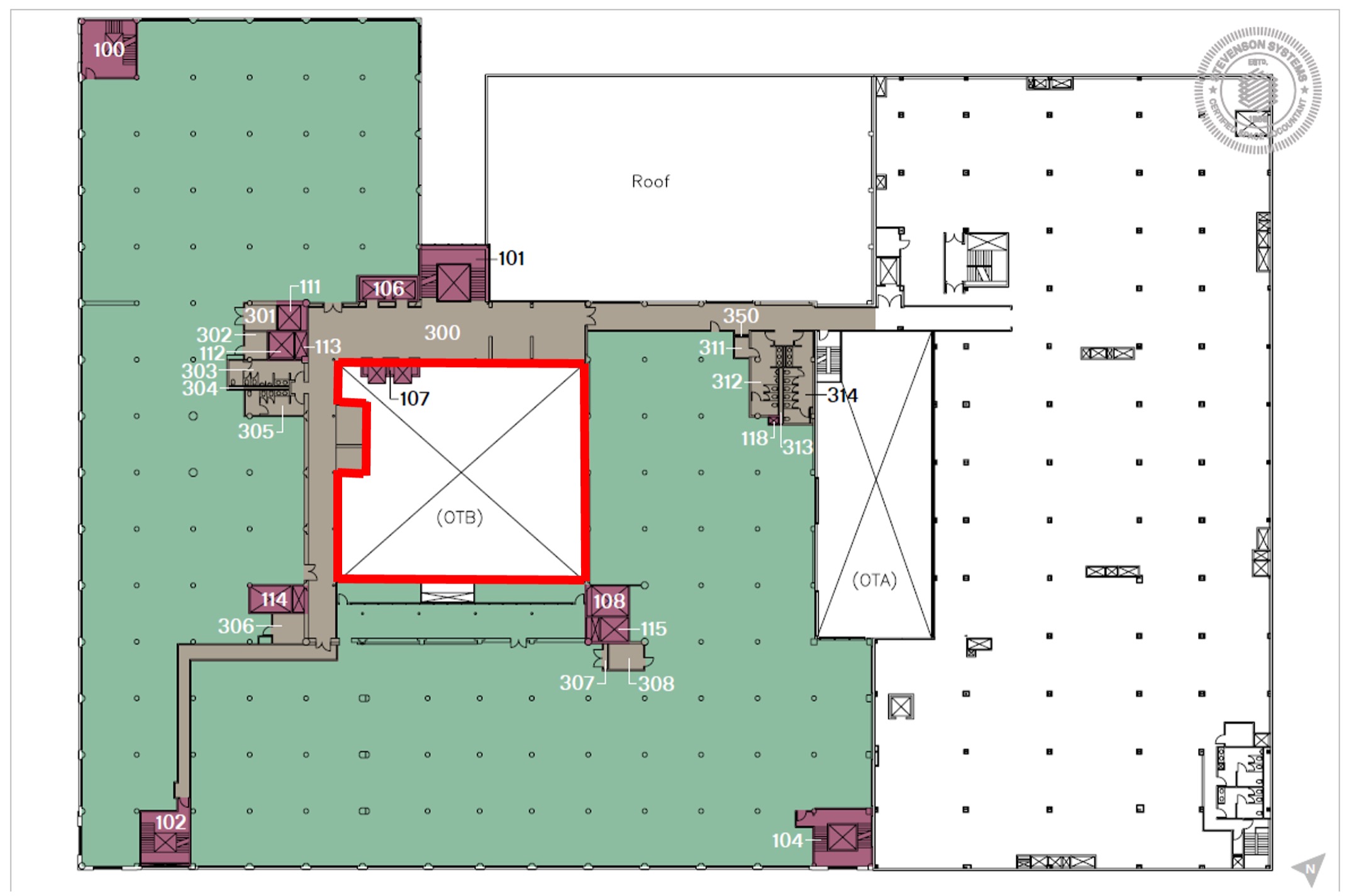
b.Right of First Offer. During the Extended Term, Tenant shall continue to have the Right of First Offer granted under Article 31 of the Initial Lease; provided, Article 31 of the Initial Lease is hereby amended, as follows: (i) Tenant will not be required to satisfy the “ROFO Financial Standard” (as defined in Exhibit H of the Initial Lease) so long as Tenant is Original Tenant; (ii) the last sentence of Section 31(c) of the Initial Lease is deleted and deemed null, void and of no further force or effect; and (iii) the First Right Space will include the approximately 5,826 rentable square feet of space within the 870 Building depicted in Exhibit A-2 hereto (“Additional ROFO Space”), provided that the Right of First Offer with respect to the Additional ROFO Space is subject and subordinate to the rights of the existing tenant thereof.
c.Right of First Offer to Purchase. From and after the Eleventh Amendment Effective date and continuing through the Extended Term, Landlord grants to Tenant a “Right of First Offer to Purchase,” as provided in Addendum No. 1 attached hereto and made a part hereof.
d.Additional Expansion Space. Subject to the terms of this Section 14.d, Landlord hereby grants to Tenant the option to expand (“Expansion Option”) into that certain space within the 870 Building consisting of 1,574 rentable square feet and which currently used as the management office for the Project and which is depicted on Exhibit A-1 attached hereto (“Additional Expansion Space”). Tenant must exercise the Expansion Option, if at all, by delivering written notice (“Additional Expansion Notice”) of its election to exercise the Expansion Option to Landlord on or before December 31, 2026. Tenant will reimburse Landlord, within thirty (30) days following Landlord’s delivery of a statement therefor, for all costs incurred by Landlord to construct a new management office in a location selected by Landlord at the Project (but not within the Premises) and to relocate personal property and equipment in connection therewith. The new management office will be approximately the same size as the existing management office and will be improved with improvements of comparable quality to those within the existing management office, with comparable quality finishes, and will contain approximately the same number of work stations, offices, conference rooms, breakrooms and other areas. The Base Rent for the Additional Expansion Space will be at the same rate per rentable square foot, including subsequent adjustments, that Tenant is then paying from time to time for the remainder of the Premises, Tenant’s Percentage Share will be increased to 68.6%, and the Allowance will be increased by the amount of One Hundred Ninety-Two Thousand Eight Hundred Fifteen Dollars ($192,815.00), and the Space Planning Allowance will be increased by the amount of Two Hundred Thirty-Six and 10/100 Dollars ($236.10). Tenant’s leasing of the Additional Expansion Space will otherwise be on all of the terms of the Lease applicable to the Premises except that the term of the term of the Lease with respect to the Additional
-11- | ||||||||
Expansion Space will commence on the date Landlord has completed the relocation of the management office and tendered possession of the Additional Expansion Space to Tenant. Tenant agrees to accept possession of the Additional Expansion Space in its then as-is state and condition (but broom clean and free of Landlord’s or any prior occupant’s property). Landlord will use commercially reasonable efforts to complete the relocation of the management office within twelve (12) months after Tenant’s delivery of the Additional Expansion Notice. Upon Landlord’s request, Landlord and Tenant will execute an amendment to the Lease setting forth the commencement date and Base Rent schedule for the Additional Expansion Space.
15.[Intentionally Omitted].
16.Certified Access Specialist. This Section 16 is intended to comply with the terms of California Civil Code Section 1938 which requires a commercial property owner or lessor to state the following on every lease or rental agreement executed on or after January 1, 2017:
“A Certified Access Specialist (CASp) can inspect the subject premises and determine whether the subject premises comply with all of the applicable construction-related accessibility standards under state law. Although state law does not require a CASp inspection of the subject premises, the commercial property owner or lessor may not prohibit the lessee or tenant from obtaining a CASp inspection of the subject premises for the occupancy or potential occupancy of the lessee or tenant, if requested by the lessee or tenant. The parties shall mutually agree on the arrangements for the time and manner of the CAS inspection, the payment of the fee for the CASp inspection, and the cost of making any repairs necessary to correct violations of construction related accessibility standards within the premises.”
Pursuant to California Civil Code Section 1938, Landlord hereby advises Tenant that the Premises has not undergone an inspection by a CASp. In accordance with the foregoing, Landlord and Tenant agree that if Tenant requests a CASp inspection of the Premises, then Tenant shall pay (i) the fee for such inspection, and (ii) the cost of making any repairs necessary to correct violations of construction-related accessibility standards within the Premises.
17.OFAC Compliance. Section 15 (OFAC Compliance) of the Sixth Amendment is incorporated herein by this reference as if set forth in full herein, and Tenant hereby reaffirms the provisions of such Section 15 of the Sixth Amendment. Landlord acknowledges that the representations by Tenant set forth in said Section 15 (as incorporated herein) are inapplicable to shareholders or equity owners who, directly or indirectly, own shares or equity in Tenant by purchase on a nationally recognized securities exchange.
18.Brokers. Tenant warrants to Landlord that Tenant has not dealt with any broker or agent in connection with the negotiation or execution of this Eleventh Amendment other than CBRE, Inc., representing Tenant (“Tenant’s Broker”) and Newmark, representing Landlord (“Landlord’s Broker”). Tenant shall indemnify, defend and hold Landlord harmless from and against all costs, expenses, attorneys’ fees, liens and other liability for commissions or other compensation claimed by any broker or agent other than Tenant’s Broker claiming the same by, through, or under Tenant. Landlord shall indemnify, defend and hold Tenant harmless from and against all costs, expenses, attorneys’ fees, liens and other liability for commissions or other compensation claimed by any broker or agent other than Landlord’s Broker claiming the same by, through, or under Landlord.
19.Lender. Landlord represents that the Building is not subject to any deed of trust or mortgage as of the Eleventh Amendment Effective Date.
-12- | ||||||||
20.Entire Agreement. This Eleventh Amendment and the Amended Lease constitute the entire agreement between Landlord and Tenant with respect to the subject matter of this Eleventh Amendment.
21.Full Force and Effect. Except as specifically set forth herein, the Amended Lease is and remains in full force and effect and binding on the parties. Tenant confirms that Landlord is not now and has not in the past been in default under the Lease, and Tenant has no claim against Landlord for damages or offset of any type.
22.Authority. Each party acknowledges that it has all necessary right, title and authority to enter into and perform its obligations under this Eleventh Amendment, that this Eleventh Amendment is a binding obligation of such party and has been authorized by all requisite action under the party’s governing instruments, that the individuals executing this Eleventh Amendment on behalf of such party are duly authorized and designated to do so, and that no other signatories are required to bind such party.
23.Counterparts. This Eleventh Amendment may be executed in one or more facsimile or pdf counterparts, each of which shall be deemed the original, but which together shall constitute one and the same instrument. The parties agree that electronic signatures, including those signed through the electronic signature system known as “DocuSign”, shall have the same effect as originals. All parties to this Eleventh Amendment waive any and all rights to object to the enforceability of this Eleventh Amendment based on the form or delivery of signature.
[Remainder of page intentionally left blank; signatures appear on following page.]
-13- | ||||||||
IN WITNESS WHEREOF, the parties have executed this Eleventh Amendment as of the Eleventh Amendment Effective Date.
LANDLORD:
T-C 888 BRANNAN OWNER LLC,
a Delaware limited liability company
a Delaware limited liability company
By: /s/ Mark Meehan
Name: Mark Meehan
Title: Authorized Signatory
Date: 10/24/2024
TENANT:
AIRBNB, INC.,
a Delaware corporation
a Delaware corporation
By: /s/ Elinor Mertz
Name: Elinor Mertz
Title: Chief Financial Officer
Date: 10/24/2024
-14- | ||||||||
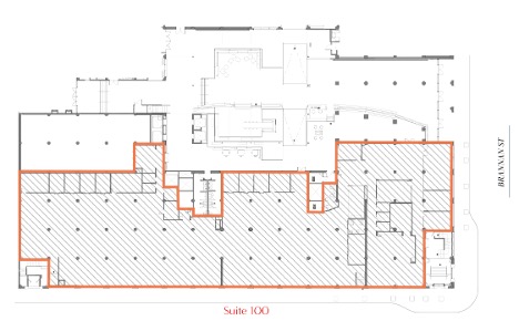
EXHIBIT A
EXPANSION SPACE

EXHIBIT A -1- | ||||||||
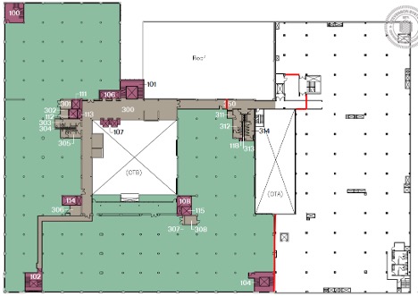
EXHIBIT A-1
ADDITIONAL EXPANSION SPACE
The “Additional Expansion Space” is the area on the first floor of the 870 Building identified as 491 and outlined in red in the diagram below.

EXHIBIT A-1 -1- | ||||||||
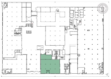
EXHIBIT A-2
ADDITIONAL ROFO SPACE
The Additional ROFO Space is depicted in green below.

EXHIBIT A-2 -1- | ||||||||
EXHIBIT B
WORK LETTER
This Work Letter supplements the Eleventh Amendment to Office Lease (the “Eleventh Amendment”) by and between T-C 888 BRANNAN OWNER, LLC, a Delaware limited liability company (“Landlord”), and AIRBNB, INC., a Delaware corporation (“Tenant”) pertaining to certain Premises described in the Eleventh Amendment. Terms capitalized, but not otherwise defined herein, shall have the meanings ascribed to them in the “Lease” (as defined in the Eleventh Amendment).
The parties hereby agree as follows:
1.Landlord’s Work. Landlord will, at its sole cost and expense, complete “Landlord’s Work” as provided in Section 6.d of the Eleventh Amendment.
2.Tenant’s Plans and Specifications. “Eleventh Amendment Tenant Improvements” means the improvements to the Premises shown on the “Final Plans” (as defined below). Tenant may construct the Eleventh Amendment Tenant Improvements in several phases. Accordingly, the provisions set forth below will apply to each respective phase of the Eleventh Amendment Tenant Improvements as the context may require.
2.1.Submission of Plans and Specifications.
(a)Preliminary TI Plan. Tenant shall submit to Landlord for approval, in pdf format, a conceptual construction plan (“Preliminary TI Plan”) for construction of the Eleventh Amendment Tenant Improvements prepared by a reputable architect reasonably approved by Landlord (“Tenant’s Architect”) which shall include, without limitation, the general location of doors, corridors, entrances, exits, partitions, heavy floor loads and other special requirements, and the location of all offices and the Specialized Uses. Landlord agrees to cooperate with Tenant and its design representatives in connection with the preparation of the Preliminary TI Plan. Within ten (10) business days after receipt by Landlord of the Preliminary TI Plan, Landlord shall (i) give its written approval with respect thereto, or (ii) notify Tenant in writing of its disapproval and state with specificity the Design Problem(s) (as defined in Section 10.1 of the Lease and modified by Section 2.2 below) that is/are the basis for such disapproval and the reasonable revisions or modifications necessary in order for Landlord to give its approval. In the event of a disapproval by Landlord, Tenant shall submit to Landlord for approval the revisions or modifications requested by Landlord to correct any Design Problem(s), with no other changes to the Preliminary TI Plan. Within five (5) business days following receipt by Landlord of such revisions or modifications, Landlord shall give its written approval with respect thereto (and the scope of Landlord’s review shall be limited to Tenant’s correction of the Design Problem(s) to which Landlord had previously objected in writing), or shall request other revisions or modifications therein (but relating only to the extent Tenant has failed to comply with Landlord’s earlier requests). The preceding sentence shall be implemented repeatedly until Landlord gives its approval to the Preliminary TI Plan. Landlord acknowledges that Tenant may perform its mechanical, electrical and plumbing work on a design-build basis. Notwithstanding anything to the contrary in this Section 2.1(a) or Section 2.1(b) below, Landlord will have an additional seven (7) business days to review any submission which Landlord reasonably determines requires the review and approval or comment of any third-party engineer or other consultant, provided that Landlord notifies Tenant of the need for third party review within the initial ten (10)
EXHIBIT B -1- | ||||||||
business day review period or within the seven (7) business day period provided for in Section 2.3 below.
(b)Final TI Plan. After approval by Landlord of the Preliminary TI Plan, Tenant shall submit to Landlord for approval, in pdf format, fully completed and engineered working drawings and specifications suitable for plan check review and permitting by local agencies having jurisdiction, for the layout, improvement and finish of the entire Premises (including, without limitation, all areas pertaining to the Specialized Uses) consistent with the design and construction of the Base Building Improvements, including electrical and mechanical drawings, capacity reports, dimensioned partition plans, floor and wall finish plans, reflected ceiling plans, power, telephone communications and data plans, life safety devices, construction detail sheets including millwork detail plans, showing the location of partitions, light fixtures, electrical outlets, telephone outlets, sprinklers, doors, window coverings, equipment specifications (including weight specifications and cooling requirements) and power requirements (including voltage, amps, phase, and special plugs and connections) and Title 24 energy calculations, wall finishes, floor coverings, millwork and other Eleventh Amendment Tenant Improvements required by Tenant (collectively, “Final TI Plan”). Within ten (10) business days after receipt by Landlord of the Final TI Plan, Landlord shall (i) give its written approval with respect thereto, or (ii) notify Tenant in writing of its disapproval and state with specificity the Design Problem(s) that is/are the basis for such disapproval and the reasonable revisions or modifications necessary in order for Landlord to give its approval. In the event of a disapproval by Landlord, Tenant shall submit to Landlord for approval the revisions or modifications requested by Landlord to correct any Design Problem, with no other changes to the Final TI Plan. Within five (5) business days following receipt by Landlord of such revisions or modifications, Landlord shall give its written approval with respect thereto (and the scope of Landlord’s review shall be limited to Tenant’s correction of the Design Problem(s) to which Landlord had previously objected in writing) or shall request other revisions or modifications therein (but relating only to the extent Tenant has failed to comply with Landlord’s earlier requests). The preceding sentence shall be implemented repeatedly until Landlord gives its approval of the Final TI Plan. The Final TI Plan as approved by Landlord shall be referred to as the “Final Plans.” The parties acknowledge that the Preliminary TI Plan and/or the Final TI Plans may be submitted in more than one delivery (i.e., for example, in separate phases based upon the improvement of different floors and/or different disciplines).
(c)Engineering of Plans. The plans and specifications prepared by Tenant hereunder (i.e., the Preliminary TI Plan and the Final Plans) are referred to herein collectively as the “Construction Drawings.” Landlord shall have no responsibility for any of the engineering of the Construction Drawings, which shall be at Tenant’s expense, subject to Article 3 below. The Construction Drawings shall be prepared and/or coordinated by Tenant’s Architect, shall comply with all applicable Laws, shall be sufficient for Tenant to secure the approval of governmental authorities with jurisdiction over the approval thereof and shall be in a form meeting Landlord’s reasonable requirements. Without limiting the generality of the foregoing, the Construction Drawings shall provide for the build-out of the entire Premises to at least the Building Standard (as defined in Section 3.2 below). All information on the Construction Drawings shall be clearly and neatly specified, dimensioned and detailed per industry standards.
2.2.Landlord’s Standard of Approval. Whenever Landlord has the right to approve Tenant’s Construction Drawings under this Article 2, Landlord shall not unreasonably withhold its
EXHIBIT B -2- | ||||||||
approval unless and to the extent that improvements shown on the plans create a Design Problem, as defined in Section 10.1 of the Lease; provided that for purposes of this Work Letter, a “Design Problem” shall also exist if the Construction Drawings do not provide for the entire Rentable Area of the Premises to be built-out to at least the Building Standard (as defined in Section 3.2 below). Landlord shall not be obligated to modify the base Building to accommodate improvements shown on the Construction Drawings to avoid the existence of a Design Problem. In connection with Landlord’s review and approval of Construction Drawings, Landlord may as a condition to its approval of any Non-Standard Tenant Improvement or Alteration (and as a condition to Landlord’s right to require Tenant to remove the same) require in writing that Tenant remove the same on the expiration or termination of the Lease and repair any damage resulting from such removal as described in Section 10.5 of the Initial Lease; absent any such notice, Tenant will not be required to remove the subject Non-Standard Tenant Improvement or Alteration. Tenant and Tenant’s Architect shall verify, in the field, the dimensions of the Premises and the conditions at the Premises. Landlord’s review of the Construction Drawings is for Landlord’s sole benefit and Landlord shall have no liability to Tenant arising out of or based on Landlord’s review. Accordingly, notwithstanding that any Construction Drawings are reviewed by Landlord or its contractor, architect, engineers and consultants, and notwithstanding any advice or assistance which may be rendered to Tenant by Landlord or Landlord’s contractor, architect, engineers and consultants, Landlord shall have no liability whatsoever in connection therewith and shall not be responsible for any omissions or errors arising therefrom.
2.3.Deemed Approval. If Landlord fails to notify Tenant of Landlord’s approval or disapproval of the Preliminary TI Plan or any Construction Drawings or proposed Change Order (defined in Section 6 below) within the applicable time period set forth herein, Tenant shall have the right to provide Landlord with a second (2nd) written request for approval (a “Second Request”) that specifically identifies the applicable drawings and contains the following statement in bold and capital letters: “THIS IS A SECOND REQUEST FOR APPROVAL PURSUANT TO THE PROVISIONS OF SECTION 2.3 OF THE WORK LETTER. IF LANDLORD FAILS TO RESPOND WITHIN SEVEN (7) BUSINESS DAYS AFTER RECEIPT OF THIS NOTICE, THEN LANDLORD SHALL BE DEEMED TO HAVE APPROVED THE DRAWINGS DESCRIBED HEREIN.” If Landlord fails to respond to such Second Request within seven (7) business days after Landlord’s receipt thereof, the proposed Preliminary TI Plan, Construction Drawings or Change Order, as applicable, shall be deemed approved by Landlord.
2.4.Permits. Following Landlord’s approval (or deemed approval) of the Final Plans, Tenant shall cause the Final Plans to be submitted to the appropriate governmental authorities in order to obtain all approvals and permits required by the governmental authorities having jurisdiction over the Eleventh Amendment Tenant Improvements. Neither Landlord nor Landlord’s consultants shall be responsible for obtaining any permits with respect to the Eleventh Amendment Tenant Improvements or a temporary certificate of occupancy (or its equivalent) for the Premises, and obtaining the same shall be Tenant’s sole responsibility; provided, however, that Landlord shall reasonably cooperate with Tenant in executing permit applications and performing other ministerial acts reasonably necessary to enable Tenant to obtain any such permits or temporary certificate of occupancy (or its equivalent) and shall use commercially reasonable efforts to assist Tenant in obtaining such permits and temporary certificate of occupancy (or its equivalent), as requested from time to time. In no event shall Tenant or its representatives submit any Construction Drawings to governmental authorities for permitting until the Final Plans have been approved by Landlord.
2.5.Space Planning. All design and programming, space planning and interior decorating services such as selection of wall paint colors and/or wall coverings, furniture, fixtures,
EXHIBIT B -3- | ||||||||
carpeting and any or all other decorator selection efforts required by Tenant shall be provided by Tenant at Tenant’s expense, subject to Article 3 hereof.
3.Eleventh Amendment Tenant Improvement Allowance.
3.1.Allowance.
(a)Subject to the improvement allowance provisions of this Article 3 and any other provisions of this Work Letter to the contrary, the Eleventh Amendment Tenant Improvements shall be constructed at Tenant’s sole cost and expense. Landlord shall provide Tenant an allowance of up to $122.50 per RSF of the Premises (i.e., up to $30,735,617.50, based on the Premises containing 250,903 RSF) (the “Eleventh Amendment Tenant Improvement Allowance”) for the cost of design (subject to the limitations set forth in this Section 3.1), permitting and construction of the Eleventh Amendment Tenant Improvements, plus a space planning allowance to pay for preparation of a space plan (copies of which shall be provided to Landlord in pdf format) of up to $0.15 per RSF of the Premises (i.e., up to $37,635.45, based on the Premises containing 250,903 RSF) (the “Space Planning Allowance”); provided, however, in no event will Landlord be required to disburse any portion of the Eleventh Amendment Tenant Improvement Allowance or the Space Planning Allowance prior to the Extended Term Commencement Date. The Eleventh Amendment Tenant Improvement Allowance shall be used for the design, including architectural and engineering plans and specifications, purchase, installation and construction (including project management fees and costs) of the Eleventh Amendment Tenant Improvements which constitute permanent improvements to the Premises and the cost of all permits associated therewith (collectively, the “Eleventh Amendment Tenant Improvement Costs”). Landlord hereby acknowledges and agrees that costs of governmental permits and the Alteration Operations Fee (as defined below) shall be costs to which the Eleventh Amendment Tenant Improvement Allowance may be applied. In no event shall the Eleventh Amendment Tenant Improvement Allowance be used for the cost of the purchase of furniture, fixtures, moveable equipment, phones or other personal property.
(b)Subject to the foregoing Paragraph 3.1(a), portions of the Eleventh Amendment Tenant Improvement Allowance shall be advanced to Tenant periodically on a monthly basis after the Extended Term Commencement Date and following the commencement of the design of the Eleventh Amendment Tenant Improvements by Tenant and after Tenant has delivered to Landlord (i) a request for payment of the Contractor (as defined below), approved by Tenant, on AIA forms G702 and G703 (or comparable forms reasonably approved by Landlord), showing the schedule, by trade, of percentage of completion of the Eleventh Amendment Tenant Improvements in the Premises, detailing the portion of the work completed and the portion not completed, and demonstrating that the relationship between the cost of the work completed and the cost of the work to be completed complies with the terms of the “Construction Budget,” as that term is defined in Article 4 of this Work Letter (as the same may be modified from time to time by Change Order); (ii) invoices or similar documentation from all of “Tenant’s Agents”, as that term is defined in Section 5.1(a) of this Work Letter, for labor rendered and materials delivered to the Premises; (iii) executed lien releases from all of Tenant’s Agents who have statutory lien rights which shall comply with the appropriate provisions, as reasonably determined by Landlord, of California Civil Code Section 8424 (or any successor statute); and (iv) all other information reasonably requested by Landlord. Tenant may require Landlord to make one or more of such payments directly to those who are entitled to such payment
EXHIBIT B -4- | ||||||||
because they provided materials or products or performed services in connection with the Eleventh Amendment Tenant Improvements and references “to Tenant” shall also include those designated by Tenant, and any such payment shall be treated as the disbursement by Landlord of the Eleventh Amendment Tenant Improvement Allowance and have the effect of reducing Landlord’s obligation with respect to the Eleventh Amendment Tenant Improvement Allowance by the amount so disbursed. Disbursements of the Eleventh Amendment Tenant Improvement Allowance shall be made by Landlord on or before the 25th day of each month with respect to complete payment requests made by Tenant on or before the 25th day of the prior month. If the cost of the Eleventh Amendment Tenant Improvements as reflected in the Construction Budget is greater than the Eleventh Amendment Tenant Improvement Allowance, each monthly disbursement made by Landlord shall be an amount equal to the cost of the Eleventh Amendment Tenant Improvements that are subject to the monthly payment request multiplied by a fraction, the numerator of which is the Eleventh Amendment Tenant Improvement Allowance and the denominator of which is the total cost of the Eleventh Amendment Tenant Improvements as reflected in the Construction Budget. In all events, ten percent (10%) of the amount of the Eleventh Amendment Tenant Improvement Allowance requested by Tenant in any given month (the “Retention Amount”) may be withheld by Landlord until all Eleventh Amendment Tenant Improvements for which Tenant may request reimbursement have been completed and Tenant has provided the following for all such Eleventh Amendment Tenant Improvements: (X) unconditional lien releases with respect to all work performed on the Eleventh Amendment Tenant Improvements, (Y) copies of job cards for all building permits obtained to complete the Eleventh Amendment Tenant Improvements signed off by all inspectors for the lawful occupancy of the Eleventh Amendment Tenant Improvements, and (Z) certificates in the form of AIA Form G-704, or another format approved by Landlord in its reasonable discretion, executed by Tenant’s Architect and Contractor. Notwithstanding anything to the contrary contained in this Work Letter, Landlord shall not be obligated to make any disbursement of the Eleventh Amendment Tenant Improvement Allowance during the pendency of any of the following: (A) Landlord has received written notice of any unpaid claims relating to any portion of the Eleventh Amendment Tenant Improvements or materials in connection therewith, other than claims which will be paid in full from such disbursement, (B) there is an unbonded lien outstanding against the Building or the Premises or Tenant’s interest therein by reason of work done, or claimed to have been done, or materials supplied or specifically fabricated, claimed to have been supplied or specifically fabricated, to or for Tenant or the Premises, or (C) an Event of Default by Tenant exists. If Landlord disputes any item in a request for payment, Landlord shall deliver a written objection to such item within ten (10) business days following Tenant’s submission of such request for payment, setting forth with reasonable specificity Landlord’s reasons for its dispute (a “Draw Dispute Notice”), and Landlord may deduct the amount of such disputed item from the payment. Landlord and Tenant shall, in good faith, endeavor to diligently and promptly resolve any such dispute. If and to the extent that Landlord timely delivers any Draw Dispute Notice, Landlord shall nevertheless be obligated to fund the portion of the disbursement requested by Tenant, if any, which Landlord is required to fund pursuant to this Section 3.1 and Landlord has not duly disputed. Landlord shall not be required to pay more than the Eleventh Amendment Tenant Improvement Allowance toward all costs, expenses and charges related to the Eleventh Amendment Tenant Improvement Costs. Landlord shall have no obligation to disburse any Eleventh Amendment Tenant Improvement Allowance after the Outside Allowance Date (as the same may be delayed as described herein and in the Eleventh Amendment), and in no event shall any unused Eleventh Amendment Tenant Improvement Allowance be credited towards rent.
EXHIBIT B -5- | ||||||||
(c)If and to the extent Landlord fails to fund any disbursement of the Eleventh Amendment Tenant Improvement Allowance which is required to be funded by Landlord pursuant to Section 3.1 above, within thirty (30) days following Tenant’s submission to Landlord of a request for payment conforming to the provisions of Section 3.1, and provided Tenant is obligated to and does pay to third parties such amount which was required to be paid by the Eleventh Amendment Tenant Improvement Allowance, then Tenant shall have the right to offset any such amount paid by Tenant to such third parties against the Rent next due and payable by Tenant under the Lease, provided that Tenant will concurrently deliver notice to Landlord of the amount offset by Tenant. Any such offset made by Tenant shall be credited against Landlord’s obligations with respect to the Eleventh Amendment Tenant Improvement Allowance.
(d)Tenant will reimburse Landlord for Landlord’s actual out-of-pocket third party costs incurred by Landlord in connection with the design, permitting and construction of the Eleventh Amendment Tenant Improvements (collectively, the “Alteration Operations Fee”), including, without limitation, Landlord’s review of the Construction Drawings; provided, however, in no event will the Alterations Operations Fee exceed one percent (1%) of the aggregate hard and soft costs of the Eleventh Amendment Tenant Improvements. Notwithstanding anything to the contrary above, at the time Landlord makes any disbursement of the Eleventh Amendment Tenant Improvement Allowance for application to the cost of the Eleventh Amendment Tenant Improvements, Landlord shall retain from the Eleventh Amendment Tenant Improvement Allowance, as a partial payment of the Alteration Operations Fee, the Alteration Operations Fee then owing to Landlord. At such time as the Eleventh Amendment Tenant Improvement Allowance has been entirely disbursed, Tenant shall, within thirty (30) days following written demand accompanied by reasonably detailed back up documentation and calculations, pay to Landlord the remainder, if any, of the Alteration Operations Fee not yet paid to Landlord.
3.2.Building Standard. As used in this Work Letter, “Building Standard” means Eleventh Amendment Tenant Improvements designed and constructed in compliance with all applicable Laws including, without limitation, applicable San Francisco building, electrical, mechanical and plumbing codes, and with new, first-class materials. All items described herein shall be included in the Construction Drawings.
4.Cost of and Payment of Eleventh Amendment Tenant Improvements. Tenant shall retain a licensed, reputable general contractor reasonably approved by Landlord (such approval to be granted or withheld within ten (10) business days following Tenant’s notice to Landlord of its selection of the Contractor) to construct the Eleventh Amendment Tenant Improvements (the “Contractor”). Promptly following Tenant’s execution of the construction contract(s) with Contractor (individually and collectively referred to herein as the “Contract”) and in any event before the disbursement of any of the Eleventh Amendment Tenant Improvement Allowance for items other than soft costs, Tenant shall submit the Contract to Landlord for its records. The Contract must provide that the Contract is assignable to Landlord and Landlord’s lender following an Event of Default by Tenant under the Lease. Prior to the commencement of the construction of the Eleventh Amendment Tenant Improvements, and after Tenant has accepted all bids for the Eleventh Amendment Tenant Improvements, Tenant shall provide Landlord with (i) a detailed breakdown, by trade, for all of Tenant’s Agents, of the final costs to be incurred or which have been incurred in connection with the design and construction of the Eleventh Amendment Tenant Improvements to be performed by or at the direction of Tenant or the Contractor (which costs form a basis for the amount of the Contract) (the “Final Costs”) and (ii) a construction budget (the “Construction Budget”), the amount of which Construction Budget shall be equal to (1) the Final Costs plus (2) the other costs of design and construction of the Premises (to the extent not already included in the Final Costs),
EXHIBIT B -6- | ||||||||
which costs shall include, but not be limited to, the costs of the Architect, engineering fees, consultant fees and other soft costs. Tenant shall promptly pay when due all costs incurred in connection with the Eleventh Amendment Tenant Improvements and shall not permit the filing of any mechanic’s lien or other lien in connection with any Eleventh Amendment Tenant Improvements. If a mechanic’s lien or other lien is filed against the Building or Project arising out of the construction of the Eleventh Amendment Tenant Improvements, Tenant shall post a statutory release bond or discharge or cause to be discharged such lien within ten (10) business days after Tenant receives notice of the filing thereof.
5.Construction of Eleventh Amendment Tenant Improvements.
5.1.Performance. Construction of the Eleventh Amendment Tenant Improvements shall be subject to the following terms and conditions:
(a)The Eleventh Amendment Tenant Improvements shall be constructed by Contractor. All subcontractors, laborers, materialmen, and suppliers (“Tenant’s Agents”) used by Tenant shall be union affiliated and shall be properly licensed in the State of California (to the extent the foregoing requirements are applicable to the specific type of Tenant’s Agent) and shall be experienced in performing the work they have agreed to perform, in buildings similar to the Building and shall have been approved by Landlord in its reasonable discretion (such approval to be granted or withheld, or deemed granted if Landlord fails to timely respond, within five (5) business days following notice to Landlord of the identity of any proposed Tenant’s Agent); provided, however, that Tenant will use the following subcontractors: Sunbelt (for mechanical and building systems); Pyro-comm for fire protection; RCM for sprinklers; and Holzmuller for lighting controls. Tenant shall submit a written list of all of Tenant’s Agents to Landlord’s property manager prior to commencing construction of the Eleventh Amendment Tenant Improvements. Tenant shall immediately cease using any of Tenant’s Agents that Landlord reasonably and in good faith determines are not suitable for the Project, whether because of quality of the work or because of any potential or actual adverse impact of such contractor on the Project or on the labor relations between Landlord and any trade unions (including picketing or otherwise disrupting tenants or operations at the Project);
(b)All work shall be performed in conformity with a valid building permit when required, a copy of which shall be furnished to Landlord prior to the commencement of the work;
(c)All work shall be performed in accordance with the reasonable, non-discriminatory rules and regulations of Landlord from time-to-time; a copy of Landlord’s construction rules and regulations as currently in effect are set forth in Schedule 2 hereto;
(d)The Contractor’s and Tenants Agents’ construction material, tools, equipment, and debris shall be stored on or within the Premises, or in areas of the Project designated for that purpose by Landlord. Tenant will be responsible for all clean up with respect to the Eleventh Amendment Tenant Improvements, whether in the Premises themselves or in other areas utilized by Tenant or its contractors, and agrees to reimburse Landlord for any and all actual expenses incurred by Landlord by reason of substandard Eleventh Amendment Tenant Improvement work performed by the Contractor or Tenant’s Agents (as reasonably determined by Landlord) or as a result of inadequate clean up in the Staging Area (as hereinafter defined) or in other areas outside the Premises;
EXHIBIT B -7- | ||||||||
(e)Construction of the Eleventh Amendment Tenant Improvements shall comply with the Final Plans (as the same may be amended by one or more Change Orders) and all applicable Laws, and shall be subject to the general inspection of Landlord pursuant to the terms of Section 5.5 below; and
(f)Notwithstanding anything to the contrary in the Lease, if any Tenant Improvements or any permit application therefor triggers the requirement for any structural alterations or seismic assessment under San Francisco Building Code Sections 503.11.1 and 304.4 or any successor code provisions, Tenant will be solely responsible for all costs of compliance with such code provisions, including but not limited to, the cost of any required seismic assessment and all work required as a result thereof.
5.2.Indemnity; Warranty. Tenant’s indemnification set forth in the Lease shall also apply with respect to any and all damages, cost, loss or expense (including reasonable attorneys’ fees) resulting from any act or omission of Tenant or the Contractor, or anyone directly or indirectly employed by any of them, or in connection with Tenant’s non-payment of any amount arising out of the Eleventh Amendment Tenant Improvements (except to the extent relating to nonpayment or any delay in payment by Landlord of amounts required to be paid or contributed by Landlord pursuant to the terms hereof). Contractor (on behalf of itself and the Tenant’s Agents) shall warrant to Tenant and for the benefit of Landlord that the Eleventh Amendment Tenant Improvements shall be free from any defects in workmanship and materials for a period of not less than one (1) year from the date the Eleventh Amendment Tenant Improvements are substantially completed. The correction of any defective work shall include, without additional charge, all additional expenses and damages incurred in connection with the removal or replacement of all or any part of the Eleventh Amendment Tenant Improvements, and/or any other building improvements that may be damaged or disturbed thereby. Such warranty shall be contained in the Contract and shall inure to the benefit of both Landlord and Tenant. Tenant covenants to give to Landlord any assignment or other assurances as may be requested by Landlord to effect such right of direct enforcement.
5.3.Insurance Requirements. Tenant shall cause the Contractor to comply with the provisions of Schedule 1 attached hereto. Tenant shall carry “Builder’s All Risk” insurance in an amount reasonably approved by Landlord (but in no event greater than 100% of the completed insurable value of the Eleventh Amendment Tenant Improvements) covering the construction of the Eleventh Amendment Tenant Improvements (or Tenant shall cause the Contractor to carry such Builder’s All Risk insurance), and such other insurance as required to be carried by Tenant under the Lease and Schedule 1 attached hereto, it being understood and agreed that the Eleventh Amendment Tenant Improvements shall be insured by Tenant pursuant to Article 11 of the Lease immediately upon completion thereof
5.4.[Intentionally Omitted].
5.5.Inspection by Landlord. Landlord shall have the right to inspect the Eleventh Amendment Tenant Improvements at all reasonable times and upon reasonable advance notice to Tenant (which may be given by electronic mail to Tenant’s construction representative identified in Section 12 below) provided however, that Landlord shall not unreasonably interfere with the construction of the Eleventh Amendment Tenant Improvements and Landlord’s inspection of the Eleventh Amendment Tenant Improvements shall not constitute Landlords approval of the Eleventh Amendment Tenant Improvements. Should Landlord reasonably disapprove any portion of the Eleventh Amendment Tenant Improvements because they are not in compliance with the Final Plans (as the same may be amended by one or more Change Orders), Landlord shall notify Tenant in writing of such disapproval and shall specify the items disapproved and the reasons for
EXHIBIT B -8- | ||||||||
its disapproval. Any defects in the Eleventh Amendment Tenant Improvements shall be rectified by Tenant at no expense to Landlord (provided that the Eleventh Amendment Improvement Allowance may be applied to the cost of any such work).
5.6.Notice of Non-Responsibility. Not less than five (5) days prior to the date Tenant intends to first commence construction of the Eleventh Amendment Tenant Improvements, Tenant shall provide Landlord with written notice of its intention to commence construction. Landlord shall have the right from time to time to post notices of non-responsibility at the Premises.
5.7.Notice of Completion; Copy of Record Set of Plans. Within ten (10) days after completion of construction of the Eleventh Amendment Tenant Improvements, as a condition to Landlord’s disbursement of the Retention Amount, Tenant shall cause a Notice of Completion to be recorded in the county in which the Premises are located or such other instrument(s) as may be required by applicable Laws, and shall furnish a copy thereof to Landlord upon such recordation. If Tenant fails to do so, Landlord may execute and file the same on behalf of Tenant as Tenant’s agent for such purpose, at Tenants sole cost and expense (provided that the Eleventh Amendment Improvement Allowance may be applied to such cost). At the conclusion of construction, and, at the election of Landlord, as a condition to Landlord’s final disbursement of the Eleventh Amendment Tenant Improvement Allowance, Tenant shall cause Tenant’s Architect and/or Contractor (i) to update the Final Plans as necessary to reflect all changes made to the Final Plans during the course of construction, (ii) to certify to the best of their knowledge that the “record-set” of as-built drawings are true and correct and (iii) to deliver to Landlord two (2) sets of copies of such record set of drawings and one (1) set in electronic format. At Landlord’s request, Tenant shall deliver to Landlord a copy of all warranties, guaranties, and operating manuals and information relating to the Eleventh Amendment Tenant Improvements.
6.Changes, Additions or Alterations. If Tenant shall require or desire any change, addition, deletion or alteration in the Final Plans (each a “Change Order”), Tenant shall prepare and submit to Landlord reasonably detailed plans and specifications with respect to each Change Order which is reasonably budgeted to cost less than a total of $75,000, and Landlord will either approve such Change Order, or disapprove such Change Order due to a Design Problem, within five (5) business days. With respect to Change Orders which are reasonably budgeted to cost $75,000 or more, Tenant shall prepare and submit to Landlord Construction Drawings for Landlord approval in accordance with the provisions of Article 2 above.
7.[Intentionally Omitted].
8.Default. Any default by Tenant under the terms of this Work Letter shall constitute an Event of Default, after notice has been given and lapse of any applicable cure period under the Lease, and shall entitle Landlord to exercise all remedies set forth in the Lease and, in addition to all other rights and remedies granted to Landlord pursuant to the Lease, Landlord shall have the right to withhold payment of all or any portion of the Eleventh Amendment Tenant Improvement Allowance, and all other obligations of Landlord under the terms of this Work Letter shall be suspended until such time as such Event of Default is cured pursuant to the terms of the Lease.
9.Reasonable Diligence. Both Landlord and Tenant agree to reasonably cooperate and use reasonable diligence in performing all of their respective obligations and duties under this Work Letter for the construction and completion of the Eleventh Amendment Tenant Improvements.
10.Limited Liability. The provisions of Section 24.1 of the Lease are incorporated herein as if set forth in their entirety.
EXHIBIT B -9- | ||||||||
11.Delays Affecting Outside Allowance Date. The Outside Allowance Date shall be delayed by one (1) day for each day Tenant’s design or construction of the Eleventh Amendment Tenant Improvements is actually delayed due to a “Landlord Delay” or “Force Majeure Delay,” as those terms are defined below. As used herein, “Force Majeure Delay” shall mean acts of God, casualties, natural disasters, strikes, war, terrorist attacks, lockouts, labor disputes, pandemics or civil commotion. As used herein, “Landlord Delay” shall mean an actual delay in the design, design approval or performance of the Eleventh Amendment Tenant Improvements resulting from (i) failure of Landlord to timely approve or disapprove any plans or drawings (inclusive of Change Orders) as required pursuant to this Work Letter; (ii) unreasonable and material interference (when judged in accordance with industry custom and practice) by Landlord, its employees, agents or contractors with the completion of the Eleventh Amendment Tenant Improvements except as otherwise authorized in this Work Letter (including the impairment of Contractors’ or Tenant’s vendors’ or employees’ access to the Premises, failure to provide reasonable access to the Building’s loading docks or other facilities necessary for the construction of the Eleventh Amendment Tenant Improvements and/or the movement of materials and personnel to the Premises for such purpose), where such failure is due to the result of Landlord failing to provide access to loading docks or freight elevators at scheduled times because of the competing needs of other tenants, or Landlord, or the performance of the Landlord Work, or otherwise; provided that it shall not be deemed unreasonable and material interference to the extent the allocation of such resources is equitable amongst the tenants needing to use such resources; and (iii) delays due to the acts or failures to act of Landlord, its agents or contractors with respect to payment of the Eleventh Amendment Improvement Allowance as and when required under this Work Letter. If Tenant contends that a Force Majeure Delay or a Landlord Delay has occurred, Tenant shall notify Landlord in writing (the “Delay Notice”) of the event which constitutes such Force Majeure Delay or Landlord Delay, as applicable; such notice may, for the purposes of this Section 11, be via electronic mail to Landlord’s construction representative described in Section 13 below. If the actions or inactions or circumstances described in the Delay Notice qualify as a Force Majeure Delay or a Landlord Delay, as applicable, and are not cured by Landlord within two (2) business days after Landlord’s receipt of the Delay Notice, then a Force Majeure Delay or Landlord Delay, as applicable, shall be deemed to have occurred commencing as of the expiration of the two (2) business days period and continuing until such Force Majeure Delay or Landlord Delay, as applicable, has ended or been cured. Tenant will use reasonable efforts to mitigate the effects of any Landlord Delay through the re-sequencing or re-scheduling of work, if feasible, but this sentence will not be deemed to require Tenant to incur overtime or after-hours costs unless Landlord agrees in writing to bear such costs. notwithstanding the foregoing, if, solely as a result of a Landlord Delay, and notwithstanding Tenant’s mitigation efforts described above, the date of substantial completion of the Eleventh Amendment Tenant Improvements is delayed for a longer period than the actual length of the Landlord Delay (due to the need to reschedule subcontractors or suppliers and/or re-sequence elements of work, or to other reasons arising as a result of such Landlord Delay to the extent each such reason was specifically described in the Delay Notice), then, for the purposes of determining the delay in the Outside Allowance Date resulting from such Landlord Delay, the Landlord Delay will be deemed to be the number of days Tenant’s substantial completion of the Eleventh Amendment Tenant Improvements is delayed as a result of such Landlord Delay. Notwithstanding anything to the contrary in the foregoing, in no event will be Outside Allowance Date be extended by more than twelve (12) months as a result of Force Majeure Delays.
12.Tenant’s Representative. Tenant has designated Tim Clark, whose electronic mail address is [***] as its sole representative with respect to the matters set forth in this Work Letter, who, until further notice to Landlord, shall have full authority and responsibility to act on behalf of the Tenant as required in this Work Letter.
13.Landlord’s Representative. Landlord has designated Kari Aycock, whose electronic mail address is [***], as its sole representative with respect to the matters set forth in this Work Letter, who,
EXHIBIT B -10- | ||||||||
until further notice to Tenant, shall have full authority and responsibility to act on behalf of the Landlord as required in this Work Letter.
14.Building Pre-Stocked Materials. Tenant and Contractor will not be required to purchase, either from Landlord or from third parties, or to use any pre-stocked “Building standard” materials. If Tenant elects to use materials in its construction which Landlord has pre--stocked, Landlord shall charge Tenant for any pre-stocked items utilized by Contractor in constructing the Eleventh Amendment Tenant Improvements at Landlord’s actual cost (purchase price plus tax and shipping charges to the Building only, and no other charges, fees or costs), without profit or overhead to Landlord.
[remainder of page intentionally left blank]
EXHIBIT B -11- | ||||||||
SCHEDULE 1
TO
ELEVENTH AMENDMENT WORK LETTER
CONTRACTOR’S INSURANCE
CONTRACTOR’S INSURANCE
(a) The Contractor shall at its sole cost and expense, carry and maintain insurance with a company or companies acceptable to Landlord and licensed to do business in the state in which the Project is located with a rating of not less than A-VIII, as rated in the most currently available “Best’s Insurance Guide,” providing the Contractor with the following insurance coverage: (i) Commercial General Liability Insurance on an “occurrence” basis with contractual liability assumed by the Contractor under the Contract included in such coverage, with a limit of not less than One Million Dollars ($1,000,000) for bodily injury, death and property damage. Such Commercial General Liability Insurance shall include products/completed operations liability coverage with a separate aggregate limit of not less than $1,000,000 and coverage for owner’s and contractor’s protective liability to cover Landlord’s liability arising out of work performed by the Contractor and its subcontractors pursuant to the Contract; (ii) Worker’s Compensation Insurance to provide statutory worker’s compensation benefits as required by the laws of the state of California provided under the Contract and Employer’s Liability Insurance with a limit of not less than $1,000,000; and (iii) Commercial Automobile Liability Insurance with a limit of not less than $1,000,000 per occurrence providing coverage against bodily injury liability and property damage liability arising out of the use by or on behalf of the Contractor, its agents and employees, while performing the work pursuant to the Contract, of any owned, non-owned or hired motor vehicle or automotive equipment; and (iv) “Umbrella” Excess Liability Insurance on an “occurrence” basis with a limit of not less than Five Million Dollars ($5,000,000) per occurrence and in the aggregate with aggregates where applicable as outlined in the underlying primary coverages; provided, however, that such limit will be Ten Million Dollars ($10,000,000) in lieu of Five Million Dollars ($5,000,000) with respect to contracts involving any of the following: (1) contracts for work over Five Million Dollars ($5,000,000), (2) asbestos abatement and removal, (3) blasting, (4) concrete – structural repairs related to building foundations or projects over $50,000, (5) crane operations, (6) curtain wall – installation, (7) high risk electrical installation and repair, (8) elevators, escalators – design and installation, (9) fire system/sprinklers installation, (10) roofing/ sheet metal - installation and repair, (11) scaffolding, stages, bosun chair, (12) site work – demolition, excavation, and/or (13) structural steel installation and repair.
(b) The Contractor shall require any and all subcontractors engaged or employed by the Contractor in connection with the performance of the Eleventh Amendment Tenant Improvements to carry and maintain, at all times while engaged in the performance of such services, insurance with limits and coverages that are customary for subcontractors performing similar work, and to furnish Landlord such evidence thereof as Landlord may reasonably request. All insurance required hereunder shall be carried and maintained with a responsible company or companies licensed to do business in the state in which the Project is located with a rating of not less than as rated in the most currently available “Best’s Insurance Guide.”
(c) All architects, engineers and other design professionals providing services in connection with the Eleventh Amendment Tenant Improvements (including pursuant to design /build contracts) shall carry Professional Liability Insurance covering professional errors and omissions, professional negligence or wrongful acts. The limits of coverage required shall be (i) Two Million Dollars ($2,000,000) with respect to Tenant’s Architect, and (ii) One Million Dollars ($1,000,000) with respect to each other architect, engineer or other licensed professional rendering services in connection with design or construction of the
SCHEDULE 1 -1- | ||||||||
Eleventh Amendment Tenant Improvements (including pursuant to design/build contracts). Such insurance shall include contractual liability and coverage for prior acts and shall be maintained for a period of at least five (5) years following completion of the Eleventh Amendment Tenant Improvements.
(d) With the exception of the Worker’s Compensation Insurance referred to in Paragraph (a)(ii) above and the professional liability insurance referred to in Paragraph (b) above, all policies of insurance required under the terms of this Schedule 1 shall name Tenant, Landlord, Landlord’s lender, Landlord’s property manager, Landlord’s designated general contractor and their respective partners, members, managers, officers, agents, employees, successors and assignees as additional insureds and shall contain a waiver of subrogation in favor of such additional insureds. All policies of insurance required under the terms of this Schedule 1 shall have reasonable and customary deductible amounts, provided that in no event shall such deductible amounts exceed $10,000 per occurrence unless approved by Landlord in writing in its reasonable discretion. Cost(s) of defense shall not be included in any of the limits of liability required by this Schedule 1. In addition, all policies shall be primary and non-contributing, and shall contain an agreement on the part of the insurers that in the event of cancellation of the policy, the insurer shall endeavor to give not less than thirty (30) days advance written notice to Landlord. Tenant shall cause the Contractor to maintain Completed Operations Coverage, if available, until the expiration of any applicable statute of limitations, but in any event for a period of not less than five (5) years following completion by the Contractor of all its Eleventh Amendment Tenant Improvement services.
(e) Certificates for all insurance required to be carded pursuant to Section 5.3 of the Work Letter and this Schedule 1 for Tenant, the Contractor, the professionals and each of Tenant’s vendors shall be delivered to Landlord before such parties commence work or any of their equipment is moved onto the Project. Upon renewal of any such insurance that expires before the completion of the Contractor’s Eleventh Amendment Tenant Improvement services or before the expiration of the Contractor’s obligation to carry insurance hereunder, Landlord shall be provided with renewal certificates or binders not less than fifteen (15) days prior to such expiration together with evidence of the payment of premiums thereon.
(f) Should the Contractor at any time neglect or refuse to provide the insurance required herein, or should such insurance be canceled, Landlord shall have the right, but not the duty, following notice to Tenant and Tenant’s failure, within two (2) business days after such notice, to cure the same (whether by causing the Contractor to procure the coverage in question or by obtaining the required coverage itself) to procure the same and the cost thereof shall be deducted from the Eleventh Amendment Tenant Improvement Allowance.
(g) It shall be the responsibility of the Contractor not to violate nor knowingly permit to be violated any condition of the policies required by this Schedule 1, and it shall be the Contractor’s duty and responsibility to impose upon each subcontractor and have each subcontractor impose upon each sub-subcontractor the same responsibilities and obligations imposed upon the Contractor under this Schedule 1.
(h) All insurance maintained by the Contractor and any subcontractor or sub-subcontractor pursuant to this Schedule 1 shall include a prior release clause and clauses providing that each underwriter shall waive its rights of subrogation against Tenant, Landlord and Landlord’s lender, partners, officers, agents and employees.
SCHEDULE 1 -2- | ||||||||
SCHEDULE 2
TO
ELEVENTH AMENDMENT WORK LETTER
LANDLORD’S CONSTRUCTION RULES AND REGULATIONS
LANDLORD’S CONSTRUCTION RULES AND REGULATIONS
Project: T-C 888 Brannan Owner LLC
Contractor I Sub-Contractors, Suppliers, Material Men, etc., shall be advised of the following building rules and regulations concerning their proper conduct within the building. All referenced material, labor, services, taxes, after hour costs, shipping, permits, fees, or construction and/ or other reference processes performed by Contractor, shall be hereinafter referred to as “Work.” When AIA Document A 107 is the contract, the “Owner,” “Landlord”, and “Building Management” may be one and the same.
It is the General Contractor’s responsibility to ensure everyone reads and understands these rules and regulations. Ignorance of same is not a waiver of liability or responsibility. Failure to comply with any of these rules may result in your contract being canceled and/ or your people being asked to leave the job site. The General Contractor is ultimately responsible for the conduct of his Sub-Contractors. The signature block on the last page of this Agreement shall act as the written approval and a representative of the Building Management has executed acceptance of all requirements after it.
Building Engineers on site are:
Nate Zander [***] Jose Vasquez [***] Wilson Chen [***]
1.It is the intent of these Rules and Regulations to encompass all applicable labor material and equipment necessary to completely finish the Work described by Building Management in a workmanlike manner.
Where the Contractor wishes to make substitutions for items specifically called out on drawings, specifications, etc., Contractor shall submit in writing to the architect and/ or Building Management: samples, technical data, performance data, etc., as required. Such material shall be submitted far enough in advance to allow time for review and written approval without causing delay in the Work. Any substitutions used without written approval shall be subject to rejection and replacement at Contractor’s expense. The entire system to which the substitution applies and all Work installed in connection with the substitution must function as a unit as originally intended.
Contractor shall pay for cost of any change in Work clue to improper checking and coordination by Contractor. Contractor shall also be responsible for all additional costs in the re-coordination of trades and replacement of material.
2.If the Contractor defaults or persistently fails and/ o r neglects to carry out the Work and / or correct any Work rejected by the Building Management, in accordance with the Contract
SCHEDULE 2 -1- | ||||||||
Documents and/ or Building Rules and Regulations Agreement, the Owner, after twenty-four (24) hours written notice to the Contractor, without prejudice to any other remedy he may have, may make good such deficiencies. Owner may terminate the Contract and take possession of the site and of all materials, equipment, tools, construction equipment and machinery thereon owned by the Contractor and finish the Work by whatever method he deems expedient. If the remaining balance of the Contract Sum is greater than the expense of finishing the Work, the excess shall be paid to the Contractor. If the remaining balance is less than the expense of finishing the Work, the Contractor shall pay the difference to the Owner.
3.Prior to starting any work in the building, Contractor, at its sole expense, should have a current Policy of Public Liability Insurance Naming T-C 888 Brannan Owner LLC, the tenant if applicable, and Jones Lang LaSalle Americas, Inc. as additionally insured, on file with the Management Office. Policy will insure against loss, injury, death or damage of persons or property, including the premises and the building arising out of such Work, with the limits of not less than $1,000,000 per occurrence for bodily injury and $1,000,000 per occurrence for property damage. Building Management based on the nature of the Work being performed may increase said amount. Also, Contractor must keep current insurance certificates on all Sub-Contractors. Any Contractor I Sub-Contractor performing work found not to have current insurance will be immediately ordered off the premises. General Contractors shall list the following as additionally insured:
4.Contractors working in or about the property must have prior written approval from the Building Management before any type of Work may commence. A list of subcontractors must be listed in the Security Department and proper notice will be given to the building engineers before construction begins. Any persons not on the approved Contractor list will be denied access to the property - no exceptions. This list will include phone numbers and contacts for each Contractor/ Sub-Contractor, including home and emergency telephone numbers.
5.An initial walk through of the job will be conducted prior to construction. The Contractor’s superintendent, the building engineer and security will review rules and regulations, as well as check for existing conditions of the premises.
6.Prior to the commencement of Work, the Contractor shall provide Building Management with a projected schedule showing the major items of Work with the dates of their start and finish with significant milestones for Management to inspect. A projected date of final completion shall also be included. This date shall be the time when all trades have completed their Work, the suite has been certified by the City as ready for occupancy, and the job is ready to be turned over to the tenant or Building Management.
7.All Contractors must be licensed in the state in which the Work is performed and have work experience in commercial properties. Written documentation/ certification and previous job references are required prior to the commencement of any type of Work.
8.Where applicable, permits must be obtained from the City Building Department or other governing agency prior to the commencement of Work. Permits must be posted at the job site in accordance to the governing body. All construction Work will require a permit. An officer of
SCHEDULE 2 -2- | ||||||||
Jones Lang LaSalle Americas, Inc. must approve any exceptions in writing. Approval of drawings, details, schedules, etc., by the Building Management shall not relieve the Contractor from the responsibility for compliance with local, county, state or federal laws, rules, ordinances, or Rules and Regulations of commissions, boards, or other authorities having jurisdiction.
9.All Contractors shall keep the premises and improvements free and clear of all liens arising out of or claimed by reason of any Work performed, materials furnished or obligations incurred. The Contractor is responsible for the payment of all bills for labor and materials furnished by, or to the Sub-Contractors and himself on this project, and the Contractor will also deliver to the Owner a Waiver of Liens from himself and each if his Sub-Contractors, if any, and at such time he will certify that he is submitting such lien waivers for all Sub-Contractors involved.
10.No one shall be allowed to endanger the buildings, its premises or its occupants in any manner whatsoever. If such a situation occurs, the Contractor, Sub-Contractor, supplier, etc. shall immediately take steps to correct and eliminate the hazardous condition. In the event that the Contractor’s personnel fail to perform in a satisfactory manner, the Building Management reserves the right to immediately take steps to remedy the hazard at the Contractor’s expense.
11.It is imperative that good business/ professional conduct be maintained by all Contractors’ personnel while they are on the property and that they are properly dressed for the environment they are working in and the job being done. Contractor shall not employ any unfit person or anyone not skilled in the task assigned to him. Respect must be shown to the building tenants at all times. Rude and obscene behavior, including foul and abusive language, will not be tolerated. Offenders will be asked to remove themselves from the premises and shall not be permitted to return.
12.Contractor is not permitted to post any sign on the job site advertising the name of the Contractor or Sub-Contractor.
13.All Contractors’ personnel will enter and exit through a designated entrance and possibly a designated freight elevator. Use of building main floor, lobbies, or elevator lobbies is prohibited for storing material even on a temporary basis. Specific building moving and freight policies are established and must be reviewed with Building Management. Where applicable such freight policies may include fines for breaking such policies.
14.The Building Management prior to the commencement of the project must approve hours in which the Work will commence and end each day. No variation to the agreed upon hours will be permitted unless authorization is obtained from the Building Management. The Contractor’s Rules and Regulations as stated herein will further limit hours. Building Management must be notified of “after hours” Work in advance. (See Security Access Instructions for details) “After hours” work is defined to be before 7:00 am and after 6:00 pm Monday through Friday. All Contractors working over the weekend and after the normal hours shall provide the Management Office a list of workers prior to the worker being on site or they will be denied access. The list should also include an estimated time the Contractors will be working, the location of the work to be done and a 24-hour emergency contact for the Supervisor of the Work.
15.All deliveries are to be accepted, moved and delivered to the contracted suite by 8:00 a.m., stocking
SCHEDULE 2 -3- | ||||||||
will not be allowed during business hours. When accepting deliveries, Masonite must be laid to protect floor finishes. It is the Contractor’s responsibility to keep public areas clean at all times.
16.All construction waste and debris shall be removed between the hours of 6:00 p.m. to 8:00
a.m. No construction waste or debris may be placed in the building dumpster/ compactor. The Contractor will provide for removal of waste and debris from the building at his own expense. If a dumpster is required (space allowing), the location shall be authorized by the Building Management and will meet the Management’s standard relating to safety and aesthetics daily. It will be the responsibility of the Contractor to keep the area around the container neat and orderly daily. It will be important to assure that a trail of debris in not left between the Work areas and refuse container.
17.Construction personnel shall at all times maintain the highest level of project cleanliness. All construction debris shall be removed through the service elevator or stairs on a daily basis and shall never be allowed to produce a fire hazard. In the event that the Contractor fails or refuses to keep the demised premises free of accumulated waste, the Management Office reserves the right to enter said premises and remove the debris at the Contractor’s expense. In addition, all public areas, i.e., corridors, Restrooms, janitor’s closets, etc. shall be maintained and kept free of construction debris, dust, etc.
Specific Restrooms will be designated for Contractor use. Anyone found using Restrooms other than specified, or janitorial closets will be subject to dismissal. No one is permitted to use the janitorial closets without Management’s permission. Upon completion of each tenant improvement, the Contractor will be responsible for restoring the facility to its original state. All carpeted corridors will be protected by carpet mask (Polytech brand only) flush with the base from the point of entry to the job site to the Restroom.
Walk-off mats will be placed at all locations where Contractors enter public areas of the building. These walk-off mats will be maintained and cleaned daily, or more frequently if required, so that construction material is not transferred unto any other areas of the building. Any flammable or hazardous materials (i.e., paint) may only be stored on premises with permission of the Management Office who shall designate an area for such storage.
18.Pre-filters shall be installed over all return air openings on floors under construction. If building filters or equipment require replacement or cleaning due to construction dust, the Contractor will be charged.
19.The Contractor should cover air transfers when working next to tenanted space to control the transmission of dust and dirt. Covering must be removed at the completion of daily construction. Keep all tenant entrance and exit doors closed to restrict the movement of dust or dirt. Close off temporary openings with polyurethane. Due to local fire codes, no openings may be made on a tenanted floor to the corridor unless the door will be made on a tenanted floor to the corridor doors must remain closed unless materials are being delivered. All HVAC filters in fan rooms shall also be delivered in operable condition at time of completion (thus a temporary filter should be added to the existing filter).
20.Electrical Panels must be closed up at the end of each working day. (Interior panels can be
SCHEDULE 2 -4- | ||||||||
covered or barricaded). Doors to all electrical rooms must remain locked when not occupied or protected by barrier. No storage is allowed in the electrical room. DO NOT TAPE OVER LOCKS TO LEAVE DOOR OPEN OR USE ANY MECHANICAL DEVICE TO PROP OPEN. REPEATED VIOLATIONS WILL BE FINED $150.00 PER EVENT.
21.Any and all safety equipment, such as traffic control, flagmen, barricades, rigging, fire extinguishers, first aid supplies, etc., as may be necessary or required by any agency having jurisdiction, shall be the sole responsibility of and at the expense of Contractor. It is the responsibility of the Contractor to protect all individuals surrounding the Work area. All liability shall be the responsibility of the Contractor. Contractor I Sub-Contractor shall inaugurate and maintain an accident prevention program and an employee safety-training program. Proof of compliance with Cal OSHA rule SB198 shall be maintained and followed. All employees on the job, regardless of whose direct payroll they are on, shall be required to respond to safety instructions from the Contractor’s supervision. Persons who do not respond shall be removed from the job.
22.All Contractors are to take precautions to prevent the accidental tripping of the fire alarm system. The smoke detectors must be covered during working hours and uncovered at the encl of the working clay.
False alarms shall be fines at:
First Offense: $200 Second Offense:
$300 Third Offense:
$500
23.No gasoline operated devices, i.e., concrete saws, coring machines, welding machines, etc., shall be permitted within the building premises. All work requiring such devices shall be by means of electrically operated substitutes.
24.All approved gas and oxygen canisters shall be properly chained and supported to eliminate all potential hazards. At the completion of use, said containers shall be removed from the building.
25.Please contact the Management Office to schedule work on the following building systems: 24-hours in advance (Any disruption of services will be scheduled at the Management Office’s discretion.)
a.Domestic water.
b.Fire alarm or speaker.
c.Electrical tie-ins to base building or the addition of equipment to any are other than the tenant suite except sub panels located within the tenant premises.
d.Sprinkler system.
e.Any work that will take place outside the demised tenant space.
f.Any tie-ins that may affect other tenant spaces.
SCHEDULE 2 -5- | ||||||||
Note: If a utility or building alarm is turned off for Contractor’s work, Contractor must notify the Management Office upon completion so the system can be turned back on as soon as possible.
26.Construction personnel are not permitted to block open stairway doors. These doors provide the fire protection required by code. Continued violation of this provision shall be subject to a fine. Janitorial doors shall be kept closed at all times on occupied tenant floors.
27.No graffiti or vandalism will be tolerated. Any individual caught in the act shall be immediately removed from the premises and will not be allowed to return. In addition, all repairs will be at the Contractor’s expense.
28.No tobacco smoking or chewing will be permitted in the building. No radios or other sound producing equipment will be permitted in the building.
29.Since Work will occur while other businesses in the building are operating, noise is a major consideration. Therefore, excessive noise, which may disturb tenants, will force us to halt Work temporarily. No hammer drilling, core drilling or any tenant disturbances will be allowed between the hours of 8:00 a.m. and 5:00 p.m., Monday through Friday. It is the responsibility of the Contractor to instruct all construction personnel that noise will be minimized at all times. The Building Management shall determine acceptable noise level.
30.Wet paint sign must be posted in all public areas when appropriate.
31.The odors, which arise when various construction procedures are done, can cause discomfort to the tenants of the building. Examples of these odor concerns are carpet adhesive, wallpaper sizing, wood stains and finishes and painting. (Specified Paint is Frazee Environcoat or the equivalent) These activities which sometimes produce odor problems for tenants in the building will be done during evening non-business hours, as approved by the Building Manager. Also, the engineering staff should be alerted to arrange for added ventilation.
32.Contractor shall provide temporary electrical devices within the demised premises for their Sub- Contractor’s use. Contractor will not be permitted to run extension cords through public space on occupied floors or through occupied tenant spaces. The Contractor shall use reasonable measures to minimize energy consumption in the construction area when possible. The Building shall pay for normal electrical consumption during the construction process. All lights and equipment must be extinguished at the end of the Contractor’s business day. In the event that the Contractor continues to leave lights and equipment on during off-hours, the Management Office reserves the right to receive just compensation for excessive electrical consumption.
33.Contractor I Sub-Contractor may park in designated spaces only. Any vehicles found in unauthorized spaces will be subject to posted parking rates. Specific instructions should be obtained from each Building Management.
34.No work is to be performed, nor materials stored in any area other than suite under construction without prior written authorization. No staging of trucks or materials will be allowed
SCHEDULE 2 -6- | ||||||||
areas that may affect traffic flow to the adjoining properties.
35.Rubber wheels are required on all vehicles transporting materials in the Building.
All equipment and material will be designed and attached for seismic loading in accordance with governmental agencies having jurisdiction over the work.
By executing this Agreement, the Contractor represents that he has or will, prior to commencement of Work, determine and verify all field measurements, field construction criteria, materials, catalogue numbers and similar data and that he has checked and coordinated all drawings, specifications, etc.
The Contractor accepts and is willing to perform all Work in a workmanlike manner and in accordance with standard practice. Any extra cost based on drawings or changes shall be brought to the attention of Building Management in writing and if not mentioned, it will be assumed that no extra cost is involved for making a change, deviation or omission from the original drawings, details or specifications.
SCHEDULE 2 -7- | ||||||||
EXHIBIT C
NON-STANDARD TENANT IMPROVEMENTS OR ALTERATIONS
TO BE REMOVED FROM 850 PREMISES
TO BE REMOVED FROM 850 PREMISES
Tenant, at its sole cost, shall remove from the storage use areas of the 850 Premises all Tenant installed fencing and barriers, repair any damage caused by the installation or removal of such items, all as provided in the Seventh Amendment.
EXHIBIT C -1- | ||||||||
EXHIBIT D
DEMISING WALLS
The general locations of the demising walls to be constructed by Landlord are shown in red in the diagrams below, subject to Section 6.d(iii) of the Eleventh Amendment.
Second Floor:

EXHIBIT D -1- | ||||||||
Third Floor:

EXHIBIT D -2- | ||||||||
EXHIBIT E
ATRIUM
The Atrium is the area outlined in red in the diagrams below.
First Floor:

EXHIBIT E -1- | ||||||||
Second Floor

EXHIBIT E -2- | ||||||||
Third Floor

EXHIBIT E -3- | ||||||||
Fourth Floor

EXHIBIT E -4- | ||||||||
Fifth Floor:

EXHIBIT E -5- | ||||||||
ADDENDUM NO. 1
RIGHT OF FIRST OFFER TO PURCHASE
ATTACHED TO AND A PART OF THE ELEVENTH
AMENDMENT TO OFFICE LEASE BY AND BETWEEN
AMENDMENT TO OFFICE LEASE BY AND BETWEEN
T-C 888 BRANNAN OWNER LLC,
a Delaware limited liability company
a Delaware limited liability company
AND
AIRBNB, INC.,
a Delaware corporation
a Delaware corporation
If, during the remainder of the Term or at any time during the Extended Term, Landlord desires to offer the Building (excluding any sale involving the Building as part of a group or portfolio sale) for sale upon terms desired by Landlord in its sole and absolute discretion to any third party person or entity (“Person”), or if Landlord receives a bona fide offer from any Person to purchase the Building (excluding any sale involving the Building as part of a group or portfolio sale) upon terms acceptable to Landlord in its sole and absolute discretion, then, prior to offering to sell the Building to any Person or prior to accepting any Third Party Offer to purchase the Building, as the case may be, Landlord shall first offer Tenant the one-time right to purchase (the “Right of First Offer to Purchase”) the Building by delivering to Tenant written notice (the “First Offer Notice”) of the specific terms upon which Landlord is willing to sell the Building, as reflected in the terms provided by Landlord to such Person or the terms from such third party which are acceptable to Landlord (“Landlord’s Proposal”) including the price (“Offering Amount”), payment terms, conditions of title, costs of escrow and all other material terms and the proposed purchase agreement and joint escrow instructions reflecting such terms (“Purchase and Sale Agreement”). Such Offering Amount shall be net of any real estate commissions or finder’s fees and shall in no event be less than the total amount of all liens and encumbrances and payoff amounts owed by Landlord on the property.
Tenant shall have thirty (30) days after its receipt of the First Offer Notice to deliver a notice to Landlord exercising the Right of First Offer to Purchase at the Offering Amount and upon the terms of Landlord’s Proposal., which notice of exercise must be accompanied by a deposit equal to five percent (5%) of the Offering Amount. If Tenant exercises its Right of First Offer to Purchase, Landlord and Tenant shall execute a commercially reasonable Purchase and Sale Agreement prepared by Landlord and approved by Tenant in its reasonable discretion. If Tenant does not elect to purchase the Building within the aforesaid 30-day period, or if, for any reason, the Purchase and Sale Agreement is not fully executed by the parties within forty-five (45) days after the date of delivery of Tenant’s notice of exercise of the Right of First Offer to Purchase (the “Outside Date”), Tenant’s Right of First Offer to Purchase shall be deemed null and void and of no further force or effect and Landlord shall thereafter be entitled to offer to sell or to sell the Building to any other Person, at any time thereafter, upon any terms desired by Landlord at its sole and absolute discretion, and without any obligation to again offer to sell the Building to Tenant, so long as any Purchase and Sale Agreement entered into by Landlord and any Person closes escrow within fifteen (15) months after the date of Landlord’s First Offer Notice and provides for a purchase price of not less than ninety percent (90%) of the Offering Amount offered to Tenant in
ADDENDUM NO. 1 -1- | ||||||||
Landlord’s Proposal (if those conditions are not met and Landlord desires to sell the Building as provided above, Landlord will be obligated to deliver a new Landlord’s First Offer Notice reflecting the new terms upon which Landlord is willing to sell the Building). Subject to the terms of this Addendum, if Landlord does not close escrow on the Purchase and Sale Agreement with any Person within fifteen (15) months after Landlord’s First Offer Notice and/or if the purchase price is less than ninety percent (90%) of the Offering Amount offered to Tenant in Landlord’s Proposal, then Tenant’s Right of First Offer to Purchase shall be reinstated and Landlord will deliver to Tenant a new First Offer Notice prior to offering to sell the Building to any Person or prior to accepting any Third Party Offer to purchase the Building. For clarity, the Tenant’s Right of First Offer to Purchase will only apply to the first sale of the Building.
The rights granted to Tenant under this Addendum are personal to the original Tenant executing this Eleventh Amendment (the “Original Tenant”) and may not be exercised by or assigned to any person or entity other than the Original Tenant or an assignee of the Original Tenant pursuant to a transaction meeting the requirements of Section 15.1(b) of the Initial Lease. Tenant’s purchase rights contained herein shall be subject and subordinate to the rights of any lender or mortgagee of the property or any successor purchaser of the property at foreclosure or by virtue of deed in lieu transfer.
Notwithstanding the foregoing, in no event shall Landlord be obligated to offer to sell the Building to Tenant and Tenant shall have no right to exercise its rights under this Addendum, if, at the time Landlord would otherwise deliver a Landlord’s Proposal there is a current Event of Default on the part of Tenant. If there is an Event of Default under the Lease after Landlord’s delivery of the Purchase and Sale Agreement, to Tenant but prior to the parties’ execution and delivery of the Purchase and Sale Agreement, then Landlord shall have no obligation to proceed or continue with the sale of the Building to Tenant and Tenant’s Right of First Offer to Purchase shall thereafter be deemed null and void and of no further force or effect.
ADDENDUM NO. 1 -2- | ||||||||