EX-10.13

Exhibit 10.13

1455 MARKET STREET

OFFICE LEASE

This Office Lease (the “Lease”), dated as of the date set forth in Section 1 of the Summary of Basic Lease Information (the “Summary”), below, is made by and between HUDSON 1455 MARKET, LLC, a Delaware limited liability company (“Landlord”), and SQUARE, INC., a Delaware corporation (“Tenant”).

SUMMARY OF BASIC LEASE INFORMATION

 

TERMS OF LEASE

  

DESCRIPTION

1.

 

Date:

  

October 17, 2012

2.

 

Premises (Article 1):

  
 

2.1

  

Building:

   The building located at 1455 Market Street, San Francisco, California, including all walkways, plazas, patios and parking areas. Landlord and Tenant hereby agree that the Building contains a total rentable area of 1,012,012 square feet.
 

2.2

  

Premises:

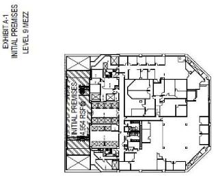
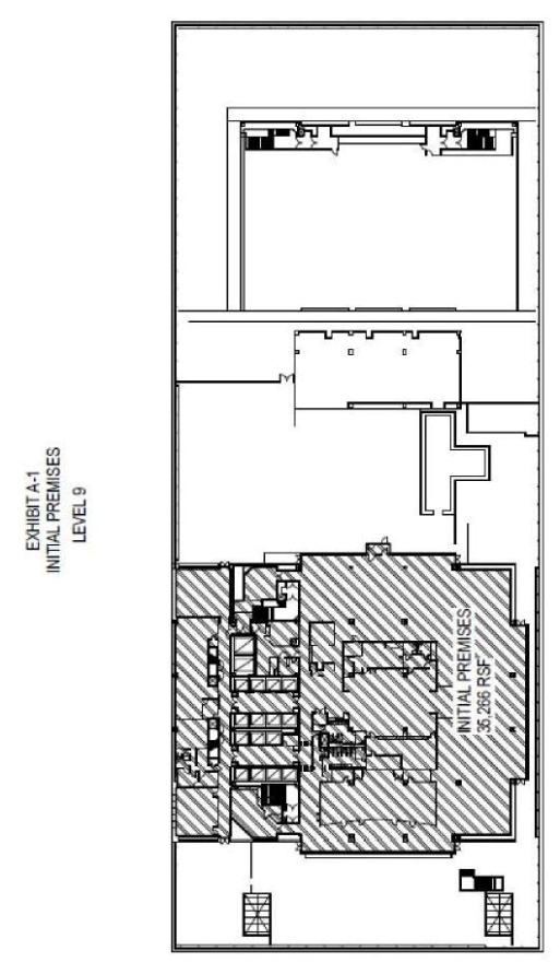
   A total of approximately 181,805 rentable square feet of space, consisting of (i) approximately 92,740 rentable square feet of space located on the sixth (6th) floor of the Building (the “6th Floor Premises”), (ii) approximately 4,954 rentable square feet of space located on the mezzanine level of the ninth (9th) floor of the Building (the “9th Floor Mezzanine Premises”), (iii) approximately 35,266 rentable square feet of space located on the ninth (9th) floor of the Building (the “9th Floor Premises”), (iv) the entire eighteenth (18th) floor of the Building (which eighteenth (18th) floor contains 24,407 rentable square feet of space) (the “18th Floor Premises”), and (v) the entire nineteenth (19th) floor of the Building (which nineteenth (19th) floor contains 24,438 rentable square feet of space) (the “19th Floor Premises”) (collectively, the “Initial Premises”), all as further set forth in Exhibit A-1 to this Lease.


2.3 Must-Take 1 Space: Approximately 15,741 rentable square feet of space located on the sixth (6th) floor of the Building (the “Must-Take 1 Space”), as further depicted on Exhibit A-2 to this Lease.

2.4

Must-Take 2 Space:

Approximately 48,532 rentable square feet of space located on the seventh (7th) floor of the Building (the “Must-Take 2 Space”), as further depicted on Exhibit A-3 to this Lease.
Must-Take 1 Space and Must-Take 2 Space may be collectively referred to as “Must-Take Space.”

2.5

Expansion Space:

Approximately 81,354 rentable square feet of space located on the eighth (8th) floor of the Building (the “Expansion Space”), as further depicted on Exhibit A-4 to this Lease.

3.

Lease Term (Article 2).

3.1

Length of Term:

Ten (10) years and two hundred ten (210) days from the “Lease Commencement Date” (as defined below).

3.2

Lease Commencement Date:

The later to occur of (i) November 1, 2012, (ii) the date that occurs sixty (60) days after the date of this Lease, and (iii) the date on which Landlord has delivered possession of all of the Initial Premises to Tenant in the “Delivery Condition,” as that term is defined in Section 1.1.4 of this Lease

3.3

Rent Commencement Date:

Two hundred ten (210) days after the Lease Commencement Date.

3.4

Lease Expiration Date:

The day which is ten (10) years and two hundred ten (210) days after the Lease Commencement Date occurs.

3.5

Option Terms:

Two (2) five (5) year options to renew, as more particularly set forth in Section 2.2 of this Lease.

 

2


  3.6   

Must-Take 1 Lease Commencement Date:

   The later to occur of (i) July 1, 2013 and (ii) the date on which Landlord delivers possession of the Must-Take 1 Space to Tenant in the Delivery Condition.
  3.7   

Must-Take 2 Lease Commencement Date:

   The later to occur of (i) January 1, 2014 and (ii) the date on which Landlord delivers possession of the Must-Take 2 Space to Tenant in the Delivery Condition.
4.   Base Rent (Article 3):   
   4.1 6th Floor Premises, 9th Floor  Mezzanine Premises, and 9th Floor  Premises:      

 

Lease Year*

   Annual Base Rental
Rate Per
Rentable Square Foot
     Annual Base Rent      Monthly Installment
of Base Rent
 
1    $ 30.00       $ 3,988,800.00       $ 332,400.00   
2    $ 31.00       $ 4,121,760.00       $ 343,480.00   
3    $ 32.00       $ 4,254,720.00       $ 354,560.00   
4    $ 33.00       $ 4,387,680.00       $ 365,640.00   
5    $ 34.00       $ 4,520,640.00       $ 376,720.00   
6    $ 35.00       $ 4,653,600.00       $ 387,800.00   
7    $ 36.00       $ 4,786,560.00       $ 398,880.00   
8    $ 37.00       $ 4,919,520.00       $ 409,960.00   
9    $ 38.00       $ 5,052,480.00       $ 421,040.00   
10    $ 39.00       $ 5,185,440.00       $ 432,120.00   

4.2 18th Floor Premises and 19th Floor Premises:

 

Lease Year*

   Annual Base Rental
Rate Per
Rentable Square Foot
     Annual Base Rent      Monthly Installment
of Base Rent
 
1    $ 35.00       $ 1,709,575.00       $ 142,464.58   

 

3


2 $                 36.00      $1,758,420.00    $     146,535.00   
3 $ 37.00      $1,807,265.00    $ 150,605.42   
4 $ 38.00      $1,856,110.00    $ 154,675.83   
5 $ 39.00      $1,904,955.00    $ 158,746.25   
6 $ 40.00      $1,953,800.00    $ 162,816.67   
7 $ 41.00      $2,002,645.00    $ 166,887.08   
8 $ 42.00      $2,051,490.00    $ 170,957.50   
9 $ 43.00      $2,100,335.00    $ 175,027.92   
10 $ 44.00      $2,149,180.00    $ 179,098.33   

 

* Subject to the terms of Section 2.1, the first (1st) Lease Year shall commence upon the Rent Commencement Date. On the Must-Take 1 Rent Commencement Date, the foregoing Base Rent schedule set forth in Section 4.1 of the Summary shall apply to and be updated to include the Must-Take 1 Space in addition to the 6th Floor Premises, 9th Floor Mezzanine Premises, and 9th Floor Premises. On the Must-Take 2 Rent Commencement Date, the foregoing Base Rent schedule set forth in Section 4.1 of the Summary, as previously revised pursuant to the preceding sentence, shall apply to and be updated to include the Must-Take 2 Space in addition to the 6th Floor Premises, 9th Floor Mezzanine Premises, 9th Floor Premises and Must-Take 1 Space.

 

5. Base Year (Article 4) : As to the Initial Premises: If the Rent Commencement Date occurs on or between January 1 and July 31, then the calendar year in which the Rent Commencement Date occurs; provided, however, if the Rent Commencement Date occurs on or between August 1 and December 31, then the calendar year immediately after the calendar year in which the Rent Commencement date occurs.
As to other portions of the Premises, including the Availability Premises, the Must-Take 1 Space, the Must-Take 2 Space, and the Expansion Space: If the date on which Tenant is obligated to commence paying Base Rent as to such space occurs on or between January 1 and July 31, then the calendar year in which such date occurs; provided, however, if such date occurs on or between August 1 and December 31, then the calendar year immediately after the

 

4


calendar year in which such date occurs.
6. Tenant’s Share (Article 4): 6th Floor Premises: Approximately 9.16%.
9th Floor Mezzanine Premises: Approximately 0.49%.
9th Floor Premises: Approximately 3.48%.
18th Floor Premises: Approximately 2.41%.
19th Floor Premises: Approximately 2.41%.
7. Permitted Use (Article 5): General office use, software research and development, limited hardware research and development and testing and other legal ancillary uses such as a cafeteria and fitness center for Tenant’s personnel consistent with the nature of the Property and subject to Applicable Laws.
8. Letter of Credit (Article 21): Nine Million and No/100 Dollars ($9,000,000.00), subject to the terms and conditions of Article 21 of this Lease.
9. Parking Pass Ratio (Article 28): One (1) unreserved parking passes for every 3,000 rentable square feet of the Premises, not to exceed two hundred twenty-five (225) parking passes total, of which, up to five (5) unreserved parking passes made be exchanged for the same number of reserved parking spaces.
10. Address of Tenant (Section 29.18):

Square, Inc.

901 Mission Street

San Francisco, CA 94103

Attention: Finance Department

(Prior to Rent Commencement Date)

and

Square, Inc.

1455 Market Street Sixth Floor

San Francisco, California 94103

Attention: Finance Department

(After Rent Commencement Date)

 

5


11. Address of Landlord (Section 29.18): See Section 29.18 of the Lease.
12. Brokers (Section 29.24): Cushman & Wakefield of California, Inc.
Custom Spaces Commercial Real Estate
13. Allowance: With respect to the Initial Premises and any Must-Take Space: an amount equal to $60.00 per rentable square foot of the Initial Premises or applicable Must-Take Space, as set forth in this Summary.

 

6


ARTICLE 1

PREMISES, BUILDING, PROPERTY, AND COMMON AREAS

1.1 Premises, Building, Property and Common Areas.

1.1.1 The Premises. Landlord hereby leases to Tenant and Tenant hereby leases from Landlord the premises set forth in Section 2.2 of the Summary (the “Premises”). The outline of the Premises is set forth in Exhibit A attached hereto and each floor or floors of the Premises has the number of rentable square feet as set forth in Section 2.2 of the Summary. The parties hereto agree that the lease of the Premises is upon and subject to the terms, covenants and conditions herein set forth, and Tenant covenants as a material part of the consideration for this Lease to keep and perform each and all of such terms, covenants and conditions by it to be kept and performed and that this Lease is made upon the condition of such performance. The parties hereto hereby acknowledge that the purpose of Exhibit A is to show the approximate location of the Premises in the “Building,” as that term is defined in Section 1.1.2, below, only, and such Exhibit is not meant to constitute an agreement, representation or warranty as to the construction of the Premises, the precise area thereof or the specific location of the “Common Areas,” as that term is defined in Section 1.1.3, below, or the elements thereof or of the accessways to the Premises or the “Property,” as that term is defined in Section 1.1.2, below. Except as specifically set forth in this Lease and in the Tenant Work Letter attached hereto as Exhibit B (the “Tenant Work Letter”), Landlord shall not be obligated to provide or pay for any improvement work or services related to the improvement of the Premises. Tenant also acknowledges that neither Landlord nor any agent of Landlord has made any representation or warranty regarding the condition of the Premises, the Building or the Property or with respect to the suitability of any of the foregoing for the conduct of Tenant’s business, except as specifically set forth in this Lease and the Tenant Work Letter.

1.1.2 The Building and The Property. The Premises are a part of the building set forth in Section 2.1 of the Summary (the “Building”). The term “Property,” as used in this Lease, shall mean (i) the Building and the Common Areas, and (ii) the land (which is improved with landscaping, subterranean parking facilities and other improvements) upon which the Building and the Common Areas are located.

1.1.3 Common Areas. Tenant shall have the non-exclusive right to use in common with other tenants in the Property, and subject to the rules and regulations referred to in Article 5 of this Lease, those portions of the Property which are provided, from time to time, for use in common by Landlord, Tenant and any other tenants of the Property (such areas are collectively referred to herein as the “Common Areas”). Except during such periods as, and to the extent, Tenant is entitled to the exclusive use thereof, the Building lobby and Outdoor Terraces shall remain part of the Common Areas. The Common Areas shall consist of the “Property Common Areas” and the “Building Common Areas.” The term “Property Common Areas,” as used in this Lease, shall mean the portion of the Common Areas located outside the Building. The term “Building Common Areas,” as used in this Lease, shall mean the portions of the Common Areas located within the Building. The manner in which the Common Areas are maintained shall be as provided in Article 7 and operated shall be at the reasonable discretion of

 

7


Landlord (but shall at least be consistent with the manner in which the common areas of the “Comparable Buildings,” as that term is defined in Exhibit G, attached hereto) and the use thereof shall be subject to such reasonable rules, regulations and restrictions as Landlord may make from time to time. Landlord reserves the right to close temporarily, make alterations or additions to, or change the location of elements of the Property and the Common Areas, provided that, in connection therewith, Landlord shall perform such closures, alterations, additions or changes in a commercially reasonable manner and, in connection therewith, shall use commercially reasonable efforts to minimize any material interference with Tenant’s use of and access to the Premises or the Property parking facility.

1.1.4 Delivery of Premises. Landlord shall deliver each portion of the Premises (including the Must-Take Space) to Tenant as such portion becomes vacant and free of tenants or occupants, in the condition (the “Delivery Condition”) described in the Tenant Work Letter with respect to such portion of the Premises, but in no event shall the Lease Commencement Date occur earlier than sixty (60) days after full execution of this Lease. Landlord shall complete the work set forth on Schedule 1 to Exhibit B (the “Core and Shell Work”) on or before the date set forth for each such item on Schedule 1 to Exhibit B. Subject to the terms of Section 1.1.5 below, if Landlord fails to complete any of the Core and Shell Work by the applicable dates set forth in Schedule 1 to Exhibit B, which dates shall be extended by one (1) day for each day Landlord’s substantial completion of such portion of Landlord’s Core and Shell Work is delayed due to Tenant Caused Delay, the Rent Commencement Date (as to any of the Core and Shell Work with respect to the 6th Floor, 9th Floor, 9th Floor Mezzanine, 18th Floor and 19th Floor Premises), or with respect to any other space in the Building leased by Tenant (including any Must-Take Space, Expansion Space or Availability Premises), the date Tenant is otherwise obligated to commence payment of Base Rent, shall be delayed by one (1) day for each day of delay beyond such applicable date. As used in this Lease, “Tenant Caused Delay” shall mean an actual delay in the substantial completion of the Core and Shell Work (or, as used in Section 2.4.4, in Landlord’s delivery of the applicable Premises in the Delivery Condition) resulting from the acts or omissions of Tenant, including but not limited to the interference by Tenant, its agents or contractors with such substantial completion, which act or omission continues for more than one (1) day after written notice thereof from Landlord, or a default by Tenant under the terms of this Lease.

1.1.5 Perimeter Windows. Notwithstanding anything to the contrary set forth in this Lease or the Tenant Work Letter, Tenant shall not receive an abatement of Base Rent as set forth in Section 1.1.4 solely because the “Perimeter Window Work” (as that term is defined in the Tenant Work Letter) is not completed on time; provided, however, if the Perimeter Window Work is not completed on or before the later of (i) seven (7) months following the date of this Lease and (ii) five (5) months after the commencement of this Lease as to such applicable portion of the Premises (the “Perimeter Window Work Completion Date”), the Rent Commencement Date (as to the Perimeter Window Work to be performed in the 6th Floor Premises) or, if applicable, the date Tenant is otherwise obligated to commence payment of Base Rent with respect to the Must-Take Space, Expansion Space or Availability Premises, as to Perimeter Window Work to be performed thereon, shall be delayed for the period of time equal to two (2) days for every one (1) full day that occurs after the Perimeter Window Work Completion Date with respect to the applicable space, and before the earlier to occur of (x) the

 

8


date Landlord completes such Perimeter Window Work, and (y) the date Landlord would otherwise have completed the Perimeter Window Work had no Tenant Caused Delays occurred.

1.2 Verification of Rentable Square Feet of Premises and Building. For purposes of this Lease, “rentable square feet” in the Premises and the Building, as the case may be, shall be calculated pursuant to Standard Method of Measuring Floor Area in Office Building, ANSI Z65.1 - 1996, and its accompanying guidelines (collectively, “BOMA”). Within thirty (30) days after the Lease Commencement Date, Tenant may elect to cause Tenant’s space planner/architect/surveyor to measure the square feet of the Premises, and thereafter the rentable square feet of the Premises and the results thereof shall be presented to Landlord in writing; provided, however, if such measurement by Tenant’s space planner/architect/surveyor results in an increase in the “Rent,” as that term is defined in Section 4.1, below, to be paid by Tenant under the terms of this Lease, then Landlord shall reimburse Tenant for the reasonable and actual out-of-pocket cost incurred by Tenant in connection with such measurement, but in no event in an amount in excess of the present value of the actual increase in the amount of Rent to be paid by Tenant as a result of such measurement. Landlord hereby agrees that $40,000.00 is a reasonable amount with respect to the cost of such measurement by Tenant’s space planner/architect/surveyor. Landlord’s space planner/architect/surveyor may review Tenant’s space planner/architect/surveyor’s determination of the number of rentable square feet square feet of the Premises and Landlord may, within fifteen (15) business days after Landlord’s receipt of Tenant’s space planner/architect/surveyor’s written determination, object to such determination by written notice to Tenant. If Landlord objects to such determination, Landlord’s space planner/architect/surveyor and Tenant’s space planner/architect/surveyor shall promptly meet and attempt to agree upon the rentable square footage of the Premises. If Landlord’s space planner/architect/surveyor and Tenant’s space planner/architect/surveyor cannot agree on the rentable and useable square footage of the Premises within thirty (30) days after Landlord’s objection thereto, Landlord and Tenant shall mutually select an independent third party space measurement professional to field measure the Premises pursuant to BOMA. Such third party independent measurement professional’s determination shall be conclusive and binding on Landlord and Tenant. Landlord and Tenant shall each pay one-half ( 12) of the fees and expenses of the independent third party space measurement professional. If the Rent Commencement Date occurs prior to such final determination, Landlord’s determination shall be utilized until a final determination is made, whereupon an appropriate adjustment, if necessary, shall be made retroactively, and Landlord shall make appropriate payment (if applicable) to Tenant. In the event that pursuant to the procedure described in this Section 1.2 above, it is determined that the square footage amounts shall be different from those set forth in this Lease, all amounts, percentages and figures appearing or referred to in this Lease based upon such incorrect amount (including, without limitation, the amount of the “Rent,” as that term is defined in Section 4.1, but not including the “L-C Amount,” as that term is defined in Article 21 of this Lease, or the provisions regarding bicycles) shall be modified in accordance with such determination. If Tenant elects not to measure the rentable area of the Premises on or before the expiration of the thirty (30) day period set forth above, then the rentable area of the Building and the Premises shall be as set forth in Sections 2.1 and 2.2 of the Summary, respectively.

1.3 Expansion Space. Landlord hereby grants to the originally named Tenant herein (“Original Tenant”) and any “Permitted Transferee Assignee,” as that term is defined in

 

9


Section 14.8, below, the right to lease the Expansion Space, as set forth in Section 2.5 of the Summary above, upon the terms and conditions set forth in this Section 1.3 and this Lease.

1.3.1 Method of Exercise. The expansion option contained in this Section 1.3 shall be exercised only by Original Tenant or its Permitted Transferee Assignee (and not by any other assignee, sublessee or “Transferee,” as that term is defined in Section 14.1, below, of Tenant’s interest in this Lease) with respect to the entire Expansion Space (and not a portion thereof), and only by Tenant’s delivery of written notice to Landlord on or prior to March 1, 2013. If Tenant fails to timely deliver such written notice to Landlord, then, subject to Section 1.4, Landlord shall be entitled to lease such Expansion Space to a third party on any terms which Landlord desires, in which event Landlord shall have no further obligation to deliver such Expansion Space to Tenant.

1.3.2 Expansion Space Lease Commencement Date. In the event Tenant timely exercises its expansion option pursuant to Section 1.3.1 above, Landlord shall deliver the Expansion Space to Tenant on January 2, 2014. This Lease shall commence with respect to the Expansion Space (and references to Premises shall include the Expansion Space) on the later of such date and the date Landlord delivers the Expansion Space to Tenant in the Delivery Condition (the “Expansion Space Lease Commencement Date”). If the Expansion Space Lease Commencement Date does not occur for any reason on or before (a) April 2, 2014 then, in addition to Tenant’s other remedies, the Expansion Rent Commencement Date shall be delayed by one (1) additional day for each day of delay beyond such date or (b) July 2, 2014 then, in addition to Tenant’s other remedies, at Tenant’s election, Tenant may withdraw its exercise of the expansion option.

1.3.3 Expansion Rent. The annual “Rent,” as that term is defined in Section 4.1 of this Lease, payable by Tenant for Expansion Space leased by Tenant (the “Expansion Rent”) shall be calculated as of the “Expansion Space Rent Commencement Date,” as that term is defined in Section 1.3.5 of this Lease, as follows: (i) the base rent component of the Expansion Rent on an annual, per rentable square foot basis shall be equal to the Base Rent for the 6th Floor Premises on an annual, per rentable square foot basis under this Lease as of the Expansion Space Commencement Date, including all applicable escalations to the Base Rent made and to be made during the Lease Term; and (ii) for purposes of calculating Tenant’s obligations under Article 4 of this Lease, (a) Tenant’s Share shall be equal to 8.04% with respect to the Expansion Space, and (b) the “Base Year,” as that term is defined in Section 4.2.1, below, with respect to the Expansion Space only, shall be determined as set forth in Section 5 of the Summary.

1.3.4 Construction of Expansion Space. Landlord shall deliver the Expansion Space to Tenant in Delivery Condition, as described in the Tenant Work Letter. Tenant shall take the Expansion Space in its then existing “as is” condition, and the construction of improvements in the Expansion Space shall comply with the terms of Article 8 of this Lease; provided, however, Landlord shall perform the Core and Shell Work therein and provide to Tenant an improvement allowance (the “Expansion Improvement Allowance”) equal to the product of (i) $60.00 per rentable square foot of space contained in the Expansion Space, and (ii) a percentage, which may be expressed as a fraction, which fraction shall have as its numerator the number of monthly Base Rent payments to be paid by Tenant to Landlord with respect to the Expansion Space during the initial Lease Term, and which fraction shall have one

 

10


hundred twenty (120) as its denominator. The Expansion Improvement Allowance shall be distributed by Landlord in a manner consistent with the distribution of the Tenant Improvement Allowance with respect to the Initial Premises.

1.3.5 Amendment to Lease. If Tenant timely exercises Tenant’s right to lease Expansion Space as set forth herein, then, within fifteen (15) days thereafter, Landlord and Tenant shall execute an amendment adding such Expansion Space to this Lease upon the same terms and conditions as the Initial Premises, except as otherwise set forth in this Section 1.3, and provided that the terms of the Tenant Work Letter, attached hereto as Exhibit B, shall be modified as set forth in this Section 1.3. Except to the extent inconsistent with the determination of Expansion Rent, all provisions of the Lease which vary based upon the rentable and usable square footage of the Premises shall be adjusted to reflect the addition of such Expansion Space to the Premises; provided, however, the L-C Amount shall be increased pursuant to the terms of Section 21.7 of this Lease, below. The rentable square footage of such Expansion Space shall be as set forth in Section 1.3, above. Tenant shall commence payment of Expansion Rent and the Excess with respect to the Expansion Space to Landlord upon that date (the “Expansion Space Rent Commencement Date”) which is one hundred eighty (180) days after the Expansion Space Lease Commencement Date. The lease term of the Expansion Space shall expire on the Lease Expiration Date, as extended.

1.3.6 No Defaults. The rights contained in this Section 1.3 shall be personal to Original Tenant, and may only be exercised by Original Tenant or its Permitted Transferee Assignee (and not by any other assignee, sublessee or Transferee of Tenant’s interest in this Lease) if the Lease then remains in full force and effect. Tenant shall not have the right to lease Expansion Space as provided in this Section 1.3, if, as of the date of the attempted exercise of the expansion option by Tenant, or as of the scheduled date of delivery of such Expansion Space to Tenant, Tenant is in default under this Lease beyond any applicable notice and cure periods.

1.4 Recurring Right of Availability. Landlord hereby grants to the Original Tenant and its Permitted Transferee Assignees a recurring right of availability with respect to (i) any space of any size located in that portion of the Building commonly known as the “Podium,” (ii) any space of at least 20,000 rentable square feet located in that portion of the Building commonly known as the “Tower” (i.e., any space that is not located in the Podium), and (iii) any space of any size located on any floor of the Building partially occupied by Tenant (any such space individually, and collectively, the “Availability Premises”). Notwithstanding the foregoing, such right of availability of Tenant as to any Availability Premises shall commence only following the expiration or earlier termination of the existing leases (including renewals and extensions, whether pursuant to rights currently existing or hereafter granted) of such Availability Premises (all such tenants under existing leases of the Availability Premises (or any portion thereof), collectively, the “Existing Tenants”). In addition, if Tenant, following its receipt of an “Availability Notice,” as that term is defined in Section 1.4.1 of this Lease, below, fails to exercise its right to lease all or any portion of the Availability Premises, then subject to the terms of this Section 1.4, Landlord shall have a right to enter into an interim lease (an “Interim Lease”) with a third party with respect to such space (i.e., the space set forth in the Availability Notice), in which case Tenant’s right of availability set forth in this Section 1.4 shall be subordinate to all rights of the tenant under the Interim Lease with respect to such space

 

11


(so long as such rights are materially consistent with the rights set forth in the Availability Notice) and such tenant shall be deemed an Existing Tenant only with respect to the exercise of such rights set forth in the Interim Lease. Tenant’s right of availability shall be on the terms and conditions set forth in this Section 1.4.

1.4.1 Procedure for Offer. Landlord shall notify Tenant (an “Availability Notice”) from time to time when the Availability Premises or any portion thereof becomes available for lease to third parties, provided that no Existing Tenant wishes to lease such space. Pursuant to such Availability Notice, Landlord shall offer to lease to Tenant the then available Availability Premises. An Availability Notice shall describe the space so offered to Tenant and shall set forth the “Availability Premises Rent,” as that term is defined in Section 1.4.3, below, the anticipated delivery date, and the other economic terms upon which Landlord is willing to lease such space to Tenant.

1.4.2 Procedure for Acceptance. If Tenant wishes to exercise Tenant’s right of availability with respect to the space described in an Availability Notice, then within fifteen (15) business days of delivery of such Availability Notice to Tenant, Tenant shall deliver notice to Landlord of Tenant’s intention to exercise its right of availability with respect to the entire space described in such Availability Notice, at the rent, for the term, and upon the other fundamental economic terms and conditions, including, but not limited to, rental concessions and improvement allowances, set forth in Sections 1.4.3, 1.4.5 and 1.4.6 below and for a term that is coterminous with the Term (an “Exercise Notice”). If Tenant does not so notify Landlord within the fifteen (15) business day period, then subject to the terms of Section 1.4.4, below, Landlord shall be free to lease the space described in such Availability Notice to anyone to whom Landlord desires on any terms Landlord desires. Notwithstanding anything to the contrary contained herein, Tenant must elect to exercise its right of availability, if at all, with respect to all of the space offered by Landlord to Tenant at any particular time, and Tenant may not elect to lease only a portion thereof. If Tenant does not exercise its right of availability with respect to any space described in an Availability Notice or if Tenant fails to respond to an Availability Notice within fifteen (15) business days of delivery thereof, then subject to the terms of this Section 1.4, including Section 1.4.4., Tenant’s right of availability as set forth in this Section 1.4 shall terminate as to all of the space described in such Availability Notice until the space again becomes available (i.e., until such time as Landlord enters into an Interim Lease and such Interim Lease expires or is terminated early). The rights in this Section 1.4 shall be continuous throughout the Term and any extension thereof.

1.4.3 Availability Premises Rent. Subject to the terms of this Section 1.4, to the extent Tenant exercises its right of availability with respect to any portion of the Availability Premises during the first (1st) year after the Lease Commencement Date, the annual Rent payable by Tenant for such Availability Premises (the “Availability Premises Rent”) shall be calculated as of the “Availability Premises Rent Commencement Date” (as that term is defined below) as follows: (i) the base rent component of the Availability Premises Rent on an annual, per rentable square foot basis shall be equal to the Base Rent applicable to the portion of the Initial Premises that is located in the same portion of the Building as the Availability Premises (i.e. either Podium or Tower), on an annual, per rentable square foot basis under this Lease as of the Availability Premises Rent Commencement Date, including all applicable escalations to the Base Rent made and to be made during the Lease Term; (ii) for purposes of calculating Tenant’s obligations under

 

12


Article 4 of this Lease, Tenant’s Share shall be increased by an amount equal to the rentable square footage of such Availability Premises leased by Tenant pursuant to this Section 1.4 divided by the total rentable square footage of the Building, and (iii) the Base Year shall be the calendar year in which the Availability Premises Rent Commencement Date occurs (if it occurs on or before July 31) or the following calendar year (if it occurs after July 31). To the extent Tenant exercises its right of availability with respect to any portion of the Availability Premises anytime after the first (1st) anniversary of the Lease Commencement Date, Tenant’s Share shall be increased as set forth above and the Availability Premises Rent shall be equal to the “Market Rent” (as that term is defined in Exhibit G attached hereto), as such Market Rent is determined pursuant to Section 2.2.4, for the Availability Premises. Except as otherwise expressly set forth in the Section 1.4.3, above, the Base Year with respect to the Availability Premises only shall be the calendar year in which the Availability Premises Rent Commencement Date occurs (if it occurs on or before July 31) or the following calendar year (if it occurs after July 31).

1.4.4 Go-Back Right. If Tenant fails to timely exercise its right of availability with respect to any portion of the Availability Premises, and Landlord thereafter makes a “bona-fide third-party offer” with respect to all or a portion of the Availability Premises, then Landlord shall deliver a second Availability Notice to Tenant prior to entering into a lease of such Availability Premises with a third party. For purposes of this Section 1.5, a “bona-fide third-party offer” shall mean:

 

  (i) Landlord receives a request for proposal from a nonaffiliated, qualified third party, and Landlord responds to the request for proposal with a lease proposal on terms and conditions acceptable to Landlord.

 

  (ii) Landlord receives a written offer to lease from a nonaffiliated, qualified third party and Landlord responds to the offer with a written counter offer on terms and conditions acceptable to Landlord.

Notwithstanding anything to the contrary herein, Landlord may not lease any of the Availability Premises without providing an Availability Notice to Tenant.

1.4.4.1 Procedure for Acceptance. If Tenant wishes to exercise Tenant’s right of availability with respect to the Availability Premises described in the second Availability Notice, then within five (5) business days of delivery of the second Availability Notice to Tenant, Tenant shall deliver an Exercise Notice to Landlord with respect to all of the Availability Premises described in the second Availability Notice, with the Availability Premises Rent equal to Market Rent, subject to the terms of this Section 1.4. If Tenant does not so notify Landlord within such five (5) business day period of Tenant’s exercise of its right of availability, then Landlord shall be free to negotiate and enter into a lease for the Availability Premises with anyone to whom Landlord desires on any terms Landlord desires.

1.4.4.2 Walk-Away Right; Arbitration Right In Lieu Thereof. If Tenant timely exercises Tenant’s right of availability to lease the Availability Premises (or any portion thereof) in accordance with Section 1.4.4.1 above, then Landlord and Tenant shall use

 

13


good faith commercially reasonable efforts to agree upon the Market Rent for such Availability Premises within ten (10) business days after delivery of Tenant’s Exercise Notice to Landlord. If the parties have not agreed on the Market Rent upon the expiration of such ten (10) business day period, then either party shall have the right to cease discussions by written notice to the other party (a “Walk-Away Right”), in which case Tenant shall be deemed to have failed to timely deliver an Exercise Notice, and Landlord shall be free to negotiate and enter into a lease for the Availability Premises with anyone whom Landlord desires on any terms Landlord desires. Notwithstanding the foregoing or anything to the contrary set forth elsewhere in this Lease, Tenant shall have the right upon written notice to Landlord within two (2) business days after the expiration of the ten (10) business day period, to have the Market Rent for the Availability Premises determined pursuant to the arbitration procedures set forth in Section 2.2.4, in which case Tenant shall be deemed to have irrevocably exercised its right of availability and both parties shall be deemed to have waived their respective Walk-Away Rights.

1.4.5 Construction In Availability Premises. If Tenant timely exercises Tenant’s right to lease the Availability Premises or any portion thereof as set forth herein, then, Landlord shall deliver the Availability Premises to Tenant in the Delivery Condition and Landlord shall perform the Core and Shell Work applicable to such space. The construction of improvements in the Availability Premises shall comply with the terms of Article 8 of this Lease; provided, however, Landlord shall provide to Tenant an improvement allowance (an “Availability Premises Improvement Allowance”) equal to (A) if Tenant exercises its right of availability with respect to any portion of the Availability Premises during the first (1st) year after the Lease Commencement Date, then the product of (i) an amount equal to $60.00 per rentable square foot of space contained in the Availability Premises, and (ii) a percentage, which may be expressed as a fraction, which fraction shall have as its numerator the number of monthly Base Rent payments to be paid by Tenant to Landlord with respect to the Availability Premises during the initial Lease Term, and which fraction shall have one hundred twenty (120) as its denominator, and (B) if Tenant exercises its right of availability with respect to any portion of the Availability Premises after the first (1st) year after the Lease Commencement Date, an improvement allowance determined as part of the determination of Market Rent. The Availability Premises Improvement Allowance shall be distributed by Landlord in a manner consistent with the distribution of the Tenant Improvement Allowance with respect to the Initial Premises.

1.4.6 Amendment to Lease. If Tenant timely exercises Tenant’s right to lease the Availability Premises or any portion thereof as set forth herein, then, within fifteen (15) days thereafter, Landlord and Tenant shall execute an amendment adding such Availability Premises to this Lease upon the same terms and conditions as the Initial Premises, except as otherwise set forth in this Section 1.4 or the Availability Notice, and provided that the terms of the Tenant Work Letter shall not apply with respect to the Availability Premises (except as otherwise provided in Section 1.4.5, above); provided, however, an otherwise valid exercise of Tenant’s right of availability shall be of full force and effect irrespective of whether such amendment is ever signed by Landlord and Tenant. Except to the extent inconsistent with the determination of Availability Premises Rent, all provisions of the Lease which vary based upon the rentable and usable square footage of the Premises shall be adjusted to reflect the addition of such Availability Premises to the Premises; provided, however, the L-C Amount shall be increased pursuant to the terms of Section 21.7 of this Lease, below. The rentable square footage of such

 

14


Availability Premises shall be determined in accordance with the terms of Section 1.2 of this Lease. To the extent Tenant exercises its right of first offer with respect to any portion of the Availability Premises during the first (1st) year after the Lease Commencement Date, Tenant shall commence payment of Availability Premises Rent and Excess as to such space to Landlord upon that date (the “Availability Premises Rent Commencement Date”) which is two hundred ten (210) days after the later of the delivery date set forth in the Availability Notice and the date Landlord delivers the Availability Premises in the Delivery Condition (the “Availability Premises Lease Commencement Date”). To the extent Tenant exercises its right of availability with respect to any portion of the Availability Premises anytime after the first (1st) anniversary of the Lease Commencement Date, the Availability Premises Rent Commencement Date shall occur one hundred eighty (180) days after the Availability Premises Lease Commencement Date. In all cases, the lease term of the Availability Premises (or any portion thereof) shall expire on the Lease Expiration Date, subject to extension of this Lease; provided, however, in the event the remaining Lease Term is less than thirty-six (36) months from the applicable Availability Premises Rent Commencement Date, then the Lease Term shall be extended for a period of time sufficient for Tenant’s lease of the Premises to be coterminous with Tenant’s lease of the Availability Premises (which shall be thirty-six (36) months from the applicable Availability Premises Rent Commencement Date), and the base rental rate for the Premises during this extended period shall be adjusted to Market Rent for the Premises determined in accordance with Section 2.2.4 and the Base Year shall be the year in which the Lease would have otherwise expired (if on or before July 31) or the following year (if after July 31). This extension shall have no impact on Tenant’s extension rights hereunder, which may be exercised at the end of the extended Lease Term. This Lease shall commence as to the Availability Premises (and references to Premises shall include the applicable Availability Premises) on the Availability Premises Lease Commencement Date.

1.4.7 Termination of Right of Availability. The rights contained in this Section 1.4 shall be personal to Original Tenant, and may only be exercised by Original Tenant or its Permitted Transferee Assignee (and not by any other assignee, sublessee or Transferee of Tenant’s interest in this Lease) if the Lease then remains in full force and effect and if Original Tenant or its Permitted Transferee Assignee has not subleased more than forty percent (40%) of the Premises as of the proposed Availability Premises Lease Commencement Date. The right of availability granted herein shall terminate as to particular Availability Premises upon the failure by Tenant to exercise its right of availability with respect to such Availability Premises as offered by Landlord. Tenant shall not have the right to lease the Availability Premises, as provided in this Section 1.4, if, as of the date of the attempted exercise of any right of first offer by Tenant, Tenant is in default under this Lease beyond any applicable notice and cure periods, or if as of the scheduled date of delivery of such Availability Premises, Tenant is in default under this Lease beyond any applicable notice and cure periods expressly set forth in this Lease, or Tenant has previously been in default under this Lease, beyond any applicable notice and cure periods expressly set forth in this Lease, more than twice during the immediately preceding twelve (12) month period.

 

15


1.5 Must-Take 1 Space. As of the Must-Take 1 Lease Commencement Date, the Premises shall be expanded to include the rentable square footage of the “Must-Take 1 Space,” as that term is defined below, as set forth in this Section 1.5 and this Lease.

1.5.1 Description of the Must-Take 1 Space. The “Must-Take 1 Space” shall consist of the office space set forth in Section 2.3 of the Summary.

1.5.2 Delivery of the Must-Take 1 Space. Notwithstanding anything in this Lease to the contrary, Tenant hereby acknowledges that Landlord shall deliver the Must-Take 1 Space to Tenant, and Tenant shall accept delivery of the Must-Take 1 Space from Landlord, on the Must-Take 1 Lease Commencement Date, as set forth in Section 3.6 of the Summary (such date, the “Must-Take 1 Lease Commencement Date”). Upon the Must-Take 1 Lease Commencement Date, Landlord shall deliver, and Tenant shall accept, the Must-Take 1 Space in the Delivery Condition (as set forth in the Tenant Work Letter). If the Must-Take 1 Lease Commencement Date does not occur for any reason on or before (a) October 1, 2013, then, in addition to Tenant’s other remedies, the Must-Take 1 Rent Commencement Date shall be delayed by one (1) additional day for each day of delay beyond such date or (b) January 1, 2014 then, in addition to Tenant’s other remedies, at Tenant’s election, Tenant shall not be obligated to lease the Must-Take 1 Space.

1.5.3 Rent and Term. The Must-Take 1 Space shall become part of the Premises for all purposes hereunder on the Must-Take 1 Lease Commencement Date, and, except as otherwise provided in this Section 1.5, shall be subject to every term and condition of this Lease. Notwithstanding the foregoing, Tenant’s obligation to pay Base Rent and Tenant’s Share of Direct Expenses with respect to the Must-Take 1 Space shall commence on the date that occurs two hundred two (210) days after the Must-Take 1 Lease Commencement Date (the “Must-Take 1 Rent Commencement Date”). The Base Rent and Tenant’s Share of Direct Expenses for the Must-Take 1 Space shall be at the same rate per rentable square foot, and shall thereafter be escalated in the same manner, as the then current Base Rent for the Initial Premises located in the podium, as such Base Rent and Additional Rent are adjusted and escalated pursuant to the terms of this Lease. Furthermore, for purposes of calculating Tenant’s obligations under Article 4 of this Lease, Tenant’s Share shall be 1.56%, and the Base Year applicable to the Must-Take 1 Space shall be the calendar year in which the Must-Take 1 Rent Commencement Date occurs if it occurs on or before July 31 and the following calendar year if it occurs after July 31. The lease term for the Must-Take 1 Space shall commence on the Must-Take 1 Lease Commencement Date, Tenant shall commence payment of the Base Rent and the Tenant’s Share of Direct Expenses for the Must-Take 1 Space upon the Must-Take 1 Rent Commencement Date, and the lease term for the Must-Take 1 Space shall expire upon the Lease Expiration Date, as extended.

1.5.4 Improvement of Must-Take 1 Space. Subject to the terms of the Tenant Work Letter, and Landlord’s obligation to perform the Core and Shell Work therein, Tenant shall accept the Must-Take 1 Space in its then existing “as is” condition.

1.5.5 Other Terms. Except as specifically set forth in this Lease, as of the Must-Take 1 Space Commencement Date, all other terms of this Lease shall apply to the Must-Take 1 Space as though the Must-Take 1 Space was originally part of the Premises. At any time

 

16


after the Must-Take 1 Lease Commencement Date during the remainder of the Lease Term, Landlord may deliver to Tenant a notice in the form of Exhibit C attached hereto, as a confirmation only of the information set forth therein, which Tenant shall execute and return to Landlord within ten (10) days of receipt thereof.

1.6 Must-Take 2 Space. As of the Must-Take 2 Lease Commencement Date, the Premises shall be expanded to include the rentable square footage of the “Must-Take 2 Space,” as that term is defined below, as set forth in this Section 1.5 and this Lease.

1.6.1 Description of the Must-Take 2 Space. The “Must-Take 2 Space” shall consist of the office space set forth in Section 2.4 of the Summary.

1.6.2 Delivery of the Must-Take 2 Space. Notwithstanding anything in this Lease to the contrary, Tenant hereby acknowledges that Landlord shall deliver the Must-Take 2 Space to Tenant, and Tenant shall accept delivery of the Must-Take 2 Space from Landlord, on the Must-Take 2 Lease Commencement Date, as set forth in Section 3.7 of the Summary (such date, the “Must-Take 2 Lease Commencement Date”). Upon the Must-Take 2 Lease Commencement Date, Landlord shall deliver, and Tenant shall accept, the Must-Take 2 Space in the Delivery Condition (as set forth in the Tenant Work Letter). If the Must-Take 2 Lease Commencement Date does not occur for any reason on or before (a) April 1, 2014, then, in addition to Tenant’s other remedies, the Must-Take 2 Rent Commencement Date shall be delayed by one (1) additional day for each day of delay beyond such date or (b) July 1, 2014, then, in addition to Tenant’s other remedies, at Tenant’s election, Tenant shall not be obligated to lease the Must-Take 2 Space.

1.6.3 Rent and Term. The Must-Take 2 Space shall become part of the Premises for all purposes hereunder on the Must-Take 2 Lease Commencement Date, and, except as otherwise provided in this Section 1.5, shall be subject to every term and condition of this Lease. Notwithstanding the foregoing, Tenant’s obligation to pay Base Rent and Tenant’s Share of Direct Expenses with respect to the Must-Take 2 Space shall commence on the date that occurs two hundred two (210) days after the Must-Take 2 Lease Commencement Date (the “Must-Take 2 Rent Commencement Date”). The Base Rent and Tenant’s Share of Direct Expenses for the Must-Take 2 Space shall be at the same rate per rentable square foot, and shall thereafter be escalated in the same manner, as the then current Base Rent for the Initial Premises located in the podium, as such Base Rent and Additional Rent are adjusted and escalated pursuant to the terms of this Lease. Furthermore, for purposes of calculating Tenant’s obligations under Article 4 of this Lease, Tenant’s Share shall be 4.80%, and the Base Year applicable to the Must-Take 2 Space shall be the calendar year in which the Must-Take 2 Rent Commencement Date occurs if it occurs on or before July 31 and the following calendar year if it occurs after July 31. The lease term for the Must-Take 2 Space shall commence on the Must-Take 2 Lease Commencement Date, Tenant shall commence payment of the Base Rent and the Tenant’s Share of Direct Expenses for the Must-Take 2 Space upon the Must-Take 2 Rent Commencement Date, and the lease term for the Must-Take 2 Space shall expire upon the Lease Expiration Date, as extended.

 

17


1.6.4 Improvement of Must-Take 2 Space. Subject to the terms of the Tenant Work Letter, and Landlord’s obligation to perform the Core and Shell Work therein, Tenant shall accept the Must-Take 2 Space in its then existing “as is” condition.

1.6.5 Other Terms. Except as specifically set forth in this Lease, as of the Must-Take 2 Space Commencement Date, all other terms of this Lease shall apply to the Must-Take 2 Space as though the Must-Take 2 Space was originally part of the Premises. At any time after the Must-Take 2 Lease Commencement Date during the remainder of the Lease Term, Landlord may deliver to Tenant a notice in the form of Exhibit C attached hereto, as a confirmation only of the information set forth therein, which Tenant shall execute and return to Landlord within ten (10) days of receipt thereof.

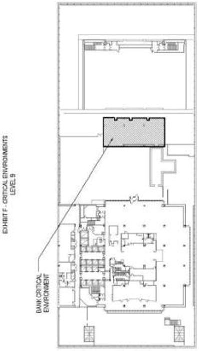
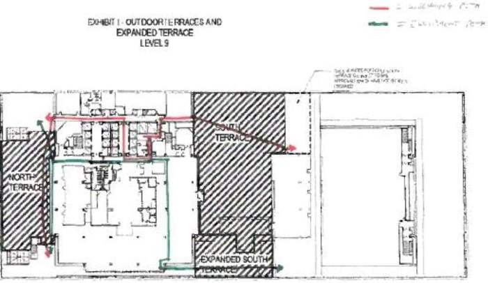
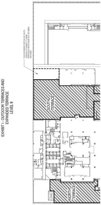
1.7 Outdoor Terraces.

1.7.1 Outdoor Terrace. Subject to the terms of this Section 1.6, Tenant shall have the exclusive right to use the Outdoor Terraces, as more particularly shown on Exhibit I attached hereto (“Outdoor Terraces”), free of charge throughout the Lease Term (except as otherwise set forth in this Section 1.7), as the same may be extended. Landlord shall have the right to enter the Premises at all reasonable times and upon prior notice to Tenant (except in the case of an emergency) to (x) access the Outdoor Terraces; and (y) perform any obligations required by Landlord under this Section 1.7 and this Lease. Landlord shall clean and repair the Outdoor Terraces and the “Outdoor Terrace Furniture,” as that term is defined below, the cost of which shall be paid by Tenant to Landlord as Additional Rent except for amounts described in Section 4.2.4(a) – (hh). Landlord shall maintain the structural elements of the Outdoor Terraces, at its sole cost and expense, in the same manner as Landlord is required to maintain the structural elements of the Common Areas under the terms of this Lease. Except as set forth in this Section 1.7 above, Landlord shall not be obligated to provide any services to the Outdoor Terraces other than janitorial. Tenant may elect, at its sole cost and expense, to install furniture (e.g., umbrellas, chairs, tables, trash urns, movable barbeque grill (e.g., Weber or Viking barbeque grill), gas fire pit, bocce ball court and other decorative items), shrubbery and bushes for the Outdoor Terraces (collectively, “Outdoor Terrace Furniture”) of a type, quality and quantity reasonably approved in advance by Landlord and, with respect to any movable barbeque grill, gas fire fit, or bocce ball court, in locations reasonably approved in advance by Landlord and Bank of America, National Association (the “Bank”). Tenant shall have no right to alter, change or make improvements to the Outdoor Terraces (including, without limitation, adding additional roof deck space) without the prior written consent of Landlord, which consent may be withheld in Landlord’s reasonable discretion, provided that it shall be deemed reasonable for Landlord to withheld consent in the event such alteration, change or improvement causes a “Design Problem” (as that term is defined below); and provided, further, any proposed changes and/or improvements shall be deemed “Alterations” (as that term is defined below) and all the terms of Article 8 of this Lease shall apply. A “Design Problem” is defined and will be deemed to exist if any such Alterations (i) adversely affect any Building Systems, (ii) adversely affect the exterior appearance of the Building, (iii) affect the certificate of occupancy issued for the Building or the Premises, (iv) interfere with any other tenant’s normal and customary office operation, or (v) violates any Applicable Laws. Tenant shall, at Tenant’s sole cost and expense, be obligated to secure any such additional Outdoor Terrace Furniture to the Outdoor Terraces using methods that do not require penetration into the structure, floors, walls or banisters of the

 

18


Outdoor Terraces. The precise method by which any such items are secured to the Outdoor Terraces shall be subject to Landlord’s prior approval, which approval shall not be unreasonably withheld, conditioned or delayed. Notwithstanding Landlord’s review and approval of the method by which the additional Outdoor Terrace Furniture is secured to the Outdoor Terraces, Tenant shall remain solely liable for any liability arising from Tenant’s placement of such items on the Outdoor Terraces, and Landlord shall have no liability in connection therewith, except to the extent attributable to the negligence or willful misconduct of or violation of this Lease by Landlord or its employees. Tenant shall remove any such additional Outdoor Terrace Furniture upon the expiration or earlier termination of the Lease, or upon the termination of Tenant’s rights under this Section 1.7, and shall return the affected portion of the Outdoor Terraces to the condition the Outdoor Terraces would have been in had no such additional Outdoor Terrace Furniture been installed, including, without limitation, replacement of any damaged pavers used to anchor any Outdoor Terrace Furniture (reasonable wear and tear accepted). Except as expressly set forth herein, all of the provisions of this Lease pertaining to the Premises and Tenant’s use thereof, including, without limitation, Article 10, shall be applicable to the Outdoor Terraces and Tenant’s use thereof. Subject to its review of more detailed plans therefor, Landlord approves of Tenant’s installation of additional roof decking in the Western and Southern perimeter area surrounding the mechanical equipment as shown on Exhibit I and indicated by the dotted line with respect to the Southern boundary; provided, however, such expansion of the Southern boundary is subject to Landlord’s receipt of Bank’s approval. Notwithstanding anything set forth in this Lease to the contrary, Landlord agrees that such expanded Outdoor Terrace area may be surrendered upon the expiration or earlier termination of this Lease.

1.8 Storage Premises.

1.8.1 In General. Tenant shall have the right, from time to time, by delivering not less than thirty (30) days written notice to Landlord of the commencement and termination of such lease, so long as such space is available, to lease from Landlord up to 5,000 rentable square feet of storage space located in the Property parking garage near the loading dock (the “Storage Premises”). During such times as Tenant has elected to lease any Storage Premises only, the provisions of Sections 1.8.2-1.8.4 shall apply.

1.8.2 Storage Rent. The Storage Premises shall be leased by Tenant at an annual rate equal to the then fair market rate for such Storage Premises (the “Storage Rent”), which as of the date of this Lease is equal to Twenty-Four Dollars ($24.00) per rentable square foot of the Storage Premises per year. Within five (5) business days of Tenant’s request from time to time, Landlord shall notify Tenant of the amount of the Storage Rent, which shall not be increased while Tenant is leasing any Storage Premises unless Landlord has delivered not less than sixty (60) days written notice thereof to Tenant. No Direct Expenses shall be payable with respect to the Storage Premises. The Storage Rent shall be due on a monthly basis concurrent with Tenant’s payment of Rent due with respect to the Premises, and shall constitute Additional Rent under the Lease.

1.8.3 Condition of Storage Premises. Tenant acknowledges and agrees that Tenant shall accept the Storage Premises in its presently existing “as-is” condition and that Landlord shall have no obligation to provide or pay for any improvement work or services

 

19


related to the improvement of the Storage Premises. Tenant also acknowledges that neither Landlord nor any agent of Landlord has made any representation or warranty regarding the condition of the Storage Premises or with respect to the suitability of the same for the conduct of Tenant’s business. The Storage Premises shall be used only for storage of boxes, files, furniture, office equipment and other similar items associated with commercial office space and for no other purpose whatsoever without the prior written consent of Landlord, which consent may be withheld in Landlord’s sole and absolute discretion. Tenant shall not make any Alterations to the Storage Premises and shall be fully responsible for repairing any damage to the Storage Premises resulting from or relating to Tenant’s use thereof. Tenant shall give prompt notice to Landlord in case of fire or accidents in or about the Storage Premises or of defects therein or in the fixtures or equipment related thereto. Tenant acknowledges that Landlord shall have no obligation to provide any security or any of the services described in this Lease, other than Building standard lighting and electricity during Business Hours, with respect to the Storage Premises.

1.8.4 Other Terms. Tenant shall comply with Landlord’s reasonable rules and regulations from time to time promulgated with respect to the use of the Storage Premises. Tenant shall use the Storage Premises for storage of Tenant’s property described in Section 1.7.3 only and in no event shall Tenant maintain any hazardous or perishable materials in the Storage Premises. Further, Tenant’s use of the Storage Premises shall at all times be consistent with the first class nature of the Building. Tenant shall indemnify, defend protect and hold Landlord harmless from and against any and all claims, liabilities, judgments or costs (including, without limitation, reasonable attorneys’ fees and costs) arising out of or in connection with Tenant’s use of the Storage Premises except to the extent due to Landlord’s negligence, willful misconduct or violation of this Lease. In addition, Tenant’s insurance obligations under this Lease shall pertain to Tenant’s use of the Storage Premises. Not more than twice during the term of this Lease, as the same may be extended, upon not less than thirty (30) days notice to Tenant, Landlord shall have the right to relocate the Storage Premises to another location in the Building that is reasonably acceptable to Tenant.

ARTICLE 2

LEASE TERM; OPTION TERM

2.1 In General. The terms and provisions of this Lease shall be effective as of the date of this Lease. The term of this Lease (the “Lease Term”) shall be as set forth in Section 3.1 of the Summary, shall commence on the date set forth in Section 3.2 of the Summary (the “Lease Commencement Date”), and shall terminate on the date set forth in Section 3.4 of the Summary (the “Lease Expiration Date”) unless this Lease is sooner terminated as hereinafter provided. Tenant hereby acknowledges that portions of the Premises are currently occupied by another tenant of the Building. If Landlord is unable for any reason to deliver possession of the Premises to Tenant on any specific date , then Landlord shall not be subject to any liability for its failure to do so, and such failure shall not affect the validity of this Lease or the obligations of Tenant hereunder except as expressly set forth in this Lease. For purposes of this Lease, the term “Lease Year” shall mean each consecutive twelve (12) month period during the Lease Term; provided, however, that the first Lease Year shall commence on the first (1st) Rent Commencement Date to occur after the initial Commencement Date and end on the last day of the eleventh month thereafter and the second and each succeeding Lease Year shall commence

 

20


on the first (1st) day of the next calendar month; and further provided that the last Lease Year shall end on the Lease Expiration Date. At any time during the Lease Term, Landlord may deliver to Tenant a notice in the form as set forth in Exhibit C, attached hereto, as a confirmation only of the information set forth therein, which Tenant shall execute and return to Landlord within ten (10) days of receipt thereof; provided, however, Tenant’s failure to execute and return such notice to Landlord within such time shall be conclusive upon Tenant that the information set forth in such notice is as specified therein.

2.2 Option Term.

2.2.1 Option Right. Landlord hereby grants to the Original Tenant and any Permitted Transferee Assignee two (2) successive options to extend the Lease Term for a period of five (5) years each (each, an “Option Term”). Each option to extend shall be exercisable only by notice delivered by Original Tenant or a Permitted Transferee Assignee to Landlord as provided in Section 2.2.3 below; provided that, as of the date of delivery of such notice, Tenant has not received notice that Tenant is in default under this Lease (beyond the expiration of any applicable notice and cure period expressly set forth in this Lease) and such default remains uncured. Upon the proper exercise of the option to extend, and provided that, at Landlord’s option, as of the end of the initial Lease Term or the initial Option Term, as applicable, Tenant has not received notice that Tenant is in default under this Lease (beyond the expiration of any applicable notice and cure period expressly set forth in this Lease) and such default remains uncured, the Lease Term shall be extended for a period of five (5) years. The rights contained in this Section 2.2 shall be personal to the Original Tenant and any Permitted Transferee Assignee and may only be exercised by the Original Tenant or a Permitted Transferee Assignee (and not any other assignee or sublessee or Transferee of Tenant’s interest in this Lease) that has not subleased more than thirty-three percent (33%) of the rentable square footage of the Premises as of the day before the Option Term is to commence. In the event that Tenant fails to timely and appropriately exercise its option to extend in accordance with the terms of this Section 2.2, then the option to extend granted to Tenant pursuant to the terms of this Section 2.2 shall automatically terminate and shall be of no further force or effect. Further, notwithstanding any contrary provision of this Section 2.2, in no event may Tenant exercise its right to extend the Lease Term for the second Option Term under this Section 2.2 if Tenant fails to timely exercise its right to extend the initial Lease Term for the first Option Term under this Section 2.2.

2.2.2 Option Rent. The Rent payable by Tenant during each Option Term shall be equal to ninety-five percent (95%) of the Market Rent, as such Market Rent is determined pursuant to Exhibit G, attached to the Lease (such rent payable during any Option Term, the “Option Rent”) and the Base Year shall be the calendar year in which the then-current term expires (if it expires on or before July 31) or the following calendar year (if it expires after July 31). Except as set forth in the preceding sentence or as otherwise expressly set forth in this Lease, all of the terms of this Lease shall apply during the Option Term and the Lease Expiration Date shall be extended to the last day of the Option Term. The calculation of the “Market Rent” shall be derived from a review of, and comparison to, the “Net Equivalent Lease Rates” of the “Comparable Transactions,” as provided for in Exhibit G, and, thereafter, the Market Rent shall be stated as a “Net Equivalent Lease Rate” for the Option Term.

 

21


2.2.3 Exercise of Option. The options contained in this Section 2.2 shall be exercised by Tenant, if at all, and only in the following manner: (i) Tenant shall deliver written notice (the “Option Interest Notice”) to Landlord not more than fifteen (15) months nor less than ten (10) months prior to the expiration of the initial Lease Term or the first (1st) Option Term, as applicable, stating that Tenant is interested in exercising its option; (ii) Landlord shall, within thirty (30) days following Landlord’s receipt of the Option Interest Notice, deliver notice (the “Option Rent Notice”) to Tenant setting forth the Option Rent; and (iii) if Tenant wishes to exercise such option, Tenant shall, on or before the date occurring fifteen (15) days after Tenant’s receipt of the Option Rent Notice, deliver written notice thereof to Landlord, and upon, and concurrent with, such exercise, Tenant may, at its option, accept or reject the Option Rent set forth in the Option Rent Notice or withdraw Tenant’s exercise of the option right. If Tenant exercises its option to extend the Lease but fails to accept or reject the Option Rent set forth in the Option Rent Notice or withdraw Tenant’s exercise of the option right, then Tenant shall be deemed to have accepted the Option Rent set forth in the Option Rent Notice.

2.2.4 Determination of Option Rent. In the event Tenant timely and appropriately exercises its option to extend the Lease but rejects the Option Rent set forth in the Option Rent Notice pursuant to Section 2.2.3, above, then Landlord and Tenant shall attempt to agree upon the Option Rent using their best good-faith efforts. If Landlord and Tenant fail to reach agreement upon the Option Rent applicable to the Option Term on or before the date that is one hundred eighty (180) days prior to the expiration of the initial Lease Term (the “Outside Agreement Date”), then the Option Rent shall be determined by arbitration pursuant to the terms of this Section 2.2.4. Each party shall make a separate determination of the Option Rent, within five (5) days following the Outside Agreement Date, and such determinations shall be submitted to arbitration in accordance with Sections 2.2.4.1 through 2.2.4.4, below.

2.2.4.1 Landlord and Tenant shall each appoint one arbitrator who shall by profession be a MAI appraiser who shall have been active over the five (5) year period ending on the date of such appointment in the appraising and/or leasing of first class office properties in the vicinity of the Building. The determination of the arbitrators shall be limited solely to the issue area of whether Landlord’s or Tenant’s submitted Option Rent is the closest to the actual Option Rent as determined by the arbitrators, taking into account the requirements of Section 2.2.2 of this Lease. Each such arbitrator shall be appointed within fifteen (15) days after the Outside Agreement Date. Landlord and Tenant may consult with their selected arbitrators prior to appointment and may select an arbitrator who is favorable to their respective positions (including an arbitrator who has previously represented Landlord and/or Tenant, as applicable). The arbitrators so selected by Landlord and Tenant shall be deemed “Advocate Arbitrators.”

2.2.4.2 The two Advocate Arbitrators so appointed shall be specifically required pursuant to an engagement letter within ten (10) days of the date of the appointment of the last appointed Advocate Arbitrator to agree upon and appoint a third arbitrator (“Neutral Arbitrator”) who shall be qualified under the same criteria set forth hereinabove for qualification of the two Advocate Arbitrators except that (i) neither the Landlord or Tenant or either parties’ Advocate Arbitrator may, directly or indirectly, consult with the Neutral Arbitrator prior or subsequent to his or her appearance, and (ii) the Neutral Arbitrator cannot be someone who has represented Landlord and/or Tenant or their affiliates during the five (5) year period prior to such appointment. The Neutral Arbitrator shall be retained via an engagement letter

 

22


jointly prepared by Landlord’s counsel and Tenant’s counsel. Each party shall pay for the costs of its own Advocate Arbitrator and fifty percent (50%) of the cost of the Neutral Arbitrator.

2.2.4.3 Within ten (10) days following the appointment of the Neutral Arbitrator, Landlord and Tenant shall enter into an arbitration agreement (the “Arbitration Agreement”) which shall set forth the following:

2.2.4.3.1 Each of Landlord’s and Tenant’s best and final and binding determination of the Option Rent exchanged by the parties pursuant to Section 2.2.4, above;

2.2.4.3.2 An agreement to be signed by the Neutral Arbitrator, the form of which agreement shall be attached as an exhibit to the Arbitration Agreement, whereby the Neutral Arbitrator shall agree to undertake the arbitration and render a decision in accordance with the terms of this Lease, as modified by the Arbitration Agreement, and shall require the Neutral Arbitrator to demonstrate to the reasonable satisfaction of the parties that the Neutral Arbitrator has no conflicts of interest with either Landlord or Tenant;

2.2.4.3.3 Instructions to be followed by the Neutral Arbitrator when conducting such arbitration;

2.2.4.3.4 That Landlord and Tenant shall each have the right to submit to the Neutral Arbitrator (with a copy to the other party), on or before the date that occurs fifteen (15) days following the appointment of the Neutral Arbitrator, an advocate statement (and any other information such party deems relevant) prepared by or on behalf of Landlord or Tenant, as the case may be, in support of Landlord’s or Tenant’s respective determination of Option Rent (the “Briefs”);

2.2.4.3.5 That within five (5) business days following the exchange of Briefs, Landlord and Tenant shall each have the right to provide the Neutral Arbitrator (with a copy to the other party) with a written rebuttal to the other party’s Brief (the “Rebuttals”); provided, however, such Rebuttals shall be limited to the facts and arguments raised in the other party’s Brief and shall identify clearly which argument or fact of the other party’s Brief is intended to be rebutted;

2.2.4.3.6 The date, time and location of the arbitration, which shall be mutually and reasonably agreed upon by Landlord and Tenant, taking into consideration the schedules of the Neutral Arbitrator, the Advocate Arbitrators, Landlord and Tenant, and each party’s applicable consultants, which date shall in any event be within thirty (30) days following the appointment of the Neutral Arbitrator;

2.2.4.3.7 That no discovery shall take place in connection with the arbitration, other than to verify the factual information that is presented by Landlord or Tenant;

2.2.4.3.8 That the Neutral Arbitrator shall not be allowed to undertake an independent investigation or consider any factual information other than presented

 

23


by Landlord or Tenant, except that the Neutral Arbitrator shall be permitted to visit the Property and the buildings containing the Comparable Transactions;

2.2.4.3.9 The specific persons that shall be allowed to attend the arbitration;

2.2.4.3.10 Tenant shall have the right to present oral arguments to the Neutral Arbitrator at the arbitration for a period of time not to exceed two (2) hours (“Tenant’s Initial Statement”);

2.2.4.3.11 Following Tenant’s Initial Statement, Landlord shall have the right to present oral arguments to the Neutral Arbitrator at the arbitration for a period of time not to exceed two (2) hours (“Landlord’s Initial Statement”);

2.2.4.3.12 Following Landlord’s Initial Statement, Tenant shall have up to one (1) additional hour to present additional arguments and/or to rebut the arguments of Landlord (“Tenant’s Rebuttal Statement”);

2.2.4.3.13 Following Tenant’s Rebuttal Statement, Landlord shall have up to one (1) additional hour to present additional arguments and/or to rebut the arguments of Tenant (“Landlord’s Rebuttal Statement”);

2.2.4.3.14 That, not later than ten (10) days after the date of the arbitration, the Neutral Arbitrator shall render a decision (the “Ruling”) indicating whether Landlord’s or Tenant’s submitted Option Rent is closer to the Option Rent;

2.2.4.3.15 That following notification of the Ruling, Landlord’s or Tenant’s submitted Option Rent determination, whichever is selected by the Neutral Arbitrator as being closer to the Option Rent shall become the then applicable Option Rent; and

2.2.4.3.16 That the decision of the Neutral Arbitrator shall be binding on Landlord and Tenant.

If a date by which an event described in Section 2.2.4.3, above, is to occur falls on a weekend or a holiday, the date shall be deemed to be the next business day.

2.2.4.4 In the event that the Option Rent shall not have been determined pursuant to the terms hereof prior to the commencement of the applicable Option Term, Tenant shall be required to pay the Option Rent, initially provided by Landlord to Tenant, and upon the final determination of the Option Rent, the payments made by Tenant shall be reconciled with the actual amounts due, and the appropriate party shall make any corresponding payment to the other party.

2.3 Termination Right.

2.3.1 Exercise of Termination Right. Tenant shall have the one-time right to terminate and cancel this Lease effective as of the first day of the eighty-fourth (84th) month of the Lease Term (the “Termination Date”), provided that, not later than fifteen (15) months prior

 

24


to the Termination Date, Tenant delivers to Landlord (i) written notice (the “Termination Notice”) that Tenant intends to terminate this Lease pursuant to the terms of this Section 2.3, and (ii) cash in the amount of the “Termination Fee,” as that term is defined below, as consideration for such early termination. Upon Tenant’s delivery of the Termination Notice to Landlord, Tenant’s ability to first exercise any of Tenant’s rights under Section 1.3 (with respect to the Expansion Space), Section 1.4 (with respect to Right of Availability), Section 1.5 (with respect to Must-Take Space) and Section 2.2 (with respect to the Option Term), and all of Tenant’s rights to any future “Lease Concessions,” as that term is defined below, shall automatically terminate and be of no further force and effect. As used in this Lease, the “Termination Fee” shall be equal to the sum of (x) the unamortized value as of the Termination Date of the Lease Concessions, which amortization shall be calculated on a straight-line basis, resulting in an equal amount of principal being reduced each month, with interest at a rate of eight percent (8%), over the Lease Term, plus (y) six (6) times the monthly installment of Base Rent for the Premises during Lease Year 8. As used in this Lease, the “Lease Concessions” shall be equal to the sum of: (A) the amount of all tenant improvement allowances (including, without limitation, the Tenant Improvement Allowance) disbursed by Landlord in connection with this Lease and not reimbursed by Tenant; and (B) the amount of all real estate commissions paid to Tenant or any broker or brokerage company in connection with the consummation of this Lease. Within ten (10) days following delivery of a written request from Tenant given any time after the Lease Commencement Date, Landlord shall provide Tenant with its calculation of the amount of the Lease Concessions and/or the Termination Fee, as of the date of such request.

2.3.2 Termination of Lease. Provided that Tenant timely elects to terminate this Lease in accordance with Section 2.3.1, above, this Lease shall automatically terminate and be of no further force or effect, and Landlord and Tenant shall be relieved of their respective obligations under this Lease, as of the Termination Date, except with respect to those obligations set forth in this Lease which specifically survive the expiration or earlier termination of this Lease, including, without limitation, the payment by Tenant of all amounts owed by Tenant under this Lease prior to the Termination Date. The termination right contained in this Section 2.3 shall be personal to the Original Tenant and its Permitted Transferee Assignees (and may not be exercised by any other assignee, sublessee or Transferee of Tenant’s interest in this Lease).

2.3.3 No Tenant Default. Notwithstanding anything set forth in this Lease to the contrary, if this Lease is terminated as a result of a Tenant default, which default occurred prior to Tenant delivering a Termination Notice to Landlord, then for purposes of determining Landlord’s damages pursuant to Section 1951.2 of the California Civil Code, Tenant’s right to terminate this Lease early shall not be taken into consideration.

2.4 Occurrence of Lease Commencement Date. Subject to causes beyond Landlord’s reasonable control, Landlord shall cause the Lease Commencement Date to occur on or before January 15, 2013 and deliver the Must-Take 1 Space in the Delivery Condition by July 1, 2013 and the Must-Take 2 Space in the Delivery Condition by January 1, 2014. Notwithstanding anything to the contrary set forth in this Lease or the Tenant Work Letter, Tenant shall have the right, subject to the terms of Section 2.4.2 below, to request in writing that Landlord commence demolition of any existing tenant improvements in any portion of the Initial Premises and/or the construction of other improvements in any portion of the Initial Premises, on

 

25


Tenant’s behalf, prior to the second Outside Date described in Section 2.4.1 below (i.e., prior to May 31, 2013), and upon receipt of any such request by Tenant, Landlord shall have the right to elect, in Landlord’s sole discretion, to perform such demolition work on Tenant’s behalf or not to perform such demolition work on Tenant’s behalf.

2.4.1 Blow-Out Right. If Landlord does not deliver all of the 9th Floor, 9th Floor Mezzanine, 18th Floor and 19th Floor Premises in the Delivery Condition on or before March 30, 2013, or if Landlord does not deliver the 6th Floor Premises in the Delivery Condition by May 31, 2013 (each an “Outside Date”), then, except as set forth in Section 1.1.4, above, the sole remedy of Tenant for such failure shall be the right to deliver a notice to Landlord (a “Blow-Out Notice”) electing to terminate this Lease effective upon the date occurring five (5) business days following receipt by Landlord of the Blow-Out Notice (the “Blow-Out Date”). The Blow-Out Notice must be delivered by Tenant to Landlord, if at all, not earlier than the Outside Date (as the same may be extended pursuant to the terms of Section 2.4.3 below), nor later than ten (10) business days after the Outside Date. The effectiveness of any such Blow-Out Notice delivered by Tenant to Landlord shall be governed by the terms of this Section 2.4.

2.4.2 Termination of Blow-Out Right. Notwithstanding anything to the contrary set forth in this Section 2.4 or elsewhere in this Lease, Tenant hereby acknowledges and agrees that (i) if Tenant accepts delivery of any portion of the Initial Premises and commences construction of the “Tenant Improvements” (as that term is defined in Section 2.1 of the Tenant Work Letter) therein prior to any Outside Date, then Tenant shall no longer have the right to deliver a Blow-Out Notice pursuant to Section 2.4.1 above with respect to any other portion of the Initial Premises, and Tenant’s right to terminate this Lease pursuant to this Section 2.4 shall automatically terminate and be of no further force or effect, and (ii) if Tenant exercises its right set forth in Section 2.4 above and requests in writing that Landlord commence demolition of any existing tenant improvements in any portion of the Initial Premises and/or the construction of other improvements in any portion of the Initial Premises, on Tenant’s behalf, prior to the second Outside Date (i.e., prior to May 31, 2013), then Landlord’s commencement of such demolition and/or construction work shall be deemed commencement of construction of the Tenant Improvements for purposes of clause (i) above.

2.4.3 Extension of Outside Date Prior to Delivery of Blow-Out Notice. If, prior to any Outside Date, Landlord determines that the applicable delivery date will not occur by the applicable Outside Date, then Landlord shall have the right to deliver a written notice to Tenant stating Landlord’s opinion as to the date by which the applicable delivery date will occur, and Tenant shall be required, within ten (10) business days after receipt of such notice, to deliver a notice to Landlord pursuant to which Tenant shall elect either (i) to terminate this Lease, in which case this Lease shall terminate and be of no further force or effect upon Landlord’s receipt of such notice, or (ii) to agree to extend the Outside Date to that date set forth in Landlord’s notice to Tenant. Failure by Tenant to deliver such notice or to make such election shall be deemed to be Tenant’s agreement to extend the Outside Date to that date set forth in Landlord’s notice to Tenant. If Tenant agrees or is deemed to have agreed to extend the Outside Date, then Landlord shall have a continuing right to deliver a notice to Tenant which requests Tenant to elect either to terminate this Lease or to further extend the Outside Date as set forth in this Section 2.4.3, above, until Landlord delivers the Initial Premises to Tenant in the Delivery Condition or until this Lease is terminated.

 

26


2.4.4 Other Terms. The Outside Date shall be extended to the extent of any Tenant Caused Delays. Upon any termination as set forth in this Section 2.4, Landlord and Tenant shall be relieved from any and all liability to each other resulting hereunder except that Landlord shall return to Tenant any prepaid rent and L-C. Except as set forth in Section 1.1.4, above, Tenant’s right to terminate this Lease, as set forth in this Section 2.4, shall be Tenant’s sole and exclusive remedy at law or in equity for the failure of Landlord to timely deliver the Initial Premises in the Delivery Condition.

2.5 Construction Entry; Beneficial Occupancy.

2.5.1 Construction Entry. Notwithstanding the definition of Rent Commencement Date for the Premises set forth above, Tenant shall have the right, at any time after Landlord’s delivery of each portion of the Premises in the applicable Delivery Condition pursuant to Section 1.1.4 above and prior to the occurrence of the date that is two hundred ten (210) days after such delivery, to construct and install the Tenant Improvements in the Premises and/or to test equipment and/or to install its furniture, fixtures, and equipment in the Premises. Tenant’s entry into the Premises for such purposes shall not constitute the commencement of business, provided that all of the terms and conditions of this Lease and the Tenant Work Letter shall apply, except that Tenant shall have no obligation to pay Base Rent, Tenant’s Share of Direct Expenses, or any other costs or expenses attributable to the period of such approved entry.

2.5.2 Beneficial Occupancy. Tenant shall have the right to occupy all or a portion of the Premises (as all or such portion shall be designated by Tenant pursuant to clause (i) below) for the conduct of Tenant’s business during the period set forth in Section 2.5.1, provided that (i) Tenant shall give Landlord at least three (3) days’ prior notice of any such occupancy of the Premises, which notice shall designate the portion of the Premises that Tenant intends to so occupy (such designated space, the “Beneficial Occupancy Space”), (ii) a certificate of occupancy or its legal equivalent shall have been issued by the appropriate governmental authorities for the Beneficial Occupancy Space, or otherwise achieved, if required for Tenant to legally occupy such Beneficial Occupancy Space and (iii) all of the terms and conditions of this Lease shall apply, other than Tenant’s obligation to pay Base Rent and Tenant’s Share of Direct Expenses attributable to such portion of the Premises consisting of the Beneficial Occupancy Space upon such occupancy of the Beneficial Occupancy Space by Tenant. Notwithstanding the foregoing, to the extent that Tenant occupies any Beneficial Occupancy Space for the conduct of Tenant’s business commencing prior to Tenant’s obligation to pay Rent with respect thereto, then for the period from and after such occupancy date through the day immediately preceding the date Tenant is obligated to pay Rent with respect thereto, Tenant shall pay to Landlord the janitorial and electrical costs actually incurred by Landlord with respect to such Beneficial Occupancy Space, and which would not otherwise have been incurred by Landlord but for Tenant’s occupancy of such Beneficial Occupancy Space, without application of any Base Year.

 

27


ARTICLE 3

BASE RENT

Commencing on the date set forth in Section 3.3 of the Summary (the “Rent Commencement Date”), Tenant shall pay, without prior notice or demand, to Landlord or Landlord’s agent at the management office of the Property, or, at Landlord’s option, at such other place as Landlord may from time to time designate in writing, by a check for currency which, at the time of payment, is legal tender for private or public debts in the United States of America, base rent (“Base Rent”) as set forth in Section 4 of the Summary, payable in equal monthly installments as set forth in Section 4 of the Summary in advance on or before the first day of each and every calendar month during the Lease Term, without any setoff or deduction whatsoever. The Base Rent for the first full month of the Lease Term which occurs after the expiration of any free rent period shall be paid within three (3) business days after the date on which Landlord delivers possession of all of the Initial Premises to Tenant in the Delivery Condition. If any Rent payment date (including the Rent Commencement Date) falls on a day of the month other than the first day of such month or if any payment of Rent is for a period which is shorter than one month, the Rent for any fractional month shall accrue on a daily basis for the period from the date such payment is due to the end of such calendar month or to the end of the Lease Term at a rate per day which is equal to 1/365 of the applicable annual Rent. All other payments or adjustments required to be made under the terms of this Lease that require proration on a time basis shall be prorated on the same basis.

ARTICLE 4

ADDITIONAL RENT

4.1 General Terms. In addition to paying the Base Rent specified in Article 3 of this Lease, Tenant shall pay, following the Rent Commencement Date, “Tenant’s Share” of the annual “Direct Expenses,” as those terms are defined in Sections 4.2.6 and 4.2.2 of this Lease, which are in excess of the amount of Direct Expenses applicable to the “Base Year,” as that term is defined in Section 4.2.1, below; provided, however, that in no event shall any decrease in Direct Expenses for any Expense Year below Direct Expenses for the Base Year entitle Tenant to any decrease in Base Rent or any credit against sums due under this Lease. Such payments by Tenant, together with any and all other amounts payable by Tenant to Landlord pursuant to the terms of this Lease, are hereinafter collectively referred to as the “Additional Rent”, and the Base Rent and the Additional Rent are herein collectively referred to as “Rent.” All amounts due under this Article 4 as Additional Rent shall be payable for the same periods and in the same manner as the Base Rent. Without limitation on other obligations of Tenant which survive the expiration of the Lease Term, the obligations of Tenant to pay the Additional Rent provided for in this Article 4 shall survive the expiration of the Lease Term.

4.2 Definitions of Key Terms Relating to Additional Rent. As used in this Article 4, the following terms shall have the meanings hereinafter set forth:

4.2.1 “Base Year” shall mean the period set forth in Section 5 of the Summary.

 

28


4.2.2 “Direct Expenses” shall mean “Operating Expenses” and “Tax Expenses.”

4.2.3 “Expense Year” shall mean each calendar year in which any portion of the Lease Term falls, through and including the calendar year in which the Lease Term expires, provided that Landlord, upon notice to Tenant, may change the Expense Year from time to time to any other twelve (12) consecutive month period, and, in the event of any such change, Tenant’s Share of Direct Expenses shall be equitably adjusted for any Expense Year involved in any such change.

4.2.4 “Operating Expenses” shall mean all expenses, costs and amounts of every kind and nature which Landlord pays or accrues during any Expense Year because of or in connection with the ownership, management, maintenance, security, repair, replacement, restoration or operation of the Property, or any portion thereof. Without limiting the generality of the foregoing, Operating Expenses shall specifically include any and all of the following: (i) the cost of supplying all utilities, the cost of operating, repairing, maintaining, and renovating the utility, telephone, mechanical, sanitary, storm drainage, and elevator systems, and the cost of maintenance and service contracts in connection therewith; (ii) the cost of licenses, certificates, permits and inspections and the cost of contesting any governmental enactments which may affect Operating Expenses, and the costs incurred in connection with any government mandated transportation system management program or similar program; (iii) the cost of all insurance carried by Landlord in connection with the Property as reasonably determined by Landlord (including, without limitation, commercial general liability insurance, physical damage insurance covering damage or other loss caused by fire, earthquake, flood and other water damage, explosion, vandalism and malicious mischief, theft or other casualty, rental interruption insurance and such insurance as may be required by any lessor under any present or future ground or underlying lease of the Building or Property or any holder of a mortgage, trust deed or other encumbrance now or hereafter in force against the Building or Property or any portion thereof); (iv) the cost of landscaping, relamping, and all supplies, tools, equipment and materials used in the operation, repair and maintenance of the Property, or any portion thereof; (v) costs incurred in connection with the parking areas servicing the Property; (vi) fees and other costs, including management fees, consulting fees, legal fees and accounting fees, of all contractors and consultants in connection with the management, operation, maintenance and repair of the Property; (vii) payments under any equipment rental agreements and the fair rental value of any management office space (not to exceed 3,500 square feet); (viii) wages, salaries and other compensation and benefits, including taxes levied thereon, of all persons at the level of property manager or below (but no leasing or marketing personnel) to the extent engaged in the operation, maintenance and security of the Property; (ix) costs under any commercially reasonable instrument pertaining to the sharing of costs by the Property; (x) operation, repair and maintenance of all systems and equipment and components thereof of the Building; (xi) the cost of janitorial, alarm, security and other services, replacement of wall and floor coverings, ceiling tiles and fixtures in common areas, maintenance and replacement of curbs and walkways, repair to roofs and re-roofing; (xii) amortization (as described in subpart (xiii)) of the cost of acquiring or the rental expense of personal property used in the maintenance, operation and repair of the Property, or any portion thereof; (xiii) the cost of capital improvements or other costs incurred in connection with the Property (A) which are intended to effect economies in the operation or maintenance of the Property, or any portion thereof, or (B) that are required under any governmental law or regulation not applicable to the Property as of the Lease Commencement

 

29


Date; provided, however, that any capital expenditure shall be amortized with interest over its useful life in a manner consistent with the landlords of the Comparable Building and otherwise in accordance with sound real estate management and accounting principles; and (xiv) costs, fees, charges or assessments imposed by, or resulting from any mandate imposed on Landlord by, any federal, state or local government for fire and police protection, trash removal, community services, or other services which do not constitute “Tax Expenses” as that term is defined in Section 4.2.4, below. Notwithstanding the foregoing, for purposes of this Lease, the following items shall be excluded from Operating Expenses:

(a) cost of repairs or other work incurred by reason of fire, windstorm or other casualty or by the exercise of the right of eminent domain to the extent Landlord is compensated through proceeds or insurance or condemnation awards, or would have been so reimbursed if Landlord had in force all of the insurance required to be carried by Landlord under this Lease, provided, however, that, any such costs of repair due to casualty or the exercise of the right of eminent domain that is not excluded from Operating Expenses pursuant to the preceding language (including insurance deductibles) (1) shall be amortized over a period of the useful life of the restoration work as determined in accordance with sound real estate management and accounting principles consistently applied to all tenants in the Building and Tenant shall only be required to pay for such amortized amount during the remaining Lease Term, (2) the aggregate amount included in Operating Expenses shall not exceed one percent (1.0%) of the then replacement cost of the Building and (3) to the extent the casualty is due to the negligence or willful misconduct of any person or entity, then any applicable insurance deductibles shall be excluded from Operating Expenses;

(b) the cost and expense of correcting defects in the construction of the Property or repairs that are covered by warranties;

(c) costs, including fines or penalties, incurred due to a violation of Applicable Laws in force and effect as of the Lease Commencement Date relating to the Property, but not including on-going recurring compliance costs (by way of example only, costs to comply with an existing Applicable Law requiring periodic elevator maintenance, or related to fire-extinguisher inspections, shall be included in Operating Expenses);

(d) costs incurred due to the presence of hazardous material (as defined under Applicable Laws), except to the extent caused by the release or emission thereof by Tenant;

(e) charitable and political contributions or reserves of any kind;

(f) except as set forth in items (xii) and (xiii) above, depreciation, interest and principal payments on mortgages and other debt costs, if any, penalties and interest, costs of capital repairs and alterations, and costs of capital improvements and equipment;

(g) fees payable by Landlord for management of the Property in excess of three percent (3%) (such percentage to be known generally as the “Management Fee Percentage”) of Landlord’s gross revenues from the Property, adjusted and grossed up to reflect a one hundred percent (100%) occupancy of the Property with all tenants paying full rent, as

 

30


contrasted with free rent, half-rent and the like, including base rent, pass-throughs, and parking fees from the Property for any calendar year or portion thereof; or

(h) expense reserves;

(i) Landlord’s and Landlord’s managing agent’s general corporate or partnership overhead and general administrative expenses, and all costs associated with the operation of the business of the ownership or entity which constitutes “Landlord,” as distinguished from the costs of Building operations, management, maintenance or repair, including, but not limited to, costs of entity accounting and legal matters, costs of any disputes with any ground lessor or mortgagee, costs of acquiring, selling syndicating, financing, mortgaging or hypothecating any of the Landlord’s interest in all or any part of the Property and/or Common Areas;

(j) costs (including permit, license and inspection fees) incurred in renovating or otherwise improving or decorating, painting or redecorating space for tenants or other occupants or in renovating or redecorating vacant space, including the cost of alterations or improvements to Tenant’s Premises or to the premises of any other tenant or occupant of the Property and any cash or other consideration paid by Landlord on account of, with respect to, or in lieu of the improvement or alteration work described herein;

(k) costs in connection with the original construction of the Property and related facilities;

(l) costs of a capital nature, including, but not limited to, capital improvements, capital repairs, capital equipment, and capital tool, and rental payments and other related expenses incurred in leasing air conditioning systems, elevators or other equipment ordinarily considered to be of a capital nature, except (i) equipment which is used in providing janitorial or similar services and which is not affixed to the Building, (ii) equipment rented temporarily to remedy or ameliorate an emergency condition, and (iii) as otherwise expressly permitted pursuant to items (xii) and (xiii), above;

(m) costs for which the Landlord is to be reimbursed by any tenant (other than as a reimbursement of operating expenses) or occupant of the Property or by insurance by its carrier or any tenant’s carrier or by anyone else;

(n) costs of all items and services for which Tenant reimburses Landlord or pays to third parties or which Landlord provides selectively to one or more tenants or occupants of the Building (other than Tenant);

(o) depreciation and amortization except as permitted pursuant to items (xii) and (xiii), above;

(p) costs incurred due to violation by Landlord or its managing agent or any tenant of the terms and conditions of any lease;

(q) payments to subsidiaries or affiliates of Landlord, for management or other services in or to the Property, or for supplies or other materials to the extent that the costs

 

31


of such services, supplies, or materials exceed the costs that would have been paid had the services, supplies or materials been provided by parties unaffiliated with the Landlord on a competitive basis;

(r) except as permitted pursuant to items (xii) and (xiii), above, interest, principal, points and fees on debt or amortization payment on any mortgages, deeds of trust or other debt instruments;

(s) any compensation and benefits paid to personnel working in or managing a food service or health club or other commercial concession operated by Landlord or Landlord’s managing agent;

(t) marketing, advertising and promotional costs and cost of signs in or on the Building identifying the owner of the Building or other tenants’ signs;

(u) cost of repairs or other work incurred by reason of fire, windstorm or other casualty or by the exercise of the right of eminent domain to the extent Landlord is compensated through proceeds or insurance or condemnation awards, or would have been so reimbursed if Landlord had in force all of the insurance required to be carried by Landlord under this Lease;

(v) leasing commissions, attorneys fees, costs and disbursements and other expenses incurred in connection with negotiations or disputes with tenants or other occupants or prospective tenant or other occupants, or associated with the enforcement of any leases or the defense of Landlord’s title to or interest in the Property or any part thereof or Common Areas or any part thereof;

(w) any items included in Tax Expenses;

(x) costs of repair or replacement for any item covered by a warranty to the extent covered by the warranty;

(y) costs of which Landlord is reimbursed by its insurance carrier or by any tenant’s insurance carrier or by any other entity;

(z) costs, fees, dues, contributions or similar expenses for political or charitable organizations;

(aa) bad debt loss, rent loss, or reserves for bad debt or rent loss;

(bb) acquisition or insurance costs for sculptures, paintings, or other art;

(cc) the wages and benefits of any employee who does not devote substantially all of his or her employed time to the Property unless such wages and benefits are prorated to reflect time spent on operating and managing the Property vis-à-vis time spent on matters unrelated to operating and managing the Property;

(dd) the cost of any electric power used by any tenant in the Building for which such tenant directly contracts with the local public service company or of which any tenant is

 

32


separately metered or submetered and pays Landlord directly; provided, however, that if any tenant in the Building contracts directly for electric power service or is separately metered or submetered during any portion of the relevant period, the total electric power costs for the Building shall be “grossed up” to reflect what those costs would have been had each tenant in the Building used the Building-standard amount of electric power;

(ee) Tax Expenses and costs expressly excluded from Tax Expenses;

(ff) the cost of tenant newsletters and Building promotional gifts, events or parties for existing occupants, and any costs related to the celebration or acknowledgment of holidays in excess of costs consistent with the general practice of landlords of the Comparable Buildings and any costs for parties for prospective occupants;

(gg) costs associated with the marketing of the Building for sale or the actual sale of the Building, and costs, fees, dues, contributions or similar expenses for industry associations or similar organizations and entertainment expenses and travel expenses of Landlord, its employees, agents, partners and affiliates; and

(hh) the cost of installing, operating and maintaining any specialty service, observatory, broadcasting facilities, luncheon club, museum, athletic or recreational club, or child care facility, or other service operated or supplied by or normally operated or supplied by a third party under an agreement between a third party and a landlord.

If Landlord is not furnishing any particular work or service (the cost of which, if performed by Landlord, would be included in Operating Expenses) to a tenant who has undertaken to perform such work or service in lieu of the performance thereof by Landlord, Operating Expenses shall be deemed to be increased by an amount equal to the additional Operating Expenses which would reasonably have been incurred during such period by Landlord if it had at its own expense furnished such work or service to such tenant. If the Property is not at least one hundred percent (100%) occupied during all or a portion of any Expense Year, Landlord may elect to make an appropriate adjustment to the components of Operating Expenses (excluding any management fee, which shall be adjusted pursuant to the terms of Section 4.2.4(g), above) for such year (and shall make such adjustment for the Base Year) to determine the amount of Operating Expenses that would have been incurred had the Property been one hundred percent (100%) occupied; and the amount so determined shall be deemed to have been the amount of Operating Expenses for such year. Operating Expenses for the Base Year shall include (i) market-wide cost increases (including utility rate increases) due to extraordinary circumstances, including, but not limited to, Force Majeure, boycotts, strikes, conservation surcharges, embargoes or shortages, which extraordinary circumstance occurs (or effects costs) on a regional or national basis and causes a category(ies) of Operating Expenses to significantly increases in cost on a temporary basis (i.e., less than twenty-four (24) months) (“Extraordinary Expenses”), and (ii) amortized costs relating to capital improvements incurred during the Base year (but not in preceding years) to the extent otherwise allowed to be included in Operating Expenses pursuant to Section 4.2.4, above; provided, however, that at such time as any Extraordinary Expenses or capital improvement are no longer included in Operating Expenses, such particular Extraordinary Expenses or capital improvement, as applicable, shall be excluded from the Base Year calculation of Operating Expenses. Landlord shall not (i) make a profit by

 

33


charging items to Operating Expenses that are otherwise also charged separately to others or otherwise incur or accrue the same Operating Expense more than once, and (ii) subject to Landlord’s right to adjust the components of Operating Expenses described above in this paragraph, collect Operating Expenses from Tenant and all other tenants in the Building in an amount in excess of what Landlord incurs for the items included in Operating Expenses.

4.2.5 Taxes.

4.2.5.1 “Tax Expenses” shall mean all federal, state, county, or local governmental or municipal taxes, fees, charges or other impositions of every kind and nature, whether general, special, ordinary or extraordinary, (including, without limitation, real estate taxes, general and special assessments, transit taxes, leasehold taxes or taxes based upon the receipt of rent, including gross receipts or sales taxes applicable to the receipt of rent, unless required to be paid by Tenant, personal property taxes imposed upon the fixtures, machinery, equipment, apparatus, systems and equipment, appurtenances, furniture and other personal property used in connection with the Property, or any portion thereof), which shall be paid or accrued during any Expense Year (without regard to any different fiscal year used by such governmental or municipal authority) because of or in connection with the ownership, leasing and operation of the Property, or any portion thereof.

4.2.5.2 Tax Expenses shall include, without limitation: (i) Any tax on the rent, right to rent or other income from the Property, or any portion thereof, or as against the business of leasing the Property, or any portion thereof; (ii) Any assessment, tax, fee, levy or charge in addition to, or in substitution, partially or totally, of any assessment, tax, fee, levy or charge previously included within the definition of real property tax, it being acknowledged by Tenant and Landlord that Proposition 13 was adopted by the voters of the State of California in the June 1978 election (“Proposition 13”) and that assessments, taxes, fees, levies and charges may be imposed by governmental agencies for such services as fire protection, street, sidewalk and road maintenance, refuse removal and for other governmental services formerly provided without charge to property owners or occupants, and, in further recognition of the decrease in the level and quality of governmental services and amenities as a result of Proposition 13, Tax Expenses shall also include any governmental or private assessments or the Property’s contribution towards a governmental or private cost-sharing agreement for the purpose of augmenting or improving the quality of services and amenities normally provided by governmental agencies; (iii) Any assessment, tax, fee, levy, or charge allocable to or measured by the area of the Premises or the Rent payable hereunder, including, without limitation, any business or gross income tax or excise tax with respect to the receipt of such rent, or upon or with respect to the possession, leasing, operating, management, maintenance, alteration, repair, use or occupancy by Tenant of the Premises, or any portion thereof; (iv) Any assessment, tax, fee, levy or charge, upon this transaction or any document to which Tenant is a party, creating or transferring an interest or an estate in the Premises; and (v) All of the real estate taxes and assessments imposed upon or with respect to the Building and all of the real estate taxes and assessments imposed on the land and improvements comprising the Property.

4.2.5.3 Any costs and expenses (including, without limitation, reasonable attorneys’ fees) incurred in attempting to protest, reduce or minimize Tax Expenses shall be included in Tax Expenses in the Expense Year such expenses are paid. Tax refunds shall be

 

34


credited against Tax Expenses and refunded to Tenant regardless of when received, based on the Expense Year to which the refund is applicable, provided that in no event shall the amount to be refunded to Tenant for any such Expense Year exceed the total amount paid by Tenant as Additional Rent under this Article 4 for such Expense Year. If Tax Expenses for any period during the Lease Term or any extension thereof are increased after payment thereof for any reason, including, without limitation, error or reassessment by applicable governmental or municipal authorities, Tenant shall pay Landlord upon demand Tenant’s Share of any such increased Tax Expenses included by Landlord as Building Tax Expenses pursuant to the terms of this Lease. Notwithstanding anything to the contrary contained in this Section 4.2.5, there shall be excluded from Tax Expenses (i) all excess profits taxes, transfer taxes, franchise taxes, gift taxes, capital stock taxes, inheritance and succession taxes, estate taxes, federal and state income taxes, and other taxes to the extent applicable to Landlord’s general or net income (as opposed to rents, receipts or income attributable to operations at the Property), (ii) any items included as Operating Expenses, (iii) any items paid by Tenant under Section 4.5 of this Lease, (iv) tax penalties incurred as a result of Landlord’s failure to make payments and/or to file any tax or informational returns when due, and (v) any assessments on real property or improvements located outside of the Property. If the property tax assessment for the Property (or any portion thereof) (or Tax Expenses) for the Base Year does not reflect an assessment (or Tax Expenses) for a one hundred percent (100%) leased, completed and occupied project (such that existing or future leasing, tenant improvements and/or occupancy may result in an increased assessment and/or increased Tax Expenses), Tax Expenses shall be adjusted, on a basis consistent with sound real estate accounting principles, to reflect an assessment for (and Tax Expenses for) a one hundred percent (100%) leased, completed and occupied project. In addition, notwithstanding anything in this Lease to the contrary, Tax Expenses shall not include and Tenant shall not be required to pay any portion of any tax or assessment expense or any increase therein resulting from the improvement of any of the Property for the sole use of other occupants. All assessments which can be paid by Landlord in installments, shall be paid by Landlord in the maximum number of installments permitted by law and shall be included as Tax Expenses in the year in which the installment is actually paid.

4.2.6 “Tenant’s Share” shall mean the percentage set forth in Section 6 of the Summary.

4.3 Cost Pools. Landlord shall have the right, from time to time, to equitably allocate some or all of the Direct Expenses for the Property among different portions or occupants of the Property (the “Cost Pools”), in Landlord’s reasonable discretion based on the extent to which services and related costs are attributable to the respective Cost Pool. Such Cost Pools may include, but shall not be limited to, the office space tenants of the Property, and the retail space tenants of the Property. The Direct Expenses within each such Cost Pool shall be allocated and charged to the tenants within such Cost Pool in an equitable manner; provided however, notwithstanding anything herein to the contrary, in no event shall any portion of the Direct Expenses allocated to Tenant include any Direct Expenses attributable solely to a Cost Pool that does not include Tenant.

4.4 Calculation and Payment of Additional Rent. If for any Expense Year ending or commencing within the Lease Term, Tenant’s Share of Direct Expenses for such Expense Year exceeds Tenant’s Share of Direct Expenses applicable to the Base Year, then Tenant shall

 

35


pay to Landlord, in the manner set forth in Section 4.4.1, below, and as Additional Rent, an amount equal to the excess (the “Excess”); provided, however, Landlord hereby agrees that for any Expense Year, “Controllable Expenses,” as that term is defined in this Section 4.4 below, shall never be increased by more than five percent (5%) of the Controllable Expenses applicable to the prior Expense Year that may be charged under this Lease. For purposes of this Section 4.4, “Controllable Expenses” shall mean all Direct Expenses except: (i) Tax Expenses and any and all assessments, including assessment districts and government-mandated charges with respect to the Building or the Property, or any part thereof; (ii) premiums for insurance carried by Landlord with respect to the Property and/or the operation thereof; (iii) costs of utilities, including, without limitation, electricity, water, HVAC and sewer charges, utility surcharges and assessments, and refuse removal; (iv) increases in wages, salaries and other compensation and benefits paid to Landlord’s employees, agents or contractors engaged in the operation, management, maintenance or security of the Building or Property, to the extent (a) such agents or contractors are union, or (b) such increases are due to increases in the applicable minimum wage legally required to be paid to such personnel; and (v) the costs of capital alterations, capital additions, capital improvements, capital repairs, and capital replacements; amortized as described in Sections 4.2.4(xii) and (xiii) above.

4.4.1 Statement of Actual Direct Expenses and Payment by Tenant. Landlord shall give to Tenant following the end of each Expense Year, a statement (the “Statement”) which shall state in general major categories the Building Direct Expenses incurred or accrued for the Base Year or such preceding Expense Year, as applicable, and which shall indicate the amount of the Excess. Landlord shall use commercially reasonable efforts to deliver such Statement to Tenant on or before May 1 following the end of the Expense Year to which such Statement relates. Upon receipt of the Statement for each Expense Year commencing or ending during the Lease Term, if an Excess is present, Tenant shall pay, within thirty (30) days after receipt of the Statement, the full amount of the Excess, less the amounts, if any, paid during such Expense Year as “Estimated Excess,” as that term is defined in Section 4.4.2, below, and if Tenant paid more as Estimated Excess than the actual Excess, Tenant shall receive a credit in the amount of Tenant’s overpayment against Rent next due under this Lease. The failure of Landlord to timely furnish the Statement for any Expense Year shall not prejudice Landlord or Tenant from enforcing its rights under this Article 4. Even though the Lease Term has expired and Tenant has vacated the Premises, when the final determination is made of Tenant’s Share of Direct Expenses for the Expense Year in which this Lease terminates, if an Excess is present, Tenant shall, within thirty (30) days after receipt of the Statement, pay to Landlord such amount, and if Tenant paid more as Estimated Excess than the actual Excess, Landlord shall, within thirty (30) days, deliver a check payable to Tenant in the amount of the overpayment. The provisions of this Section 4.4.1 shall survive the expiration or earlier termination of the Lease Term. Notwithstanding anything to the contrary in this Lease, including Section 4.4.2, Tenant shall not be responsible for Tenant’s Share of any Direct Expenses attributable to any Expense Year which are first billed to Tenant more than two (2) calendar years after the expiration of the Lease Year during which Landlord incurs such Direct Expense, provided that in any event Tenant shall be responsible for Tenant’s Share of Direct Expenses levied by any governmental authority or by any public utility companies at any time following the Lease Expiration Date which are attributable to any Expense Year.

 

36


4.4.2 Statement of Estimated Direct Expenses. In addition, Landlord shall give Tenant a yearly expense estimate statement (the “Estimate Statement”) which shall set forth in general major categories Landlord’s reasonable estimate (the “Estimate”) of what the total amount of Direct Expenses for the then-current Expense Year shall be and the estimated excess (the “Estimated Excess”) as calculated by comparing the Direct Expenses for such Expense Year, which shall be based upon the Estimate, to the amount of Direct Expenses for the Base Year. Landlord shall use commercially reasonable efforts to deliver such Estimate Statement to Tenant on or before January 1 of each year. The failure of Landlord to timely furnish the Estimate Statement for any Expense Year shall not preclude Landlord from enforcing its rights to collect any Additional Rent under this Article 4, nor shall Landlord be prohibited from revising any Estimate Statement or Estimated Excess theretofore delivered to the extent necessary. Thereafter, Tenant shall pay, within thirty (30) days after receipt of the Estimate Statement, a fraction of the Estimated Excess for the then-current Expense Year (reduced by any amounts paid pursuant to the second to last sentence of this Section 4.4.2). Such fraction shall have as its numerator the number of months which have elapsed in such current Expense Year, including the month of such payment, and twelve (12) as its denominator. Until a new Estimate Statement is furnished (which Landlord shall have the right to deliver to Tenant at any time), Tenant shall pay monthly, with the monthly Base Rent installments, an amount equal to one-twelfth (1/12) of the total Estimated Excess set forth in the previous Estimate Statement delivered by Landlord to Tenant. Throughout the Lease Term Landlord shall maintain books and records with respect to Direct Expenses in accordance with generally accepted real estate accounting and management practices, consistently applied.

4.5 Taxes and Other Charges for Which Tenant Is Directly Responsible.

4.5.1 Tenant shall be liable for and shall pay ten (10) days before delinquency, taxes levied against Tenant’s equipment, furniture, fixtures and any other personal property located in or about the Premises. If any such taxes on Tenant’s equipment, furniture, fixtures and any other personal property are levied against Landlord or Landlord’s property or if the assessed value of Landlord’s property is increased by the inclusion therein of a value placed upon such equipment, furniture, fixtures or any other personal property and if Landlord pays the taxes based upon such increased assessment, which Landlord shall have the right to do regardless of the validity thereof but only under proper protest if requested by Tenant, Tenant shall upon demand repay to Landlord the taxes so levied against Landlord or the proportion of such taxes resulting from such increase in the assessment, as the case may be.

4.5.2 If the tenant improvements in the Premises installed by Tenant, whether or not affixed to the real property so as to become a part thereof, are assessed for real property tax purposes at a valuation higher than the valuation at which tenant improvements conforming to Landlord’s “building standard” in other space in the Building are assessed, then the Tax Expenses levied against Landlord or the property by reason of such excess assessed valuation shall be deemed to be taxes levied against personal property of Tenant and shall be governed by the provisions of Section 4.5.1, above. For purposes of this Section 4.5.2, Landlord and Tenant hereby agree that the valuation of Landlord’s “building standard” tenant improvements shall be equal to Ninety and 00/100 Dollars ($90.00) per rentable square foot.

 

37


4.5.3 Notwithstanding any contrary provision herein, but subject to Section 4.2.5.3, Tenant shall pay prior to delinquency any (i) rent tax or sales tax, service tax, transfer tax or value added tax, or any other applicable tax on the rent or services herein or otherwise respecting this Lease, or (ii) taxes assessed upon or with respect to the possession, leasing, operation, management, maintenance, alteration, repair, use or occupancy by Tenant of the Premises or any portion of the Property, including the Property parking facility.

4.6 Landlord’s Books and Records. Notwithstanding anything to the contrary contained in this Lease, if, within one hundred eighty (180) days after receipt of a Statement by Tenant, Tenant (i) reasonably disputes any amounts set forth in any Statement described above in this Article 4, and (ii) is not then in default under this Lease beyond any applicable notice and cure periods, then Tenant shall have the right to cause Landlord’s general ledger of accounts and Direct Expenses with respect to such disputed Statement only to be audited by a nationally recognized firm of certified public accountants, at no cost or expense to Landlord, which has prior experience in the review of financial statements and which shall not be retained by Tenant on a contingency fee basis; provided, however, Tenant shall not have the right to perform any such audit more than one (1) time for any Expense Year during the Lease Term. Any audit conducted by or on behalf of Tenant shall be completed in a diligent and timely manner (but in any event within two (2) months after Tenant initially disputes the applicable Statement) and shall be performed at Landlord’s office during Landlord’s normal business hours and in a manner so as to minimize interference with Landlord’s business operations. Landlord shall have no obligation to make photocopies of any of Landlord’s ledgers of Direct Expenses, invoices or other items. Tenant agrees to keep, and to cause Tenant’s accountant and its employees to keep, all information revealed by any audit of Landlord’s books and records strictly confidential and not to disclose any such information or permit any such information to be disclosed to anyone other than Landlord and Tenant’s employees and agents participating in such audit, unless compelled to do so by law or in litigation with Landlord, and Tenant and its accountant shall sign a commercially reasonable confidentiality agreement reflecting such confidentiality. Tenant’s audit shall be limited to an on-site review of Landlord’s general ledger of accounts and supporting documentation. If after such audit, Landlord and Tenant dispute the results of such audit, at Tenant’s request, a certified public accounting firm selected by Landlord, and reasonably approved by Tenant, shall, at Tenant’s cost, conduct an audit of the relevant Direct Expenses. The amounts payable under this Section 4.6 by Landlord to Tenant or by Tenant to Landlord, as the case may be, will be appropriately adjusted on the basis of such audit. If such audit discloses an overstatement of Direct Expenses in excess of five percent (5%) for such Expense Year, Landlord shall reimburse Tenant for all of the overcharges plus the reasonable cost of both audits within thirty (30) days after completion of such audit; otherwise the cost of such audits shall be borne by Tenant. Tenant agrees that this Section 4.6 shall be the sole method to be used by Tenant to dispute the amount of any Direct Expenses payable by Tenant pursuant to the terms of this Lease, and Tenant hereby waives any other rights at law or in equity relating thereto.

 

38


ARTICLE 5

USE OF PREMISES

5.1 Permitted Use. Tenant shall use the Premises solely for the Permitted Use set forth in Section 7 of the Summary and Tenant shall not use or permit the Premises or the Property to be used for any other purpose or purposes whatsoever without the prior written consent of Landlord, which may be withheld in Landlord’s sole discretion.

5.2 Prohibited Uses. The uses prohibited under this Lease shall include, without limitation, use of the Premises or a portion thereof for (i) offices of any agency or bureau of the United States or any state or political subdivision thereof; (ii) offices or agencies of any foreign governmental or political subdivision thereof; (iii) offices of any health care professionals or service organization (other than a fitness center or wellness program for Tenant’s employees and contractors, installed by Tenant pursuant to the terms of Article 8 of this Lease); (iv) schools or other training facilities which are not ancillary to corporate, executive or professional office use; (v) retail or restaurant uses; or (vi) communications firms such as radio and/or television stations. Tenant further covenants and agrees that Tenant shall not use, or permit any person or persons to use, the Premises or any part thereof for any use or purpose contrary to the provisions of the Rules and Regulations set forth in Exhibit D, attached hereto, or in violation of the laws of the United States of America, the State of California, or the ordinances, regulations or requirements of the local municipal or county governing body or other lawful authorities having jurisdiction over the Property) including, without limitation, any such laws, ordinances, regulations or requirements relating to hazardous materials or substances, as those terms are defined by applicable laws now or hereafter in effect. Tenant shall not do or permit anything to be done in or about the Premises which will in any way damage the reputation of the Property or obstruct or interfere with the rights of other tenants or occupants of the Building, or injure them or use or allow the Premises to be used for any improper or unlawful purpose, nor shall Tenant cause, maintain or permit any nuisance in, on or about the Premises. Except for the use and storage of normal quantities of Hazardous Substances related to the Permitted Use in accordance with laws, Tenant shall not cause or permit any Hazardous Substance to be kept, maintained, used, stored, produced, generated or disposed of (into the sewage or waste disposal system or otherwise) on or in the Premises by Tenant or Tenant’s agents, employees, contractors, invitees, assignees or sublessees, without first obtaining Landlord’s written consent. Tenant shall immediately notify Landlord, and shall direct Tenant’s agents, employees contractors, invitees, assignees and sublessees to immediately notify Tenant, of its actual knowledge of any incident in, on or about the Premises, the Building or the Property that would require the filing of a notice under any federal, state, local or quasi-governmental law (whether under common law, statute or otherwise), ordinance, decree, code, ruling, award, rule, regulation or guidance document now or hereafter enacted or promulgated, as amended from time to time, in any way relating to or regulating any Hazardous Substance. Landlord shall also immediately notify Tenant of any such incident. As used herein, “Hazardous Substance” means any substance which is toxic, ignitable, reactive, or corrosive and which is regulated by any local government, the State of California, or the United States government. “Hazardous Substance” includes any and all material or substances which are defined as “hazardous waste,” “extremely hazardous waste” or a “hazardous substance” pursuant to state, federal or local governmental law. “Hazardous Substance” also includes asbestos, polychlorobiphenyls (i.e., PCB’s) and petroleum. To the

 

39


knowledge of Landlord as of the date of this Lease, no Hazardous Substance is present on the Project or the soil, surface water or groundwater thereof, except as set forth in reports provided to Tenant prior to Tenant’s execution of this Lease.

5.3 CAP Process. Tenant acknowledges that during the Lease Term, the Bank will be conducting operations critical to the Bank’s business within those portions of the Property identified in Exhibit F attached hereto (such portions, as the same may be modified from time to time by written notice from Landlord to Tenant, the “Critical Environments”); provided, however, to the extent any portion of the Critical Environments, as shown on Exhibit F, are delivered to Tenant as part of the Premises, such part of the Premises shall no longer be deemed to be Critical Environments. Tenant may not perform, or allow any utility provider, vendor, or other third party to perform, any “Alterations” as that term is defined in Section 8.1, below, or any construction, repair, maintenance, testing, or other work that requires entry into the Critical Environments, or that could potentially impact or interrupt the Bank’s operations within the Critical Environments (e.g., outdoor activities that produce vibration (such as jack hammering), airborne particulates, or the release of water) (collectively, “CE Work”), without first procuring the prior written consent of Landlord to such CE Work, which consent shall be requested by Tenant not less than sixty (60) days prior to the planned commencement thereof, and which consent shall not be unreasonably withheld by Landlord, provided that it shall be deemed reasonable for Landlord to withhold its consent to any CE Work that may result in Landlord being in breach or default under the Bank’s lease. To the extent Landlord approves such CE Work, Tenant agrees to comply with, and cause the utility providers, vendors, and other third parties performing the CE Work to comply with, the Bank’s Critical Awareness Process (“CAP Process”), as set forth in the Bank’s Corporate Workplace Critical Awareness Handbook and Critical Facilities Bulletins (the “Handbook”). Tenant hereby acknowledges receipt of the current Handbook. Landlord shall notify Tenant of any changes to the Handbook and/or the CAP Process after the Commencement Date, which changes shall not materially affect Tenant’s obligations under the CAP Process existing as of the date of this Lease. Landlord shall coordinate communications between Tenant and the Bank regarding the CAP Process.

5.4 Tenant’s Bicycles. Tenant’s employees shall be permitted to bring their bicycles (“Bicycles”) into the designated portions of the Building, subject to the provisions of this Section 5.4, and such additional reasonable rules and regulations as may be promulgated by Landlord from time to time (in Landlord’s reasonable discretion) that do not unreasonably interfere with Tenant’s ability to park its bicycles as contemplated herein and provided to Tenant (provided that Landlord shall not enact any such rules and regulations intended to discriminate against Tenant vis-à-vis the other tenants of the Building), and only to the extent such Bicycles are used for commuting to and from work by such employees. AT NO TIME ARE RIDERS ALLOWED TO RIDE ANY BICYCLE IN THE PREMISES, THE “GARAGE” (AS THAT TERM IS DEFINED BELOW), THE BUILDING, OR ANYWHERE ELSE WITHIN THE PROPERTY. RIDERS MUST ALWAYS WALK THEIR BICYCLES WITHIN THE PROPERTY BOUNDARIES. Storage of any Bicycle anywhere on the Property other than as expressly set forth in this Section 5.4 is prohibited. Tenant shall keep its employees informed of these rules and regulations and any modifications thereto.

5.4.1 Bicycle Storage Area. On or before the Rent Commencement Date, Landlord shall provide, for Tenant’s exclusive use, a secure facility on level 1 or level 3 of the

 

40


Building’s parking garage (the “Garage”) (exact location within the Garage to be determined by Landlord in Landlord’s reasonable discretion) of a reasonable size to allow for the storage of up to fifty (50) operable nonmotorized Bicycles (the “Bicycle Storage Area”). Motorized vehicles of any kind, including motorcycles and mopeds, are prohibited in the Bicycle Storage Area, as is the storage of any property other than the permitted number of Bicycles. Each rider shall use the Bicycle Storage Area at is sole risk. Landlord specifically reserves the right to reasonably change the location, size, configuration, design, layout and all other aspects of the Bicycle Storage Area at any time (so long as it is sufficient for the reasonable storage of fifty (50) bicycles) and Tenant acknowledges and agrees that Landlord may, without incurring any liability to Tenant and without any abatement of Rent under this Lease, from time to time, temporarily close-off or restrict access to the Bicycle Storage Area for purposes of permitting or facilitating any such construction, alteration or improvements. Landlord has no obligation to provide any security whatsoever in connection with the Bicycle Storage Area except as expressly set forth in this Section 5.4.1. Landlord shall provide twenty-four (24) hours per day, seven (7) days per week, reasonable access control services for the Bicycle Storage Area in a manner materially consistent with the services provided by landlords of Comparable Buildings. Notwithstanding the foregoing, Landlord shall in no case be liable for personal injury or property damage for any error with regard to the admission to or exclusion from the Bicycle Storage Area of any person. Upon the expiration or earlier termination of this Lease, Tenant shall have removed all Bicycles belonging to its employees from the Bicycle Storage Area and Tenant, at Tenant’s sole cost and expense, shall repair all damage to the Bicycle Storage Area caused by the removal of Tenant’s property therefrom, and if Tenant fails to repair such damage, Landlord may undertake such repair on account of Tenant and Tenant shall pay to Landlord upon demand the cost of such repair. If Tenant fails to remove any Bicycles at the expiration or earlier termination of this Lease, Landlord may dispose of said Bicycles in such lawful manner as it shall determine in its sole and absolute discretion.

5.4.2 Additional Bicycle Storage Areas. Landlord hereby grants to Tenant the right to construct additional bicycle storage areas (“Additional Bicycle Storage Areas”), at Tenant’s sole cost and expense, pursuant and subject to the terms of this Section 5.4.2. Any Additional Bicycle Storage Area(s) shall be deemed an “Alteration” under this Lease, and the terms and conditions of Article 8 below shall apply to such Additional Bicycle Storage Area(s). If Tenant elects to construct any Additional Bicycle Storage Area(s), such areas shall be constructed utilizing parking spaces designated by Landlord, in Landlord’s reasonable discretion. Tenant shall pay to Landlord rent for the Additional Bicycle Storage Areas on a monthly basis in an amount equal to the rate Tenant would be charged by Landlord from time to time for such parking passes pursuant to Article 28 of this Lease. The number of parking spaces used by Tenant as Additional Bicycle Storage Areas shall count toward the total number of parking passes allocated to Tenant as set forth in Section 9 of the Summary during the Lease Term.

5.4.3 6th Floor Premises. Tenant’s employees shall not be permitted to bring their Bicycles anywhere in the Premises except the 6th Floor Premises. The right provided to Tenant and its employees to bring Bicycles into the 6th Floor Premises shall be subject to the following terms and conditions: (i) Bicycles may only enter and exit the Building through the Garage entrance; (ii) Bicycles may enter and exit the Building at all times; (iii) Bicycles must be taken directly from the Garage to the 6th Floor Premises via the Building’s freight elevator, which Tenant’s employees shall be entitled to operate at any time; (iv) Landlord shall have the right to

 

41


reasonably designate the path of travel that Tenant’s employees must follow to/from the Garage and the freight elevator; and (v) during such time as Bicycles are within the Premises, all Bicycles must be stored within a room designated for such storage on the “Final Space Plan,” as that term is defined in the Tenant Work Letter. Prior to the Rent Commencement Date, Landlord shall, at Landlord’s sole cost, create a corridor next to the loading dock from the Garage to the freight elevator for Tenant’s personnel to use to access the freight elevator.

ARTICLE 6

SERVICES AND UTILITIES

6.1 Standard Tenant Services. Landlord shall provide the following services on all days (unless otherwise stated below) during the Lease Term.

6.1.1 Subject to limitations imposed by all governmental rules, regulations and guidelines applicable thereto, Landlord shall provide heating and air conditioning (“HVAC”) when necessary for normal comfort for normal office use in the Premises, assuming an office occupancy density no greater than one (1) person for any 125 rentable square feet of space, from 7:00 A.M. to 8:00 P.M. Monday through Friday, and on Saturdays and Sundays from 9:00 A.M. to 2:00 P.M. (collectively, the “Building Hours”), except for the date of observation of New Year’s Day, Memorial Day, Independence Day, Labor Day, Thanksgiving Day, Christmas Day and, at Landlord’s discretion, other locally or nationally recognized holidays generally recognized in Comparable Buildings (collectively, the “Holidays”). Tenant shall cooperate fully with Landlord at all times and abide by all regulations and requirements that Landlord may reasonably prescribe for the proper functioning and protection of the HVAC, electrical, mechanical and plumbing systems.

6.1.2 The Premises shall be separately sub-metered for electricity by Landlord, and Tenant shall pay the cost of such electricity to Landlord, as Additional Rent (but not as an Operating Expense), equal to the rates charged by the public utility company furnishing such electricity. The cost of any such meters and of the installation, maintenance, and repair thereof shall be paid for by Landlord. Landlord shall provide adequate electrical wiring and facilities and electricity for connection to Tenant’s lighting fixtures and incidental use equipment, provided that (i) the connected electrical load of Tenant’s convenience electrical outlets does not exceed an average of five (5) watts per rentable square foot of the Premises on a monthly basis, and the electricity so furnished for incidental use equipment will be at a nominal one hundred twenty (120) volts or two hundred twenty (220) volts, and (ii) the connected electrical load of Tenant’s lighting fixtures does not exceed an average of one and one-half (1.5) watts per rentable square foot of the Premises on a monthly basis, and the electricity so furnished for Tenant’s lighting will be at a nominal one hundred twenty (120) volts or two hundred seventy-seven (277) volts or low voltage, which electrical usage shall be subject to applicable laws and regulations, including Title 24. Tenant may use additional capacity, if available, provided Tenant pays the cost of all transformers and panels as a result thereof. Tenant shall bear the cost of replacement of lamps, starters and ballasts for non-Building standard lighting fixtures within the Premises and Landlord shall provide, as part of Direct Expenses, lamps, starters and ballasts for Building standard lighting fixtures within the Premises. Tenant shall cooperate fully with Landlord at all

 

42


times and abide by all regulations and requirements that Landlord may reasonably prescribe for the proper functioning and protection of the Building electrical systems.

6.1.3 Landlord shall provide city water, gas, kitchen and sewer from the regular Building outlets for drinking, lavatory and toilet purposes in the Building Common Areas and Premises.

6.1.4 Landlord shall provide customary weekday janitorial services to the Premises and the Outdoor Terraces, except the date of observation of the Holidays in accordance with the specifications set forth in Exhibit P. Tenant shall pay to Landlord, as Additional Rent (but not as an Operating Expense), its actual, third party costs for such janitorial service to the extent such costs could be included in Direct Expenses had there been no Base Year. Subject to Landlord’s reasonable approval, Tenant shall be permitted to hire day porters to provide supplemental services to the Premises. In connection with Landlord’s janitorial staff, Landlord shall comply with Tenant’s reasonable security and confidentiality requirements.

6.1.5 Landlord shall provide nonexclusive, non-attended automatic passenger elevator service during the Building Hours, and shall have one (1) elevator available at all other times.

6.1.6 Landlord shall provide use of the Building loading dock for deliveries to Tenant. All deliveries require one (1) business days’ prior written notice to Landlord (which notice may be given by telephone), and drivers of delivery vehicles must present identification and paperwork in accordance with Landlord’s requirements; provided, however, the following delivery vehicles are pre-approved by Landlord and shall not require any such prior notice: (i) FedEx; (ii) UPS; and (iii) United States Postal Service. Tenant acknowledges that armored car ingress and egress to and from such loading areas shall have priority over other vehicles using and waiting to use the loading dock.

6.1.7 Subject to Landlord’s rules, regulations, and restrictions and the terms of this Lease, Landlord shall permit Tenant to utilize the existing and future Building risers, raceways, shafts and conduit to the extent (i) there is available space in the Building risers, raceways, shafts and/or conduit for Tenant’s use, which availability shall be determined by Landlord in Landlord’s reasonable discretion, and (ii) Tenant’s requirements are consistent with the requirements of a typical user for the Permitted Use; provided Tenant shall be entitled to not less than Tenant’s Share of such space for use by all tenants in the Building except Bank of America. Tenant shall be entitled to use of such Building risers, raceways, shafts and/or conduit free of charge. Tenant may only use vendors reasonably approved by Landlord to provide services to Tenant through the use of the Building risers, raceways, shafts and conduit. Tenant shall have the right, at no charge, to cross connect to any fiber located at the Property; provided Tenant shall be solely responsible for the cost of such wiring, including installation and maintenance.

6.1.8 Landlord shall provide reasonable access-control services for the Building and in the Building parking facility in a manner materially consistent with the services provided by Landlord as of the date of this Lease. Without limiting the foregoing, Landlord shall provide (a) on-site security personnel on a 24/7 basis, (b) monitoring of the Building perimeter and

 

43


interior via regular rounds and CCTV cameras and (c) card reader access to the Building. Notwithstanding the foregoing, Landlord shall in no case be liable for personal injury or property damage for any error with regard to the admission to or exclusion from the Building or Property of any person. Landlord hereby agrees that Tenant shall have the right to install a card key security system (“Tenant’s Security System”) in the Premises and to connect such system to Landlord’s security system for the Building. In addition, Landlord hereby agrees to control elevator access to Tenant’s floors based on Tenant’s requests. Tenant’s Security Systems shall by subject to Landlord’s prior review and approval, and the installation thereof shall be deemed an Alteration and shall performed pursuant to Article 8 of this Lease, below. In addition, Tenant shall coordinate the selection, installation and operation of Tenant’s Security System with Landlord in order to ensure that Tenant’s Security System is compatible with Landlord’s Building security systems and equipment, and to the extent that Tenant’s Security System is not compatible with Landlord’s Building systems and equipment, Tenant shall not be entitled to install and/or operate the Tenant’s Security System. Tenant shall be solely responsible, at Tenant’s sole cost and expense, for the installation, monitoring, operation and removal of Tenant’s Security System. Landlord represents that the Building’s security system will have sufficient capacity for Tenant to add a card key security system within the Premises.

6.1.9 Subject to applicable laws and the other provisions of this Lease, and except in the event of an emergency, Tenant shall have access to the above utilities and the Building, the Premises and the Common Areas, other than common areas requiring access with a Building engineer, the parking garage and freight elevator, twenty-four (24) hours per day, seven (7) days per week, every day of the year; provided, however, that Tenant shall only be permitted to have access to and use of the loading dock, mailroom and other limited-access areas of the Building during the normal operating hours of such portions of the Building. On or before each delivery date, Landlord shall deliver to Tenant one (1) Building key card per 100 rentable square feet of the portion of Premises being delivered on such delivery date, at no charge to Tenant. Tenant shall have the right to deliver written notice to Landlord requesting additional key cards, from time to time, provided that such notice shall include payment in an amount equal to Fifteen and 00/100 Dollars ($15.00) per key card requested therein. Tenant shall pay Twenty-Five and 00/100 Dollars ($25.00) for each key card requested to replace lost cards.

6.2 Overstandard Tenant Use. If Tenant uses water, electricity, heat or air conditioning in excess of that supplied by Landlord pursuant to Section 6.1 of this Lease, Tenant shall pay to Landlord, upon billing, the cost of such excess utility consumption, the cost of the installation, operation, and maintenance of equipment which is required to be installed in order to supply such excess consumption; and, to the extent no previously installed, Landlord may install devices to separately sub-meter any increased use and in such event Tenant shall pay the increased cost directly to Landlord, on demand, at the rates charged by the public utility company furnishing the same, including the cost of such additional metering (or sub-metering) devices. Tenant’s use of electricity shall never exceed the capacity of the feeders to the Property or the risers or wiring installation; provided, however, Tenant shall have the right, subject to the terms of Article 8, to increase such capacity. Notwithstanding anything to the contrary in this Lease, Tenant may operate the HVAC within the Premises at its discretion; provided, however, if Tenant desires to use heat, ventilation or air conditioning during hours other than those for which Landlord is obligated to supply such utilities pursuant to the terms of Section 6.1 of this Lease, Tenant shall reimburse Landlord for the actual cost of supplying chilled water and gas to the

 

44


Premises during non-Building Hours at the actual rates charged by the utilities, which cost shall be equitably prorated among all Building occupants (other than the Bank) operating HVAC during the same non-Building Hours. For purposes of an example, Exhibit K, attached hereto, sets forth the calculation of such actual utilities costs, with the actual calculation being subject to the actual rates charged by the utilities. Landlord shall, at its sole cost, as part of the Core and Shell Work, provide a cloud-based software system (Workspeed) to allow Tenant to control Tenant’s after-hours HVAC.

6.3 Interruption of Use. Tenant agrees that Landlord shall not be liable for damages by abatement of Rent (except as specifically set forth in Section 19.5.2 of this Lease) or otherwise, for failure to furnish or delay in furnishing any service (including telephone and telecommunication services), or for any diminution in the quality or quantity thereof, when such failure or delay or diminution is occasioned, in whole or in part, by breakage, repairs, replacements, or improvements, by any strike, lockout or other labor trouble, by inability to secure electricity, gas, water, or other fuel at the Building or Property after reasonable effort to do so, by any riot or other dangerous condition, emergency, accident or casualty whatsoever, by act or default of Tenant or other parties, or by any other cause; and such failures or delays or diminution shall never be deemed to relieve Tenant from paying Rent (except as specifically set forth in Section 19.5.2 of this Lease) or performing any of its obligations under this Lease. Furthermore, Landlord shall not be liable under any circumstances for a loss of, or injury to, property or for injury to, or interference with, Tenant’s business, including, without limitation, loss of profits, however occurring, through or in connection with or incidental to a failure to furnish any of the services or utilities as set forth in this Article 6.

6.4 Use of Shafts and Utility Connections. Landlord shall have reasonable access, and shall be entitled to allow other tenants reasonable access, through existing Building shafts to other portions of the Building (including the roof and mechanical floors), or to utility connections outside the Building, for the installation, repair, and maintenance of ducts, pipes, connections, and equipment for cables, conduits, transmitters, receivers, and other office, computer, communications and word and data processing equipment and facilities, including any technological devices not yet developed, whether similar or dissimilar to the foregoing, which may hereafter become necessary or desirable for any permitted use of the Property; provided, however, that to the extent such shafts or utility connections are located within or adjacent to the Premises, such access shall not materially interfere with Tenant’s occupancy of the Premises and any access to the Premises shall be subject to the terms of Section 27.1.

6.5 Computer Room Chilled Water and Electrical Systems. Tenant acknowledges that piping and valves located in the subflooring and in the columns on Floors 6, 7, and 8 of the Building, as well as certain wires, cable and associated electrical distribution equipment, and fire suppression and EPO (Emergency Power Off) systems (collectively, “Computer Room Chilled Water and Electrical Systems”) serve the critical business operations of other tenants of the Property. Tenant shall not alter or disturb or permit any third party to alter or disturb the Computer Room Chilled Water and Electrical Systems; provided, however, that Tenant shall be permitted to install and use its own under floor electrical and/or chilled water systems. Tenant shall indemnify, defend, protect, and hold harmless the “Landlord Parties” (as defined in Section 10.1, below) from any and all loss, cost, damage, expense and liability (including without limitation court costs and reasonable attorneys’ fees) incurred in connection with or

 

45


arising from Tenant’s use, alteration or disturbance of, or access to, the Computer Room Chilled Water and Electrical Systems, provided that the terms of the foregoing indemnity shall not apply to the negligence or willful misconduct of or violation of this Lease by Landlord or Landlord Parties.

6.6 Minimum Point of Entry. Tenant acknowledges all telecommunication services must be routed through the Minimum Point of Entry located on the first (1st) floor of the Building (the “MPOE”), which MPOE is for use by the tenants of the Building other than the Bank; and Tenant shall have no right to use the MPOE located on the first (1st) floor of the Building that is dedicated to the Bank’s use. Landlord shall coordinate access to the MPOE for Tenant’s telecommunications service providers.

6.7 Supplemental HVAC. Subject to Landlord’s prior consent, which consent shall not be unreasonably withheld, conditioned or delayed, Tenant shall have the right to install a supplemental HVAC system serving all or any portion of the Premises. Any such supplemental HVAC system shall be installed pursuant to the terms of Article 8 and shall be deemed an Alteration for purposes of this Lease; provided, however, it shall be deemed reasonable for Landlord to withhold its approval to the extent any such installation would materially interfere with the occupancy of other tenants in the Building, or would materially interfere with, or materially increase the cost of, Landlord’s maintenance or operation of the Building, unless Tenant agrees to pay for such increased costs and such installation would not result in Landlord being in breach or default under any other tenant’s lease. Tenant shall have the option either to utilize the Building’s chilled or condenser water, at Landlord’s actual cost without markup, or to install in or on the Building (including the roof) the necessary equipment to supply a sufficient quantity of chilled or condenser water to the Premises and to connect the equipment to the Premises through the Building shafts and systems. If Tenant connects into the Building’s chilled or condenser water system pursuant to the terms of the foregoing sentence, then Landlord shall install a submetering device at Tenant’s sole cost and expense, which shall measure the flow of chilled or condenser water to the Premises, and Tenant shall pay Landlord for Tenant’s use of chilled or condenser water at Landlord’s actual cost. Tenant shall bear all costs of the equipment and installation.

6.8 Tenant’s Back-Up Generator. Tenant will have third-tier priority access to the Building’s back-up generators existing as of the date of this Lease, which Landlord shall maintain throughout the Lease Term, and any extension thereof. Tenant hereby acknowledges and Landlord agrees that only (i) the Building’s emergency systems, and (ii) the Bank’s critical systems have higher priority to such Building back-up generators, and that other tenants of the Building will share third-tier priority access with Tenant. The Building back-up generators consist of four (4) 3,000 D Watt Diesel Turbine Emergency Generators that supply emergency lighting, fire pumps, computer system on floors 6 - 8, EMS System and elevators one cab per bank at a time for exiting. Notwithstanding the foregoing, Tenant shall be entitled to install, for Tenant’s own use and at Tenant’s sole cost and expense, one (1) back-up generator to service the Premises (the “Generator”), provided that such Generator shall only be utilized by Tenant in the event of an emergency or in connection with Tenant’s testing (which testing shall only be performed before or after the Building Hours), maintenance or repair of the Generator. In connection with Tenant’s testing, maintenance or repair of the Generator, in either of such circumstances, to the extent reasonably practical, Tenant shall give Landlord reasonable prior

 

46


notice of such non-emergency intended usage. Tenant’s use of the Generator shall be subject to such rules and regulations as Landlord may reasonably adopt from time to time. Tenant shall be responsible, at Tenant’s sole cost and expense, to obtain all permits, licenses, entitlements, authorizations or certifications which are required in connection with (i) the use and operation of the Generator and the location of the Generator, and (ii) any associated fuel tank and fuel storage. Landlord shall use reasonable efforts (at no cost to Landlord) to assist Tenant with ministerial acts required in connection with obtaining such permits, licenses, entitlements, authorizations or certifications. The physical appearance and the size of the location housing for the Generator shall be subject to Landlord’s reasonable approval, and Landlord may require Tenant to incorporate improvements or other screening surrounding such Generator area, at Tenant’s sole cost and expense, as reasonably designated by Landlord. Landlord shall, at no cost to Tenant (except as otherwise provided below in this Section 6.8), provide space at a location on the roof of the podium portion of the Building, or as otherwise mutually and reasonably agreed upon by Landlord and Tenant (provided, however, in no event shall any such generator be located in an area which interferes with any other tenant’s equipment, or any of the Building Systems), for Tenant’s installation of the Generator, and such installation shall be at Tenant’s sole cost and expense. Tenant’s installation of the Generator shall be accomplished in accordance with the terms of Article 8 of this Lease, in the event not installed as part of the initial Tenant Improvements. Such Generator shall remain Tenant’s personal property throughout the Lease Term and, in all instances, comply with all recorded covenants, conditions and restrictions and all Applicable Laws. Tenant’s use of the Generator shall be subject to all of the terms and conditions of this Lease, including, but not limited to the provisions of Article 10 of this Lease, and the Hazardous Substance requirements set forth in this Lease. At Landlord’s option, given by written notice to Tenant not less than thirty (30) days prior to the expiration or earlier termination of the Lease, Tenant shall, as of the expiration or earlier termination of this Lease, remove the Generator and all associated infrastructure, and repair any damage to the Building or Property caused by the installation or removal thereof, all at Tenant’s sole cost and expense.

ARTICLE 7

REPAIRS

Landlord shall at all times during the Lease Term maintain in good condition and operating order in a manner consistent with Comparable Buildings the structural portions of the Building, including, without limitation, the foundation, floor slabs, ceilings, roof, columns, beams, shafts, stairs, stairwells, escalators, elevators, base building restrooms and all Common Areas, including exterior landscaping (collectively, the “Building Structure”), and the “Base Building” (as that term is defined below) mechanical, electrical, life safety, plumbing, sprinkler and HVAC systems installed or furnished by Landlord (collectively, the “Building Systems”). Except as specifically set forth in this Lease to the contrary, Tenant shall not be required to repair the Building Structure and/or the Building Systems except to the extent required because of Tenant’s use of the Premises for other than normal and customary business office operations. Tenant shall, at Tenant’s own expense, pursuant to the terms of this Lease, including without limitation, Section 5.3 and Article 8 hereof, but subject to Landlord’s obligations in this Article 7 and to Articles 10, 11 and 13, keep the Premises, including all improvements, fixtures and furnishings therein, in good order, repair and condition at all times during the Lease Term. In addition, subject to Articles 10, 11 and 13 Tenant shall, at Tenant’s own expense, but under the

 

47


supervision and subject to the prior approval of Landlord, and within any reasonable period of time specified by Landlord, pursuant to the terms of this Lease, promptly and adequately repair all damage to the Premises and replace or repair all damaged, broken, or worn fixtures and appurtenances, except for damage caused by ordinary wear and tear or beyond the reasonable control of Tenant; provided however, that if Tenant fails to make such repairs, within applicable notice and cure periods Landlord may, but need not, make such repairs and replacements, and Tenant shall pay Landlord the cost thereof, including a percentage of the cost thereof (to be uniformly established for the Building and/or the Property) sufficient to reimburse Landlord for all overhead, general conditions, fees and other costs or expenses arising from Landlord’s involvement with such repairs and replacements forthwith upon being billed for same. Landlord may, but shall not be required to, enter the Premises at all reasonable times on the terms set forth in Section 27.1 to make such repairs, alterations, improvements or additions to the Premises or to the Property or to any equipment located in the Property as Landlord shall desire or deem necessary or as Landlord may be required to do by governmental or quasi-governmental authority or court order or decree. Landlord shall use commercially reasonable efforts to complete any required repairs in a manner which does not materially, adversely affect Tenant’s use of or access to the Premises. Tenant hereby waives any and all rights under and benefits of subsection 1 of Section 1932 and Sections 1941 and 1942 of the California Civil Code or under any similar law, statute, or ordinance now or hereafter in effect.

ARTICLE 8

ADDITIONS AND ALTERATIONS

8.1 Alterations. Tenant may not make any improvements, alterations, additions or changes to the Premises or any mechanical, plumbing or HVAC facilities or systems pertaining to the Premises (collectively, the “Alterations”) without first procuring the prior written consent of Landlord to such Alterations, which consent shall be requested by Tenant not less than ten (10) business days prior to the commencement thereof, and which consent shall not be unreasonably withheld by Landlord, provided it shall be deemed reasonable for Landlord to withhold its consent to any Alteration which may violate the CAP Process described in Section 5.3 above, or may adversely affect the structural portions or the systems or equipment of the Building, or has a material effect on the exterior appearance of the Building when the Building is viewed in its entirety from the street of from a neighboring building. Notwithstanding the foregoing, Tenant shall be permitted to make Alterations without Landlord’s prior consent and without prior notice to Landlord (subject to the terms of Article 9, below), to the extent that such Alterations cost less than $10,000.00 for a particular job or work and are strictly cosmetic (such as painting or carpeting). Notwithstanding the foregoing, Tenant shall be permitted to make Alterations following three (3) business days’ prior written notice to Landlord, but without Landlord’s prior consent, to the extent that such Alterations (i) do not adversely affect the Building Structure, Building Systems or equipment, (ii) does not have a material effect on the exterior appearance of the Building when the Building is viewed in its entirety from the street of from a neighboring building, (iii) cost more than $10,000.00 but less than $100,000.00 for a particular job of work, and (iv) would not require Tenant to obtain Landlord’s consent pursuant to the terms and conditions of Section 5.3 of this Lease. The construction of the initial improvements to the Premises shall be governed by the terms of the Tenant Work Letter and not the terms of this Article 8. Tenant’s trade fixtures, furniture, equipment and other personal

 

48


property installed in the Premises (“Tenant’s Property”) shall at all times be and remain Tenant’s property. For the avoidance of doubt, the items listed on Exhibit N shall be considered Tenant’s Property. Except for Alterations which cannot be removed without structural injury to the Premises or the Building, at any time Tenant may remove Tenant’s Property from the Premises, provided that Tenant repairs all damage caused by such removal and returns the affected portion of the Premises to the condition that existed prior to the installation of Tenant’s Property.

8.2 Manner of Construction. Landlord may impose, as a condition of its consent to any and all Alterations or repairs of the Premises or about the Premises, such requirements as Landlord in its reasonable discretion may deem desirable, including, but not limited to, the requirement that Tenant utilize for such purposes only contractors, subcontractors, materials, mechanics and materialmen reasonably approved by Landlord, the requirement that upon Landlord’s request, Tenant shall, at Tenant’s expense, given at the time Landlord approves such Alterations remove such Alterations upon the expiration or any early termination of the Lease Term. Tenant shall construct such Alterations and perform such repairs in a good and workmanlike manner, in conformance with any and all applicable federal, state, county or municipal laws, rules and regulations and pursuant to a valid building permit, issued by the City in which the Building is located, all in conformance with Landlord’s construction rules and regulations. In the event Tenant performs any Alterations in the Premises which require or give rise to governmentally required changes to the Base Building, then Landlord shall, at Tenant’s expense, make such changes to the Base Building. The “Base Building” shall include the structural portions of the Building, the non-tenant portions of the Property, including common restrooms and common elevators lobbies and the systems and equipment located in the internal core of the Building and the Common Areas and the portions of the base building systems within the Premises (such as the main loop of the sprinkler system and the main HVAC trunk/loop) and all emergency evacuation stairways. In performing the work of any such Alterations, Tenant shall have the work performed in such manner so as not to obstruct access to the Property or any portion thereof, by any other tenant of the Property, and so as not to obstruct the business of Landlord or other tenants in the Property. In addition, any Alteration that requires the use of Building risers, raceways, shafts and/or conduits, shall be subject to Landlord’s reasonable rules, regulations, and restrictions, including the requirement that any cabling vender must be reasonably approved by Landlord, and that the amount and location of any such cabling must be reasonably approved by Landlord. All subcontractors, laborers, materialmen, and suppliers used or selected by Tenant shall be reasonably approved by Landlord. In addition to Tenant’s obligations under Article 9 of this Lease, upon completion of any Alterations requiring Landlord’s consent, Tenant agrees to cause a Notice of Completion to be recorded in the office of the Recorder of the County in which the Building is located in accordance with Section 3093 of the Civil Code of the State of California or any successor statute, and Tenant shall deliver to the Property management office one (1) reproducible hard copy and electronic copies (in both CAD and PDF format) of the “as built” drawings of the Alterations as well as all permits, approvals and other documents issued by any governmental agency in connection with the Alterations.

8.3 Payment for Improvements. If payment is made directly to contractors, Tenant shall comply with Landlord’s requirements for final lien releases and waivers in connection with Tenant’s payment for work to contractors. If Tenant orders any work directly from Landlord, Tenant shall pay to Landlord its actual costs and expenses arising from Landlord’s involvement

 

49


with such work. For purposes of determining the cost of an Alteration, work done in phases or stages shall be considered part of the same Alteration, and any Alteration shall be deemed to include all trades and materials involved in accomplishing a particular result.

8.4 Construction Insurance. In addition to the requirements of Article 10 of this Lease, in the event that Tenant makes any Alterations, prior to the commencement of such Alterations, Tenant shall provide Landlord with evidence that Tenant carries “Builder’s All Risk” insurance in an amount reasonably approved by Landlord covering the construction of such Alterations, and such other insurance as Landlord may require, it being understood and agreed that all of such Alterations shall be insured by Tenant pursuant to Article 10 of this Lease immediately upon completion thereof. In addition, Landlord may, to the extent such action is consistent with the actions of the landlords of the Comparable Buildings in connection with a similar alteration being performed by a tenant of comparable financial condition and credit history to the then existing financial condition and credit history of Tenant, require Tenant to obtain a lien and completion bond or some alternate form of security satisfactory to Landlord in an amount sufficient to ensure the lien-free completion of such Alterations and naming Landlord as co-obligee.

8.5 Landlord’s Property. All Alterations, improvements, fixtures, and/or appurtenances which may be installed or placed in or about the Premises, from time to time, shall be at the sole cost of Tenant and shall be and become the property of Landlord, except that Tenant may remove any Alterations, improvements, fixtures and/or equipment which Tenant can substantiate to Landlord have not been paid for with any Tenant improvement allowance funds provided to Tenant by Landlord, provided Tenant repairs any damage to the Premises and Building caused by such removal and returns the affected portion of the Premises to the condition that existed prior to the installation of such Alterations. Furthermore, Landlord may, by written notice to Tenant prior to the end of the Lease Term, or given following any earlier termination of this Lease, require Tenant, at Tenant’s expense, to remove any Alterations or improvements in the Premises, and to repair any damage to the Premises and Building caused by such removal and returns the affected portion of the Premises to the condition that existed prior to the installation of such Alterations; provided; however, that notwithstanding the foregoing, upon request by Tenant at the time of Tenant’s request for Landlord’s consent to any Alteration or improvement, Landlord shall notify Tenant whether the applicable Alteration or improvement will be required to be removed pursuant to the terms of this Section 8.5. Notwithstanding anything to the contrary in this Lease, Tenant shall not be required to remove any Tenant Improvements or Alterations which are normal and customary business office improvements for the South of Market (“SOMA”) portion of the financial district area of San Francisco, California; provided, however, in any event Landlord may require Tenant to remove, all (i) rolling files and structural supports, (ii) built-in or high-density file systems, (iii) any supplemental HVAC system installed by Tenant, (iv) any improvements which affect the Building Structure, including, without limitation, any stairwells, internal staircases or vaults, and any improvements which affect the Building Systems, including, without limitation, any cooking kitchens (i.e., with gas ovens/stoves) other than in the 9th Floor Premises, any fitness or exercise facility, showers, or core drills, (v) any security or information technology systems installed by or on behalf of Tenant in the Premises, including, without limitation, any data center, (vi) any Additional Bicycle Storage installed by Tenant or on behalf of Tenant, (vii) any Generator installed by Tenant or on behalf of Tenant, and (viii) any “Communications Equipment” (as that term is

 

50


defined below) installed by or on behalf of Tenant. If Tenant fails to complete such removal and/or to repair any damage caused by the removal of any Alterations or improvements in the Premises, and return the affected portion of the Premises to the required condition, Landlord may do so and may charge the cost thereof to Tenant. Tenant hereby protects, defends, indemnifies and holds Landlord harmless from any liability, cost, obligation, expense or claim of lien in any manner relating to the installation, placement, removal or financing of any such Alterations, improvements, fixtures and/or equipment in, on or about the Premises, except to the extent due to Landlord’s negligence, willful misconduct or violation of this Lease, which obligations of Tenant shall survive the expiration or earlier termination of this Lease. Except as set forth in this Section 8.5, Tenant shall not be required to restore any improvements constructed pursuant to the Tenant Work Letter.

ARTICLE 9

COVENANT AGAINST LIENS

Tenant shall keep the Property, Building and Premises free from any liens or encumbrances arising out of the work performed, materials furnished or obligations incurred by or on behalf of Tenant, and shall protect, defend, indemnify and hold Landlord harmless from and against any claims, liabilities, judgments or costs (including, without limitation, reasonable attorneys’ fees and costs) arising out of same or in connection therewith. Tenant shall give Landlord notice of any Alterations requiring Landlord’s consent at least ten (10) business days prior to the commencement of any such work on the Premises (or such additional time as may be necessary under applicable laws) to afford Landlord the opportunity of posting and recording appropriate notices of non-responsibility; provided, however, notwithstanding anything to the contrary set forth in Section 8.1 above or this Article 9, if Landlord’s title to the Property, Building or Premises is subjected to any lien or encumbrance in connection with any Alteration which Landlord did not receive prior notice of from Tenant before such work was commenced, Tenant shall thereafter, with respect to Alterations that Tenant is not obligated to provide Landlord prior notice pursuant to the terms of Section 8.1, above, be required to give Landlord at least three (3) business days notice prior to the commencement of any such Alterations. Tenant shall remove any such lien or encumbrance by bond or otherwise within five (5) days after notice by Landlord, and if Tenant shall fail to do so, Landlord may pay the amount necessary to remove such lien or encumbrance, without being responsible for investigating the validity thereof. The amount so paid shall be deemed Additional Rent under this Lease payable upon demand, without limitation as to other remedies available to Landlord under this Lease. Nothing contained in this Lease shall authorize Tenant to do any act which shall subject Landlord’s title to the Property, Building or Premises to any liens or encumbrances whether claimed by operation of law or express or implied contract.

ARTICLE 10

INSURANCE

10.1 Indemnification and Waiver. Except to the extent due to the negligence or willful misconduct of, or violation of this Lease by Landlord Parties, Tenant hereby assumes all risk of damage to property or injury to persons in, upon or about the Premises from any cause

 

51


whatsoever and agrees that Landlord, its partners, subpartners and their respective officers, agents, servants, employees, and independent contractors (collectively, “Landlord Parties”) shall not be liable for, and are hereby released from any responsibility for, any damage either to person or property or resulting from the loss of use thereof, which damage is sustained by Tenant or by other persons claiming through Tenant. Tenant shall indemnify, defend, protect, and hold harmless the Landlord Parties from any and all loss, cost, damage, expense and liability (including without limitation court costs and reasonable attorneys’ fees) due to third party claims in connection with or arising from (i) any cause in, on or about the Premises, (ii) any negligence or willful misconduct of Tenant or of any person claiming by, through or under Tenant, or of the contractors, agents, servants, employees, invitees, guests or licensees of Tenant or any such person, in, on or about the Property, or (iii) any breach of the terms of this Lease, either prior to, during, or after the expiration of the Lease Term, provided that the terms of the foregoing indemnity shall not apply to the negligence or willful misconduct of Landlord or Landlord’s violation of this Lease. Should Landlord be named as a defendant in any suit brought against Tenant in which Tenant’s indemnity obligations to Landlord are applicable, Tenant shall pay to Landlord its costs and expenses incurred in such suit, including without limitation, its actual professional fees such as appraisers’, accountants’ and attorneys’ fees. Further, Tenant’s agreement to indemnify Landlord pursuant to this Section 10.1 is not intended and shall not relieve any insurance carrier of its obligations under policies required to be carried by Tenant pursuant to the provisions of this Lease, to the extent such policies cover the matters subject to Tenant’s indemnification obligations; nor shall they supersede any inconsistent agreement of the parties set forth in any other provision of this Lease. Landlord shall indemnify, defend, protect, and hold harmless Tenant, its partners, and their respective officers, agents, servants, employees, and independent contractors (collectively, “Tenant Parties”) from any and all loss, cost, damage, expense and liability (including without limitation reasonable attorneys’ fees) arising from the gross negligence or willful misconduct of Landlord in, on or about the Project, except to the extent caused by the negligence or willful misconduct of the Tenant Parties. Further, Tenant’s agreement to indemnify Landlord and Landlord’s agreement to indemnify Tenant pursuant to this Section 10.1 are not intended to and shall not relieve any insurance carrier of its obligations under policies required to be carried pursuant to the provisions of this Lease, to the extent such policies cover, or if carried, would have covered the matters, subject to the parties’ respective indemnification obligations; nor shall they supersede any inconsistent agreement of the parties set forth in any other provision of this Lease. The provisions of this Section 10.1 shall survive the expiration or sooner termination of this Lease with respect to any claims or liability arising in connection with any event occurring prior to such expiration or termination.

10.2 Tenant’s Compliance With Landlord’s Fire and Casualty Insurance. Tenant shall, at Tenant’s expense, comply with all insurance company requirements pertaining to the use of the Premises. If Tenant’s conduct or use of the Premises for purposes other than the uses permitted hereunder causes any increase in the premium for such insurance policies then Tenant shall reimburse Landlord for any such increase. Tenant, at Tenant’s expense, shall comply with all rules, orders, regulations or requirements of the American Insurance Association (formerly the National Board of Fire Underwriters) and with any similar body.

10.3 Tenant’s Insurance. Tenant shall maintain the following coverages in the following amounts.

 

52


10.3.1 Commercial General Liability Insurance in broad form covering the insured against claims of bodily injury, personal injury and property damage (including loss of use thereof) arising out of Tenant’s operations, and including contractual liability coverage insuring the performance by Tenant of its obligations under this Lease including the indemnity agreements set forth in Section 10.1 of this Lease, for limits of liability not less than (which may be satisfied by a combination of general liability and excess/umbrella policies):

 

Bodily Injury and Property $5,000,000 each occurrence
Damage Liability $5,000,000 annual aggregate
Personal Injury Liability

$5,000,000 each occurrence

$5,000,000 annual aggregate (0% Insured’s participation)

10.3.2 Physical Damage Insurance covering (i) all office furniture, business and trade fixtures, office equipment, free-standing cabinet work, movable partitions, merchandise and all other items of Tenant’s property on the Premises installed by, for, or at the expense of Tenant, (ii) the “Tenant Improvements,” as that term is defined in Section 2.1 of the Tenant Work Letter, and any other improvements which exist in the Premises as of the Lease Commencement Date (excluding the Base Building) (the “Original Improvements”), and (iii) all other improvements, alterations and additions to the Premises. Such insurance shall be written on an “all risks” of physical loss or damage basis, for the full replacement cost value (subject to reasonable deductible amounts) new without deduction for depreciation of the covered items and in amounts that meet any co-insurance clauses of the policies of insurance and shall include coverage for damage or other loss caused by fire or other peril including, but not limited to, vandalism and malicious mischief, theft, water damage of any type (excluding flood insurance), including sprinkler leakage, bursting or stoppage of pipes, and explosion, and providing business interruption coverage for a period of one (1) year.

10.3.3 Worker’s Compensation and Employer’s Liability or other similar insurance pursuant to all applicable state and local statutes and regulations.

10.3.4 Business Income Interruption for one (1) year plus Extra Expense insurance in such amounts as will reimburse Tenant for actual direct or indirect loss of earnings attributable to the risks outlined in Section 10.3.2 above.

10.4 Form of Policies. The minimum limits of policies of insurance required of Tenant under this Lease shall in no event limit the liability of Tenant under this Lease. Such insurance shall (i) name Landlord, and any lender, property manager, agent or affiliate the Landlord reasonably so specifies, as an additional insured on all liability insurance (except employer’s liability), including Landlord’s managing agent, if any; (ii) specifically cover the liability assumed by Tenant under this Lease, including, but not limited to, Tenant’s obligations under Section 10.1 of this Lease; (iii) be issued by an insurance company having a rating of not less than A-VII in Best’s Insurance Guide or which is otherwise acceptable to Landlord and licensed to do business in the State of California; (iv) be primary insurance as to all claims thereunder and provide that any insurance carried by Landlord is excess and is non-contributing with any insurance requirement of Tenant; and (v) be in form and content reasonably acceptable

 

53


to Landlord. Tenant shall deliver certificates of such policies to Landlord on or before the Lease Commencement Date and at least ten (10) days before the expiration dates thereof. Tenant shall immediately notify Landlord in the event any policy of insurance carried by Tenant is cancelled or the coverage materially changed. In the event Tenant shall fail to procure such insurance, or to deliver such certificate, Landlord may, at its option, after providing Tenant with five (5) business days’ notice, procure such policies for the account of Tenant, and the cost thereof shall be paid to Landlord within five (5) days after delivery to Tenant of bills therefor.

10.5 Subrogation. Landlord and Tenant intend that their respective property loss risks shall be borne by reasonable insurance carriers, and Landlord and Tenant hereby agree to look solely to, and seek recovery only from, their respective property insurance carriers in the event of a property loss to the extent such loss is due to a risk that is covered by the property insurance actually carried by such party or would have been covered had such party carried the coverage required of such party hereunder. Notwithstanding anything to the contrary in this Lease, the parties each hereby waive all rights and claims against each other and their agents, employees, contractors and subtenants for such losses, and waive all rights of subrogation of their respective insurers, provided such waiver of subrogation shall not affect the right to the insured to recover thereunder. The parties agree that their respective insurance policies are now, or shall be, endorsed such that the waiver of subrogation shall not affect the right of the insured to recover thereunder. All of Landlord’s and Tenant’s repair and indemnity obligations under this Lease shall be subject to the waiver contained in this Section 10.5.

10.6 Additional Insurance Obligations. Tenant shall carry and maintain during the entire Lease Term, at Tenant’s sole cost and expense, increased amounts of the insurance required to be carried by Tenant pursuant to this Article 10 and such other reasonable types of insurance coverage and in such reasonable amounts covering the Premises and Tenant’s operations therein, as may be reasonably requested by Landlord; provided, however, that in no event shall such new or increased amounts or types of insurance exceed that required of comparable tenants by landlords of the Comparable Buildings.

10.7 Landlord’s Insurance. Tenant shall maintain the following coverages in the following amounts.

10.7.1 Commercial General Liability Insurance as described in Section 10.3.1 above, but with respect to Landlord’s operations.

10.7.2 Physical Damage Insurance covering the Base Building and the Common Areas, and all Landlord’s personal property in the Building. Such insurance shall be written on an “all risks” of physical loss or damage basis, for the full replacement cost value (subject to reasonable deductible amounts) new.

ARTICLE 11

DAMAGE AND DESTRUCTION

11.1 Repair of Damage to Premises by Landlord. Tenant shall promptly notify Landlord of any damage to the Premises resulting from fire or any other casualty. If the

 

54


Premises or any Common Areas serving or providing access to the Premises shall be damaged by fire or other casualty, Landlord shall promptly and diligently, subject to reasonable delays for insurance adjustment or other matters beyond Landlord’s reasonable control, and subject to all other terms of this Article 11, restore the Building and such Common Areas. Such restoration shall be to substantially the same condition of the Building and the Common Areas prior to the casualty, except for modifications required by zoning and building codes and other laws or by any other modifications to the Common Areas deemed desirable by Landlord, provided that access to the Premises and any common restrooms serving the Premises shall not be materially impaired. Upon the occurrence of any damage to the Premises, Tenant shall assign to Landlord (or to any party designated by Landlord) all insurance proceeds payable to Tenant under Tenant’s insurance required under items (ii) and (iii) of Section 10.4 of this Lease which pertain to work to be performed by Landlord, and Landlord shall repair any injury or damage to the Tenant Improvements, Alterations and the Original Improvements installed in the Premises and shall return such Tenant Improvements, Alterations and Original Improvements to their original condition; provided that if the cost of such repair by Landlord exceeds the amount of insurance proceeds received by Landlord from Tenant’s insurance carrier, as assigned by Tenant, the excess cost of such repairs shall be paid by Tenant to Landlord. Prior to the commencement of construction, Landlord shall submit to Tenant, for Tenant’s review and approval, all plans, specifications and working drawings relating to the repair of such damage and the restoration of such Tenant Improvements, Alterations and Original Improvements to their original condition, and Landlord shall select the contractors to perform such improvement work. Landlord shall not be liable for any inconvenience or annoyance to Tenant or its visitors, or injury to Tenant’s business resulting in any way from such damage or the repair thereof; provided however, that if such fire or other casualty shall have damaged the Premises or Common Areas necessary to Tenant’s occupancy, Landlord shall allow Tenant a proportionate abatement of Rent, during the time and to the extent the Premises are unfit for occupancy for the purposes permitted under this Lease, and not occupied by Tenant as a result thereof, in the proportion that the rentable area of the portion of the Premises that Tenant is unable to use, and does not use, bears to the total rentable area of the Premises; provided, however, in the event that Tenant is unable to use, and does not use, a portion of the Premises, and as result thereof it is commercially impractical for Tenant to use all or a portion of the remaining Premises (i.e., the portion of the Premises that Tenant is actually able to use), and if Tenant does not conduct its business from the remaining Premises or portion thereof, then for such time during which it is impractical for Tenant to conduct its business therein, the Rent shall also be abated for the remaining Premises (or portion thereof) that Tenant does not use. If, however, Tenant reoccupies any portion of the Premises during such period, the Rent allocable to such reoccupied portion, based on the proportion that the rentable area of such reoccupied portion of the Premises bears to the total rentable area of the Premises, shall be payable by Tenant from the date Tenant reoccupies such portion of the Premises. If the damage or destruction is due to the negligence or willful misconduct of Tenant or any of its agents, employees or contractors, then Tenant shall be responsible for any reasonable, applicable insurance deductible (which shall be payable to Landlord upon demand), up to Fifty Thousand Dollars ($50,000.00), and such deductible amount shall not be included in Operating Expenses.

11.2 Landlord’s Option to Repair. Notwithstanding the terms of Section 11.1 of this Lease, Landlord may elect not to rebuild and/or restore the Premises, Building and/or Property, and instead terminate this Lease, by notifying Tenant in writing of such termination within sixty

 

55


(60) days after the date of discovery of the damage, such notice to include a termination date giving Tenant sixty (60) days to vacate the Premises, but Landlord may so elect only if the Building or Property shall be damaged by fire or other casualty or cause, whether or not the Premises are affected, provided that Landlord terminates the leases of all tenants of the Building whose premises are similarly damaged by the casualty (to the extent Landlord retains such right pursuant to the terms of the applicable tenants’ leases), and one or more of the following conditions is present: (i) in Landlord’s reasonable judgment, repairs cannot reasonably be completed within two hundred seventy (270) days after the date of discovery of the damage (when such repairs are made without the payment of overtime or other premiums); (ii) the holder of any mortgage on the Building or Property or ground lessor with respect to the Building or Property shall require that more than Five Million Dollars ($5,000,000) of the insurance proceeds be used to retire the mortgage debt, or shall terminate the ground lease, as the case may be; (iii) at least Five Million Dollars ($5,000,000.00) of the damage is not fully covered by Landlord’s insurance policies; or (iv) the damage occurs during the last twelve (12) months of the Lease Term; provided, however, that if such fire or other casualty shall have damaged the Premises or a portion thereof or Common Areas necessary to Tenant’s occupancy and as a result of such damage all or a portion of the Premises are unfit for occupancy, and provided that Landlord does not elect to terminate this Lease pursuant to Landlord’s termination right as provided above, and either (a) the repairs cannot, in the reasonable opinion of Landlord’s contractor, be completed within two hundred seventy (270) days after the casualty (three hundred sixty (360) days if the damage was caused by the negligence or willful misconduct of Tenant, its agents, employees or contractors), or (b) the damage occurs during the last twelve months of the Lease Term and will reasonably require in excess of ninety (90) days to repair, Tenant may elect, no earlier than sixty (60) days after the date of the damage and not later than ninety (90) days after the date of such damage, to terminate this Lease by written notice to Landlord effective as of the date specified in the notice, which date shall not be less than thirty (30) days nor more than sixty (60) days after the date such notice is given by Tenant. In addition, if such restoration is not substantially complete on or before the later of (i) the date that occurs twelve (12) months after the date of discovery of the damage, and (ii) the date that occurs ninety (90) days after the expiration of the estimated period of time to substantially complete such restoration, as reasonably determined by Landlord’s contractor (the “Outside Restoration Date”), then Tenant shall have the additional right during the first five (5) business days of each calendar month following the Outside Restoration Date until such repairs are complete, to terminate this Lease by delivery of written notice to Landlord (the “Damage Termination Notice”), which termination shall be effective on a date specified by Tenant in such Damage Termination Notice (the “Damage Termination Date”), which Damage Termination Date shall not be less than ten (10) business days following the date such Damage Termination Notice was delivered to Landlord. Notwithstanding anything to the contrary herein, Landlord may not terminate this Lease due to a casualty if Landlord actually intends to restore the damage. The dates set forth in this Section 11.2 shall not be extended by events of Force Majeure.

11.3 Waiver of Statutory Provisions. The provisions of this Lease, including this Article 11, constitute an express agreement between Landlord and Tenant with respect to any and all damage to, or destruction of, all or any part of the Premises, the Building or the Property, and any statute or regulation of the State of California, including, without limitation, Sections 1932(2) and 1933(4) of the California Civil Code, with respect to any rights or obligations concerning damage or destruction in the absence of an express agreement between

 

56


the parties, and any other statute or regulation, now or hereafter in effect, shall have no application to this Lease or any damage or destruction to all or any part of the Premises, the Building or the Property.

ARTICLE 12

NONWAIVER

No provision of this Lease shall be deemed waived by either party hereto unless expressly waived in a writing signed thereby. The waiver by either party hereto of any breach of any term, covenant or condition herein contained shall not be deemed to be a waiver of any subsequent breach of same or any other term, covenant or condition herein contained. The subsequent acceptance of Rent hereunder by Landlord shall not be deemed to be a waiver of any preceding breach by Tenant of any term, covenant or condition of this Lease, other than the failure of Tenant to pay the particular Rent so accepted, regardless of Landlord’s knowledge of such preceding breach at the time of acceptance of such Rent. No acceptance of a lesser amount than the Rent herein stipulated shall be deemed a waiver of Landlord’s right to receive the full amount due, nor shall any endorsement or statement on any check or payment or any letter accompanying such check or payment be deemed an accord and satisfaction, and Landlord may accept such check or payment without prejudice to Landlord’s right to recover the full amount due. No receipt of monies by Landlord from Tenant after the termination of this Lease shall in any way alter the length of the Lease Term or of Tenant’s right of possession hereunder, or after the giving of any notice shall reinstate, continue or extend the Lease Term or affect any notice given Tenant prior to the receipt of such monies, it being agreed that after the service of notice or the commencement of a suit, or after final judgment for possession of the Premises, Landlord may receive and collect any Rent due, and the payment of said Rent shall not waive or affect said notice, suit or judgment. No payment of Rent by Tenant after a breach by Landlord shall be deemed a waiver of any breach by Landlord.

ARTICLE 13

CONDEMNATION

If the whole or any material part of the Premises or Building shall be taken by power of eminent domain or condemned by any competent authority for any public or quasi-public use or purpose, or if any adjacent property or street shall be so taken or condemned, or reconfigured or vacated by such authority in such manner as to require the use, reconstruction or remodeling of any material part of the Premises or Building, or if Landlord shall grant a deed or other instrument in lieu of such taking by eminent domain or condemnation, Landlord shall have the option to terminate this Lease effective as of the date possession is required to be surrendered to the authority. If more than twenty percent (20%) of the rentable square feet of the Premises is taken, or if access to the Premises is substantially impaired, in each case for a period in excess of one hundred eighty (180) days, Tenant shall have the option to terminate this Lease effective as of the date possession is required to be surrendered to the authority. Tenant shall not because of such taking assert any claim against Landlord or the authority for any compensation because of such taking and Landlord shall be entitled to the entire award or payment in connection therewith, except that Tenant shall have the right to file any separate claim available to Tenant

 

57


for any taking of Tenant’s personal property and fixtures belonging to Tenant and removable by Tenant upon expiration of the Lease Term pursuant to the terms of this Lease, and for moving expenses, relocation costs, and the unamortized value of any improvements to the Premises made at Tenant’s expense, so long as such claim is payable separately to Tenant. All Rent shall be apportioned as of the date of such termination. If any part of the Premises shall be taken, and this Lease shall not be so terminated, the Rent shall be abated to the extent Tenant’s use of the Premises for its intended purpose has been diminished, as reasonably agreed by Landlord and Tenant. Tenant hereby waives any and all rights it might otherwise have pursuant to Section 1265.130 of The California Code of Civil Procedure. Notwithstanding anything to the contrary contained in this Article 13, in the event of a temporary taking of all or any portion of the Premises for a period of one hundred and eighty (180) days or less, then this Lease shall not terminate but the Base Rent and the Additional Rent shall be abated for the period of such taking in proportion to the extent Tenant’s use of the Premises for its intended purpose has been diminished, as reasonably agreed by Landlord and Tenant. Landlord shall be entitled to receive the entire award made in connection with any such temporary taking.

ARTICLE 14

ASSIGNMENT AND SUBLETTING

14.1 Transfers. Tenant shall not, without the prior written consent of Landlord, assign, mortgage, pledge, hypothecate, encumber, or permit any lien to attach to, or otherwise transfer, this Lease or any interest hereunder, permit any assignment, or other transfer of this Lease or any interest hereunder by operation of law, sublet the Premises or any part thereof, or enter into any license or concession agreements or otherwise permit the occupancy or use of the Premises or any part thereof by any persons other than Tenant and its employees and contractors (all of the foregoing are hereinafter sometimes referred to collectively as “Transfers” and any person to whom any Transfer is made or sought to be made is hereinafter sometimes referred to as a “Transferee”). If Tenant desires Landlord’s consent to any Transfer, Tenant shall notify Landlord in writing, which notice (the “Transfer Notice”) shall include (i) the proposed effective date of the Transfer, which shall not be less than ten (10) business days nor more than one hundred eighty (180) days after the date of delivery of the Transfer Notice, (ii) a description of the portion of the Premises to be transferred (the “Subject Space”), (iii) all of the terms of the proposed Transfer and the consideration therefor, including calculation of the “Transfer Premium”, as that term is defined in Section 14.3 below, in connection with such Transfer, the name and address of the proposed Transferee, and a copy of all existing executed and/or proposed documentation pertaining to the proposed Transfer, including all existing operative documents to be executed to evidence such Transfer or the agreements incidental or related to such Transfer, and (iv) current financial statements of the proposed Transferee certified by an officer, partner or owner thereof, business credit of the proposed Transferee and any other information reasonably required by Landlord which will enable Landlord to determine the financial responsibility, character, and reputation of the proposed Transferee, nature of such Transferee’s business and proposed use of the Subject Space. Any Transfer made without Landlord’s prior written consent shall, at Landlord’s option, be null, void and of no effect, and shall, at Landlord’s option, constitute a default by Tenant under this Lease after the expiration of applicable notice and cure periods. Whether or not Landlord consents to any proposed Transfer, Tenant shall pay Landlord’s review and processing fees, as well as any reasonable professional

 

58


fees (including, without limitation, attorneys’, accountants’, architects’, engineers’ and consultants’ fees) incurred by Landlord, not to exceed $2,500.00 for a Transfer in the ordinary course of business, within thirty (30) days after written request by Landlord.

14.2 Landlord’s Consent. Landlord shall not unreasonably withhold or condition its consent to any proposed Transfer of the Subject Space to the Transferee on the terms specified in the Transfer Notice and shall grant or withhold such consent within ten (10) business days following the date upon which Landlord receives a “complete” Transfer notice from Tenant (i.e., a Transfer Notice that includes all documents and information required pursuant to Section 14.1 of this Lease, above). Without limitation as to other reasonable grounds for withholding consent, the parties hereby agree that it shall be reasonable under this Lease and under any applicable law for Landlord to withhold consent to any proposed Transfer where one or more of the following apply:

14.2.1 The Transferee is of a character or reputation or engaged in a business which is not consistent with the quality of the Building or the Property;

14.2.2 The Transferee intends to use the Subject Space for purposes which are not permitted under this Lease;

14.2.3 The Transferee is either a governmental agency or instrumentality thereof;

14.2.4 The Transferee is not a party of reasonable financial worth and/or financial stability in light of the responsibilities to be undertaken in connection with the Transfer on the date consent is requested; or

14.2.5 Either the proposed Transferee, or any person or entity which directly or indirectly, controls, is controlled by, or is under common control with, the proposed Transferee, (i) is negotiating with Landlord to lease space in the Property at such time, or (ii) has actively negotiated with Landlord during the five (5)-month period immediately preceding the Transfer Notice.

If Landlord consents to any Transfer pursuant to the terms of this Section 14.2 (and does not exercise any recapture rights Landlord may have under Section 14.4 of this Lease), Tenant may within six (6) months after Landlord’s consent, but not later than the expiration of said six-month period, enter into such Transfer of the Premises or portion thereof, upon substantially the same terms and conditions as are set forth in the Transfer Notice furnished by Tenant to Landlord pursuant to Section 14.1 of this Lease, provided that if there are any changes in the terms and conditions from those specified in the Transfer Notice (i) such that Landlord would initially have been entitled to refuse its consent to such Transfer under this Section 14.2, or (ii) which would cause the proposed Transfer to be more favorable to the Transferee than the terms set forth in Tenant’s original Transfer Notice, Tenant shall again submit the Transfer to Landlord for its approval and other action under this Article 14 (including Landlord’s right of recapture, if any, under Section 14.4 of this Lease). Notwithstanding anything to the contrary in this Lease, if Tenant or any proposed Transferee claims that Landlord has unreasonably withheld or delayed its consent under Section 14.2 or otherwise has breached or acted unreasonably under this Article 14, their sole remedies shall be a suit for contract damages (other than damages for

 

59


injury to, or interference with, Tenant’s business including, without limitation, loss of profits, however occurring) or a declaratory judgment and an injunction for the relief sought without any monetary damages, and Tenant hereby waives the provisions of Section 1995.310 of the California Civil Code, or any successor statute, and all other remedies, including, without limitation, any right at law or equity to terminate this Lease, on its own behalf and, to the extent permitted under all applicable laws, on behalf of the proposed Transferee. Tenant shall indemnify, defend and hold harmless Landlord from any and all liability, losses, claims, damages, costs, expenses, causes of action and proceedings involving any third party or parties (including without limitation Tenant’s proposed subtenant or assignee) who claim they were damaged by Landlord’s wrongful withholding or conditioning of Landlord’s consent.

14.3 Transfer Premium. If Landlord consents to a Transfer, as a condition thereto which the parties hereby agree is reasonable, Tenant shall pay to Landlord fifty percent (50%) of any “Transfer Premium,” as that term is defined in this Section 14.3, received by Tenant from such Transferee. “Transfer Premium” shall mean all rent, additional rent or other consideration payable by such Transferee in connection with the Transfer in excess of the Rent and Additional Rent payable by Tenant under this Lease during the term of the Transfer on a per rentable square foot basis if less than all of the Premises is transferred, after first deducting the reasonable expenses incurred by Tenant for (i) any changes, alterations and improvements to the Premises in connection with the Transfer, (ii) any free base rent reasonably provided to the Transferee (provided that such free rent shall be deducted only to the extent the same is included in the calculation of total consideration payable by such Transferee), (iii) any brokerage commissions and attorney’s fees in connection with the Transfer (collectively, “Tenant’s Subleasing Costs”). “Transfer Premium” shall also include, but not be limited to, key money, bonus money or other cash consideration paid by Transferee to Tenant in connection with such Transfer, and any payment in excess of fair market value for services rendered by Tenant to Transferee or for assets, fixtures, inventory, equipment, or furniture transferred by Tenant to Transferee in connection with such Transfer.

14.4 Landlord’s Option as to Subject Space. Notwithstanding anything to the contrary contained in this Article 14, Landlord shall have the option, by giving written notice to Tenant within ten (10) business days after receipt of any Transfer Notice, to recapture the Subject Space; provided that Landlord shall only be entitled to exercise such recapture right if (i) the size of the Subject Space exceeds sixty percent (60%) of the size of the Premises, and (ii) such proposed Transfer is for substantially all of the then remaining Lease Term (for purposes hereof, a sublease shall be deemed to be for substantially all of the then remainder of the Lease Term if, assuming all sublease renewal or extension rights are exercised, such sublease shall expire during the final nine (9) months of the Lease Term). Such recapture notice shall cancel and terminate this Lease with respect to the Subject Space as of the date stated in the Transfer Notice as the effective date of the proposed Transfer. In the event of a recapture by Landlord, if this Lease shall be canceled with respect to less than the entire Premises, the Rent reserved herein and the L-C Amount shall be prorated on the basis of the number of rentable square feet retained by Tenant in proportion to the number of rentable square feet contained in the Premises, and this Lease as so amended shall continue thereafter in full force and effect, and upon request of either party, the parties shall execute written confirmation of the same. However, if Landlord delivers a recapture notice to Tenant, Tenant may, within ten (10) days after Tenant’s receipt of such recapture notice, deliver written notice to Landlord indicating that

 

60


Tenant is rescinding its request for consent to the proposed Transfer, in which case such Transfer shall not be consummated and this Lease shall remain in full force and effect as to the portion of the Premises that was the subject of the Proposed Transfer. If Landlord declines, or fails to elect in a timely manner to recapture the Subject Space under this Section 14.4, then, provided Landlord has consented to the proposed Transfer, Tenant shall be entitled to proceed to transfer the Subject Space to the proposed Transferee, subject to provisions of this Article 14.

14.5 Effect of Transfer. If Landlord consents to a Transfer, (i) the terms and conditions of this Lease shall in no way be deemed to have been waived or modified, (ii) such consent shall not be deemed consent to any further Transfer by either Tenant or a Transferee, (iii) Tenant shall deliver to Landlord, promptly after execution, an original executed copy of all documentation pertaining to the Transfer in form reasonably acceptable to Landlord, (iv) Tenant shall furnish upon Landlord’s request a complete statement, certified by an independent certified public accountant, or Tenant’s chief financial officer, setting forth in detail the computation of any Transfer Premium Tenant has derived and shall derive from such Transfer, and (v) no Transfer relating to this Lease or agreement entered into with respect thereto, whether with or without Landlord’s consent, shall relieve Tenant or any guarantor of the Lease from any liability under this Lease, including, without limitation, in connection with the Subject Space. Landlord or its authorized representatives shall have the right at all reasonable times to audit the books, records and papers of Tenant relating to any Transfer, and shall have the right to make copies thereof. If the Transfer Premium respecting any Transfer shall be found understated, Tenant shall, within thirty (30) days after demand, pay the deficiency, and if understated by more than five percent (5%), Tenant shall pay Landlord’s costs of such audit.

14.6 Additional Transfers. For purposes of this Lease, the term “Transfer” shall also include if Tenant is a partnership, the withdrawal or change, voluntary, involuntary or by operation of law, of fifty percent (50%) or more of the partners, or transfer of fifty percent (50%) or more of partnership interests, within a twelve (12)-month period, or the dissolution of the partnership without immediate reconstitution thereof. A sale, issuance, or transfer of Tenant’s capital stock shall not be deemed an assignment, subletting or any other Transfer.

14.7 Occurrence of Default. Any sublease hereunder shall be subordinate and subject to the provisions of this Lease, and if this Lease shall be terminated during the term of any Transfer, Landlord shall have the right to: (i) treat such sublease as cancelled and repossess the Subject Space by any lawful means, or (ii) require that such sublessee attorn to and recognize Landlord as its landlord under any such Transfer. If Tenant shall be in default under this Lease beyond applicable notice and cure periods, Landlord is hereby irrevocably authorized to direct any Transferee to make all payments under or in connection with the Transfer directly to Landlord (which Landlord shall apply towards Tenant’s obligations under this Lease) until such default is cured. Such Transferee shall rely on any representation by Landlord that Tenant is in default hereunder beyond applicable notice and cure periods, without any need for confirmation thereof by Tenant. Upon any assignment, the assignee shall assume in writing all obligations and covenants of Tenant thereafter to be performed or observed under this Lease. No collection or acceptance of rent by Landlord from any Transferee shall be deemed a waiver of any provision of this Article 14 or the approval of any Transferee or a release of Tenant from any obligation under this Lease, whether theretofore or thereafter accruing. In no event shall Landlord’s enforcement of any provision of this Lease against any Transferee be deemed a

 

61


waiver of Landlord’s right to enforce any term of this Lease against Tenant or any other person. If Tenant’s obligations hereunder have been guaranteed, Landlord’s consent to any Transfer shall not be effective unless the guarantor also consents to such Transfer.

14.8 Deemed Consent Transfers. Notwithstanding anything to the contrary contained in this Lease, (A) an assignment or subletting of all or a portion of the Premises to an affiliate of Tenant (an entity which is controlled by, controls, or is under common control with, Tenant as of the date of this Lease), (B) an assignment of the Lease to an entity which acquires all or substantially all of the stock or assets of Tenant, or (C) an assignment of the Lease to an entity which is the resulting or surviving entity of a merger or consolidation of Tenant during the Lease Term, shall not be deemed a Transfer requiring Landlord’s consent under this Article 14 or triggering Landlord’s rights under Section 14.3 or 14.4 (any such assignee or sublessee described in items (A) through (C) of this Section 14.8 hereinafter referred to as a “Permitted Transferee”), provided that (i) Tenant notifies Landlord at least five (5) business days prior to the effective date of any such assignment or sublease and promptly supplies Landlord with any documents or information reasonably requested by Landlord regarding such transfer or transferee as set forth above, (ii) such assignment or sublease is not a subterfuge by Tenant to avoid its obligations under this Lease, and (iii) no assignment relating to this Lease, whether with or without Landlord’s consent, shall relieve Tenant from any liability under this Lease, and, in the event of an assignment of Tenant’s entire interest in this Lease, the liability of Tenant and such transferee shall be joint and several. An assignee of Tenant’s entire interest in this Lease who qualifies as a Permitted Transferee may also be referred to herein as a “Permitted Transferee Assignee.” “Control,” as used in this Section 14.8, shall mean the ownership, directly or indirectly, of at least fifty-one percent (51%) of the voting securities of, or possession of the right to vote, in the ordinary direction of its affairs, of at least fifty-one percent (51%) of the voting interest in, any person or entity.

14.9 Occupancy by Others. Furthermore, and notwithstanding any contrary provision of this Article 14, the Tenant shall have the right, without the receipt of Landlord’s consent and without payment to Landlord of the Transfer Premium, but on not less than five (5) business days prior written notice to Landlord, to permit the occupancy of up to ten percent (10%) of the entire Premises in the aggregate, to any individual(s) with an ongoing business relationship with Tenant (other than the dual occupancy of the Premises). Such occupancy pursuant to this Section 14.9 shall include the use of a corresponding interior support area and other portions of the Premises which shall be common to Tenant and the permitted occupants, on and subject to the following conditions: (i) each individual or entity shall be of a character and reputation consistent with the quality of the Building and the Project; (ii) no individual or entity shall occupy a separately demised portion of the Premises or which contains an entrance to such portion of the Premises other than the primary entrance to the Premises; (iii) the rent, if any, paid by such occupants shall not be greater than the rent allocable on a pro rata basis to the portion of the Premises occupied by such occupants; and (iv) such occupancy shall not be a subterfuge by Tenant to avoid its obligations under this Lease or the restrictions on Transfers pursuant to this Article 14. Any occupancy permitted under this Section 14.9 shall not be deemed a Transfer under this Article 14. Notwithstanding the foregoing, no such occupancy shall relieve Tenant from any liability under this Lease.

 

62


ARTICLE 15

SURRENDER OF PREMISES; OWNERSHIP AND

REMOVAL OF TRADE FIXTURES

15.1 Surrender of Premises. No act or thing done by Landlord or any agent or employee of Landlord during the Lease Term shall be deemed to constitute an acceptance by Landlord of a surrender of the Premises unless such intent is specifically acknowledged in writing by Landlord. The delivery of keys to the Premises to Landlord or any agent or employee of Landlord shall not constitute a surrender of the Premises or effect a termination of this Lease, whether or not the keys are thereafter retained by Landlord, and notwithstanding such delivery Tenant shall be entitled to the return of such keys at any reasonable time upon request until this Lease shall have been properly terminated. The voluntary or other surrender of this Lease by Tenant, whether accepted by Landlord or not, or a mutual termination hereof, shall not work a merger, and at the option of Landlord shall operate as an assignment to Landlord of all subleases or subtenancies affecting the Premises or terminate any or all such sublessees or subtenancies.

15.2 Removal of Tenant Property by Tenant. Upon the expiration of the Lease Term, or upon any earlier termination of this Lease, Tenant shall, subject to the provisions of this Article 15, quit and surrender possession of the Premises to Landlord in as good order and condition as when Tenant took possession and as thereafter improved by Landlord and/or Tenant, reasonable wear and tear, repairs which are specifically made the responsibility of Landlord hereunder, casualties, condemnation, Hazardous Substances (other than those released or emitted by Tenant) and Alterations and other improvements Tenant is permitted to surrender, excepted. Upon such expiration or termination, Tenant shall, without expense to Landlord, remove or cause to be removed from the Premises all debris and rubbish, and such items of furniture, equipment, business and trade fixtures, free-standing cabinet work, movable partitions and other articles of personal property owned by Tenant or installed or placed by Tenant at its expense in the Premises, and such similar articles of any other persons claiming under Tenant, as Landlord may, in its sole discretion, require to be removed, and Tenant shall repair at its own expense all damage to the Premises and Building resulting from such removal. Upon receipt of a written request from Tenant, Landlord shall walk through the Premises with Tenant not less than sixty (60) days prior to the expiration date and identify any items existing at such time that must be restored.

ARTICLE 16

HOLDING OVER

If Tenant holds over after the expiration of the Lease Term or earlier termination thereof, with or without the express or implied consent of Landlord, such tenancy shall be at sufferance, and shall not constitute a renewal hereof or an extension for any further term, and in such case Base Rent shall be payable at a monthly rate, prorated daily, equal to one hundred fifty percent (150%) times the Rent applicable during the last rental period of the Lease Term under this Lease. Such tenancy shall be subject to every other applicable term, covenant and agreement contained herein. Nothing contained in this Article 16 shall be construed as consent by Landlord to any holding over by Tenant, and Landlord expressly reserves the right to require Tenant to

 

63


surrender possession of the Premises to Landlord as provided in this Lease upon the expiration or other termination of this Lease. The provisions of this Article 16 shall not be deemed to limit or constitute a waiver of any other rights or remedies of Landlord provided herein or at law. If Tenant fails to surrender the Premises upon the termination or expiration of this Lease, in addition to any other liabilities to Landlord accruing therefrom, Tenant shall protect, defend, indemnify and hold Landlord harmless from all loss, costs (including reasonable attorneys’ fees) and liability resulting from such failure, including, without limiting the generality of the foregoing, any claims made by any succeeding tenant founded upon such failure to surrender and any lost profits to Landlord resulting therefrom.

ARTICLE 17

ESTOPPEL CERTIFICATES

Within ten (10) days following a request in writing by Landlord, Tenant shall execute, acknowledge and deliver to Landlord an estoppel certificate, which, as submitted by Landlord, shall be substantially in the form of Exhibit E, attached hereto (or such other form as may be reasonably required by any prospective mortgagee or purchaser of the Property, or any portion thereof), indicating therein any exceptions thereto that may exist at that time, and shall also contain any other information reasonably requested by Landlord or Landlord’s mortgagee or prospective mortgagee. Any such certificate may be relied upon by any prospective mortgagee or purchaser of all or any portion of the Property. Tenant shall execute and deliver whatever other instruments may be reasonably required for such purposes. Within ten (10) days following a request in writing by Tenant, Landlord shall execute, acknowledge and deliver to Tenant a similar estoppel certificate. Not more than twice each calendar year during the Lease Term, if Tenant is in default under this Lease beyond applicable notice and cure periods, or if otherwise required in connection with a sale or financing of the Property, Landlord may require Tenant to provide Landlord with a current financial statement and financial statements of the two (2) years prior to the current financial statement year. Such statements shall be prepared in accordance with generally accepted accounting principles and, if such is the normal practice of Tenant, shall be audited by an independent certified public accountant. Landlord shall hold such statements confidentially, except it may provide such statements to its prospective lenders or purchasers and each or their agents so long as such entities and agents agree to hold such statements confidentially. Failure of Tenant to timely execute, acknowledge and deliver such estoppel certificate or other instruments within applicable notice and cure periods shall constitute an acceptance of the Premises and an acknowledgment by Tenant that statements included in the estoppel certificate are true and correct, without exception.

ARTICLE 18

SUBORDINATION

This Lease shall be subject and subordinate to all present and future ground or underlying leases of the Building or Property and to the lien of any mortgage, trust deed or other encumbrances now or hereafter in force against the Building or Property or any part thereof, if any, and to all renewals, extensions, modifications, consolidations and replacements thereof, and to all advances made or hereafter to be made upon the security of such mortgages or trust deeds,

 

64


unless the holders of such mortgages, trust deeds or other encumbrances, or the lessors under such ground lease or underlying leases, require in writing that this Lease be superior thereto (collectively, the “Superior Holders”); provided, however, that in consideration of and a condition precedent to Tenant’s agreement to subordinate this Lease to any future mortgage, trust deed or other encumbrances, shall be the receipt by Tenant of a subordination non-disturbance and attornment agreement in a commercially reasonable form, which requires such Superior Holder to continue this Lease as a direct lease between Superior Holder, as landlord, and Tenant, as tenant, and not to disturb Tenant’s possession, which must include any Superior Holder’s obligation to perform the Core and Shell Work, fund the Tenant Improvement Allowance and to accept Tenant’s offset rights set forth herein (with respect to any Landlord default that first occurs, or continues to occur, after the date such Superior Holder takes possession of the Building, and Tenant may only offset amounts attributable to the period of time from and after the date such Superior Holder takes possession of the Building), so long as an event of default has not occurred and is continuing (a “SNDA”) executed by Landlord and the appropriate Superior Holder. Tenant covenants and agrees in the event any proceedings are brought for the foreclosure of any such mortgage or deed in lieu thereof (or if any ground lease is terminated), to attorn, without any deductions or set-offs whatsoever, to the lienholder or purchaser or any successors thereto upon any such foreclosure sale or deed in lieu thereof (or to the ground lessor), if so requested to do so by such purchaser or lienholder or ground lessor, and to recognize such purchaser or lienholder or ground lessor as the lessor under this Lease, provided such lienholder or purchaser or ground lessor shall agree to accept this Lease and not disturb Tenant’s occupancy, so long as Tenant timely pays the rent and observes and performs the terms, covenants and conditions of this Lease to be observed and performed by Tenant. Landlord’s interest herein may be assigned as security at any time to any lienholder. Tenant shall, within ten (10) days of request by Landlord, execute such further instruments or assurances as Landlord may reasonably deem necessary to evidence or confirm the subordination or superiority of this Lease to any such mortgages, trust deeds, ground leases or underlying leases. Tenant waives the provisions of any current or future statute, rule or law which may give or purport to give Tenant any right or election to terminate or otherwise adversely affect this Lease and the obligations of the Tenant hereunder in the event of any foreclosure proceeding or sale. Landlord represents to Tenant that there are not any Superior Holders as of the date of this Lease.

ARTICLE 19

DEFAULTS; REMEDIES

19.1 Events of Default. The occurrence of any of the following shall constitute a default of this Lease by Tenant:

19.1.1 Any failure by Tenant to pay any Rent or any other charge required to be paid under this Lease, or any part thereof, when due, which failure is not cured within five (5) days after written notice from Landlord that said amount was not paid when due; or

19.1.2 Any failure by Tenant to observe or perform any other provision, covenant or condition of this Lease to be observed or performed by Tenant where such failure continues for thirty (30) days after written notice thereof from Landlord to Tenant; provided that if the nature of such default is such that the same cannot reasonably be cured within a thirty (30) day

 

65


period, Tenant shall not be deemed to be in default if it diligently commences such cure within such period and thereafter diligently proceeds to rectify and cure such default; or

19.1.3 Abandonment of the Premises by Tenant; or

19.1.4 The failure by Tenant to observe or perform according to the provisions of Articles 5, 10, 14, 17 or 18 of this Lease where such failure continues for more than three (3) business days after notice from Landlord; or The notice periods provided herein are in addition to, any notice periods provided by law.

19.2 Remedies Upon Default. Upon the occurrence of any event of default by Tenant, Landlord shall have, in addition to any other remedies available to Landlord at law or in equity (all of which remedies shall be distinct, separate and cumulative), the option to pursue any one or more of the following remedies, each and all of which shall be cumulative and nonexclusive, without any notice or demand whatsoever.

19.2.1 Terminate this Lease, in which event Tenant shall immediately surrender the Premises to Landlord, and if Tenant fails to do so, Landlord may, without prejudice to any other remedy which it may have for possession or arrearages in rent, enter upon and take possession of the Premises and expel or remove Tenant and any other person who may be occupying the Premises or any part thereof, in accordance with laws without being liable for prosecution or any claim or damages therefor; and Landlord may recover from Tenant the following:

(i) The worth at the time of any unpaid rent which has been earned at the time of such termination; plus

(ii) The worth at the time of award of the amount by which the unpaid rent which would have been earned after termination until the time of award exceeds the amount of such rental loss that Tenant proves could have been reasonably avoided; plus

(iii) The worth at the time of award of the amount by which the unpaid rent for the balance of the Lease Term after the time of award exceeds the amount of such rental loss that Tenant proves could have been reasonably avoided; plus

(iv) Any other amount necessary to compensate Landlord for all the detriment proximately caused by Tenant’s failure to perform its obligations under this Lease or which in the ordinary course of things would be likely to result therefrom, specifically including but not limited to (in each case to the extent reasonably allocable to the remaining Lease Term), brokerage commissions and advertising expenses incurred, expenses of remodeling the Premises or any portion thereof for a new tenant, whether for the same or a different use, and any special concessions made to obtain a new tenant; and

(v) At Landlord’s election, such other amounts in addition to or in lieu of the foregoing as may be permitted from time to time by applicable law.

The term “rent” as used in this Section 19.2 shall be deemed to be and to mean all sums of every nature required to be paid by Tenant pursuant to the terms of this Lease, whether to

 

66


Landlord or to others. As used in Section 19.2.1(i) and (ii), above, the “worth at the time of award” shall be computed by allowing interest at the rate set forth in Article 25 of this Lease, but in no case greater than the maximum amount of such interest permitted by law. As used in Section 19.2.1(iii) above, the “worth at the time of award” shall be computed by discounting such amount at the discount rate of the Federal Reserve Bank of San Francisco at the time of award plus one percent (1%).

19.2.2 Landlord shall have the remedy described in California Civil Code Section 1951.4 (lessor may continue lease in effect after lessee’s breach and abandonment and recover rent as it becomes due, if lessee has the right to sublet or assign, subject only to reasonable limitations). Accordingly, if Landlord does not elect to terminate this Lease on account of any default by Tenant, Landlord may, from time to time, without terminating this Lease, enforce all of its rights and remedies under this Lease, including the right to recover all rent as it becomes due.

19.2.3 Landlord shall at all times have the rights and remedies (which shall be cumulative with each other and cumulative and in addition to those rights and remedies available under Sections 19.2.1 and 19.2.2, above, or any law or other provision of this Lease), without prior demand or notice except as required by applicable law, to seek any declaratory, injunctive or other equitable relief, and specifically enforce this Lease, or restrain or enjoin a violation or breach of any provision hereof.

19.3 Subleases of Tenant. If Landlord elects to terminate this Lease on account of any default by Tenant, as set forth in this Article 19, Landlord shall have the right to terminate any and all subleases, licenses, concessions or other consensual arrangements for possession entered into by Tenant and affecting the Premises or may, in Landlord’s sole discretion, succeed to Tenant’s interest in such subleases, licenses, concessions or arrangements. In the event of Landlord’s election to succeed to Tenant’s interest in any such subleases, licenses, concessions or arrangements, Tenant shall, as of the date of notice by Landlord of such election, have no further right to or interest in the rent or other consideration receivable thereunder.

19.4 Efforts to Relet. No repairs, maintenance, appointment of a receiver to protect Landlord’s interests hereunder, or any other similar action or omission by Landlord shall be construed as an election by Landlord to terminate this Lease or Tenant’s right to possession, or to accept a surrender of the Premises, nor shall same operate to release Tenant in whole or in part from any of Tenant’s obligations hereunder, unless express written notice of such intention is sent by Landlord to Tenant. Tenant hereby irrevocably waives any right otherwise available under any law to redeem or reinstate this Lease.

19.5 Landlord’s Default.

19.5.1 General. Notwithstanding anything to the contrary set forth in this Lease, Landlord shall not be in default in the performance of any obligation required to be performed by Landlord pursuant to this Lease unless Landlord fails to perform such obligation within thirty (30) days after the delivery of notice from Tenant specifying in detail Landlord’s failure to perform; provided, however, if the nature of Landlord’s obligation is such that more than thirty (30) days are required for its performance, then Landlord shall not be in default under this Lease

 

67


if it shall commence such performance within such thirty (30) day period and thereafter diligently pursue the same to completion. Upon any such default by Landlord under this Lease, Tenant may, except as otherwise specifically provided in this Lease to the contrary, exercise any of its rights provided at law or in equity.

19.5.2 Abatement of Rent. In the event that Tenant is prevented from using, and does not use, the Premises or any portion thereof, as a result of (i) any repair, maintenance or alteration performed by Landlord, or which Landlord failed to perform, after the Lease Commencement Date and required by this Lease, which substantially interferes with Tenant’s use of the Premises, or (ii) any failure to provide services, utilities or access to the Premises as required by this Lease (either such set of circumstances as set forth in items (i) or (ii), above, to be known as an “Abatement Event”), then Tenant shall give Landlord notice of such Abatement Event, and if such Abatement Event continues for five (5) consecutive business days after Landlord’s receipt of any such notice (the “Eligibility Period”), then the Base Rent, Tenant’s Share of Direct Expenses, and Tenant’s obligation to pay for parking (to the extent not utilized by Tenant) shall be abated or reduced, as the case may be, after expiration of the Eligibility Period for such time that Tenant continues to be so prevented from using, and does not use for the normal conduct of Tenant’s business, the Premises or a portion thereof; provided, however, in the event that Tenant is prevented from using, and does not use, a portion of the Premises, and as result thereof it is commercially impractical for Tenant to use all or a portion of the remaining Premises (i.e., the portion of the Premises that Tenant is actually able to use), and if Tenant does not conduct its business from the remaining Premises or portion thereof, then for such time during which it is impractical for Tenant to conduct its business therein, the Base Rent, Tenant’s Share of Direct Expenses, and Tenant’s obligation to pay for parking (to the extent not utilized by Tenant) shall also be abated for the remaining Premises (or portion thereof) that Tenant does not use. If, however, Tenant reoccupies any portion of the Premises during such period, the Base Rent, Tenant’s Share of Direct Expenses, and Tenant’s obligation to pay for parking (to the extent not utilized by Tenant) allocable to such reoccupied portion, based on the proportion that the rentable area of such reoccupied portion of the Premises bears to the total rentable area of the Premises, shall be payable by Tenant from the date Tenant reoccupies such portion of the Premises. To the extent an Abatement Event is caused by an event covered by Articles 11 or 13 of this Lease, then Tenant’s right to abate rent shall be governed by the terms of such Article 11 or 13, as applicable, and the Eligibility Period shall not be applicable thereto. Such right to abate Base Rent and Tenant’s Share of Direct Expenses shall be Tenant’s sole and exclusive remedy for rent abatement at law or in equity for an Abatement Event. Except as expressly provided in this Section 19.5.2 or elsewhere in this Lease, nothing contained herein shall be interpreted to mean that Tenant is excused from paying Rent due hereunder.

ARTICLE 20

COVENANT OF QUIET ENJOYMENT

Landlord covenants that Tenant, on paying the Rent, charges for services and other payments herein reserved and on keeping, observing and performing all the other terms, covenants, conditions, provisions and agreements herein contained on the part of Tenant to be kept, observed and performed, in each case within applicable notice and cure periods, shall, during the Lease Term, peaceably and quietly have, hold and enjoy the Premises subject to the

 

68


terms, covenants, conditions, provisions and agreements hereof without interference by any persons lawfully claiming by or through Landlord. The foregoing covenant is in lieu of any other covenant express or implied.

ARTICLE 21

LETTER OF CREDIT

21.1 Delivery of Letter of Credit. Tenant shall deliver to Landlord concurrent with Tenant’s execution of this Lease, as protection for the full and faithful performance by Tenant of all of its obligations under this Lease and for all losses and damages Landlord may suffer (or which Landlord reasonably estimates that it may suffer) as a result of any breach or default by Tenant under this Lease, an unconditional, clean, irrevocable negotiable standby letter of credit (the “L-C”) in the amount set forth in Section 8 of the Summary (the “L-C Amount”), in the form attached hereto as Exhibit H, running in favor of Landlord, drawn on a bank (the “Issuing Bank”) reasonably approved by Landlord and at a minimum having a long term issuer credit rating from Standard and Poor’s Professional Rating Service of A or a comparable rating from Moody’s Professional Rating Service (the “Credit Rating Threshold”), and otherwise conforming in all respects to the requirements of this Article 21, including, without limitation, all of the requirements of Section 21.2 below, all as set forth more particularly hereinbelow. Tenant shall pay all expenses, points and/or fees incurred by Tenant in obtaining and maintaining the L-C. In the event of an assignment by Tenant of its interest in the Lease (and irrespective of whether Landlord’s consent is required for such assignment), the acceptance of any replacement or substitute letter of credit by Landlord from the assignee shall be subject to Landlord’s prior written approval, in Landlord’s reasonable discretion. As of the date of this Lease, Landlord hereby approves of JPMorgan Chase as the Issuing Bank.

21.2 In General. The L-C shall be “callable” at sight, permit partial draws and multiple presentations and drawings, and be otherwise subject to the Uniform Customs and Practices for Documentary Credits (1993-Rev), International Chamber of Commerce Publication #500, or the International Standby Practices-ISP 98, International Chamber of Commerce Publication #590. Tenant further covenants and warrants as follows:

21.2.1 Landlord Right to Transfer. The L-C shall provide that Landlord, its successors and assigns, may, at any time and without notice to Tenant and without first obtaining Tenant’s consent thereto, transfer (one or more times) all or any portion of its interest in and to the L-C to another party, person or entity, as a part of the assignment by Landlord of its rights and interests in and to this Lease. In the event of a transfer of Landlord’s interest in the Building, Landlord shall transfer the L-C, in whole or in part, to the transferee and thereupon Landlord shall, without any further agreement between the parties but upon the written assumption by the transferee of Landlord’s obligations hereunder with respect to the L-C, be released by Tenant from all liability therefor, and it is agreed that the provisions hereof shall apply to every transfer or assignment of the whole or any portion of said L-C to a new landlord. In connection with any such transfer of the L-C by Landlord, Tenant shall, at Tenant’s sole cost and expense, execute and submit to the Issuing Bank such applications, documents and instruments as may be necessary to effectuate such transfer, and Tenant shall be responsible for paying the Issuing Bank’s transfer and processing fees in connection therewith.

 

69


21.2.2 No Assignment by Tenant. Tenant shall neither assign nor encumber the L-C or any part thereof. Neither Landlord nor its successors or assigns will be bound by any assignment, encumbrance, attempted assignment or attempted encumbrance by Tenant in violation of this Section 21.2.2.

21.2.3 Replenishment. If, as a result of any drawing by Landlord on the L-C pursuant to its rights set forth in Section 21.3 below, the amount of the L-C shall be less than the L-C Amount, Tenant shall, within five (5) days after written notice thereof from Landlord, provide Landlord with (i) an amendment to the L-C restoring such L-C to the L-C Amount or (ii) additional L-Cs in an amount equal to the deficiency, which additional L-Cs shall comply with all of the provisions of this Article 21, and if Tenant fails to comply with the foregoing, notwithstanding anything to the contrary contained in Section 19.1 above, the same shall constitute an incurable default by Tenant under this Lease (without the need for any additional notice and/or cure period).

21.2.4 Renewal; Replacement. If the L-C expires earlier than the date (the “LC Expiration Date”) that is sixty (60) days after the expiration of the Lease Term, Tenant shall deliver a new L-C or certificate of renewal or extension to Landlord at least thirty (30) days prior to the expiration of the L-C then held by Landlord, without any action whatsoever on the part of Landlord, which new L-C shall be irrevocable and automatically renewable through the LC Expiration Date upon the same terms as the expiring L-C or such other terms as may be acceptable to Landlord in its sole discretion. In furtherance of the foregoing, Landlord and Tenant agree that the L-C shall contain a so-called “evergreen provision,” whereby the L-C will automatically be renewed unless at least sixty (60) days’ prior written notice of non-renewal is provided by the issuer to Landlord; provided, however, that the final expiration date identified in the L-C, beyond which the L-C shall not automatically renew, shall not be earlier than the LC Expiration Date.

21.2.5 Issuing Bank’s Financial Condition. If, at any time during the Lease Term, the Issuing Bank’s long term credit rating is reduced below the Credit Rating Threshold (either, a “Bank Credit Threat”), then Landlord shall have the right to require that Tenant obtain from a different issuer a substitute L-C that complies in all respects with the requirements of this Article 21, and Tenant’s failure to obtain such substitute L-C within ten (10) business days following Landlord’s written demand therefor (with no other notice or cure or grace period being applicable thereto, notwithstanding anything in this Lease to the contrary) shall entitle Landlord, or Landlord’s then managing agent, to immediately draw upon the then existing L- C in whole or in part, without notice to Tenant, as more specifically described in Section 21.3 below. Tenant shall be responsible for the payment of Landlord’s reasonable attorneys’ fees to review any replacement L-C, which replacement is required pursuant to this Section or is otherwise requested by Tenant.

21.3 Application of Letter of Credit. Tenant hereby acknowledges and agrees that Landlord is entering into this Lease in material reliance upon the ability of Landlord to draw upon the L-C as protection for the full and faithful performance by Tenant of all of its obligations under this Lease and for all losses and damages Landlord may suffer (or which Landlord reasonably estimates that it may suffer) as a result of any breach or default by Tenant under this Lease. Landlord, or its then managing agent, shall have the right to draw down an

 

70


amount up to the face amount of the L-C if any of the following shall have occurred or be applicable: (A) such amount is due to Landlord under the terms and conditions of this Lease, or (B) Tenant has filed a voluntary petition under the U.S. Bankruptcy Code or any state bankruptcy code (collectively, “Bankruptcy Code”), or (C) an involuntary petition has been filed against Tenant under the Bankruptcy Code that is not dismissed within thirty (30) days, or (D) the Issuing Bank has notified Landlord that the L-C will not be renewed or extended through the LC Expiration Date and Tenant has not provided a replacement L-C that satisfies the requirements of this Article 21 within thirty (30) days prior to the expiration thereof, or (E) a Bank Credit Threat or Receivership (as such term is defined in Section 21.6.1 below) has occurred and Tenant has failed to comply with the requirements of either Section 21.2.5 above or 21.6 below, as applicable. If Tenant shall breach any provision of this Lease or otherwise be in default hereunder in each case beyond applicable notice and cure periods or if any of the foregoing events identified in Sections 21.3(B) through (E) shall have occurred, Landlord may, but without obligation to do so, and without notice to Tenant, draw upon the L-C, in part or in whole, and the proceeds may be applied by Landlord (i) to cure any breach or default of Tenant and/or to compensate Landlord for any and all damages of any kind or nature sustained or which Landlord reasonably estimates that it will sustain resulting from Tenant’s breach or default, (ii) against any Rent payable by Tenant under this Lease that is not paid when due and/or (iii) to pay for all losses and damages that Landlord has suffered or that Landlord reasonably estimates that it will suffer as a result of any breach or default by Tenant under this Lease. If Landlord draws on the L-C pursuant to subpart (A) above, Landlord shall only draw on the L-C to the extent required to cure the default. The use, application or retention of the LC, or any portion thereof, by Landlord shall not prevent Landlord from exercising any other right or remedy provided by this Lease or by any applicable law, it being intended that Landlord shall not first be required to proceed against the L-C, and shall not operate as a limitation on any recovery to which Landlord may otherwise be entitled. Tenant agrees not to interfere in any way with payment to Landlord of the proceeds of the L-C, either prior to or following a “draw” by Landlord of any portion of the L-C, regardless of whether any dispute exists between Tenant and Landlord as to Landlord’s right to draw upon the L-C. No condition or term of this Lease shall be deemed to render the L-C conditional to justify the issuer of the L-C in failing to honor a drawing upon such L-C in a timely manner. Tenant agrees and acknowledges that (i) the L-C constitutes a separate and independent contract between Landlord and the Issuing Bank, (ii) Tenant is not a third party beneficiary of such contract, (iii) Tenant has no property interest whatsoever in the L-C or the proceeds thereof, and (iv) in the event Tenant becomes a debtor under any chapter of the Bankruptcy Code, neither Tenant, any trustee, nor Tenant’s bankruptcy estate shall have any right to restrict or limit Landlord’s claim and/or rights to the L-C and/or the proceeds thereof by application of Section 502(b)(6) of the U.S. Bankruptcy Code or otherwise.

21.4 Letter of Credit not a Security Deposit. Landlord and Tenant acknowledge and agree that in no event or circumstance shall the L-C or any renewal thereof or any proceeds thereof be (i) deemed to be or treated as a “security deposit” within the meaning of California Civil Code Section 1950.7, (ii) subject to the terms of such Section 1950.7, or (iii) intended to serve as a “security deposit” within the meaning of such Section 1950.7. The parties hereto (A) recite that the L-C is not intended to serve as a security deposit and such Section 1950.7 and any and all other laws, rules and regulations applicable to security deposits in the commercial context (“Security Deposit Laws”) shall have no applicability or relevancy thereto and

 

71


(B) waive any and all rights, duties and obligations either party may now or, in the future, will have relating to or arising from the Security Deposit Laws.

21.5 Proceeds of Draw. In the event Landlord draws down on the L-C pursuant to Section 21.3(D) or (E) above, the proceeds of the L-C may be held by Landlord and applied by Landlord against any Rent payable by Tenant under this Lease that is not paid when due (subject to applicable notice and cure periods) and/or to pay for all losses and damages that Landlord has suffered or that Landlord reasonably estimates that it will suffer as a result of any breach or default by Tenant under this Lease beyond applicable notice and cure periods. Any unused proceeds shall constitute the property of Landlord and need not be segregated from Landlord’s other assets. Tenant hereby (i) agrees that (A) Tenant has no property interest whatsoever in the proceeds from any such draw, and (B) such proceeds shall not be deemed to be or treated as a “security deposit” under the Security Deposit Law, and (ii) waives all rights, duties and obligations either party may now or, in the future, will have relating to or arising from the Security Deposit Laws. Landlord agrees that the amount of any proceeds of the L-C received by Landlord, and not (a) applied against any Rent payable by Tenant under this Lease that was not paid when due or (b) used to pay for any losses and/or damages suffered by Landlord (or reasonably estimated by Landlord that it will suffer) as a result of any breach or default by Tenant under this Lease (the “Unused L-C Proceeds”), shall be paid by Landlord to Tenant (x) upon receipt by Landlord of a replacement L-C in the full L-C Amount, which replacement L-C shall comply in all respects with the requirements of this Article 21, and (y) immediately after the LC Expiration Date; provided, however, that if prior to the LC Expiration Date a voluntary petition is filed by Tenant, or an involuntary petition is filed against Tenant by any of Tenant’s creditors, under the Bankruptcy Code, then Landlord shall not be obligated to make such payment in the amount of the Unused L-C Proceeds until either all preference issues relating to payments under this Lease have been resolved in such bankruptcy or reorganization case or such bankruptcy or reorganization case has been dismissed.

21.6 Issuing Bank Placed Into Receivership. In the event the Issuing Bank is placed into receivership or conservatorship (any such event, a “Receivership”) by the Federal Deposit Insurance Corporation or any successor or similar entity (the “FDIC”), then, effective as of the date such Receivership occurs, the L-C shall be deemed to not meet the requirements of this Article 21, and, within ten (10) business days following Landlord’s notice to Tenant of such Receivership (the “LC Replacement Notice”), Tenant shall replace the L-C with a substitute L-C from a different issuer reasonably acceptable to Landlord and that complies in all respects with the requirements of this Article 21. If Tenant fails to replace such L-C with a substitute L-C from a different issuer pursuant to the terms and conditions of this Section 21.6.1, then, notwithstanding anything in this Lease to the contrary, Landlord shall have the right to require Tenant to provide a substitute L-C as provided in Section 21.2.5. In the event that Landlord draws upon the L-C solely due to Tenant’s failure to renew the L-C at least thirty (30) days before its expiration or provide a substitute L-C due to a Bank Credit Threat or Receivership, such failure shall not constitute a default hereunder and Tenant shall thereafter have the right to provide a substitute L-C that satisfies the requirements of this Lease, in which case, Landlord shall concurrently refund the proceeds of the draw. If Landlord improperly draws on the L-C, Tenant may offset against Rent the amounts improperly drawn.

 

72


21.7 Increase of L-C Amount. If the Premises is increased due to Tenant’s timely exercise of its rights under Section 1.3 (Expansion Space), or Section 1.4 (Recurring Right of Availability), then (A) the L-C Amount shall be increased by an amount equal to the total amount of Base Rent payable by Tenant for the applicable space expanding the Premises during the last twelve (12) months of the then Lease Term, and (B) Tenant shall, within three (3) business days after the date on which Landlord delivers possession of the applicable space expanding the Premises, in the required condition, tender to Landlord a new L-C or a certificate of amendment to the existing L-C, conforming in all respects to the requirements of this Article 21, in such increased L-C Amount; provided, however, notwithstanding anything set forth herein to the contrary, if, at the time Landlord delivers possession of such space to Tenant, Tenant delivers to Landlord evidence reasonably satisfactory to Landlord demonstrating the Tenant satisfies the “L-C Reduction Conditions,” as that term is defined below, then in lieu of the increase in the L-C Amount set forth in sub-item (A), above, the L-C Amount shall be increased by an amount equal to the total amount of Base Rent payable by Tenant for the applicable space expanding the Premises during the last five (5) months of the then Lease Term.

21.8 Reduction of L-C Amount. The L-C Amount shall not be reduced during that period (the “Fixed Period”), commencing on the Lease Commencement Date and expiring on the fourth (4th) anniversary of the Rent Commencement Date, unless extended pursuant to the terms of this Section 21.8. The Fixed Period shall be automatically extended (without the necessity of notice to Tenant) by four (4) months upon Tenant’s second (2nd) failure to pay any Rent or any other charge required to be paid under this Lease, or any part thereof, beyond applicable notice and cure periods, and shall be extended for an additional four (4) months upon each failure by Tenant thereafter. After the expiration of the Fixed Period (as the same may be extended pursuant to the immediately preceding sentence), provided that on or prior to the applicable Reduction Date, Tenant tenders to Landlord (a) evidence reasonably satisfactory to Landlord demonstrating the Tenant satisfies the “L-C Reduction Conditions,” as that term is defined below, and (b) a certificate of amendment to the existing L-C, conforming in all respects to the requirements of this Article 21, in the amount of the applicable L-C Amount as of such Reduction Date, the L-C Amount shall be reduced to the following amounts:

 

Reduction Date*

   L-C Amount  

First (1st) day of the first (1st) calendar month following the month in which the Fixed Period expires (the “Burn Down Date”)

   $ 7,000,000.00   

First (1st) anniversary of the Burn Down Date

   $ 5,730,000.00   

Second (2nd) anniversary of the Burn Down Date

   $ 4,460,000.00   

Third (3rd) anniversary of the Burn Down Date

   $ 3,190,000.00   

 

73


Reduction Date*

   L-C Amount  

Fourth (4th) anniversary of the Burn Down Date

   $ 1,920,000.00   

Fifth (5th) anniversary of the Burn Down Date

   $ 650,000.00   

 

* The Reduction Dates set forth above shall be adjusted, if the Fixed Period is extended pursuant to the terms of this Section 21.8, to be the dates that are the number of months after the extended Fixed Period (for the initial Reduction Date) or the preceding Reduction Date (for Reduction Dates thereafter) determined by dividing the number of months remaining in the initial Lease Term following the extended Fixed Period by five (5). In addition, the L-C Amount set forth above with respect to each Reduction Date shall be proportionally increased to the extent the L-C Amount had been previously increased pursuant to the terms of Section 21.7, above.

If Tenant is allowed to reduce the L-C Amount pursuant to the terms of this Section 21.8, then Landlord shall reasonably cooperate with Tenant in order to effectuate such reduction. For purposes of this Section 21.8, the “L-C Reduction Conditions” shall mean (i) that Tenant is not then in default under this Lease, and (ii) either (x) Tenant has achieved operating income for each of the preceding four (4) consecutive trailing quarters, or (y) Tenant’s operating loss for the preceding twelve (12) months combined is less than fifteen percent (15%) of its “Liquid Assets” (as that term is defined below) on the applicable Reduction Date. For purposes of this Lease, “Liquid Assets” shall mean all unrestricted cash and cash equivalents and settlement receivables (i.e., amounts owed from processors and settled within one (1) to three (3) business days), as determined pursuant to generally accepted accounting principles. In the event Tenant fails to deliver to Landlord evidence reasonably satisfactory to Landlord demonstrating the Tenant satisfies the L-C Reduction Conditions prior to the applicable Reduction Date, or if Tenant fails to deliver a certificate of amendment to the existing L-C as required by this Section 21.8, then the L-C Amount shall not be reduced upon such applicable Reduction Date, but the terms of this Section 21.8 shall remain effective and the L-C Amount shall thereafter be reduced, to the amount applicable to such Reduction Date, on the date Tenant delivers to Landlord evidence reasonably satisfactory to Landlord demonstrating that Tenant then satisfies the L-C Reduction Conditions (provided that no such reductions shall be permitted in the event this Lease is terminated early as a result of a Tenant default).

ARTICLE 22

SECURITY DEPOSIT

To the extent Landlord holds the Termination Fee pursuant to Section 2.3 above, or Tenant ever deposits with Landlord a cash security deposit (the “Security Deposit”) as security for the faithful performance by Tenant of all of its obligations under this Lease, the terms of this Article 22 shall apply. If Tenant defaults with respect to any provisions of this Lease beyond notice and cure periods, including, but not limited to, the provisions relating to the payment of

 

74


Rent, the removal of property and the repair of resultant damage, Landlord may, without notice to Tenant, but shall not be required to apply all or any part of the Security Deposit for the payment of any Rent or any other sum in default and Tenant shall, upon demand therefor, restore the Security Deposit to its original amount. Any unapplied portion of the Security Deposit shall be returned to Tenant, or, at Landlord’s option, to the last assignee of Tenant’s interest hereunder, within sixty (60) days following the expiration of the Lease Term. Tenant shall not be entitled to any interest on the Security Deposit. Tenant hereby irrevocably waives and relinquishes any and all rights, benefits, or protections, if any, Tenant now has, or in the future may have, under Section 1950.7 of the California Civil Code, or any successor statute, and all other provisions of law, now or hereafter in effect, including, but not limited to, any provision of law only to the extent the same (i) establishes the time frame by which a landlord must refund a security deposit under a lease, and/or (ii) provides that a landlord may claim from a security deposit only those sums reasonably necessary to remedy defaults in the payment of rent, to repair damage caused by a tenant or to clean the subject premises. Tenant acknowledges and agrees that (a) any statutory time frames for the return of a security deposit are superseded by the express period identified in this Article 22, above, and (b) rather than be so limited, Landlord may claim from the Security Deposit (1) any and all sums expressly identified in this Article 22, above, and (2) any additional sums reasonably necessary to compensate Landlord for any and all losses or damages caused by Tenant’s default of this Lease, including, but not limited to, all damages or rent due upon termination of Lease pursuant to Section 1951.2 of the California Civil Code.

ARTICLE 23

SIGNS; ROOF RIGHTS

23.1 Full Floors. Subject to Landlord’s prior written approval, in its reasonable discretion, and provided all signs are in keeping with the quality, design and style of the Building and Property, Tenant, if the Premises comprise an entire floor of the Building, at its sole cost and expense, may install identification signage anywhere in the Premises including in the elevator lobby of the Premises, provided that such signs must not be visible from the exterior of the Building.

23.2 Multi-Tenant Floors. If other tenants occupy space on the floor on which the Premises is located, Tenant’s identifying signage shall be provided by Landlord, at Tenant’s cost, and such signage shall be comparable to that used by Landlord for other similar floors in the Building and shall comply with Landlord’s commercially reasonable Building standard signage program.

23.3 Lobby Signage. Throughout the Lease Term, as the same may be extended, Tenant (including any assignee of this Lease pursuant to an assignment approved by Landlord or pursuant to a transaction that did not require Landlord’s consent), at Tenant’s sole cost and expense, shall have the non-exclusive right to install, repair and maintain its name and/or logo in the podium ground floor lobby. If at any time Tenant leases the entire space within the podium portion of the Building, the rights described in the immediately preceding sentence and the podium elevator lobby shall be exclusive to Tenant and the podium elevator lobby shall be for Tenant’s exclusive use. Any such installation, repair and/or maintenance shall be subject to compliance with Applicable Laws and Landlord’s prior approval as to the shape, size and

 

75


location (provided such lobby sign shall be visible from the main lobby of the Building) of any such signs, which approval shall not be unreasonably withheld, conditioned or delayed. Tenant shall be entitled to transfer its podium ground floor lobby signage right to a “Permitted Subtenant” (as that term is defined in Section 23.5, below).

23.4 Prohibited Signage and Other Items. Any signs, notices, logos, pictures, names or advertisements which are installed and that have not been separately approved by Landlord may be removed without notice by Landlord at the sole expense of Tenant. Except as provided in Section 23.5, Tenant may not install any signs on the exterior or roof of the Property or the Common Areas. Any signs, window coverings, or blinds (even if the same are located behind the Landlord-approved window coverings for the Building), or other items visible from the exterior of the Premises or Building, shall be subject to the prior approval of Landlord, in its reasonable discretion.

23.5 Exterior Signage. Throughout the Lease Term, as the same may be extended, provided that Tenant satisfies the applicable Minimum Signage Threshold Tenant (including any assignee of this Lease pursuant to an assignment approved by Landlord or pursuant to a transaction that did not require Landlord’s consent), at Tenant’s sole cost and expense, shall have the right to install, repair and maintain (i) its name and logo on any monument sign installed by Landlord and associated with the Building (provided that Tenant hereby acknowledges and agrees that no monument sign exists as of the date of this Lease, and Landlord has no obligation to install any monument sign for the Building until it receives City approval thereof; provided further that if Landlord does not install a monument sign on or before the Rent Commencement Date, then Tenant shall have the right to install, at Tenant’s sole cost and expense, a way-finding eyebrow or blade sign, with Tenant’s logo, near the main entrance to the Building), and (ii) its logo to the helicopter pad of the Building, and (iii) either one (1) building top sign on the tower portion of the Building, or one (1) vertical sign on the side of the tower portion of the Building, which exterior sign may be Tenant’s name and/or logo. Landlord shall work with Tenant to obtain City approval of such signs. Any such installation, repair and/or maintenance shall be subject to compliance with Applicable Laws and Landlord’s prior approval as to the shape, size and location of any such signs, which approval shall not be unreasonably withheld, conditioned or delayed. Landlord hereby approves of the signage shown on Exhibit O, and Landlord agrees that such Building sign may be back-lit. The term “Minimum Signage Threshold”) shall mean the Original Tenant and/or its Permitted Transferee Assignee shall, in the aggregate, lease no less than 200,000 rentable square feet of the Building (including space that Tenant has committed to lease, such as the Must-Take Space) even if Lease has not yet commenced as to such space. Landlord acknowledges that the Minimum Signage Threshold is intended to impose an obligation on Tenant to lease and pay Rent with respect to a minimum amount of space in the Building, but is not intended to impose any requirement on Tenant to occupy space in the Building. Landlord shall be entitled to grant exterior signage rights to other tenants in the Building; provided, however, Landlord shall not be entitled to grant rooftop signage rights or exterior signage on the podium or tower portion of the Building to any other entity except (x) another Building tenant that leases more than 200,000 rentable square feet in the Building, and (y) another Building tenant that leases retail space on the first (1st) floor of the Building, in which case such exterior signage rights shall be limited to signs on the street level floor of the podium portion of the Building and shall be located above the applicable retail tenant. Tenant shall be entitled to transfer its exterior signage rights to its “Permitted Subtenants” (as that term is defined

 

76


below). For purposes of this Lease, the term “Permitted Subtenant” shall mean any subtenant of the Tenant that, pursuant to a sublease approved by Landlord pursuant to Article 14 above (or which did not require Landlord’s consent pursuant to Section 14.8, above), (i) occupies a portion of the Premises no less than 75,000 rentable square feet, and (ii) subleases such portion of the Premises for a term of no less than a two (2) years.

23.6 Name Change. If Tenant changes its name at any time, Tenant shall have the right, at Tenant’s cost, to make such changes to its signage as necessary to reflect the changed name, and may modify or change existing signs to do so. To the extent Tenant desires to change the name and/or logo set forth on new or existing signs, such name and/or logo shall not have a name which relates to an entity which is of a character or reputation, or is associated with a political faction or orientation, which is inconsistent with the quality of the Property, or which would otherwise reasonably offend a landlord of the Comparable Buildings (an “Objectionable Name”). Objectionable Name shall also include the name of a “Bank Objectionable Institution,” as that term is defined below, for so long as Landlord is bound by such restriction in its lease with the Bank. As used herein, a “Bank Objectionable Institution” shall mean any entity which performs one or more of the following activities: (a) operation of a commercial bank, savings bank, savings and loan association, credit union, a mutual or thrift association or any other institution that accepts deposits of money, (b) operation of any sort of automated teller machine or cash dispensing machine (an “ATM”), and (c) operation of a cash vault facility. Notwithstanding anything set forth in this Lease to the contrary, in no event shall the name “Square, Inc.” or any reasonable derivation thereof, be deemed an Objectionable Name, and, with respect to the Original Tenant only, in no event shall any name containing “Square” be deemed the name of a Bank Objectionable Institution. In the event of a Transfer, such Transferee shall have the right to continue to use the signage installed by Tenant, including the logo and colors utilized by Tenant prior to the date of such Transfer.

23.7 Building Directory. Tenant shall have the right, at no charge to Tenant, to have Tenant’s name entered into Landlord’s directory in the lobby of the Building.

23.8 Roof Rights.

23.8.1 Right to Install Equipment. Throughout the Lease Term, as the same may be extended, subject to Landlord’s reasonable approval and the terms of this Section 23.8, Tenant shall have the non-exclusive right, at no additional cost to install, repair, maintain (including access thereto) and replace on any of the roofs of the Building (but any new installation may only be installed on the podium roof), one (1) satellite dish, television or communications antenna or facility, related receiving or transmitting equipment, related cable connections and any and all other related or similar equipment (collectively, the “Communications Equipment”) and supplemental HVAC and other system infrastructure (collectively with the Communications Equipment, the “Equipment”), for use in connection with Tenant’s business within the Premises, in a location mutually acceptable to both Landlord and Tenant; provided, however, any installation shall be performed pursuant to this Section 23.8, and it shall be deemed reasonable for Landlord to withhold its approval to the extent any such installation would (i) require the use by Tenant of more than Tenant’s Share of the usable portion of the roof, as reasonably determined by Landlord, and (ii) interfere with the Landlord’s or any other tenant’s use, operation, repair and/or maintenance of then-existing equipment and systems

 

77


installed on the roof. Without having to pay any rental or license fees therefor, Tenant may also use the Building’s risers, conduits and towers for purposes of installing cabling from the Equipment to the Premises in the interior of the Building. Tenant may not license, assign or sublet the right to use any of such Equipment or roof space, other than to Transferees permitted under Article 14, without Landlord’s prior written consent, which consent may be withheld in Landlord’s sole and absolute discretion. Notwithstanding any provision set forth in the Lease, Tenant shall be responsible, at Tenant’s sole cost and expense, for (i) obtaining, as applicable, and maintaining all permits or other governmental approvals required in connection with the Equipment, (ii) repairing and maintaining and causing the Equipment to comply with all Applicable Laws, and (iii) the removal of the Equipment and all associated wiring promptly following the expiration or earlier termination of this Lease (and the repair of all affected areas to the condition existing prior to the installation thereof). In no event shall Tenant permit the Equipment to interfere with the Building Systems or any other communications equipment at the Building.

23.8.2 Right of Use. Landlord may grant to others the right to use any of the roofs or exterior portions of the Building or the parking facilities (for other than parking purposes), provided that such installations do not materially interfere with any existing then Equipment of Tenant.

23.8.3 Installation, Maintenance, Operation and Removal of Communications Equipment. Landlord shall cause its telecommunications rooftop management company (the “TRMC”) to install, repair, maintain and replace the Communications Equipment at Tenant’s sole cost and expense. Tenant shall have access to the Communications Equipment at all times, subject to any reasonable restrictions of Landlord. Any installation and maintenance of Communications Equipment shall be completed by TRMC in accordance with all Applicable Laws. Tenant shall be permitted from time to time to alter its Communications Equipment in connection with technological upgrades or changes in Tenant’s technological or communications requirements, subject to the terms of this Article 23. Tenant shall pay for any and all costs and expenses in connection with the installation, maintenance, and removal of the Communications Equipment, and all costs and expenses associated with repairing damage to the roof caused by Tenant, its employees or agents, including, but not limited to, any and all costs related to ensuring that any roof warranties for the Building are not terminated or negated in any way by reason of any such installations or by repair and maintenance of such facilities, but in no event shall Tenant be obligated to pay Landlord or the TRMC any rental or license fees for any area(s) on which the Communications Equipment shall be located. Notwithstanding anything to the contrary contained in this Article 23, in the event of an emergency, Landlord shall have the right, in its sole and absolute discretion, to (or cause TMRC to) repair, maintain, or replace the Communications Equipment, as Landlord deems necessary or appropriate, without prior notice to Tenant so long as TRMC charges a market competitive price for such repair, maintenance or replacement. No portion of any of the roof space shall be included in or designated as part of the Premises.

 

78


ARTICLE 24

COMPLIANCE WITH LAW

Tenant shall not do anything or permit anything to be done in or about the Premises which will in any way conflict with any law, statute, ordinance or other governmental rule, regulation or requirement now in force or which may hereafter be enacted or promulgated (collectively, “Applicable Laws”). At its sole cost and expense, Tenant shall promptly comply with all Applicable Laws which relate to (i) Tenant’s use of the Premises, (ii) any Alterations made by Tenant to the Premises, and any Tenant Improvements in the Premises, or (iii) the Base Building, but as to the Base Building, only to the extent such obligations are triggered by Alterations made by Tenant to the Premises to the extent such Alterations are not normal and customary business office improvements for the SOMA area, or triggered by the Tenant Improvements to the extent such Tenant Improvements are not normal and customary business office improvements for the SOMA area, or triggered by Tenant’s use of the Premises for non-general office use in the SOMA area. Should any standard or regulation now or hereafter be imposed on Landlord or Tenant by a state, federal or local governmental body charged with the establishment, regulation and enforcement of occupational, health or safety standards for employers, employees, landlords or tenants, then Tenant agrees, at its sole cost and expense, to comply promptly with such standards or regulations. Tenant shall be responsible, at its sole cost and expense, to make all alterations to the Premises as are required to comply with the governmental rules, regulations, requirements or standards described in this Article 24. The judgment of any court of competent jurisdiction or the admission of Tenant in any judicial action, regardless of whether Landlord is a party thereto, that Tenant has violated any of said governmental measures, shall be conclusive of that fact as between Landlord and Tenant. Tenant shall promptly pay all fines, penalties and damages that may arise out of or be imposed because of its failure to comply with the provisions of this Article 24. Notwithstanding anything to the contrary in this Lease, including Section 10.2, to the extent required in order for Tenant to obtain a certificate of occupancy, or its legal equivalent, or legally occupy the Premises for normal and customary office use, or to the extent required in order for Tenant to pull a construction permit or to otherwise comply with the requirements of the applicable permitting authority, Landlord (rather than Tenant) shall comply with all Applicable Laws or American Insurance Association’s or any similar body’s requirements relating to the Base Building, except to the extent such compliance is triggered by (a) Tenant’s particular use of the Premises for other than normal and customary business office use in the SOMA area, assuming an office occupancy density no greater than one (1) person for any one hundred twenty-five (125) rentable square feet, or (b) Tenant’s construction of Alterations or Tenant Improvements in the Premises that are not normal and customary office improvements in the SOMA area, assuming an office occupancy density no greater than one (1) person for any one hundred twenty-five (125) rentable square feet, in which case compliance with such Applicable Laws shall be the responsibility of Tenant under this Lease. Landlord shall be permitted to include in Operating Expenses any costs or expenses incurred by Landlord under this Article 24 to the extent not prohibited by the terms of Section 4.2.7 above.

 

79


ARTICLE 25

LATE CHARGES

If any installment of Rent or any other sum due from Tenant shall not be received by Landlord or Landlord’s designee within five (5) days after said amount is due, then Tenant shall pay to Landlord a late charge equal to five percent (5%) of the overdue amount plus any attorneys’ fees incurred by Landlord by reason of Tenant’s failure to pay Rent and/or other charges when due hereunder. The late charge shall be deemed Additional Rent and the right to require it shall be in addition to all of Landlord’s other rights and remedies hereunder or at law and shall not be construed as liquidated damages or as limiting Landlord’s remedies in any manner. In addition to the late charge described above, any Rent or other amounts owing hereunder which are not paid within ten (10) days after the date they are due shall bear interest from the date when due until paid at a rate per annum equal to the lesser of (i) the annual “Bank Prime Loan” rate cited in the Federal Reserve Statistical Release Publication H.15(519), published weekly (or such other comparable index as Landlord and Tenant shall reasonably agree upon if such rate ceases to be published) plus two (2) percentage points, and (ii) the highest rate permitted by Applicable Law. Notwithstanding the foregoing, before assessing a late charge or late interest the first time in any twelve (12) month period, Landlord shall provide Tenant written notice of the delinquency, and shall waive such late charge if Tenant pays such delinquency within five (5) days thereafter.

ARTICLE 26

LANDLORD’S RIGHT TO CURE DEFAULT; PAYMENTS BY TENANT

26.1 Landlord’s Cure. All covenants and agreements to be kept or performed by Tenant under this Lease shall be performed by Tenant at Tenant’s sole cost and expense and without any reduction of Rent, except to the extent, if any, otherwise expressly provided herein. If Tenant shall fail to perform any obligation under this Lease, and such failure shall continue in excess of the time allowed under Section 19.1.2, above, unless a specific time period is otherwise stated in this Lease, Landlord may, but shall not be obligated to, make any such payment or perform any such act on Tenant’s part without waiving its rights based upon any default of Tenant and without releasing Tenant from any obligations hereunder.

26.2 Tenant’s Reimbursement. Except as may be specifically provided to the contrary in this Lease, Tenant shall pay to Landlord, upon delivery by Landlord to Tenant of statements therefor: (i) sums equal to expenditures reasonably made and obligations incurred by Landlord in connection with the remedying by Landlord of Tenant’s defaults pursuant to the provisions of Section 26.1; (ii) sums equal to all losses, costs, liabilities, damages and expenses referred to in Article 10 of this Lease; and (iii) subject to Section 29.21, sums equal to all expenditures made and obligations incurred by Landlord in collecting or attempting to collect the Rent or in enforcing or attempting to enforce any rights of Landlord under this Lease or pursuant to law, including, without limitation, all reasonable legal fees and other amounts so expended. Tenant’s obligations under this Section 26.2 shall survive the expiration or sooner termination of the Lease Term.

 

80


ARTICLE 27

ENTRY BY LANDLORD

27.1 In General. Landlord reserves the right at all reasonable times and upon reasonable notice to Tenant (except in the case of an emergency) to enter the Premises to (i) inspect them; (ii) show the Premises to prospective purchasers, mortgagees or to current or prospective mortgagees, ground or underlying lessors or insurers, or, during the last ten (10) months of the Lease Term, to prospective tenants; (iii) post notices of nonresponsibility; or (iv) repair the Premises or the Building, or for structural repairs to the Building or the Building’s systems and equipment. Notwithstanding anything to the contrary contained in this Article 27, Landlord may enter the Premises at any reasonable time to (A) perform services required of Landlord, including janitorial service; (B) take possession due to any breach of this Lease in the manner provided herein; and (C) perform any covenants of Tenant which Tenant fails to perform. Landlord may make any such entries without the abatement of Rent and may take such reasonable steps as required to accomplish the stated purposes. Tenant hereby waives any claims for damages or for any injuries or inconvenience to or interference with Tenant’s business, lost profits, any loss of occupancy or quiet enjoyment of the Premises, and any other loss occasioned thereby. For each of the above purposes, Landlord shall at all times have a key with which to unlock all the doors in the Premises, excluding Tenant’s vaults, safes and special security areas designated in advance by Tenant. In an emergency, Landlord shall have the right to use any means that Landlord may deem proper to open the doors in and to the Premises. Any entry into the Premises by Landlord in the manner hereinbefore described shall not be deemed to be a forcible or unlawful entry into, or a detainer of, the Premises, or an actual or constructive eviction of Tenant from any portion of the Premises. No provision of this Lease shall be construed as obligating Landlord to perform any repairs, alterations or decorations except as otherwise expressly agreed to be performed by Landlord herein. Any entry by Landlord and Landlord’s agents shall not impair Tenant’s operations more than reasonably necessary, and shall comply with Tenant’s reasonable security measures. Landlord shall use commercially reasonable efforts to promptly complete any work to be performed pursuant to any such entry.

27.2 Mechanical Penthouse; Satellite Dishes and Telecommunications Rooms. In addition to the rights of Landlord set forth in Section 27.1, notwithstanding anything to the contrary set forth in this Lease, Landlord and its agents, including without limitation, the Building’s engineers and their contractors and employees, shall have the right to enter the 9th floor of the Building and/or the Outdoor Terraces in order to access those engineering rooms, satellite dishes and telecommunications rooms accessible from the 9th floor of the Building and/or the South Outdoor Terrace, as the case may be, as depicted on Exhibit L attached to this Lease (collectively, as such areas to be known as the “Mechanical Penthouse”). Landlord may make any such entries without the abatement of Rent and may take such reasonable steps as required to accomplish the stated purposes. Tenant hereby waives any claims for damages or for any injuries or inconvenience to or interference with Tenant’s business, lost profits, any loss of occupancy or quiet enjoyment of the Premises, and any other loss occasioned thereby. In an emergency, Landlord shall have the right to use any means that Landlord may deem proper to access the Mechanical Penthouse. Any entry into the Premises and/or the South Outdoor Terrace by Landlord in the manner hereinbefore described shall not be deemed to be a forcible or unlawful entry into, or a detainer of, the Premises, or an actual or constructive eviction of Tenant

 

81


from any portion of the Premises. No provision of this Lease shall be construed as obligating Landlord to perform any repairs, alterations or decorations except as otherwise expressly agreed to be performed by Landlord herein. Notwithstanding the foregoing, any access under this Section 27.2 shall be subject to the terms of Section 27.1, shall be only pursuant to a path of travel reasonably agreed upon by Landlord and Tenant and shall be limited to employees of Landlord and its agents, including its engineers and sub-engineers, with a need to access the Mechanical Penthouse.

ARTICLE 28

TENANT PARKING

Subject to the terms of this Article 28, Tenant shall have the right to rent from Landlord, commencing on the Rent Commencement Date, the amount of unreserved parking passes set forth in Section 9 of the Summary (of which up to five (5) may be converted to reserved parking passes), on a monthly basis throughout the Lease Term, which parking passes shall pertain to the Property parking facility. Tenant shall pay to Landlord for automobile parking passes on a monthly basis the prevailing rate charged from time to time at the location of such parking passes; provided, however, during the first year of the Lease Term following the Rent Commencement Date only, Tenant shall be entitled to rent the unreserved parking passes at a rate of One Hundred Fifty and 00/100 Dollars ($150.00) per unreserved parking pass per month; and provided, further, that thereafter, the prevailing rate charged by Landlord shall be subject to market rate increases consistent with the parking rates being charged by landlords of Comparable Buildings in the Mid-Market/Civic Center Area. The foregoing parking rates may only be utilized by Tenant, its Permitted Transferee Assignees and any other assignee, sublessee, or transferee of the Tenant’s interest in this Lease. In addition, Tenant shall be responsible for the full amount of any taxes imposed by any governmental authority in connection with the renting of such parking passes by Tenant or the use of the parking facility by Tenant. Tenant may change the number of parking passes rented pursuant to this Article 28 upon thirty (30) days prior written notice to Landlord; provided that notwithstanding any contrary provision of this Lease, if Tenant elects to rent less than all of the unreserved parking passes at any time during the Lease Term, then Tenant’s right to again increase the number of parking passes that it elects to rent under this Lease shall be subject to availability (as determined by Landlord in its reasonable discretion); and provided, further, that in no event shall Tenant be entitled to rent more than the amount and type of parking passes allocated to Tenant as set forth in Section 9 of the Summary during the Lease Term. Tenant’s continued right to use the parking passes is conditioned upon Tenant abiding by all rules and regulations which are reasonably prescribed from time to time for the orderly operation and use of the parking facility where the parking passes are located, including any sticker or other identification system established by Landlord and Tenant’s cooperation in seeing that Tenant’s employees and visitors also comply with such rules and regulations. So long as the same do not unreasonably interfere with Tenant’s parking rights, Landlord specifically reserves the right to change the size, configuration, design, layout and all other aspects of the Property parking facility at any time and Tenant acknowledges and agrees that Landlord may, without incurring any liability to Tenant and without any abatement of Rent under this Lease, from time to time, close-off or restrict access to the Property parking facility for purposes of permitting or facilitating any such construction, alteration or improvements. Landlord may delegate its responsibilities hereunder to a parking operator in

 

82


which case such parking operator shall have all the rights of control attributed hereby to the Landlord. The parking passes rented by Tenant pursuant to this Article 28 are provided to Tenant solely for use by Tenant’s own personnel and such passes may not be transferred, assigned, subleased or otherwise alienated by Tenant, except in connection with a Transfer of the Premises pursuant to Article 14 of this Lease, without Landlord’s prior approval. Tenant may validate visitor parking by such method or methods as the Landlord may establish, at the validation rate from time to time generally applicable to visitor parking. If Landlord adds a parking valet, Tenant shall have the right to use such valet’s services at the rate established by Landlord for the Building. In addition, if Landlord expands the parking area, Tenant shall have the right to its proportionate share of such additional spaces.

ARTICLE 29

MISCELLANEOUS PROVISIONS

29.1 Terms; Captions. The words “Landlord” and “Tenant” as used herein shall include the plural as well as the singular. The necessary grammatical changes required to make the provisions hereof apply either to corporations or partnerships or individuals, men or women, as the case may require, shall in all cases be assumed as though in each case fully expressed. The captions of Articles and Sections are for convenience only and shall not be deemed to limit, construe, affect or alter the meaning of such Articles and Sections.

29.2 Binding Effect. Subject to all other provisions of this Lease, each of the covenants, conditions and provisions of this Lease shall extend to and shall, as the case may require, bind or inure to the benefit not only of Landlord and of Tenant, but also of their respective heirs, personal representatives, successors or assigns, provided this clause shall not permit any assignment by Tenant contrary to the provisions of Article 14 of this Lease.

29.3 No Air Rights. No rights to any view or to light or air over any property, whether belonging to Landlord or any other person, are granted to Tenant by this Lease. If at any time any windows of the Premises are temporarily darkened or the light or view therefrom is obstructed by reason of any repairs, improvements, maintenance or cleaning in or about the Property, for a reasonable time period, the same shall be without liability to Landlord and without any reduction or diminution of Tenant’s obligations under this Lease.

29.4 Modification of Lease. Should any current or prospective mortgagee or ground lessor for the Building or Property require a modification of this Lease, which modification will not cause an increased cost or expense to Tenant or in any other way materially and adversely change the rights and obligations of Tenant hereunder or interfere with Tenant’s use or operation of the Premises, then and in such event, Tenant agrees that this Lease may be so modified and agrees to execute whatever documents are reasonably required therefor and to deliver the same to Landlord within ten (10) days following a request therefor. At the request of Landlord or any mortgagee or ground lessor, Tenant agrees to execute a short form of Lease and deliver the same to Landlord within ten (10) days following the request therefor.

29.5 Transfer of Landlord’s Interest. Tenant acknowledges that Landlord has the right to transfer all or any portion of its interest in the Property or Building and in this Lease, and

 

83


Tenant agrees that in the event of any such transfer, provided the assignee assumes in writing all Landlord’s obligations hereunder, Landlord shall automatically be released from all liability under this Lease and Tenant agrees to look solely to such transferee for the performance of Landlord’s obligations hereunder accruing after the date of transfer and such transferee shall be deemed to have fully assumed and be liable for all obligations of this Lease to be performed by Landlord, including the return of any Security Deposit, and Tenant shall attorn to such transferee. Tenant further acknowledges that Landlord may assign its interest in this Lease to a mortgage lender as additional security and agrees that such an assignment shall not release Landlord from its obligations hereunder and that Tenant shall continue to look to Landlord for the performance of its obligations hereunder.

29.6 Prohibition Against Recording. Except as provided in Section 29.4 of this Lease, neither this Lease, nor any memorandum, affidavit or other writing with respect thereto, shall be recorded by Tenant or by anyone acting through, under or on behalf of Tenant; provided, however, at Tenant’s request, Landlord and Tenant shall execute a short form memorandum hereof in the form attached hereto as Exhibit Q, and Tenant shall have the right to record such short form memorandum.

29.7 Landlord’s Title. Landlord’s title is and always shall be paramount to the title of Tenant. Nothing herein contained shall empower Tenant to do any act which can, shall or may encumber the title of Landlord.

29.8 Relationship of Parties. Nothing contained in this Lease shall be deemed or construed by the parties hereto or by any third party to create the relationship of principal and agent, partnership, joint venturer or any association between Landlord and Tenant.

29.9 Application of Payments. If a default by Tenant exists beyond applicable notice and cure periods, Landlord shall have the right to apply payments received from Tenant pursuant to this Lease, regardless of Tenant’s designation of such payments, to satisfy any obligations of Tenant hereunder, in such order and amounts as Landlord, in its sole discretion, may elect.

29.10 Time of Essence. Time is of the essence with respect to the performance of every provision of this Lease in which time of performance is a factor.

29.11 Partial Invalidity. If any term, provision or condition contained in this Lease shall, to any extent, be invalid or unenforceable, the remainder of this Lease, or the application of such term, provision or condition to persons or circumstances other than those with respect to which it is invalid or unenforceable, shall not be affected thereby, and each and every other term, provision and condition of this Lease shall be valid and enforceable to the fullest extent possible permitted by law.

29.12 No Warranty. In executing and delivering this Lease, Tenant has not relied on any representations, including, but not limited to, any representation as to the amount of any item comprising Additional Rent or the amount of the Additional Rent in the aggregate or that Landlord is furnishing the same services to other tenants, at all, on the same level or on the same basis, or any warranty or any statement of Landlord which is not set forth herein or in one or more of the exhibits attached hereto.

 

84


29.13 Landlord Exculpation. The liability of Landlord or the Landlord Parties to Tenant for any default by Landlord under this Lease or arising in connection herewith or with Landlord’s operation, management, leasing, repair, renovation, alteration or any other matter relating to the Property or the Premises shall be limited solely and exclusively to an amount which is equal to the lesser of (a) the interest of Landlord in the Building or (b) the equity interest Landlord would have in the Building if the Building were encumbered by third-party debt in an amount equal to eighty percent (80%) of the value of the Building (as such value is determined by Landlord), including any condemnation, rental, sales or insurance proceeds received by Landlord in connection with the Property, Building or Premises. None of the Landlord Parties shall have any personal liability therefor, and Tenant hereby expressly waives and releases such personal liability on behalf of itself and all persons claiming by, through or under Tenant. The limitations of liability contained in this Section 29.13 shall inure to the benefit of Landlord’s and the Landlord Parties’ present and future partners, beneficiaries, officers, directors, trustees, shareholders, agents and employees, and their respective partners, heirs, successors and assigns. Under no circumstances shall any present or future partner of Landlord (if Landlord is a partnership), or trustee or beneficiary (if Landlord or any partner of Landlord is a trust), have any liability for the performance of Landlord’s obligations under this Lease. Notwithstanding any contrary provision herein, neither Landlord nor the Landlord Parties shall be liable under any circumstances for injury or damage to, or interference with, Tenant’s business, including but not limited to, loss of profits, loss of rents or other revenues, loss of business opportunity or loss of goodwill, in each case, however occurring.

29.14 Entire Agreement. It is understood and acknowledged that there are no oral agreements between the parties hereto affecting this Lease and this Lease constitutes the parties’ entire agreement with respect to the leasing of the Premises and supersedes and cancels any and all previous negotiations, arrangements, brochures, agreements and understandings, if any, between the parties hereto or displayed by Landlord to Tenant with respect to the subject matter thereof, and none thereof shall be used to interpret or construe this Lease. None of the terms, covenants, conditions or provisions of this Lease can be modified, deleted or added to except in writing signed by the parties hereto.

29.15 Right to Lease. Landlord reserves the absolute right to effect such other tenancies in the Property as Landlord in the exercise of its sole business judgment shall determine to best promote the interests of the Building or Property. Tenant does not rely on the fact, nor does Landlord represent, that any specific tenant or type or number of tenants shall, during the Lease Term, occupy any space in the Building or Property.

29.16 Force Majeure. Any prevention, delay or stoppage due to strikes, lockouts, labor disputes, acts of God, inability to obtain services, labor, or materials or reasonable substitutes therefor (including, without limitation, inability due to any Bank-ordered shut-down of all work in the Building), governmental actions, civil commotions, fire or other casualty, and other causes beyond the reasonable control of the party obligated to perform, except with respect to the obligations imposed with regard to Rent and other charges to be paid by Tenant pursuant to this Lease and except as to Tenant’s obligations under Articles 5 and 24 of this Lease (collectively, a “Force Majeure”), notwithstanding anything to the contrary contained in this Lease, shall excuse the performance of such party for a period equal to any such prevention, delay or stoppage and, therefore, if this Lease specifies a time period for performance of an obligation of

 

85


either party, that time period shall be extended by the period of any delay in such party’s performance caused by a Force Majeure but shall not delay any of Tenant’s rent abatement or termination rights set forth herein.

29.17 Waiver of Redemption by Tenant. Tenant hereby waives, for Tenant and for all those claiming under Tenant, any and all rights now or hereafter existing to redeem by order or judgment of any court or by any legal process or writ, Tenant’s right of occupancy of the Premises after any termination of this Lease.

29.18 Notices. All notices, demands, statements, designations, approvals or other communications (collectively, “Notices”) given or required to be given by either party to the other hereunder or by law shall be in writing, shall be (A) sent by United States certified or registered mail, postage prepaid, return receipt requested (“Mail”), (B) delivered by a nationally recognized overnight courier, or (C) delivered personally. Any Notice shall be sent, transmitted, or delivered, as the case may be, to Tenant at the appropriate address set forth in Section 10 of the Summary, or to such other place as Tenant may from time to time designate in a Notice to Landlord, or to Landlord at the addresses set forth below, or to such other places as Landlord may from time to time designate in a Notice to Tenant. Any Notice will be deemed given (i) three (3) business days after the date it is posted if sent by Mail, (ii) the date the overnight courier delivery is made, or (iii) the date personal delivery is made or attempted to be made. If Tenant is notified of the identity and address of Landlord’s mortgagee or ground or underlying lessor, Tenant shall give to such mortgagee or ground or underlying lessor written notice of any default by Landlord under the terms of this Lease by registered or certified mail, and such mortgagee or ground or underlying lessor shall be given a reasonable opportunity to cure such default prior to Tenant’s exercising any remedy available to Tenant. As of the date of this Lease, any Notices to Landlord must be sent, transmitted, or delivered, as the case may be, to the following addresses:

Hudson 1455 Market, LLC

11601 Wilshire Boulevard, Suite 1600

Los Angeles, California 90025

Attention: Mr. Howard Stern

and

Allen Matkins Leck

Gamble Mallory & Natsis

1901 Avenue of the Stars, Suite 1800

Los Angeles, California 90067

Attention: Anton N. Natsis, Esq.

29.19 Joint and Several. If there is more than one Tenant, the obligations imposed upon Tenant under this Lease shall be joint and several.

29.20 Authority. If Tenant is a corporation, trust or partnership, Tenant hereby represents and warrants that Tenant is a duly formed and existing entity qualified to do business in California and that Tenant has full right and authority to execute and deliver this Lease and

 

86


that each person signing on behalf of Tenant is authorized to do so. In such event, Tenant shall, within ten (10) days after Landlord’s request, deliver to Landlord satisfactory evidence of such authority.

29.21 Attorneys’ Fees. In the event that either Landlord or Tenant should bring suit for the possession of the Premises, for the recovery of any sum due under this Lease, or because of the breach of any provision of this Lease or for any other relief against the other, then all costs and expenses, including reasonable attorneys’ fees, incurred by the prevailing party therein shall be paid by the other party, which obligation on the part of the other party shall be deemed to have accrued on the date of the commencement of such action and shall be enforceable whether or not the action is prosecuted to judgment.

29.22 Governing Law; WAIVER OF TRIAL BY JURY. This Lease shall be construed and enforced in accordance with the laws of the State of California. IN ANY ACTION OR PROCEEDING ARISING HEREFROM, LANDLORD AND TENANT HEREBY CONSENT TO (I) THE JURISDICTION OF ANY COMPETENT COURT WITHIN THE STATE OF CALIFORNIA, (II) SERVICE OF PROCESS BY ANY MEANS AUTHORIZED BY CALIFORNIA LAW, AND (III) IN THE INTEREST OF SAVING TIME AND EXPENSE, TRIAL WITHOUT A JURY IN ANY ACTION, PROCEEDING OR COUNTERCLAIM BROUGHT BY EITHER OF THE PARTIES HERETO AGAINST THE OTHER OR THEIR SUCCESSORS IN RESPECT OF ANY MATTER ARISING OUT OF OR IN CONNECTION WITH THIS LEASE, THE RELATIONSHIP OF LANDLORD AND TENANT, TENANT’S USE OR OCCUPANCY OF THE PREMISES, AND/OR ANY CLAIM FOR INJURY OR DAMAGE, OR ANY EMERGENCY OR STATUTORY REMEDY.

29.23 Submission of Lease. Submission of this instrument for examination or signature by Tenant does not constitute a reservation of, option for or option to lease, and it is not effective as a lease or otherwise until execution and delivery by both Landlord and Tenant.

29.24 Brokers. Landlord and Tenant hereby warrant to each other that they have had no dealings with any real estate broker or agent in connection with the negotiation of this Lease, excepting only the real estate brokers or agents specified in Section 12 of the Summary (the “Brokers”), other than Wixen Real Estate Services, which is a subcontractor of, and will be compensated solely by, Custom Spaces Commercial Real Estate, and Tenant’s indemnity obligation to Landlord as set forth in this Section 29.24, below, shall expressly apply, without limitation, to any claims from Wixen Real Estate Services, and that they know of no other real estate broker or agent who is entitled to a commission in connection with this Lease. Landlord shall pay the commission, if any, owing to the Brokers in connection with the execution of this Lease pursuant to the terms of a separate agreement. Each party agrees to indemnify and defend the other party against and hold the other party harmless from any and all claims, demands, losses, liabilities, lawsuits, judgments, costs and expenses (including without limitation reasonable attorneys’ fees) with respect to any leasing commission or equivalent compensation alleged to be owing on account of any dealings with any real estate broker or agent, other than the Brokers, occurring by, through, or under the indemnifying party.

29.25 Independent Covenants. This Lease shall be construed as though the covenants herein between Landlord and Tenant are independent and not dependent and Tenant hereby

 

87


expressly waives the benefit of any statute to the contrary and agrees that if Landlord fails to perform its obligations set forth herein, Tenant shall not be entitled to make any repairs or perform any acts hereunder at Landlord’s expense or to any setoff of the Rent or other amounts owing hereunder against Landlord.

29.26 Property or Building Name and Signage. Landlord shall have the right at any time to change the name of the Property or Building and, subject to Section 23.5, to install, affix and maintain any and all signs on the exterior and on the interior of the Property or Building as Landlord may, in Landlord’s reasonable discretion, desire. Tenant shall not use the name of the Property or Building or use pictures or illustrations of the Property or Building in advertising or other publicity or for any purpose other than as the address of the business to be conducted by Tenant in the Premises, without the prior written consent of Landlord.

29.27 Counterparts. This Lease may be executed in counterparts with the same effect as if both parties hereto had executed the same document. Both counterparts shall be construed together and shall constitute a single lease.

29.28 Intentionally Omitted.

29.29 Transportation Management. So long as the same do not unreasonably interfere with Tenant’s use of the Premises or materially increase Tenant’s costs, Tenant shall fully comply with all present or future programs intended to manage parking, transportation or traffic in and around the Building, and in connection therewith, Tenant shall take responsible action for the transportation planning and management of all employees located at the Premises by working directly with Landlord, any governmental transportation management organization or any other transportation-related committees or entities.

29.30 Building Renovations. It is specifically understood and agreed that Landlord has made no representation or warranty to Tenant and has no obligation and has made no promises to alter, remodel, improve, renovate, repair or decorate the Premises, Building, or any part thereof and that no representations respecting the condition of the Premises or the Building have been made by Landlord to Tenant except as specifically set forth herein or in the Tenant Work Letter. However, Tenant hereby acknowledges that Landlord is currently renovating or may during the Lease Term renovate, improve, alter, or modify (collectively, the “Renovations”) the Property, the Building and/or the Premises including without limitation the parking structure, common areas, systems and equipment, roof, and structural portions of the same, which Renovations may include, without limitation, (i) installing sprinklers in the Building common areas and tenant spaces, (ii) modifying the common areas and tenant spaces to comply with applicable laws and regulations, including regulations relating to the physically disabled, seismic conditions, and building safety and security, and (iii) installing new floor covering, lighting, and wall coverings in the Building common areas, and in connection with any Renovations, Landlord may, among other things, erect scaffolding or other necessary structures in the Building, limit or eliminate access to portions of the Property, including portions of the common areas, or perform work in the Building, which work may create noise, dust or leave debris in the Building. Landlord shall use commercially reasonable efforts to complete any Renovations in a manner which does not materially, adversely affect Tenant’s use of or access to the Premises, and, subject to the foregoing, Tenant hereby agrees that such Renovations and Landlord’s actions in connection with

 

88


such Renovations shall in no way constitute a constructive eviction of Tenant nor entitle Tenant to any abatement of Rent. Landlord shall have no responsibility or for any reason be liable to Tenant for any direct or indirect injury to or interference with Tenant’s business arising from the Renovations, nor shall Tenant be entitled to any compensation or damages from Landlord for loss of the use of the whole or any part of the Premises or of Tenant’s personal property or improvements resulting from the Renovations or Landlord’s actions in connection with such Renovations, or for any inconvenience or annoyance occasioned by such Renovations or Landlord’s actions, provided that the foregoing shall not limit Landlord’s liability, if any, pursuant to Applicable Laws for personal injury and property damage to the extent caused by the gross negligence or willful misconduct of Landlord, its agents, employees or contractors.

29.31 No Violation. Tenant hereby warrants and represents that neither its execution of nor performance under this Lease shall cause Tenant to be in violation of any agreement, instrument, contract, law, rule or regulation by which Tenant is bound, and Tenant shall protect, defend, indemnify and hold Landlord harmless against any third party claims or demands, asserted against Landlord, including, without limitation, reasonable attorneys’ fees and costs, arising from Tenant’s breach of this warranty and representation.

29.32 Communications and Computer Lines. Tenant may install, maintain, replace, remove or use any communications or computer wires and cables (collectively, the “Lines”) at the Property in or serving the Premises, provided that (i) Tenant shall use an experienced and qualified contractor approved in writing by Landlord, and comply with all of the other provisions of Articles 7 and 8 of this Lease, (ii) an acceptable amount of space for additional Lines shall be maintained for existing and future occupants of the Property, as determined in Landlord’s reasonable opinion, (iii) the Lines therefor (including riser cables) shall be appropriately insulated to prevent excessive electromagnetic fields or radiation, and shall be surrounded by a protective conduit reasonably acceptable to Landlord, (iv) any new or existing Lines servicing the Premises shall comply with all applicable governmental laws and regulations, (v) as a condition to permitting the installation of new Lines, Landlord may require that Tenant remove any existing unused Lines installed by Tenant and repair any damage in connection with such removal, and (vi) Tenant shall pay all costs in connection therewith. Landlord reserves the right to require that Tenant remove any Lines installed by Tenant and located in or serving the Premises which are installed in violation of these provisions, or which are at any time in violation of any laws or represent a dangerous or potentially dangerous condition.

29.33 Development of the Property.

29.33.1 Subdivision. So long as the same does not unreasonably interfere with Tenant’s use of the Premises, Landlord reserves the right to further subdivide all or a portion of the Property. Tenant agrees to execute and deliver, upon demand by Landlord and in the form reasonably requested by Landlord, any additional documents needed to conform this Lease to the circumstances resulting from such subdivision.

29.33.2 The Other Improvements. If portions of the Property or property adjacent to the Property (collectively, the “Other Improvements”) are owned by an entity other than Landlord, so long as the same does not unreasonably interfere with Tenant’s use of the Premises, Landlord, at its option, may enter into an agreement with the owner or owners of any

 

89


or all of the Other Improvements to provide (i) for reciprocal rights of access and/or use of the Property and the Other Improvements, (ii) for the common management, operation, maintenance, improvement and/or repair of all or any portion of the Property and the Other Improvements, (iii) for the allocation of a portion of the Direct Expenses to the Other Improvements and the operating expenses and taxes for the Other Improvements to the Property, and (iv) for the use or improvement of the Other Improvements and/or the Property in connection with the improvement, construction, and/or excavation of the Other Improvements and/or the Property. Nothing contained herein shall be deemed or construed to limit or otherwise affect Landlord’s right to convey all or any portion of the Property or any other of Landlord’s rights described in this Lease.

29.33.3 Construction of Property and Other Improvements. Tenant acknowledges that portions of the Property and/or the Other Improvements may be under construction following Tenant’s occupancy of the Premises, and that such construction may result in levels of noise, dust, obstruction of access, etc. which are in excess of that present in a fully constructed project. So long as the same does not unreasonably interfere with Tenant’s use of the Premises, Tenant hereby waives any and all rent offsets (except as specifically set forth in Section 19.5.2 of this Lease) in connection with such construction. Furthermore, provided that Landlord employs commercially reasonable efforts to minimize interference with the conduct of Tenant’s business, Tenant hereby waives any claims of constructive eviction which may arise in connection with such construction.

29.34 Patriot Act and Executive Order 13224. Tenant represents, warrants and covenants that, to Tenant’s knowledge, each party that (other than through the passive ownership of interests) constitutes, owns, controls, is not, and at no time during the Lease Term will be, (i) in violation of any applicable laws relating to terrorism or money laundering, or (ii) among the parties identified on any list compiled pursuant to Executive Order 13224 for the purpose of identifying suspected terrorists or on the most current list published by the U.S. Treasury Department Office of Foreign Assets Control at its official website, http://www.treas.gov/ofac/tllsdn.pdf or any replacement website or other replacement official publication of such list.

29.35 Green Cleaning/Recycling Program. Tenant shall reasonably cooperate if and to the extent Landlord implements a green cleaning program and/or recycling program for the Property, and hereby agrees that the reasonable costs associated with any such green cleaning and/or recycling program shall be included in Operating Expenses.

29.36 Asbestos Notifications. Landlord has advised Tenant that there is asbestos-containing material (“ACM”) in the Building. Attached hereto as Exhibit M is a disclosure statement regarding ACM in the Building. Tenant acknowledges that such notice complies with the requirements of Section 25915 et. seq. and Section 25359.7 of the California Health and Safety Code.

29.37 Cooperation. Landlord and Tenant shall use commercially reasonable efforts and cooperate with each other in good faith, at Tenant’s request to (i) cause the Mayor of San Francisco to extend that certain “Payroll Tax Exclusion Zone” to include the Building at no cost to Landlord; and (ii) develop and implement a shuttle service to and from CalTrain for tenants of

 

90


the Building at no cost to Landlord. Tenant hereby acknowledges that Landlord has made no representation or warranty to Tenant with respect to the probability of either event described above actually occurring. In the event the Payroll Tax Exclusion Zone is not extended to include the Building, and/or the parties are not able to develop and/or implement a shuttle service, Tenant’s and Landlord’s rights and obligations under the remaining terms and conditions of this Lease shall be unaffected.

29.38 Approvals. Whenever this Lease requires an approval, consent, determination, selection or judgment by either Landlord or Tenant, unless another standard is expressly set forth, such approval, consent, determination, selection or judgment and any conditions imposed thereby shall be reasonable and shall not be unreasonably withheld or delayed.

[Signature Page to Follow]

 

91


IN WITNESS WHEREOF, Landlord and Tenant have caused this Lease to be executed the day and date first above written.

 

LANDLORD:
HUDSON 1455 MARKET, LLC, a Delaware limited liability company
By: Hudson Pacific Properties, L.P.,
a Maryland limited partnership
Its: Sole Member
By: Hudson Pacific Properties, Inc.,
a Maryland corporation
Its: General Partner
By:

/s/ Howard Stern

Name: Howard Stern
Title: President
TENANT:

SQUARE INC.,

a Delaware corporation

By:

/s/ Keith Rabers

Name: Keith Rabers
Title: COO
By:

/s/ Sarah Friar

Name: Sarah Friar
Title: CFO

PLEASE NOTE: THIS LEASE MUST BE EXECUTED BY EITHER (I) BOTH (A) THE CHAIRMAN OF THE BOARD, THE PRESIDENT OR ANY VICE PRESIDENT OF TENANT, AND (B) THE SECRETARY, ANY ASSISTANT SECRETARY, THE CHIEF FINANCIAL OFFICER, OR ANY ASSISTANT TREASURER OF TENANT; OR (II) AN AUTHORIZED SIGNATORY OF TENANT PURSUANT TO A CERTIFIED CORPORATE RESOLUTION, A COPY OF WHICH SHOULD BE DELIVERED WITH THE EXECUTED ORIGINALS.


EXHIBIT A

OUTLINE OF PREMISES

A-1: Initial Premises

 

LOGO


LOGO


LOGO


LOGO


LOGO


LOGO


LOGO


LOGO


EXHIBIT B

1455 MARKET STREET

TENANT WORK LETTER

This Tenant Work Letter shall set forth the terms and conditions relating to the construction of the Premises. This Tenant Work Letter is essentially organized chronologically and addresses the issues of the construction of the Premises, in sequence, as such issues will arise during the actual construction of the Premises. All references in this Tenant Work Letter to Articles or Sections of “this Lease” shall mean the relevant portions of Articles 1 through 29 of the Office Lease to which this Tenant Work Letter is attached as Exhibit B, and all references in this Tenant Work Letter to Sections of “this Tenant Work Letter” shall mean the relevant portions of Sections 1 through 5 of this Tenant Work Letter. All capitalized terms used but not otherwise defined herein shall have the meanings ascribed to such terms in the Lease. All references in this Tenant Work Letter to the “Premises” shall mean the Initial Premises and the Must-Take Space; provided, however, to the extent the Expansion Space and/or any Availability Premises is actually leased by Tenant, for purposes of Sections 1, 2, 5.5 and 5.6 of this Tenant Work Letter only, all references to the “Premises” shall mean the Initial Premises, the Must-Take Space, and any Expansion Space and/or Availability Premises, as the case may be. Additionally, to the extent such Expansion Space and/or Availability Premises is actually leased by Tenant, all references in this Tenant Work Letter to the “Tenant Improvement Allowance” shall be deemed to include any Expansion Improvement Allowance and/or Availability Premises Improvement Allowance, as the case may be.

SECTION 1

BASE SHELL AND CORE; DELIVERY CONDITION

Base, Shell and Core. Landlord has constructed, at its sole cost and expense, the base, shell, and core (i) of the Premises, and (ii) of the floors of the Building on which the Premises are located (collectively, the “Base, Shell, and Core”). The Base, Shell and Core shall be delivered by Landlord to Tenant in their presently existing, “as-is” condition, except as otherwise expressly provided in this Tenant Work Letter. Notwithstanding the foregoing, the Building Systems servicing each portion of the Premises shall be in good working order and condition as of the date Landlord delivers such portion of the Premises to Tenant.

Delivery Condition. Landlord shall, at Landlord’s sole cost, complete the work items set forth in Schedule 1 attached hereto (collectively, the “Landlord Work”), as applicable to each floor of the Premises, on or before the dates set forth in Schedule 1 with respect to each work item, including, to the extent applicable, any work items that are required to be completed by Landlord prior to the applicable Commencement Date. Upon the completion of the Landlord Work required in any particular portion of the Premises (and, if applicable, the removal of any Hazardous Substances therefrom in accordance with the immediately preceding sentence), such portion shall be deemed to be in the applicable “Delivery Condition” for purposes of the Lease. Landlord shall perform the Landlord Work in a good and workmanlike manner, and, to the


extent necessary for Landlord to pull any necessary construction permits or for Tenant to legally occupy the Premises for the Permitted Use, in accordance with Applicable Laws, and in accordance with the approved plans therefor and in a manner that will not unreasonably and materially interfere with Tenant’s completion of the Tenant Improvements. Landlord and Tenant shall mutually cooperate in good faith with each other in connection with the concurrent construction and completion of Landlord’s Work and the Tenant Improvements.

Compliance with Law. Notwithstanding anything to the contrary in this Tenant Work Letter or the Lease, as part of the Landlord Work, (a) Landlord shall be solely responsible for all costs related to the presence of existing Hazardous Substances on or about the Premises to the extent required for Tenant’s legal occupancy of the Premises or to perform the Tenant Improvement work; (b) to the extent required in order for Tenant to legally occupy the Premises, or in order to pull a construction permit for Tenant Improvement work for normal and customary office improvements in the SOMA area, assuming an office occupancy density no greater than 1 person per 125 RSF (the “Density Standard”), or to otherwise comply with requirements of the applicable permitting authority (except to the extent such compliance is triggered by Tenant’s particular use of the Premises or Tenant’s construction of Tenant Improvements that are not normal and customary office improvements in the SOMA area or above the Density Standard), Landlord shall be solely responsible for all costs to bring (i) the non-tenant portions of the Building and project outside of the Premises, including Common Area restrooms and Common Area elevator lobbies and Building Systems, (ii) all structural portions of the Premises and the portions of the Building Systems inside the Premises (such as the main loop of the sprinkler system and the main HVAC trunk/loop), and (iii) all emergency evacuation stairways, into compliance with Applicable Laws; and (c) the date Tenant is obligated to commence paying rent for any Premises shall be extended by one (1) day for each day Tenant’s substantial completion of the Tenant Improvements is delayed due to a “Landlord Delay” or “Tenant Force Majeure Delay,” as those terms are defined below. Landlord hereby acknowledges that, to the extent allowed by Applicable Law, Tenant may build-out and occupy the sixth (6th) floor of the Building at a density level greater than the Density Standard; provided that Tenant shall pay for any modifications to the Base Building to the extent such modification would not have been required had the build-out or occupancy met the Density Standard. As used herein, “Tenant Force Majeure Delay” shall mean acts of God, casualties, natural disasters, strikes, war, terrorist attacks, lockouts, labor disputes or civil commotion. As used herein, “Landlord Delay” shall mean an actual delay resulting from the acts or omissions of Landlord including, but not limited to (i) failure of Landlord to timely approve or disapprove any Construction Documents; (ii) unreasonable and material interference by Landlord, its agents or contractors with the completion of the Tenant Improvements and which objectively preclude construction of tenant improvements in the Building; and (iii) delays due to the acts or failures to act of Landlord, its agents or contractors with respect to payment of the Tenant Improvement Allowance. If Tenant contends that a Landlord Delay has occurred, Tenant shall notify Landlord in writing (the “Delay Notice”) of the event which constitutes such Landlord Delay. If the actions or inactions or circumstances described in the Delay Notice qualify as a Landlord Delay, and are not cured by Landlord within one (1) business day after Tenant’s delivery of the Delay Notice, then a Landlord Delay shall be deemed to have occurred.


SECTION 2

TENANT IMPROVEMENTS

Tenant Improvement Allowance.

Tenant Improvement Allowance. Tenant shall be entitled to a one-time tenant improvement allowance (the “Tenant Improvement Allowance”) in the amount of $60.00 per rentable square foot of the Premises for the costs relating to the initial design and construction of Tenant’s improvements, which, except as provided in Section 2.2.1.10, below, are permanently affixed to the Premises (the “Tenant Improvements”). Except with respect to the Landlord Work, in no event shall Landlord be obligated to make disbursements pursuant to this Tenant Work Letter in a total amount which exceeds the Tenant Improvement Allowance and “Landlord’s Drawing Contribution” (as that term is defined below). In the event that the Tenant Improvement Allowance for any particular portion of the Premises is not fully utilized by Tenant within one (1) year after the applicable Rent Commencement Date for such portion, then such unused amounts shall revert to Landlord, and Tenant shall have no further rights with respect thereto. Any Tenant Improvements that require the use of Building risers, raceways, shafts and/or conduits, shall be subject to Landlord’s reasonable rules, regulations, and restrictions, including the requirement that any cabling vender to the extent performing work in the riser must be reasonably approved by Landlord, and that the amount and location of any such cabling must be reasonably approved by Landlord, subject to the terms of Section 6.1.7 of the Lease. All Tenant Improvements for which the Tenant Improvement Allowance has been used shall be deemed Landlord’s property under the terms of the Lease; provided, however, Landlord may, by written notice to Tenant prior to the end of the Lease Term, or given following any earlier termination of this Lease, require Tenant, at Tenant’s expense, to remove any Tenant Improvements and to repair any damage to the Premises and Building caused by such removal and return the affected portion of the Premises to their condition existing prior to the installment of such Tenant Improvements; provided, however, that, notwithstanding the foregoing, (i) upon request by Tenant at the time of Tenant’s request for Landlord’s approval of the “Final Working Drawings,” as that term is defined in Section 3.3 of this Tenant Work Letter, Landlord shall notify Tenant whether the Tenant Improvements will be required to be removed pursuant to the terms of this Section 2.1, and (ii) Tenant’s removal and restoration obligation with respect to the Tenant Improvements shall be subject to the terms of Section 8.5 of the Lease, including, without limitation, any restrictions on Landlord’s right to require Tenant’s removal of specific improvements. In addition, Landlord shall contribute an amount not to exceed $0.15 per rentable square foot of the Initial Premises, the Must-Take 1 Space, and the Must-Take 2 Space (“Landlord’s Drawing Contribution”) toward the cost of a preliminary analysis and fit plan to be prepared by the “Architect” (as that term is defined below), and no portion of the Landlord’s Drawing Contribution, if any, remaining after completion of the Tenant Improvements shall be available for use by Tenant. Tenant shall deliver one (1) hard copy and one (1) electronic copy of the preliminary space plan to Landlord within fifteen (15) days after Tenant’s execution of the Lease (the “Space Plan Delivery Date”). Landlord shall disburse such Landlord Drawing Contribution amount within thirty (30) days of written request by Tenant accompanied by an invoice and proof of payment from the Architect for such work.


Additional Tenant Improvement Allowance. In addition to the Tenant Improvement Allowance, Tenant shall have the right, exercisable no later than the applicable Rent Commencement Date, to use up to $10.00 per rentable square foot of the Initial Premises, the Must-Take 1 Space, and/or the Must-Take 2 Space (the “Additional Tenant Improvement Allowance”) towards the payment of the costs of the “Tenant Improvement Allowance Items” (as that term is defined below). In the event Tenant exercises its right to use all or any portion of the Additional Tenant Improvement Allowance, an amount equal to the “Additional Monthly Base Rent,” as that term is defined below, shall be added to each month’s Base Rent payment in order to repay the Additional Tenant Improvement Allowance to Landlord. The “Additional Monthly Base Rent” shall be determined as the missing component of an annuity, which annuity shall have (i) the amount of the Additional Tenant Improvement Allowance utilized by Tenant as the starting principal amount, (ii) the number of monthly Base Rent payments to be made by Tenant during the Lease Term as the number of payments, (iii) sixty-seven one-hundredths (.67), which is equal to eight percent (8%) divided by twelve (12) months per year, as the monthly interest factor and (iv) the Additional Monthly Base Rent as the missing component of the annuity. As an example only, if Tenant elects to use the entire Additional Tenant Improvement Allowance with respect to the Initial Premises (i.e., $1,818,050.00 based on 181,805 rentable square feet), and the applicable one hundred twenty (120) monthly Base Rent payments, the Additional Monthly Base Rent shall be equal to $22,057.96. In this event, (a) the “Tenant Improvement Allowance”, shall be deemed to include the Additional Tenant Improvement Allowance which Tenant elects to utilize, (b) the parties shall promptly execute an amendment (the “Amendment”) to the Lease setting forth the additional amount of the Base Rent with respect to only the applicable space (i.e., Initial Premises, the Must-Take 1 Space or the Must-Take 2 Space), and the additional amount of Tenant Improvement Allowance with respect to only the applicable space (i.e., Initial Premises, the Must-Take 1 Space or the Must-Take 2 Space), computed in accordance with this Section 2.1.2, and (c) the additional amount of monthly Base Rent owing in accordance with this Section 2.1.2 for the first full month of the Lease Term which occurs after the expiration of any free rent period shall be paid by Tenant to Landlord at the later of the date Landlord delivers the applicable portion of the Premises to Tenant in the required condition and the time of Tenant’s execution of the Amendment.

Disbursement of the Tenant Improvement Allowance.

Tenant Improvement Allowance Items. Except as otherwise set forth in this Tenant Work Letter, the Tenant Improvement Allowance shall be disbursed by Landlord only for the following items and costs (collectively the “Tenant Improvement Allowance Items”):

Payment of the fees of the Architect and the “Engineers” (as that term is defined in Section 3.1 of this Tenant Work Letter), which fees shall, notwithstanding anything to the contrary contained in this Tenant Work Letter, not exceed an aggregate amount equal to $3.00 per rentable square foot of the Premises, and Tenant’s construction manager;

The payment of plan check, permit and license fees relating to construction of the Tenant Improvements;


The cost of construction of the Tenant Improvements, including, without limitation, testing and inspection costs, deposits for materials, freight elevator usage, hoisting and trash removal costs, and contractors’ fees and general conditions;

The cost of any changes in the Base Building when such changes are required by the Construction Documents (including if such changes are due to the fact that such work is prepared on an unoccupied basis), such cost to include all direct architectural and/or engineering fees and expenses, and any City or permit costs, incurred in connection therewith;

The cost of any changes to the Construction Documents or Tenant Improvements required by all applicable building codes (the “Code”);

The cost of connection of the Premises to the Building’s energy management systems;

The cost of any demolition work on the 6th Floor Premises that Tenant requests Landlord perform on Tenant’s behalf concurrently with Landlord’s performance of the Landlord Work, in an amount agreed upon in writing by Tenant and Landlord prior to Landlord’s commencement of such work;

The cost of the “Coordination Fee,” as that term is defined in Section 4.2.2 of this Tenant Work Letter;

Sales and use taxes and Title 24 fees;

The cost of cabling, not to exceed an aggregate amount equal to $3.00 per rentable square foot of the Premises;

The cost to install a full gas range cooking kitchen with venting and grease traps; and

Subject to Applicable Laws and Landlord’s prior written approval, which may be withheld in Landlord’s reasonable discretion, the cost to construct stairwells between the podium floors (connecting the 6th, 7th, 8th, and 9th Floor Premises, to the extent adjacent floors are leased by Tenant);

Disbursement of Tenant Improvement Allowance. During the construction of the Tenant Improvements, Landlord shall make monthly disbursements of the Tenant Improvement Allowance for Tenant Improvement Allowance Items for the benefit of Tenant and shall authorize the release of monies for the benefit of Tenant as follows.

Monthly Disbursements. Once each calendar month during the construction of the Tenant Improvements (or such other date as Landlord may designate), Tenant may deliver to Landlord: (i) a request for payment of the “Contractor,” as that term is defined in Section 4.1 of this Tenant Work Letter, approved by Tenant, in a reasonable form to be provided by Landlord, showing the schedule, by trade, of percentage of completion of the Tenant Improvements in the Premises, detailing the portion of the work completed and the portion not completed; (ii) invoices from all of “Tenant’s Agents,” as that term is defined in Section 4.1.2 of


this Tenant Work Letter, for labor rendered and materials delivered to the Premises; (iii) executed conditional mechanic’s lien releases from all of Tenant’s Agents which shall comply with the appropriate provisions, as reasonably determined by Landlord, of California Civil Code Section 3262(d); and (iv) all other information reasonably requested by Landlord. Within thirty (30) days thereafter, Landlord shall deliver a check to Tenant made payable to Tenant in payment of the lesser of: (A) the amounts so requested by Tenant, as set forth in this Section 2.2.2.1, above, and (B) the balance of any remaining available portion of the Tenant Improvement Allowance, provided that Landlord does not reasonably dispute any request for payment based on non-compliance of any work with the “Approved Working Drawings,” as that term is defined in Section 3.4 below, or due to any substandard work. Landlord’s payment of such amounts shall not be deemed Landlord’s approval or acceptance of the work furnished or materials supplied as set forth in Tenant’s payment request. Tenant hereby agrees to withhold a ten percent (10%) retention (the aggregate amount of such retentions to be known as the “Final Retention”) of all amounts paid to Contractor.

Final Retention. Tenant shall not pay Contractor the Final Retention until the completion of construction of the Premises, including all of the following: (i) Tenant delivers to Landlord properly executed mechanics lien releases in compliance with both California Civil Code Section 3262(d)(2) and either Section 3262(d)(3) or Section 3262(d)(4), (ii) Landlord has determined that no substandard work exists which adversely affects the mechanical, electrical, plumbing, heating, ventilating and air conditioning, life-safety or other systems of the Building, the curtain wall of the Building, the structure or exterior appearance of the Building, or any other tenant’s use of such other tenant’s leased premises in the Building, (iii) Architect delivers to Landlord a certificate, in a form reasonably acceptable to Landlord, certifying that the construction of the Tenant Improvements in the Premises has been substantially completed, and (iv) Tenant delivers to Landlord two (2) hard copies and one (1) electronic copy of the “Close-Out Package” (as that term is defined in Section 4.3 below).

Other Terms. Landlord shall only be obligated to make disbursements from the Tenant Improvement Allowance to the extent costs are incurred by Tenant for Tenant Improvement Allowance Items. All Tenant Improvement Allowance Items for which the Tenant Improvement Allowance has been made available shall be deemed Landlord’s property under the terms of this Lease.

Standard Tenant Improvement Package. Landlord has established specifications (the “Specifications”) for the Building standard components to be used in the construction of the Tenant Improvements in the Premises (collectively, the “Standard Improvement Package”), which Specifications have been provided to Tenant by Landlord. The quality of Tenant Improvements shall be equal to or of greater quality than the quality of the Specifications, provided that the Tenant Improvements shall comply with certain Specifications as reasonably designated by Landlord. The parties hereby agree and acknowledge that notwithstanding anything to the contrary set forth in the Lease or this Tenant Work Letter, to the extent any Tenant Improvements do not comply with the Specifications designated by Landlord, the maintenance and repair of such Tenant Improvements shall be the responsibility of Tenant, at Tenant’s sole cost and expense.


Failure to Disburse Tenant Improvement Allowance. If Landlord fails to timely fulfill its obligation to fund any portion of the Tenant Improvement Allowance, Tenant shall be entitled to deliver notice (the “Payment Notice”) thereof to Landlord and to any mortgage or trust deed holder of the Building whose identity and address have been previously provided to Tenant. If Landlord still fails to fulfill any such obligation within twenty (20) business days after Landlord’s receipt of the Payment Notice from Tenant and if Landlord fails to deliver notice to Tenant within such twenty (20) business day period explaining Landlord’s proper reasons that Landlord believes that the amounts described in Tenant’s Payment Notice are not due and payable by Landlord (“Refusal Notice”), Tenant shall be entitled to offset the amount so owed to Tenant by Landlord but not paid by Landlord (or if Landlord delivers a Refusal Notice but only with respect to a portion of the amount set forth in the Payment Notice and Landlord fails to pay such undisputed amount as required by the next succeeding sentence, the undisputed amount so owed to Tenant) from the last day of such 20-business day period until the date of offset, against Tenant’s next obligations to pay Rent. Notwithstanding the foregoing, Landlord hereby agrees that if Landlord delivers a Refusal Notice disputing a portion of the amount set forth in Tenant’s Payment Notice, Landlord shall pay to Tenant, concurrently with the delivery of the Refusal Notice, the undisputed portion of the amount set forth in the Payment Notice. However, if Tenant is in default under Section 19.1.1 of the Lease at the time that such offset would otherwise be applicable, Tenant shall not be entitled to such offset until such default is cured. If Landlord delivers a Refusal Notice, and if Landlord and Tenant are not able to agree on the disputed amounts to be so paid by Landlord, if any, within ten (10) days after Tenant’s receipt of a Refusal Notice, Tenant may submit such dispute to arbitration in accordance with the American Arbitration Association. If Tenant prevails in any such arbitration, Tenant shall be entitled to apply such award as a credit against Tenant’s obligations to pay Rent.

SECTION 3

CONSTRUCTION DRAWINGS

Selection of Architect/Construction Documents. Tenant shall retain an architect/space planner reasonably approved by Landlord (the “Architect”) to prepare the “Construction Documents,” as that term is defined in this Section 3.1. Tenant shall retain engineering consultants reasonably approved by Landlord (the “Engineers”) to prepare all plans and engineering working drawings relating to the structural, mechanical, electrical, plumbing, HVAC, lifesafety, and sprinkler work in the Premises, which work is not part of the Base Building; provided, however, Tenant hereby agrees and shall be required to hire Honeywell for fire-life-safety work and DDC for HVAC controls; provided that Landlord shall use commercially reasonable efforts to cause Honeywell to charge a competitive market price. Landlord hereby approves of Bohlin Cywinski Jackson as the Architect and Tipping Mar (Structural) and CB Engineers (Mechanical, Electrical, Plumbing, Fire Protection) as the Engineers. The plans and drawings to be prepared by Architect and the Engineers hereunder shall be known collectively as the “Construction Documents.” Tenant shall deliver one (1) hard copy and one (1) electronic copy of the Construction Documents to Landlord within ninety (90) days after the Space Plan Delivery Date. Tenant shall be required to include in its contracts with the Architect and the Engineers a provision which requires ownership of all Construction Documents to be transferred to Tenant upon the Substantial Completion of the Tenant Improvements and Tenant hereby grants to Landlord a non-exclusive right to use such


Construction Documents, including, without limitation, a right to make copies thereof. All Construction Documents shall comply with the reasonable drawing format and specifications reasonably determined by Landlord, and shall be subject to Landlord’s approval. Tenant and Architect shall verify, in the field, the dimensions and conditions as shown on the relevant portions of the base building plans, and Tenant and Architect shall be solely responsible for the same, and Landlord shall have no responsibility in connection therewith. Landlord’s review of the Construction Documents as set forth in this Section 3, shall be for its sole purpose and shall not imply Landlord’s review of the same, or obligate Landlord to review the same, for quality, design, Code compliance or other like matters. Accordingly, notwithstanding that any Construction Documents are reviewed by Landlord or its space planner, architect, engineers and consultants, and notwithstanding any advice or assistance which may be rendered to Tenant by Landlord or Landlord’s space planner, architect, engineers, and consultants, Landlord shall have no liability whatsoever in connection therewith and shall not be responsible for any omissions or errors contained in the Construction Documents, and Tenant’s waiver and indemnity set forth in this Lease shall specifically apply to the Construction Documents.

Final Space Plan. Tenant shall supply Landlord with four (4) copies of its concept design drawings for the Premises before any architectural working drawings or engineering drawings have been commenced. The concept design drawings (the “Final Space Plan”) shall include a layout and designation of all offices, rooms and other partitioning, their intended use, and equipment to be contained therein. Landlord may request clarification or more specific drawings for special use items not included in the Final Space Plan. Landlord shall advise Tenant within five (5) business days after Landlord’s receipt of the Final Space Plan for the Premises if the same is approved, or, if the Final Space Plan is not reasonably satisfactory or is incomplete in any respect, disapproved, in which event Landlord shall include in its notice of disapproval a reasonably detailed explanation as to which items are not satisfactory or complete and the reason(s) therefor. If Tenant is so advised, Tenant shall promptly cause the Final Space Plan to be revised to correct any deficiencies or other matters Landlord may reasonably require. Subject to Landlord’s review of fully engineered construction drawings, Landlord hereby approves the conceptual plan dated October 9, 2012, prepared by Bohlin Cywinski Jackson (the “Conceptual Plan”), and Landlord shall not withhold its consent to the Final Space Plan to the extent such Final Space Plan is consistent with the Conceptual Plan.

Final Working Drawings. After the Final Space Plan has been approved by Landlord, Tenant shall supply the Engineers with a complete listing of standard and non-standard equipment and specifications, including, without limitation, B.T.U. calculations, electrical requirements and special electrical receptacle requirements for the Premises, to enable the Engineers and the Architect to complete the “Final Working Drawings” (as that term is defined below) in the manner as set forth below. Upon the approval of the Final Space Plan by Landlord and Tenant, Tenant shall promptly cause the Architect and the Engineers to complete the architectural and engineering drawings for the Premises, and Architect shall compile a fully coordinated set of architectural, structural, mechanical, electrical and plumbing working drawings in a form which is complete to allow subcontractors to bid on the work and to obtain all applicable permits, commonly referred to as construction documents (collectively, the “Final Working Drawings”) and shall submit the same to Landlord for Landlord’s approval. Tenant shall supply Landlord with four (4) copies of such Final Working Drawings. Landlord shall advise Tenant within five (5) business days after Landlord’s receipt of the Final Working


Drawings for the Premises if the same are approved, or, if the Final Working Drawings are not reasonably satisfactory or are incomplete in any respect, disapproved, in which event Landlord shall include in its notice of disapproval a reasonably detailed explanation as to which items are not satisfactory or complete and the reason(s) therefor. If Tenant is so advised, Tenant shall immediately revise the Final Working Drawings in accordance with such review and any disapproval of Landlord in connection therewith.

Approved Working Drawings. The Final Working Drawings shall be approved by Landlord (the “Approved Working Drawings”) prior to the submission of the same to the appropriate municipal authorities for all applicable building permits (the “Permits”) and commencement of construction of the Premises by Tenant.; provided, however, at Tenant’s election and at Tenant’s risk with respect to any subsequent changes that may be required by Landlord in accordance with this Tenant Work Letter, Tenant may submit the Final Working Drawings to the appropriate municipal authorities for Permits concurrently with Landlord’s review thereof. After approval by Landlord of the Final Working Drawings, Tenant shall submit such Approved Working Drawings for the Permits. Tenant hereby agrees that neither Landlord nor Landlord’s consultants shall be responsible for obtaining any building permit for the Tenant Improvements or certificate of occupancy for the Premises and that obtaining the same shall be Tenant’s responsibility; provided, however, that Landlord shall cooperate with Tenant in executing permit applications and performing other ministerial acts reasonably necessary to enable Tenant to obtain any such permit or certificate of occupancy. No material changes, modifications or alterations in the Approved Working Drawings may be made without the prior written consent of Landlord, which consent may not be unreasonably withheld. Landlord shall provide any approvals and take any actions required under this Tenant Work Letter within the time periods specified herein, or, if no time period is specified, then within five (5) business days. Landlord’s failure to timely respond shall be deemed a Landlord Delay, subject to the terms of Section 1.3, above.

SECTION 4

CONSTRUCTION OF THE TENANT IMPROVEMENTS

Tenant’s Selection of Contractors.

The Contractor. Tenant shall retain a licensed general contractor, approved in advance by Landlord (“Contractor”), to construct the Tenant Improvements. Landlord’s approval of the Contractor shall not be unreasonably withheld. Landlord hereby approves of BCCI Construction Company as the Contractor.

Tenant’s Agents. All subcontractors, laborers, materialmen, and suppliers used by Tenant, together with the Contractor, shall be known collectively as “Tenant’s Agents”.

Construction of Tenant Improvements by Tenant’s Agents.

Construction Contract; Cost Budget. Tenant hereby agrees that Tenant’s construction contract and general conditions with Contractor (the “Contract”) shall contains commercially reasonably warranties and indemnifications that inure to Landlord’s benefit. Prior


to the commencement of the construction of the Tenant Improvements, and after Tenant has accepted all bids for the Tenant Improvements, Tenant shall provide Landlord with a detailed breakdown, by trade, of the final costs to be incurred or which have been incurred, as set forth more particularly in Sections 2.2.1.1 through 2.2.1.13, above, in connection with the design and construction of the Tenant Improvements to be performed by or at the direction of Tenant or the Contractor, which costs form a basis for the amount of the Contract (the “Final Costs”). Prior to the commencement of construction of the Tenant Improvements, Tenant shall identify the amount (the “Over-Allowance Amount”) equal to the difference between the amount of the Final Costs and the amount of the Tenant Improvement Allowance (less any portion thereof already disbursed by Landlord, or in the process of being disbursed by Landlord, on or before the commencement of construction of the Tenant Improvements). In the event that the Final Costs are greater than the amount of the Tenant Improvement Allowance (the “Over-Allowance Amount”), then Tenant shall pay thirty percent (30%) of each amount requested by the Contractor or otherwise to be disbursed under this Tenant Work Letter, and such payments by Tenant (the “Over-Allowance Payments”) shall be a condition to Landlord’s obligation to pay any amounts from the Tenant Improvement Allowance. Landlord shall pay seventy percent (70%) of each amount requested by the Contractor or otherwise to be disbursed under this Tenant Work Letter, until the Tenant Improvement Allowance has been paid. Once the entire Tenant Improvement Allowance has been paid by Landlord, Tenant shall thereafter pay one hundred percent (100%) of each amount requested by the Contractor or otherwise to be disbursed under this Tenant Work Letter. In connection with any payment of the Over-Allowance Amount made by Tenant pursuant to this Section 4.2.1, Tenant shall provide Landlord with the documents described in Sections 2.2.2.1(i), (ii), (iii) and (iv) of this Tenant Work Letter, above, for Landlord’s approval, prior to Tenant paying such costs. Notwithstanding anything set forth in this Tenant Work Letter to the contrary, construction of the Tenant Improvements shall not commence until (a) Landlord has approved the Contract, and (b) Tenant has procured and delivered to Landlord a copy of all Permits for the applicable Tenant Improvements. Landlord acknowledges that the demolition work and other phases of construction will commence on different dates

Tenant’s Agents.

Landlord’s General Conditions for Tenant’s Agents and Tenant Improvement Work. Tenant’s and Tenant’s Agent’s construction of the Tenant Improvements shall comply with the following: (i) the Tenant Improvements shall be constructed in accordance with the Approved Working Drawings, subject to minor field adjustments; (ii) Landlord’s reasonable rules and regulations for the construction of improvements in the Building, a copy of which have been provided to Tenant, (iii) Tenant’s Agents shall submit schedules of all work relating to the Tenant’s Improvements to Contractor and Contractor shall, within five (5) business days of receipt thereof, inform Tenant’s Agents of any changes which are necessary thereto, and Tenant’s Agents shall adhere to such corrected schedule; and (iv) Tenant shall abide by all reasonable rules made by Landlord’s Building manager with respect to the use of freight, loading dock and service elevators, storage of materials, coordination of work with the contractors of other tenants, and any other matter in connection with this Tenant Work Letter, including, without limitation, the construction of the Tenant Improvements. Tenant shall pay a logistical coordination fee (the “Coordination Fee”) to Landlord in an amount equal to one percent (1%) of the lesser of (i) the Tenant Improvement Allowance, and (ii) an amount equal to


the “hard costs” of construction of the Tenant Improvements, which Coordination Fee shall be for services relating to the coordination of the construction of the Tenant Improvements.

Indemnity. Tenant’s indemnity of Landlord as set forth in this Lease shall also apply with respect to any and all costs, losses, damages, injuries and liabilities related in any way to any act or omission of Tenant or Tenant’s Agents, or anyone directly or indirectly employed by any of them, or in connection with Tenant’s non-payment of any amount arising out of the Tenant Improvements and/or Tenant’s disapproval of all or any portion of any request for payment. The foregoing indemnity shall not apply to claims caused by the negligence or willful misconduct of Landlord, its member partners, shareholders, officers, directors, agents, employees, and/or contractors, or Landlord’s violation of this Lease. Landlord’s indemnity obligations as set forth in the Lease shall apply with respect to the Landlord Work, except to the extent arising from the negligence or willful misconduct of Tenant, its member partners, shareholders, officers, directors, agents, employees, and/or contractors, or Tenant’s violation of this Lease.

Requirements of Tenant’s Agents. Each of Tenant’s Agents shall guarantee to Tenant and for the benefit of Landlord that the portion of the Tenant Improvements for which it is responsible shall be free from any defects in workmanship and materials for a period of not less than one (1) year from the date of completion thereof. Each of Tenant’s Agents shall be responsible for the replacement or repair, without additional charge, of all work done or furnished in accordance with its contract that shall become defective within one (1) year after the completion of the work performed by such contractor or subcontractors. The correction of such work shall include, without additional charge, the cost of correcting all or any part of the Tenant Improvements, and/or the Building and/or common areas that may be damaged or disturbed thereby. All such warranties or guarantees as to materials or workmanship of or with respect to the Tenant Improvements shall be contained in the Contract or subcontract and shall be written such that such guarantees or warranties shall inure to the benefit of both Landlord and Tenant, as their respective interests may appear, and can be directly enforced by either. To the extent reasonably necessary, Tenant covenants to give to Landlord any assignment or other assurances which may be necessary to effect such right of direct enforcement.

Insurance Requirements.

General Coverages. All of Tenant’s Agents (except materialmen and suppliers) shall carry worker’s compensation insurance covering all of their respective employees, and shall also carry public liability insurance, including property damage, all with limits, in form and with companies as are required to be carried by Tenant as set forth in this Lease.

Special Coverages. Tenant shall carry “Builder’s All Risk” insurance in an amount approved by Landlord covering the construction of the Tenant Improvements, and such other insurance as Landlord may require, it being understood and agreed that the Tenant Improvements shall be insured by Tenant pursuant to this Lease immediately upon completion thereof. Such insurance shall be in amounts and shall include such extended coverage endorsements as may be reasonably required by Landlord, and in form and with companies as are required to be carried by Tenant as set forth in this Lease.


General Terms. Certificates for all insurance carried pursuant to this Section 4.2.2.4 shall be delivered to Landlord before the commencement of construction of the Tenant Improvements and before the Contractor’s equipment is moved onto the site. Tenant shall immediately notify Landlord in the event any policy of insurance carried by Tenant is cancelled or the coverage materially changed. Tenant’s Contractor and subcontractors shall maintain all of the foregoing insurance coverage in force until the Tenant Improvements are fully completed and accepted by Landlord, except for any Products and Completed Operation Coverage insurance required by Landlord, which is to be maintained for three (3) years following completion of the work and acceptance by Landlord and Tenant. All policies carried under this Section 4.2.2.4 shall insure Landlord and Tenant, as their interests may appear. All insurance, except Workers’ Compensation, maintained by Tenant’s Agents shall preclude subrogation claims by the insurer against anyone insured thereunder. Such insurance shall provide that it is primary insurance as respects the owner and that any other insurance maintained by owner is excess and noncontributing with the insurance required hereunder. The requirements for the foregoing insurance shall not derogate from the provisions for indemnification of Landlord by Tenant under Section 4.2.2.2 of this Tenant Work Letter.

Governmental Compliance. The Tenant Improvements shall comply in all respects with the following: (i) the Code and other state, federal, city or quasi-governmental laws, codes, ordinances and regulations, as each may apply according to the rulings of the controlling public official, agent or other person; (ii) applicable standards of the American Insurance Association (formerly, the National Board of Fire Underwriters) and the National Electrical Code; and (iii) building material manufacturer’s specifications.

Inspection by Landlord. Landlord shall have the right to inspect the Tenant Improvements at all times, provided however, that Landlord’s failure to inspect the Tenant Improvements shall in no event constitute a waiver of any of Landlord’s rights hereunder nor shall Landlord’s inspection of the Tenant Improvements constitute Landlord’s approval of the same. Should Landlord reasonably disapprove any portion of the Tenant Improvements, Landlord shall notify Tenant in writing of such disapproval and shall specify the items disapproved and the reasons therefor. Any defects or deviations in, and/or disapproval by Landlord of, the Tenant Improvements shall be rectified by Tenant at no expense to Landlord, provided however, that in the event Landlord reasonably determines that a defect or deviation exists or disapproves of any matter in connection with any portion of the Tenant Improvements and such defect, deviation or matter might adversely affect the mechanical, electrical, plumbing, heating, ventilating and air conditioning or life-safety systems of the Building, the structure or exterior appearance of the Building or any other tenant’s use of such other tenant’s leased premises, and Tenant fails to correct such item within five (5) business days of written notice from Landlord, then Landlord may take such action as Landlord reasonably deems necessary, at Tenant’s expense and without incurring any liability on Landlord’s part, to correct any such defect, deviation and/or matter, including, without limitation, causing the cessation of performance of the construction of the Tenant Improvements until such time as the defect, deviation and/or matter is corrected to Landlord’s satisfaction.

Meetings. Commencing upon the execution of this Lease, Tenant shall hold meetings not less than twice per month (and weekly following commencement of construction of the Tenant Improvements) at a reasonable time, with the Architect and the Contractor regarding


the progress of the preparation of Construction Documents and the construction of the Tenant Improvements, which meetings shall be held at a mutually agreeable location, and Landlord and/or its agents shall receive prior notice of, and shall have the right to attend, all such meetings. In addition, minutes shall be taken at all such meetings, a copy of which minutes shall be promptly delivered to Landlord. One such meeting each month shall include the review of Contractor’s current request for payment.

Notice of Completion; Record Set of As-Built Drawings; Close-Out Package.

Notice of Completion. Within ten (10) days after completion of construction of the Tenant Improvements, Tenant shall cause a Notice of Completion to be recorded in the office of the Recorder of the county in which the Building is located in accordance with Section 3093 of the Civil Code of the State of California or any successor statute, and shall furnish a copy thereof to Landlord upon such recordation. If Tenant fails to do so, Landlord may execute and file the same on behalf of Tenant as Tenant’s agent for such purpose, at Tenant’s sole cost and expense.

Record Set of As-Built Drawings. At the conclusion of construction, Tenant shall cause the Architect and Contractor (A) to update the Approved Working Drawings as necessary to reflect all changes made to the Approved Working Drawings during the course of construction, (B) to certify to the best of their knowledge that the “record-set” of as-built drawings (the “Record Set”) is true and correct, which certification shall survive the expiration or termination of this Lease, and (C) to deliver to Landlord four (4) hard copies and two (2) electronic copies (in .pdf and CAD format) of such Record Set within ninety (90) days following issuance of a certificate of occupancy for the Premises

Close-Out Package. At the conclusion of construction, Tenant shall deliver to Landlord two (2) hard copies and one (1) electronic copy of the Certificate of Occupancy, all closed Permits, all warranties, guaranties, and operating manuals and information relating to the improvements, equipment, and systems in the Premises, and any other items reasonably requested by Landlord (collectively, along with the recorded Notice of Completion described in Section 4.3.1 above and the Record Set described in Section 4.3.2 above, the “Close-Out Package”).

SECTION 5

MISCELLANEOUS

Tenant’s Representative. Tenant has designated Maja Henderson as its sole representative with respect to the matters set forth in this Tenant Work Letter, who shall have full authority and responsibility to act on behalf of the Tenant as required in this Tenant Work Letter.

Landlord’s Representative. Landlord has designated Dan Wright as its sole representatives with respect to the matters set forth in this Tenant Work Letter, who, until further notice to Tenant, shall have full authority and responsibility to act on behalf of the Landlord as required in this Tenant Work Letter.


Time of the Essence in This Tenant Work Letter. Unless otherwise indicated, all references herein to a “number of days” shall mean and refer to calendar days. If any item requiring approval is timely disapproved by Landlord, the procedure for preparation of the document and approval thereof shall be repeated until the document is approved by Landlord.

Tenant’s Agents. All subcontractors and laborers retained directly by Tenant shall all be union labor in compliance with the then existing master labor agreements.

Tenant’s Lease Default. Notwithstanding any provision to the contrary contained in this Lease, if an event of default as described in the Lease or this Tenant Work Letter has occurred at any time on or before the Substantial Completion of the Premises, then (i) in addition to all other rights and remedies granted to Landlord pursuant to this Lease, Landlord shall have the right to withhold payment of all or any portion of the Tenant Improvement Allowance and/or Landlord may cause Contractor to cease the construction of the Premises (in which case, Tenant shall be responsible for any delay in the substantial completion of the Premises caused by such work stoppage), and (ii) all other obligations of Landlord under the terms of this Tenant Work Letter shall be forgiven until such time as such default is cured pursuant to the terms of this Lease (in which case, Tenant shall be responsible for any delay in the substantial completion of the Premises caused by such inaction by Landlord).

No Obligation to Build Tenant Improvements. Notwithstanding anything to the contrary in this Tenant Work Letter, Tenant shall have no obligation to design or build any Tenant Improvements, and may at any time reduce the scope of the Tenant Improvements.

Utilities and Staging. Notwithstanding anything to the contrary in the Lease, Tenant shall not be obligated to pay for any utility usage prior to the earlier of (i) substantial completion of the Tenant Improvements, and (ii) the Rent Commencement Date, or any charges for elevator usage or use of the loading dock in connection with its construction of the Tenant Improvements. Upon Tenant’s reasonable request, Landlord shall provide Tenant, subject to availability as reasonably determined by Landlord, but at no cost to Tenant, a reasonable staging area as needed for the construction of the Tenant Improvements.


SCHEDULE 1 TO EXHIBIT B

LANDLORD WORK

Each portion of the Premises shall be delivered in vacant, broom-clean condition.

CORE AND SHELL WORK

 

Item      Estimated Completion Date
Renovation of main lobby of the podium building in order to cause the same to be consistent with Landlord’s “Building standards” using “Building standard” colors, methods, materials and finishes.      Prior to the first Rent Commencement Date
6th Floor Premises
Perform multi-tenant corridor and restroom work (“Common Area Work”) in order to cause the same to be consistent with Landlord’s “Building standards” using “Building standard” colors, methods, materials and finishes.      Prior to Rent Commencement Date
Add a mutually agreeable number of windows along the perimeter walls (“Perimeter Window Work”). The location and quantity of such perimeter windows shall be as shown on Exhibit J to the Lease and such windows shall be of a materially similar size, quality and design as the perimeter windows on the fourth (4th) and fifth (5th) floors of the Building. Upon completion of the installation of the new perimeter windows, Landlord will insulate the interior side of the tops and bottoms of the new precast panels, install metal stud furring to conceal back side of upper and lower precast panels, install 5/8” sheet rock on new metal stud furring, provide required drywall sill/surround at new window openings, patch any perimeter drywall columns impacted by new window/precast panel installation and reinstall any removed raised access flooring system impacted by the new window/precast panel installation.      5 months after Lease Commencement Date
Provide separate sub-meters for the electrical system; install panels and transformers (to the      4 months after Lease Commencement Date


extent they do not already exist) to provide a minimum of 5 watts per rentable square foot for Tenant’s convenience outlets and 1.5 watts per rentable square foot for Tenant’s lighting.
Ensure the control system (“brain”) for the life safety system has sufficient capabilities to control Tenant’s strobes, horns, and sprinklers within Tenant’s Premises, elevator, and stairwell doors, and meets all current codes and regulations. 4 months after Lease Commencement Date
Ensure completion of Bank’s decommissioning work/removal of Bank’s systems, equipment, and furniture, including halon system, CRAC units, check processing equipment, shelving and pre-action fire suppression system, and the environmental water supply and return manifolds and piping branches that serve the CRAC units on the seventh (7th) floor of the Building (“Bank’s Decommissioning Work”); provided, however, the Bank’s Decommissioning Work shall not include the removal (and Tenant shall have no right to remove) of (i) the environmental water supply and return loops on the 6th floor of the Building, (ii) the environmental water supply and return loops on the 8th floor of the Building, and (iii) the vertical piping connecting the 6th floor environmental water supply and return loops to the 8th floor environmental water supply and return loops, including the valves located at each floor of each vertical pipe; provided further, however, (a) to the extent necessary in connection with Tenant’s slab openings between the 7th and the 8th floors of the Building or to support the bottom of the lower stair/amphitheater on the 6th floor of the Building, Landlord shall, concurrently with Tenant’s installation of improvements related to the stairs/amphitheater, in a manner that will not unreasonably delay such work, at Landlord’s sole cost, relocate the environmental water supply and return loops on the 6th and/or 8th floor of the Building so as to reasonably accommodate such work, and (b) in such areas as the Bank’s halon or other fire suppression Prior to Lease Commencement Date, unless Tenant exercises its right set forth in Section 2.4 of the Lease and requests that Landlord commence demolition of any existing tenant improvements in any portion of the Initial Premises and/or the construction of other improvements in any portion of the Initial Premises, on Tenant’s behalf, in which event such work will be completed 2 months after Lease Commencement Date. In addition, to the extent Landlord is obligated to install a (or modify the existing) Base Building sprinkler loop as required by Applicable Law, then, notwithstanding the foregoing, Landlord shall complete such work on or before the date that occurs 6 weeks after Lease Commencement Date.


system is removed, install a (or modify the existing) Base Building sprinkler loop as required by Applicable Law. In connection with Tenant’s design of its internal stairs/amphitheater, Tenant shall consider reasonable suggestions by Landlord to minimize any conflicts with environmental water supply and return loops on the 6th and/or 8th floor of the Building so long as such suggestions do not increase the cost or time to construct the Tenant Improvements or adversely affect Tenant’s design of the Tenant Improvements.
Construct demising wall between Premises and adjacent space (“Demising Work”). The Demising Work necessary in order to allow Tenant to securely separate the portion of the Premises located on such floor of the Building from the remainder of the space on such floor of the Building, and to demise the elevator lobby on such floor, shall be completed on or before the Lease Commencement Date.
The completion of the Demising Work, including the installation of the finishes on both sides, shall be completed on or before the Rent Commencement Date.

Must-Take 1 Space (balance of 6th Floor)

Same work as applicable to the 6th Floor Premises except no Demising Work, Common Area Work or Perimeter Window Work shall be required; provided that all references to the applicable Lease Commencement Date shall mean the Must-Take 1 Lease Commencement Date.

9th Floor Premises

Same work as applicable to the 6th Floor Premises except no Demising Work, Common Area Work or Perimeter Window Work shall be required.

9th Floor Mezzanine Premises

Same work as applicable to the 6th Floor Premises except no Demising Work, Common Area Work or Perimeter Window Work shall be required.

18th Floor Premises

 

Provide separate sub-meters for the electrical

4 months after Lease Commencement Date


system/install panels and transformers (to the extent they do not already exist) to provide a minimum of 5 watts per rentable square foot for Tenant’s convenience outlets and 1.5 watts per rentable square foot for Tenant’s lighting.
Ensure the control system (“brain”) for the life safety system has sufficient capabilities to control Tenant’s strobes, horns, and sprinklers within Tenant’s Premises, elevator, and stairwell doors, and meets all current codes and regulations. 4 months after Lease Commencement Date
Ensure completion of Bank’s Decommissioning Work. Prior to Lease Commencement Date, unless Tenant exercises its right set forth in Section 2.4 of the Lease and requests that Landlord commence demolition of any existing tenant improvements in any portion of the Initial Premises and/or the construction of other improvements in any portion of the Initial Premises, on Tenant’s behalf, in which event such work will be completed 2 months after applicable Lease Commencement Date.

19th Floor Premises

Same work as applicable to the 18th Floor Premises.

Must-Take 2 Space (portion of 7th Floor)

Same work as applicable to the 6th Floor Premises; provided that all references to the Lease Commencement Date shall mean the Must-Take 2 Lease Commencement Date. With respect to the demising wall to be constructed on the seventh (7th) floor of the Building, Landlord shall construct the demising wall in accordance with the specifications attached hereto as Schedule 2 to Exhibit B; provided, however, Tenant shall pay to Landlord, within thirty (30) days of receiving an invoice therefore, an amount equal to the difference between (i) the actual and reasonable out-of-pocket costs incurred by Landlord in connection with the construction of the seventh (7th ) floor demising wall, and (ii) the actual and reasonable out-of-pocket costs Landlord would have incurred in connection with the construction of the seventh (7th ) floor demising wall if such demising wall had been contracted pursuant to Building standard specifications.

Expansion Space (8th Floor)

Same work as applicable to the 6th Floor Premises; provided that all references to the Lease Commencement Date shall mean the Expansion Space Lease Commencement Date. In addition, Landlord shall decommission (or caused to be decommissioned) the Bank’s existing NER space located on the 8th floor on or before the Expansion Space Lease Commencement Date.


Availability Premises located on Floors 1 - 8

If Availability Premises consists of any space that is less than an entire floor, Delivery Condition shall require same work as applicable to the 6th Floor Premises; provided that all references to the Lease Commencement Date shall mean the applicable Availability Premises Lease Commencement Date.

If Availability Premises consists of an entire floor, Delivery Condition shall require same work as applicable to the 6th Floor Premises, except no Demising Work or Common Area Work shall be required; provided that all references to the Lease Commencement Date shall mean the applicable Availability Premises Lease Commencement Date.

Availability Premises located on Floors 9 - 22

If Availability Premises consists of any space that is less than an entire floor, Delivery Condition shall require same work as applicable to the 9th Floor Premises, plus Demising Work; provided that all references to the Lease Commencement Date shall mean the applicable Availability Premises Lease Commencement Date.

If Availability Premises consists of an entire floor, Delivery Condition shall require same work as applicable to the 18th Floor Premises; provided that all references to the Lease Commencement Date shall mean the applicable Availability Premises Lease Commencement Date.


SCHEDULE 2 TO EXHIBIT B

SPECIFICATIONS FOR SEVENTH FLOOR DEMISING WALL

 

LOGO


EXHIBIT C

1455 MARKET STREET

NOTICE OF LEASE TERM DATES

 

To:

 

 

 

Re: Office Lease dated             , 20      between                     , a

                     (“Landlord”), and                     , a

                    (“Tenant”) concerning Suite          on floor(s)

                     of the office building located at                                 .

Gentlemen:

In accordance with the Office Lease (the “Lease”), we wish to advise you and/or confirm as follows:

1. The Lease Term shall commence on or has commenced on                      for a term of                      ending on                     .

2. Rent commenced to accrue on                     , in the amount of                     .

3. If the Lease Commencement Date is other than the first day of the month, the first billing will contain a pro rata adjustment. Each billing thereafter, with the exception of the final billing, shall be for the full amount of the monthly installment as provided for in the Lease.

4. Your rent checks should be made payable to                      at                     .

5. The exact number of rentable/usable square feet within the Premises is                      square feet.

6. Tenant’s Share as adjusted based upon the exact number of usable square feet within the Premises is     %.

 

“Landlord”

 

,
a

 

By:

 


Its:

 

Agreed to and Accepted by Tenant

as of             , 20    .

“Tenant”
a

 

By:

 

Its:

 


EXHIBIT D

1455 MARKET STREET

RULES AND REGULATIONS

Tenant shall faithfully observe and comply with the following Rules and Regulations. Landlord shall not be responsible to Tenant for the nonperformance of any of said Rules and Regulations by or otherwise with respect to the acts or omissions of any other tenants or occupants of the Property. In the event of any conflict between the Rules and Regulations and the other provisions of this Lease, the latter shall control.

1. Tenant shall not alter any lock or install any new or additional locks or bolts on any doors or windows of the Premises without obtaining Landlord’s prior written consent. Tenant shall bear the cost of any lock changes or repairs required by Tenant. Two keys will be furnished by Landlord for the Premises, and any additional keys required by Tenant must be obtained from Landlord at a reasonable cost to be established by Landlord. Upon the termination of this Lease, Tenant shall restore to Landlord all keys of stores, offices, and toilet rooms, either furnished to, or otherwise procured by, Tenant and in the event of the loss of keys so furnished, Tenant shall pay to Landlord the cost of replacing same or of changing the lock or locks opened by such lost key if Landlord shall deem it necessary to make such changes. The foregoing does not apply to Tenant’s card access system.

2. All doors opening to public corridors shall be kept closed at all times except for normal ingress and egress to the Premises.

3. Landlord reserves the right to close and keep locked all entrance and exit doors of the Building during such hours as are customary for comparable buildings in the San Francisco, California area. Tenant, its employees and agents must be sure that the doors to the Building are securely closed and locked when leaving the Premises if it is after the normal hours of business for the Building. Any tenant, its employees, agents or any other persons entering or leaving the Building at any time when it is so locked, or any time when it is considered to be after normal business hours for the Building, may be required to sign the Building register. Access to the Building may be refused unless the person seeking access has proper identification or has a previously arranged pass for access to the Building. Landlord will furnish passes to persons for whom Tenant requests same in writing. Tenant shall be responsible for all persons for whom Tenant requests passes and shall be liable to Landlord for all acts of such persons. The Landlord and his agents shall in no case be liable for damages for any error with regard to the admission to or exclusion from the Building of any person. In case of invasion, mob, riot, public excitement, or other commotion, Landlord reserves the right to prevent access to the Building or the Property during the continuance thereof by any means it deems appropriate for the safety and protection of life and property.

4. No large furniture, freight or equipment of any kind shall be brought into the Building without prior notice to Landlord. All moving activity into or out of the Building shall be scheduled with Landlord and done only at such time and in such manner as Landlord reasonably designates. Landlord shall have the right to prescribe the weight, size and position of all safes and other heavy property brought into the Building and also the times and manner of moving the same


in and out of the Building. Safes and other heavy objects shall, if considered necessary by Landlord, stand on supports of such thickness as is necessary to properly distribute the weight. Landlord will not be responsible for loss of or damage to any such safe or property in any case. Any damage to any part of the Building, its contents, occupants or visitors by moving or maintaining any such safe or other property shall be the sole responsibility and expense of Tenant.

5. No furniture, packages, supplies, equipment or merchandise will be received in the Building or carried up or down in the elevators, except between such hours, in such specific elevator and by such personnel as shall be reasonably designated by Landlord.

6. The requirements of Tenant will be attended to only upon application at the management office for the Property or at such office location designated by Landlord. Employees of Landlord shall not perform any work or do anything outside their regular duties unless under special instructions from Landlord.

7. No sign, advertisement, notice or handbill shall be exhibited, distributed, painted or affixed by Tenant on any part of the Premises or the Building without the prior written consent of the Landlord. Tenant shall not disturb, solicit, peddle, or canvass any occupant of the Property and shall cooperate with Landlord and its agents of Landlord to prevent same.

8. The toilet rooms, urinals, wash bowls and other apparatus shall not be used for any purpose other than that for which they were constructed, and no foreign substance of any kind whatsoever shall be thrown therein. The expense of any breakage, stoppage or damage resulting from the violation of this rule shall be borne by the tenant who, or whose servants, employees, agents, visitors or licensees shall have caused same.

9. Tenant shall not overload the floor of the Premises, nor, except as permitted by the Lease, mark, drive nails or screws, or drill into the partitions, woodwork or drywall or in any way deface the Premises or any part thereof without Landlord’s prior written consent. Tenant shall not purchase spring water, ice, towel, linen, maintenance or other like services from any person or persons not reasonably approved by Landlord.

10. Except for vending machines intended for the sole use of Tenant’s employees and invitees, no vending machine or machines other than fractional horsepower office machines shall be installed, maintained or operated upon the Premises without the written consent of Landlord.

11. Tenant shall not use or keep in or on the Premises, the Building, or the Property any kerosene, gasoline, explosive material, corrosive material, material capable of emitting toxic fumes, or other inflammable or combustible fluid chemical, substitute or material except as permitted under the Lease. Tenant shall provide material safety data sheets for any Hazardous Material used or kept on the Premises.

12. Tenant shall not without the prior written consent of Landlord use any method of heating or air conditioning other than that supplied by Landlord.

13. Tenant shall not use, keep or permit to be used or kept, any foul or noxious gas or substance in or on the Premises, or permit or allow the Premises to be occupied or used in a manner in violation of this Lease by reason of noise, odors, or vibrations, or interfere with other tenants or those having business therein, whether by the use of any musical instrument, radio, phonograph, or


in any other way. Tenant shall not throw anything out of doors, windows or skylights or down passageways.

14. Tenant shall not bring into or keep within the Property, the Building or the Premises any animals, birds, or, except in areas designated by Landlord, bicycles or other vehicles.

15. Except as permitted under the Lease, including in the 9th Floor Premises kitchen, no cooking shall be done or permitted on the Premises, nor shall the Premises be used for the storage of merchandise, for lodging or for any improper, objectionable or immoral purposes. Notwithstanding the foregoing, in addition to kitchen and dining facilities and equipment permitted under the Lease, Underwriters’ laboratory-approved equipment and microwave ovens may be used in the Premises for heating food and brewing coffee, tea, hot chocolate and similar beverages for employees and visitors, provided that such use is in accordance with all applicable federal, state, county and city laws, codes, ordinances, rules and regulations.

16. The Premises shall not be used for manufacturing or for the storage of merchandise except as such storage may be incidental to the use of the Premises provided for in the Summary. Tenant shall not occupy or permit any portion of the Premises to be occupied as an office for a messenger-type operation or dispatch office, public stenographer or typist, or for the manufacture or sale of liquor, narcotics, or tobacco in any form, or as a medical office, or as a barber or manicure shop, or as an employment bureau without the express prior written consent of Landlord. Tenant shall not engage or pay any employees on the Premises except those actually working for such tenant on the Premises nor advertise for laborers giving an address at the Premises.

17. Landlord reserves the right to exclude or expel from the Property any person who, in the judgment of Landlord, is intoxicated or under the influence of liquor or drugs, or who shall in any manner do any act in violation of any of these Rules and Regulations.

18. Tenant, its employees and agents shall not loiter in or on the entrances, corridors, sidewalks, lobbies, courts, halls, stairways, elevators, vestibules or any Common Areas for the purpose of smoking tobacco products, nor in any way obstruct such areas, and shall use them only as a means of ingress and egress for the Premises.

19. Tenant shall not waste electricity, water or air conditioning and agrees to cooperate fully with Landlord to ensure the most effective operation of the Building’s heating and air conditioning system, and shall refrain from attempting to adjust any controls. Tenant shall participate in recycling programs undertaken by Landlord.

20. Tenant shall store all its trash and garbage within the interior of the Premises. No material shall be placed in the trash boxes or receptacles if such material is of such nature that it may not be disposed of in the ordinary and customary manner of removing and disposing of trash and garbage in San Francisco, California without violation of any law or ordinance governing such disposal. All trash, garbage and refuse disposal shall be made only through entry-ways and elevators provided for such purposes at such times as Landlord shall designate. If the Premises is or becomes infested with vermin as a result of the use or any misuse or neglect of the Premises by Tenant, its agents, servants, employees, contractors, visitors or licensees, Tenant shall forthwith, at Tenant’s expense, cause the Premises to be exterminated from time to time to the satisfaction of Landlord and shall employ such licensed exterminators as shall be approved in writing in advance by Landlord.


21. Tenant shall comply with all safety, fire protection and evacuation procedures and regulations established by Landlord or any governmental agency.

22. Any persons employed by Tenant to do janitorial work shall be subject to the prior written approval of Landlord, which shall not be unreasonably withheld or delayed, and while in the Building and outside of the Premises, shall be subject to and under the control and direction of the Building manager (but not as an agent or servant of such manager or of Landlord), and Tenant shall be responsible for all acts of such persons.

23. No awnings or other projection shall be attached to the outside walls of the Building without the prior written consent of Landlord, and no curtains, blinds, shades or screens shall be attached to or hung in, or used in connection with, any window or door of the Premises other than Landlord standard drapes, blinds or shades. All electrical ceiling fixtures hung in the Premises or spaces along the perimeter of the Building must be fluorescent and/or of a quality, type, design and a warm white bulb color approved in advance in writing by Landlord. Neither the interior nor exterior of any windows shall be coated or otherwise sunscreened without the prior written consent of Landlord. Tenant shall be responsible for any damage to the window film on the exterior windows of the Premises and shall promptly repair any such damage at Tenant’s sole cost and expense. Prior to leaving the Premises for the day, Tenant shall draw or lower window coverings and extinguish all lights. Tenant shall abide by Landlord’s regulations concerning the opening and closing of window coverings which are attached to the windows in the Premises, if any, which have a view of any interior portion of the Building or Building Common Areas.

24. The sashes, sash doors, skylights, windows, and doors that reflect or admit light and air into the halls, passageways or other public places in the Building shall not be covered or obstructed by Tenant, nor shall any bottles, parcels or other articles be placed on the windowsills.

25. Tenant must comply with requests by the Landlord concerning the informing of their employees of items of importance to the Landlord.

26. Tenant must comply with all applicable “NO-SMOKING” or similar ordinances, rules, laws and regulations.

27. Except as expressly provided in the Lease, Tenant hereby acknowledges that Landlord shall have no obligation to provide guard service or other security measures for the benefit of the Premises, the Building or the Property. Tenant hereby assumes all responsibility for the protection of Tenant and its agents, employees, contractors, invitees and guests, and the property thereof, from acts of third parties, including keeping doors locked and other means of entry to the Premises closed, whether or not Landlord, at its option, elects to provide security protection for the Property or any portion thereof other than that required under Section 6.1.8 of the Lease. Tenant further assumes the risk that any safety and security devices, services and programs which Landlord elects, in its sole discretion, to provide may not be effective, or may malfunction or be circumvented by an unauthorized third party, and Tenant shall, in addition to its other insurance obligations under this Lease, obtain its own insurance coverage to the extent Tenant desires protection against losses related to such occurrences. Tenant shall cooperate in any reasonable safety or security program developed by Landlord or required by law.


28. All office equipment of any electrical or mechanical nature shall be placed by Tenant in the Premises in settings approved by Landlord, to absorb or prevent any vibration, noise and annoyance.

29. Tenant shall not use in any space or in the public halls of the Building, any hand trucks except those equipped with rubber tires and rubber side guards.

30. No auction, liquidation, fire sale, going-out-of-business or bankruptcy sale shall be conducted in the Premises without the prior written consent of Landlord.

31. No tenant shall use or permit the use of any portion of the Premises for living quarters, sleeping apartments or lodging rooms.

32. Tenant shall not purchase janitorial or maintenance or other similar services from any company or persons not reasonably approved by Landlord, which approval will not be unreasonably withheld. Landlord shall approve a sufficient number of sources of such services to provide Tenant with a reasonable selection, but only in such instances and to such extent as Landlord in its judgment shall consider consistent with the security and proper operation of the Building.

33. Tenant shall install and maintain, at Tenant’s sole cost and expense, an adequate, visibly marked and properly operational fire extinguisher next to any duplicating or photocopying machines or similar heat producing equipment, which may or may not contain combustible material, in the Premises.

Landlord reserves the right at any time reasonably to change or rescind any one or more of these Rules and Regulations, or to make such other and further reasonable Rules and Regulations as in Landlord’s judgment may from time to time be necessary for the management, safety, care and cleanliness of the Premises, Building, the Common Areas and the Property, and for the preservation of good order therein, as well as for the convenience of other occupants and tenants therein. Landlord may waive any one or more of these Rules and Regulations for the benefit of any particular tenants, but no such waiver by Landlord shall be construed as a waiver of such Rules and Regulations in favor of any other tenant, nor prevent Landlord from thereafter enforcing any such Rules or Regulations against any or all tenants of the Property. Notwithstanding the foregoing, Landlord shall not intentionally enforce the rules in a discriminating manner against Tenant. Upon Tenant’s written request, Landlord shall use commercially reasonable efforts to enforce the Rules and Regulations as to other Building occupants. Tenant shall be deemed to have read these Rules and Regulations and to have agreed to abide by them as a condition of its occupancy of the Premises.


EXHIBIT E

FORM OF TENANT’S ESTOPPEL CERTIFICATE

The undersigned as Tenant under that certain Office Lease (the “Lease”) made and entered into as of             , 20     by and between                      as Landlord, and the undersigned as Tenant, for Premises on the                      floor(s) of the office building located at                     , certifies as follows:

1. Attached hereto as Exhibit A is a true and correct copy of the Lease and all amendments and modifications thereto. The documents contained in Exhibit A represent the entire agreement between the parties as to the Premises.

2. The undersigned currently occupies the Premises described in the Lease, the Lease Term commenced on                     , and the Lease Term expires on                     , and the undersigned has no option to terminate or cancel the Lease or to purchase all or any part of the Premises, the Building and/or the Property.

3. Base Rent became payable on.

4. The Lease is in full force and effect and has not been modified, supplemented or amended in any way except as provided in Exhibit A.

5. Tenant has not transferred, assigned, or sublet any portion of the Premises nor entered into any license or concession agreements with respect thereto except as follows:                     

6. All monthly installments of Base Rent, all Additional Rent and all monthly installments of estimated Additional Rent have been paid when due through                     . The current monthly installment of Base Rent is $        .

7. To Tenant’s actual knowledge, all conditions of the Lease to be performed by Landlord necessary to the enforceability of the Lease have been satisfied and Landlord is not in default thereunder. In addition, the undersigned has not delivered any notice to Landlord regarding a default by Landlord thereunder.

8. No rental has been paid more than thirty (30) days in advance and no security has been deposited with Landlord except as provided in the Lease.

9. To Tenant’s actual knowledge, as of the date hereof, there are no existing defenses or offsets, or, to the undersigned’s knowledge, claims or any basis for a claim, that the undersigned has against Landlord.

10. If Tenant is a corporation or partnership, each individual executing this Estoppel Certificate on behalf of Tenant hereby represents and warrants that Tenant is a duly formed and existing entity qualified to do business in California and that Tenant has full right and authority to execute and deliver this Estoppel Certificate and that each person signing on behalf of Tenant is authorized to do so.


11. To Tenant’s actual knowledge, there are no actions pending against the undersigned under the bankruptcy or similar laws of the United States or any state.

12. Other than in compliance with all applicable laws and incidental to the ordinary course of the use of the Premises, the undersigned has not used or stored any hazardous substances in the Premises.

13. To Tenant’s actual knowledge, all tenant improvement work to be performed by Landlord under the Lease has been completed in accordance with the Lease and has been accepted by the undersigned and all reimbursements and allowances due to the undersigned under the Lease in connection with any tenant improvement work have been paid in full.

The undersigned acknowledges that this Estoppel Certificate may be delivered to Landlord or to a prospective mortgagee or prospective purchaser, and acknowledges that said prospective mortgagee or prospective purchaser will be relying upon the statements contained herein in making the loan or acquiring the property of which the Premises are a part and that receipt by it of this certificate is a condition of making such loan or acquiring such property.

Executed at                      on the     day of             , 20    .

 

“Tenant”

 

,
a

 

By:

 

Its:

 

By:

 

Its:

 


EXHIBIT F

CRITICAL ENVIRONMENTS

 

LOGO


LOGO


LOGO


LOGO


LOGO

 


LOGO


LOGO


LOGO


LOGO


EXHIBIT F-1

CEWA CAP TRAINING SUMMARY

Critical Environment Work Authorization (CEWA)

Critical Awareness Process (CAP)

Training

1455 Market Street is home to a Bank of America Data Center and contains many critical environments which may be affected by the work your company does onsite. All contractors & vendors performing work at the property must complete the Critical Environment Work Authorization (CEWA) and Critical Awareness (CAP) training course, prior to beginning any work. Upon completion of the training you will receive a certificate which will be valid for eighteen months. The training course is completed online and takes about thirty minutes.

 

  1) To access CEWA/CAP Training, go to the following website:

CEWA Training

 

2)      If you are an existing user, please click on the LOGO button. If you’re a new user, click on The LOGO button.

 

  a. Existing Users: enter your username and password and skip to step (4), below.

 

  b. New Users: enter the registration code in the available field and click the Start the Registration Process button.

 

  i. Registration code: cewa

 

  3) A new screen will populate. Enter the following information and click the Register button:

 

  a. Basic Information

 

  i. Full name

 

  ii. Company name

 

  iii. Primary BAC Site: SF Data Center

 

  iv. Primary City: San Francisco

 

  v. Primary State: California

 

  b. Account Information:

 

  i. Userna me: select a username that is easy for you to remember

 

  ii. Email address: this is optional; however entering your email address will allow you to receive em ails when your CEWA training is expiring

 

  iii. Password: select a password that is easy for you to remember

 

  iv. Verify Password

 

  4) You will be redirected to a login screen. Enter your username and password and click the login button.

 

  5) Click on the Critical Awareness Learning Guide link.

 

  6)

A new page will populate. This screen details the level of CEWA training which contractors andvendors will need. Scan the left hand column entitled Who Should Take the Training to find out where your company/scope of work falls. Read the steps in the middle column (Group Name/Steps to Complete Certification) that you are required to follow in order to become


  CEWA certified. Click on the link in the right hand column (Required Training), to enter your training course.

 

  7) A new screen will populate. Click the Click Here To Begin The Training link. A new window will populate that contains the training video. The video contains a combination of slides & live action video. The video also contains several ‘quiz’ questions that must be answered along the way. Follow along with the video until you reach the end. Note that the video paces itself, so there is no way to fast-forward to the end.

 

  8) Upon completion of the video, take the quiz. You must answer 100% of the answers correct in order to pass; however there is no limit on the amount of times you may take the quiz.

 

  9) When you have successfully completed the quiz, click on the “My transcript” link to print your certificate. Sign your certificate and bring it to the building. It will need to be signed off by the Chief Engineer or Assistant Chief Engineer. Your card will be laminated and it must be carried with you at all times while you’re performing your work.

For questions related to CEWA/CAP Training, please contact the Building Management Office at                 .


EXHIBIT F-2

CEWA CAP CONSTRUCTION RULES AND REGULATIONS

 

LOGO

1455 MARKET STREET

CONSTRUCTION RULES AND REGULATIONS

Hudson Pacific Properties is the building owner for the property located at 1455 Market Street, San Francisco, California. As building owner, Hudson Pacific Properties will be involved in all tenant improvement work in the building, including original build-outs as well as any alterations of tenant spaces. Hudson Pacific Properties shall be involved in all stages of work in the building, from “kick-off” to “move-in”, regardless of whether Hudson Pacific Properties or Tenant holds the construction contract.

Such involvement shall include, without limitation, plan review, pre-testing, testing and pre-qualification of contractors and coordination of the building systems tie-in. All general contractors, subcontractors, suppliers, material-men, and their employees and anyone working for or on their behalf (hereafter referred to as “Contractors”), shall be immediately advised of the following Construction Rules and Regulations concerning their proper conduct within the property. It is the general contractor’s responsibility to ensure that its subcontractors and suppliers read and understand these rules and regulations. Ignorance of these rules and regulations is not a waiver of liability or responsibility.

The tenant and contractor involved in the work shall comply with each and every one of these Construction Rules and Regulations, as applicable. In addition, tenant and contractor shall incorporate these Construction Rules and Regulations into each contract and subcontract, if executed in connection with work in the building. In all cases, to the extent that there are any inconsistencies between these Contractor Rules and Regulations and any other contract document(s), these regulations shall govern.

Nothing contained in these Regulations shall (i) create any contractual obligations for Hudson Pacific Properties in connection with the work, (ii) in any way affect, modify or supersede any of the terms set forth in the tenant’s lease for space at the 1455 Market Street, including, without limitation, any indemnification set forth therein. In addition, Hudson Pacific Properties shall not be responsible for any property belonging to the contractor, its employees, agents or subcontractors or of others associated in any way with the work.


GENERAL RULES & REGULATIONS:

 

  I. No one shall be allowed to endanger the property, its premises, or its occupants in any manner whatsoever. In the event that a situation occurs which threatens the property or its occupants in any manner, the contractor, subcontractor, supplier, etc., must immediately take steps to correct the hazardous condition and inform property management of the event or situation, always following the guidelines outlined in the CEWA Training Process. In the event that the contractor’s personnel fail to correct the hazardous condition, the owner reserves the right to immediately take steps to correct the situation at the contractor’s expense.

 

  II. The following general policy shall apply to all work which at the property:

 

  a. All work performed on the property is subject to the discretion of the property manager and engineering department. No work shall be performed which in any way affects the operation or quiet enjoyment due to existing tenants.

 

  b. Property Management and/or Building Engineers reserve the right to inspect work, stop work, and/or have a worker removed from the job at any time.

 

  c. Work efforts inside the building’s critical environments are subject to rigorous review, approval and ongoing observation. Work within these environments needs to be completed with extreme care due to the higher potential to affect building operations. Contractors are required to follow the specific guidelines contained in this document, and the Critical Environment Work Authorization (CEWA) process.

 

  d. Proper care shall be taken at all times to ensure the safety of all furnishings, fixtures and equipment, and in the event of emergency work or work approved by the Property Manager, the complete safety of tenant and Property personnel.

 

  e. CRITICAL ENVIRONMENTS WORKPLACE AUTHORIZATION (CEWA) and CRITICAL AWARENESS PROCESS (CAP) TRAINING:

All contractors, subcontractors, and affiliated personnel doing work on the property which may affect a critical environment must complete CEWA/CAP training before starting. In general, all mechanical, electrical, plumbing, automation and construction work will require CEWA/CAP training. Schedule this training process with the Building Management Office on the 11th floor or by phone at                 .

 

  i. Complete online training at

 

  ii. Successfully pass the Level 1 or 2 exam online.

 

  iii. Print a copy of your CAP Certification Card and sign it.

 

  iv. Obtain a “validation signature” from the Chief or Assistant Chief Building Engineer on the CAP Certification Card. You are not authorized to complete any work prior to receiving this validation signature on your CAP card.


  v. Contact the Property Manager/Chief Building Engineer to schedule an onsite CEWA session to have your certificate validated &to discuss any other aspects of the project that involve the CEWA process.

 

  vi. When working in critical environments:

 

  1. Always obtain approval from the engineering department before plugging anything into an outlet in a critical environment. Never plug anything into a UPS Fed Outlet. A Ground Fault Indicator (GFCI) is required for all equipment that will be plugged into a receptacle.

 

  2. Never activate the Emergency Power-Off (EPO) button unless a life safety emergency exists such as electrocution or significant fire. This button immediately shuts off power to data center equipment, severely impacting building & tenant operations.

Project Start-Up Package: Prior to project start, the contractor is required to submit a start-up package to the Building Management Office which contains the following items:

 

  a. Signed Construction Rules & Regulations: Contractor (and tenant, if applicable) must execute the signature page of this document, verifying that these rules and regulations have been read and understood.

 

  b. Project Start Notification: This document details the phone numbers and contact information of subcontractors & project personnel. This list will be maintained by Building Management and Security for the duration of the project. The contractor is required to provide updates to the Project Start Notification as available. (See Addendum 1)

 

  c. Evidence of current CEWA /CAP certification for all project personnel: Signed off CAP certification cards is considered sufficient evidence.

 

  d. Evidence of current & valid insurance coverage: At all times, contractor is required to maintain evidence of current and valid insurance coverage. (See Addendum 2)

 

  e. Work Plan & completed CEWA document: The Work Plan & CEWA document detail the project scope and highlight any details which may affect the building’s critical environments.

 

  f. Permit or Job Card (if applicable)

 

  g. Project Schedule

 

  h. Material Safety & Data Sheets (if applicable)

 

  IV. Project Kick-off meeting & progress meetings: Contractor is required to meet with building management and the engineering department in advance of project-start for a kick-off meeting. Depending on the scope and duration of the project, regular progress meetings may be required. Contractor shall schedule progress meetings at a time that is mutually agreeable to all parties.


  V. Contractor Access

 

  a. Access Forms (See Addendum 3): The contractor shall submit, on a weekly basis, a Contractor Access Form to the Building Management Office. This form will detail the trades/companies & number of personnel requiring access, the dates & time of access. Contractor should also include a brief description of all work (including that which needs to be done after hours) to be done in the forthcoming period.

 

  b. Checking in & out:

 

  i. Contractors, subcontractors and all project personnel who have been approved to park within the premises, will enter the building via Gate 23, which is accessible from 11th Street. Parking is limited to the non-reserved spots on Level B. Vehicles parked in any other areas of the garage will be towed without notice at the vehicle owner’s expense.

All other project personnel will be required to park on the street or in neighboring public parking garages.

 

  ii. Prior to beginning work each day, all project personnel shall report to the security desk in the main lobby to receive a temporary visitor badge. Temporary visitor badges are valid for the day they are issued; a new badge must be obtained each day. Project personnel must carry a visitor badge at all times while onsite.

 

  iii. At the start &finish of work each day, the contractor’s superintendant or other project manager must check in & out with the engineering department.

 

  VI. Loading Dock & Freight Elevator Procedures: The building is equipped with a loading dock and three freight elevators, for the express use of transporting material, tools, equipment, and construction personnel to a jobsite.

 

  a. Loading Dock and Freight Elevator hours are as follow: Monday-Friday: 7:00am-12:00pm and 1:00pm-4:00 p.m.

 

  b. All material pick-ups & deliveries must be made via the loading dock & freight elevators. This work must be scheduled with the Building Management Office in accordance with the following rules:

 

  i. Provide the number of and name (if possible) of all delivery personnel to the Building Management Office at least 48 hours in advance of pickup, delivery or scheduled work to allow for appropriate entry of these persons into the visitor management system.

 

  ii. Driver and/or delivery personnel MUST have proper photo ID (license) and proper paperwork indicating date/time of scheduled pickup.

 

  iii.

Upon check-in at the building, all personnel requiring access must present a photo ID. Visiting personnel will receive a temporary visitor pass, which must be


  maintained on his/her person for the duration of the work.

 

  iv. Continuous escort of the person(s) on site may be required if the project occurs within a critical area of the building

 

  c. All contractors, subcontractors and other personnel shall enter and exit the project site via the freight elevators at all times. No materials, tools, equipment, or other construction personnel are permitted to be transported via the building lobby and/or passenger elevators. If the freight elevator is unavailable, contractors must obtain written permission from the property manager prior to use the passenger elevators.

If a contractor, subcontractor or other personnel are found using the passenger elevators, the elevators will immediately be inspected for damage, and all damages, whether a result of the contractor’s use or not, shall be corrected at the contractor’s expense. Use of the passenger elevators for construction purposes shall be grounds for immediate expulsion from the building.

 

  d. Contractors shall not block freight elevator doors. A door hold button has been supplied in the freight elevator for temporarily holding the doors open to off-load tools, equipment, and supplies, but only for that purpose. It is not to be used to hold the doors open for extended periods of time.

 

  e. Building security personnel have the right to inspect all toolboxes of any and all contractors, subcontractors and other personnel upon departure from the building.

 

  VII. Project Standards

 

  a. Occupied Spaces & Restroom Use

 

  i. All work performed in occupied tenant spaces or public corridors will be done in a manner designed to produce the least amount of disruption to normal property operations.

 

  ii. Any work involving loud noise or the use of power tools that creates any reverberation, such as ceiling shots, coring or roto-hammering, shall be performed after business hours and shall be schedule at least 48 hours in advance.

 

  iii. Contractors will be instructed by the Property Manager which restrooms may be used. Contractors will be permitted to use the building restrooms; provided, however, that the contractor must keep the restrooms clean and owner reserves the right to prohibit contractor’s use of the building restrooms at any time.

 

  b. Building Doors: Stairway doors, and doors to janitorial closets, electrical & telephone rooms, and any other building door shall be kept closed at all times. At no time, shall any equipment or debris block a stairwell door, or other building door or closet. Contractors found blocking the doors open shall be subject to a $500.00 fine.

 

  c. Coring Requirements: Prior to conducting any coring work or slab penetrations, Contractor is required to use ground penetrating radar (GPR) to identify all existing conditions,


  obstructions or conflicts. All obstructions or conflicts are to be reviewed by Landlord and Building Engineers. Work is not allowed to proceed without approval from Landlord. GPR work must be performed by a certified vendor.

 

  d. Penetrations of the fire-rated walls: Contractor is to preserve existing fire ratings on all existing assemblies. Contractor is responsible for restoring fire rating to all assemblies affected by their work, including all fire caulking and smoke seals, as required.

 

  e. No gasoline operated devices, (i.e. concrete saws, coring machines, welding machines), etc., shall be permitted within the property. All equipment of this nature shall be electrically operated.

 

  f. All gas and oxygen canisters shall be properly chained and supported to eliminate all potential hazards and removed immediately from the building upon completion of work. Storage of gas or oxygen canisters is not permitted.

 

  g. Contractor will effectively protect the building walls, floors, doorways and paths of travel for the duration of the project. Protection includes, but is not limited to, masonite floor/wall protection for the transportation of heavy/cumbersome loads, plastic floor coverings and door mats to prevent the tracking of dust and debris through the common areas, sprinkler head protection, etc.

 

  h. All dollies, carts, hand trucks, or any other equipment used to transport materials, equipment/tools or debris, shall be outfitted with rubber or polyurethane wheels.

 

  i. Tool belts should not be worn outside the work area. Tools and equipment shall be properly stored and organized at the end of each work day.

Clean-up & Debris Removal: Contractor’s personnel shall at all times maintain the highest level of cleanliness. Prior to project-start, a Work Plan, requesting permission to use the restrooms and/or common areas of the building & loading dock for clean-up and debris removal, shall be submitted to and approved by the Building Management Office.

 

  i. Construction Debris: All construction debris shall be removed daily via the freight elevators, transported in appropriate containers so as to ensure zero leakage of debris or liquids. Debris shall not be allowed to accumulate so as to produce a fire hazard or block the path of egress. No construction debris can be placed in the property compactors or dumpsters.

 

  ii. Public areas: Corridors, restrooms, janitors’ closets, etc., shall be maintained and kept free of construction debris, dust, etc. Contractors are not permitted to use the restrooms for tool cleanup. In the event a contractor is allowed to utilize a corridor, restroom, janitor’s closet, etc., it must be kept clean at all times.

 

  iii.

General cleaning & final clean-up: All work performed in occupied areas must be cleaned by the contractor at the end of each business day. A final detailed cleaning shall be done upon project completion. In the event that the contractor fails to keep the project area free of accumulated waste, the owner reserves the right to


  enter said premises and remove the debris at the contractor’s expense. k.

Electrical Power & Energy Consumption

 

  i. The contractor shall be responsible for minimizing energy consumption in its construction area by securing equipment when not in use. The owner will provide normal electrical consumption during business hours, 7:00 a.m. to 5:00 p.m., Monday through Friday. All lights and equipment must be turned off at the end of each business day. Should the contractor continue to leave lights and equipment on during off-hours, the owner has the right to bill contractor for the excess electrical consumption.

 

  ii. The contractor will be required to provide temporary electrical power within the project area for use by its subcontractors. Contractors will not be permitted to run extension cords through public areas or on occupied tenant floors that could cause a trip hazard.

 

  I. Hazardous Materials Work: All work involving hazardous materials, including, but not limited to asbestos and lead based paint, shall be performed in strict accordance with the Site Specific Asbestos Operations and Maintenance Plan and the Site Specific Lead Based Paint Operations and Maintenance Plan. These operations & maintenance plans are available, upon request to the Building Management Office.

Attached hereto (Addendum 4) is the Owner’s standard Asbestos Containing Materials & Lead Based Paint notification to vendors.

 

  m. Fire Life Safety System: Any work involving the property fire alarm system or its components shall be performed in strict accordance with the CEWA processes. No adjustments, corrections, or work to the fire alarm system will be made without prior approval of the Building Engineers & the building’s life safety system monitoring contractor, Honeywell.

Anytime the fire alarm system is required to be removed from service during construction, it shall be placed back into service at the end of each work day. Requests of this nature should be included in the original Work Plan.

Contractors are not permitted to enter the Fire Command Center at any time, without prior approval from Property Manager and must be accompanied by the Property Manager, a Building Engineer, or a Security Officer.

 

  n. Fire Extinguishers: All contractors are required to provide and make available fire extinguisher(s) as specified/required by SFFD, within the project area at all times during construction.

 

  o. Hot Work Permits: Contractor will schedule, in advance with property management and the engineering department, all work requiring a hot work permit.

General Behavior:


  i. All contractors, sub-contractors, material men and other project personnel shall wear clothing that clearly identifies his/her company. Appropriate attire will be required at all times, including full length pants and close-toed shoes. Shorts and sandals are not considered appropriate attire. Clothing containing words, symbols or other forms of communication considered offensive or in bad taste are not permitted.

 

  ii. Proper safety equipment shall be required at all times. (i.e., hard hats, safety glasses, goggles, respirators, etc.)

 

  iii. Any contractor, subcontractors or laborers, found using profanity, exhibiting a lack of courtesy to a tenant, visitor, or employee will be immediately ejected from the property and will not be allowed to return.

 

  iv. Graffiti or vandalism will be not tolerated. Any contractor found responsible for any graffiti or vandalism shall be immediately removed from the building, and will not be allowed to return. Any expenses associated with the removal or repair resulting from the graffiti or vandalism will be at the contractor’s expense.

 

  v. Smoking is not permitted within 20 feet of the building entrances, operable windows and air intakes, per San Francisco Health Code, Article 19F. Any contractor or personnel found smoking will be immediately removed from the property and will not be allowed to return.

 

  vi. Chewing gum and tobacco are not permitted on the job site.

 

  vii. No radios are permitted in the building, including “Walkman” type radios with headsets. Radio Frequency Devices, including two-way radios, are not allowed in building as they are disruptive and may interfere with the equipment in critical environments and facilities. The contractor may check-out radios from Engineering on a daily basis, if required.

 

  VIII.  Project Close-out package: Upon completion of the project, contractor shall submit to property management a close-out package consisting of the following items:

 

  a. Two (2) Close-out Binders containing:

 

  i. CD of architectural as-builts in CAD and PDF formats (3 copies)

 

  ii. CD of MEP, Life Safety, and Fire Sprinkler as-builts in CAD and PDF formats (3 copies)

 

  iii. Hard copy permit drawings (1 copy)

 

  iv. Final certified air balance report from independent contractor

 

  v. Environmental consultant’s final report (if applicable)

 

  vi. Maintenance manuals and warrantees


  vii. Completed punch-list

 

  viii. Permit cards with final signatures

 

  ix. Summary report of landfill diversion rates

 

  x. Unconditional/final lien releases for general contractor and all subcontractors

 

  xi. For Landlord-run projects: final invoices

 

  IX. Amendment

Hudson Pacific Properties reserves the right to add to or generally amend these rules and regulations at any time before, during or after a project. It is the responsibility of the contractor to remain up to date with and to abide by the rules and regulations contained herein, and those forthcoming.

Contractor & Tenant Acknowledgement

I confirm that I have read and understand the rules and regulations as set forth in this document.

Contractor:

By:

Name:

Date:

Tenant:

By:

Name:

Date:


Addendum 1

 

LOGO

 

  

Submit this form to:

Hudson Pacific Properties

1455 Market Street, Suite

1101 San Francisco, CA

94103

Project Start Notification - 1455 Market Street

 

Project Name:       Project #:    PM #:    Scheduled Start Date:
Project Location    Floor:    Tenant:       Project Schedule will be issued:
Project Manager:    Tel:    Fax #:       Reference the following documents:
Project Superintendent:    Pager:    Fax #:       Security clearance required:
Project Assistant:    Tel:          General Scope of Work:

 

GENERAL CONTRACTOR:

 

 

EMERGENCY CONTACT         AFTER HOURS PHONE

 

SUBCONTRACTOR   TRADE   CONTACT   PHONE   FAX   OTHER
         
         
         

There will be a mandatory Job Start meeting on

 

Date

   Time    Location
     
     
     

All general contractors are required to meet with building management prior to any construction work beginning.

Please provide building management with the day and time for said meeting

 

For Office Use: Only:

Copies distributed to:      
Project Manager   

 

  
Senior Property Manager   

 

  
Property Manager   

 

  
Engineering   

 

  
Security   

 

  

1455 Market Street, Suite 1101, San Francisco, CA 94103


Addendum 2

Hudson 1455 Market, LLC

INSURANCE REQUIREMENTS

Vendors Performing Work on behalf of Building Owner

A current and valid Certificate of Insurance must be on file prior to service. Contractor must maintain the following minimum insurance over the duration of the service:

Contractor shall maintain the following insurance coverage:

 

  General Liability

Vendor/Contractor shall maintain insurance covering Contractor, any subcontractor, or anyone directly or indirectly employed by either of them, including commercial general liability insurance on an occurrence basis. For bodily injury liability and property damage liability, Contractor shall maintain coverage of $1,000,000 for each occurrence, $2,000,000 general aggregate, and $1,000,000 products and completed operations aggregate.

The commercial general liability insurance must include Blanket Contractual Liability, Broad Form Liability, including Products/Completed Operations, Independent Contractors, Broad Form Property Damage, Personal Injury, Fellow Employee Exclusion deleted, “X”, “C” and “U” Exclusions deleted. If the policy is subject to a “general aggregate”, it must contain a “per job” or “per location” aggregate extension with respect to work for Owner.

 

  Automobile Liability

For automobile liability, Contractor must carry Bodily Injury Liability and Property Damage Liability in an amount not less than $1,000,000 Combined Single Limit, and the insurance must include Owned (Long Term Leased), Employer’s Non-Owned and Hired Automobile Coverage.

 

  Excess Umbrella Liability

For umbrella liability, Contractor shall maintain coverage of $5,000,000 general aggregate per location or per job and $1,000,000 products and completed operations aggregate. The umbrella policy must apply to both primary Commercial General Liability and Automobile Liability.

 

  Workers Compensation & Employers Liability

Contractor must carry evidence of workers compensation coverage in compliance with applicable California law, and a minimum policy of $1,000,000 for employer’s liability.

 

  Additional Insured

Contractor shall add, by Additional Insured Endorsement CG2011, the following:

Hudson 1455 Market, LLC, its parent and all of their subsidiaries, agents and employees are Additional Insured jointly and/or severally, regarding any coverage afforded by this policy with respect to services and/or materials performed, furnished or supplied on, for or to such Property. This insurance shall be primary with respect to any other insurance available to such additional insured, and shall be endorsed in a manner that will prohibit Contractor’s insurers from seeking contribution from such insurance of the additional insured.”

Important: A statement on the certificate does not confer additional insured rights. The policy must be endorsed and the appropriate endorsement must accompany the certificate.

 

  Description of Operations

The contractor/vendor’s scope of work shall be summarized as follows:

Re: Operations performed on behalf of Building Owner at 1455 Market Street, San Francisco, CA 94103

 

  Certificate Holder

Certificate Holder shall read:

                         Hudson 1455 Market, LLC

                         1455 Market Street, Suite 1101

                         San Francisco, CA 94103


Hudson 1455 Market, LLC Addendum 2 (cont)
INSURANCE REQUIREMENTS
Vendors Performing Work on behalf of Tenants

A current and valid Certificate of Insurance must be on file prior to service. Contractor must maintain the following minimum insurance over the duration of the service:

Contractor shall maintain the following insurance coverage:

 

  General Liability

Vendor/Contractor shall maintain insurance covering Contractor, any subcontractor, or anyone directly or indirectly employed by either of them, including commercial general liability insurance on an occurrence basis. For bodily injury liability and property damage liability, Contractor shall maintain coverage of $1,000,000 for each occurrence, $2,000,000 general aggregate, and $1,000,000 products and completed operations aggregate.

The commercial general liability insurance must include, Broad Form Liability, including Products/Completed Operations, Independent Contractors, Broad Form Property Damage, Personal Injury, Fellow Employee Exclusion deleted, “X”, “C” and “U” Exclusions deleted. If the policy is subject to a “general aggregate”, it must contain a “per job” or “per location” aggregate extension with respect to work for Owner.

 

  Automobile Liability

For automobile liability, Contractor must carry Bodily Injury Liability and Property Damage Liability in an amount not less than $1,000,000 Combined Single Limit, and the insurance must include Owned (Long Term Leased), Employer’s Non-Owned and Hired Automobile Coverage.

 

  Excess Umbrella Liability

For umbrella liability, Contractor shall maintain coverage of $5,000,000 general aggregate per location or per job and $1,000,000 products and completed operations aggregate. The umbrella policy must apply to both primary Commercial General liability and Automobile Liability.

 

  Workers Compensation & Employers Liability

Contractor must carry evidence of workers compensation coverage in compliance with applicable California law, and a minimum policy of $1,000,000 for employer’s liability.

 

  Additional Insured

Contractor shall add, by Additional Insured Endorsement CG2011, the following:

Hudson 1455 Market, LLC, its parent and all of their subsidiaries, agents and employees are Additional Insured jointly and/or severally, regarding any coverage afforded by this policy with respect to services and/or materials performed, furnished or supplied on, for or to such Property. This insurance shall be primary with respect to any other insurance available to such additional insured, and shall be endorsed in a manner that will prohibit Contractor’s insurers from seeking contribution from such insurance of the additional insured.”

Blanket Endorsements are only acceptable in the following circumstance: The contract between Tenant and Tenant’s contractor/vendor must expressly name the building owner, Hudson 1455 Market, LLC, et al, as Additional Insured.

Important: A statement on the certificate does not confer additional insured rights. The policy must be endorsed and the appropriate endorsement must accompany the certificate.

 

  Description of Operations

The contractr/vendor’s scope of work shall be summarized as follows:

Re: Operations performed for <INSERT TENANT COMPANY> at 1455 Market Street, San Francisco, CA 94103

 

  Certificate Holder

Certificate Holder shall read:

        Hudson 1455 Market, LLC

        1455 Market Street, Suite 1101

        San Francisco, CA 94103


Addendum 3

 

   Submit this form to:             

 

LOGO

  

Contractor Access Form

 

    

Darlene Breech

   General Manager    Date:  

 

    

Ray Kuryla

   Chief Engineer     
 

 

From:

  

 

 

   General Contractor    Tenant:  

 

    

 

   Project Manager    Job #:  

 

    

 

   Cell#     
    

 

   Pager#     
    

 

   Office #     
    

 

   Home#     
           Floor #:  

 

    

 

   Project Superintendent     
    

 

   Cell#     
    

 

   Pager#     

The following is a list of subcontractors who will require building access to the above referenced space on the below date(s). Please note that access forms can only be set up for a one week period at a time.

 

Subcontractor Name   Contact/Emergency#   Date (From-To)   Time (From-To)   Subcontractor/ Include Quantity
of Staff
       
       
       

Brief Description of Work.

 

 

 

 

IMPORTANT NOTES:

1) It is the General Contractor’s responsibility to have their Superintendent and/or their Subcontractors responsible party sign in and out with Engineering prior to the commencement of ANY work.

2) A minimum of 48 HOURS NOTICE must be given for such items as Life Safety Testing, Smoke Detector(s) needing to be towed off, HVAC/Air Off Requests (ACM work), Sprinkler Work, Loud noise, Coring, and Roto-Hammering

3) Any work in and around elevators must he coordinated and scheduled in advance with the Building Office. Please note that Bus Taps will require a longer notification period. Prior arrangements must be made with the Building Office for freight elevator reservations and Debris Boxes must be scheduled with Security directly.

4) Please note that the notification boxes must be completed before submitting the access form. If voicemail is left and access has not been approved, it is the responsibility of the General Contractor to call back for that Individual’s approval.

 

     Date    Contact    Left VM    Approved By    Reason

Ray Kuryla (Jones Lang LaSalle, Engineering)

                        

Building Office Notified

                        

Jaime Castellanos, Security Manager Notified

              

Building Office to coordinate access with Engineering and Security for the items mentioned in the above Note section.


LOGO

DISCLOSURE OF INFORMATION ON ASBESTOS-CONTAINING MATERIALS

AND LEAD-BASED PAINT HAZARDS FOR

1455 Market Street, San Francisco, California (“Property”)

Employees, Vendors, and Tenants are advised that the presence of certain types of toxins and contaminants, including, but not limited to asbestos-containing materials and lead-containing paints, finishes, coatings, and sheetings (collectively, “materials”) may be present at the Property. Employees, Vendors, and Tenants and representatives of same are encouraged to inquire as to the asbestos and/or lead content of such materials, paints, finishes, coatings, and sheetings before disturbing them. Hudson 1455 Market, LLC (Owner) is aware of the materials specified in this disclosure and has implemented an Asbestos Operations and Maintenance Program. Owner will also implement a Lead-containing Material Operations and Maintenance Program shortly. Other materials may be present, but have not been tested.

Owner’s Disclosure

 

  (a) Presence of asbestos-containing materials and lead based paint hazards:

 

  (i) Asbestos-Containing Materials/Asbestos-Containing Construction Materials (hereafter “ACM/ACCM”) and Lead-Based Paints hereafter “LBP”) are often found in buildings constructed prior to the late 1970’s. Asbestos was commonly used, for example, as spray-applied fireproofing on structural steel beams, in some floor tiles, and in canvas-encased pipe and elbow insulation. Lead was commonly used in paints.

 

  (ii) Work that may involve the removal or physical disturbance of ACM/ACCM, Presumed ACM, LBP and Presumed LBP, which may cause the release of asbestos fibers and/or lead dust into the air, must be done by a licensed asbestos and/or lead abatement contractor or other trained personnel with the proper equipment, and under no circumstances by a vendor, tenant, representative of same, or any other employee of Hudson 1455 Market, LLC or its contractors, subcontractors, agents or unauthorized person.

 

  (iii) So long as ACM/ACCM and/or LBP remain intact, the asbestos and/or lead do not pose a health hazard. Therefore, if you notice any ACM/ ACCM or LBP that is broken or crumbling, please avoid contact and notify the designated Hudson 1455 Market, LLC representative.

 

  (iv) Please be advised that no person is permitted to disturb any suspect ACM/ACCM or LBP without prior testing to determine whether or not this material is asbestos-containing and/or lead-containing. Since this facility contains ACM/ACCM and Presumed LBP, it is your responsibility (i.e., as

 

1455 Market Street, Suite 1101, San Francisco, CA 94103

www.hudsonpacificproperties.com


 

LOGO

 

  required by applicable federal, state and local laws and regulations) to inform any worker employed by your firm that will work in this facility and provide required asbestos awareness and/or lead awareness training. It is also your responsibility to inform your subcontractors of the presence and locations of ACM/ACCM and Presumed LBP in this facility and of their obligations.

 

  (v) Based on the survey reports received by Owner, known ACM/ACCM, Presumed ACM, and Presumed LBP have been identified in the locations listed below.

 

  (b) List of records and reports available to the Owner:

The foregoing is a summary of the operations and maintenance plan and test results for known ACM and lead-containing material hazards. Copies of the following can be reviewed at the Management Office:

Asbestos Operations and Maintenance Program, 1455 Market Street, San Francisco, California byATC Associates, Inc. updated May 16, 2011.

Lead Based Paint Operations and Maintenance Program, 1455 Market Street, San Francisco, California by ATC Associates, Inc. dated May 16, 2011.

Asbestos and Lead Paint Survey Reports/Data, 1455 Market Street, San Francisco, California byATC Associates, Inc., multiple dates and reports.

You may also contact the Hudson 1455 Market, LLC representative designated below, for more detailed information.

 

CONTACT: DARLENE BEECH

PHONE

 

Acknowledgement

We have received and reviewed a copy of Asbestos and Lead Notification to Tenants and Vendors. We will contact the Hudson 1455 Market, LLC representative with any questions or concerns.

 

 

 

Signature Date

 

Print Name

 

Title

 

1455 Market Street, Suite 1101, San Francisco, CA 94103

www.hudsonpacificproperties.com


 

LOGO

HUDSON 1455 MARKET, LLC

ASBESTOS CONTAINING MATERIALS SUMMARY

1455 MARKET STREET

SAN FRANCISCO, CALIFORNIA

MATERIALS IDENTIFIED TO CONTAIN ASBESTOS

Material Types and General Locations of known Asbestos-Containing

Materials/Asbestos-Containing

Construction Materials (ACM/ACCM), as of April 2011.

 

TABLE 1— MATERIALS IDENTIFIED TO CONTAIN ASBESTOS

1455 MARKET STREET, SAN FRANCISCO, CA

    

Location

   Quantity    DOSH
Definition
   EPA Category

Cove Base Mastic Yellow & Brown

  

Floor A—Throughout

   150 LF    ACM    CAT I

Cove Base Mastic Brown

  

Floor L— Mail Room

   150 LF    ACM    CAT I

Mastic under 12” x12” Floor Tile , White w/Brown Streaks

  

Basement— Elevator Lobby

Floor A— Elevator Lobby

6th Floor — Elevator Lobby

7th Floor — Elevator Lobby

8th Floor — Elevator Lobby

9th Floor — Elevator Lobby

10th Floor— Elevator Lobby

23rd Floor— Elevator Lobby

   12,4005E    ACM    CAT I

Floor Tile, White & Green w/Brown Spacing

  

Basement— Elevator Lobby

   0 SF    ACM    CAT I

Mastic under 12” Beige & Dark Gray

  

18th Floor— Break Room

   130 SF    ACM    CAT I

4” Cove Base Mastic, Brown

  

18th Floor— Room 1803

23rd Floor— Freight Elevator Lobby

   0 SF    ACM    CAT I

Mastic, Black under 12” Beige w/Black Streak Tile

  

23rd Floor— Freight Elevator Lobby

   100 SF    ACM    CAT I

Gasket

  

9th Floor— Mechanical Room

   0 SF    ACM    RACM

HVAC Flex Connector

  

8th Floor— Mechanical Room

   150 SF    ACM    RACM

SF = Square Feet, LF = Linear Feet, ACM = Asbestos-Containing Material, Cat I = Category I Non-friable ACM, RACM = Regulated Asbestos-Containing Materials

 

1455 Market Street, Suite 1101, San Francisco, CA 94103

www.hudson pacif icproperties.com


 

LOGO

HUDSON 1455 MARKET, LLC

LEAD BASED PAINT SUMMARY

1455 MARKET STREET

SAN FRANCISCO, CALIFORNIA

 

 

 

MATERIALS PRESUMED TO CONTAIN LEAD

Based on the age of the building, pre-1978, the following materials are presumed to contain lead.

 

TABLE 2— MATERIALS PRESUMED TO CONTAIN LEAD
1455 MARKET STREET, SAN FRANCISCO, CA

Materials Description

  

Location

Interior Painted Surfaces    Painted Surfaces Throughout the Interior of Building
Exterior Painted Surfaces    Painted Surfaces Throughout the Exterior of Building
Ceramic Tiles    Various Locations Throughout Including Restrooms, Kitchen Areas, Break Rooms, Etc.

 

 

1455 Market Street, Suite 1101, San Francisco, CA 94103

www.hudson pacif icproperties.com


EXHIBIT G

MARKET RENT ANALYSIS

When determining Market Rent, the following rules and instructions shall be followed.

1. The “Market Rent,” as used in this Lease, shall be derived from an analysis (as such derivation and analysis are set forth in this Exhibit G) of the “Net Equivalent Lease Rates,” of the “Comparable Transactions”. The “Market Rent,” as used in this Lease, shall be equal to the annual rent per rentable square foot as would be applicable on the commencement of the applicable Option Term at which tenants, are, pursuant to transactions consummated within the twelve (12) month period immediately preceding the first day of the Option Term (provided that timing adjustments shall be made to reflect any perceived changes which will occur in the Market Rent following the date of any particular Comparable Transaction up to the date of the commencement of the Option Term) leasing non-sublease, non-encumbered, non-equity space comparable in location and quality to the Premises and consisting of at least fifty thousand (50,000) rentable square feet, for a comparable term, in an arm’s-length transaction, which comparable space is located in the “Comparable Buildings,” as that term is defined in Section 4, below (transactions satisfying the foregoing criteria shall be known as the “Comparable Transactions”). The terms of the Comparable Transactions shall be calculated as a Net Equivalent Lease Rate pursuant to the terms of this Exhibit G and shall take into consideration only the following terms and concessions (the “Concessions”): (i) the rental rate and escalations for the Comparable Transactions, (ii) the amount of parking rent per parking permit paid in the Comparable Transactions, (iii) operating expense and tax escalation protection granted in such Comparable Transactions such as a base year or expense stop; (iv) tenant improvements or allowances provided or to be provided for such comparable space, taking into account, the value of the existing improvements, if any, in the Premises, such value of existing improvements to be based upon the age, quality and layout of the improvements and the extent to which the same could be utilized by general office users (as contrasted to the Tenant), (v) rental/parking abatement concessions, if any, being granted such tenants in connection with such comparable space, and (vi) all other monetary concessions being granted such tenants in connection with such Comparable Transactions; provided, however, that no consideration shall be given to (1) the fact that Landlord is or is not required to pay a real estate brokerage commission in connection with the applicable term or the fact that the Comparable Transactions do or do not involve the payment of real estate brokerage commissions, and (2) with respect to the determination of Option Rent only (but not with respect to the determination of any Availability Premises Rent) any period of rental abatement, if any, granted to tenants in Comparable Transactions in connection with the design, permitting and construction of tenant improvements in such comparable space; provided, however, to the extent any of the tenants in the Comparable Transactions complete (or is reasonable anticipated to complete) the construction of tenant improvements in such comparable space early, and are allowed to occupy their premises for purpose of conducting business without the payment of rent (similar to Tenant’s beneficial occupancy right in Section 2.5.2 of this Lease), then such occupancy period shall be considered in connection with the determination of Option Rent. The Market Rent shall include adjustment of the stated size of the Premises, based upon the standards of measurement utilized in the Comparable Transactions.

2. Intentionally Omitted.


3. CONCESSIONS. If, in determining the Market Rent for an Option Term, Tenant is entitled to Concessions, Tenant shall not be granted such Concessions in-kind, but instead the rental rate component of the Market Rent shall be adjusted (pursuant to the methodology provided in Section 5), to reflect the fact that Tenant shall not be receiving such Concessions; provided, however, Landlord may, at Landlord’s sole option, elect to grant any “free rent” or “rent abatement” Concessions to Tenant in-kind (i.e., as free rent or rent abatement), in which the rental rate component of the Market Rent shall not be adjusted with respect to such free rent and/or rent abatement Concessions (but shall still be adjusted for any other Concession Tenant is entitled to but not granted).

4. COMPARABLE BUILDINGS. For purposes of this Lease, the term “Comparable Buildings” shall mean the Building and those certain other similarly sized and otherwise comparable multi-tenant office buildings of similar quality to the Building and located in the area bounded by Van Ness Street on the West side, Market Street on the North side, Mission Street on the South side, and Fifth Street on the East side (the “Market Area”). The parties hereby agree and acknowledge that based on its size and quality as of the date of this Lease, 1355 Market is a Comparable Building. Buildings located on the streets forming the Market Area, shall be deemed inside the Market Area regardless of whether such buildings are located on the side of the street that the remainder of the Market Area is located, or on the side of the street opposite from the Market Area. With respect to Comparable Transactions that are not located in the Building, the Market Rent shall be adjusted, if necessary, to take into consideration the size, age, quality of construction and appearance of the Comparable Buildings as they the relate to the Building. In the event in the Neutral Arbitrator determines that there are not enough Comparable Transactions to effective and accurately establish the Market Rent, then the Market Area shall be expanded to include all office sub-markets in San Francisco, California.

5. METHODOLOGY FOR REVIEWING AND COMPARING THE COMPARABLE TRANSACTIONS. In order to analyze the Comparable Transactions based on the factors to be considered in calculating Market Rent, and given that the Comparable Transactions may vary in terms of length or term, rental rate, concessions, etc., the following steps shall be taken into consideration to “adjust” the objective data from each of the Comparable Transactions. By taking this approach, a “Net Equivalent Lease Rate” for each of the Comparable Transactions shall be determined using the following steps to adjust the Comparable Transactions, which will allow for an “apples to apples” comparison of the Comparable Transactions.

5.1 The contractual rent payments for each of the Comparable Transactions should be arrayed monthly or annually over the lease term. All Comparable Transactions should be adjusted to simulate a net rent structure, wherein the tenant is responsible for the payment of all property operating expenses and taxes in a manner consistent with this Lease. This results in the estimate of Net Equivalent Rent received by each landlord for each Comparable Transaction being expressed as a periodic net rent payment.

5.2 Any free rent or similar inducements received over time should be deducted in the time period in which they occur, resulting in the net cash flow arrayed over the lease term.


5.3 The resultant net cash flow from the lease should be then discounted (using an annual discount rate equal to 8.0%) to the lease commencement date, resulting in a net present value estimate.

5.4 From the net present value, up front inducements (improvements allowances and other concessions) should be deducted. These items should be deducted directly, on a “dollar for dollar” basis, without discounting since they are typically incurred at lease commencement, while rent (which is discounted) is a future receipt.

5.5 The net present value should then amortized back over the lease term as a level monthly or annual net rent payment using the same annual discount rate of 8.0% used in the present value analysis. This calculation will result in a hypothetical level or even payment over the option period, termed the “Net Equivalent Lease Rate” (or constant equivalent in general financial terms).

6. USE OF NET EQUIVALENT LEASE RATES FOR COMPARABLE TRANSACTIONS. The Net Equivalent Lease Rates for the Comparable Transactions shall then be used to reconcile, in a manner usual and customary for a real estate appraisal process, to a conclusion of Market Rent which shall be stated as a Net Equivalent Lease Rate applicable the Option Term.


EXHIBIT H

FORM OF LETTER OF CREDIT

(Letterhead of JPMC)

October     , 2012

Hudson 1455 Market, LLC

11601 Wilshire Boulevard, Suite 1600

Los Angeles, California 90025

Attention: Mr. Howard Stern

Gentlemen:

We hereby establish our Irrevocable Letter of Credit and authorize you to draw on us at sight for the account of SQUARE, INC., 901 Mission Street, San Francisco, California 94013 (“Applicant”), a Delaware corporation, the aggregate amount of Nine Million Dollars ($9,000,000).

Funds under this Letter of Credit are available to the beneficiary hereof as follows:

Any or all of the sums hereunder may be drawn down at any time and from time to time from and after the date hereof by Hudson 1455 Market, LLC (“Beneficiary”) by presentation of a sight draft on us when accompanied by this Letter of Credit and a written dated statement signed by Beneficiary, certifying that:

 

  (i) “Hudson 1455 Market, LLC (“Beneficiary”) is otherwise allowed to draw down on the Letter of Credit No.                      in the requested amount of USD          pursuant to the terms of that certain office lease by and between Beneficiary and Square, Inc. (“Applicant”) dated October     , 2012, as amended (collectively, the “Lease”)”, or

 

  (ii) “Hudson 1455 Market, LLC (“Beneficiary”) is entitled to draw down the full available amount of letter of credit no.                      in the requested amount of USD 9,000,000, as the result of the filing of a voluntary petition under the U.S. Bankruptcy Code or a State Bankruptcy Code by Square, Inc. (“Applicant”), which filing has not been dismissed at the time of this drawing”, or

 

  (iii) “Hudson 1455 Market, LLC (“Beneficiary”) is entitled to draw down the full available amount of letter of credit no.                      in the requested amount of USD 9,000,000, as the result of the filing of an involuntary petition having been filed under the U.S. Bankruptcy Code or a State Bankruptcy Code against Square, Inc. (“Applicant”), which filing has not been dismissed as of the later of 30 days after the filing and the time of this drawing”.

THIS LETTER OF CREDIT IS TRANSFERABLE, BUT ONLY IN ITS ENTIRETY, AND MAY BE SUCCESSIVELY TRANSFERRED. TRANSFER OF THIS LETTER OF CREDIT SHALL BE EFFECTED BY US UPON YOUR SUBMISSION OF THIS ORIGINAL


LETTER OF CREDIT, INCLUDING ALL AMENDMENTS, IF ANY, ACCOMPANIED BY OUR TRANSFER REQUEST FORM DULY COMPLETED AND SIGNED, WITH THE SIGNATURE THEREON AUTHENTICATED BY YOUR BANK, ALONG WITH PAYMENT OF OUR TRANSFER CHARGES AS INDICATED THEREIN****. IF YOU WISH TO TRANSFER THE LETTER OF CREDIT, PLEASE CONTACT US FOR THE FORM WHICH WE SHALL PROVIDE TO YOU UPON YOUR REQUEST. IN ANY EVENT, THIS LETTER OF CREDIT MAY NOT BE TRANSFERRED TO ANY PERSON OR ENTITY LISTED IN OR OTHERWISE SUBJECT TO, ANY SANCTION OR EMBARGO UNDER ANY APPLICABLE RESTRICTIONS.

We hereby agree with you that if drafts are presented to [bank name] under this Letter of Credit on a business day, and provided that such drafts presented conform to the terms and conditions of this Letter of Credit, payment shall be initiated by us in immediately available funds by our close of business on the third business day following receipt of such draft. As used in this Letter of Credit, “business day” shall mean any day other than a Saturday, Sunday or a day on which banking institutions in the state of Illinois are authorized or required by law to close; and a day on which inter-bank payments can be effected on Fedwire System.

We hereby engage with you that drafts drawn under and in compliance with the terms and conditions of this Letter of Credit will be duly honored by us if presented at our offices located at                     , attention:                      (or at such other office of the bank as to which you have received written notice from us by certified mail, courier service or hand delivery, as being the applicable such address) on or before the then current expiration date. We agree to send notice to you in writing by certified mail, courier service or hand delivery, of any change in such address.

Presentation of a drawing under this Letter of Credit may be made on or prior to the then current expiration date hereof by hand delivery, courier service, overnight mail, or facsimile. Presentation by facsimile transmission shall be by transmission of the above required sight draft drawn on us together with this Letter of Credit and Beneficiary’s signed statement specified above to our facsimile number, (    )                     attention: the manager, standby letter of credit department, with telephonic confirmation of our receipt of such facsimile transmission at our telephone number (    )                     or to such other facsimile or telephone numbers, as to which you have received written notice from us as being the applicable such number). We agree to notify you in writing, by certified mail, courier service or hand delivery, of any change in such direction.

This Letter of Credit shall expire on October 31, 2013.

Notwithstanding the above expiration date of this Letter of Credit, the term of this Letter of Credit shall be automatically extended for successive, additional one (1) year periods unless, at least sixty (60) days prior to any such date of expiration, the undersigned shall give send written notice to Beneficiary, by certified mail, return receipt requested or courier service; and at the address set forth above or at such other address as may be given to the undersigned by Beneficiary, that this Letter of Credit will not be extended beyond December 31, 2023.

THIS LETTER OF CREDIT IS GOVERNED BY, AND CONSTRUED IN ACCORDANCE WITH THE LAWS OF THE STATE OF NEW YORK, AND, EXCEPT AS OTHERWISE EXPRESSLY STATED HEREIN, TO THE INTERNATIONAL STANDBY


PRACTICES, ICC PUBLICATION NO. 590 (THE “ISP98”), AND IN THE EVENT OF ANY CONFLICT, THE LAWS OF THE STATE OF NEW YORK WILL CONTROL, WITHOUT REGARD TO PRINCIPLES OF CONFLICT OF LAWS.

 

Very truly yours,
[Name of Issuing Bank]
By:

 


EXHIBIT I

OUTDOOR TERRACES AND EXPANDED TERRACE

 

 

LOGO


EXHIBIT J

PERIMETER WINDOWS

 

LOGO

 


LOGO


LOGO


EXHIBIT K

AFTER HOURS HVAC COST CALCULATOR

 

LOGO


LOGO


LOGO


EXHIBIT L

MECHANICAL PENTHOUSE

 

LOGO


EXHIBIT M

ASBESTOS NOTICE

DISCLOSURE OF INFORMATION ON ASBESTOS-CONAINING MATERIALS

AND LEAD-BASED PAINT HAZARDS FOR

1455 Market Street, San Fransicso, California (“Property”)

Employees, Vendors, and Tenants are advised that the presence of certain type of toxins and contaminants, including, but not limited to asbestos-containing materials and head-containing paints, finishes, coatings, and sheeting (collectively, “materials”) may be present at the Property. Employees, Vendors, and Tenants and representatives of same are encouraged to inquire as to the asbestos and/or lead content of such materials, paints, finishes, coatings, and sheetings before disturbing them. Hudson 1455 Market, LLC (Owner) is aware of the materials specified in this disclosure and has implemented an Asbestos Operations and Maintenance Program. Owner will also implement a Lead-containing Material Operations and Maintenance Program shortly. Other materials may be present, but have not been tested.

Owner’s Disclosure

 

  (a) Presence of Asbestos-containing materials and lead based paint hazards:

 

  (i) Asbestos-Containing Materials/Asbestos-Containing Construction Materials (HEREAFTER “ACM/ACCM”) and Lead-Based Paints hereafter “LBP”) are often found in buildings constructed prior to the late 1970’s. Asbestos was commonly used, for example, as spray-applied fireproofing on structural steel beams, in some floor tiles, and in canvas-encased pipe and elbow insulation. Lead was commonly used in paints.

 

  (ii) Work that may involve the removal or physical disturbance of ACM/ACCM, Presumed ACM, LBP and Presumed LBP, which may cause the release of asbestos fibers and/or lead dust into the air, must be done by a licensed asbestos and/or lead abatement contractor or other trained personnel with the proper equipment, and under no circumstances by a vendor, tenant, representative of same, or any other employee of Hudson 1455 Market, LLC or its contractors, subcontractors, agents or unauthorized person.

 

  (iii) So long as ACMA/ACCM and/or LBP remain intact, the asbestos and/or lead do not pose a health hazard. Therefore, if you notice any ACM/ACCM or LBP that is broken or crumbling, please avoid contact and notify the designated Hudson 1455 Market, LLC representative.

 

  (iv) Please be advised that no person is permitted to disturb any suspect ACM/ACCM or LBP without prior testing to determine whether or not this material is asbestos-containing and/or lead-containing. Since this facility contains ACM/ACCM and Presumed LBP, it is your responsibility (i.e., as required by applicable federal, state and local laws and regulations) to inform any worker employed by your firm that will work in this facility and provide required asbestos awareness and/or lead awareness training. It is also your responsibility to inform your subcontractors of the presence and locations of ACM/ACCM and Presumed LBP in this facility and of their obligations.

 

  (v) Based on the survey reports received by Owner, known ACM/ACCM, Presumed ACM, and Presumed LBP have been identified in the locations listed below.

 

  (b) List of records and reports available to the Owner:

The foregoing is a summary of the operations and maintenance plan and test results for known ACM and lead-containing material hazards. Copies of the following can be reviewed at the Management Office:

Asbestos Operations and Maintenance Program, 1455 Market Street, San Francisco, California by ATC Associates, Inc. updated May 16, 2011.

Lead Based Paint Operations and Maintenance Program, 1455 Market Street, San Francisco, California by ATC Associates, Inc. dated May 16, 2011.

Asbestos and Lead Paint Survey Reports/Data, 1455 Market Street, San Francisco, California by ATC Associates, Inc., multiple dates and reports.


You may also contact the Hudson 1455 Market, LLC representative designated below, for more detailed information.

 

CONTACT: DARLENE BEECH

PHONE                        

 

 

Acknowledgement

We have received and reviewed a copy of Asbestos and Lead Notification to Tenants and Vendors. We will contact the Hudson 1455 Market, LLC representative with any questions or concerns.

 

 

 

Signature Date

 

Print Name

 

Title


HUDSON 1455 MARKET, LLC

LEAD BASED PAINT SUMMARY

1455 MARKET STREET

SAN FRANCISCO, CALIFORNIA

 

 

 

MATERIALS IDENTIFIED TO CONTAIN ASBESTOS

Material Types and General Locations of known Asbestos-Containing

Materials/Asbestos-Containing

Construction Materials (ACM/ACCM), as of April 2011.

 

TABLE 1— MATERIALS IDENTIFIED TO CONTAIN ASBESTOS

1455 MARKET STREET, SAN FRANCISCO, CA

    

Location

   Quantity    DOSH
Definition
   EPA Category

Cove Base Mastic Yellow & Brown

  

Floor A—Throughout

   150 LF    ACM    CAT I

Cove Base Mastic Brown

  

Floor L— Mail Room

   150 LF    ACM    CAT I

Mastic under 12” x12” Floor Tile , White w/Brown Streaks

  

Basement— Elevator Lobby

Floor A— Elevator Lobby

6th Floor — Elevator Lobby

7th Floor — Elevator Lobby

8th Floor — Elevator Lobby

9th Floor — Elevator Lobby

10th Floor— Elevator Lobby

23rd Floor— Elevator Lobby

   12,4005E    ACM    CAT I

Floor Tile, White & Green w/Brown Spacing

  

Basement— Elevator Lobby

   0 SF    ACM    CAT I

Mastic under 12” Beige & Dark Gray

  

18th Floor— Break Room

   130 SF    ACM    CAT I

4” Cove Base Mastic, Brown

  

18th Floor— Room 1803

23rd Floor— Freight Elevator Lobby

   0 SF    ACM    CAT I

Mastic, Black under 12” Beige w/Black Streak Tile

  

23rd Floor— Freight Elevator Lobby

   100 SF    ACM    CAT I

Gasket

  

9th Floor— Mechanical Room

   0 SF    ACM    RACM

HVAC Flex Connector

  

8th Floor— Mechanical Room

   150 SF    ACM    RACM

SF = Square Feet, LF = Linear Feet, ACM = Asbestos-Containing Material, Cat I = Category I Non-friable ACM, RACM = Regulated Asbestos-Containing Materials

HUDSON 1455 MARKET, LLC

LEAD BASED PAINT SUMMARY

1455 MARKET STREET

SAN FRANCISCO, CALIFORNIA

 

 

 

MATERIALS PRESUMED TO CONTAIN LEAD

Based on the age of the building, pre-1978, the following materials are presumed to contain lead.

 

TABLE 2— MATERIALS PRESUMED TO CONTAIN LEAD

1455 MARKET STREET, SAN FRANCISCO, CA

Materials Description

  

Location

Interior Painted Surfaces    Painted Surfaces Throughout the Interior of Building
Exterior Painted Surfaces    Painted Surfaces Throughout the Exterior of Building
Ceramic Tiles    Various Locations Throughout Including Restrooms, Kitchen Areas, Break Rooms, Etc.


EXHIBIT N

TENANT’S PROPERTY

 

    Server racks (4-post)

 

    Network racks (2-post)

 

    Telco racks (2 and 4-post)

 

    Cable trays

 

    Innerduct (for fiber and copper)

 

    Structured network cabling

 

    Structured fiber optic cabling

 

    Wireless access points and mounts

 

    A/V equipment and mounts

 

    Inventory shelving

 

    A/V racks (2 and 4 post)

 

    Cabinet and rack mount Power distribution units

 

    Room-installed audio equipment including microphones, speakers, mixers, etc.

 

    Room-installed video conferencing equipment

 

    Wall mounted displays, single and multi screen and attached computing devices

 

    Projector screens

 

    Network cable whips

 

    Power whips

 

    Structured audio cabling

 

    Structured video cabling

 

    Cellular repeaters

 

    Cellular receivers


    Wireless telephone equipment

 

    Security cameras and any custom security access control equipment

 

    Kitchen appliances


EXHIBIT O

EXTERIOR SIGNAGE

 

LOGO


LOGO


LOGO


EXHIBIT P

JANITORIAL SPECIFICATIONS

LANDLORD’S MINIMUM SCOPE OF WORK

The following Minimum Scope of Work is intended to define and describe the requirements for Janitorial Services for the Building’s Common Areas to be provided by Landlord at Landlord’s cost at 1455 Market Street.

I. MAIN FLOOR LOBBY and PUBLIC CORRIDORS - General Specifications

 

A. Nightly Services (Monday – Friday), except City holidays

 

  1. Spot clean all glass including low partitions and the corridor side of all windows and glass doors

 

  2. Spot clean all brightwork including, guard’s desk, security monitors, swinging door hardware, kick plates, base partition tops, handrails, waste paper receptacles, planters, elevator call button plates, hose cabinets and visible hardware on the corridor side of the tenant entry doors

 

  3. Mop and/ or vacuum lobby floors.

 

  4. Spot clean and dust the directory board glass, signage, art, benches and ledges, as required

 

  5. Empty, clean and sanitize all waste paper baskets and refuse receptacles as required.

 

  6. Vacuum all carpets

 

B. Weekly Service (Once a week)

 

  1. Thoroughly clean all door saddles of dirt and debris

 

C. Quarterly Services (Once per quarter)

 

  1. Scrub and buff to a high luster Building lobby flooring.

II. PASSENGER ELEVATOR – General Specifications

 

A. Nightly Service (Monday – Friday), except City holidays

 

  1. Spot clean cab walls and interior door

 

  2. Spot clean the outside surfaces of all elevator doors and frames

 

  3. Clean all cab floors thoroughly. Edge thoroughly

 

B. Weekly Services (Once per week)

 

  1. Thoroughly clean the entire interior and exterior surfaces of all doors and frames

 

  2. Stain and polish cab walls and rails to eliminate scratch marks on wood, as required


C. Quarterly Services (Once per quarter)

 

  1. Wipe clean elevator cab lamps

 

  2. Wipe clean entire cab ceiling

 

  3. Thoroughly clean all elevator thresholds

III. BUILDING EXTERIOR and GROUNDS SERVICES – General Specifications

 

A. Daily Services (Monday – Friday), except City holidays

 

  1. Spot clean accumulations of dirt, paper and leaves in all corner areas where winds cause debris to collect

 

  2. Spot clean all exterior glass doors at the building entrances

 

  3. Lift nap on all entry walk-off mats with a heavy bristle brush and vacuum, as necessary

 

  4. Sweep sidewalk, stairs and remove all gum as required or as directed

 

B. Monthly Service (Once per month)

 

  1. Power wash sidewalk around perimeter of the building

 

C. Semi-annual ServicesWash all exterior windowsincluding glass, ledges and window frames to be wiped clean and dry

 

D. Annual Service

 

  1. Wash interior side of exterior windows in the Premises

IV. COMMON AREA RESTROOM SERVICE – General Specifications

 

A. Daily Services (Monday – Friday), except City holidays

 

  1. Re-stock all restrooms including paper towels, toilet tissue, seat covers and hand soap, as required.

 

  2. Re-stock all sanitary napkin and tampon dispensers from Contractor’s supplies, as required. Monies collected from the coin dispensing machines are the sole responsibility of the Contractor. Machines are to be repaired and maintained as needed by the Contractor.

 

  3. Wash and polish all mirrors, dispensers, faucets, flushometers, and brightwork with a non-scratch disinfectant cleaner.

 

  4. Wash and sanitize all toilets, toilet seats, urinals, and sinks with a non-scratch disinfectant cleaner. Wipe all sinks dry.

 

  5. Remove stains and scrub toilets, urinals, and sinks as required.

 

  6. Mop all restroom floors with disinfectant, germicidal cleaners. Scrub all baseboards, inside corners and hard to reach areas.

 

  7. Empty and sanitize all sanitary napkin and tampon waste receptacles.

 

  8. Remove all restroom trash.

 

  9. Spot clean fingerprints, marks, and graffiti from walls, partitions, doors, glass, aluminum and light switches as required.


B. Monthly Services (Twice per month)

 

  1. Dust all low and high reach areas, including but not limited to, structural ledges, mirror tops, partition tops and edges, air conditioning diffusers and return air grilles.

 

  2. Wipe and clean all walls, metal partitions, and privacy screens. Partitions should be left clean and not streaked after this work is performed.

 

C. Monthly Services (Once per month)

 

  1. Clean all ventilation grilles

 

D. Quarterly Services (Once per quarter)

 

  1. Thoroughly clean and strip permanent sealer and reseal all ceramic/CT tile floors using approved sealers

 

  2. Dust all doorjambs

 

E. Consumable Supplies

 

  1. Landlord shall supply all consumable supplies required including paper towels, toilet tissue, hand soap, sanitary disposal bags, plastic trash bags, compostable trash bags, toilet seat covers, cleaning products and/or supplies, batteries, etc.

V. DAY PORTER SERVICES - Daily Services (Monday – Friday)

A qualified day porter. Work hours to be: from 7:00 am to 4:00 pm and Monday through Friday, except City holidays. Day Porter shall work under the supervision of the Building Manager for 1455 Market Street and may be asked to perform duties not specifically described herein, but which may be considered a part of the Day Porters’ general responsibilities as customary for a first class San Francisco highrise. The daily duties of the Day Porter shall be, but not be limited to, the following:

 

A. Entrance Lobby and Exterior Perimeter Area

The lobby and exterior sidewalk and perimeter areas are to be kept clean and neat at all times. Day Porter is expected to perform the following minimum cleaning operations, as required.

 

  1. Clean or spot clean floors and carpet runners as necessary

 

  2. Clean or spot clean all metal, stone or other hard surfaces, including the security guard station daily as necessary

 

  3. Wipe and clean glass doors twice daily and as necessary

 

  4. Empty garbage receptacles as necessary

 

  5. Remove gum and foreign matter from the sidewalks and tree containers surrounding the building before 8:00 am each day and as required or directed by the Building Manager

 

  6. Hose down sidewalk around the perimeter of the building, as necessary


B. Elevators

 

  1. Clean or spot clean cab floors daily as needed

 

  2. Clean or spot clean lobby elevator saddles, interior and exterior doors and frames daily as necessary

 

  3. Clean sides of elevator cars daily as needed; polish brightwork in cab and on doors and frames

 

  4. Keep freight elevator broom clean daily and as needed

 

C. Restrooms

 

  1. Check and confirm night crew cleaned and re-stocked each bathroom before 9:00 am

 

  2. Spot Clean all bathrooms each day. Restock restroom supplies as required.

 

  3. Fill soap, paper towel, seat cover and toilet tissue dispensers as required.

 

  4. Report all mechanical and plumbing problems and other deficiencies to the Building Manager (e.g., leaky faucets, malfunctioning urinals or toilets, etc.)

 

  5. Spot Clean all mirrors, powder shelves and lavatory tops. Mirrors should be wiped clean to remove all spots and streaks

 

  6. Empty paper towel waste receptacles daily and as needed or requested

 

  7. Stock and maintain all sanitary napkin product vending machines located in the restrooms, if any.

 

D. Public Areas

 

  1. Stairwells – Police and keep in clean condition. Sweep, dust, hand wipe and mop as necessary and as requested (includes escalator cleaning).

 

  2. Dust stairwell railings as necessary and as requested

 

  3. Public Corridors – Vacuum and keep in clean condition as necessary and as requested

 

  4. Assist in changing interior lamps and light bulbs throughout the building as required

 

  5. Spot clean lobby signage and building directories and all other appropriate glass enclosures

 

E. Building Service Areas

 

  1. Loading Dock – Sweep area daily

 

  2. Lay down and remove lobby runners during inclement weather, as necessary and as requested

 

  3. Assist in replacing lamps and light bulbs throughout the building as required; clean diffusers and grilles when relamping

 

  4. Assist in recycling lamps and light bulbs, ballasts, chemicals, electronics by putting them in designated areas for recycling these products in the building

 

  5. Keep electrical rooms, fire control room, telephone and electrical closets clean and free of debris

 

  6. Keep recycling area and bins clean and area swept


TENANT’S SCOPE OF WORK

The following Scope of Work is intended to describe and outline the initial requirements for Janitorial Services for the interior Premises to be provided by Landlord at Tenant’s cost.

I. SERVICES FOR THE PREMISES (Monday – Friday after 7:00 pm, and Sunday between 7:00 am and 10:00 pm)

 

A. Nightly Services

 

  1. Secure all lights as soon as possible each night

 

  2. Vacuum all carpets. Move electric cords to prevent damage to the corner bead

 

  3. Dust mop all resilient and composition floors with dust mops. Damp mop the floors to remove spills and water stains as required

 

  4. Spot clean stains on carpet

 

  5. Dust all desktops and office furniture with dust cloths. Papers and folders on the desktop are not to be moved

 

  6. Wipe and clean all tables, counters, and desktops

 

  7. Empty all waste paper baskets and other trash containers and remove all trash from floors to the designated trash areas. Remove recyclable material and compost to Building’s centralized recycle bins.

 

  8. Remove fingerprints, dirt smudges, from all doors, frames, glass partitions, windows, light switches, walls, elevator doorjambs and elevator interiors

 

  9. Return chairs and wastebaskets to proper positions

 

  10. Police all interior public planters, if any

 

  11. Wipe clean smudged brightwork

 

  12. Glass:

 

  a. Clean both sides of entrance glass door

 

  b. Spot clean interior glass windows, as necessary

 

B. Weekly Services (once per week)

 

  1. Dust all low reach areas including, but not limited to, chair rungs, structural and furniture ledges, baseboards, window sills, door louvers, wood paneling molding, etc

 

  2. Clean all door thresholds & jambs

 

  3. Edge vacuum all carpeted areas

 

  4. Move all plastic carpet protectors and thoroughly vacuum under and around all desks and office furniture

 

  5. Wipe all exposed vinyl bases

 

C. Monthly Services (once per month)

 

  1. Dust all high reach areas including, but not limited to, tops of doors, frames, furniture, ledges, air conditioning diffusers and return grilles, tops of partitions, picture frames, etc.

 

  2. Dust and or vacuum all window coverings


D. Quarterly Services (once per quarter)

 

  1. Thoroughly scrub all resilient or composition flooring.

 

  2. If requested, shampoo carpeting in the “high-traffic” common areas. i.e. lobbies and other high-traffic” corridors.

 

  3. Vacuum upholstered furniture and wipe down vinyl chair pads

 

  4. Dust light diffusers

 

E. Annual Services (once per year)

 

  1. Recondition all resilient or composition flooring to provide a level of appearance equivalent to a completely refinished floor.

 

  2. Shampoo carpeting in all areas as requested

 

A. Nightly Services

 

  1. Spot clean entrance doors

 

  2. Empty trash, recycling, compost and receptacles

 

  3. Empty sanitary receptacles and re-line them

 

  4. Clean mirrors

 

  5. Wipe down stall partition and walls

 

  6. Clean and sanitize sinks, toilet bowls & urinals

 

  7. Refill paper towel, toilet paper, soap & fem. hygiene dispensers

 

  8. Sweep and damp mop hard floors

 

B. Quarterly Services

 

  1. Dust ceiling vents and high areas

 

C. Annual Services

 

  1. Recondition all resilient or composition flooring to provide a level of appearance equivalent to a completely refinished floor.

 

  2. Thoroughly scrub of all surfaces

II. GENERAL REQUIREMENTS

 

A. Quality Standards

 

  1. Landlord’s janitorial service contractor (“contractor’) must have a minimum of five (5) years of relevant experience.

 

  2. In the event contractor’s work repeatedly does not meet quality standards, Tenant may request the Building Manager replace contractor personnel. Landlord’s contractor must be available during regular business hours, to participate in an inspection walk-through.

 

  3. The Building Manager will keep a janitorial log in which deficiencies in performance and special problems or instructions will be noted. The contractor must check the log daily and correct any deficiencies in service within twenty-four (24) hours of the log entry. When the deficiency has been corrected, the contractor must initial and date each entry.


  4. Contractor accepts all responsibility for determining that all necessary safeguards for the protection of Contractor’s employees will be furnished to employees e.g., gloves, masks, aprons, support belts. All work performed must conform to CAL-OSHA standards.

 

  5. Contractor must comply with all laws and government regulations.

 

  6. Contractor must be fully insured and bonded to standards typical of first class office buildings in San Francisco.

 

  7. Contractor shall not unplug any of Tenant’s equipment and shall only use designated service electrical outlets. Contractor shall not move any papers or folders on Tenant’s work surfaces.

 

  8. Contractor shall take all actions to prevent and shall be responsible for any damage to the Premises (including but not limited to dragging extension cords around corners and spilling cleaning products on the carpeting, broken glass,etc.).

 

B. Employees

 

  1. All contractor employees (including coordinators and supervisors) must wear uniforms. All personnel must have a visible company name, logo, badge, etc., on their uniforms.

 

  2. All employees must be fully trained in the custodial service trade.

 

  3. Tenant may request contractor remove any janitor from its premises for inappropriate behavior or alleged inappropriate behavior at any time it desires and for any reason whatsoever, and the contractor shall provide an immediate replacement.

 

C. Maintenance Reporting

 

  1. The contractor’s employees shall report maintenance requirements (such as broken glass, missing or burnt out light bulbs, inoperative fixtures, etc.) to the Building Manager.

 

D. Materials and Equipment

 

  1. Landlord, at no cost to Tenant, shall provide adequate space in the building to the contractor for the storage of supplies and equipment.

 

  2. The contractor shall furnish all labor, cleaning materials (paper and cloth towels, cleaning chemicals, floor wax, wax stripper, protective gloves, and other expendable supplies), equipment (including, but not limited to, ladders, vacuum cleaners, extractors, floor machines, mops, hoses, and buckets) and occupant supplies (including hand soap, paper hand towels, toilet tissue, paper seat covers and deodorants for tenant use only) required to perform the janitorial service as specified. Tenant shall supply trash, recycling, and composting containers within the Premises. Contractor shall supply liners

 

E. Recycling

 

  1. Contractor will be responsible for the removal of recyclables and appropriately depositing such materials in a Landlord provided central collection point in the building.

III. SPECIAL SERVICES – GENERAL

Tenant shall have the right to request additional or other cleaning services not included in this scope of work. The fee for these services shall be at contractor’s direct cost but not to exceed


that typically charged for such services at other first class office buildings. The fee for such services shall be agreed upon by Tenant and Landlord before such services are performed. Landlord shall supply to Tenant a written quote for such Tenant requested work and Landlord shall promptly perform such work upon receipt of Tenant’s authorized acceptance of the cost.


EXHIBIT Q

SHORT FORM MEMORANDUM

RECORDING REQUESTED BY, AND

WHEN RECORDED, RETURN TO:

Wilson Sonsini Goodrich & Rosati

650 Page Mill Road

Palo Alto, CA 94304

Attn.: Real Estate Group/SPR

MEMORANDUM OF LEASE

THIS MEMORANDUM OF LEASE (“Memorandum of Lease”) is executed as of October     , 2012, by and between HUDSON 1455 MARKET, LLC a Delaware limited liability company (“Landlord”), and SQUARE, INC., a Delaware corporation (“Tenant”).

RECITALS

WHEREAS, Landlord and Tenant have executed that certain Office Lease (“Lease”) dated as of October     , 2012, for premises (the “Premises”) located at real property commonly known as 1455 Market Street, San Francisco, California (the “Building”), as more particularly described in Exhibit A, attached hereto and incorporated herein; and

WHEREAS, Landlord and Tenant desire to record notice of the Lease in the real estate records of San Francisco County, California:

NOW, THEREFORE, in consideration of the foregoing, Landlord and Tenant hereby declare as follows:

1. Lease. Landlord leases to Tenant the Premises for an initial term of ten (10) years on the terms set forth in the Lease. The Premises include premises located on the 6th, 7th, 9th, 18th and 19th floors of the Building.

2. Option to Renew. Landlord grants Tenant two (2), five (5) year options to renew the Lease, as more particularly described in Section 2.2 of the Lease.

3. Expansion Rights. Landlord grants Tenant certain expansion rights on portions of the Building located on the 8th floor as described in Section 1.3 of the Lease and the remainder of the Building as described in Section 1.4 of the Lease.


IN WITNESS WHEREOF, Landlord and Tenant have executed this Memorandum of Lease as of the date and year first written above.

 

LANDLORD:
HUDSON 1455 MARKET, LLC,
a Delaware limited liability company
By:

 

Name:

 

Its:

 

TENANT:
SQUARE, INC.,
a Delaware corporation
By:

 

Name:

 

Its:

 


EXHIBIT A

LEGAL DESCRIPTION


STATE OF CALIFORNIA )
) §
County of                     )

On                                          , before me,                                         a Notary Public, personally appeared                                         who proved to me on the basis of satisfactory evidence to be the person(s) whose name(s) is/are subscribed to the within instrument and acknowledged to me that he/she/they executed the same in his/her/their authorized capacity(ies), and that by his/her/their signature(s) on the instrument the person(s), or the entity upon behalf of which the person(s) acted, executed the instrument.

I certify under PENALTY OF PERJURY under the laws of the State of California that the foregoing paragraph is true and correct WITNESS my hand and official seal.

 

 

Signature of Notary

(Affix seal here)

 

STATE OF CALIFORNIA )
) §
County of )

On                                          , before me,                                         a Notary Public, personally appeared                                         who proved to me on the basis of satisfactory evidence to be the person(s) whose name(s) is/are subscribed to the within instrument and acknowledged to me that he/she/they executed the same in his/her/their authorized capacity(ies), and that by his/her/their signature(s) on the instrument the person(s), or the entity upon behalf of which the person(s) acted, executed the instrument.

I certify under PENALTY OF PERJURY under the laws of the State of California that the foregoing paragraph is true and correct WITNESS my hand and official seal.

Signature of Notary

(Affix seal here)


OFFICE LEASE

1455 MARKET STREET

HUDSON 1455 MARKET, LLC,

a Delaware limited liability company,

as Landlord,

and

SQUARE, INC.,

a Delaware corporation,

as Tenant.


TABLE OF CONTENTS

 

     Page  

ARTICLE 1 PREMISES, BUILDING, PROPERTY, AND COMMON AREAS

     7   

ARTICLE 2 LEASE TERM; OPTION TERM

     20   

ARTICLE 3 BASE RENT

     28   

ARTICLE 4 ADDITIONAL RENT

     28   

ARTICLE 5 USE OF PREMISES

     39   

ARTICLE 6 SERVICES AND UTILITIES

     42   

ARTICLE 7 REPAIRS

     47   

ARTICLE 8 ADDITIONS AND ALTERATIONS

     48   

ARTICLE 9 COVENANT AGAINST LIENS

     51   

ARTICLE 10 INSURANCE

     51   

ARTICLE 11 DAMAGE AND DESTRUCTION

     54   

ARTICLE 12 NONWAIVER

     57   

ARTICLE 13 CONDEMNATION

     57   

ARTICLE 14 ASSIGNMENT AND SUBLETTING

     58   

ARTICLE 15 SURRENDER OF PREMISES; OWNERSHIP AND REMOVAL OF TRADE FIXTURES

     63   

ARTICLE 16 HOLDING OVER

     63   

ARTICLE 17 ESTOPPEL CERTIFICATES

     64   

ARTICLE 18 SUBORDINATION

     64   

ARTICLE 19 DEFAULTS; REMEDIES

     65   

ARTICLE 20 COVENANT OF QUIET ENJOYMENT

     68   

ARTICLE 21 LETTER OF CREDIT

     69   

ARTICLE 22 SECURITY DEPOSIT

     74   

ARTICLE 23 SIGNS; ROOF RIGHTS

     75   


     Page(s)  

ARTICLE 24 COMPLIANCE WITH LAW

     79   

ARTICLE 25 LATE CHARGES

     80   

ARTICLE 26 LANDLORD’S RIGHT TO CURE DEFAULT; PAYMENTS BY TENANT

     80   

ARTICLE 27 ENTRY BY LANDLORD

     81   

ARTICLE 28 TENANT PARKING

     82   

ARTICLE 29 MISCELLANEOUS PROVISIONS

     83   

EXHIBITS

 

A    OUTLINE OF PREMISES
B    TENANT WORK LETTER
C    FORM OF NOTICE OF LEASE TERM DATES
D    RULES AND REGULATIONS
E    FORM OF TENANT’S ESTOPPEL CERTIFICATE
F    CRITICAL ENVIRONMENTS
G    MARKET RENT ANALYSIS
H    FORM OF LETTER OF CREDIT
I    OUTDOOR TERRACES AND EXPANDED TERRACE
J    PERIMETER WINDOWS
K    INTENTIONALLY OMITTED
L    MECHANICAL CLOSET
M    ASBESTOS NOTIFICATION
N    TENANT’S PROPERTY
O    EXTERIOR SIGNAGE
P    JANITORIAL SPECIFICATIONS
Q    SHORT FORM MEMORANDUM


INDEX

 

     Page(s)  

Abatement Event

     68   

ACM

     90   

Additional Bicycle Storage Areas

     41   

Additional Rent

     28   

Advocate Arbitrators.

     22   

Alterations

     48   

Arbitration Agreement

     23   

Availability Notice

     12   

Availability Premises

     11   

Availability Premises Improvement Allowance

     14   

Availability Premises Rent

     12   

Availability Premises Rent Commencement Date

     15   

Bank

     18   

Bank Objectionable Institution

     77   

Bank Prime Loan

     80   

Base Building

     49   

Base Rent

     28   

Base Year

     28   

Beneficial Occupancy Space

     27   

Bicycle Storage Area

     41   

Bicycles

     40   

Blow-Out Date

     26   

Blow-Out Notice

     26   

BOMA

     9   

bona-fide third-party offer

     13   

Briefs

     23   

Brokers

     87   

Builder’s All Risk

     50   

Building

     7   

Building Common Areas,

     7   

Building Hours

     42   

building standard

     37   

Building Structure

     47   

Building Systems

     47   

CAP Process

     40   

CE Work

     40   

Common Areas

     7   

Communications Equipment

     77   

Computer Room Chilled Water and Electrical Systems

     45   

Controllable Expenses

     36   

Core and Shell Work

     8   

Cost Pools

     35   


     Page(s)  

Critical Environments

     40   

Damage Termination Date

     56   

Damage Termination Notice

     56   

Delivery Condition

     8   

Design Problem

     18   

Direct Expenses

     29   

Eligibility Period

     68   

Estimate

     37   

Estimate Statement

     37   

Estimated Excess

     37   

Excess

     36   

Exercise Notice

     12   

Existing Tenants

     11   

Expansion Space

     2   

Expense Year

     29   

Extraordinary Expenses

     33   

Force Majeure

     85   

Garage

     41   

Generator

     46   

Handbook

     40   

Hazardous Substance

     39   

Holidays

     42   

HVAC

     42   

Landlord

     1   

Landlord Parties

     52   

Landlord’s Initial Statement

     24   

Landlord’s Rebuttal Statement

     24   

Lease

     1   

Lease Commencement Date

     20   

Lease Concessions

     25   

Lease Expiration Date

     20   

Lease Term

     20   

Lease Year

     20   

Lines

     89   

Mail

     86   

Management Fee Percentage

     30   

Market Rent

     21   

Mechanical Penthouse

     81   

Minimum Signage Threshold

     76   

MPOE

     46   

Must-Take 1 Space

     16   

Must-Take 2 Space

     17   


     Page(s)  

Must-Take Lease Commencement Date

     16, 17   

Neutral Arbitrator

     22   

Notices

     86   

Objectionable Name

     77   

Operating Expenses

     29   

Option Term

     21   

Original Improvements

     53   

Other Improvements

     89   

Outdoor Terrace

     18   

Outdoor Terrace Furniture

     18   

Outside Agreement Date

     22   

Outside Date

     26   

Outside Restoration Date

     56   

Perimeter Window Work Completion Date

     8   

Permitted Subtenants

     76   

Permitted Transferee Assignee.

     62   

Premises

     7   

Property

     7   

Property Common Areas,

     7   

Proposition 13

     34   

Rebuttals

     23   

Renovations

     88   

Rent Commencement Date

     28   

Rent.

     28   

rentable square feet

     9   

Ruling

     24   

Security Deposit

     74   

SNDA

     65   

Statement

     36   

Storage Premises

     19   

Storage Rent

     19   

Subject Space

     58   

Summary

     1   

Superior Holders

     65   

Tax Expenses

     34   

Tenant

     1   

Tenant Caused Delay

     8   

Tenant Parties

     52   

Tenant Work Letter

     7   

Tenant’s Security System

     44   

Tenant’s Initial Statement

     24   

Tenant’s Rebuttal Statement

     24   


     Page(s)  

Tenant’s Share

     35   

Tenant’s Subleasing Costs

     60   

Termination Date

     24   

Termination Fee

     25   

Termination Notice

     25   

Transfer

     61   

Transfer Notice

     58   

Transfer Premium

     60   

Transferee

     58   

Transfers

     58   

TRMC

     78   

Walk-Away Right

     14   


FIRST AMENDMENT TO OFFICE LEASE

This FIRST AMENDMENT TO OFFICE LEASE (this “First Amendment”) is made and entered into as of March 22, 2013, by and between HUDSON 1455 MARKET, LLC, a Delaware limited liability company (“Landlord”), and SQUARE, INC., a Delaware corporation (“Tenant”).

RECITALS

A. Landlord and Tenant are parties to that certain Office Lease dated October 17, 2012 (the “Original Lease”), pursuant to which Landlord leases to Tenant, and Tenant leases from Landlord, certain premises defined in Section 2.2 of the Summary of the Original Lease as the “Initial Premises” in the building located at 1455 Market Street, San Francisco, California (the “Building”), as more particularly described in the Original Lease.

B. Landlord and Tenant now desire to amend the Original Lease to (i) confirm Tenant’s exercise of its right to lease the “Expansion Space” (as described in Section 2.5 of the Summary of the Original Lease and depicted on Exhibit A-4 of the Original Lease), and include such Expansion Space under the Original Lease upon the same terms and conditions as the Initial Premises (except as set forth in Section 1.3 of the Original Lease), (ii) provide that the Must-Take 1 Lease Commencement Date (as defined in Section 3.6 of the Summary of the Original Lease) will occur on the later of (x) April 1, 2013, and (y) the date on which Landlord delivers possession of the Must-Take 1 Space (as described in Section 2.3 of the Summary of the Original Lease and depicted on Exhibit A-2 of the Original Lease, as amended by this First Amendment) to Tenant in the Delivery Condition, and (iii) provide that that certain portion of the sixth (6”) floor of the Building containing approximately 5,060 rentable square feet, as generally depicted on Exhibit A attached hereto (the “New 6th Floor Space”) shall be included as part of the Must-Take 1 Space, all in accordance with the terms and conditions set forth below.

AGREEMENT

NOW, THEREFORE, in consideration of the foregoing recitals and the mutual covenants contained herein, and for other good and valuable consideration, the receipt and sufficiency of which are hereby acknowledged, Landlord and Tenant hereby agree as follows:

1. Defined Terms. All capitalized terms used herein but not specifically defined in this First Amendment shall have the meanings ascribed to such terms in the Original Lease. The term “Lease” where used in the Original Lease and this First Amendment shall hereafter refer to the Original Lease, as amended by this First Amendment.

2. Expansion Space Lease Term. Subject to the terms of the last sentence of Section 1.3.2 of the Original Lease, the Lease shall commence with respect to the Expansion Space on the “Expansion Space Lease Commencement Date” (as defined in Section 1.3.2 of the Original Lease). Consequently, effective upon the Expansion Space Lease Commencement Date, all references in the Lease to the “Premises” shall include the Expansion Space. The lease term of the Expansion Space shall expire on the “Lease Expiration Date” (as defined in Section 2.1 of the Original Lease), as the same may be extended.

3. Expansion Rent. Notwithstanding anything to the contrary set forth in this First Amendment, prior to the Expansion Space Lease Commencement Date, Tenant shall pay “Rent” (as defined in Section 4.1 of the Original Lease) for the Premises in accordance with the terms of the Lease. Subject to the terms of the last sentence of Section 1.3.2 of the Original Lease, commencing on the “Expansion Space Rent Commencement Date” (as defined in Section 1.3.5 of the Original Lease), Tenant


shall also pay to Landlord the “Expansion Rent” (as defined in Section 1.3.3 of the Original Lease). Tenant’s Share and the Base Year with respect to the Expansion Space shall be determined as set forth in Section 1.3.3 of the Original Lease. Construction in the Expansion Space shall be subject to the terms and conditions set forth in Section 1.3.4 of the Original Lease (including, without limitation, the provision of the Expansion Improvement Allowance).

4. Must-Take 1 Space. Section 2.3 of the Summary of the Original Lease is hereby deleted in its entirety and replaced with the following:

 

2.3 Must-Take 1 Space:

Approximately 20,801 rentable square feet of space located on the sixth (6111) floor of the Building (the “Must-Take 1 Space”), as further depicted on Exhibit A-2 to this Lease.

Exhibit A-2 of the Original Lease is hereby supplemented by adding to it the New 6th Floor Space as shown on Exhibit A attached to this First Amendment.

5. Must-Take I Lease Commencement Date. Section 3.6 of the Summary of the Original Lease is hereby deleted in its entirety and replaced with the following:

 

3.6 Must-Take 1 Lease Commencement Date:

The later to occur of (i) April 1, 2013 and (ii) the date on which Landlord delivers possession of the Must-Take I Space to Tenant in the Delivery Condition.

The reference in the first (1st) sentence of Section 2.4 in the Original Lease to “July 1, 2013” is hereby deleted and replaced with “April 1, 2013”.

6. Must-Take 1 Space Tenant’s Share. The reference in the fourth (4th) sentence of Section 1.5.3 in the Original Lease to “1.56%” is hereby deleted and replaced with “2.06%”.

7. Invalidity of Provisions. If any provision of this First Amendment is found to be invalid or unenforceable by any court of competent jurisdiction, the invalidity or unenforceability of any such provision shall not affect the validity and enforceability of the remaining provisions hereof.

8. Further Assurances. In addition to the obligations required to be performed under the Lease, Landlord and Tenant shall each perform such other acts, and shall execute, acknowledge and/or deliver such other instruments, documents and other materials, as may be reasonably required in order to accomplish the intent and purpose of the Original Lease, as amended by this First Amendment.

9. Brokers. Landlord and Tenant hereby warrant to each other that they have had no dealings with any real estate broker or agent in connection with the negotiation of this First Amendment other than the “Brokers” (as defined in Section 29.24 of the Original Lease) and Wixen Real Estate Services, which is a subcontractor of, and will be compensated solely by, Custom Spaces Commercial Real Estate, and Tenant’s indemnity obligation to Landlord as set forth in Section 29.24 of the Original Lease shall expressly apply, without limitation, to any claims from Wixen Real Estate Services, and that they know of no other real estate broker or agent who is entitled to a commission in connection with this First Amendment. Landlord shall pay the commission, if any, owing to the Brokers in connection with the execution of this First Amendment pursuant to the terms of a separate agreement. Each party agrees


to indemnify and defend the other party against and hold the other party harmless from any and all claims, demands, losses, liabilities, lawsuits, judgments, and costs and expenses (including, without limitation, reasonable attorneys’ fees) with respect to any leasing commission or equivalent compensation alleged to be owing on account of any dealings with any real estate broker or agent, other than the Brokers, occurring by, through, or under the indemnifying party. The terms of this Section 9 shall survive the expiration or earlier termination of the Original Lease, as amended hereby.

10. Authority. Each of the parties hereto represents and warrants to the other as follows: (a) it has the legal power, right and authority to enter into this First Amendment; (b) all requisite action (corporate, trust, partnership or otherwise) has been taken by it in connection with the entering into of this First Amendment and no further consent of any partner, shareholder, creditor, investor, judicial or administrative body, governmental authority or other party is required, including without limitation, any lender, or if any such consent is required, such consent has been obtained; (c) the individuals executing this First Amendment have the legal power, right, and actual authority to bind it to the terms of this First Amendment; and (d) it understands that the other party is relying on the foregoing representations in entering into this First Amendment, and that the other party would not enter into this First Amendment without such representations. Landlord represents to Tenant that there are not any Superior Holders as of the date of this First Amendment.

11. Governing Law. This First Amendment shall be governed by and construed and enforced in accordance with the laws of the State of California.

12. Lease in Full Force. Except for those provisions which have been modified by this First Amendment and those terms, covenants and conditions for which performance has heretofore been completed, all other terms, covenants and conditions of the Original Lease are hereby ratified and shall remain unmodified and in full force and effect.

13. Digital Image. The parties agree to accept a digital image of this First Amendment, as executed, as a true and correct original and admissible as best evidence to the extent permitted by a court with proper jurisdiction.

14. Counterparts. This First Amendment may be executed in counterparts, each of which shall be deemed an original part and all of which together shall constitute a single agreement.

[remainder of page intentionally left blank; signature page follows]


IN WITNESS WHEREOF, Landlord and Tenant have caused this First Amendment to be executed as of the date set forth above.

LANDLORD:

 

HUDSON 1455 MARKET, LLC,
a Delaware limited liability company
By:

Hudson Pacific Properties, L.P.,

a Maryland limited partnership,

its sole member

By:

Hudson Pacific Properties, Inc.,

a Maryland corporation,

its General Partner

By:

/s/ Howard Stern

Name: Howard Stern
Title: President

TENANT:

 

SQUARE, INC.,

a Delaware corporation

By:

/s/ Sarah Friar

Name:

Sarah Friar

Title:

COO & CFO

By:

/s/ James Kelly

Name:

James Kelly

Title:

Controller


EXHIBIT A

NEW 6th FLOOR SPACE

 

LOGO


SECOND AMENDMENT TO OFFICE LEASE

This SECOND AMENDMENT TO OFFICE LEASE (this “Second Amendment”) is made and entered into as of January 22, 2014, by and between HUDSON 1455 MARKET, LLC, a Delaware limited liability company (“Landlord”), and SQUARE, INC., a Delaware corporation (“Tenant”).

RECITALS

A. Landlord and Tenant are parties to that certain Office Lease dated October 17, 2012 (the “Office Lease”), as amended by that certain First Amendment to Office Lease dated March 22, 2013 (the “First Amendment” and, together with the Office Lease, the “Original Lease”). Pursuant to the Original Lease, Landlord currently leases to Tenant, and Tenant currently leases from Landlord, certain premises consisting of approximately 202,606 aggregate rentable square feet of space (the “Existing Premises”) (consisting of 181,805 rentable square feet in the Initial Premises and 20,801 rentable square feet in the Must-Take 1 Space, but excluding the Must-Take 2 Space and the Expansion Space, each as defined in the Original Lease), in the building located at 1455 Market Street, San Francisco, California (the “Building”), as more particularly described in the Original Lease.

B. Landlord and Tenant now desire to amend the Original Lease to (i) clarify the depiction of the “18th Floor Premises” (as that term is defined in the Lease) set forth on page four (4) of Exhibit A-1 attached to the Office Lease and revise the square footage of the “Must-Take 2 Space” (as that term is defined in Section 2.4 of the Summary of Basic Lease Information in the Office Lease), (ii) expand the Premises (as that term is defined in the Original Lease) to include that certain space consisting of 2,157 rentable square feet of space located on the first (1st) level of the Building (the “1st Floor Premises”), as delineated on Exhibit B attached hereto and made a part hereof, (iii) provide for the allocation of costs between Landlord and Tenant with respect to certain improvements constructed within the corridor of the 6th Floor Premises and the Building access control system, (iv) set forth Tenant’s right to install a sign on the exterior podium portion of the Building, and (v) to otherwise amend the Original Lease on the terms and conditions set forth in this Second Amendment.

AGREEMENT

NOW, THEREFORE, in consideration of the foregoing recitals and the mutual covenants contained herein, and for other good and valuable consideration, the receipt and sufficiency of which are hereby acknowledged, Landlord and Tenant hereby agree as follows:

1. Defined Terms. All capitalized terms used herein but not specifically defined in this Second Amendment shall have the meanings ascribed to such terms in the Original Lease. The term “Lease” where used in the Original Lease and this Second Amendment shall hereafter refer to the Original Lease, as amended by this Second Amendment.

2. Revisions to Premises.

2.1 18th Floor Premises. Tenant hereby acknowledges and agrees that the cross-hatched area shown on Exhibit A attached hereto is not, and has never been, a part of the 18th Floor Premises, and such area shall not be considered a part of the Premises for purposes of the Lease, as hereby amended.

2.2 Must-Take 2 Space. Tenant hereby acknowledges and agrees that the area designated as Must Take 2 Space on Exhibit A-3 attached to this Second Amendment is the “Must-


Take 2 Space” for all intents and purposes under the Lease. Accordingly, the reference to “48,532 rentable square feet” in Section 2.4 of the Summary of Basic Lease Information in the Office Lease is hereby deleted in its entirety and replaced with “47,099 rentable square feet”, and Exhibit A-3 attached to the Office Lease is hereby deleted in its entirety and replaced with Exhibit A-3 attached hereto.

3. 1st Floor Premises.

3.1 Modification of Existing Premises. Effective as of the “1st Floor Premises Commencement Date” (as that term is defined in Section 3.2 below), Tenant shall lease from Landlord, and Landlord shall lease to Tenant, the l” Floor Premises. Consequently, effective upon the 1st Floor Premises Commencement Date, the Existing Premises shall be increased to include the 1st Floor Premises. Landlord and Tenant hereby acknowledge that such addition of the 1st Floor Premises to the Existing Premises shall, effective as of the l” Floor Premises Commencement Date, increase the size of the “Premises” then leased by Tenant under the Lease, as hereby amended, to 204,763 rentable square feet of space, and that the 1st Floor Premises shall be deemed to be a part of the Premises for all purposes under the Lease.

3.2 lst Floor Premises Term. The term with respect to the 1st Floor Premises (the “1st Floor Premises Term”) shall commence on the date that is five (5) business days following Tenant’s receipt of notice from Landlord that the 1st Floor Premises has been vacated by the current tenant and is ready for delivery to Tenant (the “1st Floor Premises Commencement Date”), which date shall occur on or before March 1, 2014. The 1st Floor Premises Term shall expire coterminously with Lease Term for the Existing Premises under the Original Lease, as the same may be extended.

3.3 Base Rent. Commencing on the 1st Floor Premises Commencement Date, and continuing until the first (1st) anniversary of the 1st Floor Premises Commencement Date, Tenant shall pay to Landlord monthly installments of Base Rent for the 1st Floor Premises in the amount of Six Thousand Nine Hundred Thirty-Five and 00, 100 Dollars ($6,935.00) (i.e., $30.00 per rentable square foot of the 1st Floor Premises per annum). On the first (1st) anniversary of the lst Floor Premises Commencement Date, and on each anniversary of the 1st Floor Premises Commencement Date thereafter, the annual base rental rate per rentable square foot of the 1st Floor Premises shall increase by One and 00,100 Dollars ($1.00), and the monthly installment of Base Rent for the 1st Floor Premises shall adjust accordingly. Throughout the 1st Floor Premises Term, the monthly Base Rent shall be paid in accordance with the provisions of Article 3 of the Original Lease, as hereby amended.

3.4 Tenant’s Share of Direct Expenses. Commencing on the 1st Floor Premises Commencement Date, and continuing throughout the 1st Floor Premises Term, Tenant shall be obligated to pay Tenant’s Share of the annual Direct Expenses attributable to the 1st Floor Premises (calculated on the rentable area of the 1st Floor Premises) which are in excess of the amount of Direct Expenses applicable to the Base Year in accordance with the terms of Article 4 of the Original Lease, as hereby amended. Tenant’s Share with respect to the 1st Floor Premises shall be 0.213%.

3.5 Condition of 1st Floor Premises. Landlord shall, at Landlord’s sole cost, construct a full-height demising wall with finish-ready dry wall on the interior and painted dry wall or wall covering on the exterior (“Landlord’s 1M Floor Work”) prior to the 1st Floor Premises Commencement Date. Subject to completion of Landlord’s Floor Work, Tenant shall accept the 1st Floor Premises vacated, broom-clean, and otherwise in its presently existing, “as-is” condition, and Landlord shall not be obligated to provide or pay for any other improvement work or services related to the improvement of the 1st Floor Premises. Notwithstanding the foregoing, Landlord shall deliver the 1st Floor Premises to Tenant free of Hazardous Substances and with the Building Systems servicing the 1st Floor Premises in good working order and condition if it is determined that any of the Building Systems were not in good


working order and condition as of the date Landlord delivers possession of the 1st Floor Premises to Tenant under this Second Amendment, Landlord shall not be liable to Tenant for any damages, but as Tenant’s sole remedy, Landlord, at no cost to Tenant, shall promptly commence such work or take such other action as n-lay be necessary to place the same in good working order and condition, and shall thereafter diligently pursue the same to completion. For purposes of Section 1938 of the California Civil Code, Landlord hereby discloses to Tenant, and Tenant hereby acknowledges, that the Existing Premises and the 1st Floor Premises have not undergone inspection by a Certified Access Specialist (CASp).

3.6 Relocation of 1st Floor Premises. Notwithstanding anything to the contrary contained in this Second Amendment, not more than twice during the 1st Floor Premises Term, as the same may be extended, upon not less than thirty (30) days notice to Tenant, Landlord shall have the right, at Landlord’s sole cost (including the cost of cabling, relocating personal property and tenant improvements at least equal in quality to those in the 1st Floor Premises) to relocate the 1st Floor Premises to another location of substantially similar size on the first (1st) level of the Building that is reasonably acceptable to Tenant, in which event Base Rent and Tenant’s Share shall be proportionately adjusted to reflect any change in the rentable square footage from the 1st Floor Premises, provided that in no event shall Tenant’s Base Rent increase as a result of such relocation.

3.7 1st Floor Tenant Improvement Allowance. Tenant shall be entitled to a one-time tenant improvement allowance (the “1st Floor Tenant Improvement Allowance”) in the amount of Ten and 00’100 Dollars ($10.00) per rentable square foot of the 1st Floor Premises, for the costs relating to the initial design and construction of Tenant’s improvements which are permanently affixed to the Premises (the “1st Floor Tenant Improvements”). Except with respect to Landlord’s 1st Floor Work, in no event shall Landlord be obligated to make disbursements pursuant to this Second Amendment in a total amount which exceeds the 1st Floor Tenant Improvement Allowance. In the event that the 1st Floor Tenant Improvement Allowance is not fully utilized by Tenant within one (1) year after the 1st Floor Premises Commencement Date, then such unused amounts shall revert to Landlord, and Tenant shall have no further rights with respect thereto. Any 1st Floor Tenant Improvements that require the use of Building risers, raceways, shafts and/or conduits shall be subject to Landlord’s reasonable rules, regulations and restrictions, including the requirement that any cabling vendor, to the extent performing work in the riser, must be reasonably approved by Landlord, and that the amount and location of any such cabling must be reasonably approved by Landlord, subject to the terms of Section 6.1.7 of the Original Lease. All 1st Floor Tenant Improvements for which the Tenant Improvement Allowance has been used shall be deemed Landlord’s property under the terms of the Lease, as hereby amended; provided, however, Landlord may, by written notice to Tenant prior to the end of the Lease Term, or given following any earlier termination of the Lease, as hereby amended, require Tenant, at Tenant’s expense, to remove any 1st Floor Tenant Improvements and to repair any damage to the Premises and Building caused by such removal and return the affected portion of the Premises to their condition existing prior to the installment of such 1st Floor Tenant improvements. Except as modified by this Section 3.7 the terms and conditions of Exhibit B to the Original Lease shall apply to the disbursement of the 1st Floor Tenant Improvement Allowance and the construction of the 1st Floor Tenant Improvements, such that the 1st Floor Tenant Improvement Allowance and the I5tFloor Tenant Improvements shall be deemed to be part of the “Tenant Improvement Allowance” and the “Tenant Improvements,” respectively (as those terms are defined in Section 2.1.1 of Exhibit B of the Original Lease), for all purposes.

4. Allocation of Costs for 6th Floor Corridor Improvements. Landlord and Tenant hereby acknowledge and agree that Tenant has previously constructed a new wall measuring approximately two hundred seventy-five (275) linear feet within the corridor of the 6th Floor Premises (the “6th Floor Corridor Wall”). Tenant hereby acknowledges and agrees that Landlord has reimbursed Tenant for fifty percent (50%) of the out-of-pocket costs actually incurred by Tenant to construct the 6th Floor Corridor


Wall (the “6th Floor Corridor Wall Costs”), in the total amount of Twenty-Five Thousand Eight Hundred Thirty-Three and 00/100 Dollars ($25,833.00).

5. Access Control System. Landlord and Tenant hereby acknowledge that: (i) Landlord shall modify the existing Building access-control system in order to install a card key access system in the Building elevators, which card key access system shall read Tenant’s card keys; (ii) Tenant intends to install Tenant’s Security System within the Premises pursuant to the terms of the Lease, which system shall be compatible with the Building access-control system; and (iv) Tenant shall reimburse Landlord for one-third (1/3) of the actual, out-of-pocket costs incurred by Landlord for the installation of the card key access system in the Building elevators, in a total reimbursable amount not to exceed Sixty-One Thousand One Hundred Thirty-Two and No 100 Dollars ($61,132.00), within thirty (30) days following Landlord’s demand therefore together with substantiation of such reimbursable costs. In addition, Landlord and Tenant shall comply with the Building access-control guidelines (“Building Access-Control Guidelines”) attached to this Second Amendment as Exhibit C; provided, however, that Landlord and Tenant hereby acknowledge and agree that Landlord and/or Tenant may need to reasonably revise such Building Access-Control Guidelines from time-to-time, upon the mutual written consent of both Landlord and Tenant, and that any failure to strictly comply with such Building Access-Control Guidelines due to circumstances that are not within Landlord’s or Tenant’s reasonable control shall not constitute a default under the Lease by such non-complying party.

6. Exterior Podium Signage. Due to Applicable Laws, Tenant has been unable to obtain City approval for the installation of a building top sign on the tower portion of the Building, as contemplated by Section 23.5 and Exhibit O of the Office Lease. Therefore, Tenant shall have the right to install, repair and maintain one (1) exterior sign on the podium portion of the Building (the “Podium Sign”), subject to all of the terms and conditions set forth in Section 23.5 of the Office Lease. Landlord hereby approves of the signage shown on Exhibit D attached hereto, and Landlord agrees that the Podium Sign may be backlit. Notwithstanding the foregoing, in the event that Tenant is able to obtain approval from the City for the installation of either (x) a building top sign on the tower portion of the Building, or (y) a vertical sign on the tower portion of the Building following the date of this Second Amendment, Tenant shall have the right, upon removal of the Podium Sign (and provided that Tenant shall, at its sole cost and expense, repair any and all damage to the Building caused by such removal), to install, at Tenant’s option, either (i) a new building top sign on the top of the tower portion of the Building, or (ii) a new vertical sign on the tower portion of the Building, in either event in accordance with the terms and conditions set forth in Section 23.5 of the Office Lease and subject to Landlord’s prior written approval of such building top or vertical signage, as the case may be, which approval shall not be unreasonably withheld, conditioned or delayed.

7. Invalidity of Provisions. If any provision of this Second Amendment is found to be invalid or unenforceable by any court of competent jurisdiction, the invalidity or unenforceability of any such provision shall not affect the validity and enforceability of the remaining provisions hereof.

8. Further Assurances. In addition to the obligations required to be performed under the Lease, Landlord and Tenant shall each perform such other acts, and shall execute, acknowledge and/or deliver such other instruments, documents and other materials, as may be reasonably required in order to accomplish the intent and purpose of the Original Lease, as amended by this Second Amendment.

9. Brokers. Landlord and Tenant hereby warrant to each other that they have had no dealings with any real estate broker or agent in connection with the negotiation of this Second Amendment other than the “Brokers” (as defined in Section 29.24 of the Original Lease) and Wixen Real Estate Services, which is a subcontractor of, and will be compensated solely by, Custom Spaces Commercial Real Estate, and Tenant’s indemnity obligation to Landlord as set forth in Section 29.24 of


the Original Lease shall expressly apply, without limitation, to any claims from Wixen Real Estate Services, and that they know of no other real estate broker or agent who is entitled to a commission in connection with this Second Amendment. Landlord shall pay the commission, if any, owing to the Brokers in connection with the execution of this Second Amendment pursuant to the terms of a separate agreement. Each party agrees to indemnify and defend the other party against and hold the other party harmless from any and all claims, demands, losses, liabilities, lawsuits, judgments, and costs and expenses (including, without limitation, reasonable attorneys’ fees) with respect to any leasing commission or equivalent compensation alleged to be owing on account of any dealings with any real estate broker or agent, other than the Brokers, occurring by, through, or under the indemnifying party. The terms of this Section 9 shall survive the expiration or earlier termination of the Lease, as amended hereby.

10. Authority. Each of the parties hereto represents and warrants to the other as follows: (a) it has the legal power, right and authority to enter into this Second Amendment; (b) all requisite action (corporate, trust, partnership or otherwise) has been taken by it in connection with the entering into of this Second Amendment and no further consent of any partner, shareholder, creditor, investor, judicial or administrative body, governmental authority or other party is required, including without limitation, any lender, or if any such consent is required, such consent has been obtained; (c) the individuals executing this Second Amendment have the legal power, right, and actual authority to bind it to the terms of this Second Amendment; and (d) it understands that the other party is relying on the foregoing representations in entering into this Second Amendment, and that the other party would not enter into this Second Amendment without such representations. Landlord represents to Tenant that there are not any Superior Holders as of the date of this Second Amendment.

11. Governing Law. This Second Amendment shall be governed by and construed and enforced in accordance with the laws of the State of California.

12. Lease in Full Force. Except for those provisions which have been modified by this Second Amendment and those terms, covenants and conditions for which performance has heretofore been completed, all other terms, covenants and conditions of the Original Lease are hereby ratified and shall remain unmodified and in full force and effect.

13. Digital Image. The parties agree to accept a digital image of this Second Amendment, as executed, as a true and correct original and admissible as best evidence to the extent permitted by a court with proper jurisdiction.

14. Counterparts. This Second Amendment may be executed in counterparts, each of which shall be deemed an original part and all of which together shall constitute a single agreement.

[remainder of page intentionally left blank; signature page follows]


IN WITNESS WHEREOF, Landlord and Tenant have caused this Second Amendment to be executed as of the date set forth above.

 

LANDLORD:

HUDSON 1455 MARKET, LLC,

a Delaware limited liability company

By:

Hudson Pacific Properties, L.P.,

a Maryland limited partnership,

its sole member

By:

Hudson Pacific Properties, Inc.,

a Maryland corporation,

its General Partner

By:

 

Name:

 

Title:

 

 

TENANT:

SQUARE, INC.,

a Delaware corporation

By:

/s/ James Kelly

Name: James Kelly
Title: Dir., Finance
By:

/s/ Dana Wagner

Name: Dana Wagner
Title: General Counsel


EXHIBIT A

18th FLOOR PREMISES

 

LOGO


EXHIBIT A-3

MUST-TAKE 2 SPACE

 

LOGO


EXHIBIT B

1st FLOOR PREMISES

 

LOGO


EXHIBIT C

BUILDING ACCESS-CONTROL GUIDELINES

Visitor Access:

Tenant shall provide one hundred (100) Square-branded visitor access cards (“Visitor Access Cards”) in sequential numbers to be handed out by Landlord’s security guards upon the presentation of a photo ID and confirmation of access in Landlord’s Workspeed Visitor System (“Workspeed”) at the Main Lobby Console. The Visitor Access Cards will be programmed for access through the Building turnstiles, and for restricted access via the Building elevators to Level 6 only. Tenant’s security officer(s) shall return the Visitor Access Cards two (2) times per day to Landlord’s security officer(s) at the Building’s main lobby desk, so that such cards may be inventoried and stored numerically for reuse by Landlord’s security officers in the presence of Tenant’s security officer(s). Tenant’s Operations Manager shall be notified of any missing Visitor Access Cards following each performance of such twice-daily inventory process. To ensure that Landlord’s security officers always have an adequate supply of Visitor Access Cards available to process Tenant’s visitors, any missing Visitor Access Cards shall be replenished by Tenant promptly following each daily inventory process in which any missing Visitor Access Cards are identified. The above process is intended to provide Tenant with an additional level of visitor access control through Workspeed, and to have the ability to check on visitor activities for any one day or other period of time.

Access Control:

Tenant may submit requests for changes (additions, deletions and/or modifications) to its permanent building access cards (“Tenant Access Cards”) by entering such requests directly into Workspeed. To the extent Tenant enters such requests as “High Priority”, Landlord shall use commercially reasonable efforts to make any necessary corresponding changes to the Base Building access control system (the “AMAG System”) within two (2) normal office hours following receipt of such request.

Tenant acknowledges and agrees that due to Landlord’s concerns regarding access control and hacking into the AMAG System by outside parties, and because Landlord does not have a dedicated Network Engineer to continually monitor the online activity, Tenant is prohibited from having a direct connection to the AMAG System. However, upon receipt of written request from Tenant, Landlord shall provide Tenant with hard copies of the compliance reports on a monthly basis, or as needed from time-to-time (Tenant further acknowledges and agrees that Landlord is unable and shall have no obligation to email electronic copies of the compliance reports to Tenant).

Monitoring of Active Card Keys and Input Devices:

Tenant’s Security System (as that term is defined in the Lease) shall monitor all the of card readers which control access into all primary entry points and interior stairwells between the floors of the Premises. Landlord’s Building access-control system will monitor card reader activity in the building egress stairwells, freight elevators and garage access points, however an audible alarm is currently heard when access to a door, floor or stairwell door is attempted using a card that is not programmed for entry point. Landlord shall follow Tenant’s security protocol and contact Square Global Safety and Security at                  when Landlord receives such an alarm.

Landlord has requested Emergency Contact Information from Tenant to include an Escalation Process that can be incorporated into Landlord’s Security Post Orders, as Landlord does for all the other tenants in the Building. Escalation Process for Square facilities shall include the notification of Mr. George McCloskey at                  during an emergency.


Landlord Access to Roof Area:

Landlord and its agents, including, without limitation, the Building’s engineers and their contractors and employees, shall have the right to access the roof area off of the ninth (9th) floor of the Building (which area shall include, without limitation, all Outdoor Terraces and the Mechanical Penthouse (as those terms are defined in the Lease)), subject to the terms and conditions of Article 27 of the Lease. Landlord’s entry into the roof area shall be pursuant to the walking and equipment paths of travel indicated on Schedule 1 attached to this Exhibit C. Notwithstanding anything to the contrary set forth in Article 27 or elsewhere in the Lease, Landlord may enter the roof area at all reasonable times, upon at least twenty-four (24) hours prior notice to Tenant’s designated representative; provided, however, the parties agree and acknowledge that (i) at least two (2) hours prior notice to Tenant’s designated representative shall be required for entry into such areas by Building engineers, Building management, and/or vendors escorted by Building engineers and or Building management in order to access the Mechanical Penthouse, and (ii) no prior notice to or check-in with Tenant shall be required in the case of an emergency.


SCHEDULE 1 TO EXHIBIT C

PATHS OF TRAVEL TO MECHANICAL PENTHOUSE

 

 

LOGO


EXHIBIT D

PODUIUM SIGN

 

 

LOGO


LOGO


THIRD AMENDMENT TO OFFICE LEASE

This THIRD AMENDMENT TO OFFICE LEASE (this “Third Amendment”) is made and entered into as of June 6, 2014, by and between HUDSON 1455 MARKET, LLC, a Delaware limited liability company (“Landlord”), and SQUARE, INC., a Delaware corporation (“Tenant”).

RECITALS

A. Landlord and Tenant are parties to that certain Office Lease dated October 17, 2012 (the “Original Lease”), as amended by that certain First Amendment to Office Lease dated March 22, 2013 ((the “First Amendment”), and that certain Second Amendment to Office Lease dated January 22, 2014 (the “Second Amendment,”) together with the Office Lease, the “Lease”). Pursuant to the Lease, Landlord currently leases to Tenant, and Tenant currently leases from Landlord, certain premises consisting of approximately 333,216 aggregate rentable square feet of space (the “Existing Premises”) (consisting of 181,805 rentable square feet in the Initial Premises, 20,801 rentable square feet in the Must-Take 1 Space, 47,099 rentable square feet in the Must-Take 2 Space, and 81,354 rentable square feet in the Expansion Space, each as defined in the Original Lease), in the building located at 1455 Market Street, San Francisco, California (the “Building”), as more particularly described in the Original Lease.

B. On January 16, 2014, Landlord sent notice to Tenant that as of January 10, 2014 it had delivered to Tenant the “Expansion Space” (as described in Section 2.5 of the Summary of Basic Lease Information in the Original Lease), in the applicable “Delivery Condition” (as that term is defined in Section 1.1.4 of the Original Lease).

C. Landlord contends that pursuant to Section 1.3.2 of the Original Lease, with respect to the Expansion Space, the Expansion Space Lease Commencement Date occurred on January 10, 2014, and pursuant to Section 1.3.5 of the Original Lease, the Expansion Space Rent Commencement Date is to occur on July 9, 2014.

D. Tenant disputes that a) Landlord delivered the Expansion Space in the applicable Delivery Condition as required by the Original Lease, b) the Expansion Space Lease Commencement Date occurred on January 10, 2014, and c) the Expansion Space Rent Commencement Date is to occur on July 9, 2014.

E. On January 16, 2014, Landlord sent notice to Tenant that as of January 15, 2014 it had delivered to Tenant the “Must-Take 2 Space” (as described in Section 2.4 of the Summary of Basic Lease Information in the Original Lease, and as amended by Section 2.2 of the Second Amendment), in the applicable Delivery Condition.

F. Landlord contends that pursuant to Section 3.7 of the Summary of Basic Lease Information in the Original Lease, with respect to the Must-Take 2 Space, the Must-Take 2 Lease Commencement Date occurred on January 15, 2014, and pursuant to Section 1.6.3 of the Original Lease, the Must-Take 2 Rent Commencement Date is to occur on August 13, 2014.

G. Tenant disputes that a) Landlord delivered the Must-Take 2 Space in the applicable Delivery Condition as required by the Original Lease, b) the Must-Take 2 Lease Commencement Date occurred on January 15, 2014, and c) the Must Take 2 Rent Commencement Date is to occur on August 13, 2014.

Landlord and Tenant now desire to amend the Lease on the terms and conditions set forth in this Third Amendment in order to, among other things, clarify and redefine the Expansion Space Lease


Commencement Date, the Expansion Space Rent Commencement Date, the Must-Take 2 Lease Commencement Date, and the Must-Take 2 Rent Commencement Date.

AGREEMENT

NOW, THEREFORE, in consideration of the foregoing recitals and the mutual covenants contained herein, and for other good and valuable consideration, the receipt and sufficiency of which are hereby acknowledged, Landlord and Tenant hereby agree as follows:

1. Defined Terms. All capitalized terms used herein but not specifically defined in this Third Amendment shall have the meanings ascribed to such terms in the Original Lease. The term “Lease” where used in the Original Lease, the First Amendment, the Second Amendment and this Third Amendment shall hereafter refer to the Original Lease, as amended by the First Amendment, the Second Amendment and this Third Amendment.

2. Expansion Space Lease Commencement Date. Landlord and Tenant each hereby acknowledge and agree that the Expansion Space Lease Commencement Date as defined in Section 1.3.2 of the Original Lease shall be deemed to have occurred on March 10, 2014.

3. Expansion Space Rent Commencement Date. Landlord and Tenant each hereby acknowledge and agree that the Expansion Space Rent Commencement Date shall be deemed to be September 6, 2014 (i.e., the date that occurs one hundred eighty (180) days after the Expansion Space Lease Commencement Date).

4. Must-Take 2 Lease Commencement Date. Landlord and Tenant each hereby acknowledge and agree that the Must-Take 2 Lease Commencement Date shall be deemed to have occurred on March 15, 2014.

5. Must-Take 2 Space Commencement Date. Landlord and Tenant each hereby acknowledge and agree that the Must-Take 2 Rent Commencement Date shall be deemed to be October 11, 2014 (i.e., the date that occurs two hundred ten (210) days after the Must-Take 2 Lease Commencement Date).

6. Brokers. Landlord and Tenant hereby warrant to each other that they have had no dealings with any real estate broker or agent in connection with the negotiation of this Third Amendment. Each party agrees to indemnify and defend the other party against and hold the other party harmless from any and all claims, demands, losses, liabilities, lawsuits, judgments, and costs and expenses (including, without limitation, reasonable attorneys’ fees) with respect to any leasing commission or equivalent compensation alleged to be owing on account of any dealings with any real estate broker or agent, occurring by, through, or under the indemnifying party. The terms of this Section 6 shall survive the expiration or earlier termination of the Lease, as amended hereby.

7. Authority. Each of the parties hereto represents and warrants to the other as follows: (a) it has the legal power, right and authority to enter into this Third Amendment; (b) all requisite action (corporate, trust, partnership or otherwise) has been taken by it in connection with the entering into of this Third Amendment and no further consent of any partner, shareholder, creditor, investor, judicial or administrative body, governmental authority or other party is required, including without limitation, any lender, or if any such consent is required, such consent has been obtained; (c) the individuals executing this Third Amendment have the legal power, right, and actual authority to bind it to the terms of this Third Amendment; and (d) it understands that the other party is relying on the foregoing representations in entering into this Third Amendment, and that the other party would not enter into this Third Amendment without such


representations. Landlord represents to Tenant that there are not any Superior Holders as of the date of this Third Amendment.

8. Governing Law. This Third Amendment shall be governed by and construed and enforced in accordance with the laws of the State of California.

9. Lease in Full Force. Except for those provisions which have been modified by this Third Amendment and those terms, covenants and conditions for which performance has heretofore been completed, all other terms, covenants and conditions of the Original Lease are hereby ratified and shall remain unmodified and in full force and effect.

10. Digital Image. The parties agree to accept a digital image of this Third Amendment, as executed, as a true and correct original and admissible as best evidence to the extent permitted by a court with proper jurisdiction.

11. Counterparts. This Third Amendment may be executed in counterparts, each of which shall be deemed an original part and all of which together shall constitute a single agreement.

[remainder of page intentionally left blank; signature page follows]


IN WITNESS WHEREOF, Landlord and Tenant have caused this Third Amendment to be executed as of the date set forth above. IN WITNESS WHEREOF, Landlord and Tenant have caused this First Amendment to be executed as of the date set forth above.

 

LANDLORD:

HUDSON 1455 MARKET, LLC,

a Delaware limited liability company

By: Hudson Pacific Properties, L.P.,
a Maryland limited partnership,
its sole member
By: Hudson Pacific Properties, Inc.,
a Maryland corporation,
its General Partner
By:

/s/ Christopher J. Barton

Name: Christopher J. Barton
Title: Executive Vice President
TENANT:

SQUARE, INC.,

a Delaware corporation

By:

/s/ Sarah Friar

Name: Sarah Friar
Title: COO & CFO