Exhibit 10.30
COLEMAN HIGHLINE
FIRST AMENDMENT TO OFFICE LEASE
THIS FIRST AMENDMENT TO OFFICE LEASE (this “First Amendment”) is made and entered into as of November 12, 2018 (the “First Amendment Effective Date”), by and between CAP PHASE 1, LLC, a Delaware limited liability company (“Landlord”), and ROKU, INC., a Delaware corporation (“Tenant”).
r e c i t a l s :
A.Reference is hereby made to that certain Office Lease dated as of August 1, 2018 (the “Lease”) between Landlord and Tenant.
B.Pursuant to the Lease, Tenant is currently leasing from Landlord that certain premises containing the entire first (1st), second (2nd) and third (3rd) floors (the “Existing Premises”) of that certain six (6)-story building located at 1155 Coleman Avenue, San Jose, California 95110, commonly known as Building Two (the “Building”). The Building is part of a mixed-use Project (as that term is defined in the Lease) known as “Coleman Highline.”
C.Landlord and Tenant now desire to amend the Lease to (i) expand the Existing Premises to include that certain premises (the “Expansion Space”) containing the entire fourth (4th), fifth (5th) and sixth (6th) floors of the Building and comprising the balance of the rentable area of the Building, as depicted on the floor plan attached hereto as Exhibit 1, and (ii) modify various terms and provisions of the Lease, all as hereinafter provided.
NOW THEREFORE, in consideration of the foregoing recitals and the mutual covenants contained herein, and for other good and valuable consideration, the receipt and sufficiency of which are hereby acknowledged, the parties hereto agree as follows:
1.Capitalized Terms. All capitalized terms when used herein shall have the same meaning as is given such terms in the Lease unless expressly superseded by the terms of this First Amendment.
2.Remeasurement of the Building and Existing Premises. Notwithstanding anything to the contrary set forth in the Lease, Landlord and Tenant acknowledge and agree that Landlord has remeasured the Building and that according to such remeasurement, commencing as of the First Amendment Effective Date, for all purposes under the Lease, as amended, the Building shall be deemed to contain 194,549 rentable square feet, the Existing Premises shall be deemed to contain 97,751 rentable square feet, and the Expansion Space shall be deemed to contain 96,798 rentable square feet. The rentable square footage for each floor of the Building is as follows:
|
Floor 1: |
31,276 rsf |
|
Floor 2: |
34,747 rsf |
|
Floor 3: |
31,728 rsf |
|
Floor 4: |
32,266 rsf |
3.Modification of Premises. Effective as of the Expansion Space Commencement Date (as defined in Section 4 below), the Existing Premises shall be expanded to include the Expansion Space, thereby increasing the size of the Existing Premises to 194,549 rentable square feet (i.e., 97,751 rentable square feet in the Existing Premises + 96,798 rentable square feet in the Expansion Space). The Expansion Space shall be leased on the same terms and conditions set forth in the Lease, subject to the modifications set forth in this First Amendment. Effective as of the Expansion Space Commencement Date, the term “Premises” shall mean the Existing Premises and the Expansion Space.
4.Commencement Dates.
4.1.Existing Space. The Lease Commencement Date defined in Section 3.2 of the Summary of Basic Lease Information in the Lease is deleted in its entirety and replaced with the following:
|
“3.2 Lease Commencement Date: |
January 23, 2019, with respect to floors 1 and 2, and April 23, 2019, with respect to floor 3. Notwithstanding the foregoing, Tenant has no obligation to pay Base Rent or Tenant’s Share of Direct Expenses with respect to floor 3 until the Lease Commencement Date for floor 3 on April 23, 2019.” |
4.2.Expansion Space. For purposes of this First Amendment, the term “Expansion Space Commencement Date” shall mean the earlier to occur of: (i) the date upon which Tenant first commences to conduct business operations in the Expansion Space and (ii) September 1, 2019. The term for the Expansion Space (the “Expansion Space Term”) shall commence on the Expansion Space Commencement Date and expire coterminously with the Lease Expiration Date for the Existing Premises (i.e., the last day of the one hundred fortieth (140th) full calendar month of the Lease Term). The date that the Expansion Space Commencement Date actually occurs shall be confirmed by the parties in the Notice of Lease Term Dates as set forth in Section 2.1 of the Lease. Effective as of the First Amendment Effective Date, the term “Lease Commencement Date” shall mean the Lease Commencement Date for the Existing Premises and the Expansion Space Commencement Date for the Expansion Premises, as applicable.
-2-
5.Single-Tenant Building. As of the First Amendment Effective Date, Tenant leases the entire rentable square footage of the Building and is the sole tenant of the Building. Accordingly, in addition to the modifications expressly contained herein, the parties acknowledge and agree that the Lease shall be interpreted in the context of a single-tenant office building.
6.Base Rent. The Base Rent schedule set forth in Section 4 of the Summary of Basic Lease Information in the Lease shall be deleted in its entirety and replaced with the following schedule:
|
“4. Base Rent |
|
||
|
Lease Term |
|
Monthly |
|
|
Lease Year 1☐ |
$8,404,516.80 |
$700,376.40 |
$3.60 |
|
Lease Year 2 |
$8,656,652.28 |
$721,387.69 |
$3.71 |
|
Lease Year 3 |
$8,916,351.84 |
$743,029.32 |
$3.82 |
|
Lease Year 4 |
$9,183,842.40 |
$765,320.20 |
$3.93 |
|
Lease Year 5 |
$9,459,357.72 |
$788,279.81 |
$4.05 |
|
Lease Year 6 |
$9,743,138.40 |
$811,928.20 |
$4.17 |
|
Lease Year 7 |
$10,035,432.60 |
$836,286.05 |
$4.30 |
|
Lease Year 8 |
$10,336,495.56 |
$861,374.63 |
$4.43 |
|
Lease Year 9 |
$10,646,590.44 |
$887,215.87 |
$4.56 |
|
Lease Year 10 |
$10,965,988.20 |
$913,832.35 |
$4.70 |
|
Lease Year 11 |
$11,294,967.84 |
$941,247.32 |
$4.84 |
|
Lease Year 12 |
$11,633,816.88 |
$969,484.74 |
$4.98 |
|
☐ The foregoing Base Rent schedule was determined based on the total rentable square feet of the entire Premises, without regard to the phasing Lease Commencement Dates for floors 1 and 2, floor 3, and floors 4, 5 and 6, respectively. Following the determination of such actual Lease Commencement Date for each floor of the Premises, the parties shall execute an amendment to this Lease reflecting the applicable Lease Commencement Date for each floor and the Base Rent (as increased as of the applicable Lease Commencement Date) owed for each floor, and Tenant shall be required to pay Base Rent only for the floors for which the applicable Lease Commencement Date has occurred. |
|||
-3-
7.Base Rent Abatement. As of the First Amendment Effective Date, the first grammatical sentence of Section 3.2 of the Lease shall be deleted in its entirety and replaced with the following:
“Provided that no monetary or material non-monetary event of default is occurring beyond any applicable notice and cure period, and subject to the terms of this Section 3.2 below, then, with respect to floors 1 and 2 of the Premises, during the six (6) full calendar months following the Lease Commencement Date, with respect to floor 3 of the Premises, during the six (6) full calendar months following the Substantial Completion of the Tenant Improvements with respect to floor 3, and with respect to floors 4, 5 and 6 of the Premises, during the six (6) full calendar months following the Expansion Space Commencement Date (collectively, the “Base Rent Abatement Period”), Tenant shall be entitled to an abatement of Base Rent (collectively, the “Base Rent Abatement”).”
8.Tenant’s Share. Due to the revised number of rentable square feet contained within the Premises (i.e., the Existing Premises and the Expansion Space) as compared to the Existing Premises, from and after the First Amendment Effective Date, Section 5 of the Summary of Basic Lease Information in the Lease shall be deleted in its entirety and replaced with the following:
|
“5. Tenant’s Share |
100%” |
9.Highline Extension Monthly Rent. Subject to the terms and conditions set forth in this Section 9, in the event Landlord constructs the Highline Extension pursuant to Section 1.1 of the Tenant Work Letter, Tenant shall pay to Landlord, on a monthly basis during the Expansion Space Term and concurrent with Tenant’s payment of Base Rent, an amount equal to the “Highline Extension Monthly Rent,” as that term is defined below, in order to pay all or a portion of the costs incurred by Landlord in connection with the construction of the Highline Extension. The “Highline Extension Monthly Rent” shall be determined as the missing component of an annuity, which annuity shall have (w) $1,700,000.00 as the present value amount, (x) the number of full calendar months that occur during the Expansion Space Term as the number of payments, (y) six thousand six hundred sixty-six ten-thousandths (0.6666), which is equal to eight percent (8%)
-4-
divided by twelve (12) months per year, as the monthly interest factor, and (z) the Highline Extension Monthly Rent as the missing component of the annuity. As of the date of this First Amendment, the Highline Extension Monthly Rent has been calculated as an amount equal to Nineteen Thousand Three hundred Fifteen and 14/100 Dollars ($19,315.14), based on (i) the Lease Commencement Date occurring on January 23, 2019 (such that February, 2019 is the first full calendar month of the Lease Term), and (ii) the Expansion Space Commencement Date occurring on September 1, 2019, as such calculations are set forth on Exhibit 4 attached hereto. If the Lease Commencement Date does not occur on or before February 1, 2019, or if the Expansion Space Commencement Date does not occur on September 1, 2019, then the Highline Extension Monthly Rent shall be recalculated with the number set forth in (x), above (i.e., the number of full calendar months that occur during the Expansion Space Term) being replaced with the actual number of full calendar months that occur during the Expansion Space Term.
10.Letter of Credit. As of the First Amendment Effective Date, Section 7 of the Summary of Basic Lease Information in the Lease shall be deleted in its entirety and replaced with the following:
|
“7. Letter of Credit |
$6,303,387.60, subject to reduction as set forth in Article 21 below.” |
11.Parking. As of the First Amendment Effective Date, Section 8 of the Summary of Basic Lease Information in the Lease shall be deleted in its entirety and replaced with the following:
|
“8. Parking Pass Ratio |
3.25 unreserved parking passes for every 1,000 RSF of the Premises, subject to Article 28 below, com-mencing on the applicable Lease Commencement Date.” |
12.Building Signage. As of the First Amendment Effective Date, the first paragraph of Section 23.4 of the Lease shall be deleted in its entirety (for clarity, Subsections 23.4.1 through 23.4.4 shall remain unmodified and in full force and effect) and replaced with the following:
“23.4Building Signage. In addition to the signage rights expressly set forth above in this Article 23, Tenant, at Tenant’s sole cost and expense, shall be entitled to (i) install up to two (2) exterior signs on the Building, provided, however, that Tenant shall not install any signage on the “Highline Extension,” as that term is defined in Section 1.1 of Exhibit B, (ii) install up to one (1) panel on any monument sign pertaining to the Building, and (iii) paint Tenant’s name and/or logo on the roof of the Building, provided that in doing so Tenant will not jeopardize or void Landlord’s roof warranty (in the locations more particularly identified on Exhibit
-5-
I attached hereto) identifying Tenant’s name and/or logo (the “Tenant’s Signage”) in connection with Tenant’s lease of the Premises.”
As of the First Amendment Effective Date, Exhibit I attached to the Lease shall be deleted in its entirety and replaced with Exhibit I attached to this First Amendment.
13.Tenant Improvements.
13.1.Tenant Work Letter. All references to the Tenant Work Letter, as defined in Section 1.1.1 of the Lease, with respect to the Expansion Space shall mean the Tenant Work Letter attached hereto as Exhibit 2 instead and in place of the Tenant Work Letter attached to the Lease as Exhibit B.
13.2.Tenant Improvement Allowance. As of the First Amendment Effective Date, Section 13 of the Summary of Basic Lease Information in the Lease shall be deleted in its entirety and replaced with the following:
|
“13. Tenant Improvement Allowance |
$16,050,292.50 (i.e., $82.50 per rentable square foot of the Premises).” |
14.Right of First Offer. As of the First Amendment Effective Date, Section 1.2 of the Lease shall be deleted in its entirety and replaced with the following (for clarity, Subsections 1.2.1 through 1.2.6 shall remain unmodified and in full force and effect):
“1.2Right of First Offer. During the first forty-eight (48) months of the Lease Term, Landlord hereby grants to the original Tenant set forth in this Lease (the “Original Tenant”) and any Permitted Transferee Assignee, an ongoing right of first offer (the “Right of First Offer”) with respect to office space in Building 1 (the “First Offer Space”), on the terms and conditions set forth in this Section 1.2. Notwithstanding the foregoing, and subject to the terms and conditions of Section 1.2.6 below, such Right of First Offer shall (i) be subordinate to any leases entered into by Landlord for the First Offer Space prior to the date of this Lease, (ii) be subordinate to all expansion rights set forth in any lease entered into by Landlord prior to the date of this Lease, and (iii) be subordinate to any lease (an “Intervening Lease”) entered into by Landlord following Tenant’s failure to timely exercise its right to lease the First Offer Space and all expansion rights set forth in any Intervening Lease (collectively, the “Superior Leases”, and the tenants under such Superior Leases are “Superior Right Holders”) (including, in each instance, renewals and expansions of any such Superior Leases, pursuant to rights in effect as of the date of this Lease regardless of whether such rights are exercised strictly in accordance with their terms). The only Superior Right Holder, as of the date of this Lease, is 8x8, Inc.”
15.Insurance. As of the First Amendment Effective Date, the coverage for limits of liability under Section 10.3.1 of the Lease shall each be increased as follows:
-6-
|
Property Damage Liability Personal Injury Liability |
$10,000,000 each occurrence $10,000,000 annual aggregate $10,000,000 each occurrence $10,000,000 annual aggregate Reasonable Insured’s participation” |
16.Condemnation. As of the First Amendment Effective Date, Article 13 of the Lease shall be deleted in its entirety and replaced with the following:
ARTICLE 13
CONDEMNATION
“If the whole or any material part of the Premises, Building or Project shall be taken by power of eminent domain or condemned by any competent authority for any public or quasi-public use or purpose, or if any adjacent property or street shall be so taken or condemned, or reconfigured or vacated by such authority in such manner as to require the use, reconstruction or remodeling of any material part of the Premises, Building or Project, or if Landlord shall grant a deed or other instrument in lieu of such taking by eminent domain or condemnation, Landlord shall have the option to terminate this Lease effective as of the date possession is required to be surrendered to the authority. If more than twenty-five percent (25%) of the RSF of the Premises is taken, or if access to the Premises is substantially impaired, or if any material portion of the parking for the Premises is taken, in each case for a period in excess of one hundred eighty (180) days, Tenant shall have the option to terminate this Lease effective as of the date possession is required to be surrendered to the authority. Tenant shall not because of such taking assert any claim against Landlord or the authority for any compensation because of such taking and Landlord shall be entitled to the entire award or payment in connection therewith, except that Tenant shall have the right to file any separate claim available to Tenant for any taking of Tenant’s personal property and fixtures belonging to Tenant and removable by Tenant upon expiration of the Lease Term pursuant to the terms of this Lease, and for moving expenses, so long as such claim is payable separately to Tenant or is otherwise separately identifiable. Notwithstanding anything in this Article 13 to the contrary, Landlord and Tenant shall each be entitled to receive fifty percent (50%) of the “bonus value” of the leasehold estate in connection therewith, which bonus value shall be equal to the difference between the Rent payable under this Lease and the sum established by the condemning authority as the award for compensation for the leasehold. All Rent shall be apportioned as of the date of such termination. If any part of the Premises shall be taken, and this Lease shall not be so terminated, the Rent shall be proportionately abated. Tenant hereby waives any and all rights it might otherwise have pursuant to Section 1265.130 of The California Code of Civil Procedure.
-7-
Notwithstanding anything to the contrary contained in this Article 13, in the event of a temporary taking of all or any portion of the Premises for a period of one hundred and eighty (180) days or less, then this Lease shall not terminate but the Base Rent and the Additional Rent shall be abated for the period of such taking in proportion to the ratio that the amount of RSF of the Premises taken bears to the total RSF of the Premises. Landlord shall be entitled to receive the entire award made in connection with any such temporary taking, but nothing herein shall preclude Tenant from seeking a recovery from the condemning authority to the extent Landlord’s award is not reduced as a result thereof.”
17.Transfer Restriction. As of the First Amendment Effective Date, Section 14.2.4 of the Lease shall be deleted in its entirety.
18.California Accessibility Disclosure. For purposes of Section 1938 of the California Civil Code, Landlord hereby reaffirms in full its disclosures set forth in and restates to Tenant in full the statements contained in Section 24.3 of the Lease, which disclosures and statements hereby refer to the Expansion Space as part of the Premises.
19.Amended and Restated Memorandum of Lease. Tenant shall record an amended and restated memorandum providing record notice of the Lease, as amended hereby, which shall be in the form of Exhibit 3 attached hereto (“Restated Memorandum”). The parties shall sign the Restated Memorandum concurrently with the execution of this First Amendment. In addition, within thirty (30) days after Landlord’s written request following the expiration or earlier termination of the Lease, Tenant shall execute and deliver to Landlord in recordable form, termination of the Restated Memorandum. Tenant’s obligation to execute and deliver such termination of the Restated Memorandum shall survive the expiration or earlier termination of the Lease. Tenant shall be solely responsible for all costs incurred under this Section 19.
20.Brokers. Landlord and Tenant hereby warrant to each other that they have had no dealings with any real estate broker or agent in connection with the negotiation of this First Amendment, excepting only the real estate brokers or agents specified in Section 11 of the Summary of the Lease (“Brokers”), and that they know of no other real estate broker or agent who is entitled to a commission in connection with this First Amendment. Each party agrees to indemnify and defend the other party against and hold the other party harmless from any and all claims, demands, losses, liabilities, lawsuits, judgments, costs and expenses (including without limitation reasonable attorneys’ fees) with respect to any leasing commission or equivalent compensation alleged to be owing on account of any dealings with any real estate broker or agent, other than the Brokers, occurring by, through, or under the indemnifying party. Landlord agrees to pay the Brokers a commission pursuant to a separate written agreement entered into between Landlord and the Brokers in connection with this transaction.
21.Construction of the Tenant Improvements. Section 4 of Exhibit B of the Lease is deleted in its entirety and replaced with the following:
“SECTION 4
CONSTRUCTION OF THE TENANT IMPROVEMENTS
4.1Tenant’s Selection of Contractors.
-8-
4.1.1Contractor. A general contractor shall be retained by Tenant to construct the Tenant Improvements. Such general contractor (the “Contractor”) shall be selected by Tenant, and reasonably approved by Landlord. Tenant shall deliver to Landlord notice of its selection of the Contractor upon such selection.
4.1.2Tenant’s Agents. All subcontractors, laborers, materialmen, and suppliers used by Tenant (such subcontractors, laborers, materialmen, and suppliers, and the Contractor to be known collectively as “Tenant’s Agents”) must be approved in writing by Landlord, which approval shall not be unreasonably withheld or delayed. If Landlord does not approve any of Tenant’s proposed subcontractors, laborers, materialmen or suppliers, Tenant shall submit other proposed subcontractors, laborers, materialmen or suppliers for Landlord’s written approval.
4.2Construction of Tenant Improvements by Tenant’s Agents.
4.2.1Construction Contract; Cost Budget. Tenant shall engage the Contractor under a contract reasonably approved by Landlord (the “Contract”). Prior to the commencement of the construction of the Tenant Improvements, and after Tenant has accepted all bids for the Tenant Improvements, Tenant shall provide Landlord with a detailed breakdown, by trade, of the final costs to be incurred or which have been incurred, as set forth more particularly in Sections 2.2.1.1 through 2.2.1.8, above, in connection with the design and construction of the Improvements to be performed by or at the direction of Tenant or the Contractor, which costs form a basis for the amount of the Contract (the “Anticipated Costs”). In the event that the Anticipated Costs are greater than the amount of the Tenant Improvement Allowance (the “Anticipated Over-Allowance Amount”), then, Tenant shall pay a percentage of each amount requested by the Contractor or otherwise to be disbursed under this Tenant Work Letter, which percentage (the “Percentage”) shall be equal to the Anticipated Over-Allowance Amount divided by the amount of the Anticipated Costs (after deducting from the Anticipated Costs any amounts expended in connection with the preparation of the Construction Drawings, and the cost of all other Tenant Improvements incurred prior to the commencement of construction of the Tenant Improvements), and such payments by Tenant (the “Over-Allowance Payments”) shall be a condition to Landlord’s obligation to pay any amounts from the Tenant Improvement Allowance (the “Tenant Improvement Allowance Payments”). After the initial determination of the Anticipated Costs, Tenant shall advise Landlord from time to time as such Anticipated Costs are further refined or determined or the costs relating to the design and construction of the Tenant Improvements otherwise change and the Anticipated Over-Allowance Amount, and the Over-Allowance Payments shall be adjusted such that the Tenant Improvement Allowance Payments by Landlord and the Over-Allowance Payments by Tenant shall accurately reflect the then-current amount of Anticipated Costs.
-9-
4.2.2.1 Landlord’s General Conditions for Tenant’s Agents and Tenant Improvement Work. Tenant’s and Tenant’s Agent’s construction of the Tenant Improvements shall comply with the following: (i) the Tenant Improvements shall be constructed in strict accordance with the Approved Working Drawings; and (ii) Tenant’s Agents shall submit schedules of all work relating to the Tenant Improvements to Contractor and Contractor shall, within five (5) business days of receipt thereof, inform Tenant’s Agents of any changes which are necessary thereto, and Tenant’s Agents shall adhere to such corrected schedule. Tenant shall pay a construction supervision and management fee (the “Landlord Supervision Fee”) to Landlord in an amount equal to the product of (i) two percent (2%) and (ii) the hard costs of constructing the Tenant Improvements. Notwithstanding anything to the contrary contained in this Tenant Work Letter, Tenant shall not be permitted to modify the slabs of the Base Building or the Expansion Space Base Building.
4.2.2.2 Indemnity. Tenant’s indemnity of Landlord as set forth in this Lease shall also apply with respect to any and all costs, losses, damages, injuries and liabilities related in any way to any act or omission of Tenant or Tenant’s Agents, or anyone directly or indirectly employed by any of them, or in connection with Tenant’s non-payment of any amount arising out of the Tenant Improvements and/or Tenant’s disapproval of all or any portion of any request for payment. Such indemnity by Tenant, as set forth in this Lease, shall also apply with respect to any and all costs, losses, damages, injuries and liabilities related in any way to Landlord’s performance of any ministerial acts reasonably necessary (i) to permit Tenant to complete the Tenant Improvements, and (ii) to enable Tenant to obtain any building permit or certificate of occupancy for the Premises.
4.2.2.3 Requirements of Tenant’s Agents. Each of Tenant’s Agents shall guarantee to Tenant and for the benefit of Landlord that the portion of the Tenant Improvements for which it is responsible shall be free from any defects in workmanship and materials for a period of not less than one (1) year from the date of completion thereof. Each of Tenant’s Agents shall be responsible for the replacement or repair, without additional charge, of all work done or furnished in accordance with its contract that shall become defective within one (1) year after the completion of the work performed by such contractor or subcontractors. The correction of such work shall include, without additional charge, all additional expenses and damages incurred in connection with such removal or replacement of all or any part of the Tenant Improvements, and/or the Building and/or common areas that may be damaged or disturbed thereby. All such warranties or guarantees as to materials or workmanship of or with respect to the Tenant Improvements shall be contained in the Contract or subcontract and shall be written such that such guarantees or warranties shall inure to the benefit of
-10-
both Landlord and Tenant, as their respective interests may appear, and can be directly enforced by either. Tenant covenants to give to Landlord any assignment or other assurances which may be necessary to effect such right of direct enforcement.
4.2.2.4 Insurance Requirements.
4.2.2.4.1 General Coverages. All of Tenant’s Agents shall carry worker’s compensation insurance covering all of their respective employees, and shall also carry public liability insurance, including property damage, all with limits, in form and with companies as are required to be carried by Tenant as set forth in this Lease.
4.2.2.4.2 Special Coverages. Tenant shall carry “Builder’s All Risk” insurance in an amount approved by Landlord covering the construction of the Tenant Improvements, and such other insurance as Landlord may require, it being understood and agreed that the Tenant Improvements shall be insured by Tenant pursuant to this Lease immediately upon completion thereof. Such insurance shall be in amounts and shall include such extended coverage endorsements as may be reasonably required by Landlord including, but not limited to, the requirement that all of Tenant’s Agents shall carry excess liability and Products and Completed Operation Coverage insurance, each in amounts not less than $5,000,000 per incident, $5,000,000 in aggregate, and in form and with companies as are required to be carried by Tenant as set forth in this Lease.
4.2.2.4.3 General Terms. Certificates for all insurance carried pursuant to this Section 4.2.2.4 shall be delivered to Landlord before the commencement of construction of the Tenant Improvements and before the Contractor’s equipment is moved onto the site. All such policies of insurance must contain a provision that the company writing said policy will give Landlord thirty (30) days prior written notice of any cancellation or lapse of the effective date or any reduction in the amounts of such insurance. In the event that the Tenant Improvements are damaged by any cause during the course of the construction thereof, Tenant shall immediately repair the same at Tenant’s sole cost and expense. Tenant’s Agents shall maintain all of the foregoing insurance coverage in force until the Tenant Improvements are fully completed and accepted by Landlord, except for any Products and Completed Operation Coverage insurance required by Landlord, which is to be maintained for ten (10) years following completion of the work and acceptance by Landlord and Tenant. All policies carried under this Section 4.2.2.4 shall insure Landlord and Tenant, as their interests may appear, as well as Contractor and Tenant’s Agents. All insurance, except Workers’ Compensation, maintained by Tenant’s Agents shall preclude subrogation claims by the insurer against anyone insured thereunder. Such insurance shall provide that it is primary insurance as respects the owner and that any other insurance maintained by owner is excess and noncontributing with the
-11-
insurance required hereunder. The requirements for the foregoing insurance shall not derogate from the provisions for indemnification of Landlord by Tenant under Section 4.2.2.2 of this Work Letter. Landlord may, in its discretion, require Tenant to obtain a lien and completion bond or some alternate form of security satisfactory to Landlord in an amount sufficient to ensure the lien-free completion of the Tenant Improvements and naming Landlord as a co-obligee.
4.2.3Governmental Compliance. The Tenant Improvements shall comply in all respects with the following: (i) the Code and other state, federal, city or quasi-governmental laws, codes, ordinances and regulations, as each may apply according to the rulings of the controlling public official, agent or other person; (ii) applicable standards of the American Insurance Association (formerly, the National Board of Fire Underwriters) and the National Electrical Code; and (iii) building material manufacturer’s specifications.
4.2.4Inspection by Landlord. Landlord shall have the right to inspect the Tenant Improvements at all times, provided however, that Landlord’s failure to inspect the Tenant Improvements shall in no event constitute a waiver of any of Landlord’s rights hereunder nor shall Landlord’s inspection of the Tenant Improvements constitute Landlord’s approval of the same. Should Landlord disapprove any portion of the Tenant Improvements, Landlord shall notify Tenant in writing of such disapproval and shall specify the items disapproved. Any defects or deviations in, and/or disapproval by Landlord of, the Tenant Improvements shall be rectified by Tenant at no expense to Landlord, provided however, that in the event Landlord determines that a defect or deviation exists or disapproves of any matter in connection with any portion of the Tenant Improvements and such defect, deviation or matter might adversely affect the mechanical, electrical, plumbing, heating, ventilating and air conditioning or life-safety systems of the Building, the structure or exterior appearance of the Building or any other tenant’s use of such other tenant’s leased premises, Landlord may, take such action as Landlord deems necessary, at Tenant’s expense and without incurring any liability on Landlord’s part, to correct any such defect, deviation and/or matter, including, without limitation, causing the cessation of performance of the construction of the Tenant Improvements until such time as the defect, deviation and/or matter is corrected to Landlord’s satisfaction.
4.2.5Meetings. Commencing upon the execution of this Lease, Tenant shall hold weekly meetings at a reasonable time, with the Architect and the Contractor regarding the progress of the preparation of Construction Drawings and the construction of the Tenant Improvements, which meetings shall be held at a location designated by Landlord, and Landlord and/or its agents shall receive prior notice of, and shall have the right to attend, all such meetings, and, upon Landlord’s request, certain of Tenant’s Agents shall attend such meetings. In addition, minutes shall be
-12-
taken at all such meetings, a copy of which minutes shall be promptly delivered to Landlord. One such meeting each month shall include the review of Contractor’s current request for payment.
4.3Notice of Completion; Copy of Record Set of Plans. Tenant hereby indemnifies Landlord for any loss, claims, damages or delays arising from the actions of Architect on the Premises or in the Building. Within ten (10) days after completion of construction of the Tenant Improvements, Tenant shall cause a Notice of Completion to be recorded in the office of the County Recorder of the county in which the Building is located in accordance with Section 8182 of the Civil Code of the State of California or any successor statute and furnish a copy thereof to Landlord upon recordation, failing which, Landlord may itself execute and file the same as Tenant’s agent for such purpose, at Tenant’s sole cost and expense. At the conclusion of construction, (i) Tenant shall cause the Architect and Contractor (A) to update the Approved Working Drawings as necessary to reflect all changes made to the Approved Working Drawings during the course of construction, (B) to certify to the best of their knowledge that the “record-set” of as-built drawings are true and correct, which certification shall survive the expiration or termination of this Lease, and (C) to deliver to Landlord two (2) sets of copies of such record set of drawings within ninety (90) days following issuance of a certificate of occupancy for the Premises, and (ii) Tenant shall deliver to Landlord a copy of all warranties, guaranties, and operating manuals and information relating to the improvements, equipment, and systems in the Premises.
SECTION 5
[INTENTIONALLY OMITTED]”
22.Base Building. Section 4(o) of Schedule 1-B to Exhibit B of the Lease is deleted in its entirety and replaced with the following:
“o)Tenant generator provisions; Landlord has installed a 100kW generator at the exterior utility enclosure to provide emergency power to Core and Shell elements in the Building. Provisions have been made at an exterior utility enclosure for a generator for the Building, up to 500kW in size. Provisions to include underground conduits for power, control and parasitic connections. Tenant may, at the Tenant’s sole expense, during Tenant’s construction of Tenant Improvements, replace the existing generator with a new generator up to 500kW. If Tenant or Tenant’s General Contractor can arrange a buy back of the existing 100kW generator, any proceeds from such transaction will be credited against the cost incurred by Tenant to upgrade the generator to a larger size.”
23.Subordination and Nondisturbance. Pursuant to Article 18 of the Lease, concurrently with the execution and delivery of this First Amendment by Landlord and Tenant, Landlord shall provide to Tenant the Nondisturbance Agreement in the form of Exhibit H attached to the Lease executed and notarized by Landlord and the existing mortgagee for the Building.
-13-
24.No Further Modification. Except as set forth in this First Amendment, all of the terms and provisions of the Lease shall remain unmodified and in full force and effect.
25.Counterparts. This First Amendment may be executed in multiple counterparts, each of which is to be deemed original for all purposes, but all of which together shall constitute one and the same instrument.
[SIGNATURES APPEAR ON THE FOLLOWING PAGE]
-14-
IN WITNESS WHEREOF, the parties have caused this First Amendment to be duly executed by their duly authorized representatives as of the First Amendment Effective Date.
|
LANDLORD: |
CAP PHASE 1, LLC, |
|
|
a Delaware limited liability company |
|
|
By: |
Coleman Airport Partners, LLC, |
|
|
|
a California limited liability company |
|
|
Its: |
Sole Member |
|
|
By: |
HS Airport, LLC, |
|
|
|
|
a California limited liability company |
|
|
|
Its: |
Manager |
|
|
|
By: |
/s/ Derek K. Hunter, Jr. |
|
|
|
Name: |
Derek K. Hunter, Jr. |
|
|
|
Its: |
Member |
|
|
|
|
|
|
|
|
By: |
/s/ Edward D. Storm |
|
|
Name: |
Edward D. Storm |
|
|
Its: |
Member |
|
TENANT: |
ROKU, INC., |
|
|
a Delaware corporation |
|
|
By: |
/s/ Steve Louden |
|
|
|
Name: |
Steve Louden |
|
|
|
Title: |
CFO |
|
|
|
By: |
/s/ Troy Fenner |
|
|
|
Name: |
Troy Fenner |
|
|
|
Title: |
SVP – Human Resources |
|
-15-
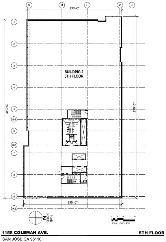
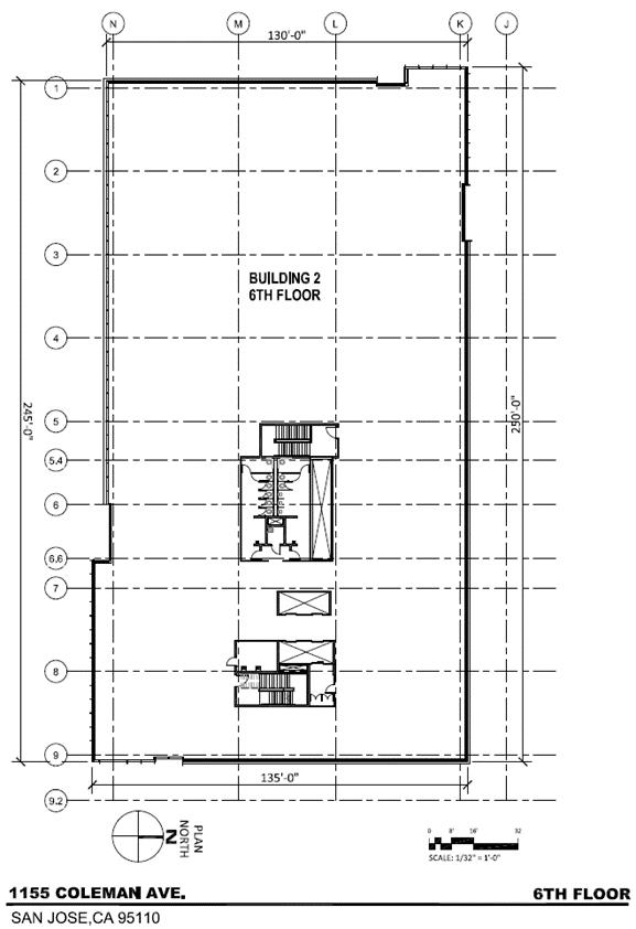
DEPICTION OF EXPANSION SPACE

EXHIBIT 1
-1-
-1-
COLEMAN HIGHLINE
TENANT WORK LETTER
This Tenant Work Letter shall set forth the terms and conditions relating to the construction of the improvements in the Expansion Space. This Tenant Work Letter is essentially organized chronologically and addresses the issues of the construction of the Expansion Space, in sequence, as such issues will arise during the actual construction of the Expansion Space. All references in this Tenant Work Letter to Sections of “this Tenant Work Letter” shall mean the relevant portion of Sections 1 through 6 of this Tenant Work Letter.
SECTION 1
LANDLORD’S INITIAL CONSTRUCTION OF THE EXPANSION SPACE BASE BUILDING
1.1Construction of Expansion Space Base Building and Highline Extension. Landlord has constructed, at its sole cost and expense, in a good workmanlike manner and without deduction from the Tenant Improvement Allowance, the base, shell, and core of the Expansion Space, as set forth in Schedule 1-A attached hereto (collectively, the “Expansion Space Base Building”), and Tenant shall accept delivery of the Expansion Space and Expansion Space Base Building in its currently existing “as-is” condition, subject to “Landlord’s Warranty,” as that term is defined in Section 1.1.1 of the Lease.
1.1.1Highline Extension. In addition, Landlord, at Landlord’s sole cost and expense, shall construct a highline extension (the “Highline Extension”) running between the Building and the A2 Amenity Building located at 1161 Coleman Avenue, San Jose, California, pursuant to plans (the “Highline Extension Plans”) mutually approved by Landlord and Tenant and a cost estimate (the “Estimated Highline Extension Cost”) provided by Landlord’s Contractor (as defined below) for the construction of the Highline Extension. Notwithstanding the foregoing, Landlord may elect, but shall not be obligated, to construct the Highline Extension (a) prior to the date of the Highline Extension Plans and the Estimated Highline Extension Costs are agreed to in writing by Landlord and Tenant, and (b) if the Estimated Highline Extension Cost exceeds Two Million Two Hundred Thousand and 00/100 Dollars ($2,200,000.00) (the “Over Highline Extension Cost”) or would delay (as determined by Landlord in its reasonable discretion) Landlord’s construction at the Building; provided that (x) if the Estimated Highline Extension Cost exceeds the Over Highline Extension Cost and Landlord elects not to construct the Highline Extension, then Tenant may, at its option, pay to Landlord the difference between the Estimated Highline Extension Cost and the Over Highline Extension Cost (the “Highline Extension Differential Cost”) within five (5) days after receiving notice from Landlord that Landlord has elected not to construct the Highline Extension, or (y) if Tenant sends Landlord a “Bidding Notice,” as that term is defined below, and the “Competitive Highline Extension Cost,” as that term is defined below, exceeds the Over Highline Extension Cost and Landlord elects not to construct the Highline Extension, then Tenant may, at its option, pay to Landlord the difference between the Competitive Highline Extension Cost and the Over Highline Extension Cost (the “Competitive Highline Extension Differential Cost”) within five (5) days after Landlord provides Tenant with the Competitive Highline Extension Cost; provided further that if the entire Highline Extension Differential Cost or the entire Competitive Highline Extension Differential Cost, as applicable, is not timely paid by Tenant, Landlord may elect not to construct the Highline Extension, in which case Tenant shall have the right to elect, by written notice to Landlord within five (5) days after such payment by Tenant was due hereunder, to either (i) abate the Highline
-2-
Extension Monthly Rent set forth in Section 9 of the First Amendment, in which case Tenant shall not be obligated to pay the Highline Extension Monthly Rent, and Landlord shall reimburse Tenant for any payments of the Highline Extension Monthly Rent made by Tenant, or (ii) abate the monthly Base Rent up to a total of One Million Seven Hundred Thousand and 00/100 Dollars ($1,700,000.00), and continue to pay all Highline Extension Monthly Rent as set forth in Section 9 of the First Amendment. If Tenant does not timely elect one of the foregoing, then option (i) above will be deemed to be chosen by Tenant, and the Highline Extension Monthly Rent shall be abated. Except as stated in this Section 1.1.1, Tenant shall not be entitled to any deferred or abated Base Rent or any other damages for any delay to the construction of the Highline Extension for any reason.
1.1.2Reconciliation. If the difference between the actual cost to construct the Highline Extension and the Over Highline Extension Cost is less than the Highline Extension Differential Cost or the Competitive Highline Extension Differential Cost, as applicable, paid by Tenant, Landlord shall credit Tenant’s next payment of Base Rent with the amount by which Tenant’s payment of the Highline Extension Differential Cost or the Competitive Highline Extension Differential Cost, as applicable, exceeds the difference between the actual cost to construct the Highline Extension and the Over Highline Extension Cost. If the difference between the actual cost to construct the Highline Extension and the Over Highline Extension Cost is more than the Highline Extension Differential Cost or the Competitive Highline Extension Differential Cost, as applicable, paid by Tenant, Tenant shall pay to Landlord with Tenant’s next payment of Base Rent the amount by which the difference between the actual cost to construct the Highline Extension and the Over Highline Extension Cost exceeds Tenant’s payment of the Highline Extension Differential Cost or the Competitive Highline Extension Differential Cost, as applicable.
1.1.3Highline Extension Contractor. If Landlord constructs the Highline Extension pursuant to Section 1.1.1 above, the Highline Extension shall be constructed by a contractor selected by Landlord (“Landlord’s Contractor”); provided that if the Estimated Highline Extension Cost exceeds the Over Highline Extension Cost and Landlord elects not to construct the Highline Extension, and provided that Landlord and Tenant have mutually approved the Highline Extension Plans, Tenant may elect to send Landlord written notice (the “Bidding Notice”), within five (5) days after receiving notice from Landlord that Landlord has elected not to construct the Highline Extension, requesting that Landlord select contractors to bid on the construction of the Highline Extension. If Tenant timely sends the Bidding Notice to Landlord, Landlord shall select two (2) licensed and reputable contractors (each a “Bidding Contractor,” and, collectively, the “Bidding Contractors”) that shall bid on the construction of the Highline Extension on or before a date mutually established by Landlord and Tenant. Each of the Bidding Contractors shall be notified in the bidding package, which shall be prepared by Landlord and reasonably approved in advance by Tenant, of the time schedule for construction of the Highline Extension. Landlord shall select a contractor (the “Highline Extension Contractor”) from among the Bidding Contractors that (a) submitted qualified bids which were consistent with the bid assumptions and directions, including, without limitation, bids consistent with the Highline Extension Plans, (b) committed to Landlord’s time schedule for construction of the Highline Extension, and (c) submitted bids which are lower than the Estimated Highline Extension Cost. If any of the foregoing criteria are not met by any Bidding Contractor, then Landlord shall not be required to select a Highline Extension Contractor from among the Bidding Contractors. If all of the foregoing criteria is met by at least one Bidding Contractor, Landlord may elect, but is not required, to give Landlord’s Contractor an opportunity to submit a lower bid than the bid by the Highline Extension Contractor selected by Landlord. Whether or not Landlord allows Landlord’s Contractor to submit a lower bid than the bid by the Highline Extension Contractor, Landlord shall provide Tenant with notice of the lowest estimated cost of constructing the Highline Extension (the “Competitive Highline Extension Cost”) based on Landlord’s comparison of the bids from the Highline Extension Contractor and Landlord’s Contractor.
-3-
2.1Tenant Improvement Allowance. Tenant shall be entitled to an improvement allowance (the “Tenant Improvement Allowance”) in the amount of $82.50 per RSF of the Expansion Space for the costs relating to the initial design and construction of the improvements which are permanently affixed to the Expansion Space and which are part of the redevelopment of the landscaping and visitors parking in front of the Building (collectively, the “Tenant Improvements”). In no event shall Landlord be obligated to make disbursements pursuant to this Tenant Work Letter in the event that Tenant fails to immediately pay any portion of the “Over-Allowance Amount,” as defined in Section 4.2.1, nor shall Landlord be obligated to pay a total amount which exceeds the Tenant Improvement Allowance. Notwithstanding the foregoing or any contrary provision of this Lease, all Tenant Improvements shall be deemed Landlord’s property under the terms of this Lease. Any unused portion of the Tenant Improvement Allowance remaining as of the Expansion Space Commencement Date, shall remain with Landlord and Tenant shall have no further right thereto.
2.2Disbursement of the Tenant Improvement Allowance.
2.2.1Tenant Improvement Allowance Items. Except as otherwise set forth in this Tenant Work Letter, the Tenant Improvement Allowance shall be disbursed by Landlord (each of which disbursements shall be made pursuant to Landlord’s disbursement process, including, without limitation, Landlord’s receipt of invoices for all costs and fees described herein) for costs related to the construction of the Tenant Improvements and for the following items and costs (collectively, the “Tenant Improvement Allowance Items”):
2.2.1.1Payment of (a) the fees of the “Architect” and the “Engineers,” as those terms are defined in Section 3.1 of this Tenant Work Letter, (b) the fees of Tenant’s consultants for project management and other engineers and/or consultants for lighting, HVAC, generators, rooftop installation, audio video equipment, not to exceed Five and 00/100 Dollars ($5.00) per RSF, (c) the fees incurred by, and the cost of documents and materials supplied by, Landlord and Landlord’s consultants in connection with the preparation and review of the “Construction Drawings,” as that term is defined in Section 3.1 of this Tenant Work Letter and (d) payment of plan check, permit and license fees relating to construction of the Tenant Improvements;
2.2.1.2The cost of any changes in the Expansion Space Base Building when such changes are required by the Construction Drawings (including if such changes are due to the fact that such work is prepared on an unoccupied basis), such cost to include all direct architectural and/or engineering fees and expenses incurred in connection therewith;
2.2.1.3The cost of any changes to the Construction Drawings or Tenant Improvements required by all applicable building codes (the “Code”); but to the extent changes are required because Landlord did not deliver the Expansion Space to Tenant in the condition required by Section 1, above, Landlord shall pay for such costs separate and apart from, and in addition to, the Tenant Improvement Allowance;
2.2.1.4The “Landlord Supervision Fee”, as that term is defined in Section 4.3.2 of this Tenant Work Letter.
-4-
2.2.1.5The payment of plan check, plan check expeditor, permit and license fees relating to the construction of the Tenant Improvements;
2.2.1.6The cost of construction of the Tenant Improvements, inclusive of supplemental HVAC and other backup power components, and including, without limitation, testing and inspection costs, after hours freight elevator usage (and services in connection with oversize or overweight items for which Landlord’s elevator warranty requires an on-site elevator operator), costs to redevelop the landscaping and visitors parking in front of the Building, hoisting and trash removal costs, and contractors’ fees and general conditions;
2.2.1.7The cost of connection of the Expansion Space to the Building’s energy management systems, and for chilled water hook-up fees, if applicable for the Expansion Space; and
2.2.1.8Sales and use taxes and Title 24 fees.
2.2.2Disbursement of Tenant Improvement Allowance. During the construction of the Tenant Improvements, Landlord shall make monthly disbursements of the Tenant Improvement Allowance for Tenant Improvement Allowance Items and shall authorize the release of monies as follows.
2.2.2.1Monthly Disbursements. On or before the twentieth (20th) day of each calendar month, during the construction of the Tenant Improvements (or such other date as Landlord may designate), Tenant shall deliver to Landlord: (i) a request for payment of the “Contractor,” as that term is defined in Section 4.1.1 of this Tenant Work Letter, approved by Tenant, in a form to be provided by Landlord, showing the schedule, by trade, of percentage of completion of the Tenant Improvements in the Expansion Space, detailing the portion of the work completed and the portion not completed; (ii) invoices from all of “Tenant’s Agents,” as that term is defined in Section 4.1.2 of this Tenant Work Letter, for labor rendered and materials delivered to the Expansion Space; and (iii) executed mechanic’s lien releases from all of Tenant’s Agents which shall comply with the appropriate provisions, as reasonably determined by Landlord, of California Civil Code Sections 8132, 8134, 8136 and/or 8138. Tenant’s request for payment shall be deemed Tenant’s acceptance and approval of the work furnished and/or the materials supplied as set forth in Tenant’s payment request. Thereafter, Landlord shall deliver a check to Tenant made jointly payable to Contractor and Tenant, or directly to Contractor at Landlord’s sole discretion, in payment of the lesser of: (A) the amounts so requested by Tenant, as set forth in this Section 2.2.2.1, above, less a ten percent (10%) retention (the aggregate amount of such retentions to be known as the “Final Retention”) to the extent required pursuant to this Section 2.2.2.1 below, and (B) the balance of any remaining available portion of the Tenant Improvement Allowance (not including the Final Retention), provided that Landlord does not dispute any request for payment based on non-compliance of any work with the “Approved Working Drawings,” as that term is defined in Section 3.4 below, or due to any substandard work, or for any other reason. Landlord’s payment of such amounts shall not be deemed Landlord’s approval or acceptance of the work furnished or materials supplied as set forth in Tenant’s payment request. Notwithstanding the foregoing, if Tenant’s contract with the Contractor (as defined below) includes a retention, the retention withheld by Landlord in clause (A) of the preceding sentence shall be ten percent (10%) less the retention in Tenant’s contract with the Contractor such that the aggregate percentage withheld between Landlord and the Contractor equals ten percent (10%). Notwithstanding anything to the contrary contained in this Section 2.2.2.1 and Section 2.2.2.2 below, any costs of constructing the Tenant Improvements that are not part of the Contract, such as permitting fees, and reimbursements to the Architect shall not be subject to the Final Retention.
-5-
2.2.2.2Final Retention. Subject to the provisions of this Work Letter, a check for the Final Retention payable jointly to Tenant and Contractor, or directly to Contractor at Landlord’s sole discretion, shall be delivered by Landlord to Tenant within thirty (30) days following the completion of construction of the Tenant Improvements, provided that (i) Tenant delivers to Landlord (a) paid invoices for all Tenant Improvements and related costs for which the Tenant Improvement Allowance is to be disbursed, (b) signed permits for all Tenant Improvements completed within the Expansion Space, (c) properly executed unconditional mechanics lien releases in compliance with both California Civil Code Section 8134 and either Section 8136 or Section 8138 from Tenant’s contractor, subcontractors and material suppliers and any other party which has lien rights in connection with the construction of the Tenant Improvements, (ii) Landlord has determined that no substandard work exists which adversely affects the mechanical, electrical, plumbing, heating, ventilating and air conditioning, life-safety or other systems of the Building, the curtain wall of the Building, or the structure or exterior appearance of the Building, (iii) Architect delivers to Landlord a “Certificate of Substantial Completion”, in a form reasonably acceptable to Landlord, certifying that the construction of the Tenant Improvements in the Expansion Space has been substantially completed, (iv) Tenant delivers to Landlord a “close-out package” in both paper and electronic forms (including, as-built drawings, and final record CADD files for the associated plans, warranties and guarantees from all contractors, subcontractors and material suppliers, and an independent air balance report); and (v) a certificate of occupancy, a temporary certificate of occupancy or its equivalent is issued to Tenant for the Expansion Space.
2.2.2.3Other Terms. Landlord shall only be obligated to make disbursements from the Tenant Improvement Allowance to the extent costs are incurred by Tenant for Tenant Improvement Allowance Items.
2.3Building Standards; LEED Standards. Landlord has established or may establish specifications for certain Building standard components to be used in the construction of the Tenant Improvements in the Expansion Space. The quality of Tenant Improvements shall be equal to or of greater quality than the quality of such Building standards, provided that Landlord may, at Landlord’s option, require the Tenant Improvements to comply with certain Building standards. Landlord may make changes to said specifications for Building standards from time to time. Removal requirements for Tenant Improvements are addressed in Article 8 of this Lease. Tenant shall not be obligated to incur any costs associated with Landlord’s construction of the Expansion Space Base Building to comply with any LEED requirements, or relating to any LEED certification obtained for the Expansion Space Base Building.
2.4Offset Right. Notwithstanding anything to the contrary contained herein, if Landlord fails to timely fulfill its obligation to fund any portion of the Tenant Improvement Allowance, Tenant shall be entitled to deliver notice (“Payment Notice”) thereof to Landlord and to any mortgage or trust deed holder of the Building whose identity and address have been previously provided to Tenant. If Landlord still fails to fulfill any such obligation within twenty (20) business days after Landlord’s receipt of the Payment Notice from Tenant and if Landlord fails to deliver notice to Tenant within such twenty (20) business day period explaining Landlord’s reasons that Landlord believes that the amounts described in Tenant’s Payment Notice are not due and payable by Landlord (“Refusal Notice”), Tenant shall be entitled to offset the amount so funded, together with interest at the Interest Rate from the date Landlord was obligated to pay such amount until the date of offset, against Tenant’s next obligations to pay Rent; provided, however, Landlord shall be obligated to immediately disburse to Tenant any undisputed amounts. However, if Tenant is in default under Section 19.1 of this Lease at the time that such offset would otherwise be applicable, Tenant shall not be entitled to such offset until such default is cured. If Landlord delivers a Refusal Notice, and if Landlord and Tenant are not able to agree on the amounts to be so paid by Landlord, if any, within ten (10) days after Tenant’s receipt of a Refusal Notice, Tenant shall not be entitled to offset such amount against Rent unless and until such dispute is finally resolved by mutual agreement of the parties or pursuant to a final, non-appealable order issued by a court of competent jurisdiction.
-6-
SECTION 3
CONSTRUCTION DRAWINGS
3.1Selection of Architect/Construction Drawings. Tenant shall retain an architect/space planner reasonably approved by Landlord (the “Architect”) to prepare the “Construction Drawings,” as that term is defined in this Section 3.1. Landlord hereby approves KSH or Gensler as the Architect. Tenant shall retain the engineering consultants designated by Landlord (the “Engineers”) to prepare all engineering construction documents and specifications relating to the structural life safety, and sprinkler work in the Expansion Space, which work is not part of the Expansion Space Base Building. The plans and drawings to be prepared by Architect and the Engineers hereunder shall be known collectively as the “Construction Drawings.” All Construction Drawings shall comply with reasonable, industry standard drawing formats and specifications and may be submitted to Landlord as such Construction Drawings are completed, and shall be subject to Landlord’s approval, which shall not be unreasonably withheld or delayed; provided, that any components of the Construction Drawings which present a “Design Problem” (as that term is defined hereinbelow) shall be subject to Landlord’s consent in its sole and absolute discretion (collectively, “Landlord’s Consent Standard”). Tenant and Architect shall verify, in the field, the dimensions and conditions of the Expansion Space Base Building, and Tenant and Architect shall be solely responsible for the same, and Landlord shall have no responsibility in connection therewith. Landlord’s review of the Construction Drawings as set forth in this Section 3, shall be for its sole purpose and shall not imply Landlord’s review of the same, or obligate Landlord to review the same, for quality, design, Code compliance or other like matters. Accordingly, notwithstanding that any Construction Drawings are reviewed by Landlord or its space planner, architect, engineers and consultants, and notwithstanding any advice or assistance which may be rendered to Tenant by Landlord or Landlord’s space planner, architect, engineers, and consultants, Landlord shall have no liability whatsoever in connection therewith and shall not be responsible for any omissions or errors contained in the Construction Drawings, and Tenant’s waiver and indemnity set forth in this Lease shall specifically apply to the Construction Drawings. A “Design Problem” is defined as and will be deemed to exist if such improvements (i) will affect the exterior appearance of the Building, (ii) will adversely affect the Expansion Space Base Building, (iii) will fail to comply with Applicable Laws, including without limitation the LEED certification requirements relating to the construction of the Tenant Improvements required by the City of San Jose, or (iv) are not consistent with the applicable Permitted Use.
3.2Intentionally Omitted.
3.3Final Construction Drawings. Tenant, the Architect and the Engineers shall complete the architectural and engineering documents for the Expansion Space, and Architect shall compile a fully coordinated set of architectural, structural, mechanical, electrical and plumbing working drawings in a form which is complete to allow subcontractors to bid on the work and to obtain all applicable permits (collectively, the “Final Construction Drawings”) and shall submit the same to Landlord for Landlord’s approval, which shall not be withheld except in the case of a Design Problem. Tenant shall supply Landlord with four (4) copies signed by Tenant of such Final Construction Drawings. Landlord shall advise Tenant within ten (10) business days after Landlord’s receipt of the Final Construction Drawings for the Expansion Space if the same is incomplete in any material respect or if a Design Problem exists. If Tenant is so advised, Tenant shall immediately revise the Final Construction Drawings to cause them to be complete and to eliminate any Design Problem. If Landlord fails to respond to the Final Construction Drawings within the ten (10) business day period set forth above, Tenant may send Landlord a notice of setting forth such failure.
-7-
3.4Permits; Approved Working Drawings. The Final Construction Drawings shall be approved by Landlord (the “Approved Working Drawings”) prior to the commencement of the construction of the Tenant Improvements. Tenant shall immediately submit the Approved Working Drawings to the appropriate municipal authorities for all applicable building and other permits necessary to allow “Contractor,” as that term is defined in Section 4.1, below, to commence and fully complete the construction of the Tenant Improvements (the “Permits”), and, in connection therewith, Tenant shall coordinate with Landlord in order to allow Landlord, at its option, to take part in all phases of the permitting process and shall supply Landlord, as soon as possible, with all plan check numbers and dates of submittal and obtain the Permits, provided that such coordination does not delay permit plan submittal. Notwithstanding anything to the contrary set forth in this Section 3.4, Tenant hereby agrees that neither Landlord nor Landlord’s consultants shall be responsible for obtaining any building permit or certificate of occupancy for the Expansion Space and that the obtaining of the same shall be Tenant’s responsibility; provided however that Landlord shall, in any event, cooperate with Tenant in executing permit applications and performing other ministerial acts reasonably necessary to enable Tenant to obtain any such permit or certificate of occupancy. No changes, modifications or alterations in the Approved Working Drawings may be made without the prior written consent of Landlord, which consent shall be granted or withheld in accordance with Landlord’s Consent Standard.
3.5Electronic Approvals. Notwithstanding any provision to the contrary contained in the Lease or this Tenant Work Letter, Landlord may, in Landlord’s sole and absolute discretion, transmit or otherwise deliver any of the approvals required under this Tenant Work Letter via electronic mail to Tenant’s representative identified in Section 5.2 of this Tenant Work Letter, or by any of the other means identified in Section 29.18 of this Lease.
SECTION 4
CONSTRUCTION OF THE TENANT IMPROVEMENTS
4.1Tenant’s Selection of Contractors.
4.1.1Contractor. A general contractor shall be retained by Tenant to construct the Tenant Improvements. Such general contractor (the “Contractor”) shall be selected by Tenant, and reasonably approved by Landlord. Tenant shall deliver to Landlord notice of its selection of the Contractor upon such selection.
4.1.2Tenant’s Agents. All subcontractors, laborers, materialmen, and suppliers used by Tenant (such subcontractors, laborers, materialmen, and suppliers, and the Contractor to be known collectively as “Tenant’s Agents”) must be approved in writing by Landlord, which approval shall not be unreasonably withheld or delayed. If Landlord does not approve any of Tenant’s proposed subcontractors, laborers, materialmen or suppliers, Tenant shall submit other proposed subcontractors, laborers, materialmen or suppliers for Landlord’s written approval.
4.2Construction of Tenant Improvements by Tenant’s Agents.
4.2.1Construction Contract; Cost Budget. Tenant shall engage the Contractor under a contract reasonably approved by Landlord (the “Contract”). Prior to the commencement of the construction of the Tenant Improvements, and after Tenant has accepted all bids for the Tenant Improvements, Tenant shall provide Landlord with a detailed breakdown, by trade, of the final costs to be incurred or which have been incurred, as set forth more particularly in Sections 2.2.1.1 through 2.2.1.8, above, in connection with the design and construction of the Improvements to be performed by or at the direction of Tenant or the Contractor, which costs form
-8-
a basis for the amount of the Contract (the “Anticipated Costs”). In the event that the Anticipated Costs are greater than the amount of the Tenant Improvement Allowance (the “Anticipated Over-Allowance Amount”), then, Tenant shall pay a percentage of each amount requested by the Contractor or otherwise to be disbursed under this Tenant Work Letter, which percentage (the “Percentage”) shall be equal to the Anticipated Over-Allowance Amount divided by the amount of the Anticipated Costs (after deducting from the Anticipated Costs any amounts expended in connection with the preparation of the Construction Drawings, and the cost of all other Tenant Improvements incurred prior to the commencement of construction of the Tenant Improvements), and such payments by Tenant (the “Over-Allowance Payments”) shall be a condition to Landlord’s obligation to pay any amounts from the Tenant Improvement Allowance (the “Tenant Improvement Allowance Payments”). After the initial determination of the Anticipated Costs, Tenant shall advise Landlord from time to time as such Anticipated Costs are further refined or determined or the costs relating to the design and construction of the Tenant Improvements otherwise change and the Anticipated Over-Allowance Amount, and the Over-Allowance Payments shall be adjusted such that the Tenant Improvement Allowance Payments by Landlord and the Over-Allowance Payments by Tenant shall accurately reflect the then-current amount of Anticipated Costs.
4.2.2Tenant’s Agents.
4.2.2.1 Landlord’s General Conditions for Tenant’s Agents and Tenant Improvement Work. Tenant’s and Tenant’s Agent’s construction of the Tenant Improvements shall comply with the following: (i) the Tenant Improvements shall be constructed in strict accordance with the Approved Working Drawings; and (ii) Tenant’s Agents shall submit schedules of all work relating to the Tenant Improvements to Contractor and Contractor shall, within five (5) business days of receipt thereof, inform Tenant’s Agents of any changes which are necessary thereto, and Tenant’s Agents shall adhere to such corrected schedule. Tenant shall pay a construction supervision and management fee (the “Landlord Supervision Fee”) to Landlord in an amount equal to the product of (i) two percent (2%) and (ii) the hard costs of constructing the Tenant Improvements. Notwithstanding anything to the contrary contained in this Tenant Work Letter, Tenant shall not be permitted to modify the slabs of the Base Building or the Expansion Space Base Building.
4.2.2.2 Indemnity. Tenant’s indemnity of Landlord as set forth in this Lease shall also apply with respect to any and all costs, losses, damages, injuries and liabilities related in any way to any act or omission of Tenant or Tenant’s Agents, or anyone directly or indirectly employed by any of them, or in connection with Tenant’s non-payment of any amount arising out of the Tenant Improvements and/or Tenant’s disapproval of all or any portion of any request for payment. Such indemnity by Tenant, as set forth in this Lease, shall also apply with respect to any and all costs, losses, damages, injuries and liabilities related in any way to Landlord’s performance of any ministerial acts reasonably necessary (i) to permit Tenant to complete the Tenant Improvements, and (ii) to enable Tenant to obtain any building permit or certificate of occupancy for the Expansion Space.
4.2.2.3 Requirements of Tenant’s Agents. Each of Tenant’s Agents shall guarantee to Tenant and for the benefit of Landlord that the portion of the Tenant Improvements for which it is responsible shall be free from any defects in workmanship and materials for a period of not less than one (1) year from the date of completion thereof. Each of Tenant’s Agents shall be responsible for the replacement or repair, without additional charge, of all work done or furnished in accordance with its contract that shall become defective within one (1) year after the completion of the work performed by such contractor or subcontractors. The correction of such
-9-
work shall include, without additional charge, all additional expenses and damages incurred in connection with such removal or replacement of all or any part of the Tenant Improvements, and/or the Building and/or common areas that may be damaged or disturbed thereby. All such warranties or guarantees as to materials or workmanship of or with respect to the Tenant Improvements shall be contained in the Contract or subcontract and shall be written such that such guarantees or warranties shall inure to the benefit of both Landlord and Tenant, as their respective interests may appear, and can be directly enforced by either. Tenant covenants to give to Landlord any assignment or other assurances which may be necessary to effect such right of direct enforcement.
4.2.2.4 Insurance Requirements.
4.2.2.4.1 General Coverages. All of Tenant’s Agents shall carry worker’s compensation insurance covering all of their respective employees, and shall also carry public liability insurance, including property damage, all with limits, in form and with companies as are required to be carried by Tenant as set forth in this Lease.
4.2.2.4.2 Special Coverages. Tenant shall carry “Builder’s All Risk” insurance in an amount approved by Landlord covering the construction of the Tenant Improvements, and such other insurance as Landlord may require, it being understood and agreed that the Tenant Improvements shall be insured by Tenant pursuant to this Lease immediately upon completion thereof. Such insurance shall be in amounts and shall include such extended coverage endorsements as may be reasonably required by Landlord including, but not limited to, the requirement that all of Tenant’s Agents shall carry excess liability and Products and Completed Operation Coverage insurance, each in amounts not less than $5,000,000 per incident, $5,000,000 in aggregate, and in form and with companies as are required to be carried by Tenant as set forth in this Lease.
4.2.2.4.3 General Terms. Certificates for all insurance carried pursuant to this Section 4.2.2.4 shall be delivered to Landlord before the commencement of construction of the Tenant Improvements and before the Contractor’s equipment is moved onto the site. All such policies of insurance must contain a provision that the company writing said policy will give Landlord thirty (30) days prior written notice of any cancellation or lapse of the effective date or any reduction in the amounts of such insurance. In the event that the Tenant Improvements are damaged by any cause during the course of the construction thereof, Tenant shall immediately repair the same at Tenant’s sole cost and expense. Tenant’s Agents shall maintain all of the foregoing insurance coverage in force until the Tenant Improvements are fully completed and accepted by Landlord, except for any Products and Completed Operation Coverage insurance required by Landlord, which is to be maintained for ten (10) years following completion of the work and acceptance by Landlord and Tenant. All policies carried under this Section 4.2.2.4 shall insure Landlord and Tenant, as their interests may appear, as well as Contractor and Tenant’s Agents. All insurance, except Workers’ Compensation, maintained by Tenant’s Agents shall preclude subrogation claims by the insurer against anyone insured thereunder. Such insurance shall provide that it is primary insurance as respects the owner and that any other insurance maintained by owner is excess and noncontributing with the insurance required hereunder. The requirements for the foregoing insurance shall not derogate from the provisions for indemnification of Landlord by Tenant under Section 4.2.2.2 of this Work Letter. Landlord may, in its discretion, require Tenant to obtain a lien and completion bond or some alternate form of security satisfactory to Landlord in an amount sufficient to ensure the lien-free completion of the Tenant Improvements and naming Landlord as a co-obligee.
4.2.3Governmental Compliance. The Tenant Improvements shall comply in all respects with the following: (i) the Code and other state, federal, city or quasi-governmental
-10-
laws, codes, ordinances and regulations, as each may apply according to the rulings of the controlling public official, agent or other person; (ii) applicable standards of the American Insurance Association (formerly, the National Board of Fire Underwriters) and the National Electrical Code; and (iii) building material manufacturer’s specifications.
4.2.4Inspection by Landlord. Landlord shall have the right to inspect the Tenant Improvements at all times, provided however, that Landlord’s failure to inspect the Tenant Improvements shall in no event constitute a waiver of any of Landlord’s rights hereunder nor shall Landlord’s inspection of the Tenant Improvements constitute Landlord’s approval of the same. Should Landlord disapprove any portion of the Tenant Improvements, Landlord shall notify Tenant in writing of such disapproval and shall specify the items disapproved. Any defects or deviations in, and/or disapproval by Landlord of, the Tenant Improvements shall be rectified by Tenant at no expense to Landlord, provided however, that in the event Landlord determines that a defect or deviation exists or disapproves of any matter in connection with any portion of the Tenant Improvements and such defect, deviation or matter might adversely affect the mechanical, electrical, plumbing, heating, ventilating and air conditioning or life-safety systems of the Building, the structure or exterior appearance of the Building or any other tenant’s use of such other tenant’s leased premises, Landlord may, take such action as Landlord deems necessary, at Tenant’s expense and without incurring any liability on Landlord’s part, to correct any such defect, deviation and/or matter, including, without limitation, causing the cessation of performance of the construction of the Tenant Improvements until such time as the defect, deviation and/or matter is corrected to Landlord’s satisfaction.
4.2.5Meetings. Commencing upon the execution of this Lease, Tenant shall hold weekly meetings at a reasonable time, with the Architect and the Contractor regarding the progress of the preparation of Construction Drawings and the construction of the Tenant Improvements, which meetings shall be held at a location designated by Landlord, and Landlord and/or its agents shall receive prior notice of, and shall have the right to attend, all such meetings, and, upon Landlord’s request, certain of Tenant’s Agents shall attend such meetings. In addition, minutes shall be taken at all such meetings, a copy of which minutes shall be promptly delivered to Landlord. One such meeting each month shall include the review of Contractor’s current request for payment.
4.3Notice of Completion; Copy of Record Set of Plans. Tenant hereby indemnifies Landlord for any loss, claims, damages or delays arising from the actions of Architect in the Expansion Space or in the Building. Within ten (10) days after completion of construction of the Tenant Improvements, Tenant shall cause a Notice of Completion to be recorded in the office of the County Recorder of the county in which the Building is located in accordance with Section 8182 of the Civil Code of the State of California or any successor statute and furnish a copy thereof to Landlord upon recordation, failing which, Landlord may itself execute and file the same as Tenant’s agent for such purpose, at Tenant’s sole cost and expense. At the conclusion of construction, (i) Tenant shall cause the Architect and Contractor (A) to update the Approved Working Drawings as necessary to reflect all changes made to the Approved Working Drawings during the course of construction, (B) to certify to the best of their knowledge that the “record-set” of as-built drawings are true and correct, which certification shall survive the expiration or termination of this Lease, and (C) to deliver to Landlord two (2) sets of copies of such record set of drawings within ninety (90) days following issuance of a certificate of occupancy for the Expansion Space, and (ii) Tenant shall deliver to Landlord a copy of all warranties, guaranties, and operating manuals and information relating to the improvements, equipment, and systems in the Expansion Space.
-11-
SECTION 5
COMPLETION OF THE TENANT IMPROVEMENTS;
EXPANSION SPACE COMMENCEMENT DATE
5.1Landlord Caused Delays. The Expansion Space Commencement Date shall occur as provided in Section 4 of the First Amendment, provided that the Expansion Space Commencement Date shall be extended by the number of days of delay of the Substantial Completion of the Tenant Improvements, as that term is defined in Section 5.2, below, in the applicable portion of the Expansion Space to the extent (i) caused by a Landlord Caused Delay, as that term is defined below, and (ii) the subject delay causes the Substantial Completion of the Tenant Improvements to occur after September 1, 2019. As used herein, the term “Landlord Caused Delay” shall mean actual delays to the extent resulting from the acts or omissions of Landlord including, but not limited to (a) material and unreasonable interference by Landlord, its agents or other Landlord Parties (except as otherwise allowed under this Tenant Work Letter) with the Substantial Completion of the Tenant Improvements which objectively precludes or delays the construction of Tenant Improvements, which interference relates to access by Tenant, or Tenant’s Agents to the Building or any Common Areas or service (including temporary power) during normal construction hours, or the use thereof during normal construction hours, and (b) delays due to the acts or failures to act of Landlord with respect to payment of the Tenant Improvement Allowance (except as otherwise allowed under this Tenant Work Letter).
5.2Determination of Landlord Caused Delay. If Tenant contends that a Landlord Caused Delay has occurred, Tenant shall notify Landlord in writing (the “Delay Notice”) of the event which constitutes such Landlord Caused Delay. If such actions, inaction or circumstance described in the Delay Notice are not cured by Landlord within one (1) business day of Landlord’s receipt of the Delay Notice and if such action, inaction or circumstance otherwise qualify as a Landlord Caused Delay, then a Landlord Caused Delay shall be deemed to have occurred commencing as of the date of Landlord’s receipt of the Delay Notice and ending as of the date such delay ends. Notwithstanding the foregoing, an event shall constitute the basis for a Landlord Caused Delay only to the extent the effect of such Landlord Caused Delay cannot be mitigated in a reasonably practicable manner by Landlord on commercially reasonable terms (without requiring Landlord to incur any expense or overtime). For purposes of this Section 5, “Substantial Completion of the Tenant Improvements” shall mean completion of construction of the Tenant Improvements in the Expansion Space pursuant to the Approved Working Drawings, with the exception of any punch list items.
-12-
6.1Miscellaneous Items. Prior to the Expansion Space Commencement Date, during the construction of the Tenant Improvements, and subject to compliance with Landlord’s TI Manual (as the same is in effect on the date of this Lease), and if and to the extent reasonably available, Tenant may use the following items, on a nonexclusive basis, and in a manner and to the extent reasonably necessary to perform the Tenant Improvements: freight elevators, loading areas, non-potable water, temporary electrical services, and HVAC; provided, however, that Tenant shall be responsible, at Tenant’s cost, for providing any security services required to facilitate operation of the foregoing after-hours, which security services shall be subject to Landlord’s reasonable approval.
6.2Tenant’s Representative. Tenant has designated Ernest Evans as its sole representative with respect to the matters set forth in this Tenant Work Letter (whose e-mail address for the purposes of this Tenant Work Letter is [email protected], who, until further notice to Landlord, shall have full authority and responsibility to act on behalf of the Tenant as required in this Tenant Work Letter.
6.3Landlord’s Representatives. Landlord has designated Curtis Leigh (whose e-mail address for the purposes of this Tenant Work Letter is [email protected]), as its sole representative with respect to the matters set forth in this Tenant Work Letter, who, until further notice to Tenant, shall have full authority and responsibility to act on behalf of the Landlord as required in this Tenant Work Letter.
6.4Labor Harmony. Tenant shall not use (and upon notice from Landlord shall cease using) contractors, services, workmen, labor, materials or equipment that, in Landlord’s reasonable judgment, would disturb labor harmony with the workforce or trades engaged in performing other work, labor or services in or about the Building or the Common Areas. In addition, Tenant shall retain any union trades to the extent required by Applicable Laws.
6.5Time is of the Essence. Time is of the essence under this Tenant Work Letter. Unless otherwise indicated, all references herein to a “number of days” shall mean and refer to calendar days. In all instances where Tenant is required to approve or deliver an item, if no written notice of approval is given or the item is not delivered within the stated time period, at Landlord’s sole option, at the end of such period the item shall automatically be deemed approved or delivered by Tenant and the next succeeding time period shall commence. If any item requiring approval is timely disapproved by the applicable party, the procedure for preparation of the document and approval thereof shall be repeated until the document is approved.
6.6Tenant’s Lease Default. Notwithstanding any provision to the contrary contained in this Lease , if any default, after expiration of any applicable notice or cure period, as described in the Lease or this Tenant Work Letter has occurred at any time on or before the Substantial Completion of the Tenant Improvements, then (i) in addition to all other rights and remedies granted to Landlord pursuant to this Lease, Landlord shall have the right to withhold payment of all or any portion of the Tenant Improvement Allowance, and (ii) all other obligations of Landlord under the terms of the Lease and this Tenant Work Letter shall be forgiven until such time as such default is cured or waived pursuant to the terms of this Lease (in which case, Tenant shall be responsible for any delay in the Substantial Completion of the Tenant Improvements caused by such inaction by Landlord).
-13-
COLEMAN HIGHLINE
EXPANSION SPACE BASE BUILDING DESCRIPTION
All references to “Code” below shall mean compliance with applicable Code to the extent necessary for Tenant to obtain and retain a certificate of occupancy or temporary certificate of occupancy or legal equivalent for the Expansion Space for general office use.
All landscape, site work, lighting, paving, striping, Code related signage, and utilities (sewer, water, gas). Includes infrastructure for future communication and cable TV requirements. Work includes all vaults, fees, backflow and monitoring devices.
|
2) |
Shell: |
All work required to obtain a shell permit final inspection (not a temporary certificate for occupancy). All work shall conform to local Code for the shell. Weather tight (air and water infiltration) shell complete with rain water distribution system. Exterior doors with manual exit panic hardware. 2 sets of standard pre- engineered stairs for access and egress with one set to access the roof. Fire riser and complete shell system, including “up heads” with capped tees for Tenant Improvements at all floors and roof monitors and PIV (monitoring system by Tenant). Floor of the Building designed for 80 PSF uniform live load. Steel framework shall be designed to accommodate shaft and elevator openings. Includes roof screen. Insulation at underside of roof deck provided, furring and drywall at perimeter walls and all columns are excluded. 10’ high ceiling for most open office space. The Building is classified as Type II-A. Exterior lobby door hardware to be electrified.
|
3) |
Electrical: |
All primary and secondary electrical services from the street to a location in the Building, including transformer pads, and house meter section.
|
4) |
Core: |
All work related to construction of core bathrooms, stairs shafts, HVAC shafts, electrical and phone rooms, janitor closets, elevators and shafts. Work related to construction of main lobby and upper elevator lobbies are excluded.
SCHEDULE 1-A TO
EXHIBIT 2
-1-
|
|
Toilet accessories including soap dispensers, toilet paper dispensers, toilet seat dispensers, trash receptacles, paper towel dispensers, napkin dispensers, and handicap grab bars are included. Plastic laminate toilet partitions are included. Granite countertops with under mount sinks are included. All associated lighting, fire sprinklers, power receptacles, ventilation, venting, sewer piping, water piping and floor drains are included. All associated lighting and fire sprinklers are included. |
|
|
b) |
Stair shafts will be constructed with metal stud framing and drywall assembly with fire rating in compliance to construction type. Stairs to be 1’ wider than Code required. All interior walls facing the egress stairs will be taped, finished, and painted. Gypsum board ceiling will be constructed at the top level. No soffit on the underside of stairs. Stair rails and stringers will be painted. All associated lighting and fire sprinklers are included. |
|
|
c) |
Electrical and telephone rooms will receive sealed concrete with plywood backing on walls. Electrical scope will include power distribution including transformer, conduit risers and electrical panels. Conduit risers will be provided for phone service distribution. |
|
|
d) |
SVP transformer pad for each Building. Main switchboard to be per CEC, Silicon Valley Power and City of San Jose requirements. Meter main per Silicon Valley Power requirements, with utility metering section with CAT5E station cable to MPOE. Provide a vertical 480/277V 3PH bus riser complete with bus plugs capable of supply full floor power, lighting and miscellaneous loads at electrical room on each floor for future tenant distribution. |
|
|
e) |
Fully operational main electric service for the Building including main switchboard rated at 14 Watts per SF, 2500 AMP 480/277V 3PH, serving Tenant lighting, power and miscellaneous loads, as well as Expansion Space Base Building electrical and mechanical equipment loads. Space sized for Tenant panels and transformers are included. Includes bus duct for lighting and power for Core only. Includes conduits and wire feeders for Mechanical. Landlord to provide electrical panels for Tenant to use at electrical closet on each floor of the Expansion Space. |
SCHEDULE 1-A TO
EXHIBIT 2
-2-
|
|
concrete slab, provided that locations are identified by Tenant for Landlord in a timely manner and will not impact construction schedule. |
|
|
g) |
DDC controls for Expansion Space Base Building system (rooftop heating and cooling) with the availability of the addition of DDC controls should the future tenant require. Electrical monitoring is not included. |
General Office Areas:
Lighting load (including task lighting): Cooling system designed for 1.2 watts/RSF; Lighting designed to be restricted to .95 watts/RSF to conform to potential LEED goals
Non Core miscellaneous office equipment designed for cooling loads 3.0 watts/RSF (highly populated floor plates need more watts/SF)
Designated dry lab space: Increased loads are a tenant expense performed by Landlord
Occupancy: designed to accommodate 150 SF/person
|
|
h) |
Hot water boiler system, including hot water pump(s), water treatment and all necessary piping specialties, serving one riser extending from the roof to the lower floor. Supply and return valves to be located on each floor for future connection to hot water piping loop if required. Piping loops on each floor are not included. |
|
|
i) |
Auxiliary cooling is not included. |
|
|
j) |
Domestic cold water main branch piping to each floor near the stair for future break rooms. |
|
|
k) |
Fire alarm system: Building is fully sprinklered and monitored including the PIV as required by Code. Life safety system distribution (smoke detectors, annunciators, strobes, etc.) as required by Code for core and common areas. Each floor is designated as one smoke zone. Fire alarm to be expandable. |
|
|
l) |
Building telephone MPOE shall be separate from Main Electrical Room. Roof pad to allow for future 24hr cooling tenant requirement and stacked IDF closets shall be included per Code. Phone systems, switching equipment, connections etc., are not included. |
SCHEDULE 1-A TO
EXHIBIT 2
-3-
|
|
n) |
Emergency power; An inverter will be provided for the Building to power exterior egress lighting. All interior egress lights to be powered by self-contained emergency battery packs. |
|
|
o) |
Tenant generator provisions; Provisions will be made at exterior utility enclosure for a 500kW generator for the Building. Provisions to include underground conduits for power, control and parasitic connections. Balance of work to be NIC. |
|
|
p) |
All core walls will be constructed with metal stud framing and drywall assembly with fire rating in compliance to construction type. Wall facing Tenant space will be fire taped. |
SCHEDULE 1-A TO
EXHIBIT 2
-4-
FORM OF AMENDED AND RESTATED MEMORANDUM OF LEASE
EXHIBIT 3
-1-
WHEN RECORDED RETURN TO:
ROKU, Inc.
c/o Friedman & Associates, Inc.
1100 Glendon Avenue, Suite PH9
Los Angeles, CA 90024-3526
Attention: Jason Perscheid, Esq.
(space above this line for recorder’s use)
AMENDED AND RESTATED MEMORANDUM OF LEASE
(1155 Coleman Avenue, San Jose, California)
THIS AMENDED AND RESTATED MEMORANDUM OF LEASE (“Memorandum”) is entered into as of the _____ day of _____________, 2018, by and between CAP Phase 1, LLC, a Delaware limited liability company (“Landlord”), and Roku, Inc., a Delaware corporation (“Tenant”).
1.Defined Terms; Exhibits. All capitalized terms used in this Memorandum and not otherwise defined herein shall have the meanings ascribed to such terms in the Lease (as defined below). All Exhibits referenced herein are attached hereto, and are incorporated herein by this reference.
2.Premises; Building; Project. Landlord hereby leases to Tenant and Tenant hereby leases from Landlord, pursuant to the terms and conditions of that certain Office Lease dated as of August 1, 2018 (as amended, the “Lease”), those certain premises described in the Lease, consisting of a total of 194,549 rentable square feet of space (the “Premises”), as more fully described in the Lease. The Premises consists of the entire building located at 1155 Coleman Avenue, San Jose, California (the “Building”). The Building, as well as the building in the Project located at 1143 Coleman Avenue, a portion of which is subject to Tenant’s right of first offer discussed in Section 5 below, are located on the land legally described on Exhibit A to this Memorandum.
3.Lease Term. The term of the Lease (“Lease Term”) is for a period of approximately one hundred forty (140) calendar months, starting on the Lease Commencement Date and ending one hundred forty (140) calendar months thereafter, subject to adjustment as provided in the Lease. The Lease Commencement Date is expected to occur on or about January 23, 2019, subject to adjustment as provided in the Lease.
4.Extension Options. Pursuant to the Lease, Landlord grants to Tenant one (1) option to extend the Lease Term for a period of seven (7) years.
5.Right of First Offer. Pursuant to the Lease, Landlord grants to Tenant, during the first forty-eight (48) months of the Lease Term, an ongoing right of first offer to lease office space in that certain building in the Project located at 1143 Coleman Avenue.
EXHIBIT 3
-2-
6.Lease Incorporated. All the other terms, conditions and covenants of the Lease are incorporated herein by this reference. In the event of a conflict between the provisions of this Memorandum and the provisions of the Lease, the provisions of the Lease shall govern.
7.Counterparts. This Memorandum may be executed in counterparts, each of which shall be an original but all of which together shall constitute one and the same agreement. This Memorandum is solely for notice and recording purposes and shall not be construed to alter, modify, expand, diminish or supplement the provisions of the Lease.
8.Successors and Assigns. The terms, covenants and provisions of the Lease, the terms of which are hereby incorporated by reference into this Memorandum, shall extend to and be binding upon the respective executors, administrators, heirs, successors and assigns of Tenant and Landlord.
[SIGNATURES APPEAR ON FOLLOWING PAGE]
EXHIBIT 3
-3-
IN WITNESS WHEREOF, Landlord and Tenant have caused this Memorandum to be executed the day and date first above written.
“LANDLORD”
CAP Phase 1, LLC,
a Delaware limited liability company
|
By: |
Coleman Airport Partners, LLC, |
|
|
a California limited liability company |
|
Its: |
Sole Member |
|
|
By: |
HS Airport, LLC, |
|
|
|
a California limited liability company |
|
|
Its: |
Manager |
|
|
By: |
|
|
|
|
Name: |
Derek K. Hunter, Jr. |
|
|
|
Its: |
Member |
|
|
|
|
|
|
|
|
By: |
|
|
|
|
Name: |
Edward D. Storm |
|
|
|
Its: |
Member |
|
[signatures continue on following page]
EXHIBIT 3
-4-
|
“TENANT” |
|
|
|
Roku, Inc. |
|
a Delaware corporation |
|
By: |
|
|
Name: |
|
|
Its: |
|
|
|
|
|
|
|
|
By: |
|
|
Name: |
|
|
Its: |
|
EXHIBIT 3
-5-
A notary public or other officer completing this certificate verifies only the identity of the individual who signed the document to which this certificate is attached, and not the truthfulness, accuracy, or validity of that document.
|
State of |
) |
|
||||
|
County of |
) |
|
|
|
||
|
On |
|
, before me, |
, |
|||
|
|
|
|
(insert name of notary) |
|||
Notary Public, personally appeared , who proved to me on the basis of satisfactory evidence to be the person(s) whose name(s) is/are subscribed to the within instrument and acknowledged to me that he/she/they executed the same in his/her/their authorized capacity(ies), and that by his/her/their signature(s) on the instrument the person(s), or the entity upon behalf of which the person(s) acted, executed the instrument.
I certify under PENALTY OF PERJURY under the laws of the State of California that the foregoing paragraph is true and correct.
WITNESS my hand and official seal.
|
Signature |
|
(Seal) |
ACKNOWLEDGMENT
A notary public or other officer completing this certificate verifies only the identity of the individual who signed the document to which this certificate is attached, and not the truthfulness, accuracy, or validity of that document.
|
State of |
) |
|
|||
|
County of |
) |
|
|
|
|
|
On |
|
, before me, |
, |
||
|
|
|
|
(insert name of notary) |
||
Notary Public, personally appeared , who proved to me on the basis of satisfactory evidence to be the person(s) whose name(s) is/are subscribed to the within instrument and acknowledged to me that he/she/they executed the same in his/her/their authorized capacity(ies), and that by his/her/their signature(s) on the instrument the person(s), or the entity upon behalf of which the person(s) acted, executed the instrument.
I certify under PENALTY OF PERJURY under the laws of the State of California that the foregoing paragraph is true and correct.
WITNESS my hand and official seal.
|
Signature |
|
(Seal) |
EXHIBIT 3
-6-
LEGAL DESCRIPTION
All that certain real property in the City of San Jose, County of Santa Clara, State of California, described as follows:
PARCEL FIVE: (NEW LOT 5)
New Lot 5 as shown on Lot Line Adjustment Permit recorded February 08, 2018 as Document No. 23864278 of Official Records, being more particularly described as follows;
Being a portion of Lots 3, 5 and 6 as described in that certain “Grant Deed” recorded December 9, 2015 as Document No. 23166921, Official Records of Santa Clara County, and being more particularly described as follows:
Beginning at the northerly corner of said Lot 6;
Thence along the northeasterly line of said Lot 6, South 57°34’50” East, 117.95 feet to the True Point of Beginning;
Thence leaving said northeasterly line, and continuing the following eleven (11) courses and distances:
|
|
|
|
|
|
3. |
|
|
|
4. |
|
|
|
5. |
|
|
|
6. |
|
|
|
7. |
|
|
|
8. |
|
|
|
9. |
|
|
|
10. |
|
|
|
11. |
|
Thence along the northeasterly line of said Lots 5 and 6, North 57°34’50” West 400.56 feet to the True Point of Beginning.
Containing 2.681 ± acres.
As shown on Exhibit “B” attached hereto and by this reference made a part hereof.
EXHIBIT A TO
EXHIBIT 3
-1-
New Lot 6 as shown on Lot Line Adjustment Permit recorded February 08, 2018 as Document No. 23864278 of Official Records, being more particularly described as follows;
Being a portion of Lots 3, 5 and 6 as described in that certain “Grant Deed” recorded December 9, 2015 as Document No. 23166921, Official Records of Santa Clara County, and being more particularly described as follows:
Beginning at the northerly corner of said Lot 6;
Thence along the northeasterly line of said Lot 6, South 57°34’50” East, 117.95 feet;
Thence leaving said northeasterly line, and continuing the following nine (9) courses and distances:
|
|
|
|
|
|
|
|
|
|
|
|
|
|
4. |
|
|
|
5. |
|
|
|
6. |
|
|
|
7. |
|
|
|
|
|
|
|
|
|
Thence along the southwesterly line of said lots 3 and 6, North 57°34’50” West, 331.50 feet;
Thence along the northwesterly line of said lot 6, North 32°25’10” East, 513.86 feet to the Point of Beginning.
Containing 2.755 ± acres.
As shown on Exhibit “B” attached hereto and by this reference made a part hereof.
EXHIBIT 3
-2-

EXHIBIT 3
-3-
HIGHLINE EXTENSION MONTHLY RENT
|
Square Footage |
|
|
66,023 |
|
|
|
31,728 |
|
|
|
|
|
|
|
96,798 |
|
|
|
194,549 |
|
|
|
|
|
||
|
|
|
|
|
|
|
|
|
|
|
|
|
Amortized |
|
|
|
|
|
|
|
|
|
|
|
|
|
|
|
|
|
|
|
Floors 1-2 |
|
|
Floor 3 |
|
|
Improvements |
|
|
Floors 4-6 |
|
|
Total |
|
|
$ / SF |
|
||||||
|
Lease Year 1: |
|
|
|
|
|
|
|
|
|
|
|
|
|
|
|
|
|
|
|
|
|
|
|
|
|
|
|
2/1/2019 |
|
Comm Date |
|
Free |
|
|
$ |
- |
|
|
$ |
- |
|
|
$ |
- |
|
|
$ |
- |
|
|
|
|
|
|
|
3/1/2019 |
|
|
|
Free |
|
|
$ |
- |
|
|
$ |
- |
|
|
$ |
- |
|
|
$ |
- |
|
|
|
|
|
|
|
4/1/2019 |
|
|
|
Free |
|
|
$ |
- |
|
|
$ |
- |
|
|
$ |
- |
|
|
$ |
- |
|
|
|
|
|
|
|
5/1/2019 |
|
|
|
Free |
|
|
Free |
|
|
$ |
- |
|
|
$ |
- |
|
|
$ |
- |
|
|
|
|
|
||
|
6/1/2019 |
|
|
|
Free |
|
|
Free |
|
|
$ |
- |
|
|
$ |
- |
|
|
$ |
- |
|
|
|
|
|
||
|
7/1/2019 |
|
|
|
Free |
|
|
Free |
|
|
$ |
- |
|
|
$ |
- |
|
|
$ |
- |
|
|
|
|
|
||
|
8/1/2019 |
|
|
|
$ |
237,682.80 |
|
|
Free |
|
|
$ |
- |
|
|
$ |
- |
|
|
$ |
237,682.80 |
|
|
|
|
|
|
|
9/1/2019 |
|
|
|
$ |
237,682.80 |
|
|
Free |
|
|
$ |
19,315.14 |
|
|
Free |
|
|
$ |
256,997.94 |
|
|
|
|
|
||
|
10/1/2019 |
|
|
|
$ |
237,682.80 |
|
|
Free |
|
|
$ |
19,315.14 |
|
|
Free |
|
|
$ |
256,997.94 |
|
|
|
|
|
||
|
11/1/2019 |
|
|
|
$ |
237,682.80 |
|
|
$ |
114,220.80 |
|
|
$ |
19,315.14 |
|
|
Free |
|
|
$ |
371,218.74 |
|
|
|
|
|
|
|
12/1/2019 |
|
|
|
$ |
237,682.80 |
|
|
$ |
114,220.80 |
|
|
$ |
19,315.14 |
|
|
Free |
|
|
$ |
371,218.74 |
|
|
|
|
|
|
|
1/1/2020 |
|
|
|
$ |
237,682.80 |
|
|
$ |
114,220.80 |
|
|
$ |
19,315.14 |
|
|
Free |
|
|
$ |
371,218.74 |
|
|
$ |
3.60 |
|
|
|
|
|
|
|
|
|
|
|
|
|
|
|
|
|
|
|
|
|
|
|
|
|
|
|
|
|
|
|
Lease Year 2: |
|
|
|
|
|
|
|
|
|
|
|
|
|
|
|
|
|
|
|
|
|
|
|
|
|
|
|
2/1/2020 |
|
|
|
$ |
244,813.28 |
|
|
$ |
117,647.42 |
|
|
$ |
19,315.14 |
|
|
Free |
|
|
$ |
381,775.85 |
|
|
|
|
|
|
|
3/1/2020 |
|
|
|
$ |
244,813.28 |
|
|
$ |
117,647.42 |
|
|
$ |
19,315.14 |
|
|
$ |
358,926.98 |
|
|
$ |
740,702.84 |
|
|
|
|
|
|
4/1/2020 |
|
|
|
$ |
244,813.28 |
|
|
$ |
117,647.42 |
|
|
$ |
19,315.14 |
|
|
$ |
358,926.98 |
|
|
$ |
740,702.84 |
|
|
|
|
|
|
5/1/2020 |
|
|
|
$ |
244,813.28 |
|
|
$ |
117,647.42 |
|
|
$ |
19,315.14 |
|
|
$ |
358,926.98 |
|
|
$ |
740,702.84 |
|
|
|
|
|
|
6/1/2020 |
|
|
|
$ |
244,813.28 |
|
|
$ |
117,647.42 |
|
|
$ |
19,315.14 |
|
|
$ |
358,926.98 |
|
|
$ |
740,702.84 |
|
|
|
|
|
|
7/1/2020 |
|
|
|
$ |
244,813.28 |
|
|
$ |
117,647.42 |
|
|
$ |
19,315.14 |
|
|
$ |
358,926.98 |
|
|
$ |
740,702.84 |
|
|
|
|
|
|
8/1/2020 |
|
|
|
$ |
244,813.28 |
|
|
$ |
117,647.42 |
|
|
$ |
19,315.14 |
|
|
$ |
358,926.98 |
|
|
$ |
740,702.84 |
|
|
|
|
|
|
9/1/2020 |
|
|
|
$ |
244,813.28 |
|
|
$ |
117,647.42 |
|
|
$ |
19,315.14 |
|
|
$ |
358,926.98 |
|
|
$ |
740,702.84 |
|
|
|
|
|
|
10/1/2020 |
|
|
|
$ |
244,813.28 |
|
|
$ |
117,647.42 |
|
|
$ |
19,315.14 |
|
|
$ |
358,926.98 |
|
|
$ |
740,702.84 |
|
|
|
|
|
|
11/1/2020 |
|
|
|
$ |
244,813.28 |
|
|
$ |
117,647.42 |
|
|
$ |
19,315.14 |
|
|
$ |
358,926.98 |
|
|
$ |
740,702.84 |
|
|
|
|
|
|
12/1/2020 |
|
|
|
$ |
244,813.28 |
|
|
$ |
117,647.42 |
|
|
$ |
19,315.14 |
|
|
$ |
358,926.98 |
|
|
$ |
740,702.84 |
|
|
|
|
|
|
1/1/2021 |
|
|
|
$ |
244,813.28 |
|
|
$ |
117,647.42 |
|
|
$ |
19,315.14 |
|
|
$ |
358,926.98 |
|
|
$ |
740,702.84 |
|
|
$ |
3.71 |
|
|
|
|
|
|
|
|
|
|
|
|
|
|
|
|
|
|
|
|
|
|
|
|
|
|
|
|
|
|
Lease Year 3: |
|
|
|
|
|
|
|
|
|
|
|
|
|
|
|
|
|
|
|
|
|
|
|
|
|
|
|
2/1/2021 |
|
|
|
$ |
252,157.68 |
|
|
$ |
121,176.85 |
|
|
$ |
19,315.14 |
|
|
$ |
369,694.79 |
|
|
$ |
762,344.47 |
|
|
|
|
|
|
3/1/2021 |
|
|
|
$ |
252,157.68 |
|
|
$ |
121,176.85 |
|
|
$ |
19,315.14 |
|
|
$ |
369,694.79 |
|
|
$ |
762,344.47 |
|
|
|
|
|
|
4/1/2021 |
|
|
|
$ |
252,157.68 |
|
|
$ |
121,176.85 |
|
|
$ |
19,315.14 |
|
|
$ |
369,694.79 |
|
|
$ |
762,344.47 |
|
|
|
|
|
|
5/1/2021 |
|
|
|
$ |
252,157.68 |
|
|
$ |
121,176.85 |
|
|
$ |
19,315.14 |
|
|
$ |
369,694.79 |
|
|
$ |
762,344.47 |
|
|
|
|
|
|
6/1/2021 |
|
|
|
$ |
252,157.68 |
|
|
$ |
121,176.85 |
|
|
$ |
19,315.14 |
|
|
$ |
369,694.79 |
|
|
$ |
762,344.47 |
|
|
|
|
|
|
7/1/2021 |
|
|
|
$ |
252,157.68 |
|
|
$ |
121,176.85 |
|
|
$ |
19,315.14 |
|
|
$ |
369,694.79 |
|
|
$ |
762,344.47 |
|
|
|
|
|
|
8/1/2021 |
|
|
|
$ |
252,157.68 |
|
|
$ |
121,176.85 |
|
|
$ |
19,315.14 |
|
|
$ |
369,694.79 |
|
|
$ |
762,344.47 |
|
|
|
|
|
|
9/1/2021 |
|
|
|
$ |
252,157.68 |
|
|
$ |
121,176.85 |
|
|
$ |
19,315.14 |
|
|
$ |
369,694.79 |
|
|
$ |
762,344.47 |
|
|
|
|
|
|
10/1/2021 |
|
|
|
$ |
252,157.68 |
|
|
$ |
121,176.85 |
|
|
$ |
19,315.14 |
|
|
$ |
369,694.79 |
|
|
$ |
762,344.47 |
|
|
|
|
|
|
11/1/2021 |
|
|
|
$ |
252,157.68 |
|
|
$ |
121,176.85 |
|
|
$ |
19,315.14 |
|
|
$ |
369,694.79 |
|
|
$ |
762,344.47 |
|
|
|
|
|
|
12/1/2021 |
|
|
|
$ |
252,157.68 |
|
|
$ |
121,176.85 |
|
|
$ |
19,315.14 |
|
|
$ |
369,694.79 |
|
|
$ |
762,344.47 |
|
|
|
|
|
|
1/1/2022 |
|
|
|
$ |
252,157.68 |
|
|
$ |
121,176.85 |
|
|
$ |
19,315.14 |
|
|
$ |
369,694.79 |
|
|
$ |
762,344.47 |
|
|
$ |
3.82 |
|
|
|
|
|
|
|
|
|
|
|
|
|
|
|
|
|
|
|
|
|
|
|
|
|
|
|
|
|
|
Lease Year 4: |
|
|
|
|
|
|
|
|
|
|
|
|
|
|
|
|
|
|
|
|
|
|
|
|
|
|
|
2/1/2022 |
|
|
|
$ |
259,722.41 |
|
|
$ |
124,812.15 |
|
|
$ |
19,315.14 |
|
|
$ |
380,785.64 |
|
|
$ |
784,635.35 |
|
|
|
|
|
|
3/1/2022 |
|
|
|
$ |
259,722.41 |
|
|
$ |
124,812.15 |
|
|
$ |
19,315.14 |
|
|
$ |
380,785.64 |
|
|
$ |
784,635.35 |
|
|
|
|
|
|
4/1/2022 |
|
|
|
$ |
259,722.41 |
|
|
$ |
124,812.15 |
|
|
$ |
19,315.14 |
|
|
$ |
380,785.64 |
|
|
$ |
784,635.35 |
|
|
|
|
|
|
5/1/2022 |
|
|
|
$ |
259,722.41 |
|
|
$ |
124,812.15 |
|
|
$ |
19,315.14 |
|
|
$ |
380,785.64 |
|
|
$ |
784,635.35 |
|
|
|
|
|
|
6/1/2022 |
|
|
|
$ |
259,722.41 |
|
|
$ |
124,812.15 |
|
|
$ |
19,315.14 |
|
|
$ |
380,785.64 |
|
|
$ |
784,635.35 |
|
|
|
|
|
|
7/1/2022 |
|
|
|
$ |
259,722.41 |
|
|
$ |
124,812.15 |
|
|
$ |
19,315.14 |
|
|
$ |
380,785.64 |
|
|
$ |
784,635.35 |
|
|
|
|
|
|
8/1/2022 |
|
|
|
$ |
259,722.41 |
|
|
$ |
124,812.15 |
|
|
$ |
19,315.14 |
|
|
$ |
380,785.64 |
|
|
$ |
784,635.35 |
|
|
|
|
|
|
9/1/2022 |
|
|
|
$ |
259,722.41 |
|
|
$ |
124,812.15 |
|
|
$ |
19,315.14 |
|
|
$ |
380,785.64 |
|
|
$ |
784,635.35 |
|
|
|
|
|
|
10/1/2022 |
|
|
|
$ |
259,722.41 |
|
|
$ |
124,812.15 |
|
|
$ |
19,315.14 |
|
|
$ |
380,785.64 |
|
|
$ |
784,635.35 |
|
|
|
|
|
|
11/1/2022 |
|
|
|
$ |
259,722.41 |
|
|
$ |
124,812.15 |
|
|
$ |
19,315.14 |
|
|
$ |
380,785.64 |
|
|
$ |
784,635.35 |
|
|
|
|
|
|
12/1/2022 |
|
|
|
$ |
259,722.41 |
|
|
$ |
124,812.15 |
|
|
$ |
19,315.14 |
|
|
$ |
380,785.64 |
|
|
$ |
784,635.35 |
|
|
|
|
|
|
1/1/2023 |
|
|
|
$ |
259,722.41 |
|
|
$ |
124,812.15 |
|
|
$ |
19,315.14 |
|
|
$ |
380,785.64 |
|
|
$ |
784,635.35 |
|
|
$ |
3.93 |
|
EXHIBIT 4
-1-
|
|
|
|
|
|
|
|
|
|
|
|
|
|
|
|
|
|
|
|
|
|
|
|
|
|
|
|
|
Lease Year 5: |
|
|
|
|
|
|
|
|
|
|
|
|
|
|
|
|
|
|
|
|
|
|
|
|
|
|
|
2/1/2023 |
|
|
|
$ |
267,514.09 |
|
|
$ |
128,556.52 |
|
|
$ |
19,315.14 |
|
|
$ |
392,209.21 |
|
|
$ |
807,594.95 |
|
|
|
|
|
|
3/1/2023 |
|
|
|
$ |
267,514.09 |
|
|
$ |
128,556.52 |
|
|
$ |
19,315.14 |
|
|
$ |
392,209.21 |
|
|
$ |
807,594.95 |
|
|
|
|
|
|
4/1/2023 |
|
|
|
$ |
267,514.09 |
|
|
$ |
128,556.52 |
|
|
$ |
19,315.14 |
|
|
$ |
392,209.21 |
|
|
$ |
807,594.95 |
|
|
|
|
|
|
5/1/2023 |
|
|
|
$ |
267,514.09 |
|
|
$ |
128,556.52 |
|
|
$ |
19,315.14 |
|
|
$ |
392,209.21 |
|
|
$ |
807,594.95 |
|
|
|
|
|
|
6/1/2023 |
|
|
|
$ |
267,514.09 |
|
|
$ |
128,556.52 |
|
|
$ |
19,315.14 |
|
|
$ |
392,209.21 |
|
|
$ |
807,594.95 |
|
|
|
|
|
|
7/1/2023 |
|
|
|
$ |
267,514.09 |
|
|
$ |
128,556.52 |
|
|
$ |
19,315.14 |
|
|
$ |
392,209.21 |
|
|
$ |
807,594.95 |
|
|
|
|
|
|
8/1/2023 |
|
|
|
$ |
267,514.09 |
|
|
$ |
128,556.52 |
|
|
$ |
19,315.14 |
|
|
$ |
392,209.21 |
|
|
$ |
807,594.95 |
|
|
|
|
|
|
9/1/2023 |
|
|
|
$ |
267,514.09 |
|
|
$ |
128,556.52 |
|
|
$ |
19,315.14 |
|
|
$ |
392,209.21 |
|
|
$ |
807,594.95 |
|
|
|
|
|
|
10/1/2023 |
|
|
|
$ |
267,514.09 |
|
|
$ |
128,556.52 |
|
|
$ |
19,315.14 |
|
|
$ |
392,209.21 |
|
|
$ |
807,594.95 |
|
|
|
|
|
|
11/1/2023 |
|
|
|
$ |
267,514.09 |
|
|
$ |
128,556.52 |
|
|
$ |
19,315.14 |
|
|
$ |
392,209.21 |
|
|
$ |
807,594.95 |
|
|
|
|
|
|
12/1/2023 |
|
|
|
$ |
267,514.09 |
|
|
$ |
128,556.52 |
|
|
$ |
19,315.14 |
|
|
$ |
392,209.21 |
|
|
$ |
807,594.95 |
|
|
|
|
|
|
1/1/2024 |
|
|
|
$ |
267,514.09 |
|
|
$ |
128,556.52 |
|
|
$ |
19,315.14 |
|
|
$ |
392,209.21 |
|
|
$ |
807,594.95 |
|
|
$ |
4.05 |
|
|
|
|
|
|
|
|
|
|
|
|
|
|
|
|
|
|
|
|
|
|
|
|
|
|
|
|
|
|
Lease Year 6: |
|
|
|
|
|
|
|
|
|
|
|
|
|
|
|
|
|
|
|
|
|
|
|
|
|
|
|
2/1/2024 |
|
|
|
$ |
275,539.51 |
|
|
$ |
132,413.21 |
|
|
$ |
19,315.14 |
|
|
$ |
403,975.48 |
|
|
$ |
831,243.35 |
|
|
|
|
|
|
3/1/2024 |
|
|
|
$ |
275,539.51 |
|
|
$ |
132,413.21 |
|
|
$ |
19,315.14 |
|
|
$ |
403,975.48 |
|
|
$ |
831,243.35 |
|
|
|
|
|
|
4/1/2024 |
|
|
|
$ |
275,539.51 |
|
|
$ |
132,413.21 |
|
|
$ |
19,315.14 |
|
|
$ |
403,975.48 |
|
|
$ |
831,243.35 |
|
|
|
|
|
|
5/1/2024 |
|
|
|
$ |
275,539.51 |
|
|
$ |
132,413.21 |
|
|
$ |
19,315.14 |
|
|
$ |
403,975.48 |
|
|
$ |
831,243.35 |
|
|
|
|
|
|
6/1/2024 |
|
|
|
$ |
275,539.51 |
|
|
$ |
132,413.21 |
|
|
$ |
19,315.14 |
|
|
$ |
403,975.48 |
|
|
$ |
831,243.35 |
|
|
|
|
|
|
7/1/2024 |
|
|
|
$ |
275,539.51 |
|
|
$ |
132,413.21 |
|
|
$ |
19,315.14 |
|
|
$ |
403,975.48 |
|
|
$ |
831,243.35 |
|
|
|
|
|
|
8/1/2024 |
|
|
|
$ |
275,539.51 |
|
|
$ |
132,413.21 |
|
|
$ |
19,315.14 |
|
|
$ |
403,975.48 |
|
|
$ |
831,243.35 |
|
|
|
|
|
|
9/1/2024 |
|
|
|
$ |
275,539.51 |
|
|
$ |
132,413.21 |
|
|
$ |
19,315.14 |
|
|
$ |
403,975.48 |
|
|
$ |
831,243.35 |
|
|
|
|
|
|
10/1/2024 |
|
|
|
$ |
275,539.51 |
|
|
$ |
132,413.21 |
|
|
$ |
19,315.14 |
|
|
$ |
403,975.48 |
|
|
$ |
831,243.35 |
|
|
|
|
|
|
11/1/2024 |
|
|
|
$ |
275,539.51 |
|
|
$ |
132,413.21 |
|
|
$ |
19,315.14 |
|
|
$ |
403,975.48 |
|
|
$ |
831,243.35 |
|
|
|
|
|
|
12/1/2024 |
|
|
|
$ |
275,539.51 |
|
|
$ |
132,413.21 |
|
|
$ |
19,315.14 |
|
|
$ |
403,975.48 |
|
|
$ |
831,243.35 |
|
|
|
|
|
|
1/1/2025 |
|
|
|
$ |
275,539.51 |
|
|
$ |
132,413.21 |
|
|
$ |
19,315.14 |
|
|
$ |
403,975.48 |
|
|
$ |
831,243.35 |
|
|
$ |
4.17 |
|
|
|
|
|
|
|
|
|
|
|
|
|
|
|
|
|
|
|
|
|
|
|
|
|
|
|
|
|
|
Lease Year 7: |
|
|
|
|
|
|
|
|
|
|
|
|
|
|
|
|
|
|
|
|
|
|
|
|
|
|
|
2/1/2025 |
|
|
|
$ |
283,805.69 |
|
|
$ |
136,385.61 |
|
|
$ |
19,315.14 |
|
|
$ |
416,094.75 |
|
|
$ |
855,601.19 |
|
|
|
|
|
|
3/1/2025 |
|
|
|
$ |
283,805.69 |
|
|
$ |
136,385.61 |
|
|
$ |
19,315.14 |
|
|
$ |
416,094.75 |
|
|
$ |
855,601.19 |
|
|
|
|
|
|
4/1/2025 |
|
|
|
$ |
283,805.69 |
|
|
$ |
136,385.61 |
|
|
$ |
19,315.14 |
|
|
$ |
416,094.75 |
|
|
$ |
855,601.19 |
|
|
|
|
|
|
5/1/2025 |
|
|
|
$ |
283,805.69 |
|
|
$ |
136,385.61 |
|
|
$ |
19,315.14 |
|
|
$ |
416,094.75 |
|
|
$ |
855,601.19 |
|
|
|
|
|
|
6/1/2025 |
|
|
|
$ |
283,805.69 |
|
|
$ |
136,385.61 |
|
|
$ |
19,315.14 |
|
|
$ |
416,094.75 |
|
|
$ |
855,601.19 |
|
|
|
|
|
|
7/1/2025 |
|
|
|
$ |
283,805.69 |
|
|
$ |
136,385.61 |
|
|
$ |
19,315.14 |
|
|
$ |
416,094.75 |
|
|
$ |
855,601.19 |
|
|
|
|
|
|
8/1/2025 |
|
|
|
$ |
283,805.69 |
|
|
$ |
136,385.61 |
|
|
$ |
19,315.14 |
|
|
$ |
416,094.75 |
|
|
$ |
855,601.19 |
|
|
|
|
|
|
9/1/2025 |
|
|
|
$ |
283,805.69 |
|
|
$ |
136,385.61 |
|
|
$ |
19,315.14 |
|
|
$ |
416,094.75 |
|
|
$ |
855,601.19 |
|
|
|
|
|
|
10/1/2025 |
|
|
|
$ |
283,805.69 |
|
|
$ |
136,385.61 |
|
|
$ |
19,315.14 |
|
|
$ |
416,094.75 |
|
|
$ |
855,601.19 |
|
|
|
|
|
|
11/1/2025 |
|
|
|
$ |
283,805.69 |
|
|
$ |
136,385.61 |
|
|
$ |
19,315.14 |
|
|
$ |
416,094.75 |
|
|
$ |
855,601.19 |
|
|
|
|
|
|
12/1/2025 |
|
|
|
$ |
283,805.69 |
|
|
$ |
136,385.61 |
|
|
$ |
19,315.14 |
|
|
$ |
416,094.75 |
|
|
$ |
855,601.19 |
|
|
|
|
|
|
1/1/2026 |
|
|
|
$ |
283,805.69 |
|
|
$ |
136,385.61 |
|
|
$ |
19,315.14 |
|
|
$ |
416,094.75 |
|
|
$ |
855,601.19 |
|
|
$ |
4.30 |
|
|
|
|
|
|
|
|
|
|
|
|
|
|
|
|
|
|
|
|
|
|
|
|
|
|
|
|
|
|
Lease Year 8: |
|
|
|
|
|
|
|
|
|
|
|
|
|
|
|
|
|
|
|
|
|
|
|
|
|
|
|
2/1/2026 |
|
|
|
$ |
292,319.86 |
|
|
$ |
140,477.18 |
|
|
$ |
19,315.14 |
|
|
$ |
428,577.59 |
|
|
$ |
880,689.77 |
|
|
|
|
|
|
3/1/2026 |
|
|
|
$ |
292,319.86 |
|
|
$ |
140,477.18 |
|
|
$ |
19,315.14 |
|
|
$ |
428,577.59 |
|
|
$ |
880,689.77 |
|
|
|
|
|
|
4/1/2026 |
|
|
|
$ |
292,319.86 |
|
|
$ |
140,477.18 |
|
|
$ |
19,315.14 |
|
|
$ |
428,577.59 |
|
|
$ |
880,689.77 |
|
|
|
|
|
|
5/1/2026 |
|
|
|
$ |
292,319.86 |
|
|
$ |
140,477.18 |
|
|
$ |
19,315.14 |
|
|
$ |
428,577.59 |
|
|
$ |
880,689.77 |
|
|
|
|
|
|
6/1/2026 |
|
|
|
$ |
292,319.86 |
|
|
$ |
140,477.18 |
|
|
$ |
19,315.14 |
|
|
$ |
428,577.59 |
|
|
$ |
880,689.77 |
|
|
|
|
|
|
7/1/2026 |
|
|
|
$ |
292,319.86 |
|
|
$ |
140,477.18 |
|
|
$ |
19,315.14 |
|
|
$ |
428,577.59 |
|
|
$ |
880,689.77 |
|
|
|
|
|
|
8/1/2026 |
|
|
|
$ |
292,319.86 |
|
|
$ |
140,477.18 |
|
|
$ |
19,315.14 |
|
|
$ |
428,577.59 |
|
|
$ |
880,689.77 |
|
|
|
|
|
|
9/1/2026 |
|
|
|
$ |
292,319.86 |
|
|
$ |
140,477.18 |
|
|
$ |
19,315.14 |
|
|
$ |
428,577.59 |
|
|
$ |
880,689.77 |
|
|
|
|
|
|
10/1/2026 |
|
|
|
$ |
292,319.86 |
|
|
$ |
140,477.18 |
|
|
$ |
19,315.14 |
|
|
$ |
428,577.59 |
|
|
$ |
880,689.77 |
|
|
|
|
|
|
11/1/2026 |
|
|
|
$ |
292,319.86 |
|
|
$ |
140,477.18 |
|
|
$ |
19,315.14 |
|
|
$ |
428,577.59 |
|
|
$ |
880,689.77 |
|
|
|
|
|
|
12/1/2026 |
|
|
|
$ |
292,319.86 |
|
|
$ |
140,477.18 |
|
|
$ |
19,315.14 |
|
|
$ |
428,577.59 |
|
|
$ |
880,689.77 |
|
|
|
|
|
|
1/1/2027 |
|
|
|
$ |
292,319.86 |
|
|
$ |
140,477.18 |
|
|
$ |
19,315.14 |
|
|
$ |
428,577.59 |
|
|
$ |
880,689.77 |
|
|
$ |
4.43 |
|
EXHIBIT 3
-2-
|
|
|
|
|
|
|
|
|
|
|
|
|
|
|
|
|
|
|
|
|
|
|
|
|
|
|
|
|
Lease Year 9: |
|
|
|
|
|
|
|
|
|
|
|
|
|
|
|
|
|
|
|
|
|
|
|
|
|
|
|
2/1/2027 |
|
|
|
$ |
301,089.46 |
|
|
$ |
144,691.49 |
|
|
$ |
19,315.14 |
|
|
$ |
441,434.92 |
|
|
$ |
906,531.01 |
|
|
|
|
|
|
3/1/2027 |
|
|
|
$ |
301,089.46 |
|
|
$ |
144,691.49 |
|
|
$ |
19,315.14 |
|
|
$ |
441,434.92 |
|
|
$ |
906,531.01 |
|
|
|
|
|
|
4/1/2027 |
|
|
|
$ |
301,089.46 |
|
|
$ |
144,691.49 |
|
|
$ |
19,315.14 |
|
|
$ |
441,434.92 |
|
|
$ |
906,531.01 |
|
|
|
|
|
|
5/1/2027 |
|
|
|
$ |
301,089.46 |
|
|
$ |
144,691.49 |
|
|
$ |
19,315.14 |
|
|
$ |
441,434.92 |
|
|
$ |
906,531.01 |
|
|
|
|
|
|
6/1/2027 |
|
|
|
$ |
301,089.46 |
|
|
$ |
144,691.49 |
|
|
$ |
19,315.14 |
|
|
$ |
441,434.92 |
|
|
$ |
906,531.01 |
|
|
|
|
|
|
7/1/2027 |
|
|
|
$ |
301,089.46 |
|
|
$ |
144,691.49 |
|
|
$ |
19,315.14 |
|
|
$ |
441,434.92 |
|
|
$ |
906,531.01 |
|
|
|
|
|
|
8/1/2027 |
|
|
|
$ |
301,089.46 |
|
|
$ |
144,691.49 |
|
|
$ |
19,315.14 |
|
|
$ |
441,434.92 |
|
|
$ |
906,531.01 |
|
|
|
|
|
|
9/1/2027 |
|
|
|
$ |
301,089.46 |
|
|
$ |
144,691.49 |
|
|
$ |
19,315.14 |
|
|
$ |
441,434.92 |
|
|
$ |
906,531.01 |
|
|
|
|
|
|
10/1/2027 |
|
|
|
$ |
301,089.46 |
|
|
$ |
144,691.49 |
|
|
$ |
19,315.14 |
|
|
$ |
441,434.92 |
|
|
$ |
906,531.10 |
|
|
|
|
|
|
11/1/2027 |
|
|
|
$ |
301,089.46 |
|
|
$ |
144,691.49 |
|
|
$ |
19,315.14 |
|
|
$ |
441,434.92 |
|
|
$ |
906,531.01 |
|
|
|
|
|
|
12/1/2027 |
|
|
|
$ |
301,089.46 |
|
|
$ |
144,691.49 |
|
|
$ |
19,315.14 |
|
|
$ |
441,434.92 |
|
|
$ |
906,531.01 |
|
|
|
|
|
|
1/1/2028 |
|
|
|
$ |
301,089.46 |
|
|
$ |
144,691.49 |
|
|
$ |
19,315.14 |
|
|
$ |
441,434.92 |
|
|
$ |
906,531.01 |
|
|
$ |
4.56 |
|
|
Lease Year 10: |
|
|
|
|
|
|
|
|
|
|
|
|
|
|
|
|
|
|
|
|
|
|
|
|
|
|
|
2/1/2028 |
|
|
|
$ |
310,122.14 |
|
|
$ |
149,032.24 |
|
|
$ |
19,315.14 |
|
|
$ |
454,677.96 |
|
|
$ |
933,147.49 |
|
|
|
|
|
|
3/1/2028 |
|
|
|
$ |
310,122.14 |
|
|
$ |
149,032.24 |
|
|
$ |
19,315.14 |
|
|
$ |
454,677.96 |
|
|
$ |
933,147.49 |
|
|
|
|
|
|
4/1/2028 |
|
|
|
$ |
310,122.14 |
|
|
$ |
149,032.24 |
|
|
$ |
19,315.14 |
|
|
$ |
454,677.96 |
|
|
$ |
933,147.49 |
|
|
|
|
|
|
5/1/2028 |
|
|
|
$ |
310,122.14 |
|
|
$ |
149,032.24 |
|
|
$ |
19,315.14 |
|
|
$ |
454,677.96 |
|
|
$ |
933,147.49 |
|
|
|
|
|
|
6/1/2028 |
|
|
|
$ |
310,122.14 |
|
|
$ |
149,032.24 |
|
|
$ |
19,315.14 |
|
|
$ |
454,677.96 |
|
|
$ |
933,147.49 |
|
|
|
|
|
|
7/1/2028 |
|
|
|
$ |
310,122.14 |
|
|
$ |
149,032.24 |
|
|
$ |
19,315.14 |
|
|
$ |
454,677.96 |
|
|
$ |
933,147.49 |
|
|
|
|
|
|
8/1/2028 |
|
|
|
$ |
310,122.14 |
|
|
$ |
149,032.24 |
|
|
$ |
19,315.14 |
|
|
$ |
454,677.96 |
|
|
$ |
933,147.49 |
|
|
|
|
|
|
9/1/2028 |
|
|
|
$ |
310,122.14 |
|
|
$ |
149,032.24 |
|
|
$ |
19,315.14 |
|
|
$ |
454,677.96 |
|
|
$ |
933,147.49 |
|
|
|
|
|
|
10/1/2028 |
|
|
|
$ |
310,122.14 |
|
|
$ |
149,032.24 |
|
|
$ |
19,315.14 |
|
|
$ |
454,677.96 |
|
|
$ |
933,147.49 |
|
|
|
|
|
|
11/1/2028 |
|
|
|
$ |
310,122.14 |
|
|
$ |
149,032.24 |
|
|
$ |
19,315.14 |
|
|
$ |
454,677.96 |
|
|
$ |
933,147.49 |
|
|
|
|
|
|
12/1/2028 |
|
|
|
$ |
310,122.14 |
|
|
$ |
149,032.24 |
|
|
$ |
19,315.14 |
|
|
$ |
454,677.96 |
|
|
$ |
933,147.49 |
|
|
|
|
|
|
1/1/2029 |
|
|
|
$ |
310,122.14 |
|
|
$ |
149,032.24 |
|
|
$ |
19,315.14 |
|
|
$ |
454,677.96 |
|
|
$ |
933,147.49 |
|
|
$ |
4.70 |
|
|
|
|
|
|
|
|
|
|
|
|
|
|
|
|
|
|
|
|
|
|
|
|
|
|
|
|
|
|
Lease Year 11: |
|
|
|
|
|
|
|
|
|
|
|
|
|
|
|
|
|
|
|
|
|
|
|
|
|
|
|
2/1/2029 |
|
|
|
$ |
319,425.81 |
|
|
$ |
153,503.20 |
|
|
$ |
19,315.14 |
|
|
$ |
468,318.30 |
|
|
$ |
960,562.46 |
|
|
|
|
|
|
3/1/2029 |
|
|
|
$ |
319,425.81 |
|
|
$ |
153,503.20 |
|
|
$ |
19,315.14 |
|
|
$ |
468,318.30 |
|
|
$ |
960,562.46 |
|
|
|
|
|
|
4/1/2029 |
|
|
|
$ |
319,425.81 |
|
|
$ |
153,503.20 |
|
|
$ |
19,315.14 |
|
|
$ |
468,318.30 |
|
|
$ |
960,562.46 |
|
|
|
|
|
|
5/1/2029 |
|
|
|
$ |
319,425.81 |
|
|
$ |
153,503.20 |
|
|
$ |
19,315.14 |
|
|
$ |
468,318.30 |
|
|
$ |
960,562.46 |
|
|
|
|
|
|
6/1/2029 |
|
|
|
$ |
319,425.81 |
|
|
$ |
153,503.20 |
|
|
$ |
19,315.14 |
|
|
$ |
468,318.30 |
|
|
$ |
960,562.46 |
|
|
|
|
|
|
7/1/2029 |
|
|
|
$ |
319,425.81 |
|
|
$ |
153,503.20 |
|
|
$ |
19,315.14 |
|
|
$ |
468,318.30 |
|
|
$ |
960,562.46 |
|
|
|
|
|
|
8/1/2029 |
|
|
|
$ |
319,425.81 |
|
|
$ |
153,503.20 |
|
|
$ |
19,315.14 |
|
|
$ |
468,318.30 |
|
|
$ |
960,562.46 |
|
|
|
|
|
|
9/1/2029 |
|
|
|
$ |
319,425.81 |
|
|
$ |
153,503.20 |
|
|
$ |
19,315.14 |
|
|
$ |
468,318.30 |
|
|
$ |
960,562.46 |
|
|
|
|
|
|
10/1/2029 |
|
|
|
$ |
319,425.81 |
|
|
$ |
153,503.20 |
|
|
$ |
19,315.14 |
|
|
$ |
468,318.30 |
|
|
$ |
960,562.46 |
|
|
|
|
|
|
11/1/2029 |
|
|
|
$ |
319,425.81 |
|
|
$ |
153,503.20 |
|
|
$ |
19,315.14 |
|
|
$ |
468,318.30 |
|
|
$ |
960,562.46 |
|
|
|
|
|
|
12/1/2029 |
|
|
|
$ |
319,425.81 |
|
|
$ |
153,503.20 |
|
|
$ |
19,315.14 |
|
|
$ |
468,318.30 |
|
|
$ |
960,562.46 |
|
|
|
|
|
|
1/1/2030 |
|
|
|
$ |
319,425.81 |
|
|
$ |
153,503.20 |
|
|
$ |
19,315.14 |
|
|
$ |
468,318.30 |
|
|
$ |
960,562.46 |
|
|
$ |
4.84 |
|
|
|
|
|
|
|
|
|
|
|
|
|
|
|
|
|
|
|
|
|
|
|
|
|
|
|
|
|
|
Lease Year 12: |
|
|
|
|
|
|
|
|
|
|
|
|
|
|
|
|
|
|
|
|
|
|
|
|
|
|
|
2/1/2030 |
|
|
|
$ |
329,008.58 |
|
|
$ |
158,108.30 |
|
|
$ |
19,315.14 |
|
|
$ |
482,367.85 |
|
|
$ |
988,799.88 |
|
|
|
|
|
|
3/1/2030 |
|
|
|
$ |
329,008.58 |
|
|
$ |
158,108.30 |
|
|
$ |
19,315.14 |
|
|
$ |
482,367.85 |
|
|
$ |
988,799.88 |
|
|
|
|
|
|
4/1/2030 |
|
|
|
$ |
329,008.58 |
|
|
$ |
158,108.30 |
|
|
$ |
19,315.14 |
|
|
$ |
482,367.85 |
|
|
$ |
988,799.88 |
|
|
|
|
|
|
5/1/2030 |
|
|
|
$ |
329,008.58 |
|
|
$ |
158,108.30 |
|
|
$ |
19,315.14 |
|
|
$ |
482,367.85 |
|
|
$ |
988,799.88 |
|
|
|
|
|
|
6/1/2030 |
|
|
|
$ |
329,008.58 |
|
|
$ |
158,108.30 |
|
|
$ |
19,315.14 |
|
|
$ |
482,367.85 |
|
|
$ |
988,799.88 |
|
|
|
|
|
|
7/1/2030 |
|
|
|
$ |
329,008.58 |
|
|
$ |
158,108.30 |
|
|
$ |
19,315.14 |
|
|
$ |
482,367.85 |
|
|
$ |
988,799.88 |
|
|
|
|
|
|
8/1/2030 |
|
|
|
$ |
329,008.58 |
|
|
$ |
158,108.30 |
|
|
$ |
19,315.14 |
|
|
$ |
482,367.85 |
|
|
$ |
988,799.88 |
|
|
|
|
|
|
9/1/2030 |
|
Expiration Date |
|
$ |
329,008.58 |
|
|
$ |
158,108.30 |
|
|
$ |
19,315.14 |
|
|
$ |
482,367.85 |
|
|
$ |
988,799.88 |
|
|
$ |
4.98 |
|
EXHIBIT 3
-3-
LOCATIONS OF TENANT’S SIGNAGE
EXHIBIT I
-1-
EXHIBIT I
-2-



