Lease Agreement

Exhibit 10.12

 

 

 

LEASE AGREEMENT

between

Jay Ridge LLC

(“Landlord”)

and

ServiceNow, Inc.

(“Tenant”)

 

 

3250, 3260, and 3270, Jay Street

Santa Clara, California


Table of Contents

 

         Page  

1.

  Premises      1   

2.

  Warm Shell Work      1   

3.

  Delivery and Acceptance of Possession      4   

4.

  Tenant Improvement Work      5   

5.

  Allowance      6   

6.

  Term      7   

7.

  Rent      9   

8.

  Prepaid Rent      15   

9.

  Security Deposit      15   

10.

  Utilities      16   

11.

  Permitted Use, Restrictions on Use      16   

12.

  Outdoor Areas      17   

13.

  Compliance with Laws and Recorded Matters      17   

14.

  Signs      18   

15.

  Parking      18   

16.

  Tenant’s Maintenance and Repair Responsibilities      18   

17.

  Landlord’s Maintenance and Repair Responsibilities      19   

18.

  Tenant’s Alterations      19   

19.

  Liens      20   

20.

  Insurance and Indemnification      21   

21.

  Landlord’s Right to Enter      22   

22.

  Damage or Destruction      23   

23.

  Condemnation      23   

24.

  Assignment, Subletting, and Change in Control      24   

25.

  Events of Default      25   

26.

  Remedies      26   

27.

  Hazardous Materials      31   

28.

  Subordination; Attornment; Notice to Mortgagee      31   

29.

  Estoppel Certificates      33   

30.

  Surrender      33   

31.

  Holding Over      34   

32.

  Notices      35   

33.

  Satellite      36   

34.

  Additional Provisions      36   

EXHIBIT A-1 Site Plan Depicting Premises and Project

     42   

EXHIBIT A-2 Trees Tenant Desires to have Removed

     43   

EXHIBIT B Legal Description of the Land

     44   

EXHIBIT C Connector Concept Plan

     46   

EXHIBIT D Warm Shell Specifications

     47   

EXHIBIT E Credit to Tenant Improvement Allowance for Warm Shell Work Not Performed by Landlord

     50   

EXHIBIT F Outside Cafeteria Seating Area

     52   

EXHIBIT G Sign Plans

     53   


Index of Defined Terms

 

3250 Building, 1

  

New Owner, 32

3260 Building, 1

  

Notice to Extend, 8

3270 Building, 1

  

Operating Costs, 10

Additional Rent, 13

  

Outdoor Areas, 17

Allowance, 6

  

Permitted Affiliate Lease Transfer, 24

Alterations, 19

  

Permitted Transferee, 24

Annual Statement, 12

  

Permitted Use, 16

Approved Tenant Improvement Plans, 5

  

Phase 1 Delivery Date, 4

Arbitration Deadline, 8

  

Phase 1 Free Rent Period, 9

Architect, 2

  

Phase 1 Months, 9

Assignment, 24

  

Phase 1 Premises, 1

Bankruptcy Code, 25

  

Phase 1 Rent Commencement Date, 7

Building, 1

  

Phase 1 Warm Shell Work, 1

Building Shell, 21

  

Phase 2 Delivery Date, 4

Connector, 1

  

Phase 2 Free Rent Period, 9

Connector Concept Plan, 1

  

Phase 2 Months, 10

Connector Warm Shell Permits, 2

  

Phase 2 Premises, 1

Connector Warm Shell Work, 2

  

Phase 2 Rent Commencement Date, 7

Contingency Failure, 3

  

Phase 2 Warm Shell Work, 2

Contingency Termination Date, 3

  

Premises, 1

Event of Default, 25

  

Prevailing Market Rate, 7

Events of Bankruptcy, 25

  

Project, 1

Existing Building, 1

  

Recorded Matters, 17

Existing Buildings Phase 2 Warm Shell
Work, 2

  

Reimbursable Earthquake Insurance
Premium Cap, 21

Extension Option, 7

  

Rent, 13

Extension Term, 7

  

Security Deposit, 15

Final Warm Shell Plans for the Connector, 2

  

Sign Plans, 18

Hazardous Materials, 31

  

Sublease, 24

HVAC, 5

  

Taking, 23

Initial Term, 7

  

Taxes, 12

Insolvency Laws, 25

  

Tenant, 1

Interest Rate, 14

  

Tenant Improvement Costs, 6

Land, 1

  

Tenant Improvement Work, 5

Landlord, 1

  

Tenant Improvements, 5

Landlord’s Broker, 38

  

Tenant Party, 17

Laws, 17

  

Tenant’s Broker, 38

Lease, 1

  

Tenant’s Pylon Sign, 18

Lease Transfer, 24

  

Tenant’s Share, 10

Loss, 22

  

Tenant’s Signs, 18

Minor Changes, 19

  

Term, 7

Mortgage, 32

  

Warm Shell Specifications, 1

Mortgagee, 32

  

Warm Shell Work, 1

Net Rent, 9

  


LEASE AGREEMENT

This Lease Agreement (this “Lease”) is dated November      2012 and is between Jay Ridge LLC, a Delaware limited liability company (“Landlord”), and ServiceNow, Inc., a Delaware corporation (“Tenant”).

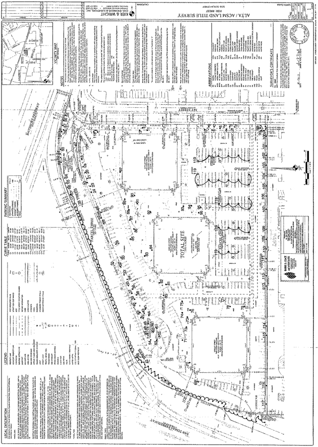
1.       Premises.    Landlord hereby leases to Tenant, and Tenant hereby leases from Landlord, the following “Premises”: (i) the existing building at 3250 Jay Street, Santa Clara, California (the “3250 Building” or the “Phase 1 Premises”); plus (ii) the two existing buildings at 3260 and 3270 Jay Street, Santa Clara, California (the “3260 Building” and the “3270 Building”; each of these 3 buildings is an “Existing Building”); plus (iii) a new two-story connector (the “Connector”; each of the Existing Buildings and the Connector is a “Building”) connecting the 3260 Building and the 3270 Building to be constructed substantially in accordance with the conceptual sketch in Exhibit C to this Lease (the “Connector Concept Plan”). The 3260 Building, the 3270 Building, and the Connector are, collectively, the “Phase 2 Premises”. On the date of this Lease, each of the 3250 Building, the 3260 Building, and the 3270 Building contains 45,368 square feet of floor area, for a total of 136,104 square feet of floor area. Landlord and Tenant anticipate that the Connector will contain approximately 12,600 square feet of floor area. The Premises are on the land legally described in Exhibit B (the “Land”). The Premises, together with the Land and all other improvements on the Land, are the “Project”. The Project, as it will exist at the completion of the Warm Shell Work and the Tenant Improvement Work, is depicted in the site plan in Exhibit A-1.

2.       Warm Shell Work.  “Warm Shell Work” means the Phase 1 Warm Shell Work, the Phase 2 Warm Shell Work, the tree removal work in Section 2.c, and the screening work in Section 2.d.

a.       Phase 1.  Landlord will, at Landlord’s sole cost, complete all work and improvements in the Phase 1 Premises described in the specifications (the “Warm Shell Specifications”) in Exhibit D to this Lease plus all work required to (i) make the Phase 1 Premises and the Outdoor Areas comply with all applicable laws and regulations, including the Americans with Disabilities Act, Title 24 (the California Building Standards Code), and life safety and seismic codes, (ii) put the roof, structural components, and electrical, mechanical, plumbing systems, and elevators in the Phase 1 Premises in good working order, and (iii) put the parking lot and site lighting in good working order (the “Phase 1 Warm Shell Work”).

b.       Phase 2.  Landlord will, at Landlord’s sole cost, complete all work and improvements in the 3260 Building and the 3270 Building described in the Warm Shell Specifications plus all work required to (i) make the Phase 2 Premises comply with all applicable laws and regulations, including the Americans with Disabilities Act, Title 24 (the California Building Standards Code), and life safety and seismic codes, and (ii) put the roof, structural components, and electrical, mechanical, plumbing systems, and elevators in the Phase 2 Premises in good working order (the “Existing Buildings Phase 2 Warm Shell Work”). In addition, Landlord will construct the Connector in accordance with this Section 2.b and Section 4. Landlord will cause Chang Architects (“Architect”) to prepare and submit to Tenant initial proposed plans and specifications

 

  1   ServiceNow, Inc.


for the Connector substantially in accordance with the Connector Concept Plan and based on consultations with Tenant. Landlord will make reasonable efforts to cause Architect to deliver initial proposed plans and specifications to Tenant for the Connector by November 30, 2012. The Warm Shell Work with respect to the Connector (the “Connector Warm Shell Work”) includes all work and improvements specified in the Warm Shell Specifications, but does not include the Tenant Improvement Work in the Connector or any other tenant improvements. Tenant will cooperate with Landlord and Architect in preparing the plans and specifications for the Connector Warm Shell Work and will not unreasonably withhold, condition, or delay its approval of the plans and specifications for the Connector Warm Shell Work. Landlord and Tenant agree to make reasonable efforts to agree on the final plans and specifications for the Connector Warm Shell Work in a form ready to submit to the City for permit approval by December 15, 2012. The final plans and specifications that Landlord and Tenant approve for the Connector Warm Shell Work are the “Final Warm Shell Plans for the Connector”. Landlord, with Tenant’s cooperation, will make reasonable efforts to obtain all governmental approvals, consents, and permits required to build the Connector in accordance with the Final Warm Shell Plans for the Connector, and the Warm Shell Specifications (the “Connector Warm Shell Permits”). If necessary, Landlord and Tenant will cooperate with each other in good faith in making any alterations to the Final Warm Shell Plans for the Connector required to obtain the Connector Warm Shell Permits, and any such revised plans and specifications that Landlord and Tenant approve will then be the “Final Warm Shell Plans for the Connector”. If the Connector Warm Shell Permits are obtained, Landlord will construct the Connector Warm Shell Work in accordance with the Final Warm Shell Plans for the Connector, the Connector Warm Shell Permits, the Warm Shell Specifications, and all applicable Laws. The Existing Buildings Phase 2 Warm Shell Work and the Connector Warm Shell Work are, collectively, the “Phase 2 Warm Shell Work”.

c.       Tree Removal.    Tenant desires to have approximately 15 to 20 trees removed from the Project at the location shown in Exhibit A-2. Tenant agrees to assist Landlord in its efforts to get the City’s approval and any other governmental approvals or permits that are required to remove the trees. If Landlord or Tenant obtains the City’s approval and any other required governmental approvals or permits, Landlord agrees to remove the trees at Landlord’s cost.

d.       Screening.  Tenant desires additional screening between the Premises and the neighboring buildings to the south, to have the existing trash enclosure removed, and to have additional screening for an outside cafeteria seating area as shown in Exhibit F to this Lease. Tenant agrees to assist Landlord in its efforts to get the City’s approval and any other governmental approvals or permits that are required to remove or relocate the trash enclosure and to plant landscaping or install a fence, wall, or screen. If the City does not permit the trash enclosure to be removed, Landlord and Tenant will determine whether it can be relocated to a better location. If the City grants the required approvals, Landlord and Tenant will agree on the final plans for any landscaping, fence, wall, or screen, and Landlord will install the approved alterations, at Landlord’s cost, subject to Landlord’s reasonable approval of the cost.

 

  2   ServiceNow, Inc.


e.       Measurement of Premises.  Landlord and Tenant agree, for all purposes related to this Lease, that the 3250 Building, the 3260 Building, and the 3270 Building collectively contain 136,104 square feet of floor area. Within 90 days after the Phase 2 Delivery Date, Landlord will deliver to Tenant a certification by Architect of the gross floor area of the Connector measured from the exteriors of all exterior walls and surfaces, and Landlord and Tenant will sign and deliver a confirmation of the floor area of the Connector and the monthly Net Rent for the Phase 2 Premises based on that measurement.

f.       Connector Contingency.  If, despite Landlord’s and Tenant’s reasonable efforts, either (i) the City refuses to issue the Connector Warm Shell Permits and Landlord and Tenant have exhausted all reasonable remedies and appeals and either Landlord or Tenant gives the other written notice that the City has refused to issue the Connector Warm Shell Permits, or (ii) Landlord does not substantially complete the Warm Shell Work in the Phase 2 Premises by December 31, 2013 (either of such events is a “Contingency Failure”), then Tenant has the right, as its sole right or remedy with respect to the Contingency Failure, upon 90 day’s notice written to Landlord given at any time within 90 days after the Contingency Failure occurs, to either (a) terminate this Lease as to all of the Premises, in which case this Lease will terminate on the earlier of the 270th day after the date Tenant delivers the termination notice or the date Tenant vacates and surrenders possession of the Phase 1 Premises to Landlord in the condition this Lease requires at the expiration of the Term (the “Contingency Termination Date”), with the same effect as if that were the scheduled expiration date of the Initial Term, provided that Tenant must pay Net Rent with respect to the Phase 1 Premises in the amount of $113,420 per month from the date Tenant delivers the termination notice until the Contingency Termination Date, or (b) lease the 3260 Building and the 3270 Building without the Connector, in which case Landlord and Tenant will promptly negotiate in good faith and enter into an amendment to this Lease that excludes the Connector from the Premises but includes the 3260 Building and the 3270 Building in the Premises at the same Net Rent per square foot as this Lease provides and otherwise on substantially the same terms as this Lease with respect to the 3250 Building, the 3260 Building, and the 3270 Building. If Tenant does not exercise its right under this Section 2.f to either terminate this Lease or lease the 3260 Building and 3270 Building within 90 days after a Contingency Failure occurs, this Lease will remain in full force and effect as to the Phase 1 Premises and Landlord and Tenant will promptly negotiate and enter into an amendment to this Lease that excludes the Phase 2 Premises from the Premises but is otherwise on substantially the same economic terms as this Lease with respect to the Phase 1 Premises. Notwithstanding the foregoing, if Tenant exercises its right under this Section 2.f to terminate this Lease because the City has refused to issue the Connector Warm Shell Permits, Landlord may nullify the termination by obtaining the Connector Warm Shell Permits within 90 days after receiving Tenant’s termination notice, in which case Tenant will have no further right to terminate this Lease or elect to lease the 3260 Building and 3270 Building without the Connector as a result of the City’s refusal to issue the Connector Warm Shell Permits.

 

  3   ServiceNow, Inc.


3.       Delivery and Acceptance of Possession.

a.       Phase 1.  Landlord estimates that Landlord will substantially complete the Phase 1 Warm Shell Work and the Phase 1 Tenant Improvement Work by approximately March 1, 2013. The date Landlord actually tenders possession of the Phase 1 Premises to Tenant with the Phase 1 Warm Shell Work and the Phase I Tenant Improvement Work substantially completed is the “Phase 1 Delivery Date”. Tenant agrees to accept possession of the Phase 1 Premises on the Phase 1 Delivery Date so long as the Phase 1 Warm Shell Work and the Phase 1 Tenant Improvement Work are then substantially complete, but otherwise in their “as-is”, “where-is” condition with all faults. Tenant, Landlord, and both contractors will do a joint walk-through inspection of the Phase 1 Premises at least 7 days before the Phase 1 Delivery Date and create a mutually approved punchlist of any items of the Phase 1 Warm Shell Work and Phase 1 Tenant Improvement Work that remain to be completed. Landlord will complete the punchlist items reasonably promptly.

b.       Phase 2.  Landlord estimates that Landlord will substantially complete the Phase 2 Warm Shell Work and the Phase 2 Tenant Improvement Work by approximately July 1, 2013. The date Landlord actually tenders possession of the Phase 2 Premises to Tenant with the Phase 2 Warm Shell Work substantially completed is the “Phase 2 Delivery Date”. Tenant agrees to accept possession of the Phase 2 Premises on the Phase 2 Delivery Date so long as the Phase 2 Warm Shell Work and the Phase 2 Tenant Improvement Work are then substantially complete, but otherwise in their “as-is”, “where-is” condition with all faults. Tenant, Landlord, and both contractors will do a joint walk-through inspection of the Phase 2 Premises at least 7 days before the Phase 2 Delivery Date and create a mutually approved punchlist of any items of the Phase 2 Warm Shell Work and Phase 2 Tenant Improvement Work that remain to be completed. Landlord will complete the punchlist items reasonably promptly.

c.       Warranty.    Provided that Tenant performs all applicable servicing and maintenance this Lease requires it to perform, Landlord warrants that the roof, structural components, elevators, and electrical, mechanical, and plumbing systems in the Phase 1 Premises will remain in good working order for 12 months after the Phase 1 Delivery Date. Provided that Tenant performs all applicable servicing and maintenance this Lease requires it to perform, Landlord warrants that the roofs, structural components, elevators, and electrical, mechanical, and plumbing systems in the Phase 2 Premises will remain in good working order for 12 months after the Phase 2 Delivery Date. Following the delivery date for each part of the Premises, Landlord will, at Tenant’s request, assign to Tenant the right to enforce any system warranties that cover that part of the Premises, except that Landlord reserves the right to enforce those warranties at Tenant’s request.

d.       Disclaimer.  Landlord disclaims, and Tenant waives, any representation or warranty other than Landlord’s express representations and warranties in this Lease as to the suitability, safety, or fitness of the Premises for Tenant’s business or intended use of the Premises, or for any other purpose.

e.       Early Access.    Landlord agrees that Tenant may enter the Phase 1 Premises and the Phase 2 Premises before Landlord delivers possession of them to Tenant, without any rent or other charge, to install cabling, furniture, security systems,

 

  4   ServiceNow, Inc.


and other personal property, provided that Tenant must give Landlord reasonable advance notice whenever it intends to do so, and provided that Tenant must not materially interfere with or delay any Warm Shell Work or Tenant Improvement Work.

4.       Tenant Improvement Work.    Landlord will plan and construct all tenant improvements in the Phase 1 Premises and the Phase 2 Premises that Tenant requires, plus the Tenant’s Signs (the “Tenant Improvements”) in accordance with this Section; all work required to construct the Tenant Improvements is the “Tenant Improvement Work”). Landlord will pay for the Tenant Improvement Work up to the amount of the Allowance; Tenant is responsible for all costs of the Tenant Improvement Work in excess of the Allowance.

a.       Scope of Work.    The Tenant Improvement Work includes, without limitation: all electrical, heating, ventilation and air conditioning (“HVAC”), plumbing, sprinkler, and fire safety system work other than the Warm Shell Work; and all other work to building systems and equipment serving the Premises other than the Warm Shell Work.

b.       Plans and Specifications.  Landlord will make reasonable efforts to have the Architect deliver initial proposed plans and specifications for the Tenant Improvement Work to Tenant by November 30, 2012. Tenant will cooperate fully with Landlord and the Architect in preparing the proposed plans and specifications in order to complete them as soon as is reasonably practicable. Tenant will approve or disapprove each set of proposed plans and specifications as soon as is reasonably practicable, but in any case within 10 business days after Landlord delivers them. Tenant acknowledges that if a final permit set of plans for the Phase 1 Tenant Improvements is not approved by Landlord and Tenant and ready to submit to the City for permits by December 15, 2012, Landlord will not be to deliver the Phase 1 Premises by March 1, 2013. Similarly, Tenant acknowledges that Landlord will not be able to deliver the Phase 2 Premises by July 1, 2013 if: (i) Architect is not able to deliver to Landlord and Tenant for approval an initial design development package of plans for the Connector Warm Shell Work and the Phase 2 Tenant Improvements by November 30, 2012, (ii) the final permit set of plans for the Connector Warm Shell Work is not approved by Landlord and Tenant and ready to submit to the City for permits by January 2, 2013, (iii) the final permit set of plans for the Phase 2 Tenant Improvements is not approved by Landlord and Tenant and ready to submit to the City by January 15, 2013. Landlord and Tenant agree to make all reasonable efforts to meet these dates. The plans and specifications that Landlord and Tenant approve for the Tenant Improvement Work are the “Approved Tenant Improvement Plans ”. Landlord’s and Tenant’s review and approval of the plans and specifications for the Tenant Improvement Work is not an agreement or confirmation by either party that the Approved Tenant Improvement Plans or the Tenant Improvements are fit for any particular purpose. Landlord agrees to pay for Tenant’s space planning meetings with Architect for up to $10,000 worth of planning work; this cost is in addition to the Allowance. All other space planning and architectural costs are part of the Tenant Improvement Costs.

c.       Contractors.  Landlord’s contractor will complete the Warm Shell Work in the Phase 1 Premises and in the 3260 Building and the 3270 Building. Landlord will

 

  5   ServiceNow, Inc.


employ Permian Builders as the general contractor for the rest of the Warm Shell Work. Landlord will have sole authority over the administration of the contracts for the Warm Shell Work. Landlord will employ Permian Builders for the Tenant Improvement Work, but Tenant, rather than Landlord, will be solely responsible for administering the contracts for the Tenant Improvement Work, including approving and signing change orders, with the same effect as if Tenant were the owner under the contracts for the Tenant Improvement Work. The contracts for the Tenant Improvement Work will contain a provision that implements this delegation of authority to Tenant and Tenant will, at Landlord’s request, sign any acknowledgment and assumption of the delegated authority that Landlord reasonably requests.

Subject to Landlord’s delegation to Tenant of authority as owner under the contracts for the Tenant Improvement Work, Landlord will construct the Tenant Improvements and otherwise comply with all of its obligations under this Section 4 at Tenant’s sole cost, except for the Allowance. Landlord has no right to charge any supervisory fee in connection with the Tenant Improvement Work.

5.       Allowance.  Landlord agrees to give Tenant credit, subject to the terms of this Section, for an allowance (the “Allowance”) equal to (i) $25 per square foot of floor area in the Premises, as the base allowance, plus (ii) $150,000 for the cost of Tenant’s Pylon Sign, plus (iii) an amount, which Landlord and Tenant will agree to in good faith, as a credit to Tenant, equal to Landlord’s cost savings for not performing the items of work listed in Exhibit E, but only to the extent Landlord has not performed those items of work on the date of this Lease, plus (iv) $4 per square foot of floor area in the Premises, including the Connector, for electrical distribution. “Tenant Improvement Costs” means: (a) Landlord’s out-of-pocket costs for preparing the Approved Tenant Improvement Plans; (b) the cost of obtaining all permits and approvals for the Tenant Improvement Work; and (c) the cost of the Tenant Improvement Work, including all payments to the general contractor for the Tenant Improvement Work. If the Tenant Improvement Costs exceed the amount of the Allowance, Tenant is solely responsible for the excess cost, which it will pay to Landlord as follows: after Landlord has paid or incurred invoices equal to the amount of the Allowance, Landlord may submit any additional invoices it receives for Tenant Improvement Costs and Tenant will, within 25 days, either directly pay the person who issued the invoice, or, if Landlord has paid the invoice, reimburse Landlord. If the Tenant Improvement Costs are less than the total amount of the Allowance, Tenant is entitled, upon written request, to do one or both of the following: (A) use the unused Allowance for costs Tenant incurs for Alterations other than the Tenant Improvements that are constructed within 12 months after the Phase 2 Delivery Date; and (B) use the unused Allowance, in an amount up to $5 per square foot of floor area in the Premises, to purchase and install personal property and equipment in the Premises within 90 days after all of the Tenant Improvement Work is substantially complete and Tenant has occupied the Phase 2 Premises. If Tenant uses any part of the Allowance under the preceding sentence, Tenant must request reimbursement within 15 months after the Phase 2 Delivery Date for Alterations, and within 180 days after Tenant occupies the Phase 2 Premises, for personal property and equipment. To the extent Tenant does not use the entire Allowance for Tenant Improvement Costs and additional Alterations or personal property and equipment under the preceding two sentences, Tenant forfeits that unused portion of the Allowance and is not entitled to receive it as a rent credit or in any other form. Except for the Allowance, Landlord has no obligation to give Tenant any allowance or otherwise

 

  6   ServiceNow, Inc.


pay or reimburse Tenant for any costs related to demolishing or constructing improvements in the Premises, moving, purchasing, or installing any fixtures, equipment, or inventory, or otherwise occupying and opening for business in the Premises.

6.       Term.

a.       Initial Term.  “Phase 1 Rent Commencement Date” means the 366th day after the earlier of (i) the Phase 1 Delivery Date or (ii) the 120th day after Landlord substantially completes the Phase I Warm Shell Work in the 3250 Building. “Phase 2 Rent Commencement Date” means the 181st day after the earlier of (a) the Phase 2 Delivery Date, or (b) the 120th day after Landlord substantially completes the Phase 2 Warm Shell Work in the Phase 2 Premises. The initial term of this Lease (the “Initial Term”) commences on the earlier of the Phase 1 Delivery Date or the Phase 2 Delivery Date and ends at 5:00 p.m. California time on the last day of the 120th full calendar month after the later of the Phase 1 Rent Commencement Date or the Phase 2 Rent Commencement Date. If the later of the Phase 1 Rent Commencement Date or the Phase 2 Rent Commencement Date is not the first day of a calendar month, the Initial Term will be the initial partial month in which that date occurs plus the next 120 full calendar months. The Initial Term, together with the first or both Extension Terms, if Tenant exercises them, and any other extension or renewal of the term of this Lease, is the “Term”. Each of Landlord and Tenant will sign a letter within 10 days after request confirming the Phase 1 Delivery Date, and a second letter confirming the Phase 2 Delivery Date and the last day of the Initial Term.

b.       Optional Extension Terms.    On the condition that Tenant is then occupying all or substantially all of at least two of the three Existing Buildings for its business purposes in accordance with the Permitted Use and no Event of Default then exists, Tenant has two options (each, an “Extension Option”) to extend the Term for 5 years each (each, an “Extension Term”), with the first beginning immediately after the Initial Term, and the second beginning immediately after the first Extension Term. The terms of this Lease will remain the same during each Extension Term except that Tenant will pay Net Rent during each Extension Term at the prevailing market triple net base rent rate for premises of similar size, quality, and location, taking into account all relevant factors and determined as of 8 months before the Extension Term begins (the “Prevailing Market Rate”). Tenant can exercise each Extension Option only by delivering a written notice to Landlord that it is exercising the Extension Option (a “Notice to Extend”) at least 9 months but no more than 12 months before the end of the Initial Term, or the first Extension Term, as applicable. A Notice to Extend is irrevocable. The Extension Option being exercised will automatically terminate if Tenant does not exercise it at least 9 months before the Initial Term or the first Extension Term ends, as applicable, time being of the essence. The Extension Options are personal to ServiceNow, Inc. and a Permitted Transferee and are not transferrable or assignable to any other person, whether by an Assignment or otherwise, and any attempt do so will make the Extension Options null and void. If Tenant exercises an Extension Option and Landlord and Tenant do not agree in writing on the Prevailing Market Rate within 30 days after Tenant delivers the Notice to Extend (the “Arbitration Deadline”), the Net Rent for that Extension Term will be determined as follows:

(i)        Each of Landlord and Tenant will appoint its arbitrator by written notice to the other within 30 days after the Arbitration Deadline. If one party fails to appoint an arbitrator by notice to the other within 30 days after the Arbitration Deadline, and again fails to do so within 10 days after it receives a reminder notice from the other party, the one appointed arbitrator will make the determination alone. If both Landlord and Tenant appoint their arbitrators when required, those two arbitrators will, within 10 days after being appointed, appoint a third arbitrator by notice to both Landlord and Tenant. If the two arbitrators fail to appoint a third arbitrator within 10 days, then either Landlord or Tenant has the right to apply to the American Arbitration Association or any successor for the appointment of the third arbitrator.

 

  7   ServiceNow, Inc.


(ii)       Within 30 days after the third arbitrator is appointed, the arbitrators appointed by Landlord and Tenant will attempt to agree on the Prevailing Market Rate using the definition of Prevailing Market Rate in this Section 6.b. If the two arbitrators agree on the Prevailing Market Rate within the required 30-day period, the Prevailing Market Rate they agree on is the Prevailing Market Rate for the purposes of this Lease. If the two arbitrators do not agree on the Prevailing Market Rate within the required 30-day period, Landlord and Tenant will, within 10 days after the 30-day period, provide to each other and the third arbitrator their determinations of the Prevailing Market Rate, and the third arbitrator will, within 10 business days, pick one of the two determinations provided by Landlord and Tenant as the Prevailing Market Rate.

(iii)       The arbitrators’ determination of the Prevailing Market Rate in accordance with this Section 6.b is final and binding on Landlord and Tenant. Each party will pay the fees of the arbitrator it appoints, and they will split the fees of the third arbitrator. All arbitrators must be real estate brokers with at least 10 years of continuous experience as leasing brokers for office and industrial property in Silicon Valley. The arbitrators have no power or authority to add to, modify, or change any provision of this Lease.

 

  8   ServiceNow, Inc.


7.       Rent.

a.       Phase 1 Net Rent.  The “Phase 1 Free Rent Period” is the 365-day period that begins on the Phase 1 Rent Commencement Date. Starting on the day after the Phase 1 Free Rent Period and throughout the rest of the Initial Term, Tenant agrees to pay to Landlord net rent (“Net Rent”) with respect to the Phase 1 Premises in the following amounts during the following periods:

 

                 Phase 1 Net Rent
Phase 1 Months         Monthly Net Rent                Monthly Net Rent  per      
square foot

Phase 1 Free Rent Period

  None   None

Phase 1 Rent Commencement Date

through Phase 1 Month 24

  $113,420   $2.50

25-36

  $115,688   $2.55

37-48

  $117,957   $2.60

49-60

  $120,225   $2.65

61-72

  $122,494   $2.70

73-84

  $125,216   $2.76

85-96

  $127,484   $2.81

97-108

  $130,206   $2.87

109-120

  $132,928   $2.93

121-end of Initial Term

  $135,650   $2.99

Phase 1 Months” means full calendar months in the Initial Term starting with the first full calendar month after the Phase 1 Delivery Date. For example, if the Phase 1 Delivery Date is March 15, 2013, Phase 1 Month 1 will be April, 2013, the Phase 1 Free Rent Period will be March 15, 2013 through March 14, 2014, and Tenant will first owe Net Rent with respect to the Phase 1 Premises on March 15, 2014 in a prorated amount for the period from March 15 through March 31, 2014. And, if the Phase 1 Rent Commencement Date is the same day as or after the Phase 2 Rent Commencement Date, the Initial Term will end on March 31, 2024.

 

  9   ServiceNow, Inc.


b.       Phase 2 Net Rent.   The “Phase 2 Free Rent Period” is the 180-day period that begins on the Phase 2 Delivery Date. Starting on the day after the Phase 2 Free Rent Period and throughout the rest of the Initial Term, Tenant agrees to pay Net Rent to Landlord with respect to the Phase 2 Premises in the following amounts during the following periods:

 

Phase 2 Net Rent    
Phase 2 Months       Monthly Net Rent per     
square foot

Phase 2 Free Rent Period  

  None

Phase 2 Rent Commencement    

Date through Phase 2 Month 24    

  $2.50

25-36

  $2.55

37-48

  $2.60

49-60

  $2.65

61-72

  $2.70

73-84

  $2.76

85-96

  $2.81

97-108

  $2.87

109-120

  $2.93

121-end of Initial Term

  $2.99

Phase 2 Months” means full calendar months in the Initial Term starting with the first full calendar month after the Phase 2 Delivery Date. For example, if the Phase 2 Delivery Date is September 15, 2013, Phase 2 Month 1 will be October, 2013, the Phase 2 Free Rent Period will be September 15, 2013 through March 14, 2014, and Tenant will first owe Net Rent with respect to the Phase 2 Premises (the Phase 2 Rent Commencement Date) on March 15, 2014 in a prorated amount for the period from March 15, 2014 through March 31, 2014. And, if the Phase 2 Rent Commencement Date is the same day as or after the Phase 1 Rent Commencement Date, the Initial Term will end on March 31, 2024.

c.        Operating Costs and Taxes.  In addition to Net Rent, Tenant agrees to pay to Landlord Tenant’s Share of Operating Costs and Taxes, in monthly installments that are due and payable in advance on or before the first day of each calendar month, starting on the Phase 1 Delivery Date as to the Phase 1 Premises, and on the Phase 2 Delivery Date as to the Phase 2 Premises, and throughout the remainder of the Term, in the estimated amount or amounts Landlord for which Landlord invoices Tenant. Landlord estimates that the initial Operating Costs and Taxes will be 38¢ per square foot. If the Phase 1 Delivery Date or the Phase 2 Delivery Date is not the first day of a month, Tenant’s Share of Operating Costs will be prorated as appropriate.

(i)       Tenant’s Share” means 33.33% for the Phase 1 Premises and 66.67% for the Phase 2 Premises; Tenant’s Share for the entire Premises is 100%.

(ii)      Subject only to the limitations in the second paragraph of this Section 7.c.(ii), “Operating Costs”) means all costs of every nature that Landlord pays or becomes obligated to pay, because of or in connection with owning, managing, operating, maintaining, repairing, preserving, and replacing the Project. Operating Costs include, without limitation, all costs relating to the following: (1) insurance premiums and related costs for insurance that Landlord is obliged or elects to obtain, including earthquake insurance subject to the cost

 

  10   ServiceNow, Inc.


limitations in Section 20.b, plus all deductibles Landlord pays, which will be treated as a capital cost if the $20,000 cost for the deductible is exceeded; (2) sweeping, cleaning, gardening, and landscaping; (3) garbage collection and disposal from the Outdoor Areas; (4) electrical service and all other utility services consumed at the Project, but not including utility services consumed in the Premises, (5) police supervision, security, and traffic control; (6) compensation, including wages and medical benefits of personnel and employees employed or engaged in the operation, maintenance, repair, replacement, supervision, and management of the Project and all payroll taxes, workers’ compensation, unemployment insurance, disability benefits insurance, and similar contributions, and expenses incurred by such personnel and employees in carrying out the operation, maintenance, repair, replacement, supervision and management of the Project, and uniforms and related expenses for such personnel and employees; (7) the operation of, and maintenance, repairs, and replacements to, the Outdoor Areas and to the roof, exterior walls, foundations, floors, and other structural components of the Buildings, including, without limitation, maintaining all services and utilities and all repairs and replacements to all signs, machinery, equipment, facilities, systems, and property installed in or used in connection with the Project, including any repairs and replacements required to comply with then-current Laws after the delivery date for each of the Buildings, as applicable; (8) repairs and replacements to and maintenance and operation of signs for the Project, whether owned or rented by Landlord and whether or not located in the Project; (9) engineering, accounting, legal and other consulting and professional services related to operating the Project, including the cost of preparing statements respecting Project expenses; (10) costs Landlord incurs in connection with the Project, such as maintaining and sweeping and cleaning municipal sidewalks, bus-stop shelters, and other adjacent property; any and all other expenses, including equipment rental, related to the existence of the Outdoor Areas and their use by and for the benefit of Tenant and the Tenant Parties; and (11) a property management fee equal to 3% of the Net Rent.

Notwithstanding the definition of “Operating Costs” in the preceding paragraph, all capital costs that exceed $20,000 per item will be amortized over Landlord’s reasonable estimate of the economic life of each such item, together with interest on the unamortized cost at the rate of interest charged by Landlord’s Mortgagee, if any, or at Landlord’s cost of funds if it were to borrow the funds for the capital costs. Also notwithstanding anything in the definition in the preceding paragraph to the contrary, “Operating Costs” does not include the cost of any of the following: (a) the violation of any law by Landlord or any other tenant of the Project; (b) work paid for by insurance proceeds, by condemnation proceeds, by other tenants of the Project, or by any other person; (c) interest, amortization, or other payments on loans or ground leases; (d) the funding of any expense reserves; (e) leasing commissions and other similar payments paid to agents or employees of Landlord, independent brokers, and other persons; (f) attorney, accounting, consulting, and other professional fees for negotiating or enforcing leases, obtaining or negotiating financing, marketing or selling all or any part of the Project, or otherwise in connection with an activity unrelated to the operation

 

  11   ServiceNow, Inc.


or maintenance of the Project; (g) construction, renovation, or improvement of leasable space for other tenants of the Project; (h) items and services for which Tenant otherwise reimburses Landlord; (i) advertising, marketing, and publicity; (j) remediating Hazardous Materials, except for the cost of purchasing, using, handling, and disposing of Hazardous Materials in the ordinary course of operating, maintaining, and repairing the Project, including but not limited to cleaning chemicals, construction materials, batteries, and fluorescent tubes; (k) wages, compensation, and labor burden for any employee to the extent the employee’s time is not devoted to the Project; or (l) capital costs that are not (1) for items that replacing existing capital items with similar items, or (2) required by Laws (as hereinafter defined), or (3) incurred to increase efficiencies in utility usage but limited to the amount of the savings from the installation.

(iii)     Taxes” means all taxes, assessments, and other governmental charges, general and special, ordinary and extraordinary, of any kind and nature, including but not limited to assessments for public improvements or benefits against the Project that are payable to any lawful authority. “Taxes” also includes any tax, assessment, excise, or surcharge of any kind with respect to all or any part of the Rent or the parking areas or the number of parking spaces in the Project, and all costs of contesting or negotiating the valuation of the Project or the amount of Taxes, except that if Landlord obtains a refund, Landlord will apply it against the Taxes during the period covered by the refund and will pay Tenant any refund or credit that applies. “Taxes” does not include: (i) late payment penalties and past due interest; (ii) any succession, transfer, gift, capital levy, or corporation tax levied against Landlord; or (iii) any real estate transfer tax, mortgage lien tax, documentary stamp tax, or recording fees. Tenant waives all rights to contest any Taxes.

d.       Annual Statements of Operating Costs and Taxes.   Within 180 days after the end of each of Landlord’s fiscal years during the Term, Landlord will deliver to Tenant a reasonably detailed statement of the Operating Costs and Taxes for that fiscal year (the “Annual Statement”). If an Annual Statement reveals that Tenant paid more for Operating Costs and Taxes than the actual Tenant’s Share of Operating Costs and Taxes for the year covered by the Annual Statement, Landlord will, at its option, within 30 days, either credit or reimburse Tenant for the excess, except that if the Term has expired, Landlord has the right to apply the excess to any unpaid Rent or to the cure of any default by Tenant, and Landlord will reimburse any remaining amount to Tenant within 30 days. If an Annual Statement reveals that Tenant paid less for Operating Costs and Taxes than the actual Tenant’s Share of Operating Costs and Taxes for the year covered by the Annual Statement, Tenant will, within 30 days after demand, pay the deficiency to Landlord. Landlord’s failure to accurately estimate Operating Costs and Taxes or to deliver an Annual Statement when required does not waive Landlord’s right to collect any of Tenant’s underpayment and does not affect Tenant’s right to collect any overpayment until Landlord delivers an Annual Statement. During the 90-day period starting on the day Tenant receives each Annual Statement, Tenant has the right to review Landlord’s records of Operating Costs and Taxes for the year covered by that Annual Statement and has the right to challenge the amount of any Operating Costs and Taxes

 

  12   ServiceNow, Inc.


according to that Annual Statement by delivering to Landlord a written notice specifically describing the item or items Tenant is challenging and the reason for its challenge within the 90-day period after receiving the Annual Statement. Except for any items Tenant expressly so challenges in writing within 90 days, each Annual Statement will become final and accepted by both Landlord and Tenant at the end of such 90-day period and Tenant will be deemed to have fully and forever waived any claim or demand with respect to Operating Costs and Taxes for the year covered by that Annual Statement.

e.       Definition of Rent.  “Additional Rent” means all of the following: (i) Tenant’s Share of Operating Costs and Taxes; (ii) all utility costs for which Tenant is responsible under Section 10; (iii) all late charges under Section 7.f; and (iv) all other fees, charges, and other amounts this Lease obligates Tenant to pay to or for Landlord’s benefit or to any person other than Landlord. “Rent” means, collectively, Net Rent and Additional Rent.

f.       Payment of Rent and Application of Payments.  Tenant agrees to pay all Rent to Landlord without any notice or demand except to the extent this Lease expressly provides to the contrary, and without any abatement, deduction, credit, or offset of any kind. Tenant will pay all Rent to the person and at the address that Landlord designates in writing. Landlord’s initial address for Rent payments by check is:

Jay Ridge LLC

c/o Eagle Ridge Partners, LLC

5753 Wayzata Boulevard

St. Louis Park, MN 55416

Tenant may pay Rent by ACH or wire transfer. Landlord’s initial account information for payment by ACH or wire transfer is:

Jay Ridge LLC

Minnesota Bank and Trust

7701 France Avenue, Suite 110

Edina, Minnesota 55435

Account number 0161003215

ABA routing number 073900535.

Landlord may change its address or addresses for Rent payment at any time upon written notice to Tenant. All Rent is expressed and due in U.S. Dollars. Tenant’s obligation to pay Rent is independent from all of Landlord’s obligations and liabilities under this Lease and from all of Landlord’s warranties and representations, express or implied, that relate in any manner to this Lease or the Premises. Landlord has the same rights under California law for any non-payment of Additional Rent as Landlord would have for non-payment of Net Rent, but Additional Rent is not rent for the purpose of any rent or similar tax. Landlord has the right, in its sole discretion, to apply any payments from Tenant (whether equal to or less amount than the amount Tenant owes) to any Rent or other debts Tenant then owes in any order Landlord elects in its sole discretion. No endorsement or statement on any check or other payment or in any letter accompanying

 

  13   ServiceNow, Inc.


any check or other payment will be deemed an accord and satisfaction or bind Landlord or limit Landlord’s rights in any manner. Landlord’s acceptance of any check or other payment in partial payment of any past-due Rent does not waive Landlord’s right to receive all past-due Rent in full and does not waive Landlord’s right to evict Tenant or exercise any other right or remedy Landlord has with respect to any past-due Rent or other default by Tenant.

g.       Late Payment.    If Landlord does not receive any regular monthly installment of Net Rent and Additional Rent on or before the first business day of the calendar month in which it is due, or if any other payment of Rent is past due and Landlord does not receive such other payment of Rent within 5 days after giving Tenant written notice that it is past due, Landlord has the right to elect, in its sole discretion, to charge as a late fee an additional sum equal to 5% of the delinquent amount to compensate Landlord for its costs incurred in connection with the late payment, and, after 30 days, interest accruing on the unpaid amount from the date due at a per-annum rate equal to Wall Street Journal “Prime Rate for the first business day of the applicable calendar year plus 4% but not to exceed the legal rate on judgments (the “Interest Rate”). Tenant will pay such amount to Landlord together with the next monthly installment of Rent coming due after Landlord gives Tenant written notice of the charge. Landlord’s election not to charge a late fee or impose any interest that it would be entitled to charge with respect to any particular month or period of months will not waive Landlord’s right to do so at any time in the future, regardless of the duration of any pattern of late payment by Tenant, and Tenant hereby waives any such defense to the payment of any late fee or interest that Landlord elects to charge under this Section 7.g. Nothing in this Section 7.g in any way authorizes or permits Tenant to pay any Rent after the date such Rent is due. The parties agree that such late fees and interest are liquidated damages for late payment and represent a fair and reasonable estimate of the costs that Landlord will incur because of late payment by Tenant. Landlord’s acceptance of any late fee or interest or any partial payment of any past-due Rent does not waive Tenant’s default with respect to the delinquent amount and does not prevent Landlord from exercising any of its other rights and remedies with respect to Tenant’s default under this Lease. Notwithstanding the foregoing, if Landlord has not delivered a written notice of late payment within the preceding 12 months, Landlord may not assess a late fee unless Landlord gives Tenant a written notice of such late payment and Tenant does not cure the default within 3 days after it receives the notice. No other notices will be required during the following 12 months for a late fee to be incurred.

h.       Tenant’s Personal Property Taxes.    Tenant agrees to pay, before delinquency, all taxes assessed or levied on its occupancy of the Premises, or on Tenant’s leasehold improvements, trade fixtures, furnishings, equipment, and all other personal property in the Premises, and when possible, Tenant will cause such leasehold improvements, trade fixtures, furnishings, equipment, and other personal property to be assessed and billed separately from the Project or Landlord’s property. If any or all of Tenant’s leasehold improvements, trade fixtures, furnishings, equipment, and other personal property, or Tenant’s occupancy of the Premises, is assessed and taxed with Landlord’s property, Tenant will pay to Landlord its share of such taxes within 10 days after Landlord delivers a written statement of the amount of such taxes that apply to Tenant’s personal property.

 

  14   ServiceNow, Inc.


8.       Prepaid Rent.  On the same day Tenant signs and delivers this Lease, Tenant will pay Landlord $130,660 as prepaid Rent with respect to the Phase 1 Premises. So long as no Event of Default exists, Landlord will apply the prepaid rent for the Phase 1 Premises to the next installments of Net Rent and Operating Costs and Taxes that are first due on and after the Phase 1 Free Rent Period. On or before the Phase 2 Delivery Date, Tenant will pay Landlord prepaid Rent for the Phase 2 Premises in the amount of the first full monthly installment of Net Rent and Operating Costs and Taxes that will be due with respect to the Phase 2 Premises. So long as no Event of Default exists, Landlord will apply the prepaid rent for the Phase 2 Premises to the next installments of Net Rent and Operating Costs and Taxes that are first due on and after the Phase 2 Free Rent Period. But at any time an Event of Default exists, Landlord has the right, but no obligation, to apply the prepaid rent to cure the Event of Default or to compensate Landlord for any damages the Event of Default causes. The prepaid rent is earned on the date due and Landlord has no obligation to escrow or deposit the prepaid rent in a segregated account or to hold it in trust for Tenant.

9.       Security Deposit.  On the same day Tenant signs and delivers this Lease, Tenant will pay Landlord $444,625 (the “Security Deposit”) to secure Tenant’s payment and performance of its obligations and liabilities under this Lease. The Security Deposit is not an advance payment of Rent nor a measure or limit of Landlord’s damages for any default by Tenant. Landlord may, at any time an Event of Default exists, without prejudice to any other remedy, use all or a part of the Security Deposit to perform or satisfy any obligation or liability that Tenant fails to pay or perform under this Lease. Following any such application of the Security Deposit, Tenant will pay to Landlord on demand the amount Landlord applied in order to restore the Security Deposit to its original amount. If Tenant pays and performs all of its obligations and liabilities under this Lease, Landlord will, within 30 days after the later of the last day of the Term or the day Tenant fully pays and performs all of its obligations and liabilities, return to Tenant the unapplied portion of the Security. Landlord may commingle the Security Deposit with other funds, and no interest will accrue or be owed on the Security Deposit. If Landlord transfers its interest in the Premises and transfers the Security Deposit to the transferee, Landlord will have no obligation or liability to Tenant with respect to the return of the Security Deposit.

Tenant has the right, upon 90 days’ notice to Landlord, at Tenant’s sole cost, to replace the Security Deposit with an irrevocable, unconditional, standby letter of credit, in the same amount as the required amount of the Security Deposit on terms that are satisfactory to Landlord and its Mortgagee (such letter of credit, together with any renewal or replacement letters of credit delivered or to be delivered by Tenant under this Section are, collectively, the “Letter of Credit”). Each Letter of Credit must be issued by a national bank (the “LC Issuer”) acceptable to Landlord. If Landlord requests, the Letter of Credit must be made out to Landlord’s lender as the beneficiary or, if the LC Issuer will do it, to Landlord and its lender or lenders as co-beneficiaries, and Tenant will pay any additional charge by the LC Issuer for such change. Landlord has the right, upon any transfer of its interest in all or any part of the Premises, to require Tenant to deliver a replacement Letter of Credit designating Landlord’s successor as the beneficiary, provided that Landlord’s successor may not obtain possession of the replacement Letter of Credit until Landlord has surrendered the then-outstanding Letter of Credit. If the

 

  15   ServiceNow, Inc.


Letter of Credit expires before 60 days after the scheduled end of the Term , Tenant must extend or renew it or replace it by delivering to Landlord a new, renewed, or extended Letter of Credit at least 60 days before the expiration date of the then-current Letter of Credit. Except for any Letter of Credit that expires on or after the 60th day after the scheduled end of the Term, no Letter of Credit, and no any renewal or extension of it, may have an expiration date less than 12 months from the date it is issued, renewed, or extended. The Letter of Credit secures Tenant’s obligations and liabilities under this Lease. The Letter of Credit must permit Landlord to make partial draws. At any time when any Rent is past due under this Lease or Tenant owes any other amount to Landlord in connection with this Lease or the Premises that is past the date when such amount is due, Landlord may make a partial or full draw or draws upon the Letter of Credit in the amount of such unpaid Rent or other amount and apply the proceeds of such draw against such amounts Tenant owes Landlord. Landlord is also entitled to draw on the full amount of the Letter of Credit at any time the Letter of Credit is not maintained, renewed, extended, replaced, or restored as this Section requires, in which case the proceeds of the draw will be the sole property of Landlord, which Landlord will hold and apply as a substitute for the Letter of Credit. Landlord is not required to exercise any other remedy available to it under this Lease or otherwise at law before drawing on the Letter of Credit in accordance with this Section, and no such draw upon the Letter of Credit will in any manner prejudice Landlord’s right to exercise any other remedy. Neither the Letter of Credit nor the proceeds of any draw upon the Letter of Credit constitute an advance rent deposit or a measure of Landlord’s damages with respect to any default by Tenant. No draw under the Letter of Credit waives or cures any default by Tenant under the Lease.

10.     Utilities.    Tenant will cause each utility provider to set up an account for the Phase 1 Premises as of the Phase 1 Delivery Date, and for the Phase 2 Premises as of the Phase 2 Delivery Date, in Tenant’s name and to bill Tenant directly for all utilities supplied to the Phase 1 Premises from the Phase 1 Delivery Date, and all utilities supplied to Phase 2 Premises from the Phase 2 Delivery Date, throughout the Term. Tenant agrees to pay when due for electrical service, water, sewer service, natural gas, telecommunications services, garbage removal, and all other utility services supplied to or consumed in, at, or from the Premises and all related access charges and connection fees. No discontinuance of any utility service to the Premises will entitle Tenant to terminate this Lease, to any abatement of or credit against any Rent, or to any damages or any other relief from Landlord.

11.     Permitted Use, Restrictions on Use.  Landlord hereby grants Tenant the right to use and occupy the Premises during the Term for general office and training purposes and related ancillary uses that are lawful (the “Permitted Use”), and for no other purpose. Tenant will not use, and will not permit any other Tenant Party to use, the Premises for any retail, or residential purpose or for any purpose that is prohibited by or will cause a cancellation of any insurance policy that covers the Project, or that will increase the cost of any insurance that covers Project. Tenant will not commit, or permit any other Tenant Party to commit, any waste in the Premises, or any public or private nuisance, or any other act or thing that disturbs or offends Landlord or any other tenant in the Project or interferes with the quiet enjoyment of any other tenant. Tenant will not permit any objectionable odors, smoke, dust, gas, noise, or vibrations to emanate from the Premises. Tenant will not do anything in the Premises or anywhere else in the Project that will damage the Premises or the Project and Tenant will not overload the floor capacity of the Premises or the Project. Tenant will not, and will not permit any other Tenant Party to, use any

 

  16   ServiceNow, Inc.


machinery or equipment that in any manner injures, vibrates, or shakes the Premises. Tenant will not, and will not permit any other Tenant Party to, conduct any sale by auction, any fire sale, or any bankruptcy or going-out-of-business sale in the Premises. Tenant will not, and will not permit any other Tenant Party to, broadcast from the Premises any music, public addresses, or advertisements, or maintain or display in the Premises or in the Project any excessively bright lights, changing, flashing, or flickering lights or lighting devices other than signs Landlord approves. Tenant will not, and will not permit any other Tenant Party to, dump, place or leave any garbage or waste except in trash containers placed inside exterior enclosures that Landlord designates for that purpose. Tenant will not permit, and will not permit any other Tenant Party to, dispose of any Hazardous Materials through the plumbing or sewage system.

12.      Outdoor Areas.  All ground level exterior parking areas, drive aisles, driveways, sidewalks, and landscaped areas in the Project, but not including utility boxes, maintenance and utility areas, and similar areas not intended for use or access by Tenant Parties, are the “Outdoor Areas”. The Outdoor Areas do not include the roof of any of the Buildings or any underground area. Tenant has the exclusive right to use the Outdoor Areas, subject to Landlord’s right to enter the Outdoor Areas to perform all of its obligations and liabilities under this Lease, to exercise all of its rights under this Lease, and for all other purposes that do not materially interfere with Tenant’s rights under this Lease, including, without limitation, Tenant’s right to use all of the parking stalls at the Project. Landlord has the right to impose reasonable rules and regulations for the use of the Outdoor Areas at any time, as long as those rules and regulations do not materially impair or conflict with any of Tenant’s rights under this Lease. Landlord has the right to close off or restrict access to any part of the Outdoor Areas at any time to prevent the public or any other person from obtaining rights in the Outdoor Areas, by adverse possession or otherwise, to perform repairs and replacements, and to construct new improvements.

13.      Compliance with Laws and Recorded Matters.   Tenant’s right to use the Premises and the Outdoor Areas is subject to Tenant’s obligation to comply at its sole cost with, and to cause its subtenants, any other sub occupant of the Premises, and their employees, agents, representatives, licensees, contractors, and invitees (each of Tenant and such other persons is a “Tenant Party”) to comply with, the following: (i) all statutes, laws, rules, regulations, ordinances, codes, permits and orders of all federal, state and local governments, departments and agencies that apply to the Premises, including but not limited to the condition of, and Tenant’s use, occupancy or alteration of the Premises (collectively, “Laws”); (ii) all documents, matters, and instruments that have been or are in the future recorded in the real estate records (collectively, the “Recorded Matters”), except that Tenant has no obligation to pay any fees or amounts the Recorded Matters obligate the owner of the encumbered land to pay, and except that Tenant will not be bound by the terms of any Recorded Matter first recorded after the date of this Lease to the extent such future Recorded Matter materially reduces Tenant’s rights or increases Tenant’s obligations under this Lease; and (iii) the requirements of any insurance underwriting board, inspection bureau or insurance carrier insuring the Premises or any other part of the Project. Tenant is solely responsible for ensuring that the Premises meet Tenant’s needs, and that each Tenant Party’s occupancy and use of the Premises complies with all Laws and Recorded Matters throughout the Term. Tenant will perform, at its sole cost, any modifications to the Premises, the Outdoor Areas, or any other part of the Project that any Law requires because of Tenant’s special needs, use, or business. This Lease will remain in full force and effect notwithstanding any loss of use or other effect on Tenant’s enjoyment of the Premises as the result of any Laws that are now in effect or that first come into effect in the future.

 

  17   ServiceNow, Inc.


14.       Signs.   To the extent permitted by applicable Law, and subject to Landlord’s approval, which Landlord will not unreasonably withhold, Landlord will (i) build a pylon sign (“Tenant’s Pylon Sign”) substantially in accordance with the sign plans (the “Sign Plans”) in Exhibit G to this Lease, (ii) place Tenant’s sign panels on the sign monuments substantially as shown on the Sign Plans, and (iii) place Tenant’s signs on the exterior of the Premises substantially as shown on the Sign Plans (collectively, all of these signs are the “Tenant’s Signs”). Tenant acknowledges that the Sign Plans are preliminary and have not been approved by the city and that any revisions to the Sign Plans require Landlord’s approval, which Landlord will not unreasonably withhold. Tenant will pay all costs of installing Tenant’s Signs, either as a Tenant Improvement Cost, or otherwise. In addition, subject to Tenant’s obtaining all required governmental permits and licenses, Tenant has the right to install a temporary sign at the Project announcing that it will be Tenant’s future location. Tenant has the exclusive right to use Tenant’s Pylon Sign. Tenant will not place, or permit any other Tenant Party to place, any other sign, marquee, awning, banner, decoration, or other attachment on the roof, on the front or side exterior walls of the Premises, on the exterior windows of the Premises, or in any other area of the Project without Landlord’s approval, which shall not be unreasonably withheld. Landlord agrees to remove all “San Tomas Technology Park” signs from the Project. Landlord will, at its sole cost, obtain all required governmental permits and approvals for the installation of each Tenant’s Sign. Tenant will, at its sole cost, maintain all Tenant’s Signs in good condition, and will promptly perform all repairs and replacements needed to keep the Tenant’s Signs in good condition.

15.       Parking.   Tenant has the right to use, at no additional cost, all parking stalls available at the Project. Landlord agrees, in connection with the delivery of the Phase 2 Premises, to construct the parking and driveway areas at the Project substantially as shown in the site plan in Exhibit A-1, and stripe the parking areas for parking stalls substantially as shown in Exhibit A-1. Landlord agrees not to reduce the number of parking stalls at the Project below 449 unless required to do so by law or as the result of a taking or an alteration to the Outside Area required by any alteration Landlord makes to the Project at Tenant’s request. At Tenant’s discretion, it can require, as part of the Tenant Improvement Work and as a Tenant Improvement Cost, the marking of up to 10 parking stalls for visitor parking.

16.       Tenant’s Maintenance and Repair Responsibilities.   Tenant will, at its sole cost, perform all maintenance, repairs, and replacements to all parts of the Premises (excluding only the roof, the foundation, and the load-bearing portion of load-bearing walls) that are necessary to keep the Premises sanitary, neat, presentable, and in good working order, condition, and repair at all times. Without limiting the generality of the preceding sentence, Tenant’s maintenance, repair, and replacement obligations under this Section apply to, but are not limited to, all of Tenant’s signs; all windows, doors, truck doors, and other penetrations in the outer walls of the Premises; all portions of all walls other the exterior face of exterior walls and the load-bearing portions of walls; floor coverings, and ceilings; all HVAC equipment and systems that serve the Premises; all other mechanical, electrical, plumbing, lighting, life-safety, and utility systems, equipment, conduits, pipes, ducts, and lines that serve only the Premises; and all fixtures and appliances inside the Premises. Tenant will also repair, or reimburse Landlord for, any blockage of or damage to the sewer lines and sewer system at the Project that results from

 

  18   ServiceNow, Inc.


anything that enters the sewer lines from the Premises. Tenant will provide and pay for all garbage removal from the Premises Tenant will perform all repairs and replacements with first-class materials and with first-class workmanship. Tenant will, at Tenant’s sole cost, maintain throughout the Term a contract or contracts with a contractor or contractors specializing and experienced in the maintenance of HVAC equipment, for the maintenance of the HVAC equipment serving only the Premises, provided that the contract must require that the filters be changed at least every quarter. Notwithstanding the preceding sentences of this Section, if any maintenance, repair or replacement costs more than $20,000 per repair or replacement and has a useful life at least 3 years beyond the end of the then Term, Tenant must obtain Landlord’s approval, which Landlord will not unreasonably withhold, and Tenant will be responsible for such repair or replacement, but the cost will be treated as a capital cost under Section 7.c.(ii) except that the cost will be allocated so that Tenant will pay its amortized share covering the rest of the then Term in one lump sum and Landlord will pay the unamortized portion in one lump sum, and except that if Tenant subsequently extends the Term, Tenant must pay Landlord, in a lump sum due at the beginning of the extension of the Term, the portion of the cost that would be amortized over the extension term.

17.       Landlord’s Maintenance and Repair Responsibilities.   Landlord will, at its sole cost, but subject to reimbursement in accordance with this Lease for all such costs that are Operating Costs, maintain, repair, replace, and keep clean and in good working order: the Outdoor Areas; all other areas outside of the Premises; the exterior surface of all exterior walls, but not including any exterior improvements or elements installed by or for any Tenant Party; the load-bearing elements of load-bearing walls; the foundation of the Premises; and the structural elements of the roof of the Premises. If Tenant believes any part of the Premises needs repairs that Landlord is responsible for under this Lease, Tenant will give Landlord prompt written notice and Landlord will not be responsible for failing to make any such repairs until a commercially reasonable time has elapsed after Landlord received Tenant’s written notice. Landlord’s obligation under this Section is limited to only the repairs this Section requires Landlord to make and Landlord is not liable for any damage or injury arising out of any condition or occurrence that causes a need for such repairs. Tenant waives all rights under and benefits of California Civil Code Sections 1932(1), 1941, and 1942 and under any similar law, statute, or ordinance now or hereafter in effect.

18.       Tenant’s Alterations.   “Alterations” means all improvements any Tenant Party constructs in the Premises, all alterations and modifications any Tenant Party makes to the Premises, and all equipment and personal property that becomes a fixture upon being installed in or attached to the Premises in any manner by any Tenant Party. Tenant has no right to make any Alterations without Landlord’s written consent, except that Tenant does not need Landlord’s consent to make non-structural Alterations that do not affect building systems and cumulatively cost less than $75,000 per Alteration (“Minor Changes”). It is reasonable for Landlord to withhold or condition its consent to any Alteration that would affect the structure of any of the Buildings, any Alteration that would affect the structure of any of the Buildings and any alteration or improvement to the exterior of the Premises. Except for the Tenant Improvements, Landlord also has the right, in its sole discretion, to condition its consent to any Alterations upon the right to require Tenant to remove some or all of those Alterations at the time the Term or Tenant’s right to possession ends and, as to Minor Changes, Landlord will elect within 10 business days after request from Tenant whether the Minor Changes have to be removed at the

 

  19   ServiceNow, Inc.


end of the Term. Tenant will construct and install all Alterations at its sole risk and expense, in a first-class, good, and workmanlike manner, in accordance with any plans and specifications that Landlord has approved in writing, and in accordance with all Laws. Landlord’s approval of any plans and specifications for any Alterations is not a representation by Landlord that such Alterations comply with any Law. Tenant will not make any Alterations that results or would result in a labor dispute or otherwise would materially interfere with Landlord’s operation of the Project. Subject to applicable Law, if any work results in a labor dispute, Tenant will stop the work immediately, remove the workers, contractors, or mechanics responsible for the dispute, and replace them with workers, contractors and mechanics whose work will not result in a labor dispute. The Tenant Improvements and any other Alterations are Tenant’s property until the earlier of the end of the Term or the termination of Tenant’s right to possession, but upon the earlier of the end of the Term or the termination of Tenant’s right to possession, all Alterations will automatically become Landlord’s sole property without signing or delivering any document or taking any action, and without any additional payment or other consideration from Landlord. Notwithstanding the foregoing, Landlord is entitled to depreciation with respect to the Tenant Improvements in the amount of the Allowance and any other allowance Landlord pays. Except to the extent Landlord obligates Tenant to do so in accordance with Section 30, Tenant will not remove any Alterations from the Premises except removable trade fixtures that Tenant installs at its own cost. Tenant will repair any damage that results from removing any Alterations. Tenant will perform all such removals and repairs in a first-class, good, and workmanlike manner. If Tenant fails to remove any Alterations that Landlord has required it to remove, Tenant will reimburse Landlord for the cost of removing them and repairing all damage.

19.       Liens.  Before starting any work or services that could give rise to a lien, Tenant will post on the Premises a Notice of Non-Responsibility and give Landlord at least 10 days’ notice before the work starts so that Landlord can confirm that the Premises have been properly posted, and Tenant will maintain the posting as long as is necessary to give effective notice that Landlord has not authorized and is not responsible for any lienable work, materials, or services. Landlord’s consent to any work does not constitute Landlord’s authorization of such work or services for the purposes of any lien law, and will not subject Landlord’s interest in the Project to liability under any lien law. Tenant must pay when due all charges for all labor, material, and services provided to or for Tenant’s benefit in connection with the Premises, and Tenant will keep the Project free from any liens arising out of any labor, materials, or other services provided to or for Tenant’s benefit. Upon Tenant’s receipt of a preliminary 20-day notice filed by a claimant in accordance with California Civil Code Section 3097 or any successor or similar statute, Tenant will immediately give Landlord a copy of the notice. If any lien is recorded or otherwise placed on all or any part of the Project because of any such labor, materials, or services, Tenant will immediately give Landlord written notice of the lien and remove it of record within 10 days after it receives of notice of the lien. If Tenant fails to remove the lien within 10 days, Landlord has the right, but has no obligation to, remove the lien of record by bond, payment, or other means and Tenant will pay Landlord the full cost of removing the lien within 10 days after demand, including all attorney fees. Tenant is solely responsible for all work, materials, and other services provided with respect to the Premises during the Term except for any improvements Landlord has expressly agreed in this Lease to construct. If Tenant is required to post an improvement bond with a public agency in connection with any work performed by Tenant on or to the Premises, Tenant will include Landlord as an additional obligee.

 

  20   ServiceNow, Inc.


20.      Insurance and Indemnification.

 a.       Tenant’s Insurance.   Tenant will, at Tenant’s sole cost, but for the benefit of both Landlord and Tenant, obtain and maintain throughout the entire Term: (i) commercial general liability insurance on an occurrence form covering claims for bodily injury, death, personal injury or property damage occurring on, in or about the Premises with a combined single limit of not less than $3,000,000, including blanket contractual liability coverage to insure Tenant’s performance of its indemnity obligations under this Lease; (ii) special form property insurance coverage in the amount of the full replacement value of any Alterations other than the Tenant Improvements; (iii) workers compensation insurance as required by Law; (iv) employer’s liability insurance, as required by Law, in the amount of $1,000,000 each accident for bodily injury, $1,000,000 policy limit for bodily injury by disease and $1,000,000 each employee for bodily injury by disease; and (v) automobile liability insurance including coverage for owned, hired, and non-owned automobiles.

 b.       Landlord’s Insurance.   Landlord will, maintain special form property insurance coverage in the amount of the full replacement value of the roof, exterior walls, exterior doors and windows, foundation, floor, and other structural components of the Buildings, including the Warm Shell Work (collectively, the “Building Shell”), the Outdoor Areas, and the Tenant Improvements. Neither Tenant nor any of its affiliates or subtenants is liable to Landlord for any loss or damage (including loss of income), regardless of cause, resulting from any cause covered by the property insurance this Section requires Landlord to maintain. Landlord’s property insurance will include rent loss coverage and may include flood insurance, or earthquake insurance, but Landlord has no obligation to maintain any of those coverages, and provided that Tenant’s obligation to pay for the cost of any earthquake insurance premium will not exceed the lesser of the actual cost of such premium or 3.5 times the cost of the fire and “all risk” policy premium (the “Reimbursable Earthquake Insurance Premium Cap”). Landlord is not obligated to insure any Alterations other than the Tenant Improvements.

 c.       Policy Requirements.   All insurance policies this Lease requires either Landlord or Tenant to maintain must name the other party as an additional insured and must be written with insurance companies licensed to do business in the State of California, with an A.M. Best’s rating of A-VII or better. In addition, Landlord has the right to require Tenant to have Landlord’s Mortgagee named as an additional insured or loss payee on the insurance this Lease obligates Tenant to maintain. Before the Phase 1 Delivery Date, Tenant will deliver to Landlord certificates of insurance evidencing that all insurance this Lease requires Tenant to maintain is in full force and effect. Each such certificate, or the insurance policy, must require the insurer to notify Landlord in writing 30 days before any cancellation or material change in coverage. Tenant must also deliver to Landlord, similar certificates of renewal policies of at least 10 days before each policy expires. All insurance this Lease requires Tenant to maintain must, except for workers’ compensation and employer’s liability insurance, be primary, without right of contribution from any insurance maintained by Landlord, whose insurance is excess insurance only. Any umbrella liability policy or excess liability policy, which must be in “following form”, must provide that if the underlying aggregate is exhausted, the excess

 

  21   ServiceNow, Inc.


coverage will drop down as primary insurance. The limits of insurance Tenant maintains do not limit Tenant’s liability under this Lease. The insurance this Lease requires Tenant to maintain must cover all damage or injury that results from Tenant’s operations of its business or any Tenant Party’s use of the Premises or any other part of the Project, whether such events occur in the Premises or in any other part of the Project, so that Tenant’s insurance carriers, and not Landlord’s, bear such risks of loss.

d.       Waiver.  Landlord and Tenant each hereby releases the other from any claim for any injury to or death of any person or persons or damage to or theft, destruction, loss, or loss of use of any property, or for any loss or damage caused by fire or any other casualty (collectively, a “Loss”), to the greater of the extent such Loss is insured against under any insurance policy the releasing party actually maintains, or to the extent such Loss would be insured by any insurance policy this Lease requires the releasing party to maintain, regardless of whether the negligence of the other party caused or contributed in any manner to such Loss, and regardless of whether the releasing party is self-insuring any such risk.

e.       Increase in Premiums.  Tenant will pay any increase in the premiums for any insurance policies Landlord maintains that results from any use Tenant makes of the Premises. In determining whether increased premiums are the result of Tenant’s use of the Premises, a schedule, issued by the organization making the insurance rate on the Premises, showing the various components of such rate, will be conclusive evidence of the items and charges that make up the insurance rate on the Premises. Tenant will reimburse Landlord for any such additional premiums within 30 days after receiving Landlord’s written invoice.

f.       Indemnification.   Landlord will indemnify and defend Tenant and its officers, directors, and employees from and against any and all losses, damages, claims, suits or actions, judgments and costs (including reasonable attorney fees) arising out of any injury to or death of persons or damage to property occurring in the Outdoor Areas, except to the extent caused by Tenant’s intentional acts or intentional omissions or Tenant’s breach of this Lease. Tenant will indemnify and defend Landlord, any Mortgagee, and their officers, directors, and employees from and against any and all losses, damages, claims, suits or actions, judgments and costs (including reasonable attorney fees) arising out of any injury to or death of persons or damage to property in the Premises, except to the extent caused by Landlord’s intentional acts or intentional omissions or Landlord’s breach of this Lease.

21.     Landlord’s Right to Enter.    Tenant grants Landlord and its authorized representatives the right, upon reasonable prior notice (generally 24 hours), except in the case of an emergency, to enter the Premises at all reasonable times to: (i) inspect the Premises; (ii) perform any obligations this Lease requires or permits Landlord; (iii) show the Premises to prospective purchasers, investors, lenders, tenants, and others (in the last 9 months of the Term); (iv) post notices; (v) maintain, repair, or alter the Premises or any other parts of the Buildings; and (vi) cure any breach of this Lease by Tenant. In entering the Premises under this Section, Landlord will make reasonable efforts to minimize any interference with Tenant’s business use of the Premises. Landlord has the right to use any and all means Landlord deems necessary to

 

  22   ServiceNow, Inc.


enter the Premises in an emergency. Tenant waives any claim for damages or for any injury or inconvenience to or interference with Tenant’s business, or any other loss caused by any entry by Landlord in the Premises except for any claim arising out of the intentional misconduct of Landlord or its agents, employees, contractors or invitees.

22.      Damage or Destruction.  If fire or any other casualty makes all or any part of the Premises untenantable and if the Building Shell and Tenant Improvements can reasonably be expected to be repaired within 270 days from the date of the casualty, Landlord will repair and restore the Building Shell and the Tenant Improvements to substantially the condition in which Landlord delivered them to Tenant and Tenant will, as soon as is reasonably practicable, restore the remainder of the Premises to substantially the same condition that existed before the casualty and reopen for business, and this Lease will remain in full force and effect, except that Rent will abate following such casualty and during Landlord’s repair and restoration work to extent the carrier providing rent loss coverage determines that the casualty damage has rendered the Premises untenantable. If fire or any other casualty makes all or any part of the Premises untenantable and the Building Shell and Tenant Improvements cannot reasonably be expected to be repaired within 270 days from the date of the casualty, or within 90 days during the last 12 months of the Term, either Landlord or Tenant, by written notice to the other within 90 days from the date of the casualty, has the right to terminate this Lease effective on a date within 30 days after the date of such notice. Landlord’s obligation to perform any repairs and restoration is limited to the amount of the actual net insurance proceeds it receives plus its deductible, or that it would have been entitled to receive if Landlord had maintained the property insurance this Lease requires it to maintain, plus deductible unless Tenant agrees to pay the portion of the repairs not covered by insurance. Accordingly, if any Mortgagee refuses to release the proceeds of any casualty insurance to be applied to the repair and restoration of the Premises, Landlord has the right to terminate this Lease upon written notice to Tenant. Each of Landlord and Tenant waives its rights under California Civil Code sections 1932(2) and 1933(4) (which permit the termination of a lease upon destruction of the leased premises), and agrees that this Section governs with respect to any damage to or destruction of the Premises or any other part of the Project.

23.      Condemnation.   If all or any part of the Premises is permanently taken or condemned under any Law, or by right of eminent domain, or by private purchase in lieu of condemnation (a “Taking”), or a material portion of the Outdoor Areas is permanently taken and that Taking materially interferes with Tenant’s use of the Premises, the Term will end on the date possession is to be taken by the authority and Tenant will pay all Rent due up to that date, and Tenant hereby waives any claim against Landlord or the authority effecting the Taking for the value of the unexpired portion of the Term or for damages or for any other reason, except that Tenant reserves the right to make a claim against the authority effecting the Taking for reimbursement of its relocation expenses and for the value of its personal property in the Premises. If a Taking occurs and this Lease is not terminated under the preceding sentence, this Lease will remain in full force and effect and Tenant has no right to any part of any award. Tenant’s rights under this Section are its sole and exclusive rights with respect to any Taking. To the maximum extent permitted by Law, Tenant waives the benefits of any Law that gives Tenant any abatement or termination rights or any right to receive any payment or award in connection with any Taking other than the rights this Section expressly gives Tenant.

 

  23   ServiceNow, Inc.


24.      Assignment, Subletting, and Change in Control.  “Lease Transfer” means any of the following: (i) any assignment or other conveyance or transfer of any or all of Tenant’s rights or obligations under or interest in this Lease (an “Assignment”); (ii) any sublease of all or any part of the Premises or other grant to any other person of any right to occupy or use all or any part of the Premises (a “Sublease”); or (iii) any mortgage, security interest, or other lien or encumbrance on any or all of Tenant’s interest in this Lease or in the Premises. Tenant agrees not to cause or permit any Lease Transfer without Landlord’s prior written consent, except that Landlord agrees that Tenant may, without Landlord’s consent, enter into an Assignment or Sublease with or to a parent, subsidiary, or other entity that owns and controls, or is owned and controlled by Tenant, or is under common ownership and control with Tenant, as a result of a merger or otherwise, or acquires all or substantially all of Tenant’s assets and will continue to carry on Tenant’s business at the Premises (a “Permitted Affiliate Lease Transfer”). The transferee of a Permitted Affiliate Lease Transfer is a “Permitted Transferee”. It is reasonable for Landlord to withhold or condition its consent to any Lease Transfer other than a Permitted Affiliate Lease Transfer if, among other things: (a) Tenant has requested a change in the Permitted Use; or (b) the Lease Transfer requires any Mortgagee’s consent and the Mortgagee does not consent. If Tenant enters into any Assignment, including any Permitted Affiliate Lease Transfer, the assignee must sign and deliver to Landlord an assumption of all of the tenant’s obligations and liabilities under this Lease that arise or relate to any time on and after the Assignment. If Tenant enters into any Assignment or Sublease other than a Permitted Affiliate Lease Transfer, Landlord is entitled to receive, as Additional Rent, 50% of the excess of (1) all sublease rent, any fee paid in connection with any assignment, and all other consideration or compensation of any nature whatsoever that Tenant receives for or in connection with any Assignment or Sublease for use of the Premises, less any brokers’ commission and attorneys’ fees Tenant pays as a result of the Assignment or Sublease, to the extent the commission does not exceed a market rate commission, less the reasonable cost of any work Tenant performs in the Premises or any tenant improvement allowance Tenant pays, and less unamortized TIs, over (2) the Rent allocable to the portion of the Premises covered by the Assignment or Sublease. Landlord’s consent to any particular Lease Transfer is not consent to any other Lease Transfer. This prohibition against assigning or subletting without consent includes a prohibition against any assignment or subletting by operation of law. If Tenant enters into any Assignment or Sublease, Landlord has the right to collect rent or receive rent directly from the assignee, subtenant, or occupant and apply the net amount collected to the Rent, but such collection or receipt of rent will not be deemed a consent to such Assignment or Sublease. Notwithstanding any Lease Transfer, including any Permitted Affiliate Lease Transfer, either without or without Landlord’s consent, Tenant and any guarantor of Tenant’s obligations under this Lease will remain fully and primarily liable for all of the obligations and liabilities of the tenant under this Lease throughout the remainder of the Term, as this Lease is extended, renewed, amended, supplemented, restated, or otherwise modified at any time, jointly and severally with the assignee or other transferee. Except pursuant to a public offering or if Tenant is publicly traded, if all or any part of the ultimate beneficial ownership interests in Tenant are transferred in any manner, in one or more transactions, including but not limited by sale, assignment, bequest, inheritance, merger, consolidation, redemption, issuance of new interests, operation of Law, or any disposition so as to result in a change in the present effective voting control of Tenant by the person or persons holding such voting control on the date of this Lease, that event will constitute an Assignment for the purposes of this Section. Tenant agrees to make available to Landlord or

 

  24   ServiceNow, Inc.


its lawful representatives all organizational books and records of Tenant for inspection at all reasonable times, to ascertain whether there has in fact been a change in control. If Tenant requests Landlord’s consent to any Lease Transfer, Tenant will pay Landlord $500 for Landlord’s internal costs for considering such request, and will also reimburse Landlord, promptly upon demand, for all of Landlord’s reasonable attorney fees incurred in connection with the request.

Other than for a Permitted Affiliate Lease Transfer, if Tenant requests Landlord’s consent to an Assignment of the Lease, or to a Sublease of substantially all of a Building for substantially all of the remaining Term, Landlord has the right to terminate the Lease, if the transfer is of the entire Premises, or recapture the applicable portion of the Premises, as applicable, upon written notice to Tenant. If Landlord exercises this right, the Lease will terminate, or the relevant portion of the Premises will be excluded from the Premises under this Lease, as applicable, effective on the date the proposed Assignment or Sublease would have occurred.

25.      Events of Default.  Any one or more of the following events will, at Landlord’s option, constitute an “Event of Default” under this Lease:

a.       Rent Default.  Tenant fails to pay any installment of Rent as and when due and the failure continues for 5 days.

b.       Non-Rent Default.  Tenant fails to comply with any term of this Lease other than its obligation to pay Rent and either: (i) Tenant fails to cure the default within 30 days after notice (or within any shorter cure period this Lease provides for), or (ii) if Tenant can reasonably cure the default but not within 30 days after notice, (a) Tenant does not promptly start to cure the default but not later than within 30 days after notice, (b) Tenant does not continue to diligently pursue a reasonable cure, (c) Tenant does not act in good faith, or (d) Tenant does not complete its cure of the default within 90 days after the written notice.

c.       Insolvency.      Any of the following (collectively, “Events of Bankruptcy”): (i) Tenant or any guarantor of Tenant’s obligations under this Lease becomes insolvent, as that term is defined in Title 11 of the United States Code entitled Bankruptcy, 11 U.S.C. §101 et seq. (the “Bankruptcy Code”), or under the insolvency Laws of any State, District, Commonwealth or territory of the United States (“Insolvency Laws”); (ii) the appointment of a receiver or custodian for any and all of the property or assets of Tenant or any guarantor of Tenant’s obligations under this Lease, or the institution of a foreclosure action upon any of the real or personal property of Tenant or any guarantor of Tenant’s obligations under this Lease; (iii) the filing of voluntary petition under the provisions of the Bankruptcy Code or Insolvency Laws by Tenant or any guarantor of Tenant’s obligations under this Lease; (iv) the filing of an involuntary petition against Tenant or any guarantor of Tenant’s obligations under this Lease as the subject debtor under the Bankruptcy Code or Insolvency Laws that either is not dismissed within 30 days of filing, or results in the issuance of an order for relief against the debtor, whichever is later; (v) the making or consenting to an assignment for the benefit of creditors or a common law composition of creditors by Tenant or any guarantor of Tenant’s obligations under this Lease; or (vi) the filing of petition or other action to

 

  25   ServiceNow, Inc.


reorganize or modify the capital structure of Tenant or any guarantor of Tenant’s obligations under this Lease if Tenant or such guarantor is a corporation or other business entity.

26.      Remedies.

a.       Remedies for an Event of Default.  At any time after the occurrence of an Event of Default:

(i)       Remain out of Possession.  Landlord has the right to remain out of possession of the Premises and sue Tenant at any time for any and all past-due Rent, for specific performance of Tenant’s obligations under this Lease, and for any other damages or injunctive relief to which Landlord is entitled.

(ii)      Terminate Right to Possession Only.   Landlord has the right, without demand or notice to Tenant, to terminate Tenant’s right to possession of the Premises only without terminating this Lease or the Term, in which case Landlord has the option to pursue any one or more of the following remedies without any notice or demand whatsoever:

(1)      Landlord is entitled to take possession of the Premises. If Tenant or any other Tenant Party fails to surrender possession, Landlord is entitled to evict such Tenant Party pursuant to California law without being liable for prosecution or any claim for damages. No eviction action, and no reentry or accepting or taking possession of the Premises by Landlord constitutes an election by Landlord to terminate this Lease, and Tenant waives any claim that Landlord has terminated this Lease unless Landlord delivers an express written notice of termination to Tenant.

(2)      Landlord has the right to perform on Tenant’s behalf, and at Tenant’s cost, any action this Lease obligates Tenant to perform.

(3)      Tenant must continue to pay all Rent as and when due, even if Landlord has relet any or all of the Premises.

(4)      Landlord has the right to re-let all or any part of the Premises, in the name of Landlord or otherwise, for such term or terms (which may be greater or less than the period that would otherwise have constituted the balance of the Term) and on such other conditions (which may include concessions or free rent) that are satisfactory to Landlord in its sole discretion. Upon any re-letting, Landlord has the right to determine and collect and receive all rent. Landlord will make commercially reasonable efforts to mitigate its damages at any time after terminating Tenant’s right to possession and before terminating this Lease, but Landlord will be deemed to have satisfied any obligation to mitigate damages, whether under this Lease or any Law, if Landlord markets the Premises for lease in the ordinary course of business and uses its reasonable business judgment in determining whether to accept or reject

 

  26   ServiceNow, Inc.


any offer in the same manner it would if this Lease had expired on the scheduled expiration date and Tenant no longer had any obligation to pay any Rent or damages to Landlord.

(5)      If Landlord relets any or all of the Premises, Tenant must pay Landlord, within 10 days after demand, the costs Landlord incurs in such reletting and in making alterations and repairs. Landlord will apply all rent it receives from any re-letting to any indebtedness Tenant owes Landlord other than Net Rent and Operating Costs and Taxes, to the cost of any repairs that are required to return the Premises to good condition, including the cost of alterations and the cost of storing any of Tenant’s property left on the Premises at the time of reletting, and to Net Rent and Operating Costs and Taxes that Tenant owes. Landlord will hold the residue, if any, and apply it to any future Rent or damages resulting from the termination of this Lease as those amounts become due and payable and Landlord is entitled to the balance, if any, at the end of the Term. If the monthly rent Landlord receives from any such reletting during any month is less than the Net Rent and Operating Costs and Taxes Tenant owes under this Lease for that month, Tenant must pay the deficiency to Landlord. Landlord will determine any such deficiency and Tenant will pay the deficiency monthly in advance. No such reletting will be construed as an election by Landlord to terminate this Lease unless Landlord gives Tenant an express written notice that it has terminated this Lease. Notwithstanding any such reletting without termination, Landlord has the right, at any time, to terminate this Lease for Tenant’s previous breach.

(6)      Landlord has the right, in its sole discretion, at any time after having terminated Tenant’s right to possession only, to terminate this Lease in accordance with Section 26.a(iii).

(iii)     Terminate Lease.  Landlord has the right to terminate this Lease at any time after an Event of Default has occurred, including at any time after Tenant’s right to possession has been terminated, by delivering to Tenant a written notice expressly exercising Landlord’s right to terminate this Lease. If Landlord elects to terminate this Lease, Tenant’s right to possession of the Premises will terminate, to the extent it has not already terminated, Tenant must vacate and surrender possession of the Premises to Landlord in the condition this Lease requires upon the expiration of the Term, Landlord has the immediate right of entry and has the right to remove all persons and property from the Premises and all rights and remedies of a landlord under California Civil Code Section 1951.2 or any successor code section, and Tenant will pay to Landlord on demand, and Landlord has the right to recover from Tenant, all damages Landlord incurs as a result of Tenant’s default, including, without limitation, (i) the cost of recovering the Premises, (ii) the worth at the time of award of the unpaid Rent that had been earned at the time of termination; (iii) the worth at the time of award of the amount by which the unpaid Rent that would have been earned after

 

  27   ServiceNow, Inc.


termination until the time of award exceeds the amount of such rental loss that Tenant proves could have been reasonably avoided; (iv) the worth at the time of the award of the amount by which the unpaid Rent for the balance of the Term after the time of award exceeds the amount of such rental loss that Tenant proves could be reasonably avoided; and (v) any other amount necessary to compensate Landlord for all the detriment proximately caused by Tenant’s failure to perform its obligations under this Lease or that in the ordinary course of events would be likely to result from Tenant’s failure to perform its obligations under this Lease. The “worth at the time of award” of the amounts referred to in clauses (ii) and (iii) of the preceding sentence is computed by allowing interest at the rate of 10% per annum. The “worth at the time of award” of the amount referred to in clause (iv) above will be computed by discounting such amount at the discount rate of the Federal Reserve Bank of San Francisco at the time of award plus 1%. Tenant waives the provisions of Section 1179 of the California Code of Civil Procedure (which Section allows Tenant to petition a court of competent jurisdiction for relief against forfeiture of this Lease). Landlord may sore any property Landlord removes from the Premises in a public or private warehouse or elsewhere at the sole cost and expense of Tenant, which Tenant must pay within 10 days after demand. If Tenant does not pay the cost of storing such property after it has been stored for 30 days or more, Landlord has the right to sell any or all of the property at a public or private sale in such manner and at such times and places that Landlord, in its sole discretion, deems proper, without notice to or demand upon Tenant. Nothing in this Section 26 limits or prejudices Landlord’s right to prove and obtain damages in an amount equal to the maximum amount allowed by Law, regardless of whether such damages are greater than the amounts this Section obligates Tenant to pay. If the fair market rental value of the Premises for the remaining Term exceeds the Rent under this Lease, Landlord is solely entitled to receive the benefit of that excess after applying the excess to any remaining amounts Tenant owes under this Lease.

b.       Landlord’s Right to Cure.    If Tenant fails to perform any of its obligations under this Lease beyond any notice and cure period to which it is entitled, Landlord has the right, at Landlord’s option without any obligation to do so, and in its sole discretion as to whether it is necessary to do so, to perform any such obligation on Tenant’s behalf, without any liability or responsibility for any loss or damage to Tenant or anyone holding under or through Tenant sustains as a consequence. If Landlord so performs any of Tenant’s obligations under this Lease, Tenant must pay to Landlord all damages Landlord incurs as a result, including the cost of performing Tenant’s obligations on behalf of Tenant, within 10 days after demand.

c.       Remedies are Cumulative.   Landlord is entitled to exercise any other right or remedy allowed at law or in equity or by statute or otherwise, including, without limitation, all rights and remedies Landlord has under California Civil Code Section 1951.4 or any successor Code section or any other California statute. If Tenant breaches or threatens to breach this Lease, Landlord is entitled to enjoin such breach or threatened breach and has the right to invoke any right or remedy allowed at law or in equity or by statute or otherwise as though entry, reentry, summary proceedings and other remedies

 

  28   ServiceNow, Inc.


were not provided for in this Lease. Each remedy or right this Lease grants to Landlord is cumulative and is in addition to every other right or remedy this Lease grants Landlord, or now or hereafter existing at law or in equity or by statute or otherwise, and the exercise or the beginning of the exercise by Landlord of any one or more of such rights or remedies will not preclude the simultaneous or later exercise by Landlord of any or all other rights or remedies.

d.       Enforcement Costs.  If Tenant defaults under this Lease, Tenant must pay to Landlord, within 10 days after demand, all costs Landlord incurs in connection with enforcing Landlord’s rights or Tenant’s obligations under this Lease, including attorney fees, expert fees, court costs, and filing, service and recording fees. In the case of any other proceeding between the parties, the party that loses must pay the prevailing party all costs the prevailing party incurs in connection with the proceeding, including attorney fees, expert fees, court costs, and filing, service and recording fees.

e.       Waivers.   Tenant hereby waives and relinquishes, to the fullest extent permitted by Law, any and all right of redemption or reentry or repossession or to revive the validity and existence of this Lease if Tenant is dispossessed by a judgment or by order of any court having jurisdiction over the Premises or the interpretation of this Lease, in case of any entry, reentry or repossession by Landlord, or in case of any expiration or termination of this Lease. Landlord and Tenant hereby expressly waive any right to a jury trial in any matter relating to this Lease, the use or occupancy of the Premises or any other part of the Project, or any claim of injury, loss, or damage. Venue on any action instituted with respect to any matter related to this Lease or the Premises is proper only in Santa Clara County, California. Tenant waives the right to seek any injunctive relief that would stay, extend, or otherwise toll any time limitation in this Lease or in any notice delivered in connection with this Lease. If Tenant claims that Landlord has acted unreasonably or unreasonably delayed acting in any case where this Lease or any Law requires Landlord to act reasonably or promptly, Tenant agrees that Landlord is not liable for any monetary damages and that Tenant’s sole remedy is to commence an action seeking injunctive relief or a declaratory judgment.

f.       Landlord Default.  Landlord will not be deemed to be in default under this Lease unless Landlord fails to perform obligations required of Landlord within 30 days after written notice by Tenant to Landlord and to each Mortgagee whose name and address has then been delivered to Tenant in writing; provided that Landlord will diligently attempt to complete any emergency repairs it is obligated to perform under this Lease as soon as is commercially reasonable, and further provided that if the nature of Landlord’s obligations is such that more than 30 days are required for performance, then Landlord is not in default if Landlord commences performance within such 30-day period and thereafter diligently prosecutes the same to completion. Except to the extent this Lease expressly provides to the contrary, if Landlord fails to perform any of its obligations under this Lease, Tenant’s sole remedy is to sue Landlord in a court of competent jurisdiction; Tenant waives and agrees that it has no right to offset any amounts Landlord owes it against any Rent. Landlord’s liability to Tenant for any default by Landlord under this Lease is limited to Landlord’s actual interest in the Project and Tenant may look only to Landlord’s interest in the Project for the satisfaction of any

 

  29   ServiceNow, Inc.


liability. Tenant hereby waives and agrees not to seek any recourse against any partner, member, shareholder, director, governor, officer, manager, agent, or employee of Landlord.

g.       Insolvency or Bankruptcy.  Any Event of Bankruptcy gives Landlord the right to terminate this Lease by written notice to Tenant; provided, however, that this Section 26.g will have no effect while a case in which Tenant is the subject debtor under the Bankruptcy Code is pending, unless Tenant or its trustee in bankruptcy is unable to comply with the provisions of this Section 26.g. Otherwise, this Lease will automatically cease and terminate, and Tenant is immediately obligated to quit the Premises upon the giving of notice pursuant to this Section 26.g. Tenant hereby waives any other notice to quit or notice of Landlord’s intention to re-enter. If Landlord elects to terminate this Lease, all of Landlord’s obligations under this Lease will cease without prejudice, subject however, to the right of Landlord to recover from Tenant all Rent and other sums accrued up to the time of termination or recovery of possession by Landlord, whichever is later, and any other monetary damages or loss of Rent sustained by Landlord. If Tenant becomes the subject debtor in a case pending under the Bankruptcy Code, Landlord’s right to terminate this Lease pursuant to this Section 26 is subject to the rights of the trustee in bankruptcy to assume or assign this Lease. The trustee will not have the right to assume or assign this Lease unless the trustee promptly cures all defaults under this Lease, promptly compensates Landlord for monetary damages the default causes, and provides adequate assurance of future performance. Landlord and Tenant hereby agree in advance that adequate assurance of future performance, as used in this Section 26.g, will mean that all of the following minimum criteria must be met: (i) the trustee must pay to Landlord, at the time the next payment of Rent is then due under this Lease, in addition to such payment of Rent, an amount equal to the next three months’ Rent due under this Lease less the Security Deposit, to the extent the Security Deposit is unapplied, not subject to prior claims, and available to Landlord for use as a security deposit, and to the extent the requirement in this first criterion is enforceable, and Landlord will hold that amount in escrow until either the trustee or Tenant defaults in its payments of Rent or other obligations under this Lease (whereupon Landlord will have the right to draw upon such escrowed funds) or until the expiration of the Term (whereupon the funds will be returned to the trustee or Tenant); (ii) Tenant or the trustee must agree to pay to Landlord, at any time Landlord is authorized to and does draw on the funds escrowed pursuant to clause (i) of this Section 26.g, the amount necessary to restore such escrow account to the original level required by that provision; (iii) Tenant must pay its estimated pro rata share of the cost of all services provided by Landlord (whether or not the cost of such services is to be passed through to Tenant) in advance of the performance or provision of such services; (iv) the trustee must agree that Tenant’s business will be conducted in a first class manner, and that no liquidating sales, auctions, or other non-first class business operations will be conducted in the Premises; (v) the trustee must agree that the permitted use of the Premises as stated in this Lease will remain unchanged; and (vi) the trustee must agree that the assumption or assignment of this Lease will not violate or affect the rights of other tenants in the Project. If Tenant is unable to (A) cure its defaults, (B) reimburse Landlord for its monetary damages (C) pay the Rent due under this Lease, or any other payments required of Tenant under this Lease, on time (or within 5 days of the due date), or (d) meet the criteria and obligations imposed by this Section 26.g, then

 

  30   ServiceNow, Inc.


Tenant agrees in advance that it has not met its burden to provide adequate assurance of future performance, and Landlord has the right to terminate this Lease in accordance with this Section 26.g. Landlord and Tenant expressly acknowledge that the Project and the Premises are part of a Project within the meaning of 11 U.S.C. § 101 et seq.

27.      Hazardous Materials.  Tenant will not engage or permit any other Tenant Party to engage in any activity in the Premises or in the Project that involves the use, generation, transportation, treating, handling, storage, manufacture, emission, disposal, spill, release, leek, seepage, or discharge of any dangerous, toxic or hazardous pollutants, wastes or substances as defined in the Federal Comprehensive Environmental Response Compensation and Liability Act of 1980, the Federal Resource Conservation and Recovery Act of 1976, or any other federal, state or local environmental Laws now in effect, as hereafter amended, and as hereafter enacted (“Hazardous Materials”), in violation of any Law. Promptly after learning of the occurrence of any of the following, Tenant agrees to give Landlord written notice of the following, describing the occurrence and the steps Tenant has taken, is taking, and intends to take with respect to the following: (i) the spill, release, leak, seepage, discharge or clean-up of any Hazardous Material in the Project, (ii) any litigation, arbitration proceeding or governmental proceeding against Tenant that affects the Premises, (iii) the delivery of any notice from a governmental agency that Tenant’s operations in the Premises are not in compliance with environmental, health and safety Laws, (iv) the delivery of any notice that Tenant is subject to federal or state investigation evaluating whether any remedial action is needed to respond to the release of any Hazardous Material or other substance from the Premises into the environment, or (v) the delivery of any notice that the Premises are subject to a lien in favor of any governmental entity for any liability under federal or state environmental Laws or damages arising from or costs incurred by such governmental entity in response to a release of a Hazardous Material or other substance into the environment. Tenant will indemnify and defend Landlord against all claims, actions, damages, losses, liabilities and expenses including actual attorney fees incurred by Landlord as a result of any use, generation, transportation, treating, handling, storage, manufacture, emission, disposal, spill, release, leek, seepage, or discharge of Hazardous Materials inside the Premises during the Term by any person other than Landlord or its employees or agents, or anywhere in the Project outside the Premises during the Term by Tenant or its employees or agents. Landlord will indemnify and defend Tenant against all claims, damages, fines, judgments, penalties, costs, liabilities or losses (including, without limitation, any and all sums paid for settlement of claims, attorney fees, consultant fees, and expert fees) arising at any time from or in connection with the presence or release, or suspected presence or release, of Hazardous Materials in the Premises or anywhere else in the Project, except to the extent the presence or release, or suspected presence or release occurred inside the Premises during the Term or was caused by any Tenant Party. Tenant’s and Landlord’s obligations under this Section will survive the expiration of the Term or the earlier cancellation or termination of this Lease or Tenant’s right to possession.

28.      Subordination; Attornment; Notice to Mortgagee.   Landlord represents to Tenant that, on the date of this Lease is no deed of trust, mortgage, or other security instrument encumbers any part of the Project.

a.       Subordination.    This Lease is and will remain entirely subject and subordinate to the lien and the terms of any deed of trust, mortgage or other security instrument or any ground lease (each of such instruments, together with any

 

  31   ServiceNow, Inc.


replacements, renewals, amendments, modifications, or extensions is a “Mortgage”), that on or at any time after the date of this Lease covers all or any part of the Premises (the mortgagee under any Mortgage such mortgage or the lessor under any such lease, and any person acquiring any interest in the Premises or this Lease by or through any such mortgagee or lessor is referred to in this Lease as a “Mortgagee”), provided that, so long as this Lease is in full force and effect, Tenant is entitled to possession of the Premises, and Tenant is not then in default under this Lease beyond any grace or cure period this Lease grants Tenant, this Lease will not be extinguished or terminated by a proceeding to foreclose or otherwise enforce any Mortgage or by a conveyance in lieu of foreclosure, but rather, this Lease will continue in full force and effect as a direct lease between Tenant and the new owner of the Premises following a foreclosure sale or conveyance in lieu of foreclosure (“New Owner”) except that, notwithstanding anything else in this Lease to the contrary, Mortgagee and New Owner: (i) will not be bound by any amendment, supplement, termination, or other modification of this Lease that Mortgagee did not consent to in writing; (ii) will not be bound by any prepayment of Rent that Tenant has made in excess of the Rent then due for the next succeeding month; (iii) will not be liable for the return of any cash security deposit or other security for Tenant’s obligations except to the extent Mortgagee or New Owner actually received the cash security deposit or other security; (iv) will not be liable for any act, omission, or breach whatsoever by any landlord under this Lease that occurs before New Owner acquires title to and possession of the Premises; (v) will not be subject to any claim, right of set-off or defense that Tenant may have against any prior landlord, provided that New Owner will be obligated to cure any continuing default (other than a default that consists of a failure to pay to Tenant any money) that exists on such date, to the extent such default continues on and after such date; and (vi) will not be personally liable under this Lease, and New Owner’s liability will be limited to New Owner’s interest in the Project. Tenant will, within 15 days after request, sign and deliver to Landlord a Subordination, Non-Disturbance, and Attornment Agreement in favor of any Mortgagee on any commercially reasonable form the Mortgagee requests that is not materially less favorable to Tenant than the terms in the preceding sentences of this paragraph. Notwithstanding the foregoing, any Mortgagee has the right to elect, at any time, unilaterally, to make this Lease superior to its Mortgage by so notifying Tenant in writing. No Mortgagee will have any liability or responsibility under or pursuant to the terms of this Lease or otherwise after it ceases to own an interest in the Premises. No Mortgagee will have any liability or obligation whatsoever to Tenant with respect to environmental matters or releases of hazardous materials that occurred or at any time when the Mortgagee was not in possession of, operating, and making hazardous materials decisions with respect to the Project. No Mortgagee has any obligation to regulate Landlord’s use of the proceeds of any loan, and no amendment or other modification of any of the documents evidencing and securing any loan will affect Tenant’s obligations under this Lease. Any sale or other transfer by New Owner of its interest in the Premises will automatically release and discharge New Owner from all liability accruing under this Lease after the date of the transfer.

b.       Attornment.   Tenant agrees to attorn to any person who succeeds to Landlord’s interest in the Premises, whether by purchase, foreclosure, deed in lieu of foreclosure, power of sale, termination of lease, or otherwise, upon such person’s request, and agrees to sign any agreements confirming the attornment that such person reasonably requests.

 

  32   ServiceNow, Inc.


c.       Notice to Mortgagees.  Tenant agrees not seek to enforce any remedy it may have for any default by Landlord without first giving written notice by certified mail, return receipt requested, specifying the default in reasonable detail, to any Mortgagee whose address has been given to Tenant, and affording such Mortgagee 30 days to perform Landlord’s obligations under this Lease. If Landlord’s default cannot be cured within such 30-day period, the time within which Mortgagee is entitled to cure will be extended as long as is reasonably necessary to complete the cure so long as Mortgagee proceeds promptly to effect a cure and thereafter pursues curing the default with diligence. Any Mortgagee’s cure of any default by Landlord will not constitute such Mortgagee’s assumption of any of Landlord’s obligations under this Lease.

29.      Estoppel Certificates.  Within 10 business days after each request, Tenant will sign and deliver an estoppel certificate addressed to Landlord and any Mortgagee, assignee of any Mortgagee, prospective purchaser, and other person Landlord specifies. Each estoppel certificate will contain the following information: (i) whether Tenant is in possession of the Premises and continuously conducting its business in the Premises for the Permitted Use and as otherwise required by this Lease; (ii) whether this Lease is unmodified and in full force and effect and, if there has been a modification of this Lease, the certificate will state that this Lease is in full force and effect as modified and will set forth the modification; (iii) whether, to the best of Tenant’s knowledge, there is then any default under this Lease by either Tenant or Landlord; (iv) whether Tenant then claims any existing set-offs or defenses against the enforcement of any right or remedy of Landlord (and if so, specifying the same); (v) the dates, if any, to which any Rent has been paid in advance; and (vi) such other matters Landlord requests. Landlord, Mortgagee, and any prospective purchaser or mortgagee of the Premises has the right to conclusively rely upon any such estoppel certificate delivered by Tenant. If Tenant fails to deliver such estoppel certificate within 10 business days after request, Landlord, Mortgagee, and any prospective purchaser or mortgagee of the Premises is entitled to rely upon the statements in the proposed estoppel certificate Landlord submitted to Tenant with the same effect as if Tenant had signed and delivered the estoppel certificate when required. Notwithstanding that Landlord and such other parties is entitled to rely upon an estoppel certificate that Tenant fails to return when required, Tenant’s failure to deliver an estoppel certificate when required is a default under this Lease and Tenant agrees to indemnify Landlord against any loss, cost, damage or expense, incidental, consequential, or otherwise, arising or accruing directly or indirectly, from any failure to sign and deliver to Landlord any such estoppel certificate, together with any and all Enforcement Expenses.

30.      Surrender.   At or before the end of the Term or the earlier termination of Tenant’s right to possession, Tenant will vacate and surrender possession of the Premises to Landlord in the condition this Lease requires Tenant will, before the end of the Term or Tenant’s right to possession: (i) remove and properly dispose of all removable equipment, inventory, furniture, furnishings, and any other personal property, garbage, or waste from the Premises and leave the Premises broom clean; (ii) remove all telecommunications equipment, including satellite dishes and wiring and cabling, that any Tenant Party has installed in or about the Premises, in accordance with Law; (iii) remove any part of any Alterations other than the Tenant

 

  33   ServiceNow, Inc.


Improvements that Landlord requires Tenant to remove in accordance with this Lease; and (iv) except to the extent Landlord gives Tenant express written notice that relieves Tenant of the obligation to do so, Tenant must put the Premises, including the HVAC and other building systems, in good working order, subject only to reasonable wear and tear and casualty or condemnation damage. For the purposes of the preceding sentence, “reasonable wear and tear” does not include any damage or deterioration that Tenant could have prevented by good maintenance and repair practice or that Tenant could otherwise have avoided by fully complying with its obligations under this Lease. At any time during or after the last 9 months of the Term, Tenant will, at Landlord’s request, deliver to Landlord copies of all: (1) surveys, plans, drawings and specifications that relate to the Premises, including the Tenant Improvements and any other Alterations; (2) records relating to the generation, transporting, storing, treating, or disposing of any Hazardous Materials from the Premises during the Term; (3) engineering reports, inspection reports, maintenance logs, inspection reports, and other information that relates to the maintenance, repair, and replacement of the HVAC system and other building systems in the Premises; and (4) warranties and guarantees that cover the Tenant Improvements and any other Alterations. In addition, Landlord has the right, in anticipation of the end of the Term or Tenant’s right to possession, to enter the Premises to inspect and test the HVAC and other building systems in the Premises. Tenant will repair any damage that results from removing any Alterations, trade fixtures, and personal property and restore the affected areas to a condition as good as their condition on the date Tenant took possession. Tenant will perform all such removals and repairs in a first-class, good, and workmanlike manner. If the Premises are not in the condition this Lease requires when Tenant surrenders possession, Tenant will, within 10 days after demand, pay Landlord the reasonable cost of all work required to put the Premises in the condition this Lease requires, regardless of whether Landlord actually performs any or all of such work, plus any other damages Landlord suffers as a result of Tenant’s default.

31.      Holding Over.  If Tenant remains in possession of all or any part of the Premises after the Term or Tenant’s right to possession ends, Landlord has the option, in its sole discretion, to evict Tenant or treat Tenant as a hold over tenant. If Landlord elects to evict Tenant, Tenant will pay, as liquidated damages for Landlord’s loss of use of the Premises, with respect to each full or partial month in which Tenant retains possession after its right to possession ends, 150% of the monthly Net Rent and 100% of the monthly Additional Rent that was due for the last full calendar month before Tenant’s right to possession ended, plus any additional damages Landlord incurs because it is unable to deliver all or any part of the Premises to a replacement occupant, plus all other damages and remedies to which Landlord is entitled. If Landlord elects to treat Tenant as a hold over tenant, Tenant will be a tenant of the Premises under a new month-to-month tenancy (and not under an extension or renewal of the term of this Lease) on all terms of this Lease except those that do not apply to or are inconsistent with a month-to-month hold over tenancy, and except that Tenant will pay, in addition to all other Rent, monthly Net Rent in the amount of 150% of the monthly Net Rent and 100% of the monthly Additional Rent that was due for the last full month before Tenant’s right to possession ended. This Section will survive the expiration of the Term or the earlier cancellation or termination of this Lease or Tenant’s right to Possession. This Section does not limit or waive any other rights or remedies Landlord has under this Lease, at law, or in equity.

 

  34   ServiceNow, Inc.


32.      Notices.   All notices and demands this Lease requires or permits must be in writing and must be sent by either: (i) certified or registered mail, postage prepaid; or (ii) personal delivery; or (iii) by an international next-business day delivery courier service; or (iv) by email, to the addresses below:

Notices to Landlord must be addressed to:

Jay Ridge LLC

5753 Wayzata Boulevard

St. Louis Park, MN 55416

with required copies addressed to:

Jay Ridge LLC

c/o United Capital Corp.

Suite 501

63 Bovet Road

San Mateo, CA 94402-3104

and to:

Fabyanske, Westra, Hart & Thomson, P.A.

Attn:  Steven C. Cox

Suite 1900

800 LaSalle Avenue

Minneapolis, MN 55402

[email protected]

Notices to Tenant must be addressed to:

Before the Term:

ServiceNow, Inc.

1732 N. First Street, 5th Floor

San Jose, CA 95112

Attn:  CFO

After the Phase 1 Delivery Date:

ServiceNow, Inc.

3250 Jay Street

Santa Clara, CA 95954

Attn:  CFO

After the Phase 2 Delivery Date:

At the street address for the Phase 2

Premises that Tenant designates by

notice to Landlord

Attn:  CFO

 

  35   ServiceNow, Inc.


In each case with copies to:

ServiceNow, Inc.

4810 Eastgate Mall

San Diego, CA 92121

Attn:  CFO

and

Colliers International

5050 Hopyard Road, Suite 180

Pleasanton, CA 94588

Attn:  Jim Abarta

and

Hopkins & Carley

200 Page Mill Road, Suite 200

Palo Alto, CA 94306

Attn:  Garth E. Pickett

All notices so sent will be deemed to have been received by the recipient on the earlier of actual receipt, the third business day after mailing, the next business day after deposit with a courier service for next-business day delivery, or on the date the return receipt was signed or receipt was refused by the receiving person. Each of Landlord and Tenant has the right to change its address for notices by notice of the new address given in accordance with this Section.

33.      Satellite.   Tenant has the right, at Tenant’s cost, to install a satellite antenna or dish on the roof of the Premises, subject to Landlord’s reasonable requirements, subject to obtaining any required approval from the City, and subject to and in accordance with all applicable laws and ordinances. Landlord may reasonably require Tenant to screen the antenna or dish, and may impose reasonable height and width limits. If Tenant installs any satellite equipment on the roof, Tenant must remove all equipment, including cables, and repair all damage, before Tenant surrenders possession of the Premises to Landlord.

34.      Additional Provisions.

a.      Captions and Headings.   The captions and headings in this Lease are for convenience only and do not in any way limit and should not be deemed to construe or interpret the terms and provisions of this Lease.

b.      Time of the Essence.   Time is of the essence of this Lease, except with respect to the delivery of possession of the Premises at the commencement of the Term, and except to the extent this Lease expressly provides to the contrary.

c.      Joint and Several Liability.   If Tenant is comprised of more than one person, all of such persons are jointly and severally liable.

 

  36   ServiceNow, Inc.


d.      Nondisclosure of Lease Terms.   The terms of this Lease are proprietary information of Landlord’s that Tenant agrees to keep confidential. Tenant’s disclosure of the terms of this Lease could impair Landlord’s ability to negotiate other leases or relationship with other tenants. Accordingly, Tenant agrees not to directly or indirectly disclose the terms of this Lease to any other tenant or prospective tenant of the Project or to any other person or entity other than Tenant’s employees and agents who have a legitimate need to know such information and who will also keep the information in confidence.

e.      Entire Agreement.   This Lease sets forth all the covenants, promises, agreements, conditions and understandings between Landlord and Tenant concerning the Premises, and it supersedes all prior agreements, representations, negotiations, and correspondence between the parties. No subsequent alteration, amendment, change, or addition to this Lease binds Landlord or Tenant unless it is in writing and both parties sign and deliver it.

f.      Construction.  Landlord and Tenant acknowledge that competent counsel represented them in negotiating, drafting, executing, and delivering this Lease and hereby waive the benefit of any principle that it should be construed against the party that drafted it.

g.     No Partnership.   Landlord is not, in any manner or for any purpose, a partner of Tenant in the conduct of its business, or otherwise, or a joint adventurer or a member of a joint enterprise with Tenant. Neither party is a fiduciary of the other, and each party hereby waives any claim that the other party owes it a fiduciary duty under or in connection with this Lease.

h.     Force Majeure.   If either party to this Lease is delayed or hindered in or prevented from performing any act this Lease requires by natural disasters, strikes, lock-outs, labor troubles, inability to procure materials, power blackouts, government restrictions, riots, war or other similar reasons that are not the fault of that party, then the obligation to perform that act will be postponed for the period of the delay. This Section does not excuse Tenant from its obligation to pay any Rent when due.

i.      Severability.    If any term, covenant or condition of this Lease or its application to any person or circumstance is, to any extent, invalid or unenforceable, the remainder of this Lease, or the application of such term, covenant or condition to persons or circumstances other than those as to which it is held invalid or unenforceable, will not be affected by such invalidity or unenforceability, and each term, covenant or condition of this Lease will be valid and enforced to the fullest extent permitted by Law.

j.      Assignment by Landlord.   Landlord’s obligations and liabilities under this Lease are limited to its actual period of ownership of the Project. Therefore, if Landlord sells or otherwise transfers its interest in the Project, Landlord will, without the need for any additional written agreement, be automatically released from all obligations and liabilities that arise under this Lease with respect to any period after the sale or other transfer, except that if the transferor does not transfer the unapplied balance of the Security Deposit to the transferee, the transferor will remain liable for the return of the unapplied balance of the Security Deposit.

 

  37   ServiceNow, Inc.


k.      Successors and Assigns.    Subject to Section 34.j, all of the terms, covenants, and conditions of this Lease bind and inure to the benefit of the heirs, executors, personal representatives, administrators, successors and assigns of the parties to this Lease, provided that this Section 34.k does not permit any assignment, subletting, occupancy or use that any other provision of this Lease prohibits.

l.       No Waiver.   Landlord’s waiver of any breach of any term, covenant, or condition in this Lease is not a continuing waiver of such term, covenant, or condition, and does not waive any subsequent breach of the same or any other term, covenant of condition in this Lease. Landlord’s acceptance of Rent under this Lease does not waive any preceding breach by Tenant of any term, covenant, or condition of this Lease, other than the failure of Tenant to pay the particular Rent so accepted, regardless of Landlord’s knowledge of such preceding breach at the time Landlord accepts such Rent.

m.     No Merger.   Tenant’s voluntary or other surrender of this Lease, or the parties’ cancellation of this Lease, will not work a merger, but will, at Landlord’s option, terminate all or any existing subleases or subtenancies, or operate as an assignment to Landlord of any or all such subleases or subtenancies. Notwithstanding the foregoing, Tenant acknowledges that it does not have the right voluntarily to surrender the Premises.

n.      Survival.   Except to the extent this Lease expressly states to the contrary, all of Tenant’s and Landlord’s rights, liabilities, and obligations under this Lease will survive the expiration of the Term or the earlier cancellation or termination of this Lease.

o.      Memorandum of Lease.    Tenant will not record this Lease or any memorandum, short form, or notice of this Lease in the real estate records.

p.      Brokers.   Craig L. Fordyce, Michael L. Rosendin, and Shane Minnis of Colliers International (“Landlord’s Broker”) have represented Landlord and Jim Abarta of Colliers International (“Tenant’s Broker”) has represented Tenant in connection with this Lease. Each of Landlord and Tenant represents and warrants to the other that, except for its broker listed in the preceding sentence, it has not employed any broker, agent, or finder in connection with the negotiation or execution of this Lease. Each of Landlord and Tenant will indemnify the other against any claim or claims for brokerage or other commissions arising from or out of any breach of the foregoing representation and warranty by the indemnifying party or any expenses including attorney’s fees incurred by the indemnitee in enforcing the foregoing right to indemnification. Landlord is responsible for the commission owed to Landlord’s Broker pursuant to a separate written agreement between Landlord and Landlord’s Broker, and Landlord’s Broker will share its commission with Tenant’s Broker pursuant to separate written agreement between Landlord’s Broker and Tenant’s Broker.

q.      Governing Law.   The internal laws of the State of California govern the interpretation and enforcement of this Lease, without applying any conflict of laws principles.

 

  38   ServiceNow, Inc.


r.      Telecommunications.    Tenant and its telecommunications companies, including but not limited to local exchange telecommunications companies and alternative access vendor services companies have no right of access to or within the Project for the installation and operation of telecommunications systems, including but not limited to voice, video, data, and any other telecommunications services provided over wire, fiber optic, microwave, wireless, and any other transmission systems, for part or all of Tenant’s telecommunications within the Premises and from the Premises to any other location without Landlord’s prior written consent, which consent Landlord will not unreasonably withhold.

s.      Disclaimer of Warranty.    Landlord expressly disclaims any express or implied warranty that the Premises are suitable for Tenant’s intended use, and Tenant agrees that its obligation to pay Rent is not dependent upon the condition of the Premises or Landlord’s performance of any of its obligations under this Lease, and, except to the extent this Lease expressly provides to the contrary, Tenant must continue to pay all Rent, without abatement, set off or deduction, notwithstanding any breach by Landlord of its duties or obligations under this Lease, whether express or implied. Landlord expressly disclaims any express or implied warranty that any specific tenant or tenants will be open in any other space in the Project at any time during the Term, or that any particular type or number of tenants will be open in any other spaces in the Project at any time during the Term, and Tenant acknowledges and agrees that it is not entering into this Lease in reliance upon any such representation or warranty by or on behalf of Landlord.

t.      Financial Statements.    Within 15 days after Landlord’s request, Tenant will deliver to Landlord the most recent financial statements (including any notes) of Tenant and any guarantor of Tenant’s obligations under this Lease, or, if audited statements have not been prepared, reviewed or compiled financial statements (including any notes) prepared by an independent certified public accountant, if no such statements have been prepared, Tenant’s and any such guarantor’s internally-prepared financial statements. At any time when the shares or other ownership interests in Tenant or any guarantor of Tenant’s obligations under this Lease are publicly traded and listed with the Securities and Exchange Commission, Tenant has no obligation to provide financial statements to the extent such financial statements are publicly available on the SEC’s EDGAR website or any similar system. Landlord will not disclose any aspect of Tenant’s financial statements that Tenant designates to Landlord as confidential except to Landlord’s Mortgagee or prospective purchasers or mortgagees of the Project, in litigation between Landlord and Tenant, and to the extent required by law. Landlord will not require Tenant to deliver financial statements more than once in any 12-month period, except that Tenant will deliver such financial statements more frequently at Landlord’s request if an Event of Default occurs or if at the request of Landlord’s Mortgagee or a prospective buyer or mortgagee of the Project.

u.      Consents and Approvals.    Except to the extent this Lease expressly provides to the contrary, neither party will unreasonably withhold, condition or delay any consent or approval this Lease requires the other party to obtain from it

 

  39   ServiceNow, Inc.


Signature Page Follows

 

  40   ServiceNow, Inc.


Landlord and Tenant hereby sign this Lease Agreement.

 

Jay Ridge LLC
By:  

/s/ John Scholz

Name:  

John Scholz

Title:  

Manager

ServiceNow, Inc.
By:  

/s/ Michael P. Scarpelli

Name:  

Michael P. Scarpelli

Title:  

CEO

 

  41   ServiceNow, Inc.


EXHIBIT A-1

Site Plan Depicting Premises and Project

 

  42   ServiceNow, Inc.


LOGO


EXHIBIT A-2

Trees Tenant Desires to have Removed

 

  43   ServiceNow, Inc.


LOGO


LOGO


LOGO


LOGO


EXHIBIT B

Legal Description of the Land

The real property in the City of Santa Clara, County of Santa Clara, State of California, described as follows:

PARCEL ONE:

ALL OF PARCEL 2, AS SHOWN UPON THAT CERTAIN MAP ENTITLED, “PARCEL MAP ALL OF PARCEL OF LAND BOUNDED BY JAY STREET, BY SCOTT BOULEVARD, BY SAN TOMAS EXPRESSWAY AND DUANE AVENUE AS SHOWN ON THAT CERTAIN “RECORD OF SURVEY” RECORDED IN BOOK 238 OF MAPS, PAGE 32 S.C.C. RECORDS”, WHICH MAP WAS FILED FOR RECORD IN THE OFFICE OF THE RECORDER OF THE COUNTY OF SANTA CLARA, STATE OF CALIFORNIA ON OCTOBER 4, 1977 IN BOOK 405 OF MAPS, AT PAGE 19.

EXCEPTING THEREFROM THAT PORTION THEREOF AS CONVEYED TO THE STATE OF CALIFORNIA, BY DEED RECORDED IN BOOK F963 PAGE 460, OFFICIAL RECORDS AND BEING MORE PARTICULARLY DESCRIBED AS FOLLOWS:

A PORTION OF THE PARCEL OF LAND CONVEYED TO RICHARD T. PEERY, ET AL, BY DEED RECORDED NOVEMBER 23, 1976 IN BOOK C430 AT PAGE 747, OFFICIAL RECORDS OF SANTA CLARA COUNTY, SAID PORTION BEING DESCRIBED AS FOLLOWS:

COMMENCING AT A POINT ON THE BOUNDARY OF PARCEL “H”, AT THE NORTHEASTERLY TERMINUS OF THE COURSE DESIGNATED AS N. 69 07’ 54” E., 392.68 FEET, AS SAID PARCEL “H” AND COURSE ARE SHOWN UPON THAT CERTAIN RECORD SURVEY MAP FILED IN BOOK 238 OF MAPS AT PAGE 29, SANTA CLARA COUNTY RECORDS; THENCE ALONG SAID BOUNDARY S. 69 08’ 38” W. 29.52 FEET; THENCE FROM A TANGENT THAT BEARS N. 69 08’ 39” E. ALONG A CURVE TO THE RIGHT WITH A RADIUS OF 212.00 FEET, THROUGH AN ANGLE OF 37 15’ 26”, AN ARC LENGTH OF 137.86 FEET TO SAID BOUNDARY OF PARCEL “H”; THENCE ALONG SAID BOUNDARY, FROM A TANGENT THAT BEARS N. 38 03’ 10” W., ALONG A CURVE TO THE LEFT WITH A RADIUS OF 50.00 FEET THROUGH AN ANGLE OF 54 53’ 26”, AN ARC LENGTH OF 47.90 FEET AND ALONG A COMPOUND CURVE TO THE LEFT WITH A RADIUS OF 216.00 FEET, THROUGH AN ANGLE OF 17 54’ 45”, AN ARC LENGTH OF 67.53 FEET TO THE POINT OF COMMENCEMENT.

PARCEL TWO:

ALL OF THAT PORTION OF THAT CERTAIN PARCEL OF LAND DESIGNATED AS PARCEL “H” UPON THAT RECORD OF SURVEY FILED FOR RECORD IN THE OFFICE OF THE COUNTY RECORDER, SANTA CLARA COUNTY, CALIFORNIA, IN BOOK 238 OF MAPS AT PAGES 29, 30, 31, AND 32 THEREIN, CONVEYED TO THE CITY OF SANTA CLARA BY THAT GRANT DEED FILED FOR RECORD AUGUST 21, 1968 IN BOOK 8236 OF OFFICIAL RECORDS AT PAGE 109, SANTA CLARA COUNTY RECORDS, LYING NORTHERLY OR WESTERLY OF A CURVE LINE, CONCAVE TO

 

  44   ServiceNow, Inc.


THE SOUTHEAST, HAVING A RADIUS OF 59.00 FEET, AND BEING TANGENT WITH THE WESTERLY LINE OF JAY STREET AS JAY STREET IS SHOWN UPON THAT PARCEL MAP FILED FOR RECORD OCTOBER 4, 1977 IN BOOK 405 OF MAPS AT PAGE 19, SAID COUNTY RECORDS, AND ALSO BEING TANGENT WITH A LINE PARALLEL WITH AND 50 FEET NORTHERLY OF THE SOUTHERLY LINE OF LAND AS DESCRIBED IN THE DEED FROM M. BRUCE ASHWILL, TO THE STATE OF CALIFORNIA, RECORDED APRIL 9, 1989 IN BOOK F257 OF OFFICIAL RECORDS AT PAGE 605, SAID COUNTY RECORDS.

PARCEL THREE:

THOSE PORTIONS OF PARCEL 4A OF RELINQUISHMENT NO. 22183 RECORDED ON OCTOBER 4, 1963 IN BOOK 6218 OF OFFICIAL RECORDS AT PAGE 82 AND PARCEL 6A OF RELINQUISHMENT NO. 22184 RECORDED ON OCTOBER 4, 1963 IN BOOK 6218 OF OFFICIAL RECORDS AT PAGE 73, LYING WESTERLY OF THE HEREINABOVE DESCRIBED CURVED LINE, AND LYING EASTERLY OF THE NORTHERLY PROLONGATION OF THAT COURSE BEARING NORTH 10 00” EAST IN THE WESTERLY BOUNDARY OF SAID PARCEL MAP RECORDED IN BOOK 405 AT PAGE 19, AS SHOWN ON THAT CERTAIN GRANT DEED RECORDED ON OCTOBER 15, 1982 IN BOOK H083 AT PAGE 525 OF OFFICIAL RECORDS.

APN: 224-09-172 and 224-09-173

 

  45   ServiceNow, Inc.


LOGO


EXHIBIT D

Warm Shell Specifications

The Warm Shell Specifications for the 3250 Building, the 3260 Building, and the 3270 Building (but not the Connector) are the following:

 

A.

Exterior walls

B.

Foundation

C.

Floor slabs

D.

Roof structure and membrane (that will support the units in question-no unusual specific requirements of Tenant)

E.

New glazing (full glass line)

F.

Exit doors

G.

Landscaping including walkways

H.

Parking and paving, including new strip and slurry, with new stenciled parking spaces

I.

Storm drain to parking areas

J.

Sanitary sewer line to each Existing Building

K.

Water line to each Existing Building

L.

Stairwells, including stairwell enclosures

M.

Parking lot lighting

N.

Concrete base for the street monument signs

O.

Installation of the main fire sprinkler trunks, installed, distributed and dropped. Enclose fire risers on 1st floor, with a 5-year certification.

P.

Utilities; phone, gas, electric and plumbing stubbed to each Existing Building. Interconnect conduit provided to each Existing Building terminating in each Existing Building’s main electrical room. Enclose electrical room on 1st floor of each of the Existing Buildings.

Q.

Electrical: From Santa Clara’s Silicon Valley Power:

  1. 3250 Building: As-is; has 500KVA of available power at 480 volt 3-phase service. This equates to 600 amps of power.
  2. 3260 Building and 3270 Building: These buildings share 750KVA of power. This equates to 900 Amps of power shared. If the design load calculation shows that the current electrical capacity is insufficient, Landlord will request that Silicon Valley Power upgrade the transformers, at no cost to Landlord or Tenant. If the secondary feeders in the 3260 Building and 3270 Building need to be upgraded as a result of an upgrade of the transformers, Landlord agrees to pay to upgrade the feeders, but only to the extent required for normal office use, and not a laboratory use or other higher load use.
R.

Replace the existing 60-ton units serving each Existing Building with new units sufficient for standard open plan office conditioning, up to a maximum cost of $1,115,750.

S.

Demolish existing HVAC distribution back to main plenums.

T.

Shell architect & engineering (including structural, interior, mechanical and plumbing design)

U.

Paint of exterior walls

V.

All permits for the shell and additional items above

W.

Roof screens

X.

Insulation in all exterior walls and all true ceilings

 

  47   ServiceNow, Inc.


Y.

Utility meters

Z.

Life safety systems

AA.

Elevators put into good working order and elevators and elevator equipment rooms brought into compliance with code.

BB.

Restrooms on all floors with high-end finishes. One additional toilet stall will be installed in each restroom, rather than the showers Landlord had previously planned.

CC.

Interior finishes per the following list:

  1.

Lobby Floor Field Tile: Intertile Limestone “Sea Grass”, 12”x24”, honed finish

  2.

Lobby Floor Accent Tile: Cold Springs Granite “Kenorean Sage”, 12”x12”, flamed finish

  3.

Lobby Ceiling: Gyp. Board with accent on one (1) wall in the lobby area.

  4.

Office Carpet: Shaw Contract, “Catalyst” tile, “Marble” color

  5.

Doors, door frames, and door hardware: Maple veneer, plane-sliced with clear varnish

  6.

Restroom Field Tile: DalTile, Vernada Series, “Dune” color

  7.

Restroom Accent Tile: DalTile, Veranda Series, “Gravel” color

  8.

Restroom Counters: Caesarstone, “Lagos Blue”

  9.

Restroom Partitions: Plastic Laminate

  10.

Restroom Sinks: Kohler “Caxton” undermount

  11.

Restroom Faucets: Kohler “Corolais” single-lever

  12.

Restroom Water Closets: Kohler “Kingston” wall hung

  13.

Restroom ceiling height to be 9 feet, including the restroom vestibule area.

  14.

All interior doors to be 9 feet tall, except those with already lower openings, such as the restrooms.

DD.

All work required to complete the main lobby on the first floor of the 3250 Building.

EE.

Complete drywall soffit, taping, and painting at perimeter soffit of 2nd floor of each Existing Building.

The Warm Shell Specifications for the Connector are the following:

 

A.

Exterior walls

B.

Foundation

C.

Floor slabs

D.

Roof structure and membrane

E.

Glazing (full glass line)

F.

Exit doors

G.

Main fire sprinkler trunks, installed, distributed and dropped.

H.

Electrical

I.

HVAC sufficient for standard open plan office conditioning, with distribution to all dropped ceiling areas

J.

Shell architect & engineering (including structural, interior, mechanical and plumbing design)

K.

Paint of exterior walls

L.

All permits for the shell and additional items above

M.

Roof screens

N.

Insulation in all exterior walls and all true ceilings

O.

Life safety systems

 

  48   ServiceNow, Inc.


P.

Interior finishes per the following list:

  1.

Office Carpet: Shaw Contract, “Catalyst” tile, “Marble” color

  2.

Doors, door frames, and door hardware: Maple veneer, plane-sliced with clear varnish

  3.

All interior doors to be 9 feet tall

Q.

Landscaping, including walkways

R.

Storm drain to parking areas

S.

Main fire sprinkler trunks, installed, distributed and dropped.

Utilities for the Connector will be pulled from either the 3260 Building or the 3270 Building, and will not be separately metered for the Connector. The Warm Shell Work in the Connector does not include any work related to any lobby, stairwell, elevators, or restrooms, and all of that work in the Connector is part of the Tenant Improvement Work.

Without limitation, the Warm Shell Work does not include any special HVAC for server rooms (IDF/MDF) in any Building or any other rooms that require special HVAC conditioning.

 

  49   ServiceNow, Inc.


EXHIBIT E

Credit to Tenant Improvement Allowance for Warm Shell

Work Not Performed by Landlord

The component of the Allowance described in clause (iii) of Section 5 is based on the cost of the following work in the following parts of the Premises that Landlord has not performed on the date of this Lease or, with respect to the Connector, that Landlord does not install as part of the Warm Shell Work for the Connector:

3250 Building

All work related to enclosure of the rear stairs at both 1st and 2nd floor

All work related to enclosure of the front stairs at 2nd floor

Distribution value of HVAC at 1st and 2nd floor from what would have been market ready scope

Suspended ceiling at 1st and 2nd floor

Lighting at 1st and 2nd floor

Exit signage at 1st and 2nd floor

Modifications to fire sprinklers at 2nd floor (existing drops are at 9’ and new proposed ceiling height is at 10’)

Floor coverings and base at 1st and 2nd floor

Painting cost of columns at 1st and 2nd floor

Cost of all fire extinguishers, cabinets and their installation

Cost of final interior clean

3260 Building & 3270 Building:

All work related to the lobbies at both 1st and 2nd floor

All work related to enclosure of the rear stairs at both 1st and 2nd floor

All work related to enclosure of the front stairs at 2nd floor

Distribution value of HVAC at 1st and 2nd floor from what would have been market ready scope

Suspended ceiling at 1st and 2nd floor

Lighting at 1st and 2nd floor

Exit signage at 1st and 2nd floor

Modifications to fire sprinklers at 2nd floor (existing drops are at 9’ and new proposed ceiling height is at 10’)

Floor coverings and base at 1st and 2nd floor

Painting costs of columns at 1st and 2nd floor

Cost of all fire extinguishers, cabinets and their installation

Cost of final interior clean up

Connector, the following, except to the extent installed by Landlord:

Distribution value of HVAC from what would have been market ready scope

Suspended ceiling

 

  50   ServiceNow, Inc.


Lighting

Exit signage

Floor coverings

Fire extinguishers, cabinets and their installation

Final interior clean up

Painting cost of columns

 

  51   ServiceNow, Inc.


EXHIBIT F

Outside Cafeteria Seating Area

 

  52   ServiceNow, Inc.


LOGO


EXHIBIT G

Sign Plans

 

  53   ServiceNow, Inc.


LOGO


LOGO


LOGO